
HYTTEDRØMMEN I LESUNDET EN PERLE PÅ MØREKYSTEN


![]()



Her finner du fantastiske fjell, lange fjorder og ei kystlinje verdt å utforske både til lands og til vanns. Et hyttefelt som byr både på hvilepuls og makspuls. Hyttefeltet ligger i Lesundet i Aure kommune og er ca 15 mil fra Trondheim eller ca 7,8 mil nord for Kristiansund.
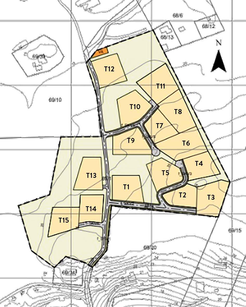
I samarbeid med Nilsgaarden AS har vi gleden av å presentere Skipphaugen Hyttefelt. Feltet har 15 solrike tomter, alle med fantastisk beliggenhet og flott utsikt mot Smøla, Hitra og Trondheimsleia. Tomtene ligger fra 20 til 40 m.o.h. og 200 - 450 meter fra sjøen. Har du båt, er du garantert å få leie båtplass kun noen minutter unna hyttefeltet. Alle tomtene har fremlagt vei, vann, avløp, strøm og fiber inn til tomtegrensen. For nærmere informasjon om tomtene henviser vi til salgsoppgaven.



Se salgsoppgave Se kart
Vil du ha ro i sjelen, kan du bare sitte på terrassen og nyte horisonten til solen går ned like før 24.00 på sommeren.



For den aktive er mulighetene nærmest uendelige. Kajakkpadling, dykking, snorkling, bading, fisking i sjø- og ferskvann, båtliv, fjellturer og skogsturer. Den rolige typen finner nydelig rekreasjon ved bare å sitte på terrassen og nyte utsikten fra hytta og nærområdet.



Nøkkelinformasjon
Hytte for salg:
15


BRA: 64,7 m2
Hems: 35,8m2
Lengde: 11,7m
Bredde: 7,6m
6-7 soveplasser


Store glassflater gir mye lys inn og god utsikt til naturen utenfor. Hytta har ei svært god planløsning. Panorana 15 har 3 soverom, kjøkken, bad, entrè og ei romslig stue. Kort sagt – veldig mye hytte for pengene. Hytta har også godt takfremspring som gjør det lunt på terrassen.
Hyttemodellen er tilpasset stedets reguleringsplan.





Nøkkelinformasjon
Hytte for salg: Svartisen


BRA: 64,7 m2
Hems: 34,9m2
Lengde: 11,2m
Bredde: 7,6m
4-7 soveplasser

Skann for mer info og priser

Vindu fra gulv til tak setter sitt preg på denne hytta. Uansett hvor du plasserer godstolen vil du få en utsikt som er unik. Når ruskeværet setter inn kan du nyte synet fra orkesterplas. Hytta har romslig hems med god høyde, hvor de minste i familien kan boltre seg. Hyttemodellen er tilpasset stedets reguleringsplan.





I Ranahytta forstår vi viktigheten av et interiør som gir deg følelsen av ro og velvære når du kommer tilbake til hytta etter en aktiv dag i naturen.
Inkludert i komplett byggesett er vår standardpakke ”Nordisk”. Den er satt sammen av ubehandlet furu. Dette gir hytta en god og varm glød, samtidig som naturen trekkes inn. Denne pakken gir deg stor frihet til å sette ditt personlige preg på hyttedrømmen.
Alle er vi ulike. Derfor har Ranahytta i tillegg til standard interiørpakke satt sammen fire forskjellige interiørpakker du kan velge mellom. Selvfølgelig kan du gjøre individuelle tilpasninger om du ønsker det.





Interiørpakke ”ARKTISK”
Lekre nyanser inspirert av den arktiske fargepaletten. Hvitlasert panel på vegg og tak. Her skinner den naturlige strukturen i trevirket igjennom.
Listverk, karmer, dører, trapp/hemsstige og rekkverk leveres hvitmalte.
Interiørpakke ”KONTRAST”
Inspirert av fargene i naturen, med en rolig og harmonisk atmosfære.
Denne interiørpakken leveres med ferdigbeiset veggpanel i grå eller brune toner, samt hvitlasert panel i himlinger. Slik bevares spillet i treets struktur. Listverk, karmer, dører, trapp/hemsstige og rekkverk leveres hvitmalte.
Interiørpakke ”LUN”
Drøm deg vekk med en palett som henter inn jordnære nyanser – lunt og varmt.
Her kan du justere fargen fra gråtonet beis til dype, brune toner både på vegg og himlinger.
Gulv- og taklister beises i samme nyanse.
Gerikt, karmer, dører, trapp/hemsstige og rekkverk leveres hvitmalte.
Interiørpakke ”HARMONI”
Vår mest eksklusive og påkostede interiørpakke. Listverk, tak og veggpanel i ferdigbeisede grå- eller bruntoner. Vindu, foringer, dører, hemsstige/trapp og rekkverk er malt i en lekker, mørk farge.

Adresse: Skipphaugen hyttefelt Åkvikveien 36 6698 Lesund.




Tomter: 1-15 eiet tomt.
Båtplass: Leie kr 4000,pr år. (2024)
Parkering: På egen tomt.
Vann og avløp: Alle tomtene har fremlagt vei, vann, avløp, elfosyning og fiber.

De solrike tomtene ligger åpent til mot havet i vest og nord. Tomtene har en høyde over havet fra 20 til 40 meter og avstand til sjøen på 200 til 450 meter.
Dette er naturtomter, kun berørt av arbeid med fremføring av infrastruktur. Alle tomtene har fremlagt vei, vann, avløp, strøm, elforsyning og fiber til tomtegrensen.
Omkringliggende områder har ingen ruvende fjell som skjermer for sola.
Midtsommer står sola opp kl 3.00 på natten og går ikke ned i havet før kl 24.00.



Grunneier: Morten Løvseth morten.lovseth@norconsult.com Tlf. 93245123
Skipphaugen hyttefelt, Åkvikvegen, 6698 Lesund
Ta kontakt med din hytteselger og få et komplett tilbud på tomt og nøkkelferdig hytte eller tomt og byggesett for å bygge selv.
Ønsker du tilbud på alternativ hyttemodell, gå til ranahytta.no og finn din drømmehytte. Last ned plantegning og gjør notater hvis du ønsker endringer.
Send tegningen til din hytteselger. Våre tekniske tegnere vil tegne om hytta og du vil få et konkret tilbud fra oss.


Skann for reguleringsplan Se kart

Din Ranahytta selger: Monica Weiseth mw@ranahytta.no Tlf 99 11 36 00
Ranahytta Midt-Norge Vikelvfaret 4, 7054 Ranheim.