Architectural Portfolio - Gur Simran Kaur

Page 1


Art & Design
Sustainability
Rock Music Photography
Female Literature

EPIC COMMUNITIES

ARCHITECTURAL DESIGNER & PROJECT MANAGER

DP ARCHITECTS

INTERN

UNHCR OFFICE REFURBISHMENT

UNHCR RECEPTION CENTRE

COMMUNITY CENTER PLACEMAKING

OBAMA FOUNDATION

BAMBOO

EPIC HOMES 163

PROJECT PHOTOGRAPHY

THESIS: ZERO-POINT CATALYST

YEAR 4: TECHNOLOGY OF BEING WELL

YEAR 4: CIRCLE OF LIFE

YEAR 3: FRAGMENTS

YEAR 2: CONCRETE TOWER

YEAR 2: ARTIST DWELLING

RAMKELI

FREELANCE

SBF CENTRE

EU HABITAT

ARTWORK & PHOTOGRAPHY

DIP.ARCH

COMPETITION: COMPASSO VOLANTE

FYP: MUSEUM OF EVERYDAY OBJECTS

UNITED

NATIONS

HIGH COMMISSIONER FOR REFUGEES (UNHCR) OFFICE

REFURBISHMENT

Shortly after the successful completion of the UNHCR Reception Centre, Epic Communities was employed again to refurbish the dilapidated office buildings at site. The project was inclusive of architectural design and details, interior design, furniture and wayfinding design.

As the project was ongoing through the pandemic, the design was regularly updated to accommodate safe-distancing measures and proper sanitation facilities. As lead project manager, managing the multimillion dollar budget, quality of workmanship, and an evolving design in a pandemic was a true test to the project and team. Working with a tight site and old structures was challenging with many unexpected site issues, all of which were managed well with the team. Overall it was a dynamic design and project management process.

Keeping in branding with the UN colour schemes, blue and white is frequently used throughout the design, alongside warmer wood tones and organic concrete finishes to add a modern finish to the workspace. The space also supports natural ventilation through passive design, sustainable in maintaining all mature trees on site and is also wheelchair friendly, ensuring UN’s Sustainable Development Goals (SDGs) was an integral part of the design process.

With the successful standard of finishes and environment, a space that was once meant for regular staff is now used for high-profile staff, international meetings and events.

All images by Gur Simran Kaur, courtesy of Epic Communities
All images by Gur Simran Kaur, courtesy of Epic Communities Sdn. Bhd.

UNITED NATIONS HIGH COMMISSIONER FOR REFUGEES (UNHCR) RECEPTION CENTRE

KUALA LUMPUR, MALAYSIA

A co-designed remodel of the UNHCR Reception Centre that sees 6001000 refugees each day, the design intent was to create a safe space physically & emotionally for staff & refugees. These included separate passageways, improved safety facilities, interview rooms, office spaces dining spaces & waiting areas.

Our participatory design process included different types of refugees and UNHCR staff from all departments so we could understand the user experience to curate a reception centre that mandates to safeguard the rights & well-being of refugees & asylum-seekers. It was a technically challenging design process with many learning outcomes.

Due to the sensitive nature of work and user groups, designing a space that accommodates a symbiotic visitor and staff workflow was crucial to understand and apply architecturally and socially. With better spaces and flow of zones, waiting times and queues were reduced significantly. Basic amenities such as nursing rooms, toilets, fire exits and access to water was also provided, all of which were lacking previously.

Passive design strategies were used to ensure good cross-ventilation, garden spaces and selection of materials and textures provided a comfortable and welcoming architectural design.

This design and was then used as a model design for other UNHCR Reception Centres globally. We shape our environments and in return they shape us, and as designers, we believe this Reception Centre has provided a suitable environment for UNHCR to continue the inspiring work they do.

Main waiting area

COMMUNITY CENTER PLACEMAKING

SUBANG RIA, MALAYSIA

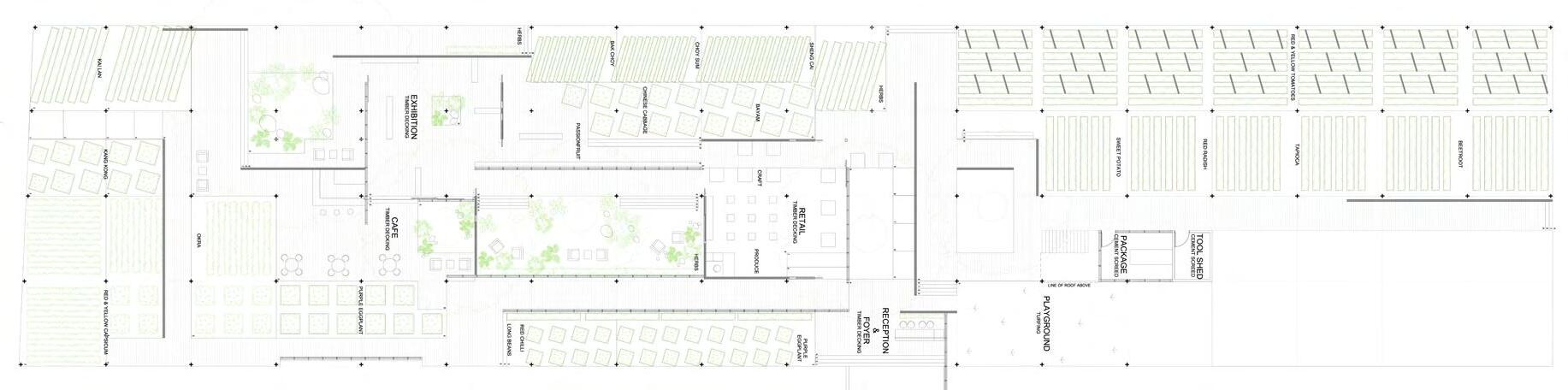
Epic Communities was engaged as a consultant to vision plan for a 7.5 acres site at Subang Ria Park using participatory & placemaking design approaches with these core pillars : co-development model, sustainability focus & inclusive communities. Spaces comprise of Green, Learn + Create, Gather + Play + Living Concepts.

As our cities become more challenging places to live in due to the ills of urbanisation, there still remains hope for building better places, but it must be done collaboratively. This is what the Park embodies.

While many developments would focus on developing attractive spaces that highlights sustainable efforts, these would only form part of the sustainability narrative. We believe that for a development to be truly sustainable is to build relationships, and to do this via fostering community ownership of spaces.

The project aims to be a unique development that revolves around the theme of sustainability and inclusiveness; to create empowered people who will impact communities around them. The path to achieving sustainability is non-linear, the park will similarly be designed in an organic manner where the space and programs can be flexible to changing needs of its users.

Set in Subang Ria park, the project’s approach to landscaping is the core foundation in the overall scheme and use of space. The concept uses a main Spine that would stitch the different zones in the site together, as well as permaculture techniques for purposeful landscaping.

OBAMA FOUNDATION ASIA PACIFIC CONFERENCE COMMUNITY PROJECT

MALAYSIA

EPIC worked with the Obama Foundation as their community service consultants to conduct two community service building projects: building furniture for local schools at Pulau Ketam and Pandamaran & building new amenities in Damansara Damai.

The new amenities included playscapes, resting spaces, coloured courtyards, farming amenities such as trellis and signage and overall improvement of communal spaces for the low cost residence. These amenities were designed as a volunteer build experience for over 200 Leaders from 33 nations, as part of their overall summit to underscore the important relationship between service and leadership.

My personal contribution was to update, design and curate an existing community garden which included: a trellis, footpaths, brick boundaries and signages. Recycled plastic tiles and materials were re-purposed for the design. This was also to educate the community about recycling, upcycling and waste management.

BAMBOO DESIGN COURSE

Completed a design course by, former Lead Architect at Ibuku Bali, under Better Bamboo Buildings. Theory of bamboo design, material specifications, and construction methods and details were taught.

BAMBOO HOMESTAY BUILD

SERENDAH, MALAYSIA

Building with bamboo and working with 3Mgives and the Orang Asli (native) community to facilitate sustainable tourism and socio-economic empowerment. This build solidified my theoretical experience and gave a deeper level of understanding to working with Bamboo as a material.

EPIC HOMES (EH) 163

RAWANG, MALAYSIA

EH (Epic Homes) 163 is a home was built for an Orang Asli (native) family in need within in 3 days, who were previously living in a dilapidated house.

The house was awarded “Fastest Home Built by an All Women’s Volunteer Crew” in Malaysia Book of Records. The build was completed in conjunction with International Women’s Day and in collaboration with the Ministry of Women, Family & Community Development (KPWKM).

FARM FRESH

PROJECT PHOTOGRAPHY, MALAYSIA

HOUSE ON THE HILL

PROJECT PHOTOGRAPHY, JANDA BAIK, MALAYSIA

All images by Gur Simran Kaur, courtesy of Epic Communities Sdn. Bhd.

ZERO-POINT CATALYST: ADDRESSING POST EMERGENCY NEEDS THROUGH SELF-RELIANCE OF INTERNALLY DISPLACED SYRIANS

THESIS - SYRIA

Since the Syrian civil war began in 2011, it has had permanent effects on surrounding nations, people and architecture. Due to unethical actions of nations walling borders, many remain trapped at Syria’s front lines with limited humanitarian aid access. This thesis aims to address the post-emergency needs of internally displaced Syrians located at the Syrian-Turkish border through the concept of self-reliance. The key design intent is to acknowledge architecture’s role in self-sufficiency through construction and local materials on site. The catalytic concept is to formalise the permanent growth and integrate the displaced settlements through spaces that encourage peace and healing in order to regain ownership, identity of life and living.

A zero-point delivery system exists where Syria collects supplies from the UN Transshipment hub on Turkey’s side of the border (650m away from site) and drives back into Syria, cutting through our site. Border towns by nature have interesting opportunities to be contemporary cities. Emergencies such as this have a culture of being fixed quickly with temporary solutions to long term problems. However, the solutions tend to remain the same once into the post-emergency phase; resulting in a state of permanent transition. There are specific needs for IDPs. They in nature are different from refugees as external aid is not obliged to help them. In addition, their instable governance means self-reliance is a tangible solution, if not the most. Developing post-emergency needs of dignity and hope are critical in self-reliance. Alongside generating a new identity that the people may resonate with. Situations such as this tend to be multi-faceted from social, economic, political, and selfreliance a vast concept, so how can architecture help in this?

This thesis attempts to develop architecture that can play a role is rebuilding dignity, identity and hope through its spaces and construction to initiate self-reliant concepts through a Catalyst.

CONCEPT SKETCHES

Exploring growth, transient > permenance, expansion, movement patterns, form & space, tents > homes, humanity, destruction > resurrection, people.

STAFF LODGE

SOUK STREET
MASHRABIYA STUDIO

EXISTING SCHOOL WATER

Identity of the tower as a monument, functioning chimney for the furnace, observation watchtower for safety, a reflection of the mosque’s minaret, symbol of Hope.

MASHRABIYA
Visual Connection

3. RAMMED WALL

Ramming the earth at 1m height interval

FINAL

FLOOR LAYER

Sand, straw, clay, soil, fine gravel, finished with 4-6 layers of linseed oil (waterproofing)

ROUGH FLOOR LAYER

Sand, straw, clay, soil, large gravel, mixed to the consistency of cement screed and poured

2. FORM WORK

4. REMOVE FORM WORK

Reuse form work for Mashrabiya windows

1. FOUNDATION

Digging undisturbed earth to lay the foundation. Foundation uses concrete rubble from war-torn neighbouring towns and is re-purposed in the construction as part of the main structure of floors, foundations and walls.

Adding wooden form work to be reused for Mashrabiya windows/other form work or for fuel

MATERIALS AND CONSTRUCTION

EARTH SCREED

WOODEN BOARDS AND RAFTERS

SIGN

Imprints made into brick for easy construction, doubles as a signature of the campsite

STABALISED

EARTH RAMMED WALL

BRICK

Perforated wall, column, simple wall

EARTHEN FLOOR

SINGLE PANEL

MOULD

100, 200, 60mm, applicable brick size for manual construction

BRICK COMPOSITION

Straw, cement, mud, sand

TENON & MORTISE JOINT

Size of opening is dependent on function, privacy of space

MASHRABIYA WINDOW

2017

Water points along main circulation routes become key social and communal points where catalyst can start. Catalyst begins with the largest water point, adjacent to public plazas and separated by the street axis and mosque. Neighbouring facilities include schools, markets, kitchens and clinics, the catalyst expanding on the existing infrastructure.

2022

Site design gradually built in phases. Construction by IDPs themselves to create a sense of ownership and develop construction skills. The site will then be built in phases of construction, staring with the staff lodge that acts as a supporting facility to lead the building of the rest of the catalyst.

Typical water collection spaces are constructed around the site first to initiate growth and rebuilding their homes with construction skills around modules. The typical module from the site is replicated and dispersed around the site to initiate the permanency.

2030

Tents are converted into permanent homes and more catalyst modules are dispersed through the site, each taking on its own morphological changes. It explores opportunities to enable people to design the home to their needs and adapt the skills they learnt and materials used for themselves. This makes each house specific to its context, materials, construction time and resident. It also gives a sense of ownership and attachment, empowering them to take the first step into making it a home depending on needs, identity or sense of familiarity.

2045

As permanency is formalised through the homes instead of tents, Bab Al-Salam IDP camp has transformed into a thriving bordering town through facilities such as the extended souk street, encouraging exchange and trade with Turkey’s bordering camps and cities.

As with time, the boundary of the camp starts shifting outwards and continues to grow. New typologies of homes are created, the building footprint limited to the boundaries of the tent. These smaller typologies create more dynamic occupancies and shared spaces, resulting in new cultures and way of living. This makes up a contemporary border town created by displaced Syrians themselves who have settled permanently.

B.ARCH

THE TECHNOLOGY OF BEING WELL

YEAR 4 - JURONG, SINGAPORE

This business park looks into the medical technologies of preventive healthcare, treatment and clinical research. Technologies such as 3D printed implants, preventive healthcare tracking devices, pharmaceutical drone delivery, humanoid robots, and virtual reality education are researched and applied here.

The site itself is used as a form of primary prevention by ensuring a combination of healthy spaces that prevent damage and healing spaces that promote well-being. Well-being is a satisfactory condition of existence; a state characterised by happiness, health and prosperity. This suggests a necessary balance between the social, economic, psychological and physical states. In 2050, mental illness will be more critical and apparent than physical illnesses, due to the environment.

The intention is to create a healing environment that combines Community (residents), Academia (NTU), and Industry (professionals) through innovation, interaction and integration of architecture and programs in an urban context so as to optimise well-being.

The site design focuses on walkability, encouraging movement and a combination of water and landscaping to create a peaceful, park-like environment. Landscaping is also used as a key connector for different zones and groups of people in the site and neighbouring areas. The inbetween spaces of the clusters are equally as important as the cluster itself.

This project is in collaboration and under the direction of JTC (Jurong Town Council) Singapore.

Massing Study

Basement Goods & Mover System

PROGRAM AND DESIGN STRATEGIES

CIRCLE OF LIFE: COMMUNITY FARM TO KITCHEN

YEAR 4 - HONG KAH, SINGAPORE

The Jurong Spring Police Station was originally a school building before it was converted to a police station. Recently, the premises were abandoned, and the site is currently unused. As an interim measure, the structure and the surrounding open space can be re-purposed with new insertions and modifications for community use for Jurong Spring residents. As a group initiative, each student was given a piece of the building to design with, which will then come together as a whole.

Our increasing consumption naturally leads to an increase in waste. To educate and engage the community in a more conscious culture, the community farm to kitchen and makerspace is a reflection of the life cycle we engage in. The three step process leads from Production (Farm) - Consumption (Kitchen) - Waste (Makerspace).

Food served and cooked in the kitchen is mainly from the urban farm, local dishes such as ‘sambal kangkong’. Integration with neighbours include extending the Kitchen into a multi-purpose court for events and catering. The kindergarten and eldercare is linked by a green roof for farming as well, that leads into the main farming site. A playground for the children is also present in the farm to integrate with neighbouring programs.

FARM AND KITCHEN LAYOUT

FRAGMENTS: THE TREE-HOTEL

YEAR 3 - JOO CHIAT, SINGAPORE

The objective of the project is to develop the arts community amongst the locals, expand the greenery on site, and contrast the linear organisation of structures in Joo Chiat by introducing a play of volumes. It is encompassed through a tree-house concept and strategy.

The program would encompass the hotel to be used not only as that, but a hosting space for courses and camps with schools during holidays, as well as, festivals that occur through the year such as, Singapore Arts Festival.

The design direction was to maintain the original trees on site and translate a parti diagram of a tree fragmenting and branching out - from the size of the trunk to that of the leaves, into a design. The arrangement of modules results in a third, in-between space. This would in such be used as a courtyard or other activities.

Through the fragmentation, it allows for varying levels of intimacy, that reflects the size of the activity and module. Materials chosen are primarily wood and concrete, which are left unfurnished and raw. This is to reflect the dense state of greenery and the natural state of it. Rooms have twin beds to support the function of it as grounds for courses and camps to happen.

CONCRETE TOWER

YEAR 2, SINGAPORE

ARTIST DWELLING

DIP.ARCH

COMPASSO VOLANTE - COMPETITION

MILAN, ITALY

To design a multifunctional building with these characteristics:

• Minimised environmental impact (energy, materials, water, etc.);

• Cutting-edge technologies, considering EU legislation about zero energy buildings (2020);

• Technological design innovation.

The multifunctional building, located in the centre of Milano should contribute to the rehabilitation of a neglected area.

MUSEUM OF EVERYDAY OBJECTS

YEAR 3 - SINGAPORE

As observed, museums are almost never a norm for gathering or interest for the current generation. Museums are seen as a downbeat and no-nonsense area. This results in a lack of children and youth generally. as well as. at the site. As the future of museums would be in their hands. there is a need to attract and instil interest for museums in them. They may one day feel that museums are not worth keeping anymore.

Concept: A living playground was derived due to its fun nature. Users will constantly experience play and interaction with their surroundings and the objects itself. Instead of simply looking at the 40 objects from a distance. users are encouraged to touch, play and engage with these objects to have a better understanding and experience of it. By extracting the qualities of a playground, museums no longer have a rigid structure but a fun and carefree atmosphere.

A half-sharpened pencil, a jumbo colouring book and triangle shaped colouring pencils were my childhood companions (especially when I fought with my brothers). Some pages of lines and shapes were filled with careful colour precision, and most of the other pages, colouring out of the lines, painting the sky green and the grass blue, adding a flower where I think I should be. That was the magic I found in art, that I could create my own environment, choose the palette, and feel like I belonged. I would recreate my dreams, though I often wonder if my art makes my dreams or do my dreams make my art?

Starting crayons in my nimble fingers, to intricate pen doodles in my teenage years (confession: this is what happens when you sit at the back of the class), moving on to paints and canvases as I thought it was the only way an artist can be an artist. But I never stopped there. There was always a hunt, a desire to recreate something I had seen, knowing I could. Which positively resulted in a wide range of art, from ceramics, to wood, to making models, t-shirts, books, calligraphy, music albums, wedding cards, and at present, digital m(edit)ations. I am constantly expanding my vocabulary for art, the lack of specialising giving me freedom, without limiting my beliefs or abilities.

Converting my passion into academics, I pursued a path in Architecture (or as how I like to call it, ARTchitecture!) after my GCE O Level, from a diploma to a degree and presently, holding a Masters in Architecture (phew! those were a lot of years). I have always felt architecture is a marriage between art and science, people and their environment, conscious and unconscious. Architecture is a catalyst for impacting the way people live, breathe, interact and just be.

Almost everything I create comes from what I observe, most of which is Nature and Prayer. Often, they’re the same thing. It is how I meditate and connect. I believe I am not the art and neither the artist, but the instrument for creations to manifest. Discovering the Divine within - a simple prayer, to create purposefully through art and architecture.

Turn static files into dynamic content formats.

Create a flipbook
Issuu converts static files into: digital portfolios, online yearbooks, online catalogs, digital photo albums and more. Sign up and create your flipbook.
Architectural Portfolio - Gur Simran Kaur by Gur Simran Kaur - Issuu