Work Samples '24

Page 1

WORK SAMPLES | RAJ GAJJAR

RAJ GAJJAR

LEED AP BD+C

Hi! I’m an architectural designer with 4+ years of experience, working on strategic design solutions with a desire to shape sustainable and functional environment. I strongly believe that designs have the power to influence an individual’s approach and reflect a unique sense of values as they evolve over years with each individual’s personal touch.

“Design is not just what you see and feel. It’s how it makes you think.”

As simple as this quote sounds, it justifies the fact that design is beyond the arrangement of different shapes and masses. It demands a conscious effort to understand and implement the evolving needs of a larger context. C

raj.gajjarb@gmail.com

+1

linkedin.com/in/rajgajjar

to
in
Resident
Green Card Holder)
Authorized
Work
USA (Permanent
-
Santa Barbara, California (Open to Relocate)
(916) 477 4780
onta C t W ork a uthorization
archinect.com/rajgajjar

C r E d E ntials

NCARB Certificate

National Council of Architectural Registration Board (ARE - 4/6 Completed, AXP - Completed)

LEED AP BD+C

Green Building Certifications Inc. - GBCI (Credential ID - 0011414358)

Registered Licensed Architect

Council of Architecture - India (CA/2019/110620)

W ork E xp E ri E n CE

Blackbird Architects (Intermediate Designer), Santa Barbara, California, USA

- Worked on 10 projects of varying scales (Residential, Educational, Commercial, Interior Renovations).

- Integral part of the design team for multiple projects starting from Concept design into Construction.

- Interacted with clients & coordinated directly with project consultants during different stages of projects.

- Supervised the development of construction documents & reviewed cost estimates.

- Managed QA/QC & Construction observation tasks (RFI’s, Submittals, Field Reports) for certain projects.

Blocher Partners India (Architectural Intern), Ahmedabad, Gujarat, India

- Assisted the design team in delivering stratergic design solutions on projects (Commerial, Institutional)

- Prepared concept sketches & presentation drawings for client meetings.

- Coordinated shop drawings & worked with consultants for Façade design optimization.

- Conducted product research & interacted with product representatives as per project requirements.

E du C ation

Bachelor in Architecture (B.Arch)

Faculty of Architecture - Sarvajanik College of Engineering & Technology, Surat, India

s kills

Core Skills

(In Progress)

(2019 - Present)

(2019 - Present)

(2019 - Present)

(2017 - 18)

(2014 - 19)

Adaptability, Acountability, Attention to Detail, Collaboration, Initiative, Problem Solving, Time Management

2D/3D Modelling, 3D Rendering

AutoCAD, Revit, Vectorworks, SketchUp 3D, Rhinoceros 3D, Lumion, Enscape, VRAY, Twinmotion

Digital Imaging

Photoshop, InDesign, Illustrator, Premier Pro, After Effects

| 04 | Work SampleS | raj Gajjar
|
| Table of ConTenT
| 05 | Table of ConTenT | InTroduCTIon Tranquil ResidentiAl | PRofessionAl oasis HosPitAlity | PRofessionAl Commune CommeRCiAl | PRofessionAl CapiTol institutionAl | ACAdemiC [ i ] [ ii ] [ iii ] [ iV ] 6 14 22 30

[I] TRANQUIL

SANTA BARBARA, CALIFORNIA, USA RESIDENCE | PROFESSIONAL

As it is often said, “A house is a reflection of one’s personality”. Every detail contributes to the overall vibe and feel of the space, making it a canvas for self-expression and a place where one can truly be themself.

Nestled within the serene neighbourhood offering breathtaking views of the ocean, this contemporary residence creates a unique composition of cozy and stylish living. Incorporating an open floor plan and plenty of windows to maximize natural light and flow, aids in creating a space that’s perfect for both relaxing and entertaining.

Residential | PRofessional | 07 |
| 08 | Work SampleS | raj Gajjar king king 2 3 5 4 8 6 6 6 14 13 12 11 13 14 1
N
Fig. | 1.01 Proposed Site Plan
Residential | PRofessional | 09 | 365 Driveway 1 Garage 2 Entry court 3 Foyer 4 Powder room 5 Patio 6 Great room 7 Kitchen & Dining 8 Primary suite 9 Jacuzzi 10 Pantry 11 Laundry 12 Guest bedroom 13 Succulent garden 14 6 7 9 6 6 10
W S | r G
Fig. | 1.03 North - East Elevation
Residential 0 4 8 East Elevation 2 2 1/4" = 1'-0" feet 235 Palm Ave Santa Barbara CA 93101 USA t 805.957.1315 f 805.957.1317 www.bbird.com civil engineer: Jason J Gotsis Ashley&Vance Engineering 210 E Cota Street Santa Barbara CA t 805.962.9966 arborist: Duke McPherson 201 East Mountain Santa Barbara CA t 805.705.9529 structural engineer: Thom Hume Thom Hume Consulting 954 Toro Street San Luis Obispo, 805.962.6311 mechanical / plumbing Tom Hughes Mechanical Engineering 1616 Anacapa St Santa Barbara, CA 805.957.4632 electrical engineer: Alan Noelle Alan Noelle Engineering 1616 Anacapa St Santa Barbara CA 805.563.5444 Story Revisions 4404 Via Abrigada Santa Barbara 235 Palm Ave Santa Barbara 93101 USA 805.957.1315 805.957.1317 www.bbird.com civil engineer: Jason J Gotsis Ashley&Vance 210 E Cota Santa Barbara 805.962.9966 arborist: Duke McPherson 201 East Mountain Santa Barbara 805.705.9529 structural engineer: Thom Hume Thom Hume 954 Toro Street San Luis Obispo 805.962.6311 mechanical Tom Hughes Mechanical 1616 Anacapa Santa Barbara 805.957.4632 electrical engineer: Alan Noelle Alan Noelle 1616 Anacapa Santa Barbara 805.563.5444 1 Resubmittal 21BDP-00000-00629 063-062-002 0 4 8 South West Elevation 2 2 1/4" = 1'-0" feet 0 4 8 North West Elevation 2 1 1/4" = 1'-0" feet
| 012 | Work SampleS | raj Gajjar
Fig. | 1.05 Sectional Elevation Fig. | 1.04 Aerial Overview of the Proposed Design
Residential | PRofessional | 013 | is NOT permitted in
Fig. | 1.06 Enlarged Section through Fireplace

[II] OASIS

BHUJ, GUJARAT, INDIA HOSPITALITY | PROFESSIONAL

A locale in the dry & mundane setting of Bhuj demanded an exuberant character. The program asked for a clubhouse design with various functions & amenities for a delightful experience.

The site being in the outskirts of the city was free from the surrounding context, allowing the peace required.The idea was to create an experience of peace & joy in which a visitor can relax upon.

Hospitality | professional | 015 |
| 016 | Work SampleS | raj Gajjar N
Fig.
|
2.01 Proposed Site Plan
| 017 | Hospitality | professional

The activities in the clubhouse are not just limited to internal spaces but are expanded to open landscape areas as well. The relationship between inside and outside is carefully maintained by having multifunctional courtyards.

Diverse activities are involved in forming the program, allowing a fun experience for the visitor regardless of the age group.

| 018 | Work SampleS | raj Gajjar
Fig. | 2.04 Entries into the site & the built spaces Fig. | 2.02 Program Formulation by blending various Functions
| 019 | Hospitality | professional
Fig. | 2.05 Overview of the Proposed Design Fig. | 2.03 Zoning of spaces on site considering the extensive programmatic requirements
| 020 | Work SampleS | raj Gajjar
Fig. | 2.06 Box Window Facade Sectional Elevation Fig. | 2.07 Brick Screen Facade Sectional Elevation
| 021 | Hospitality | professional
Fig. | 2.09 Internal view from the Restaurant looking into the Kids Courtyard Fig. | 2.08 Looking into the Central Courtyard consisting the Outdoor Pool

[III] COMMUNE

SANTA BARBARA, CALIFORNIA, USA COMMERCIAL | PROFESSIONAL

An extremly essential part of a thriving community is a space for people to congregate, worship & share experiences.

Working in close collaboration with the stakeholders of the project, the idea was to create a space that is inclusive, accessible, and visually striking while serving as a hub for social, cultural, and educational activities. With the concious approach to not deminish the historic character of the neighbourhood the project is situated in, the proposed design is intended to blend in seamlessly with the surrounding context while restoring the lost historic character of the exterior facade.

| 023 | CommerCial | Professional
| 024 | Work SampleS | raj Gajjar
Fig. | 3.01 Sanctuary Space during service
| 025 | CommerCial | Professional
| 026 | Work SampleS | raj Gajjar 4 3 6 1 1 1 9 0 8 16 fee 4 0 8 16 fee 4 w mon o m up SERVICE ENTRY SERVICE + DELIVERY EMERGENCY EXIT MAIN ENTRY SECONDARY ENTRY C assroom / Remote View ng Conference Room Off ce Entry Foyer Stage Storage Passage Infan Room/ A t Support 8sea s Sanctuary + - 366 seats Stage Stage Storage 3rd Exi Ma n Entry Foyer Ki chen Service Ex t RR RR Narthex / Open Gather ng Space Ch ldren s Room 2 Ch ldren s Room 1 Ch ld RR Nursery RR Vestibule (E) Women s RR (E) Men s RR Storage Sound Lock Tech Boo h Sound Lock E e rical Room Equip Room Equ pmen Room Art Ga lery
Fig. | 3.03 Proposed North Elevation
N
Fig. | 3.02 Proposed Floor Plan
| 027 | CommerCial | Professional
Fig. | 3.04 Looking at the Exterior Facade from across the street Fig. | 3.05 Restored North Elevation to blend with the surrounding historic context
| 028 | Work SampleS | raj Gajjar
Fig. | 3.06 Open Gathering Space after service Fig. | 3.08 Sectional Perspective Kids ClAssRoom nARtHex / oPen GAtHeRinG sPACe teCH BootH
| 029 | CommerCial | Professional
Fig. | 3.07 Open Gathering Space during social events sAnCtuARy stAGe WAlKABle sKyliGHt oPen Roof deCK

[IV] CAPITOL

AMRAVATI, ANDHRA PRADESH, INDIA INSTITUTIONAL | ACADEMIC

The conjuncture of partition of Andhra Pradesh and Telangana and the emergence of Amravati as the former’s capital, demanded to be designed, a legislative assembly. The site ideally sits on the dorsal end of the city, with river Krishna to its north.

The need and purpose of the built unresistantly allowed its association with the open scape, here the democratic essence of respecting “public needs”, plays its role in the backdrop.

InstItutIonal | academIc | 031 |

Intergration of the built depicting rigidity & linearity.

Mass upliftment, allowing visual & spatial free flow on ground.

Lightening the overall structure, with a open piazza in the center housing the core functions.

Slab modulation resulting in the formation of open terraces.

Treating the external facade to bring out a visually appealing structure.

| 032 | Work SampleS | raj Gajjar
- inCoRPoRAtion of A CentRAl CouRtyARd Fig. | 4.02 Significant Design Ideas - fReeinG tHe GRound leVel Fig. | 4.01 Design Process
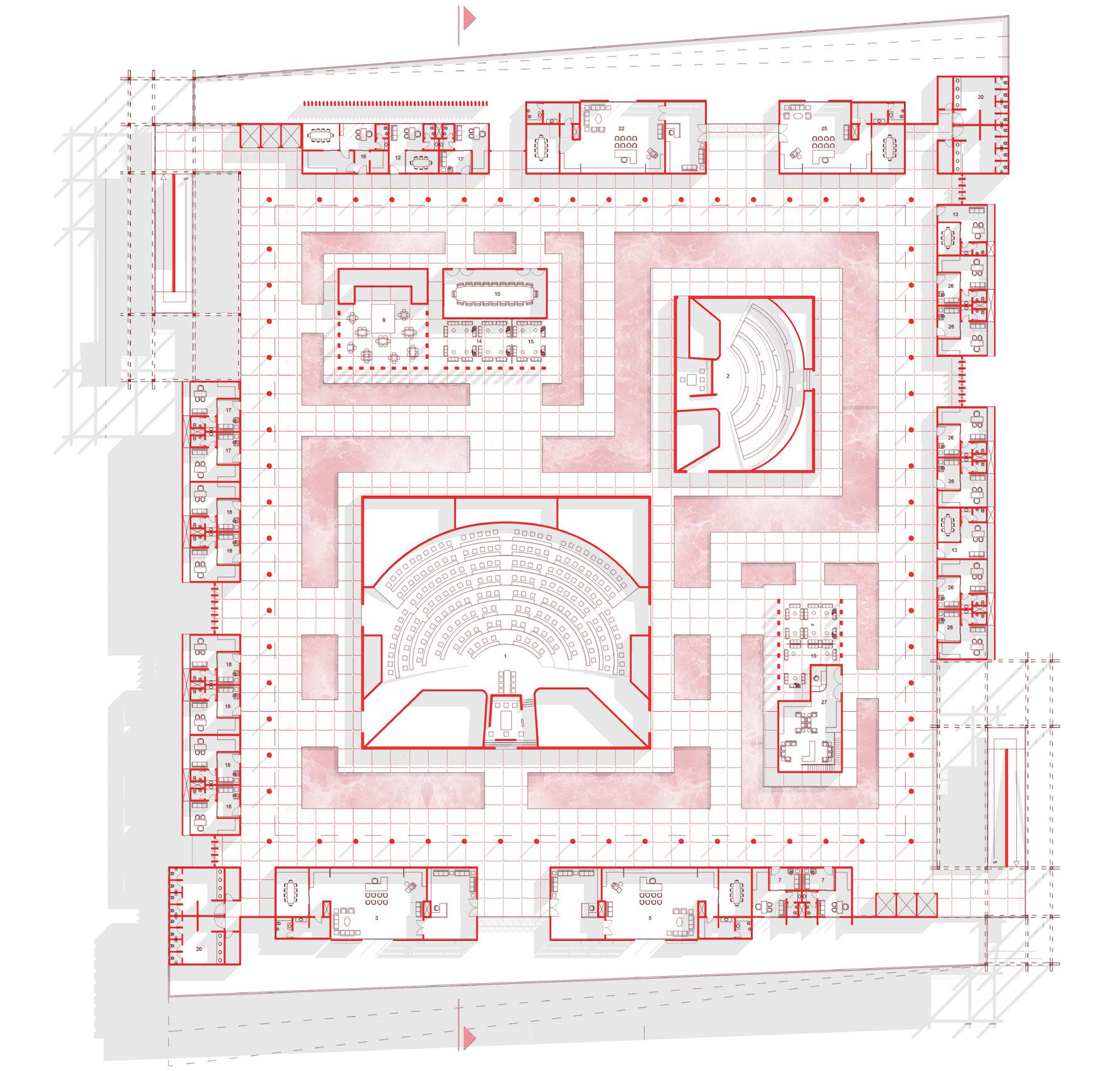
InstItutIonal | academIc | 033 | N
Fig. | 4.03 Proposed Floor Plan Fig. | 4.04 Section AA’

VerTiCal fins

A controlled procurement of light , also an element adding to the aesthetic appeal.

pergolas

Overhanging pergolas help in cutting off the direct light coming through.

perforaTed sCreens

The perforations act as a physical barrier, allowing visual connectivity.

| 034 | Work SampleS | raj
Gajjar
PedestRiAn WAlKWAy nAtuRAl BuffeR VeHiCulAR RoAd PuBliC PlAzA/ PARAde GRound eneRGy effeCient VeHiCulAR PARKinG Fig. | 4.05 Salient elements of the project. Fig. | 4.08 Proposed Design Site Section
InstItutIonal | academIc | 035 |
CiRCulAtion oPen GReens WAteR Pods PuBliC PlAzA entRies PuBliC entRy CounCil HAll ministeR’s PARKinG AssemBly HAll ViP entRy ViP PARKinG Fig. | 4.07 Site Zoning Diagram Fig. | 4.06 Parking structure responding to the Climate.
LINKEDIN.COM/IN/RAJGAJJAR ARCHINECT.COM/RAJGAJJAR raj.gajjarb@gmail.com +1 (916) 477 - 4780 CONNECT

Turn static files into dynamic content formats.

Create a flipbook
Issuu converts static files into: digital portfolios, online yearbooks, online catalogs, digital photo albums and more. Sign up and create your flipbook.
Work Samples '24 by Raj Gajjar - Issuu