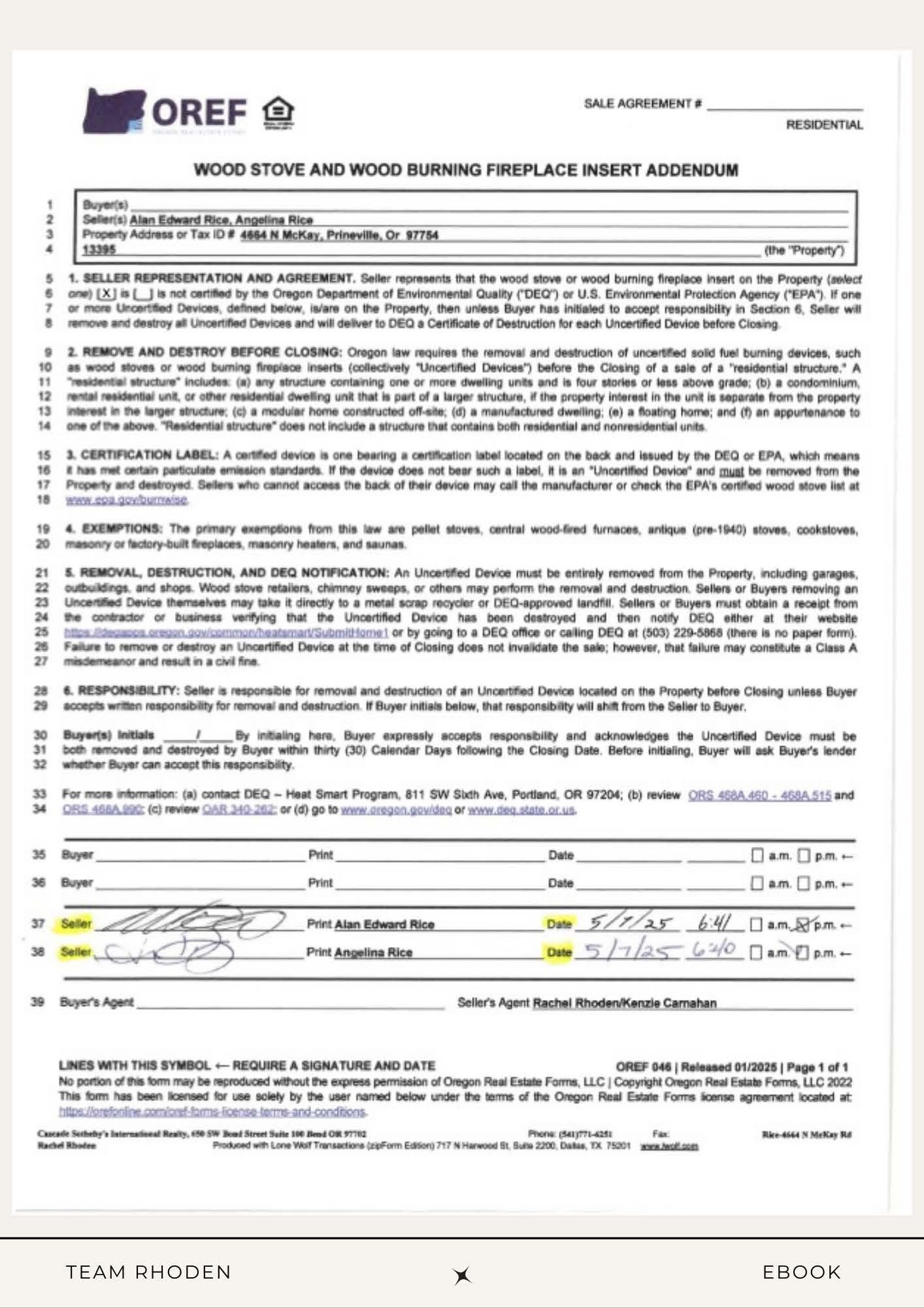
Stunning Cascade Mountain views from this versatile 10.59-acre property, featuring 9.7 acres of irrigation with a wheel line in the back field. Fenced and cross fenced for a variety of animals. The 4-bedroom, 2-bath home includes a cozy primary suite with propane fireplace, private deck, ensuite bath, and walk-in closet. An open great room with a new wood stove, bonus room, new covered back patio with stamped concrete and new front covered porch to take in the views and detached garage with space for multiple freezers and cold storage make country living easy. The property is fully equipped with an RV Cover, RV dump, large barn, one bay with concrete floor, mid bay has 14' door, 3rd bay has a 12 x 12 milking parlor and 2 additional 12 x 12 stalls, squeeze chute, horse stalls with runs, round pen, tack room, chicken coop, and dog kennels. Garden is underway with garlic, onions and potatoes, plus a mature apple orchard and young stone fruit trees.