

SUMMARY

Architectural
Urban scale
Documentation




A U T O C A D

During my professional practice, I have worked on various projects using AutoCAD, showcasing my ability to create precise and detailed technical drawings that meet required specifications. These projects include measurement surveys, urban-scale projects, and technical documentation.
Urban housing with declared heritaga values
Bogotá has over + 6,000 properties of cultural interest, classified at different levels based on their aesthetic historical, and cultural value. Sourveys have been coordinated and conducted for over 600 properties.


Central Cementery-of Bogotá - Colombia
Built in 1836 – The city’s oldest and most recognized cementery. It was built by Pío Domínguez and Nicolás León according to the Domingo Esquiaqui’s plans.





The Primate Cathedral
Bogotá - Colombia
Built in 1823 – It is recognized as national monument, designed by Domingo de Petrés.
San Francisco Palace, Bogotá Colombia
Built in 1933 – This project was executed by the architects Gastón Lelarge, Arturo Jaramillo Concha and Alberto Manrique Martin

The survey makes it possilbe to identify, categorize and calculate various types of processes and materials of the excecution of the interventions.
HolyTrinity Church -Bogotá Colombia
Built in 1939 – Showcasing eclectic and neo-Romanesque architectural styles by Jaramillo Concha



Creation and elaboration of diferents documents that follow up the maintenance and restoration interventions
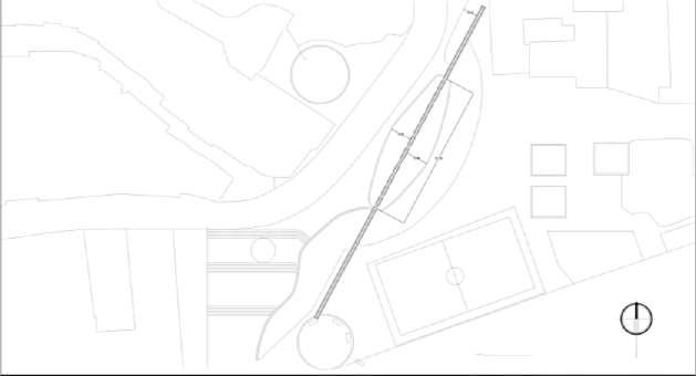
Indian Bridge, BogotáColombia
The Indian Bridge is a monument that evidences the ancient engineering of the place.


Intervention ReportGeoreference
Format of interventions month by month





PMT (Traffic management plan).
During some days of intervention, a traffic management plan (required by district regulations) is carried out because the safety enclosures for the construction site obstruct vehicular roads
Intervention scheme
It specifies the properties to be intervented defined in an action plan.

- Telval
Participation in the development of the documentation required for the executing various projects across different construction phases (feaibility, regulatory compliance, and construction drawings), ensuring compliance whit their respective requirements.


DOLLAR CITY, Bogotá - Colombia
Proposed facade design for DOLLAR CITY branch.
Nazca 180 Building
To meet the documentation requirements for the hydaulic connection, excavation and water supply installation were proposed for a residential building.





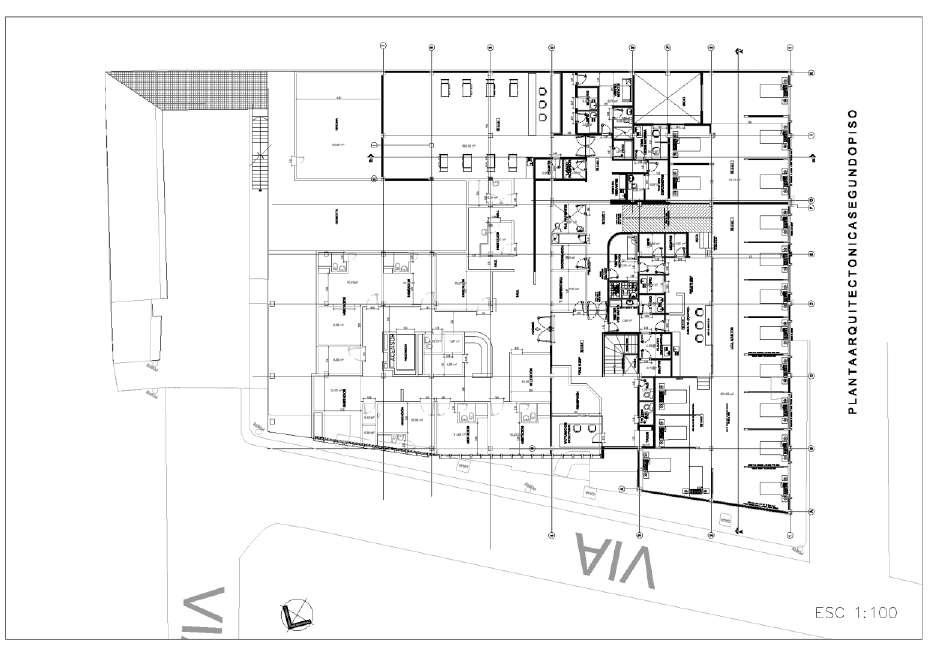
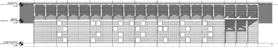
Supervision and adjustment or asbuilt drawings across various categories (structural, hydraulic, electrical, and non-structural elements).
Block A Normal Superior, Educational Institution, Pasto Colombia

Clinic Celad, Dorada, Caldas Colombia
Support for graphic and thecnical final drawings.


In my professional practice, I have acquired solid knowledge of the Revit program, developing diverse projects that demonstrate my ability to create detailed and accurate technical models. These projects include various levels of development (LODs) and the creation of families.
Amairis Community Sewing Workshop – Pereira, Colombia
Creation of Revit families for construction details.
Axonometry

Connection detail







Built in 2019 – Project executed by the architectural firm Ruta 4 Taller.
Bamboo windows with metal frames.



North


South
Coordination of specialties based on georeferenced point.


Engeneering faculty
Universidad Nacional de Colombia


Development of programming, area calculation and solar studies.

Axonometry



Built in 1941 – Designed by architect Burno Violi







Using the Enscape plug-in as a rendering engine, the solar study’s effectiveness was validated

Section 1
Section 2
Welfare and Thecnology bulding, National University of Colombia, Bogotá


Digitalization of the National University of Colombia’s campus with meticulous attention to preexisting buildings














A virtual walkthrough was created using the Enscape plug-in to simulate the comfort of various spaces.







Cafeteria
Section 2
Section 1
Section 3
Pedestrian footpath
Landscape
Walkable roof
Prototype

R H I N O C E R O S

In my professional developing, I have experience creating detailed 3d models of architectural and scultural elements.
Bogotá is home to 118 monuments declares as cultural heritage, which have been digitalized in 3D to serve as a district resource for ongoing restoration and maintenance interventions.
Monument to La Piedra de Bolivar
Erected in honor of the liberation achieved by the final victory of the Battle of Boyacá.


Monument of Carlos E. Restrepo
Carlos E Restrepo was the most prominent representative of the Republican Union movement.







Axonometry
Axonometry
Monument to José de San Martín, Bogotá – Colombia.
José de San Martín was a hero of Argentina’s independence, also recognized as the liberator of Chile and Peru


Top

Axonometry


Base of the Monumento to José Prudencio Padilla, Bogotá – Colombia.
José Prudencio Padilla was Colombia’s first admiral.




The model was meticulously developed with detailed facade elements, including a proposed structural reinforcement and lighting system.
Restoration of an Abandoned House
Abandoned property in the northeast of the city of Bogotá
Categorization of elements by layers with corresponding materials.




Axonometry




Top
Floor plan

Walls and sloped roofs crafted with precise connections using Boolean tools.
The model was developed based on the modulation of reference planes, supported by descriptive geometry
Goldenberg House
Dessigned in 1959 – The Goldenberg House is an unbiult project designed by Louis Kakn
Categorization of elements by layers with corresponding materials.
Axonometry






