Folio_2023_Collection_Qingyin

Page 1


Qingyin, an architecture graduate from the University of Western Australia, is into exploring innovative graphic representation and detailing. He aims to contribute his skills while learning from the team and adding value.

Issuu: https://issuu.com/qyy_yang

Email: qingyinyang@hotmail.com

Phone: 0423262879

Education

Education

University of Western Australia

School of Design, Perth

Master of Architecture, Jan, 2023 - Nov, 2024

School of Design, Perth

Undergraduate, Feb, 2020 - Nov, 2022

Experience

Architecture Assistant I Casual Studio Derickx

October, 2023 - Current

- 3d modeling, rendering, and post-production

- Initial design & Documentation

Intern I Hybird GROTTO Studio

June - July, 2023

- Lazor Cutting; Physical & sketch model making

- Sketchup & AutoCAD to template lazor cutting

- Consult with workshop staff & director

Intern I Part-time MORQ

June - July, 2023

- Site Visit

- 3D site & Design modeling, Post-production

- Design plan drawings

Award

ARCT 5102 Architecture Studio 2

ARCT 5536 Photo Real Rendering

ARCT 5101 Architecture Studio

ARCT 3001 Architecture Studio 4

ARCT 3000 Architecture Studio 3

ARCT 3030 Materials and Large Constructions

ARCT 2030 Materials and Small Constructions

Competition Competition

AASA Student Logo Design Competition

A graphic competition aims to revamp the organization’s identity. The logo design is used in various mediums, such as letterheads, website, social media, and publications.

Salvin Architecture Student Competition 2020

A Fremantle housing project provides homes for the homeless with an elevated design to minimize disruption at a parking lot entrance.

Software Skill

Software Skill

CAD Drawings

AutoCAD I Rhino

3D Modelling

Sketchup I Rhino

Rendering

Vray I Enscape I Twinmotion I Lumion

Adobe Suites

Photoshop I Indesign I Illustrator I Premiere pro

Others

Microsoft suites I QGIS I 3dsmax I Revit

Volunteer

UWA Unimentor

Mar - Jun, 2022

AIA event volunteer Feb, 2023

UWA Breadrun

Mar - Aug, 2023

Language

Experience Award Volunteer

Language

Chinese I English

July, 2024

Nov, 2023

July, 2023

Nov, 2022

July, 2022

July, 2022

July, 2021

Aug, 2020

July, 2020

Selected Exhibition Work

Selected Exhibition Work

Selected Exhibition Work

Selected Exhibition Work

Selected Exhibition Work

Catalogue Exhibited Work

Catalogue Exhibited Work I I I I I I I

Outdoor Rendering - Partial field station expresses the vertical elements.

01

River Hub

River hub sits on the South Esk Pine Reserve in Tasmania. Due to the fragility of the southern eske pine, the design of field station aims to use as minimal footprints as possible, and this is also for the flooding concern.

Since the current conservation work for South Esk Pine has already been taken place, the proposed field station needs to take more roles apart from research study. Due to the complexity of multiple coordination of the program, there is a need for public and communal engagement for the recovery work.

With distinct perspective on site, it has vast grass patch ground on the west and dense forest on the east. The approach of the design aims to separate different spaces and therefore create a communal space. The idea not only takes from the Aboriginal nomadic hub style, but also for the landscape it sits on.

Bicheno, Tasmania, Australia

Tutor: Peter Tibbitt

Summer 2024

- Zoomed In Location Site Scope Natural Terrestrial

South Esk Pine (Callitris oblonga) Black Gum (Eucalyptus ovata) Water line Road

South Esk Pine Reserve Scope

Gorse (Ulex) River

The South Esk Pine Reserve (41.9409°S, 148.2343°E) protects the endangered South Esk Pine (Callitris oblonga) and Black Gum (Eucalyptus ovata). Found along the St. Pauls and Apsley Rivers, the pines grow in riparian habitats with moist conditions and periodic flooding. Recovery efforts focus on habitat preservation and long-term management, benefiting both farming and water management.

The site, located on Kandosols, which are good option for mixing

Coverage Soil Classification

Vegetation Terrestrial Vegetation

Site Scope Kandosols Tenosois Kurosols

the north riverbank, features natural vegetation and is covered by sandy to loamy with a weak soil structure. This makes them a mixing with rammed wall due to their balanced clay and sand content.

Building Footprint & Location

The proposed building footprint aligns with a buffer zone around the South Esk Pine to minimize disruption, respecting its vulnerable status. This preserves the natural heritage and enhances the scenic connection with the river. Paths will be created for access from the bush area.

Culture

Connecting To The Ground Contextural Awareness Indigenous Aknowledgement

Element Expression

Black Gum
Eucalyptus ovata Callitris oblonga Forest
South Esk Pine
1. Open Atrium, 2. Powder Room, 3. Storage, 4. Open Research Space / Office, 5. Skylight, 6. Stairwell, 7. Balcony
Outdoor Rendering - Cold bath area looking towards the ocean

02

Rote Island Resort

Nestled amidst a lush palm forest spanning 7000 square meters on Rote Island, a visionary resort project aims to defy conventional resort styles. Leveraging locally-sourced materials, it seeks to craft a distinct identity that entices visitors through its captivating scenery. The goal is to reimagine the traditional perception of resorts by using indigenous resources, fostering an environment that attracts travelers to explore its unique charm.

Crafted from an array of materials such as timber and rammed earth, the resort prioritizes ample ventilation without sacrificing functionality. Adopting a half-sunken design approach for its front amenities becomes significant in creating intriguing spatial dynamics. This innovative layout not only ensures adequate airflow but also facilitates diverse activities and light movement, encouraging usage both on the roof and beneath, fostering a multi-dimensional experience for guests while maximizing the functional utility of the space.

In the residential section, every villa offers exclusive privacy, creating a secluded sappce for residents. Each space is designed with intentional openings in the walls to facilitate airflow while preserving privacy. Lush vegetation growing behind these gaps ensures a sense of seclusion while allowing refreshing breezes to permeate the living spaces.

Rote Ndao, East Nusa Tenggara, Indonesia

Tutor: Andrea Quagliola

Summer 2023

1. Entrance, 2. Reception, 3. Lobby Area, 4. Beverage, 5. Office & Luggage Room, 6. 11. Food Room, 12. Couple Villa, 13.Family Villa, 14. Performance Area, 15. Swimming
6. Indoor Courtyard, 7. Washroom, 8. Staff Courter, 9. Clean Room, 10. Sewer System, Swimming Pool, 16. Rooftop Yoga, 17. Rooftop Bar, 18. Surf Filming Review Area

Plan - Sunken Level

1. Indoor Bar 2. Main Restaurant, 3. Open Kitchen Area, 4. Sunken Courtyard, 5. Surf Boards Repairing Area, 6. Sunken Bar Area, 7. Back Of House, 8. Secluded Couple / Family Dinning Setting, 9. Washroom, 10. Sauna, 11. Personal Meditation Area, 12. Yoga / Stretching Area, 13. Cold Bath Area, 14. Spa

- Family Villa

1. Living Room, 2. Bedroom, 3. Washroom, 4. Shower, 5. Bath, 6. Villa Outdoor Timber Decking, 7. Outdoor Timber Decking, 8. Private Courtyard

- Beach Front

1. Surf Boards Repairing Area, 2. Ramp, 3. Sunken Bar Area, 4. Back Of House, 5. Secluded Couple Dining Setting, 6. Secluded Family Dining Setting, 7. Food Preparation Room, 8. Open Kitchen Area, 9. Sunken Courtyard, 10. Female Washroom
Surfboard Repairing Area
Sunken Bar Area
1. Concrete Floor 150mm , 2. Burnished Concrete
4. Indoor Rammed Earth Wall 400mm, 5. Ceiling Timber Beam
7. Concrete Slab 300mm, 8. Screed To Fall 10. Timber Column 90 x 90mm,
Concrete Finish 100mm , 3. Custom-made Cabinet, Beam 150 x 200mm, 6. Earth Rendered Ceiling Slab 20mm, 100mm, 9. Travertine Rooftop Paver 40mm, 11. Timber Beam 120 x 45mm

03 Broomehill Program Proposal

Broomehill is a small rural town in the Great Southern Region of Western Australia, with a strong agricultural industry. Recently, the community purchased the historic Imperial Hotel, with plans to reinvigorate its old bar and attract more visitors to the town. The proposal to revive the hotel starts with a macro scope in the town. It begins with identifying groups of individuals who are interested in spending time or residing in the rural area, and this leads to short and long term stay.

For short stays, the focus is on individuals in transit between cities, with a service station available for rest, food, and fuel. If interested, visitors can explore the town during their stay.

Long-term stays cater to those seeking a rural experience, and tailored learning programs are designed based on the town’s strengths for people who are interested. In response to the accelerating era, some of the hands-on craftsmanship are fostered and promoted in those programs, such as shear, pottery, weave, and food-making. These programs act as a ‘pilot’ to inspire city-dwellers to adopt a rural lifestyle, as it could be challenging for inexperienced individuals with a city background to live independently in the countryside.

Broomehill, Western Australia, Australia

Tutor: Philip Stejskal Summer 2023

Long-term stays offer a rural experience for those interested, with living options ranging from caravans to prefab houses. Both options provide flexibility, and can be easily transported to other locations once the program ends.

PROGRAMS

The hotel has undergone a functional transformation, now catering to backpackers with shared spaces for socializing. The first-floor bath is removed, creating a spacious area that showcases the bar and town history. ACTIVITY / CARAVAN / PREFAB HOUSE

Heating Food / Drink
Vernacular Material
Service Station Barn
Imperial Hotel
Water Rainwater Collection Scheme Water Beer Barrel
Storage Preservation
Solar Energy Wood Fire
Irrigation Bore Jam

COMMUNAL CENTER SERVICE STATION

An extension for the imperial hotel, communal center offers indoor learning programs in weaving, pottering, and jam making. The center also displays the product of the learning outcome.

It serves as a transition point for travelers commuting between cities or towns, providing grocery, dining, and gas stations. The use of vernacular materials embodies cultural significance and economic purpose.

Communal Center
Mobile House Prefabricated House
Sheep Vegetation
Building
NEW OLD
Long Stay
Short Stay
Soil Improvement
Spinning & Weaving
Woodland Dyeing Shearing

IMPERIAL HOTEL

DINING / SHORT STAY / PUB

Plan + Iso Diagram + Section

BRIEF

The hotel has undergone significant changes to both its function and appearance. The deli, bar, and hotel rooms have been re-programed. The deli now serves as a dining area for backpackers and travelers, and there are display areas for traditional food making such as canned jam. The bar has been expanded to include a loft space that connects the first floor, creating a welcoming environment with increased natural light. And finally, upper floor hotel rooms now become backpacker space, with a shared communal area.

Section B

Vernacular Material

Imperial Hotel Isometric

BEDROOM / STORAGE

Section part 1 includes the backpacker space on the 1st floor and some storage rooms on the ground floor.

BATH / DINING / BEDROOM

Section part 3 shows a main communal bath for backpackers on the 1st floor, and the continuous dining space from section part 2.

DINING / BEDROOM

Section part 2 includes a main dining area on the ground floor, and it has displayed the products of traditional jams on the shelf. 1st floor is for backpackers.

WASHROOM / BAR

Section part 5 reveals the main washroom for public use, which is located in the rear of the bar. Bar place is also extended to the original bank area.

STACKED BARREL

Stacked barrels, once seen at the previous entrance of the bar, have been incorporated into the loft area to evoke nostalgic memories. The wall lights further enhance the intimacy of the space.

/ BAR

The major change of the bar has occurred in section part 4. The original bathromm on the 1st has relocated and now it opens and connects to the ground floor. Light and atmosphere are the key driving force to make the space more welcoming.

WASHROOM

COMMUNAL CENTER

LEARNING / STAY / SERVICES

Plan + Iso Diagram

BRIEF

The communal center is designed to provide a space for indoor learning programs that focus on various crafts such as weaving, pottering, and jam making. These programs are aimed at people who are interested in developing their skills and creativity in these traditional crafts, as well as an intention in having a long term rural experience.

The communal center also functions as exhibition space where displays the products of the learning outcomes.

Communal Center
Vernacular Material

Divide Veranda & Opening Vegetation Insert

Indoor Rendering - Bench in the interior space with skylight

04 Bench

The minimalist design approach of this bench has been carefully crafted to prioritize simplicity and functionality. The bench is highly convenient for users on-the-go, as it is easily transportable and can be assembled and disassembled without the need for glue. Sustainability is also a key factor in the design, making it a practical and environmentally-friendly choice.

The objective of the design is to provide users with a sensational experience, maximizing comfort and practicality in an elegant and simple form. The versatility of the bench has also been broadened, targeting a wide range of users and environmental settings. Influenced by the juxtaposition of vertical, yet tilted cylinders with horizontal structures in art and architecture, the placement of the ‘dowels’ on the bench has been carefully planned to create a visually pleasing and functional product.

Perth, Western Australia, Australia

Tutor: Peter Kitely & Guy Eddington

Winter 2023

Bench Making Process

Rounding + Drilling

Materials

Inserting

Joining

Markings

Securing

Drilling + CNC + Sanding + Oiling

Final Prototype

Life Cycle Analysis

Diagramming

1) Verticality 2) Inclination 3) Rotation

Initially, supporting legs of the bench remain vertical to the ground.

In elevation view, each dowel will incline 10 degree.

Drilling & Screwing

Upper and lower dowel can be secured through screwing. Titled holes are drilled between each joint.

Contouring

The indication area is created for people to sit. A rippling texture can be embodied through CNC cut.

In plan view, each dowel rotates in a random manner. Dowels at corner have footing facing outwards to give extra level of stability.

Final Object

Bench can be installed in various locations, either public or private, for sensual and functional purpose.

Saw Plank Dowel

‘Jig’ Testing Process

Abbreviation:

Photo Record

Scale - 1:1

Scale - 1:1

Scale - 1:5

Drawn By: Qingyin Yang

3dm Description: General Arrangement / Detailed View

3dm Description: General Arrangement / Detailed View

Ground Floor Plan

05

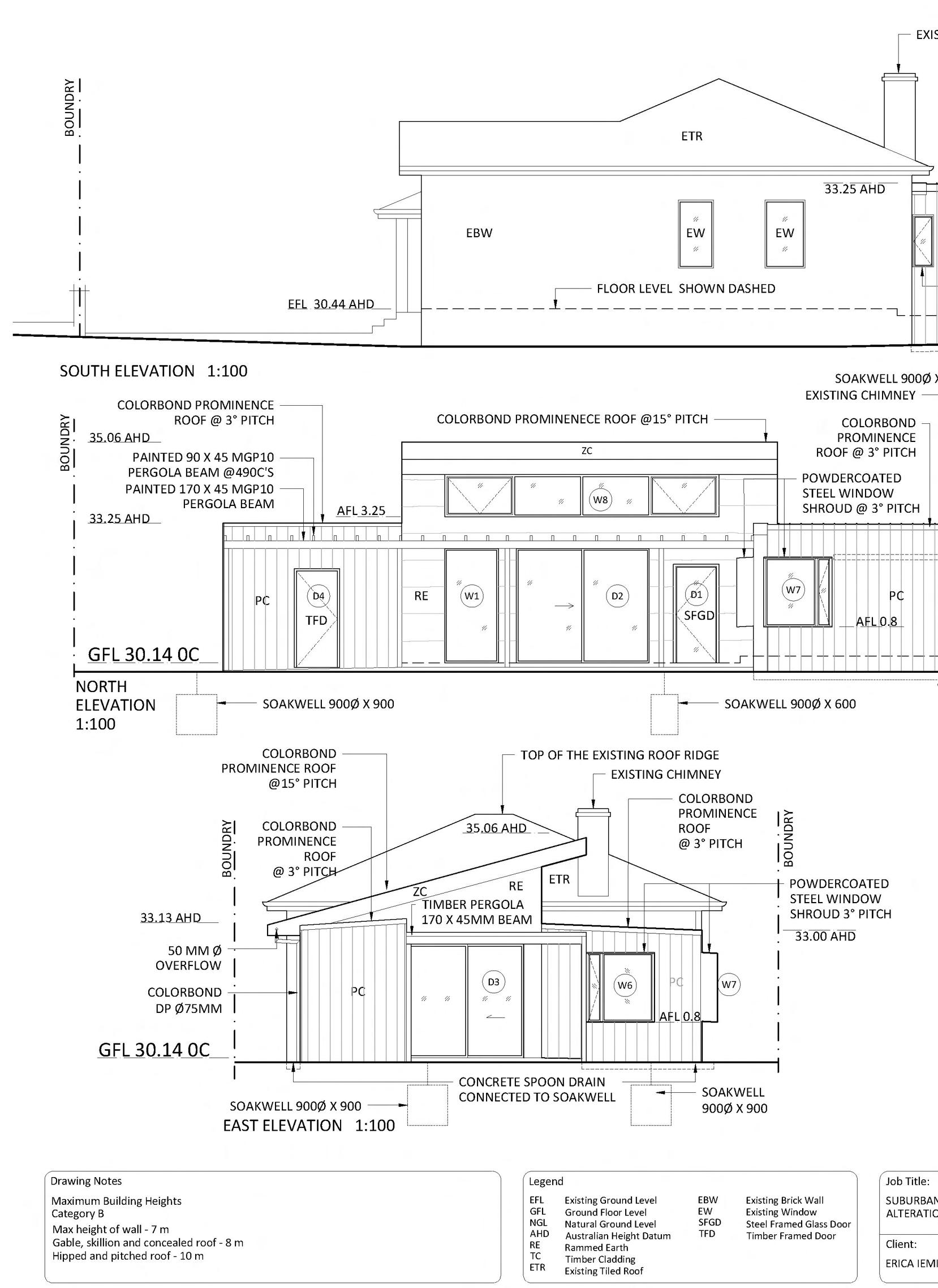
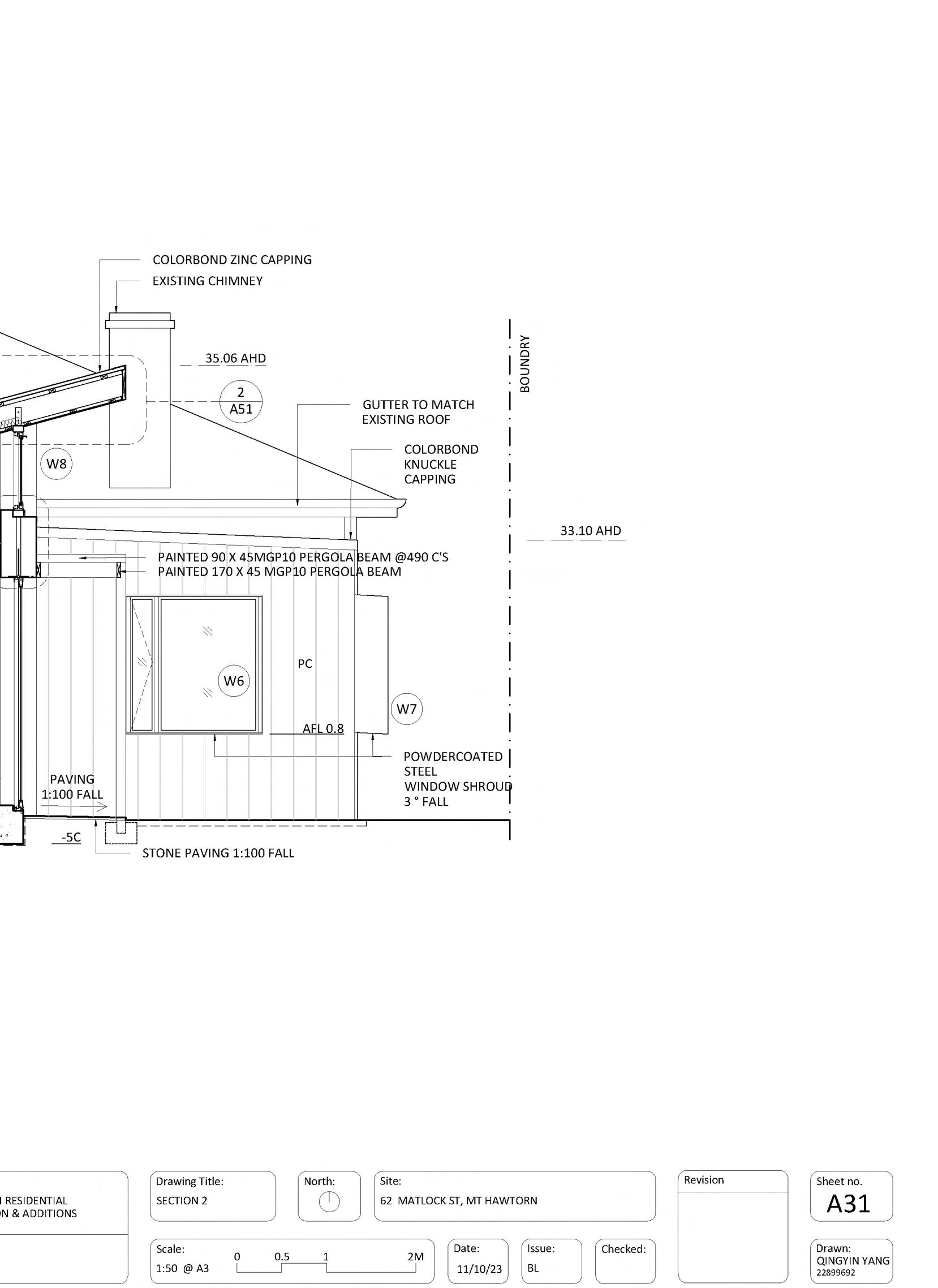
Mt Hawthorn Documentation

The Task is to come up with a suitable addition solution for the existing house in Mt Hawthorn. The proposed house employees three different blocks to define space - service, living, and storage. Material wise, the core part, which is the living space in the middle, is made of rammed earth for its primary wall structure.

Other two blocks are made of timber stud wall, with Prominence Cladding on the exterior. They also have used knuckle capping in response to heavy rain & cleaning needs. Overall, design takes cross ventilation as a key to initiate and place the glazing position, to getting the best possible benefits.

Perth, Western Australia, Australia

Tutor: Erica Iemi

Summer 2023

QINGYIN YANG

Issuu: https://issuu.com/qyy_yang

Email: qingyinyang@hotmail.com

Phone: 0423262879

Turn static files into dynamic content formats.

Create a flipbook
Issuu converts static files into: digital portfolios, online yearbooks, online catalogs, digital photo albums and more. Sign up and create your flipbook.