QUNANNAS PRIYADITIYO IKROM
DAFTAR ISI :
1. HUTAMAKARYAINFRASTRUKTUR (September 2022 -April 2024)
2.TEKNOCORPGRUPINDONESIA(April 2022 - September 2022)
3. FREELANCE (2021 - 2025)
4.TUGASAKHIR (Oktober 2021)
![]()
DAFTAR ISI :
1. HUTAMAKARYAINFRASTRUKTUR (September 2022 -April 2024)
2.TEKNOCORPGRUPINDONESIA(April 2022 - September 2022)
3. FREELANCE (2021 - 2025)
4.TUGASAKHIR (Oktober 2021)
(September 2022 -April 2024)
DESKRIPSIPROYEK
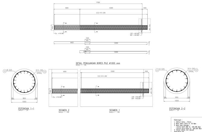
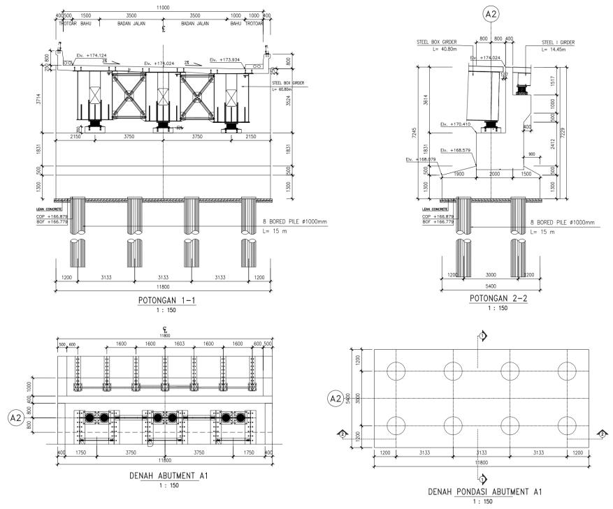
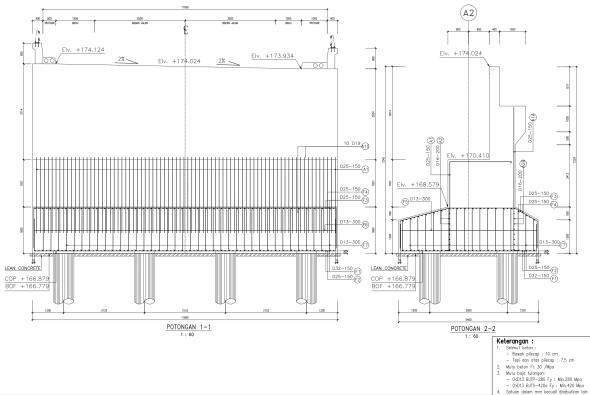
PT Hutama Karya Infrastruktur menjadi subkon PT BUKAKA dalam proyek “Pergantian dan/ DuplikasiJembatanCHdiPulauJawa”,ProyekinitersebardariJawaBarathinggaJawaTimurdengan total 29 jembatan dengan anggaran sebesar 500M, pada proyek ini PT. Hutama Karya Infrastruktur mendapatkan tugas untuk mengerjakan pondasi jembatan hingga rekondisi jalan sesuai panjang penanganan.
DESKRIPSIPEKERJAAN
Pada Proyek ini saya bertugas sebagai drafter dengan lingkup pekerjaan memerikasa dan mendetailkangambardariKonsultanPerencanauntukdijadikanshopdrawing,menghitungBBS(Bar Bending Schedule) dan menggambar As Built Drawing. Dalam setiap proses penggambaran dan perhitungan saya selalu berkoordinasi dengan eksternal maupun internal seperti mainkon dan konsultan MK sebagai pihak eksternal, SEM (Site Engineer Manager), SOM (Site Oprational Manager),QuantitySurveyour,ProcurementdanPelaksanasebagaipihakinternal.



(September 2022 -April 2024)



(September 2022 -April 2024)


(April 2022 - September 2022)
DESKRIPSIPROYEK
PT. Teknocorp Grup Indonesia memiliki proyek yang sedang berjalan yaitu proyek Pembangunan Gudang Logistik Slog Polri dan Gudang Senjata Polairud Baharkam, pekerjaan miliputi bangunan eksterior dan interior, selain proyek yang berjalan perusahaan ini juga melakukan tender untuk PembangunanGedungMabesPolri.
DESKRIPSIPEKERJAAN
Pada Proyek ini awalnya saya bertugas untuk mendesain Gedung Mabes Polri setelah itu saya ditugaskan sebagai site supervisor dimana saya mengerjakan laporan harian, mingguan, serta bulanan, memantau progres dilapangan dan membuat kurva S. Pada perusahaan ini saya juga membuatbeberapadesaininteriordaneksterioruntukkebutuhanadministrasi.




(April 2022 - September 2022)







(2021 - 2025)
DESKRIPSIPEKERJAAN
Pekerjaan diluar karir yang saya kerjakan meliputi drafting, desain dan membuat maket/diorama arsitektur
1.Maket (2024-2025)
Membuat maket/diorama arsitektur untuk syarat tugas akhir mahasiswa arsitektur dan untuk administrasiproyek




2.Rendering(2021-2022)


Mengolahgambar3Dmenjadigambar2Dyangrealistik















(2021 - 2025)
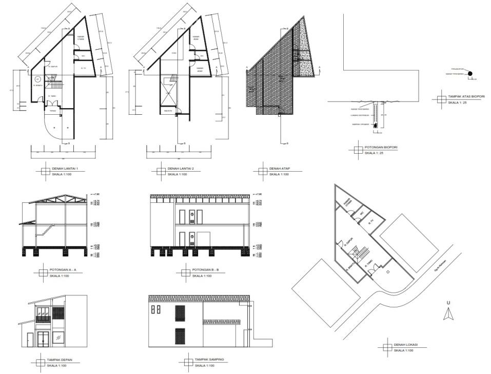
3.Mendesainrumah(2021)
RumahiniberlokasidiKecamatanTanahAbang,denganluastanah90m²,memiliki3lantaidengan4 kamar tidur, dan 3+1 kamar mandi. Rumah ini memiliki konsep minimalis dengan pencahayaan dan penghawaanalami





4.DenahIMB(2019)
Membuat gambar denah, tampak,potongandandetail saluran air untuk syarat IMB (Izin Mendirikan Bangunan). BerlokasidiJakartaTimur







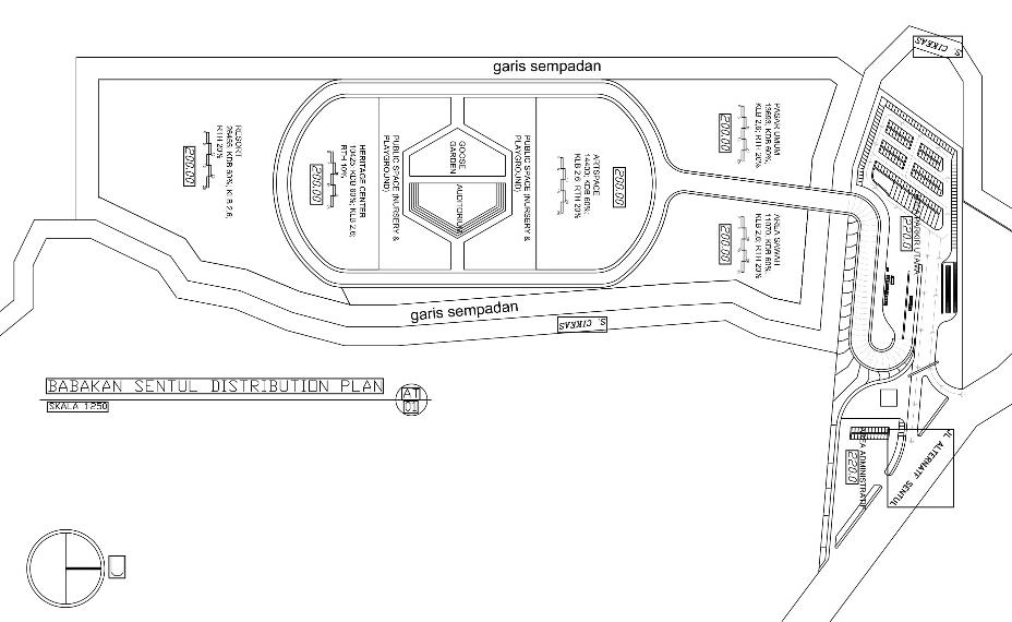
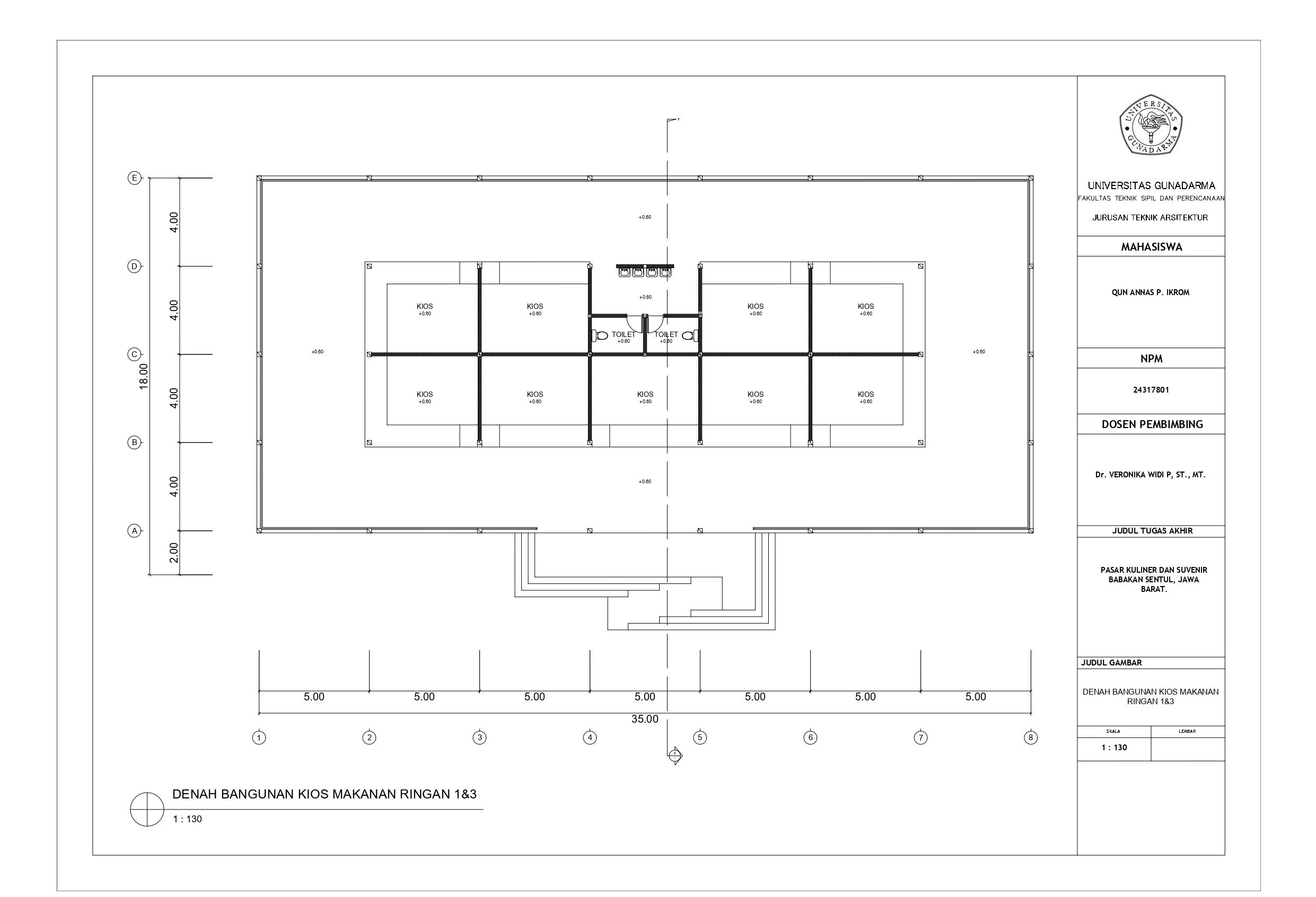
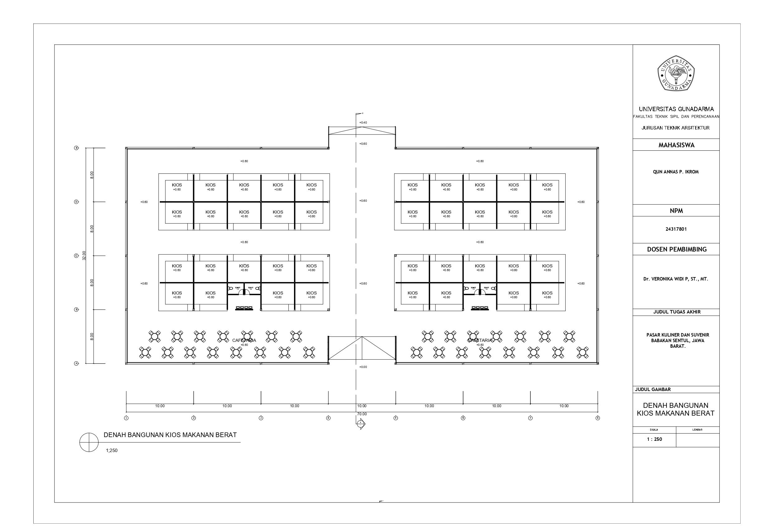
(Oktober 2021)

luassite pasar 13.693m2.

2021)





2021)








