Progettare per la Sanità n. 4/25 dicembre

Page 1


CNETO Centro Nazionale per l’Edilizia e la Tecnica Ospedaliera

Organizzazione, tecnologia, architettura

Estetica, funzionalità e comfort all’Hospital Ángeles Centro Sur / Progettare la luce in un healing environment / Esigenze future dell’ architettura / Viaggio alla scoperta della sanità portoghese

L’Hospital Ángeles Centro Sur di Santiago de Querétaro, Messico

NEXOR HEALING ENGINEERING

Tecnologia e innovazione sono le forze motrici che possono traghettare la sanità verso una nuova era.Un'era di benessere e cura. Un'era costruita da e per le persone, dove la garanzia per tutti di avere accesso a cure di qualità è la chiave per una vita migliore

RENDIAMO TUTTO SEMPLICE FUNZIONALE E FACILE

La nostra filosofia è realizzare progetti e soluzioni tecnicamente impeccabili, originali e personalizzati, definendo gli spazi e al tempo stesso creando valore per il settore della sanità

Combiniamo l'eccellenza e la precisione dell'ingegneria tedesca con la passione italiana per il design

La cura che unisce

L’Hospital Ángeles Centro Sur di Santiago de Querétaro, Messico

Negli ultimi decenni, diversi Sistemi Sanitari internazionali hanno perseguito un innovativo modello di co-gestione medico-chirurgica del paziente, partendo dall’esigenza di mettere a punto una strategia organizzativa in grado di migliorare l’assistenza dei pazienti

complessi, dalla fase che precede il ricovero fino alla dimissione. Tale approccio è basato sulla collaborazione strutturata e continuativa tra specialisti di area medica e chirurgica i quali disegnano assieme il percorso di cura dei pazienti, grazie alla collaborazione e alla comunicazione interprofessionale, focalizzandosi sulla persona e non solo sulla malattia. Ad ottobre, durante il Congresso Nazionale della Società Italiana di Medicina interna (SIMI), sono state presentate le prime sperimentazioni già in corso in diverse strutture sanitarie italiane del nord e centro Italia. Un modello organizzativo integrato di gestione multidisciplinare che attribuisce un ruolo importante al cosiddetto "hospitalist", generalmente un medico specialista in Medicina Interna che ha il compito di farsi carico del malato complesso coordinando tutto il processo di cura. È evidente quale importanza una simile figura rivesta nei Paesi, come il nostro, sempre più caratteriz -

zati da una popolazione anziana, fragile e portatrice di malattie croniche. Negli USA, nel Regno Unito e nei Paesi Scandinavi tale approccio, già ampiamente sperimentato, ha portato ad una riduzione delle complicanze post-operatorie e della mortalità a 30 giorni, oltre ad una migliore pianificazione della continuità assistenziale territoriale in virtù dell’approccio realmente integrato e orientato al paziente. Altri risultati positivi sono stati la rinnovata empatia tra personale sanitario e cittadino oltre all'aumento della soddisfazione degli operatori coinvolti. La sfida futura sarà consolidare tali esperienze, misurandone gli esiti di processo in termini di qualità delle cure e riduzione dei costi, promuovendo la formazione congiunta dei professionisti coinvolti e rafforzando il legame tra assistenza ospedaliera e assistenza domiciliare.

Direttore Responsabile

Giorgio Albonetti

Direttore Scientifico

Margherita Carabillò

Coordinamento Editoriale

Chiara Scelsi - c.scelsi@lswr.it

Redazione Simone Ciapparelli s.ciapparelli@lswr.it

Comitato scientifico

S. Brusaferro, S. Capolongo, M. Carabillò,M. Gola, J. Guercini, K. Kob, M. Mauri, F. S. Mennini, C. Nicora, D. Pedrini, G.Polifrone

Comitato di redazione

Architettura: Design LAB, DABC Politecnico di Milano

Impiantistica: Francesco Ruggiero

Information Technology: Fabrizio Massimo Ferrara

Innovazione digitale: Paolo Bertini

ufficiale del C.N.E.T.O.: Centro Nazionale per l’Edilizia e la Tecnica Ospedaliera

Organizzazione e management: Federico Lega

Servizi e facility management: Arturo Zenorini

Tecnologie per l’Architettura: Rosa Romano, Maria Chiara Torricelli

Direzione Commerciale

Costantino Cialfi - Sales Director c.cialfi@lswr.it - Cell. +39 3466705086

Traffico

Iaria Tandoi - i.tandoi@lswr.it Tel. 3452453804

Alberto Altieri, Elena Bocin, Erica Brusamolin, Maddalena Buffoli, Armando Ferraioli, Oscar Gaspar, Marco Gola, Giuseppe Laudani, Federico Lega, Antea Monte, Elisabetta Ocello, Rita Oliveira, Beatrice Pattaro, Massimo Robiony, Maria Chiara Torricelli

Hanno collaborato a questo numero: Impaginazione LSWR

Immagini Shutterstock

Produzione

Antonio Iovene - Tel. 3491811231 a.iovene@lswr.it

Abbonamenti www.quine.it abbonamenti.quine@lswr.it Tel. 02 864105

Costo copia singola: euro 2,50 abbonamento annuale Italia euro 40,00 abbonamento annuale Europa euro 60,00

Stampa GALLI & C. - Varese

©2023 Quine Business Publisher

Progettare per la sanità www.progettareperlasanita.it

Reg. Trib. Milano n. 767 del 09/11/1998

Iscrizione al ROC n. 12191 del 29.10.2005

Tutti gli articoli pubblicati su Progettare per la sanità sono redatti sotto la responsabilità degli Autori. La pubblicazione o la ristampa degli articoli deve essere autorizzata per iscritto dall’editore. Ai sensi dell’art. 13 del Regolamento Europeo per la Protezione dei Dati Personali 679/2016 di seguito GDPR, dati di tutti lettori saranno trattati sia manualmente, sia con strumenti informatici e saranno utilizzati per l’invio di questa e di altre pubblicazioni e di materiale informativo e promozionale. Le modalità di trattamento saranno conformi a quanto previsto dagli art. 5-6-7 del GDPR. I dati potranno essere comunicati a soggetti con quali Quine Srl intrattiene rapporti contrattuali necessari per l’invio delle copie della rivista. Il titolare del trattamento dei dati è Quine Srl, Via Spadolini 7, 20141 Milano, al quale il lettore si potrà rivolgere per chiedere l’aggiornamento, l’integrazione, la cancellazione e ogni altra operazionedi cui agli art. 15-21 del GDPR. Testata Associata

Organo

Sommario

HOSPITAL ÁNGELES CENTRO SUR

Questa struttura rappresenta un esempio significativo di ospedale moderno in ambito latino-americano: combina architettura e progettazione d’avanguardia, elevate prestazioni cliniche, dotazioni tecnologiche avanzate e attenzione all’ambiente costruito, configurandosi come riferimento per strutture ospedaliere di fascia alta in contesti urbani in crescita.

HEALING LIGHT NELL’OSPEDALE PSICHIATRICO DI SLAGELSE

Utilizzando la luce naturale come guida e integrandola con l’illuminazione artificiale, sono state ottenute condizioni di illuminazione a supporto del ritmo biologico quotidiano dei pazienti, delle condizioni di lavoro del personale e della sicurezza

di Marco Gola, Maddalena Buffoli, Beatrice Pattaro, Erica Brusamolin
di Maria Chiara Torricelli

RIPENSARE GLI OSPEDALI

La nuova architettura sanitaria guarda al futuro: ospedali concepiti come organismi viventi, in grado di trasformarsi e crescere senza interrompere le attività. Un modello flessibile, sostenibile e coerente con i mutamenti demografici e tecnologici di Alberto Altieri

PROGETTARE UN’UNITÀ DI RADIO-ONCOLOGIA

Scopo dell’unità di radioterapia oncologica è quello di fornire strutture e attrezzature destinate al trattamento radioterapico. Essa prevede spazi per la consultazione dei pazienti, la simulazione, la pianificazione e la somministrazione del trattamento di Armando Ferraioli

GESTIONE IN TEAM DEL PAZIENTE CHIRURGICO COMPLESSO

Un nuovo blocco operatorio realizzato con tecnologie modulari di ultima generazione coniuga flessibilità, sicurezza e rapidità di esecuzione. Soluzioni costruttive avanzate garantiscono ambienti ultra-sterili, facilmente riconfigurabili e pienamente conformi ai più elevati standard sanitari. di Elena Bocin, Federico Lega, Antea Monte, Elisabetta Ocello, Massimo Robiony 40

ALLA SCOPERTA DELLA SANITÀ PORTOGHESE

Il viaggio studio 2025, con destinazione Lisbona, ha portato CNETO a esplorare i modelli innovativi che caratterizzano la sanità privata nel paese lusitano di Marco Gola, Giuseppe Laudani, Oscar Gaspar, Rita Oliveira

RUBRICHE

Qualità aria indoor, nuova proposta in Senato

Presso il Senato della Repubblica si è tenuta una conferenza stampa, promossa dal Vicepresidente del Senato Gian Marco Centinaio, per presentare una proposta dedicata alla disciplina dell’igiene degli impianti di trattamento dell’aria negli ambienti indoor.

Per Gregorio Mangano, Presidente di AIISA: «Noi non vediamo ciò che respiriamo, né gli inquinanti presenti, soprattutto quelli che si annidano all’interno degli impianti di trattamento dell’aria. Una cattiva qualità dell’aria comporta costi sociali elevati e, purtroppo, anche un numero rilevante di decessi ogni anno».

L’obiettivo è quello di giungere a una proposta di legge che introduca un quadro normativo innovativo, basato su prevenzione, manutenzione programmata, controlli periodici e formazione professionale certificata. Il tutto senza oneri aggiuntivi per lo Stato, ma attraverso una razionalizzazione delle risorse già disponibili. I lavori sul testo sono stati già avviati. Come ha spiegato Andrea Casa, Presidente Emerito di AIISA: «Il quadro normativo in Italia è molto complesso e va semplificato, partendo da un livello alto delle fonti del diritto, quindi da una legge dello Stato. Questa proposta vuole dare una cornice più razionale alla materia: non si concentra sulle sanzioni,

ma punta a creare consapevolezza e sensibilità nei confronti della qualità dell’aria che respiriamo». Gli elementi chiave da inserire nella proposta sono: controlli mirati e ispezioni periodiche sugli impianti di trattamento aria, con obbligo di sanificazione quando necessario; procedure standardizzate e verificabili, fondate su metodologie scientificamente validate; formazione di personale qualificato, con elenchi regionali certificati; sistema di vigilanza efficace, che includa controlli documentali e tecnici in caso di segnalazioni. Il testo della proposta sarà oggetto di consultazioni con esperti, associazioni di settore e istituzioni sanitarie, con l’obiettivo di avviare l’iter parlamentare nei prossimi mesi.

Manovra 2026: sanità sotto pressione

La Legge di Bilancio 2026 porta con sé «più ombre che luci per il nostro Servizio Sanitario Nazionale», sostiene Fondazione GIMBE, organizzazione indipendente senza scopo di lucro che si occupa di ricerca, formazione e informazione scientifica in ambito sanitario. Nel 2026 il Fondo Sanitario Nazionale (FSN) aumenterà di 2,4 miliardi di euro, raggiungendo 143,1 miliardi, con ulteriori 2,65 miliardi previsti per ciascuno dei due anni successivi. «Si tratta però di

un’illusione contabile», ha spiegato Nino Cartabellotta, presidente di GIMBE. «Il triennio 2026-2028 non rappresenta un vero rilancio della sanità pubblica. I fondi sono frammentati e le Regioni, già in difficoltà, dovranno fare i conti con una coperta sempre più corta.» Il piano straordinario di assunzioni prevede circa 1.000 medici e 6.000 infermieri, con un incremento contrattuale annuo limitato: 3.000 euro lordi per i medici e 1.630 per gli infermieri. «Sono briciole», ammonisce Cartabellotta. «Non basteranno a fermare l’emorragia di professionisti dal SSN né a rendere più attraente la carriera infermieristica». Nel breve periodo, secondo GIMBE, l’unica soluzione realistica resta il reclutamento dall’estero, con tutte le criticità che ne derivano. La Fondazione sottolinea l’insufficienza del FSN rispetto alle previsioni di spesa sanitaria: il gap sarà di 6,8 miliardi nel 2026 e crescerà fino a 10,7 miliardi nel 2028. Significa che le Regioni saranno costrette a tagliare servizi o aumentare tasse, con conseguenze dirette sui cittadini. Già nel 2024, oltre 5,8 milioni di persone hanno rinunciato a cure necessarie. Per salvare il SSN, conclude GIMBE, è necessario chiedere investimenti veri, assunzioni strutturali e una riforma coraggiosa che restituisca dignità e centralità alla salute pubblica.

Supportare l’evoluzione del SSN

In un Paese che invecchia sempre di più e investe ancora troppo poco nella salute, solo una strategia di prevenzione solida e stili di vita più sani possono garantire una crescita sostenibile e un invecchiamento attivo. Questo è il messaggio che emerge dalla 20esima edizione del forum annuale di Meridiano Sanità, dedicato al tema “Salute,

Società, Economia: alla ricerca di un nuovo equilibrio”. La competenza di ospiti nazionali e internazionali ha dato luogo, durante i lavori, a un confronto su temi cruciali per la sanità italiana: la prevenzione come investimento, il valore e la sostenibilità dell’innovazione farmaceutica, i nuovi bisogni di salute in una società che cambia, la trasformazio -

Telemedicina e IA, un bivio da 12 mld

«La telemedicina e l’intelligenza artificiale non sono prodotti da comprare, sono servizi da integrare. E oggi è il momento di decidere se vogliamo governare questa innovazione oppure subirla». È questo il messaggio lanciato da Mattia Perroni, founder di Medicilio, azienda dell’healthcare delivery, in apertura dell’evento Link 2025 - AI e Telemedicina, tenutosi Milano. La telemedicina è ormai

centrale per la gestione di cronicità, dimissioni protette e assistenza domiciliare. Secondo i dati presentati all’evento, il mercato italiano potrebbe superare i 12 miliardi di euro entro il 2030, con una crescita annua del 36%. Nell’ambito del Piano Nazionale di Ripresa e Resilienza (PNRR), l’Italia ha stanziato circa 15,6 miliardi di euro per la Missione Salute, destinando circa 1 miliardo

ne digitale e organizzativa del SSN, fino al nodo centrale del finanziamento e dei LEA. Meridiano Sanità non si limita ad anticipare e comprendere gli scenari attuali e futuri, ma cerca di costruire il futuro attraverso il dialogo e la responsabilità condivisa.

Dalle analisi sono emerse delle linee di azione per raggiungere un nuovo equilibrio tra salute, società ed economia. Tra le principali, promuovere la buona salute attraverso il potenziamento della prevenzione lungo tutto l’arco della vita e nei diversi luoghi della salute, rendere più efficienti normative e processi per ridurre i tempi di accesso dei pazienti alle nuove terapie e tecnologie, con particolare attenzione a quelle più innovative, proseguire nel processo di trasformazione data-driven della sanità, attraverso investimenti mirati nelle infrastrutture digitali, raccolta e standardizzazione dei dati.

specificamente allo sviluppo della telemedicina e alla digitalizzazione dei servizi sanitari (Fonte: Pnrr, Agenas e Senato). Serve un modello organizzativo chiaro, con responsabilità, protocolli condivisi e una visione strategica. «Vedo un’enorme opportunità nel monitoraggio domiciliare dei pazienti dimessi, soprattutto quelli chirurgici» ha aggiunto la dottoressa Francesca Giacomazzi, responsabile del reparto Solvenza presso l’ospedale Galeazzi Sant’Ambrogio. Il sistema di telemonitoraggio, lungi dall'essere un ostacolo, viene accolto con favore dal corpo medico. Ha continuato la dottoressa: «Oggi il contatto con tanti pazienti avviene spesso via Whatsapp, con messaggi continui sui parametri. Quindi questo sistema rappresenta soltanto una formalizzazione e un'evoluzione: permette di definire quali parametri monitorare in base alla patologia: uno scompensato avrà esigenze diverse rispetto a un paziente post-operatorio».

Buona la prima per Labotec

Oltre 4.000 professionisti, esperti, innovatori, accademici ed istituzioni si sono dati appuntamento a Parma. I numeri confermano l’interesse per questa nuova piattaforma congressuale ed espositiva specializzata, dedicata al mondo dei laboratori e dell’analisi, che

nella due giorni di evento ha saputo catturare l’attenzione di aziende e professionisti sulle soluzioni tecnologiche più avanzate e sulle tendenze che stanno ridefinendo il settore. L’evento ha abbracciato l’intero mondo della ricerca e dell’analisi, grazie alla presenza delle aziende più innovative e pressoché di tutti i settori più caratterizzanti della manifattura italiana: tra questi, il mondo della chimica e del settore pharma. Accanto alla presentazione delle best practice delle aziende, l’ampio programma di conferenze, seminari e workshop è stato animato grazie a content partner autorevoli nel mondo delle associazioni e delle imprese. Labotec ha portato in scena due LabWorld Arena, in collaborazione con LabWorld.it, due Aree della Scienza, nelle quali si sono susseguiti oltre 25 incontri, una Startup Area interamente dedicata alle realtà emergenti e una Talent Academy, organizzata in collaborazione con Cisita Parma. Labotec ha potuto inoltre beneficiare del sostegno di content partner autorevoli, quali ad esempio la Società Italiana di Biologia Sperimentale (SIBS), la Società Chimica Italiana (SCI), l’Associazione Farmaceutici Industria (AFI), ClustER Health Emilia-Romagna, Greenitaly, Hi-Tech Ambiente, Metrofood.it, l’Università di Ferrara, l’Università di Bologna e l’Università di Parma.

Impianti di condizionamento nelle strutture sanitarie

Negli ospedali l’aria interna riveste un ruolo fondamentale, per via della possibile correlazione con eventuali alterazioni patologiche generate dalla permanenza in ospedale, sia nei pazienti che negli operatori sanitari. Un’elevata qualità dell’ambiente interno all’ospedale e alle strutture mediche porta rilevanti benefici sia per i pazienti che per il personale. Per mantenere sane le strutture sanitarie è necessario che esse vengano pulite e che l’aria interna sia ventilata, riscaldata e condizionata, il tutto in modo appropriato e controllato. È ben determinato in letteratura medica che le infezioni nosocomiali o del sangue si siano oggi drasticamente ridotte. A questo si è arrivati grazie alla qualità dell’aria, controllata in termini di contaminazione (dell’aria interna e delle superfici dei vari ambienti) mediante impianti di climatizzazione progettati e customizzati per garantire le migliori prestazioni e condizioni ambientali.

I pazienti stessi rappresentano una delle principali fonti di contaminazione così come il personale, che diventa esso stesso veicolo di batteri all’interno e all’esterno dell’ospe-

dale. Ambienti sporchi, umidità e temperatura non controllate possono essere rischiosi soprattutto in ambienti particolarmente critici, quali ad esempio le sale operatorie e i laboratori di analisi. Nelle strutture sanitarie gli impianti di climatizzazione garantiscono le condizioni ottimali per la risoluzione dei problemi evidenziati. Data la vastità della materia trattata, volutamente il testo non riporta le nozioni basilari e i relativi calcoli meccanici degli impianti di climatizzazione, ampiamente trattati nella miriade di testi e manuali già pubblicati. Questa seconda edizione nasce dalle nuove emergenze createsi durante gli effetti pandemici del COVID-19 e dalle sempre nuove e pressanti esigenze cui gli ambienti sanitari e il personale sanitario si è trovato a dover far fronte.

A. Ferraioli - Impianti di condizionamento nelle strutture sanitarie. Nozioni fondamentali ed esempi progettuali. II Edizione. 2025, 800 pag. Dario Flaccovio Ed. - LSWR Group

Sanità tra progresso e vecchie sfide

Il sistema sanitario sta vivendo una profonda trasformazione digitale, abilitando nuovi modelli di cura e gestione grazie all’integrazione della tecnologia. L’adozione di Big Data e intelligenza artificiale accelera la capacità di analisi predittiva, personalizzazione delle terapie e ottimizzazione delle risorse.

Algoritmi avanzati supportano la diagnosi precoce, la pianificazione delle attività e la gestione delle liste d’attesa, mentre robotica e diagnostica per immagini potenziata dall’AI mostrano già risultati tangibili in termini di precisione e tempestività delle cure. Nonostante i progressi il settore sanitario affronta sfide strutturali: invecchiamento della popolazione e del personale medico, carenza cronica di medici e infermieri, disparità territoriali nell’accesso ai servizi e pressione crescente sui costi. Il 27% dei medici italiani ha oggi più di 65 anni, la percentuale più alta in Europa, mentre le differenze regionali nei tempi di attesa e nella disponibilità di servizi specialistici mettono a rischio l’equità del sistema. Nel contesto delle operazioni di fusione e acquisizione, queste criticità favoriranno un progressivo consolidamento tra gli operatori sanitari. Le aziende più piccole tenderanno ad aggregarsi a gruppi più strutturati, con l’obiettivo di generare sinergie, ampliare l’offerta di servizi, migliorare l’efficienza dei costi e valorizzare la centralizzazione dei processi operativi e la trasformazione digitale.

Fonte: EY Parthenon Bulletin

Un taglio

ai consumi energetici

Misure per il contenimento dei consumi energetici delle strutture sanitarie sono contenute nella prima bozza del disegno di legge di Bilancio 2026, approvato a ottobre dal Consiglio dei ministri. Il comma 1 dell'articolo 93 della bozza dispone che “Allo scopo di analizzare i consumi energetici delle strutture sanitarie pubbliche e individuare margini di efficientamento energetico che concorrano al conseguimento dell’equilibrio economico degli enti del settore sanitario, è istituito entro trenta giorni dall’entrata in vigore della presente legge, con decreto del Ministero della salute, di concerto con il Ministero dell’economia e delle finanze, un apposito tavolo tecnico”. Il comma 2 del predetto art. 93 stabilisce che “Al tavolo tecnico di cui al comma 1 partecipano i rappresentanti del Ministero della salute e del Ministero dell'economia e delle finanze, nonché specifiche professionalità da individuarsi presso le regioni e province autonome, o presso gli enti del Servizio sanitario nazionale, o altri enti pubblici competenti per materia, ai quali non spettano compensi, gettoni di presenza, rimborsi di spese o altri emolumenti comunque denominati”.

Il ruolo dell’IA nella cura

«L’intelligenza artificiale può essere un aiuto importante per la sanità, ma non deve mai sostituire il medico». Lo afferma Matteo Rosso, medico odontoiatra, membro della Commissione Affari sociali della Camera e responsabile del Dipartimento nazionale Sanità di Fratelli d’Italia, in un’intervista a Sanità33 in cui richiama con forza il valore dell’umanità nella cura e il ruolo insostituibile del rapporto medico-paziente. «Il medico - spiega Rosso - ha cuore, empatia, sa cogliere la fragilità, la speranza e il dolore di chi soffre. L’intelligenza artificiale può dare suggerimenti, ma non può comprendere la persona. E mi domando - aggiunge - chi risponde civilmente o penalmente se un sistema di IA sbaglia diagnosi o indicazione terapeutica?». Per il deputato, la tecnologia può rappresentare «un supporto laterale», utile «solo se aiuta il personale sanitario a liberarsi dagli adempimenti burocratici e a dedicare più tempo all’ascolto e alla relazione con il paziente». Rosso ricorda poi la necessità di «restituire tempo e dignità al medico», oggi «sovraccaricato da burocrazia e scartoffie: sburocratizziamo la sanità e rimettiamo il professionista nelle condizioni di visitare e parlare con i pazienti, non solo di compilare moduli davanti a un computer». Riconosce inoltre il ruolo di collaborazione tra pubblico e privato «quando serve a potenziare il sistema pubblico e mantenere l’accesso universale alle cure», ma ribadisce che «la prestazione sanitaria deve restare pubblica e accessibile a tutti, indipendentemente dal reddito». Per Rosso, la sfida del futuro è costruire «una sanità digitale, efficiente e moderna, ma sempre fondata su valori forti».

DATI TECNICI

Luogo Santiago de Querétaro, Messico Superficie lorda 52.000 m²

Tempi di realizzazione 2019-2023

Inaugurazione 2023

Costo dell’intervento 165.600.000 €

Committente Grupo Empresarial Ángeles/ Hospitales Ángeles

Progettisti Balcázar Arquitectos

Marco Gola, Maddalena Buffoli, Beatrice Pattaro e Erica Brusamolin. Foto: Balcázar Arquitectos
dicembre

Hospital Ángeles Centro Sur

UN OSPEDALE MODELLO DI EFFICIENZA

VERTICALE E COMFORT UMANO NEL CUORE

DEL MESSICO, IN GRADO DI COMBINARE

ARCHITETTURA E PROGETTAZIONE

D’AVANGUARDIA, ELEVATE PRESTAZIONI

CLINICHE, DOTAZIONI TECNOLOGICHE AVANZATE E ATTENZIONE ALL’AMBIENTE COSTRUITO

dicembre
■ Sopra: vista della corte interna. Sotto: sala di attesa.

Situato al Boulevard Bernardo Quintana Arrioja 9670, nel quartiere Centro Sur di Santiago de Querétaro (Messico centrale), l’Hospital Ángeles Centro Sur risponde al forte sviluppo demografico e commerciale dell’area sud della città. Il complesso ospedaliero è concepito per integrarsi urbanisticamente e funzionalmente con l’ambiente circostante, adottando un linguaggio architettonico contemporaneo, con una torre principale a uso clinico-direzionale e corpi bassi destinati a parcheggio, accesso pubblico e servizi d’uso quotidiano. Si tratta di un centro medico all'avanguardia, dotato di strutture moderne, tecnologie innovative e un team di medici altamente qualificati. L’ospedale dispone di aree funzionali specializzate, tra cui sale operatorie, unità di terapia intensiva e laboratori avanzati, consentendo di offrire un’ampia gamma di servizi, dagli interventi chirurgici più complessi ai trattamenti specialistici per diverse patologie. L’intera struttura è stata progettata con attenzione meticolosa, dagli spazi comuni alle camere di degenza, garantendo comfort, privacy e tutte le dotazioni necessarie per una rapida guarigione. Particolare attenzione è stata posta alla sostenibilità ambientale, con sistemi di illuminazione e ventilazione naturale, gestione efficiente delle acque e riduzione dei consumi energetici,

riducendo così l’impatto ambientale e i costi operativi. L’ospedale coniuga estetica contemporanea, funzionalità clinica e comfort per l’utente, garantendo spazi efficienti, accoglienti e facilmente fruibili. Il centro medico è gestito dal Sistema Hospitalario Ángeles, una rete di ospedali privati di alta qualità. Essendo una struttura privata, l'accesso ai servizi richiede generalmente un’assicurazione sanitaria privata o il pagamento diretto delle prestazioni, e non fa parte del sistema sanitario pubblico messicano, che include istituzioni come l'IMSS (Instituto Mexicano del Seguro Social) e l'ISSSTE (Instituto de Seguridad y Servicios Sociales de los Trabajadores del Estado).

PROGETTO ARCHITETTONICO E FUNZIONALE

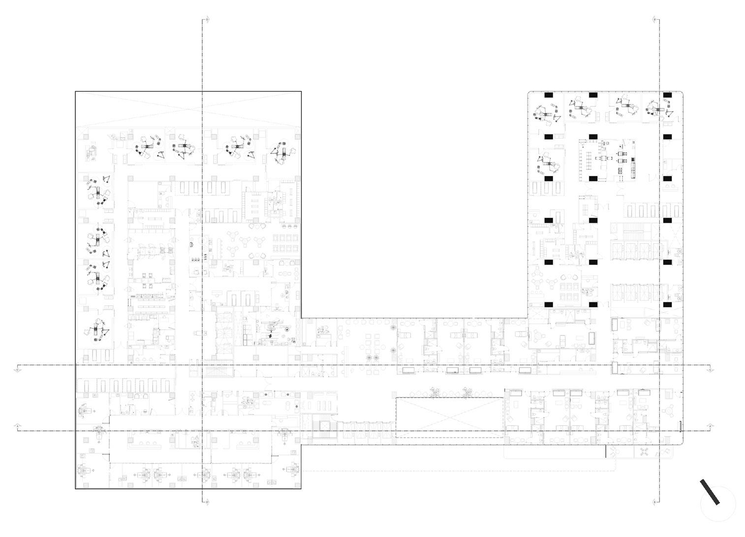
Il nuovo ospedale è stato progettato dallo studio Balcázar Arquitectos, coordinato da Carlos Balcázar Soto. L’ospedale si sviluppa su un terreno di circa 45.000 m² con una superficie costruita di circa 52.000 m² (fino ad arrivare a 65.000 m² nel complesso, includendo aree esterne, parcheggi o volumi accessori). Ospita in generale circa 130 camere di degenza, 22 sale operatorie e 350 ambulatori medici per le diverse specialità. Si tratta di una tipologia mista con i primi piani caratterizzati da una piastra e i piani superiori con lo

Hall di ingresso

sviluppo verticale a torre. Tale scelta è stata fortemente influenzata dall’area urbana individuata: infatti, Centro Sur di Querétaro è una zona densamente urbanizzata dove i terreni hanno un alto valore economico. Pertanto lo sviluppo in altezza ha consentito ai progettisti di ridurre l’impronta la superficie coperta e liberare spazio per la viabilità, verde e parcheggi, mantenendo allo stesso tempo un’ampia superficie utile interna. Il volume e i livelli sono disegnati per sfruttare l’illuminazione naturale e la ventilazione.

La struttura è composta da 23 piani, inclusi 3 seminterrati, piano terra, mezzanino e dodici livelli superiori. I piani inferiori ospitano servizi pubblici (accoglienza, pronto soccorso, diagnostica), mentre i piani intermedi e alti accolgono reparti di degenza e spazi tecnici, favorendo un gradiente di privacy e complessità funzionale man mano che si sale. Sono presenti due ingressi principali, denominati “lobbies”, situati uno nella parte anteriore e uno nella parte posteriore dell’edificio: punti strategici per l’accesso differenziato e distribuito, per facilitare il flusso di utenti/pazienti, visitatori, personale. Il progetto distingue chiaramente tra aree pubbliche per utenti e visitatori, aree mediche cliniche e aree dedicate al personale. Ciò permette di garantire gli standard di privacy, sicurezza e logistica,

■ Piano primo con le aree più complesse dell'ospedale, tra cui Blocco operatorio, Terapia intensiva e day surgery

nonché i requisiti igienico sanitari. La tipologia a torre permette una separazione verticale dei percorsi - pubblico, personale, emergenze, logistica - garantendo maggiore controllo igienico sanitario e una gestione più organica delle aree funzionali ad alta complessità. I sistemi di distribuzione verticale e gli ascensori dedicati rendono i percorsi più sicuri e rapidi.

Le piante tipo regolari permettono una configurazione modulare e flessibile, adatta a ospitare reparti che possono evolvere nel tempo (ad esempio, riconvertendo un piano di degenza in terapia intensiva o day hospital senza modifiche strutturali profonde). La maglia strutturale modulare è in cemento armato, con campate regolari per la torre clinica, indicativamente comprese tra i 6 e 7,5 m, e campate più ampie nei corpi bassi, indicativamente tra gli 8 e 10 m. Presso l'ospedale sono disponibili specialità mediche quali cardiologia, dermatologia, ginecologia, neurologia, pediatria. A questi si aggiungono altri servizi, tra cui laboratorio clinico, radiologia,

■ Piano quarto

chirurgia ambulatoriale e ricovero ospedaliero, ecc. In generale, il gruppo ospedaliero responsabile, Grupo Ángeles Servicios de Salud, ha orientato l’investimento verso un modello di “ospedale-campus” privato di alta complessità per l’area del Bajío, integrando tecnologie quali acceleratori lineari per oncologia, risonanza magnetica, unità di cura per neonati e terapia intensiva.

Tra le innovazioni nell’ambito messicano, è presente un’area di fisioterapia e riabilitazione di ultima generazione con palestra, attrezzature per esercizi terapeutici, cabine con terapie caldo/freddo, vasca di idroterapia, anche simulatori di realtà virtuale, accessibili sia a pazienti interni che ad utenti esterni.

SVILUPPO VERTICALE E SISTEMA DI FACCIATA

Il gruppo Ángeles ha voluto creare un'icona urbana riconoscibile: una torre ospedaliera moderna e tecnologica che rappresenta il

concetto di salute d’eccellenza, la cui verticalità diventa anche un segno di prestigio e identità nel contesto urbano. La facciata in vetro-metallico (“crystal facade”) ha una doppia funzionalità estetica e tecnica: offre ampia trasparenza verso l’esterno e allo stesso tempo contribuisce all’efficienza energetica con schermature solari integrate e vetri ad alte prestazioni. Il design adottato per la facciata trasmette un’immagine di avanguardia e prestigio della realtà ospedaliera. L’edificio a torre consente di sfruttare ampie superfici vetrate, migliorando il comfort ambientale e psicologico dei pazienti. La luce naturale e le viste sulla città o sulle aree verdi circostanti contribuiscono a un concetto di healing environment. Anche dal punto di vista energetico, in relazione al contesto sud americano, la torre facilita la ventilazione naturale e la gestione differenziata degli impianti HVAC per zone verticali. In più la facciata vetrata ad alte prestazioni riduce i carichi termici e migliora la qualità della luce.

■ Sezione prospetto

RICONOSCIMENTI

Ad oggi l’edificio ha vinto premi come la XVIII Bienal Nacional de Arquitectura

Mexicana per categoria, per contemporaneità, innovazione e funzionalità, e riconosciuto come progetto di rilievo internazionale al DNA Paris Design Awards 2025.

Design & Health Lab, Dip. ABC, Politecnico di Milano

GLI AUTORI
MARCO GOLA, MADDALENA BUFFOLI, BEATRICE PATTARO, ERICA BRUSAMOLIN

■ Sezione longitudinale

AMBIENTI SANITARI E SOFT QUALITIES

Il progetto pone grande attenzione alla qualità degli spazi e al benessere delle persone. Sono stati introdotti elementi di amenità come terrazze accessibili a utenti e pazienti, aree di relax e punti di osservazione panoramici, pensati per offrire momenti di pausa e favorire un’esperienza più umana e accogliente. L’edificio è orientato e posizionato con cura rispetto al terreno: l’inserimento parziale nel suolo e il gioco dei diversi livelli consentono di sfruttare al massimo la luce naturale e la ventilazione trasversale. Questi accorgimenti migliorano la qualità ambientale interna e riducono il ricorso all'illuminazione artificiale, contribuendo anche all’efficienza energetica e al comfort delle aree cliniche. Le stanze di degenza sono progettate per garantire privacy, comfort e funzionalità. La maggior parte delle camere è singola, a tutela della riservatezza e del recupero individuale, mentre alcune doppie sono riservate a specifiche esigenze cliniche o familiari. Ogni ambiente ha una superficie compresa tra i 25 e i 30 metri quadrati, assicurando uno spazio adeguato per il paziente, il personale e i familiari.

SOLUZIONI SOSTENIBILI

L’ospedale è stato progettato secondo principi a basso contenuto di carbonio incorporato, raggiungendo un valore medio stimato di circa 350 kgCO₂e/m² (fasi associate alla produzione dei materiali). Si tratta di un risultato nettamente inferiore rispetto ai valori tipici di un ospedale tradizionale, che si collocano tra 500 e 600 kgCO₂e/ m². Considerando la superficie lorda dell’edificio, questo equivale a circa 18.200 tonnellate di CO₂ equivalente. Tali prestazioni sono state ottenute grazie a una serie di strategie mirate, tra cui l’utilizzo di calcestruzzi ottimizzati con l’aggiunta di materiali minerali, l’impiego di acciaio riciclato per la struttura portante, l’uso di alluminio e vetro ad alte prestazioni, entrambi con contenuto riciclato, finiture interne durevoli e a bassa manutenzione, pensate per ridurre gli interventi nel tempo. Sono stati inoltre previsti accorgimenti ambientali come captazione di acque pluviali, utilizzo di illuminazione LED e materiali interni con alta finitura e durabilità che riducono i costi di manutenzione. È stato introdotto l’uso di materiali adeguati al tipo di funzione: le zone cliniche con materiali facilmente pulibili e resistenti, le zone pubbliche con elementi estetici elevati, le finiture di tipologia adatta alla sensazione di benessere.

CONCLUSIONI

Il progetto del complesso ospedaliero rappresenta un significativo impulso economico, generando circa 1.000 posti di lavoro e contribuendo allo sviluppo locale. L’investimento è stato di circa 3.600 milioni di pesos messicani (indicativamente 165.600.000 €) per la

■ Sezione trasversale

costruzione dell’intero complesso. L’architettura coniuga in modo equilibrato funzionalità clinica, comfort per gli utenti e un’immagine estetica distintiva, offrendo spazi efficienti e gradevoli. Particolare attenzione è stata posta alla sostenibilità ambientale, con soluzioni per illuminazione, gestione delle acque e ventilazione naturale, riducendo l’impatto ambientale e ottimizzando i costi operativi. La complessità progettuale è stata affrontata con efficacia, garantendo connettività verticale e orizzontale, gestione intelligente dei volumi su un terreno impegnativo e separazione dei flussi funzionali. L’insieme degli interventi dimostra come innovazione, efficienza e responsabilità ambientale possano integrarsi in un progetto sanitario moderno e di alta qualità. Il complesso, quindi, non solo risponde alle esigenze cliniche e operative, ma diventa anche un modello di sviluppo sostenibile e design funzionale.

Si segnala che le informazioni utili per la scrittura dell’articolo sono state tratte da descrizioni del progetto fornite dai progettisti di Balcázar Arquitectos, disamina tecnica dei disegni di progetto, portali di architettura accessibili dal web. Gli autori dell’articolo ci tengono a ringraziare i colleghi di Balcázar Arquitectos per la condivisione del materiale e il supporto tecnico fornito durante la scrittura.

Healing light nell’ospedale psichiatrico di Slagelse

NEI REPARTI PSICHIATRICI LA LUCE È PARTE FONDAMENTALE DEL PROGETTO, CON EFFETTI SUL COMPORTAMENTO, SUL BENESSERE E SULLA SALUTE DEI PAZIENTI E DEL PERSONALE

Maria Chiara Torricelli Foto: Karlsson architects/VLA
dicembre 2025

DATI TECNICI

Luogo Slagelse, Danimarca

Superficie

44.000 m2

Committente

Regione Sjaelland

Progettazione

Karlsson Arkitekter/VLA

Prog. illuminotecnica

Bartenbach Light Design, NNE Pharmaplan

Prog. facciate vetrate ARUP

Decorazioni artistiche

Malene Landgreen e Ursula Andkjær Olsen

Appaltatori Illuminazione

Lindpro A/S e DELUX DANMARK

Dotazioni

194 letti, ambulatori, DEA, spazi per sport e terapie, 650 postazioni di lavoro, ricerca e formazione

Cronologia

2009 concorsoaprile 2014 inizio lavoriagosto 2015 fine lavori

Importo complessivo

162 milioni euro (importo appalto LED 4,3 milioni euro)

■ Dettaglio dei lucernari della palestra integrati ai faretti led

■ Sopra: Integrazione di luce naturale, luce artificiale, colore e trattamento delle superfici nell’edificio per ricerca e formazione
Sotto: Scenario luminoso nei percorsi nel tardo pomeriggio

■ Concept dei livelli di illuminamento nei reparti di degenza

può avere è sempre, e ancor più, di grande attualità. Molti sono i cambiamenti che hanno investito questo tema negli ultimi decenni sotto il profilo medico e sociale e, conseguentemente, delle strutture assistenziali dal punto di vista organizzativo e edilizio. I diversi modi in cui si presentano i disturbi mentali, la complessità della condizione patologica, l’emergere di nuove manifestazioni della malattia hanno ricadute anche sul progetto degli spazi, in particolare se si riconosce il loro contributo alla prevenzione, alla cura, alla riabilitazione. La progettazione ambientale deve dunque approfondire il significato di healing environment in rapporto alla salute mentale e al ruolo delle diverse componenti - luce, rumore, microclima, ambiente interno, ambiente naturale ecc. - alla luce della evoluzione delle conoscenze mediche e sociologiche.

L'OSPEDALE PSICHIATRICO: IL CASO SLAGELSE

La legge Basaglia del 1978 in Italia rivoluzionò il modo di concepire i setting assistenziali, opponendosi alla segregazione e alla coercizione delle persone con problemi psichiatrici, mettendo al centro la persona e il suo milieu, il superamento delle categorie patologiche e l’integrazione disciplinare e professionale nella diagnosi e nella cura. Prioritaria è la realizzazione di adeguate strutture territoriali per la salute mentale, con ruolo di prevenzione e di assistenza, di coinvolgimento del contesto sociale in cui la patologia si origina. Ma

il problema del ricovero in fase acuta e in situazioni di particolare complessità resta, e le soluzioni di reparti ospedalieri psichiatrici e neuropsichiatrici in ospedali di base, di formazione e di ricerca sono spesso poco adeguate, assimilate agli altri reparti, poco attente alle specificità della patologia, dell’età del paziente, dei compiti dello staff. È sulla base di queste considerazioni che è interessante approfondire alcuni aspetti di progettazione ambientale dell’ospedale psichiatrico, parte di un campus ospedaliero, a Slagelse, nella regione di Selandia, in Danimarca. L’ospedale psichiatrico comprende reparti di degenza e ambulatoriali, reparti psichiatrici di sicurezza e reparti per gli autori di reati, centri per la ricerca e la formazione. Fu inaugurato nel 2015, nell'ambito di un programma per la qualità delle strutture per la sanità, promosso dal governo danese con le cinque regioni. A dieci anni dalla sua messa in funzione è oggetto di studi ed è tuttora considerato una struttura pilota nel quadro del piano decennale per la salute mentale lanciato in Danimarca nel 2022. Nel 2018, il progetto è stato pubblicato su Progettare per la Sanità in un articolo di Cristina Donati, al quale si rinvia per l’illustrazione dell’architettura e per l’intervista al suo principale progettista Christian Karlsson. In questo articolo si intende approfondire gli aspetti di progettazione della illuminazione naturale e artificiale e dei colori di finiture e arredi, aspetti che sono stati oggetto di numerosi premi.

■ Sopra: la camera di degenza. Sotto: integrazione di luce, colore e trasparenze negli spazi comuni dei reparti
dicembre

PROGETTAZIONE DI LUCE E COLORE

Nell'ospedale psichiatrico la luce è una parte fondamentale della terapia e del benessere delle persone, e quindi del progetto. Utilizzando la luce naturale come guida e integrandola con l’illuminazione artificiale, nell’ospedale di Slagelse sono state ottenute condizioni di illuminazione a supporto del ritmo biologico quotidiano dei pazienti e delle condizioni di lavoro del personale. L'illuminazione è stata studiata in relazione agli spazi, al loro uso per terapie, attività fisica, socializzazione e riposo, in relazione all'accesso alle aree esterne, ed è stata integrata con il progetto delle finiture, dell'arte nell'edificio e degli arredi. Il progetto è stato oggetto di un intenso lavoro condotto da Karlsson Arkitekter e Vilhelm Lauritzen Arkitekter con il committente, i consulenti e gli utenti, ed è stato verificato e precisato nelle fasi di start up dell’ospedale. Poche, e per lo più condotte in ospedali del Nord Europa, sono ancora oggi le ricerche, documentate da indagini, volte a valutare non solo la qualità del sonno o i sintomi depressivi, ma anche la riduzione del ricorso a misure coercitive, la riduzione di atti violenti e di suicidi.

LUCE DIURNA E RAPPORTO CON LA NATURA

L’ospedale psichiatrico di Slagelse si trova a cavallo del campus ospedaliero e di un’area destinata a parco. Il progetto ha interpretato questa localizzazione per graduare il rapporto con la natura e con la luce del giorno. Nella malattia psichiatrica le persone alternano momenti nei quali desiderano stare isolate con momenti nei quali socializzano volentieri o godono di sentirsi circondati dalla natura. Questo si associa al desiderio di fruire di ambienti con diversa trasparenza tra di loro e verso l’esterno e diverso livello di illuminazione. I progettisti dell’ospedale psichiatrico di Slagelse hanno concepito il layout e le pareti dell’edificio per assecondare percorsi variabili del paziente: dall’isolamento alla condivisione, dalla riduzione degli stimoli alla percezione di aperture e complessità. I corpi del complesso ospedaliero che ospitano i pazienti sono ad un solo piano e le camere hanno accesso diretto a una corte verde su un lato, mentre sul lato opposto una doppia porta può essere aperta completamente sui percorsi affacciati su una corte più intima, sempre a verde, creando condizioni di luce che invitano a partecipare alla vita comune. La luce diurna penetra dalle corti circondate da bassi corpi edilizi, attraverso ampie finestrature e si riflette sulle superfici interne, contribuendo alla percezione dello scorrere del tempo e delle stagioni. I materiali, i colori e le tonalità tenui delle finiture e degli arredi sono stati studiati per rendere più calda la luce diurna anche nelle giornate nuvolose e per creare ambienti calmi e dare un senso di continuità tra i diversi spazi: arredi e parapetti rivestiti in legno, controsoffitti in lana di legno e cemento, pavimentazioni continue in resina poliuretanica o epossidica. I progettisti hanno voluto evitare la schermatura solare meccanica delle finestre e perciò hanno adottato un vetro a tre strati con uno strato ottimizzato per la

■ La corte interna tra le degenze di giorno

luce diurna e in grado di schermare la radiazione termica infrarossa. Nei grandi ambienti destinati ad attività comuni e allo sport è stata studiata una combinazione di lucernari e luci laterali che garantisce un bilanciamento tra la componente diurna diffusa e la componente di radiazione solare diretta.

INTEGRAZIONE DELL'ILLUMINAZIONE ARTIFICIALE

La luce artificiale si integra con quella naturale per supportare le attività durante il giorno mentre di sera e di notte è pensata per facilitare l'orientamento. Nei reparti si basa sulla tecnologia LED progettata per seguire il ritmo circadiano del giorno e della notte, sia per i pazienti che per il personale.

I led circadiani, seguendo nella colorazione della luce il passaggio dal giorno alla notte, riducono il rischio di aumento di disturbi del sonno, con gli effetti potenziali conseguenti. La luce con tonalità neutra o fredda durante il giorno rafforza i ritmi biologici, ma dopo il tramonto, l'esposizione a queste stesse lunghezze d'onda corte, tipiche dei colori freddi, altera gli orologi biologici perché invia il falso segnale che è giorno e non notte. Insieme all'azienda austriaca Bartenbach, Karlsson ha sviluppato un sistema di illuminazione artificiale con gestione del colore che si adatta ai ritmi della giornata, in cui ogni apparecchio è dotato di un indirizzo IP, che consente di controllare l'illuminazione centralmente in base all'ora del giorno e alla stagione, e ai protocolli di cura e di lavoro. Dal 2015 ad oggi la tecnologia dei led circadiani si è evoluta, ad esempio sono interessanti per gli ospedali le tecnologie che forniscono un livello sicuro e non distruttivo di luce fredda durante la notte dove necessario per il personale in lavoro notturno. La soluzione adottata all’ospedale psichiatrico di Slagelse, integrando le diverse tecnologie allora disponibili, ha permesso di assicurare condizioni di benessere e di sicurezza nelle camere, nei percorsi e negli spazi di lavoro.

La corte interna tra le degenze di notte

LUCE, MATERIALI E COLORI

Il progetto dell'illuminazione degli interni è complementare alla scelta dei materiali e dei colori, destinati a pavimentazioni, rivestimenti di pareti, mobili, porte, e studiati anche per facilitare l’identificazione delle diverse zone dell’ospedale, i reparti, le sezioni e i piani. Il progetto cromatico è stato sviluppato in collaborazione con l'artista Malene Landgreen, cui si devono le composizioni grafiche nell’ospedale. Il piano del colore parte da dieci palette e i relativi gradienti cromatici che combinano colori più forti a colori più tenui fino al neutro del legno. Sono stati sviluppati 24 diversi tipi di apparecchi di illuminazione e un chip LED di altissima qualità con un intervallo di temperatura di colore compreso tra 2.200 e 4.000 gradi Kelvin (da extra-caldo a neutro). I requisiti tecnici riguardavano anche l'efficacia luminosa con un minimo pari a 80 lm/W e requisiti di sicurezza, igiene e di design a completa integrazione nei componenti edilizi, così da far passare gli apparecchi in secondo piano. In totale sono stati installati circa 10.000 apparecchi speciali di tre tipologie: apparecchi LED a faretti, apparecchi LED per illuminazione circadiana, wall-washer a LED per illuminazione di pareti. I faretti LED vengono utilizzati come illuminazione generale in tutte le aree. L'apparecchio di illuminazione ha lo stesso aspetto, ma offre caratteristiche di illuminazione variabili e livelli di illuminazione

PREMI

The Construction Client Award 2016

The Danish Color Prize 2016

AR (Architectural Review) Healthcare Design Award 2016

MIPIM Award, Best Healthcare Development 2017

Danish light Award 2016 Finalista

WAN Award 2016 Finalista

European Healthcare Design 2023 - Highly commended

Master plan dell’illuminazione dell’area

■ Veduta notturna da SO. In primo piano: corpi delle degenze con corti, in secondo piano corpi dell’atrio, degli ambulatori e della ricerca e formazione

adattati alla singola funzione e al tipo di spazio. Gli apparecchi LED circadiani miscelano il colore della luce durante il giorno, cambiando la temperatura di colore per creare un effetto biologico positivo sul ritmo circadiano. I wall-washer a LED illuminano le pareti di spazi comuni con diodi luminosi ad alta potenza in base alla luce diurna, essendo dotati di diverse temperature di colore. Il controllo della temperatura e dell'intensità del colore è gestito esclusivamente da un computer centrale, i pazienti hanno la possibilità di accendere e spegnere la luce nelle camere di degenza e il personale può controllare i programmi e gli scenari prestabiliti. L'impostazione di questi è stata effettuata sulla base delle ricerche di Bartenbach e successivamente è stata adeguata in base ai risultati di indagini condotte dall'ospedale una volta occupato.

RIFERIMENTI

- Ansøgning til Lysprisen (2016), Region Sjælland, Totalrådgiver og arkitekter: Karlsson arkitekter/VLA, Konsulent lysdesign : Bartenbach.

- Astbury J. (2016), Road to Recovery. A psychiatric hospital in SlagelsebyKarlssonArchitectsandVilhelmLauritzenArchitects challenges public stigma with an unabashed open and informal approach, Healthcare Design Award 2016, Architectural Review.

- Donati C. (2018), Una casa nel Parco. L’ospedale psichiatrico GaspdiSlagelse, Progettare per la Sanità .3, 2018, pp.4-9; 51-52.

- Berring, L. L., Bak, J., & Hvidhjelm, J. C. (2022), NationalStrategies toReducetheUseofCoerciveMeasuresinPsychiatryinDenmark - A Review of Two Decades of Initiatives. Issues in Mental Health Nursing, 44(1), 35-47.

- Van de Vijver Jørgensen A.M., Vigur Hansen A. (2023), TheDanish Approach to Mental Health, Healthcare Denmark, 2nd editionOctober 2023.

- Kallestad H, Langsrud K, Simpson MR, Vestergaard CL, Vethe D, Kjørstad K, et al. (2024) Clinicalbenefitsofmodifyingtheevening light environment in an acute psychiatric unit: A single-centre, two-arm, parallel-group, pragmatic effectiveness randomised controlled trial. PLoS Med 21(12).

RINGRAZIAMENTI

Si ringraziano per i materiali forniti, la revisione dell’articolo e i suggerimenti: Karlsson Architects e Bartenbach.

L'AUTRICE

MARIA CHIARA TORRICELLI

già professore di Tecnologia dell'Architettura professore onorario Università di Firenze

Ripensare gli ospedali

LA NUOVA ARCHITETTURA SANITARIA GUARDA AL FUTURO: OSPEDALI CONCEPITI

COME ORGANISMI VIVENTI, IN GRADO DI TRASFORMARSI E CRESCERE SENZA INTERROMPERE LE ATTIVITÀ. UN MODELLO FLESSIBILE, SOSTENIBILE E COERENTE

CON I MUTAMENTI DEMOGRAFICI E TECNOLOGICI

Un recente articolo intitolato “Le conseguenze dell’invecchiamento” e pubblicato su Il Foglio mi ha particolarmente incuriosito. Si tratta dello studio elaborato dal Prof. Andrea Graziosi, docente presso l’Università Federico II di Napoli, in cui vengono confrontate le “piramidi” per età e la struttura della popolazione dell’Italia del 1954 (a 10 anni, quindi, dalla fine della Seconda Guerra Mondiale, con il conseguente vistoso “buco” dei trentenni) con quella di oggi (caratterizzata dall'altrettanto vistoso calo delle nascite e il raddoppio dei cinquantenni) e la proiezione al 2050 (che segna un evidente capovolgimento della piramide con calo della popolazione in età produttiva e raddoppio della popolazione anziana ultraottantenne). Tutto ciò, a mio avviso, comporta una inevitabile modifica nella futura domanda sanitaria: ad esempio, l’area pediatrica (e delle nascite)

pur non subendo sostanziali modifiche rispetto ai carichi odierni, registrerà problematiche connesse all’età avanzata delle mamme e conseguente maggiore assistenza di tipo ostetrico ginecologico; il carico dell’ospedale sarà invece più che raddoppiato per quanto attiene l’assistenza alla persona adulta e all’anziano (con una popolazione compresa tra i 70 e gli 80 anni più che triplicata rispetto all’attuale). È pertanto prevedibile un aumento delle malattie senili, cardiologiche e neurologiche, ma anche riabilitative-fisioterapiche, psichiatriche e oncologiche.

Seguendo la direzione della piramide per età, anche l’Ospedale del 2050 potrà risultare “capovolto”, con una grande espansione delle specialità sopra elencate. È questa una problematica che ci coinvolge, in qualità di progettisti, già da subito in quanto la progettazione

Cambridge Children's hospital

■ A lato: sistema basato su un modulo strutturale 18mx18m, con una destinazione libera e intercambiabile, ampliabile in tutte le direzioni. Sotto: sistema dei collegamenti, resi veloci da traini elettrici, per personale, malati, materiali puliti. Aree di controllo,distribuzione, modifica “a vista” degli impianti

di oggi deve necessariamente essere pensata per rispondere alle esigenze di domani. Come noto, l’iter di un progetto ospedaliero (tra programmazione-ideazione-procedura di gara-realizzazione-attivazione) è estremamente lungo e coinvolge un periodo temporale mediamente compreso tra i 10 e i 15 anni. Ciò significa che il Documento di Indirizzo alla Progettazione messo a base di gara oggi dovrà contenere gli indirizzi alla progettazione riferiti alla “realtà capovolta” espressa dalla piramide per età al 2050.

CRITERI DA APPLICARE

La sola possibile risposta ad una così radicale revisione nella risposta sanitaria può essere risolta adottando principi di progettazione “flessibile”, realizzando un edificio realmente capace di trasformarsi ed accogliere nuove esigenze non prevedibili, in “tempi brevi” e senza creare disagio alle attività sanitarie in corso e quindi alla mutata domanda di salute. Il pericolo reale è quello di realizzare opere “obsolete”, destinate a subire modifiche sostanziali, inevitabili trasformazioni, ampliamenti o contrazioni. Già oggi constatiamo sovente come progetti di ospedali attivati in tempi recenti, spesso redatti su indirizzi programmatici di 15/20 anni fa, dopo appena 4/5 anni dalla loro realizzazione subiscono importanti interventi di modifica o di ampliamento. Per citare alcuni casi a me molto vicini (in quanto progettista) basta riferirsi ai 4 ospedali della Toscana (Prato, Pistoia, Massa, Lucca), concepiti come strutture in rete e tali da creare sinergie funzionali in grado di rispondere all’evolversi delle esigenze sanitarie di un vasto territorio di circa 500.000 abitanti con un elevato grado di flessibilità. Nonostante questo, il decennio trascorso tra la programmazione e l’attivazione, seppur garantito da un efficace sistema attuativo quale il Project Financing, ha fatto sorgere

2 - SEZIONE SCHEMATICA

IMP. FOTOVOLTAICO

INTERPIANO TECNICO

IMP. FOTOVOLTAICO

INTERPIANO TECNICO

INTERPIANO TECNICO

IMP. FOTOVOLTAICO

INTERPIANO TECNICO

GRUPPO OPERATORIO

INTERPIANO TECNICO

RICERCA

MALATI / PERSONALE / MATERIALE RICERCA

SERVIZI DEL PUBBLICO

INTERPIANO TECNICO

SERVIZI DEL PUBBLICO

■ Sezione schematica funzionale: articolazione “libera” delle funzioni con interpiano tecnico

intervento apparirà, così, come un ingombro, un’aggiunta, una superfetazione spesso totalmente dissonante con l’originale architettura. Il risultato finale farà apparire degradata e “obsoleta” l’intera opera, dando così inizio ad un inarrestabile “disinteresse” per la struttura e al suo lento decadimento e forse al progressivo abbandono. Dobbiamo, quindi, progettare non solo secondo i criteri di flessibilità ma anche di trasformabilità (cioè, di capacità di recepire nuove istanze in modo rapido e sicuro) e di ampliabilità: devono essere chiaramente indicati, nel progetto, gli indirizzi e le caratteristiche funzionali e formali per lo sviluppo futuro al fine di garantire la coerenza qualitativa dell’intero edificio. L’analisi della piramide per età, con la rivoluzione che inevitabilmente comporta al “fare Sanità” tenuto conto dei lunghi tempi per la programmazione, la realizzazione e l’attivazione di un ospedale, riaffermano a mio avviso alcuni principi che devono essere di guida per la progettazione: Flessibilità: qualsiasi spazio deve essere capace di ospitare qualsiasi funzione; dove oggi sono state disegnate stanze di degenza dovrà

diventi “obsoleto” e perda riconoscibilità.

Trasformabilità: l'edificio come organismo “vivente”. Diventa “facile” modificare l’assetto funzionale per accogliere nuove istanze sanitarie senza interrompere l’attività clinica della struttura sanitaria nel suo complesso e facendo sì che l’ospedale diventi così un “organismo vivo”.

Manutenibilità: costante controllo “visivo” degli impianti, interventi facili quando si manifestano anomalie o integrazioni di nuove tecnologie quali l’Intelligenza Artificiale.

Continuità e sicurezza dell’attività sanitaria: durante le trasformazioni della struttura sanitaria nel tempo, l’attività deve continuare senza rumori, interruzioni, interferenze e in sicurezza.

PROGETTARE PER LA FLESSIBILITÀ

La realizzazione di interpiani tecnici tra i livelli sanitari (soluzione già realizzata in molteplici esempi ed in particolare nell’ospedale MC Master Health a Toronto) costituisce, a mio avviso, una prima

COLLEGAMENTO AI SERVIZI ECONOMALI

■ Corridoi rettilinei privi di ostacoli per la movimentazione interna del personale, dei materiali puliti e del malato.

Aree protette per manutenzione, controllo, modifica impianti e gestione informatica dell’intera struttura

risposta alla realizzazione di strutture realmente flessibili. Tale soluzione permette un costante controllo degli impianti, la reale facilità nella loro modifica nonché l’adattabilità al variare delle funzioni sanitarie, consentendo l’integrazione di nuove tecnologie in tempi brevi (trasmissione dati, AI, ecc.) e il controllo “a vista” delle reti impiantistiche. L’accessibilità ad ogni componentistica impiantistica consente inoltre di raggiungere una “certificazione di qualità, igiene e di sterilità” quale attestato di sicurezza sanitaria della struttura utile alla gestione dei rapporti con le compagnie assicurative. Tale interpiano tecnico può diventare, inoltre, lo spazio da destinare al percorso del sistema robotico per il trasporto dei materiali (pasti, farmaci, pulito, letti, ecc.), senza alcuna interferenza con altri flussi, con percorsi brevi e ad elevata velocità. Anche il personale potrebbe muoversi in questo interpiano per raggiungere la destinazione in modo veloce e sicuro, anche usando sistemi di traino elettrici, senza dover attraversare reparti o servizi.

L’inserimento dell’interpiano tecnico introduce un altro aspetto interessante, capace di migliorare ulteriormente il grado di flessibilità dell’edificio: la luce maggiore degli interassi strutturali che rende fattibile ipotesi di maglia strutturale di 19,2x19,2 metri o addirittura 20x20 metri, trasformando l’interpiano tecnico stesso in una vera e propria trave portante dei piani sanitari. L’adozione di un sistema strutturale portante in acciaio consentirebbe, inoltre, di raggiungere ulteriori vantaggi quali quello della rapidità di costruzione oltre alla sostenibilità del materiale garantita dal suo reimpiego senza ne-

■ Cambridge Children's Hospital: schema di sezione con interpiano tecnico

cessità di conferimento in discarica. La demolizione potrà avvenire priva di polveri, con recupero pressoché totale e in maniera estremamente veloce grazie anche alla combinazione con tecnologie “a secco” quali pareti modulari prefabbricate, pannelli in cartongesso, ecc. Una pianta libera da vincoli consente un’organizzazione “libera” delle aree di degenza o degli spazi di diagnostica e terapia, rispondendo in modo ottimale alla funzione sanitaria e consentendo la trasformabilità in maniera estremamente rapida. Si ipotizza, quindi, un nuovo “modello” funzionale-operativo non più costituito dal binomio "Piastra dei servizi ad alta intensità di cura" e "Torre delle Degenze", bensì un sistema orizzontale, integrato e flessibile-intercambiabile ove sia possibile ospitare indifferentemente servizi ad alta intensità assistenziale, attività ambulatoriali o unità di ricovero. Già nel progetto dell’ospedale a Santorso (VI) ho dato corpo a tale idea, realizzando una prima risposta a tale "impianto orizzontale” con il superamento della dicotomia Piastra-Degenze e la realizzazione di un sistema ove, in maniera intercambiabile, sono distribuite le diverse aree funzionali, mantenendo sempre invariati tipologia e passo strutturale. Ciò rende reale la capacità dell’ospedale di variare al variare delle esigenze. Tale modello, integrato all’interpiano tecnico, potrà essere inteso come un primo esempio di ospedale capace di raggiungere l’obiettivo di diventare un sistema libero di espandersi lungo qualsiasi direzione, di trasformarsi internamente, di fornire una risposta rapida alle necessità di modificarsi in relazione ai bisogni.

L’AUTORE

ALBERTO ALTIERI, Architetto Elaborazione grafica di CATERINA CARPENÈ, architetto

La nuova clinica del centro di medicina

Da marzo 2025, Venezia ospita una clinica privata, il nuovo Centro di Medicina di Mestre, progettato per servire il territorio dalla terraferma alla laguna oltre al consistente flusso di visitatori internazionali che ogni giorno giungono al vicino Aeroporto Marco Polo. La struttura rappresenta la più grande e innovativa tra le 54 cliniche del network Centro di Medicina configurandosi come nuovo punto di riferimento per l’architettura sanitaria privata nel territorio veneziano. L'edificio, sviluppato su 4 livelli fuori terra, si distingue per un impianto funzionale chiaro e una organizzazione spaziale razionale, integrando una vasta gamma di reparti specialistici. Partendo dalla concezione dell’utente come centro del sistema clinica, la progettazione cerca di garantire alti livelli di benessere della persona in cura, dello staff sanitario e dei visitatori.

IA applicata alla sanità

L’Architettura della Nuova Clinica definisce anche l’accessibilità degli spazi, da ambienti raccolti nei quali privacy e benessere del paziente diventano centrali come le sale di attesa dedicate ad ogni specialità a quelli più permeabili come la reception e l'ampia hall. Al piano 00 oltre all’ingresso sono collocati l’ampio parcheggio coperto che garantisce ai pazienti un trasporto comodo e sicuro. Al piano 01 tutta la parte radiologica con l’installazione di due risonanze magnetiche da 1.5tesla con macchinari basati su intelligenza artificiale e un ampio reparto di riabilitazione compresa

un’ampia palestra. Al piano 02 si trova il piano ambulatorio diviso in varie specialità con reparti dedicati alle varie problematiche dei pazienti. Al piano 03, dedicato all’attività chirurgica, si trovano due sale operatorie ad alta tecnologia, quattro ambulatori chirurgici e venti camere di degenza. Uno dei tratti distintivi è l’uso di strumenti basati su intelligenza artificiale applicata alla sanità. Il reparto di diagnostica per immagini è equipaggiato con macchine di ultima generazione che sfruttano algoritmi AI per analisi più rapide e accurate, supportando i medici nelle decisioni cliniche. Questo significa diagnosi più precise, tempi ridotti e percorsi terapeutici personalizzati. Il piano chirurgico ospita due poli di eccellenza come la chirurgia oculistica e la procreazione medicalmente assistita. Il fiore all’occhiello del centro è il blocco operatorio, progettato con criteri di massima efficienza e sicurezza. Le sale chirurgiche, realizzate con soluzioni modulari NEXOR.suite, sono dotate del sistema Opragon, una tecnologia svedese basata sul flusso d’aria a temperatura controllata (TcAF), che garantisce sale operatorie classificate ISO 5 per il 100% della loro superficie. A differenza dei tradizionali sistemi a flusso laminare, infatti, Opragon crea un ambiente sterile in tutta la sala, non solo sopra il tavolo operatorio, riducendo drasticamente il rischio di infezioni post-operatorie. Per il personale medico, questo si traduce in maggiore comfort operativo: il flusso d’aria è silenzioso, non invasivo e mantiene una temperatura stabile, aumenta la libertà di movimento e operatività

in piena sicurezza in sala e migliora le condizioni di lavoro anche durante interventi prolungati. Per i pazienti, significa maggiore sicurezza chirurgica, con una riduzione significativa dei tempi di recupero. L’impronta ecologica sugli 8000 m² della nuova clinica è presente in molti fattori, dal ricambio aria interna che garantisce risparmio energetico, dall’isolamento della facciata ventilata all’ampio impianto fotovoltaico in copertura. Il centro è un esempio di green building: pompe di calore, impianti fotovoltaici e facciate ventilate riducono i consumi e migliorano il comfort termico. La gestione intelligente delle tecnologie dell’edificio comprende sistemi completamente automatizzati, con sistemi HVAC intelligenti e manutenzione predittiva basata su dati real-time. Questo approccio riduce i costi operativi e garantisce continuità di servizio e ambienti confortevoli e sicuri per pazienti e personale. Le facciate ventilate e i materiali antibatterici utilizzati negli spazi sanitari contribuiscono a creare un ambiente salubre, riducendo il rischio di contaminazioni e migliorando l'IAQ. Ogni dettaglio è stato pensato per favorire la sicurezza, l’igiene e il comfort, elementi fondamentali in una struttura che accoglie ogni giorno centinaia di persone. La progettazione è stata realizzata interamente in BIM (Building Information Modeling), garantendo coordinamento tra architettura, impianti e strutture, riduzione degli errori e gestione digitale post-apertura.

Lo studio MDR27 dell’architetto Marco Da Ros propone un nuovo modello di architettura sanitaria dal quale emerge una visione totale della salute e del benessere della persona. Il processo progettuale parte da una lunga collaborazione con il Gruppo Centro di Medicina e dalla realizzazione di oltre venti strutture sanitarie che hanno portato ad accrescere il valore del benessere e della cura della persona, capace di adattarsi al mutare delle esigenze sociali, economiche ed ambientali.

Una clinica che pensa al futuro

L’utilizzo del BIM non si è fermato alla fase progettuale ed Il software BMS (Building Management System) è utilizzato per la gestione computerizzata dell’edificio. Il modello digitale è oggi utilizzato quotidianamente per la gestione della struttura. I tecnici possono monitorare e modificare in tempo reale lo stato degli impianti, verificare e ottimizzare i consumi energetici, pianificare interventi di manutenzione, simulare scenari energetici ed efficientare l’uso delle risorse.

Questo approccio data-driven consente di ridurre i costi operativi e di garantire continuità di servizio anche in situazioni complesse. Inoltre, la digitalizzazione dei processi sanitari, dalla diagnostica per immagini con supporto AI alla gestione dei flussi di pazienti, rende il centro un esempio concreto di sanità 4.0.

Per i pazienti, il nuovo Centro di Medicina di Mestre rappresenta un luogo dove la cura è più sicura, veloce e personalizzata. L’accesso a tecnologie avanzate, la qualità degli ambienti e la competenza del personale si traducono in un’esperienza sanitaria di alto livello, con tempi di attesa ridotti e diagnosi più accurate. Per il personale medico e tecnico, la struttura offre ambienti di lavoro ottimizzati, con strumenti digitali che semplificano la gestione, riducono lo stress operativo e migliorano la qualità delle prestazioni.

Un modello replicabile

Il nuovo Centro di Medicina di Mestre non è solo una struttura all’avanguardia, ma un benchmark per la sanità privata e convenzionata 4.0. Un esempio di come l’innovazione tecnologica, se ben integrata con la progettazione architettonica e la gestione impiantistica, possa migliorare concretamente la qualità della cura e dell’esperienza sanitaria.

nexormedical.com

Progettare un’unità di radio-oncologia

SCOPO DELL’UNITÀ DI RADIOTERAPIA ONCOLOGICA È QUELLO DI FORNIRE STRUTTURE E ATTREZZATURE DESTINATE AL TRATTAMENTO RADIOTERAPICO. ESSA PREVEDE SPAZI PER LA CONSULTAZIONE DEI PAZIENTI, LA SIMULAZIONE, LA PIANIFICAZIONE E LA SOMMINISTRAZIONE DEL TRATTAMENTO

Prima parte

I trattamenti per il cancro possono coinvolgere varie specialità: chirurgia, chemioterapia, radioterapia e interventi di supporto quali ad esempio le cure palliative. Questi trattamenti possono anche essere utilizzati in combinazione. La radioterapia è l’utilizzo medico di radiazioni ionizzanti come parte del trattamento di tumori e si divide in due categorie principali: radioterapia a fasci esterni (EBRT - External Beam Radiation Therapy)) erogata da acceleratori lineari; brachiterapia che utilizza materiale radioattivo (principalmente una fonte sigillata) inserita all’interno del corpo e portata a stretto contatto con un’area di trattamento spesso con mezzi chirurgici.

La radioterapia superficiale e la radioterapia con ortovoltaggio si riferiscono a trattamenti a bassa energia, bassa penetrazione per lesioni cutanee e tumori appena sotto la pelle. Questo tipo di terapia può essere utilizzato per il trattamento del cancro definitivo o curativo ma anche come trattamento palliativo, finalizzato al controllo locale del cancro o al sollievo dei sintomi. Il trattamento del paziente sottoposto ad una procedura di radiologia oncologica avviene in diverse fasi, seguendo un iter predeterminato.

L’unità di radio-oncologia può essere pianificata come un’unità autonoma “centro hub”, come un servizio “spoke” che funge da centro hub oppure come una componente di un centro oncologico integrato. La pianificazione delle strutture deve poter soddisfare tutti i criteri necessari che contribuiscono a raggiungere gli standard di accreditamento, sia da un punto di vista progettuale che per quanto riguarda l’integrazione delle tecnologie e delle procedure previste anche in termini di sicurezza dalle radiazioni.

MODELLI DI CURA

La radioterapia è una delle più importanti modalità di trattamento del cancro ed è stato stimato che circa il 50% dei pazienti con una diagnosi di cancro dovrà sottoporsi a radioterapia. I servizi oncologici necessitano pertanto di essere integrati in una rete assistenziale che si snoda attraverso i vari livelli di complessità partendo dalla diagnosi precoce all’assistenza di base, ai servizi territoriali, alle cure palliative, ecc. I servizi aggiuntivi forniti dalle unità di radio-oncologia selezionate sono numerosi.

L’irradiazione corporea totale (TBI, Total Body Irradiation) è una tecnica che prevede l’irradiazione totale e simultanea al paziente di una o più frazioni, utilizzando fasci di fotoni ad alta energia; è utilizzata nella preparazione del paziente che necessita di un trapianto di cellule staminali o di midollo osseo. L’irradiazione total body (TBE, Total Beam Irradiation) è effettuata con fasci di elettroni ed impiegata nel caso di neoplasie cutanee diffuse. La radioterapia oncolo -

TERMINOLOGIA

I termini frequentemente utilizzati in radioterapia sono:

• fase: una serie pianificata di sessioni di cura e trattamento per pazienti (es. fase di simulazione); fase di trattamento relativo alle sedute di radioterapia da effettuare; fase di follow-up da identificare come il periodo successivo alla fine della terapia in cui il paziente inizierà ad essere monitorato;

• frazione: somministrazione di una singola dose di radiazione in una singola sezione di trattamento;

• campo: area anatomica del paziente su cui viene diretta la dose di irradiazione, come parte di una frazione di trattamento. Per una sola frazione di trattamento possono essere erogati uno o più fasci di radiazione.

gica pediatrica e la radioterapia volumetrica ad intensità modulata e protonterapia sono mirate a colpire il sito del tumore con estrema precisione e a minimizzare gli effetti collaterali. La radiochirurgia stereotassica è una tipologia speciale di radioterapia a fasci esterni che focalizza i raggi per colpire un tumore ben definito con estrema precisione. La radioterapia stereotassica frazionata prevede la somministrazione di alte dosi di radiazioni su un sito tumorale con alta precisione e in più sedute.

La brachiterapia a basso dosaggio prevede invece il diverso posizionamento di preparati radioattivi (sotto forma di semi, fili o aghi) direttamente all’interno del tumore (interstiziale), in cavità anatomiche (endocavitaria/endoluminale) o sulla superficie corporea (a contatto). Infine, la radioterapia intraoperatoria (IORT) prevede la somministrazione di un’unica alta dose di radiazioni, somministrata nel corso dell’intervento chirurgico direttamente sul sito del tumore. Essa viene utilizzata in interventi con elevata recidività locale, permettendo l’irradiamento del letto tumorale con fasci di elettroni o di fotoni a bassa energia, evitando l’irradiazione ai tessuti sani.

ALLOCAZIONE

L’unità di radio-oncologia generalmente è ubicata a livello terra o addirittura in un piano interrato, a causa dei requisiti di schermatura da soddisfare, del peso delle apparecchiature e per rendere agevole l’installazione e la possibile sostituzione di attrezzature specialistiche. L’unità deve poter fornire un pronto accesso ai pazienti ambulatoriali, alle persone disabili, alle ambulanze e ai pazienti ricoverati su letti/barelle. Se l’unità di radio-oncologia è dimensionata come struttura autonoma in un campus ospedaliero, è necessario stabilire per i pazienti in essa ricoverati collegamenti esclusivi tra l’unità e l’ospedale con possibilità di accesso ad altri reparti (come, ad esempio, alla diagnostica per imaging) oltre che per il trasferimento di merci e forniture.

TABELLA 1 Schema di uno spazio pubblico per una Unità di Radioterapia (ingresso, accettazione, spazi per il pubblico)

Banco di accettazione (la grandezza è funzione del numero di addetti)

di attesa: 25

interviste: 7

TABELLA 3 Spazi clinici per le sale di trattamento

del trattamento

unità

Include un’area giochi per bambini e il 10% di posti per pazienti su sedia a rotelle. 1 posto per trattamento (arrotondato a 25)

di attesa. 2 per la suddivisione di genere

Include l’area giochi bambini e il 10% di posti per pazienti su sedia a rotelle

TABELLA 2 Spazio clinico per le sale esami/revisione

ZONE FUNZIONALI

L’unità di radio-oncologia comprende zone funzionali il cui ambito dipenderà dal livello di servizio, dalle sue dimensioni e se risulta integrato come facente parte di un più grande centro oncologico. Queste zone includono quelle di ingresso/ricezione/attesa, quelle dedicate ai pazienti ambulatoriali (condivisi nel caso in cui l’unità di radio-oncologia sia integrata con un centro tumori). La zona paziente, comprensiva di imaging, sala impronte/preparazione stampi, aree di trattamento (acceleratore lineare, brachiterapia e in casi selezionati apparecchiature superficiali/ortovoltaggio). Le aree di trattenimento del paziente, nonché le aree di pianificazione, quelle di supporto clinico, gli uffici e i servizi del personale. Per quanto riguarda la zona di ricevimento, è previsto un unico ingresso pubblico nell’unità di radio-oncologia che conduca alla reception principale con relativa amministrazione dedicata al paziente (per eventuali appuntamenti, fatturazioni, ecc.) oltre ad un’area principale di attesa. Saranno disponibili ulteriori sub-attese situate in prossimità di ambulatori, aree di pianificazione e di trattamento. Un’area giochi per bambini potrà essere inclusa nell’area di attesa principale, così come i servizi per gli accompagnatori e per i visitatori, oltre a strutture per i volontari e per il personale di trasporto (da condividere se facenti parte di un centro oncologico integrato).

Gli ambulatori di follow-up devono essere adeguatamente organizzati per la revisione clinica multidisciplinare dei pazienti, attrezzati per consentire videoconferenze e visualizzazioni digitali di informazioni cliniche, immagini e informazioni correlate allo status del paziente; una sala di procedura grande tanto da consentire esami endoscopici, esami relativi a patologie che interessano sia la testa che il collo, drenaggi peritoneali, spillamenti pleurici, ecc.; una reception principale o altra postazione per il personale che consenta di supervisionare le aree di attesa. Le dimensioni e il ruolo degli ambulatori varieranno a seconda della configurazione del servizio (se fanno parte di un centro oncologico integrato o di un servizio autonomo).

Gli ambulatori vanno situati sul perimetro dell’unità che ha accesso diretto dall’ingresso principale. I pazienti sono di solito sottoposti a valutazioni settimanali (o quindicinali) da un oncologo o da un radioterapista durante tutto il corso del loro trattamento. È indispensabile fornire un buon accesso a tutti i servizi, idealmente condivisi con l’area di supporto/recupero del paziente. I corridoi e le sale cliniche devono consentire un trasporto agevole dei pazienti anche se barellati.

SALA IMMAGINI E STAMPI E SIMULAZIONE/TC

Quest’area è composta da una sala di simulazione/TC e da una sala stampi che dovrebbero essere preferibilmente ubicate in adiacenza per facilitare il flusso dei pazienti. I requisiti della struttura per la pianificazione del trattamento includono una sala simulatore/TC, considerando anche altre modalità aggiuntive (come ad esempio la

risonanza magnetica che potrebbe anche essere inclusa in futuro), un vano per carrello di rianimazione, i servizi per pazienti e visitatori (spogliatoi, servizi igienici, sub-attese, vano per barelle), una sala di pianificazione computerizzata e, se inclusa, anche una sala di pianificazione ad alto dosaggio di brachiterapia (HDR - High-Dose rate). Inoltre, devono essere presenti sistemi informatici clinici come, ad esempio, la pianificazione informatica e i sistemi informativi di radio-oncologia che richiedono un locale associato per un server oltre ad uno spazio di archiviazione di backup. Potrebbe rendersi necessario in quest’area il condizionamento dell’aria per gestire il surriscaldamento dovuto al gran numero di computer presenti. Infine, non devono mancare uno spazio di lavoro per fisici sanitari e radioterapisti (impegnati nella dosimetria) e uno spazio dedicato agli uffici per il controllo di qualità e per il trasferimento dei dati, riservato dall’area di pianificazione per l’alto livello di concentrazione richiesto. L’area della sala stampi/costruzione delle applicazioni comprende un camerino in cui sarà posizionato un carrello corredato dai numerosi accessori utilizzati e le varie impostazioni laser, oltre ad un bagno d’acqua di dimensioni adeguate a contenere fogli/ ritagli termoplastici di dimensioni standard.

A seconda delle dimensioni della struttura di radio-oncologia possono essere necessari un laboratorio separato (per riporre trapani, utensili, ecc.) la cui grandezza dipenderà dal numero di pazienti trattati in radio-oncologia, un deposito predisposto a contenere sia i materiali utili alla realizzazione di dispositivi di immobilizzazione che gli stampi utilizzati per la realizzazione delle maschere che i pazienti indossano durante il trattamento. Uno spazio all’interno di questo deposito deve essere riservato ad una postazione di lavoro dedicata al personale.

AREE DI TRATTAMENTO CON RADIAZIONI

Quest’area include tutti gli aspetti relativi al trattamento con radiazioni incluse le funzioni associate di somministrazione e di supporto in utilizzo in altri servizi: bunker, labirinti, aree di controllo, spazio adeguato allo stoccaggio di dispositivi di immobilizzazione personalizzati (alcune volte di grandi dimensioni) e relativi accessori per il trattamento, sala di lavoro del personale/sala di revisione delle immagini offline, spogliatoi, servizi igienici per i pazienti (alcuni esami richiedono che il paziente si sottoponga al trattamento con la vescica piena). Include inoltre l’area di sub-attesa, con sedili e alloggiamenti delle barelle posizionati in modo che il paziente non sia esposto e mantenga la sua privacy.

TRATTAMENTO/RECUPERO DEL PAZIENTE

Le sale dedicate ai pazienti sono necessarie per il loro stazionamento se selezionati prima e dopo il trattamento, per un eventuale recupero dopo le procedure selezionate per ulteriori cure infermieristiche e

4 Spazi pubblici per unità di radioterapia (entrata, reception e spazi per visitatori)

Banco accettazione (grandezza in funzione del numero di persone)

per unità Area attesa: 15 posti

Include area giochi bambini e 10% posti per pazienti su sedia a rotelle

5 Spazi clinici per revisione trattamenti

gioco bambini e 10% posti per pazienti su sedia a rotelle

TABELLA 6 Spazi clinici per trattamenti radioterapici

controllo a servizio della

Area attesa: 12

La grandezza può essere minore se le pareti vengono realizzate con blocchi modulari

Include area gioco bambini e 10% posti per pazienti

TABELLA
TABELLA

per la gestione di una eventuale reazione al trattamento. Queste sale saranno posizionate in modo da essere facilmente visualizzate da una postazione dedicata al personale. Ogni sala sarà provvista di apposita tenda (a favore della privacy) e di alimentazioni elettriche, di prese gas medicali quali ossigeno e aspirazione. All’interno dell’unità di radio-oncologia, i locali di servizio e gli altri spazi di supporto saranno disposti in modo da essere accessibili da altre aree. Idealmente, una sala di consultazione dovrebbe essere situata nelle immediate vicinanze dell’unità, per garantire sia un’adeguata assistenza che una consultazione nel rispetto della dovuta privacy. Un alloggiamento del carrello per rianimazione dovrà essere previsto se l’alloggiamento del carrello presente nell’area di pianificazione risulterà essere troppo distante. Una serie di sale di supporto clinico sarà necessaria per supportare l’unità di radio-oncologia, tra cui laboratori di fisica medica e locali tecnici, laboratori di ingegneria biomedica e deposito attrezzature.

FISICA MEDICA E INGEGNERIA BIOMEDICA

Il fisico sanitario è responsabile degli aspetti fisici relativi sia alle radiazioni del trattamento che da una messa in sicurezza dalle radiazioni di tutto il personale, dei pazienti e di quanti possano esserne coinvolti. I fisici sanitari specializzati nello sviluppo di tecniche avanzate forniscono supporto scientifico per tutte le macchine di trattamento, i simulatori, la TC, la risonanza magnetica e la PET imaging, i sistemi di pianificazione informatica, le fonti e le attrezzature per brachiterapia, la dosimetria, la qualità, la sicurezza, la radioprotezione. I servizi di ingegneria biomedica possono essere forniti sia da risorse interne che da personale esterno e riguardano l’assistenza e la manutenzione di una vasta gamma di apparecchiature (di trattamento e non) di radio-oncologia. Gli ingegneri biomedici lavorano a stretto contatto con i fisici sanitari per fornire la calibrazione ed i regolari controlli di conformità a tutte le macchine dedicate sia ai trattamenti che alle diagnosi. Alcuni dispositivi medici possono essere prodotti su misura, altri invece personalizzati all’occorrenza non essendo disponibili in commercio (come, ad esempio, i compensatori per trattamenti individuali o come la pianificazione/progettazione e installazione di attacchi rigidi per sollevare il paziente e calibrare le maschere). I requisiti della struttura prevedono spazi utili per: uffici dedicati ai fisici sanitari, al direttore di fisica sanitaria, agli ingegneri elettronici/biomedici; postazioni di lavoro per studenti e ricercatori; laboratorio di fisica/

elettronica e laboratorio di dosimetria; deposito per apparecchiature di fisica sanitaria (serbatoi di acqua ingombranti e fantocci); supporto tecnico (ufficio IT e area di lavoro/archiviazione); spazi per riunioni (con proiettore e lavagna luminosa).

AREE DI PIANIFICAZIONE E DEL PERSONALE

I radioterapisti necessitano di avere in utilizzo uno spazio del laboratorio dedicato ad attività di pianificazione, controllo qualità e trasferimento dati che sia necessariamente individuato in una zona riservata, per l’alto livello di concentrazione richiesto. Queste aree del laboratorio saranno situate nei pressi delle sale di imaging in una zona riservata allo staff. Le postazioni di lavoro utilizzate dai radioterapisti devono essere dimensionate in modo da potervi collocare due monitor di grandi dimensioni. È necessario uno spazio/ ufficio in una zona tranquilla per il personale medico, in modo che si possa intraprendere l’attività di pianificazione con la concentrazione dovuta. Lo staff assegnato alle prenotazioni è di solito posizionato in una sede nelle immediate vicinanze. Il numero di uffici e postazioni di lavoro per il personale sarà espressione di una organizzazione globale del personale quando l’unità sarà perfettamente funzionante. Se ad esempio un bunker è pianificato in una struttura, i requisiti del personale aggiuntivo (quando commissionato) verranno presi in considerazione secondo i piani originari. La pianificazione degli uffici e delle postazioni di lavoro

Diagramma delle relazioni funzionali

sarà conforme alle politiche giurisdizionali. Si prevede che i servizi di radioterapia oncologica saranno coinvolti negli studi clinici sui pazienti. La ricerca può anche implicare la raccolta e l’analisi dei dati. L’attività e i servizi per gli studenti dovranno essere oggetto di valutazione. I servizi del personale includeranno servizi igienici e doccia per il personale, sala personale con attrezzature per la preparazione di bevande, sala/e meeting per riunioni multidisciplinari di audit e revisione. L’allocazione dello spazio per i servizi del personale dipenderà dal numero del personale e dalla posizione del servizio.

RELAZIONI FUNZIONALI

Dal punto di vista delle relazioni con l’esterno, quando l’unità di radioterapia-oncologica è ubicata in un campus ospedaliero, ha relazioni funzionali con altri servizi di trattamento del cancro, sia in regime di ricovero che ambulatoriale, con strutture esterne per istruzione e ricerca, con imaging medico (TC e RM), la medicina nucleare/PET, le cure palliative e l’ematologia e l’oncologia medica. Per quanto riguarda l’interno, l’unità di radio-oncologia è costituita da molte componenti. La principale area relativa ad ingresso/ricezione/ attesa indirizzerà i visitatori verso altre aree, tra cui gli ambulatori, la sala imaging, le aree di trattamento e di stampo. Le aree di pianificazione saranno adiacenti a quelle di imaging per supportare adeguatamente i flussi di lavoro. La Fig.1 riporta un diagramma delle relazioni funzionali.

PROGETTAZIONE

Per quanto riguarda l’accessibilità esterna, è necessario un accesso all’unità adeguatamente coperto per pazienti ambulatoriali e ospedalieri su sedie a rotelle, lettighe e letti. Per questi pazienti devono essere previsti ingressi separati e discreti, in modo che non debbano attraversare aree frequentate da “esterni”. Le zone di sosta per disabili e i punti di raccolta e di uscita dei pazienti devono trovarsi in prossimità dell’ingresso dell’unità di radio-oncologia o centro oncologico integrato. Un accesso facile e veloce dovrebbe essere fruibile anche da auto private con la possibilità di sosta e parcheggio per ridurre al minimo lo stress ai pazienti che hanno frequentazioni quotidiane all’unità di radio-oncologia.

L’accesso post-orario standard per casi urgenti di radioterapia deve essere facilitato ai pazienti ricoverati ed esterni (ambulanza).

L’accesso post-orario per casi urgenti di radioterapia deve essere facilitato ai pazienti ricoverati ed esterni (ambulanza) oltre che per effettuare carichi e scarichi di attrezzature, nuove o da sostituire,

pesanti e di grandi dimensioni. Se l’accesso è relativo ad un campus ospedaliero, esso verrà utilizzato anche per consegne (es. forniture) e rimozione dei rifiuti. Le vie di circolazione interna dedicate ai pazienti devono poter consentire un agevole movimento di sedie a rotelle e barelle. Le aree di trattamento e pianificazione non devono essere utilizzate come vie di passaggio. Ove possibile è da preferirsi una separazione tra le vie di circolazione dedicate ai pazienti (deambulanti o barellati) e la circolazione sia del personale che del trasporto di materiale all’interno dell’unità.

In alcune vie di accesso e di circolazione, in particolare quelle relative al trattamento delle radiazioni, devono essere previsti percorsi che consentano la consegna di grandi attrezzature. Altezza, larghezza e carichi sul pavimento devono essere già considerati in fase di progettazione. Relativamente al parcheggio, sono da prevedere un parcheggio coperto adiacente all’ingresso principale dedicato ai pazienti, compresi quelli con mobilità minima, un accesso e sosta delle ambulanze, un’area di parcheggio per accompagnatori.I pazienti che utilizzano il servizio in regime ambulatoriale possono parcheggiare la loro vettura in giorni consecutivi e/o per un massimo di otto settimane con possibilità di richiedere uno spazio a breve termine o anche di sosta fino a cinque ore. Tutto questo dovrebbe essere convenientemente considerato già in fase progettuale per evitare un ulteriore stress fisico e psicologico ai pazienti, sottoposti periodicamente a trattamenti lunghi e debilitanti.L’area del laboratorio dedicata alla realizzazione degli stampi deve essere trattata acusticamente in modo da minimizzare il rumore generato riducendolo al minimo così come tutte le sale esami, le sale di consultazione e gli uffici (a protezione della privacy dei pazienti). Dove è prevista una risonanza magnetica, saranno necessari adeguati controlli del rumore. Benché i modulatori possano essere collocati all’interno di un bunker, per ridurre il calore e il rumore essi vengono di frequente collocati in una stanza separata, posizionata in adiacenza al bunker.

L’ambiente deve poter trasmettere al paziente una sensazione confortevole ed accogliente, ma senza compromettere la pratica o la sicurezza clinica. Le aree di trattamento come la stanza del simulatore e il bunker devono essere decorate in modo da garantire una vista tranquillizzante che contribuisca a trasmettere una sensazione di relax durante il trattamento. La distrazione visiva è ormai adottata come “buona norma” in stanze di trattamento quali ad esempio i bunker dove possono essere proiettati effetti speciali sul soffitto (murales fotografici retroilluminati oppure schermi LED di grandi dimensioni per la visualizzazione delle immagini). In alcuni casi, le

immagini possono essere personalizzate dai pazienti. Le aree dedicate ai pazienti in attesa di trattamento devono essere posizionate in modo da garantire loro la dovuta privacy, oltre a permettere di fruire di un confronto con il personale preposto. Per massimizzare la privacy, dove possibile, è d’uopo tener conto della movimentazione dei pazienti attraverso il reparto. È necessario fornire, specialmente negli spazi pubblici di questa unità, quanta più luce naturale possibile così come nelle aree di attesa e in quelle aree di trattamento, dove i pazienti e il personale sostano per lunghi periodi di tempo.

STANDARD E COMPONENTI SPAZIALI

La progettazione e la successiva realizzazione di una unità di radiooncologia devono poter proteggere pazienti, visitatori, manutentori e tutto il personale da rischi di lesioni e/o dal pericolo di radiazioni. L’altezza, la profondità e il design dei banchi presenti nell’area di trattamento devono tener conto sia della costante e ripetitiva natura dei compiti svolti che della distanza dalla parete ove è posizionato il pulsante dell’arresto di emergenza.

Una buona progettazione deve consentire un utilizzo efficace, adeguato, sicuro e dignitoso della struttura da parte sia del personale preposto che di tutti i pazienti, particolarmente quelli affetti da disabilità. Le porte e i corridoi devono essere sufficientemente larghi per consentire il passaggio con estrema facilità di grandi apparecchiature, attrezzature e barelle/letti e attraversamenti, considerando l’eventualità dell’utilizzo di letti bariatrici che debbano essere spo -

stati da unità esterne a quelle ospedaliere. All’interno delle aree di realizzazione degli stampi/apparecchi, il numero di porte tra le aree (compresi i depositi) dovrebbe essere ridotto al minimo per facilitare il movimento delle attrezzature. Tutti gli ingressi delle officine o dei laboratori devono essere dotati di porte a doppia anta per facilitare il passaggio delle apparecchiature. La necessità di avere porte schermate nel labirinto a causa dell’utilizzo dei neutroni dipenderà dalla progettazione complessiva. Idealmente lo spazio dovrebbe essere progettato in modo da evitare l’installazione della porta. Sicurezza e protezione coinvolgono persone e politiche varie, nonché gli aspetti fisici della struttura considerata. La sicurezza della struttura deve essere affrontata in ogni fase del processo di pianificazione e di progettazione. Un audit sulla sicurezza attraverso un’analisi dei rischi potenziali dovrebbe poter essere affrontato già in fase di progettazione. La sicurezza deve anche includere pulsanti di arresto di emergenza nei bunker di trattamento e nelle sale di controllo, sistemi “ultimo uomo fuori”, controllo degli accessi alle sale che ospitano apparecchiature ad alto costo, sicurezza delle sorgenti radioattive così come previsto per i servizi di brachiterapia, allarmi di coercizione fissi e personali, accesso controllato al personale dopo l’orario di chiusura. L’unità di radio-oncologia dovrebbe essere accessibile soltanto alle persone autorizzate ed essere chiusa a chiave con un allarme attivato una volta che sia “non operativa” (fuori orario). L’ingresso accidentale in queste aree deve essere evitato con indicazioni appropriate e la dovuta segnaletica. Le superfici delle pareti nelle aree dell’unità devono essere lisce, lavabili, non permeabili, fonoassorbenti. La pavimentazione antiscivolo è essenziale in tutte le aree di lavoro. La superficie del pavimento nelle aree cliniche deve essere impermeabile, facile da pulire, sigillata e con adeguato drenaggio.

BIBLIOGRAFIA

A. Ferraioli, Diagnostica per immagini, medicina nucleare e radioterapia oncologica. Tomo Primo: Diagnostica per immagini e medicina nucleare. Tomo Secondo: Radioterapia oncologica. Dario Flaccovio Editore (Pa), 2023.

ARMANDO FERRAIOLI

Studio di ingegneria Clinica e Medica, Cava de’ Tirreni (SA)

Il Dipartimento di Emergenza-Urgenza (DE) o Pronto Soccorso, svolge da sempre un ruolo importante nel soccorso tempestivo e nella cura dei pazienti in emergenza-urgenza, fornendo un’assistenza clinica mirata, tempestiva ed efficace. Esso e ii punto di riferimento sanitario primario, responsabile della ricezione, dello smistamento, della valutazione, della stabilizzazione e della gestione dei pazienti che arrivano alla sua porta con diversi gradi di urgenza e complessità.

Una progettazione inadeguata del Dipartimento di Emergenza può portare a numerosi problemi di difficile gestione quali: affollamento, prolungata durata della degenza, aumento della mortalità, scarsa qualità dell’assistenza, tempi di attesa prolungati.

La ragione principale di queste inadeguatezze e l’assenza di un reale coinvolgimento delle parti interessate nel processo di progettazione.

Questo volume riporta ed analizza le problematiche da affrontare per pianificare e progettare un Dipartimento di Emergenza più efficiente e sicuro sia per i pazienti che per ii personale medico e paramedico.

L'EVOLUZIONE DEL MEDICO INTERNISTA IN QUESTO RUOLO DELICATO ANALIZZATO NEL CONTESTO DELL’ESPERIENZA

DELLA SOC CLINICA DI CHIRURGIA MAXILLO FACCIALE DI UDINE

Gestione in team del paziente chirurgico complesso

L’invecchiamento progressivo della popolazione rappresenta una sfida importante per i sistemi sanitari, in quanto determina un aumento della domanda di cure specifiche e personalizzate. A questo fenomeno si affianca il continuo sviluppo delle tecniche chirurgiche e anestesiologiche, che ha ampliato le possibilità terapeutiche anche per persone un tempo considerate non operabili. Pertanto, in questo scenario aumenta il numero di pazienti anziani fragili (affetti da multiple patologie croniche e sottoposti a poli-farmacoterapia) candidabili ad intervento chirurgico. Nel mondo anglosassone, il co-management medico-chirurgico rappresenta un modello di cura ormai consolidato dove l’hospitalist, un medico che svolge il ruolo di general pratictioner per i pazienti ricoverati in un reparto chirurgico, è parte integrante del team clinicoassistenziale. Tale modello ha dimostrato vantaggi significativi, non solo in termini di qualità dell’assistenza, ma anche sotto il profilo economico. Si concretizza nell’accompagnare i pazienti all’intervento in condizioni di equilibrio emodinamico, idro-elettrolitico,

Elena Bocin, Federico Lega, Antea Monte, Elisabetta Ocello, Massimo Robiony

metabolico e nutrizionale, così da favorirne il recupero, ridurre le complicanze nel post-operatorio e conseguentemente minimizzare la durata della degenza. Il ruolo di hospitalist è generalmente ricoperto da medici specialisti in Medicina Interna, le cui peculiarità sono la capacità di gestire il paziente chirurgico nella sua complessità e l’attitudine a lavorare in équipe multiprofessionale, coinvolgendo le competenze necessarie. Per ogni singolo paziente si garantisce così la costruzione di un percorso di cura individuale integrato, mettendo in pratica la medicina personalizzata.

LE COMPETENZE DELL’HOSPITALIST

Il medico internista possiede competenze generali e trasversali che gli permettono di intervenire efficacemente nell’ambito di problematiche intercorrenti in tutte le specialità chirurgiche. Queste problematiche sono relative, ad esempio, alla gestione perioperatoria delle terapie (ipoglicemizzante, anticoagulante, antiaggregante e di tutte le terapie croniche, nell’ambito della cosiddetta “riconciliazione farmacologica”), all’individuazione precoce delle complicanze non chirurgiche e al loro trattamento; all’ottimizzazione della profilassi del tromboembolismo venoso, al ricondizionamento motorio dopo

un intervento di chirurgia maggiore con successivo allettamento. Per ciascuna specialità chirurgica, inoltre, è possibile individuare esigenze specifiche. Per esempio, il recupero nutrizionale è un tema che va affrontato in maniera differente in base al sito ed alla tipologia di intervento. Lo stesso dicasi per il recupero funzionale specifico delle strutture coinvolte dall’intervento. L’internista che si occupa di pazienti chirurgici è pertanto tenuto ad approfondire e quindi evolvere la propria preparazione in alcuni dei settori nel vasto campo della medicina interna, ovvero quelli più necessari per la specifica specialità chirurgica.

UN PROTAGONISTA NEL PERCORSO DI CURA

Nella letteratura in ambito maxillo-facciale, non sono ancora evidenti esperienze di co-gestione medico-chirurgica. Dal 2021, nella Struttura Operativa Complessa (SOC) Clinica di Chirurgia MaxilloFacciale di Udine è stato avviato un percorso di miglioramento strategico e operativo, focalizzato sull’umanizzazione delle cure (curare la persona e non la malattia) e il benessere organizzativo (promuovere e mantenere il benessere fisico, psicologico e sociale dei professionisti coinvolti).

Uno dei progetti intrapresi è stato dedicato alla riorganizzazione delle attività nel reparto di degenza, prevedendo l’inserimento permanente di un medico internista nell’organico, che precedentemente operava come consulente dedicato. L’obiettivo era di transitare verso un modello di co-management nella gestione dei pazienti fragili e/o complessi, prevalentemente oncologici.

Molteplici sono i benefici di cui si giovano ad oggi i pazienti. La chirurgia oncologica di pertinenza maxillo-facciale prevede spesso interventi demolitivi che possono impattare pesantemente sulle funzioni dell’eloquio, dell’alimentazione, della respirazione e sull’estetica del volto, nonché su funzioni neuromotorie della regione cervico-cefalica, a cui si associa necessariamente una fase ricostruttiva che, oltre ad allungare il tempo chirurgico, richiede particolari attenzioni per assicurare l’attecchimento del lembo e la cura - ed eventuale riabilitazione - della sede di prelievo. Per i soggetti più fragili, si configura il rischio di trovarsi ad un livello funzionale inferiore dopo l’intervento, con ripercussioni sulla famiglia e sulla struttura ospedaliera, che deve fronteggiare una degenza più lunga e/o avviare pratiche di trasferimento in setting di cura differenti. Pertanto, l’internista è stato dedicato a seguire i pazienti lungo tutto il percorso di cura (pre ricovero, degenza, dimissione e follow-up) in collaborazione non solo con i colleghi chirurghi della SOC, ma anche con altri professionisti sanitari coinvolti, di cui si fa carico di coordinare gli interventi. Questa modalità organizzativa ha comportato l’affinamento della preparazione internistica orientata ai temi specifici di questa branca chirurgica, realizzata attraverso lo studio individuale, la partecipazione alle riunioni quotidiane di presentazione e discussione dei casi e a quelle settimanali del gruppo oncologico

Le attività svolte dall’hospitalist lungo il percorso di cura

• Valutazione globale secondo il modello bio-psico-sociale

• Coordinamento delle attività che configurano la migliore preparazione del paziente e dei familiari all’intervento (esami ematochimici, consulenze, colloqui con lo psicologo, ecc.)

• Regolamentazione della sospensione delle terapie antiaggreganti e anticoagulanti (l’internista valuta il rischio trombotico, il chirurgo quello emorragico)

• Partecipazione al gruppo oncologico multidisciplinare testa-collo

1

2

UMANIZZAZIONE DELLE CURE

Strategia volta a rispondere in maniera innovativa e sinergica al contesto sociale ed epidemiologico, alle nuove richieste e ai bisogni di salute della popolazione, considerando sia il piano clinico-assistenziale che quello organizzativo-gestionale (Burrai et al., 2020). Si basa su quattro aree di sviluppo - ricerca, formazione, clinico-assistenziale, valutazione - che vanno studiate, contestualizzate, costruite, sperimentate, applicate, mantenute, alimentate. Una strategia tutta da declinare, ma con un grande potenziale per rendere tangibile il miglioramento dei livelli essenziali di assistenza, investendo sul valore per il paziente, sul benessere organizzativo e sul senso di appartenenza dei professionisti della salute nei confronti della sanità pubblica. L’umanizzazione delle cure è una strategia di governance che si costruisce attraverso un sistema di valori condiviso, una cultura organizzativa basata sulla centralità della persona, su un team preparato e su multi-competenza.

• Partecipazione al gruppo oncologico multidisciplinare testa-collo

• Punto di riferimento in corso di terapie adiuvanti per il paziente e per il medico di medicina generale

• Visita perioperatoria in regime post-ricovero

3

4

• Cooperazione medico , chirurgo, infermiere, OSS e professionisti esterni alla SOC

• Gestione della terapia medica in particolare ipoglicemizzanti, antiaritmici, antibiotici, profilassi del tromboembolismo venoso

• Mantenimento ed equilibrio emodinamico, idroelettrolitico e metabolico

• Prevenzione e gestione del disorientamento

• Individuazione e trattamento precoce di eventuali complicanze sistemiche

• Svezzamento in sicurezza dai devices non strettamente legati all’atto chirurgico (diversi dai drenaggi)

• Mobilizzazione precoce

• Avvio di riabilitazione specifica

• Coordinamento degli interventi utili a dimissione protetta a domicilio

• Affiancamento e supporto al chirurgo durante la visita di controllo specialistica, se ritenuto necessario

• Visita di controllo perioperatorio maxillo-facciale in regime ambulatoriale (in presenza o televisita)

• Punto di riferimento in corso di terapie adiuvanti per il paziente e per il medico di medicina generale

multidisciplinare dedicato alle neoplasie capo-collo, a corsi e convegni di aggiornamento sulla specialità chirurgica maxillo-facciale. La decisione di inserire il medico internista come figura permanente del team nel percorso di cura a partire dal prericovero, per la preparazione del paziente e il coordinamento dei professionisti coinvolti, ha permesso di intercettare precocemente, mitigare ed evitare eventuali complicanze post-operatorie (in particolare tromboembolismo venoso e sepsi), garantendo inoltre maggiore aderenza alle raccomandazioni e alle linee guida. In questo modo si è ridotto il trasferimento di pazienti in altri reparti. Inoltre, la valutazione degli aspetti familiari, lavorativi e sociali da parte dell’internista, ha consentito una programmazione precoce e oculata dei successivi interventi riabilitativi, psicologici e socioassistenziali necessari, permettendo di minimizzare così l’impatto degli esiti.

PRERICOVERO

La consueta stadiazione e valutazione anestesiologica è stata affiancata da una valutazione globale internistica e dalla valutazione nutrizionale, quest’ultima in stretta collaborazione tra internista e dietista. La valutazione internistica anamnestica, obiettiva e degli accertamenti eseguiti tende a far raggiungere al paziente il maggior grado di equilibrio e stabilità clinica possibile.

L’assetto nutrizionale è spesso e gravemente compromesso nei pazienti con patologia oncologica del cavo orale: oltre all’attività di counseling per l’ottimizzazione quali-quantitativa dell’alimentazione da parte della dietista, è stato adottato un protocollo di immunonutrizione perioperatoria, efficace per la prevenzione di complicanze infettive sistemiche.

Inoltre, la presenza dell’internista nella fase di prericovero ha ridotto la necessità di consulenza specialistica per la gestione delle terapie anticoagulanti e antiaggreganti, riducendo la quantità di accessi in ospedale e i tempi di prericovero. Nel co-management, peraltro, il rapporto tra internista e chirurgo è diretto, consentendo una scelta personalizzata dei tempi di sospensione e ripresa di tali terapie tenendo contemporaneamente conto delle caratteristiche del paziente e dell’intervento chirurgico. Il confronto tra medico e chirurgo ha portato a ricorrere, quando opportuno per le caratteristiche dell’intervento, al posizionamento preoperatorio di una sonda gastrica per via endoscopica (PEG) al fine di ridurre il rischio di successive complicanze respiratorie e superare le difficoltà di recupero della funzione deglutitoria legate alla presenza di sondino nasogastrico. Tale pratica si è altresì rivelata utile per garantire una nutrizione adeguata durante eventuali terapie adiuvanti, spesso gravate da severe mucositi. Quando indicato, si è predisposta come prassi la preabilitazione logopedica, in collaborazione con i colleghi Otorinolaringoiatri e Logopedisti, per favorire il recupero post-operatorio di fonazione e deglutizione.

REPARTO

La presenza dell’internista in reparto di degenza si è rivelata cruciale per il rientro in sicurezza dalla terapia intensiva post-operatoria e per la mobilizzazione precoce del paziente, particolarmente importante in caso di patologia polmonare preesistente. Questo è potuto avvenire in virtù della capacità internistiche di gestione di eventuali squilibri idro-elettrolitici, metabolici, respiratori o complicanze infettive. Inoltre, il giro di reparto viene svolto insieme da tutto il team (medico chirurgo, hospitalist, infermiere, medico in formazione) in modo da condividere aggiornamenti, decisioni e garantire una corretta comunicazione nell’assegnazione delle mansioni giornaliere. La dimissione protetta del paziente viene coordinata dal medico internista che si interfaccia con il medico di medicina generale e le strutture territoriali, se necessario.

POST DIMISSIONE E FOLLOW UP

Il medico internista rappresenta una figura di riferimento lungo tutto il percorso di cura, consentendo l’instaurarsi di una relazione di fiducia e maggiore soddisfazione per i pazienti. Da questo punto di vista, uno scenario futuro percorribile potrebbe essere quello di seguire i pazienti sopravvissuti a neoplasia orale nel periodo di follow-up in modalità multidisciplinare, come recentemente raccomandato da un articolo pubblicato sul Journal of Cranial-Maxillofacial Surgery, dove si afferma che per migliorare la sopravvivenza dei pazienti con neoplasia non metastatica del distretto cervico-cefalico, sottoposti ad intervento di radicalità chirurgica, è essenziale un follow-up personalizzato e focalizzato sul rilevamento e la prevenzione di altre patologie, quali quelle cardiovascolari, che appaiono come causa di morte più frequente rispetto alla neoplasia, con cui condividono fattori di rischio modificabili.

LAVORO DI SQUADRA

La riorganizzazione di reparto ha comportato l’applicazione di un modello di cura innovativo in grado di promuovere il benessere, la motivazione e il senso di appartenenza dei professionisti sanitari, non solo della SOC Clinica di Chirurgia Maxillo-facciale, ma anche di quelli afferenti ai servizi trasversali (es. dietisti, fisioterapisti, logopedisti). Infatti, in occasione degli interventi più complessi di chirurgia oncologica, viene convocata una breve riunione di presentazione del paziente, cui partecipano tutti i sanitari che sono chiamati a contribuire al percorso terapeutico. Questo permette di condividere gli obiettivi di cura e delineare gli specifici compiti in maniera coordinata. Il modello condiviso della gestione di reparto ha portato a definire modi e tempi di lavoro coniugando competenze mediche, chirurgiche e assistenziali. Ciò è stato accolto favorevolmente anche dal personale infermieristico e di supporto, la cui attività è stata avvalorata dalla più stretta

I principi della medicina 5 P

Prevenire condizioni patologiche prima dell’insorgenza. La prevenzione migliora le condizioni di salute generale e riduce i costi della sanità

MEDICINA PREVENTIVA

MEDICINA PREDITTIVA

Un modello medico che propone la personalizzazione della salute, in termini di decisioni mediche, pratiche, e/o prodotti su misura

MEDICINA PERSONALIZZATA

Si rivolge alle persone sane per la ricerca di segni di fragilità o di difetto che possono causare lo sviluppo di una malattia e si pone come medicina dell’individualità

collaborazione con l’internista. Il cambio di paradigma interessa anche il percorso dei medici in formazione specialistica verso i quali l’internista ha assunto un ruolo didattico, sia con lezioni frontali di medicina perioperatoria, sia con attività di tirocinio pratico, dedicati ai temi di più frequente riscontro nel perioperatorio. Grazie a questo percorso di miglioramento, sono state realizzate diverse buone pratiche promosse dagli operatori. Tra queste, una è rappresentata dalla redazione e pubblicazione di opuscoli informativi per i pazienti, di particolare interesse quello inerente alla modalità di ripresa progressiva dell’alimentazione per bocca dopo intervento di chirurgia maxillo-facciale, in collaborazione con il servizio di dietistica, grazie alla modalità di lavoro in équipe multiprofessionale. Un’altra che vale la pena sottolineare è stata la progettazione di un

MEDICINA DI PRECISIONE

Approccio centrato sui bisogni e sulle potenzialità della persona assistita. Attribuisce pari dignità agli attori coinvolti nel processo di cura e nel percorso diagnostico/terapeutico, coniugando evidenze scientifiche e preferenze dei pazienti

MEDICINA PARTECIPATIVA

Applicazione di tecnologie e processi per la diagnosi, la prevenzione ed il trattamento di patologie in considerazione della variabilità individuale, del genoma, dell’ambiente e dello stile di vita della persona

percorso a carattere interdipartimentale insieme alla SOC di Riabilitazione, per il recupero della deambulazione dei pazienti per i quali il lembo di ricostruzione è derivato dal prelievo di perone.

CURIOSITÀ ORGANIZZATIVA

L’attitudine alla visione olistica dello specialista in Medicina Interna favorisce l’applicazione del lean thinking nelle organizzazioni sanitarie, attraverso l’identificazione e l’eliminazione delle ridondanze, l’ottimizzazione del flusso del paziente nei diversi “settings” secondo l’intensità di cura, e il coordinamento del percorso clinicoassistenziale per un impiego ottimale delle risorse. Tale caratteristica si ritrova anche nella descrizione della Hospital Medicine negli Stati Uniti, intesa come specialità dedicata all’assistenza globale

del paziente e al miglioramento dei sistemi ospedalieri mediante tecniche di qualità e processo, collaborazione e comunicazione interprofessionale, coordinamento del personale e gestione delle transizioni assistenziali, contribuendo così alla soddisfazione sia del paziente sia degli operatori.

VISIONE GLOBALE DEL PAZIENTE

L’integrazione nel team chirurgico dell’internista, che si occupa del paziente fragile e/o complesso nella sua globalità e lungo tutto il percorso di cura, rappresenta un modello di servizio orientato alla persona, aderente ai principi di umanizzazione delle cure e fondato sulla medicina a 5 P. Nel ruolo di hospitalist, l’internista contribuisce a portare i pazienti all’intervento nelle migliori condizioni possibili (equilibrio metabolico, nutrizionale, emodinamico, ecc.); sorveglia l’andamento clinico per prevenire o intercettare precocemente le complicanze sistemiche post-operatorie; coordina le eventuali consulenze; facilita il lavoro in équipe multidisciplinare e multiprofessionale grazie all’attitudine alla visione olistica del paziente; trasmette le nozioni e le prassi utili alla gestione globale dei pazienti chirurgici in fase pre e post operatoria ai colleghi chirurghi e ai medici in formazione specialistica, anche con la stesura di istruzioni operative di semplice applicazione nella pratica clinica; collabora alla realizzazione di progetti di promozione della salute e prevenzione di pertinenza maxillo-facciale; pianifica il rientro a domicilio del paziente in condizioni di stabilità clinica e sicurezza, interfacciandosi con il medico di medicina generale e i servizi territoriali e garantendo un riferimento intraospedaliero.

I risultati ottenuti negli ultimi anni attraverso la co-gestione medicochirurgica dei pazienti fragili e/o complessi in ambito di Chirurgia Maxillo-Facciale sono attualmente in fase di valutazione. In assenza di esperienze analoghe documentate in questo specifico ambito specialistico, ci riferiamo alla letteratura esistente relativa ad altri contesti chirurgici. Il metodo adottato per lo sviluppo e l’attuazione è il ciclo di Deming (Plan, Do, Check, Act): ad oggi abbiamo pianificato e avviato le attività. Sono attualmente in via di definizione specifici indicatori qualitativi in grado di misurare l’efficacia dell’approccio in coerenza con i principi di umanizzazione delle cure delineati nella Carta di Udine. Uno dei principali limiti riscontrati riguarda la disponibilità di un solo internista dedicato, operativo esclusivamente in orario diurno per cinque giorni alla settimana. Per garantire continuità assistenziale, anche durante i periodi di ferie, si è rivelato fondamentale il lavoro in stretta collaborazione tra internista e chirurghi e la contestuale formazione condivisa sul campo. Attribuiamo grande valore al fatto che questo modello può rafforzare la relazione di fiducia tra il personale sanitario e il cittadino/paziente, riducendo la tendenza a cercare informazioni in contesti non controllati, come ad esempio il web.

BIBLIOGRAFIA

- Burrai F, Micheluzzi V, Apuzzo L, "Humanization of Care: Innovation and Health Care Model", G Clin Nefrol Dial 2020; 32: 47-52 doi: 10.33393/gcnd.2020.1984

- Carta di Udine per l’Umanizzazione delle Cure e il Benessere Organizzativo, 30 novembre 2024, Stati Generali itineranti per l’Umanizzazione delle Cure e il Benessere Organizzativo (https://dmed. uniud.it/it/eventi/carta-di-udine-ufficiale_formatoa4formale.pdf)

- "Medicina Interna perioperatoria. Il paziente chirurgico complesso: il ruolo dell’internista nell’ospedale snello, a misura di paziente, organizzato per intensità di cure". Quaderni dell’Italian Journal of Medicine. 2017. Vol 5(2)

- Para O, Valuparampil JB, Parenti A, Nozzoli C, Della Puppa A. "Co-management hospitalist services for neurosurgery. Where are we?" Eur J Intern Med. 2025 Feb; 132:148-149. doi: 10.1016/j. ejim.2024.09.014. Epub 2024 Sep 27. PMID: 39341747.

- Para O, Caruso L, Fedi G, Maddaluni L, Nozzoli C. "Medical and surgical co-management: is time ripe?" Intern Emerg Med. 2022 Apr;17(3):935-936. doi: 10.1007/s11739-021-02726-8. Epub 2021 Apr 10. PMID: 33837905

- Giroldo S., Lega F., “L’ospedale moderno mette il paziente al centro dell’organizzazione”, Progettare per la Sanità, febbraio 2018, pp. 18-23

- Suton P, Luksic I, Lucijanic M. "Comparison of oral cancer versus competing factors as cause of death: Single institution experience with long-term follow up". J Craniomaxillofac Surg. 2025 Feb;53(2):85-89. doi: 10.1016/j.jcms.2024.11.010. Epub 2024 Nov 25. PMID: 39592371.

GLI AUTORI

ELENA BOCIN Dirigente Medico di Medicina Interna SOC Clinica di Chirurgia Maxillo-Facciale, Dipartimento Testa Collo e Neuroscienze - ASU Friuli Centrale

ELISABETTA OCELLO Project Manager, Dipartimento Testa Collo e Neuroscienze - ASU Friuli Centrale

ANTEA MONTE Dottoranda di ricerca in Ingegneria Industriale e dell’Informazione, Dipartimento Politecnico di Ingegneria e Architettura, Università degli Studi di Udine

FEDERICO LEGA Professore Ordinario di Economia e Management Sanitario, Dipartimento di Scienze Biomediche per la Salute, Università Statale di Milano

MASSIMO ROBIONY Professore Ordinario, Direttore Clinica di Chirurgia Maxillo Facciale, Direttore Dipartimento Testa Collo e Neuroscienze - Università degli Studi di Udine e ASU Friuli Centrale.

Verso un ospedale sicuro con il PNRR

Daniele Biondi, 3TI Partner & Senior Architect of General Buildings Division

Marcello Costantini, 3TI Senior Architect of General Buildings Division

Luca Felicetti, 3TI Partner & Associate Director of General Buildings Division

Franca Francescucci, 3TI Partner & Senior Architect of General Buildings Division

Alfredo Ingletti, 3TI Chairman & Founding Partner, FIDIC President and OICE Vice-President

Francesca Salvador, 3TI Senior Partner & Director of General Buildings Division

GLI INTERVENTI SVILUPPATI

DA 3TI PROGETTI, IN PARTICOLARE

QUELLI SVOLTI SU CARDARELLI DI NAPOLI, UMBERTO I DI ROMA E POLO D'EMERGENZA DI FANO SEGNANO UN CAMBIAMENTO PARADIGMATICO NELLA SANITÀ

PUBBLICA ITALIANA E SI POSIZIONANO

COME MODELLI REPLICABILI PER LA TRASFORMAZIONE FUTURA DELLA

RETE OSPEDALIERA NAZIONALE

3TI Progetti è una società di ingegneria italiana employee-owned che, dal 1997, opera nella pianificazione, progettazione e project & construction management di infrastrutture per il trasporto, sociali (ospedali, scuole, residenze, ecc.) e ingegneria ambientale. Con oltre venticinque anni di attività, ha consolidato relazioni con importanti committenti pubblici e privati e imprese di costruzione, rafforzando la sua presenza sui principali mercati internazionali.

Con più di 3.000 progetti realizzati in oltre 70 Paesi, l'obiettivo è generare un impatto positivo e duraturo su scala globale. I valori ESG (Environmental, Social, Governance) e la sostenibilità rappresentano oggi i principi fondanti non solo dello sviluppo tecnico dei progetti, ma anche dell'organizzazione e della gestione aziendale. Si tratta di un percorso strutturato volto a integrare responsabilità ambientale, innovazione tecnologica e benessere sociale. L'edilizia ospedaliera riveste un ruolo strategico tra i settori di maggiore specializzazione di 3TI Progetti.

L'azienda è attiva sia nella progettazione di nuovi poli sanitari sia nella riqualificazione di strutture esistenti. Esempi di rilievo includono: il nuovo ospedale di Cluj in Romania - progettato secondo i principi NZEB (Nearly Zero Energy Building) e concepito per garantire la massima efficienza energetica e un approccio alla cura centrato sul paziente; la riqualificazione di poli ospedalieri in Italia - numerosi interventi di adeguamento funzionale, sismico ed energetico su presidi ospedalieri chiave come l'Umberto I di Roma, il

■ Distribuzione dei 134 interventi PNRR (Missione 6 - Salute) e COVID-19 curati da 3TI Progetti

Cardarelli di Napoli e il Niguarda di Milano. Negli ultimi anni, il contesto nazionale è stato profondamente influenzato dal Piano Nazionale di Ripresa e Resilienza (PNRR). In particolare, la Missione 6 - Salute, Investimento 1.2 "Verso un ospedale sicuro e sostenibile" ha avviato un ampio processo di rinnovamento delle infrastrutture sanitarie, finalizzato a migliorare la sicurezza, la sostenibilità e le prestazioni complessive degli edifici ospedalieri. Parallelamente, si è affermato un nuovo modello di prossimità sanitaria, che vede la nascita di Ospedali di Comunità, Case della Comunità e Centrali Operative Territoriali. Questi spazi sono dedicati a portare le cure più vicino ai cittadini, riducendo la pressione sugli ospedali tradizionali e promuovendo percorsi assistenziali più efficaci e umanizzati. Per il mondo della progettazione, questa transizione rappresenta una sfida culturale oltre che tecnica. Non si tratta solo di costruire o riqualificare edifici, ma di immaginare luoghi che favoriscano integrazione dei servizi, accessibilità, digitalizzazione, sostenibilità energetica e, soprattutto, accoglienza. Ripensare gli spazi della sanità significa contribuire alla costruzione di un nuovo modello di cura: più vicino, più umano e più sostenibile. L’impegno di 3TI nel settore ospedaliero si estende in modo capillare su tutto il territorio nazionale: la distribuzione dei 134 interventi, come evidenziato dall'infografica, sottolinea una presenza significativa e mirata nelle diverse regioni. L'analisi numerica della distribuzione regionale mostra, inoltre, che le aree più coinvolte sono Lombardia, Lazio,

■ Area di intervento della riqualificazione del reparto terapia semintensiva del Padiglione Palermo. Sotto: Cardarelli, nuova palazzina Terapie Intensive

Livello Funzioni principali

Piano Seminterrato Spogliatoi personale, centro antiveleni, locali tecnici, depositi e aree di supporto

Piano Terra Blocco operatorio con n. 2 sale operatorie (percorsi sporco/pulito completamente separati) e sale di preparazione e risveglio dedicate

Piano Primo N. 14 posti letto di degenza dedicati all'unità specifica per Grandi Ustionati (6 stanze doppie e 2 singole)

Piano Secondo (Ultimo) N. 12 posti letto di Terapia Intensiva dedicata ai Grandi Ustionati (1 degenza da 5 posti letto, 4 stanze singole, 1 doppia, e 1 stanza per il paziente isolato)

Interventi previsti - Umberto I, Roma

Funzioni principali per ogni piano - Presidio Ospedaliero Santa Croce, Fano

Livello Quota (rispetto a zero) Funzioni principali

Piano interrato -3,65 m

Piano terra +1,00 m

Reparto di diagnostica per immagini (RX, TAC, Risonanza), n. 2 Sale gessi, Spogliatoi e Magazzini

Accesso principale: Accettazione/Sala d'attesa, Camera Calda, Pronto Soccorso, Osservazione Breve Intensiva (OBI)

Piano primo +5,45 m Terapia Intensiva (TI), Unità Terapia Intensiva Coronarica (UTIC), Medicina di Urgenza (MURGE). Box infermieri baricentrici

Piano secondo +9,95 m

Piano copertura (tecnico) +14,65 m

Chirurgia Generale con blocco operatorio (n. 3 sale tradizionali, n. 1 sala Robotica). Schermatura con lamelle orientabili

Livello tecnico per macchinari (UTA, tecnologici), protetti e schermati. Accessibile solo per manutenzione

Piemonte, Toscana e Campania. Questa distribuzione non solo testimonia l'ampiezza dell'operato di 3TI, ma anche la sua capacità di rispondere alle diverse esigenze delle singole realtà regionali.

Innovazione, resilienza e visione sanitaria

L'Azienda Ospedaliera di rilievo nazionale "Antonio Cardarelli" di Napoli è uno dei casi più emblematici di modernizzazione ospedaliera. In questo contesto strategico, 3TI Progetti ha assunto un ruolo di primo piano attraverso la progettazione e la direzione dei lavori di due interventi complementari: la riqualificazione del reparto di terapia semintensiva del Padiglione Palermo e la realizzazione ex-novo di una palazzina dedicata alle terapie intensive e alla chirurgia ad alta specialità. Queste opere non soltanto rispondono all'esigenza di ampliare i posti letto intensivi, ma innalzano in modo significativo il livello tecnologico, funzionale e infrastrutturale del principale ospedale del Mezzogiorno. Il Padiglione Palermo è un esempio tangibile di come trasformare spazi ospedalieri esistenti in piattaforme assistenziali moderne e performanti. L'intervento ha comportato la demolizione completa delle strutture interne per realizzare un reparto di Terapia Semintensiva Pneumologica da otto posti letto, di cui due in isolamento. La logica progettuale adottata mira a garantire la massima prossimità assistenziale, rapidità di intervento e controllo visivo continuo sui pazienti. Per quanto riguarda architettura e igiene, le scelte hanno privilegiato superfici continue, lavabili e facilmente sanificabili. Sono stati installati controsoffitti tecnici ispezionabili e creati percorsi separati per pazienti, operatori e materiali, rispettando i requisiti avanzati di prevenzione delle infezioni. Il sistema di Impiantistica

HVAC è stato integralmente rinnovato, introducendo un sistema a tutta aria esterna con UTA dedicata. Questo garantisce ricambi d'aria ottimali, mantiene i gradienti di pressione richiesti e assicura la filtrazione assoluta nelle aree critiche di degenza. Il risultato è un reparto ad alte prestazioni, perfettamente integrato nel contesto ospedaliero esistente e rispondente ai requisiti più stringenti in termini di sicurezza, igiene, comfort ambientale e operative readiness.

Un nuovo modello ospedaliero

La nuova palazzina per Terapie Intensive rappresenta l'espansione fisica e simbolica del Cardarelli verso un modello ospedaliero più avanzato e resiliente. L'edificio si sviluppa su circa 3.200 m² distribuiti su quattro livelli, ognuno di circa 800 m². Tutte le camere di Terapia Intensiva sono sistemate intorno a un'area di monitoraggio centrale che consente la sorveglianza di tutti i pazienti, minimizzando l'utilizzo di personale paramedico. Gli ambienti sono concepiti come spazi ad altissima densità tecnologica, dotati di filtri ad alta efficienza, aree tecniche dedicate, percorsi separati e impianti ridondanti per garantire la continuità operativa.

La struttura adottata è di tipo misto, caratterizzata da travi e pilastri con un nucleo prefabbricato in acciaio impiegato come cassero a perdere collaborante, completato da un getto in calcestruzzo. I solai sono stati realizzati con elementi prefabbricati di tipo alveolare. Questa tecnologia strutturale ibrida ha portato a significativi vantaggi strutturali, in particolare la notevole velocizzazione dei tempi di esecuzione del cantiere, aspetto fondamentale data l'adiacenza a reparti ospedalieri attivi. Ha inoltre permesso di ottenere ampie luci strutturali, una condizione cruciale per consentire la più agevole

Sopra: prospetto Sud della nuova palazzina (pensilinaCamera Calda). Sotto: PO "Santa Croce" di Fano, planimetria generale nuova palazzina per l'emergenza. A destra: posizionamento vista maps dei due interventi di 3TI Progetti

distribuzione degli impianti superiori (come canalizzazioni, tubazioni medicali, sistemi di ventilazione e infrastrutture digitali). Infine, la presenza di un elevato numero di sistemi tecnologici ridondanti ha imposto un coordinamento serrato e continuo tra tutte le discipline progettuali coinvolte: architettura, struttura, impiantistica e segnaletica tecnica. Questo processo ha richiesto una costante verifica delle interferenze durante l'intera fase realizzativa per garantire la perfetta integrazione di tutti i sistemi. Particolarmente rilevante è stata la gestione del cantiere in un ospedale attivo.

L'operatività continua del Cardarelli ha imposto una pianificazione estremamente rigorosa, attuata mediante le compartimentazioni temporanee dei settori operativi, il monitoraggio continuo di vibrazioni e polveri, la separazione dei percorsi per mezzi, operatori e

Cardarelli, nuova Palazzina Terapie Intensive. Le immagini dal cantiere documentano la realizzazione ex-novo dell’edificio

materiali, la continua interlocuzione con la direzione sanitaria per garantire la regolare operatività dei reparti confinanti. Gli interventi segnano un cambiamento culturale nella progettazione e gestione degli spazi sanitari, introducendo un paradigma in cui la dimensione tecnologica, la flessibilità e la sicurezza sanitaria si fondono in un'unica visione. Il Cardarelli si dota così di infrastrutture in grado di rispondere con maggiore prontezza alle emergenze epidemiologiche e di sostenere l'evoluzione della pratica clinica ordinaria.

Riqualificazione Terapia Intensiva e Sub-Intensiva

Il Policlinico Umberto I, cuore della sanità e della formazione medica romana, si estende su oltre 300.000 m² e comprende 54 edifici disposti secondo il modello storico a padiglioni. La struttura,

che integra edifici storici e moderni spazi clinici, è un patrimonio architettonico e funzionale di grande valore. Gli interventi previsti si collocano in un contesto vincolato, dove l'equilibrio tra conservazione delle testimonianze del passato e innovazione tecnologica è fondamentale. La complessità dell'operazione è accentuata dal fatto che il Policlinico è pienamente operativo. Ogni lavorazione deve garantire continuità assistenziale, sicurezza dei pazienti e regolare funzionamento delle attività cliniche. La pianificazione dei cantieri è stata sviluppata con soluzioni altamente mirate per ridurre le interferenze. Tali soluzioni sono state rappresentate da compartimentazioni temporanee, percorsi separati per pazienti e personale, controlli di sicurezza dedicati e gestione programmata dei flussi.L'esperienza acquisita costituisce un modello

applicabile ad altri interventi in strutture sanitarie attive. Il progetto di riqualificazione e potenziamento dei reparti di Terapia Intensiva (TI) e Sub-Intensiva (TSI) mira a rafforzare l'offerta sanitaria. L'intervento coinvolge gli edifici 2, 3, 20 e 40, per un totale di 68 posti letto. Le nuove realizzazioni sono dotate di tecnologie avanzate, layout ottimizzati, efficienza energetica e sostenibilità ambientale.Il progetto si distingue per l'adozione di impianti di ultima generazione e sistemi evoluti di controllo ambientale.

Questa impostazione garantisce elevati standard di igiene e sicurezza grazie alla gestione differenziata delle pressioni e alla filtrazione ad alta efficienza dell'aria. Tali misure assicurano condizioni igieniche ottimali, permettendo l'isolamento selettivo dei pazienti infettivi e tutelando il personale sanitario dal rischio di contagio. Parallelamente, la progettazione degli ambienti si è concentrata sul comfort e l'umanizzazione delle cure, adottando soluzioni ergono-

■ Policlinico Umberto I, cantiere in contesto vincolato

miche e funzionali che offrono spazi flessibili. L'efficienza operativa è ulteriormente rafforzata dall'adozione di sistemi digitali per il monitoraggio ambientale e il controllo in tempo reale dei parametri clinici, aumentando sicurezza ed efficacia complessiva. Questo programma integrato dimostra come sia possibile coniugare innovazione, tutela del patrimonio storico e continuità operativa, offrendo un riferimento per la pianificazione di interventi complessi.

Architettura funzionale e sicurezza sismica

L'Investimento 1.2 "Verso un ospedale sicuro e sostenibile" del PNRR, mirato al miglioramento strutturale degli edifici ospedalieri in area sismica, comprende la realizzazione della palazzina per l'emergenza presso il Presidio Ospedaliero "Santa Croce" di Fano (PU). La nuova struttura sorge su un'area di circa 8.800 m² prospiciente al presidio ospedaliero esistente.

È stata concepita con un impianto planimetrico rettangolare e regolare (23,9 x 48,2 m), sviluppandosi su quattro livelli: un piano interrato e tre piani fuori terra, raggiungendo un'altezza massima fuori terra di +14.65 m. La configurazione include un piano tecnico interrato per la manutenzione degli isolatori sismici e un ultimo livello tecnico in copertura, essenziale per l'alloggiamento di impianti voluminosi come le Unità di Trattamento Aria (UTA). Gli accessi al

Interventi previsti - Umberto I, Roma

Edificio Funzione Posti letto Interventi

Edificio 2 Nuovo Reparto di Terapia Intensiva 26

Edificio 3 Nuovo Reparto di Terapia Sub-Intensiva 6

Edificio 20 Reparto di Terapia Sub-Intensiva 18

Edificio 40 Nuovo Reparto di Terapia Sub-Intensiva 24

Completa riqualificazione, separazione flussi puliti e sporchi, controllo visivo costante, continuità funzionale con reparti chirurgici

Demolizione precedente reparto Trapianti, riconfigurazione dei flussi, degenze con controllo clinico centralizzato, tutela architettonica

Strutture divisorie a secco (rapidità esecutiva), impianti di ventilazione meccanica controllata, sistemi digitali di monitoraggio ambientale

Intervento strutturale complesso: adeguamento sismico, rinforzo delle murature portanti, adeguamenti antincendio

■ I nuovi reparti TI/TSI dell'Umberto I

Piano Terra sono differenziati per limitare le interferenze: ingresso pedonale (a nord-ovest, per la sala attesa), ingresso visitatori (a sud-est, per i reparti di degenza), e l'Ingresso al pronto soccorso (protetto dalla Camera Calda, per i barellati).

La Camera Calda è un elemento che caratterizza fortemente il prospetto Sud. È realizzata con una grande pensilina, massiva all'apparenza e rivestita in cortina. La pensilina, strutturalmente autonoma e realizzata in carpenteria metallica, protegge l'accesso delle ambulanze (garantito da n. 2 portoni sezionali) e un percorso pedonale. Esteticamente, presenta una trave reticolare in acciaio verniciata in rosso e una croce rossa ricavata per sottrazione rispetto al rivestimento in laterizio. L'edificio è stato configurato per inserirsi armonicamente nel contesto, con una configurazione dei prospetti che attenua la massività attraverso la scomposizione in piani e volumi per conferire maggiore dinamicità.

Cambio di paradigma nella sanità pubblica italiana Gli interventi sviluppati da 3TI Progetti, in particolare l'ampliamento e la riqualificazione di Cardarelli e Umberto I, e la nuova costruzione del Polo d'Emergenza di Fano, non rappresentano semplici riqualificazioni edilizie, ma segnano un cambiamento paradigmatico nella sanità pubblica italiana. Tali opere, catalizzate dagli investimenti del

PNRR, dimostrano che è possibile coniugare le esigenze inderogabili di sicurezza sismica e igienico-sanitaria con la necessità di umanizzazione delle cure e l'adozione di tecnologie avanzate e sostenibili. L'approccio adottato, che include la gestione estremamente complessa di cantieri in strutture operative e la flessibilità impiantistica, posiziona queste infrastrutture come modelli replicabili per la trasformazione futura della rete ospedaliera nazionale. L'impegno di 3TI Progetti è la sintesi di una visione in cui ingegneria, architettura e organizzazione convergono per abilitare la cura, supportare il lavoro dei professionisti, migliorare la sicurezza dei pazienti e garantire la resilienza del sistema sanitario nel tempo. Attraverso questi interventi, l'Italia sta costruendo un modello di cura che è allo stesso tempo più vicino al cittadino, più umano e più sicuro.

3tiprogetti.it

Alla scoperta della sanità portoghese

IL VIAGGIO STUDIO 2025, CON DESTINAZIONE LISBONA, HA PORTATO CNETO A ESPLORARE I MODELLI INNOVATIVI CHE CARATTERIZZANO LA SANITÀ PRIVATA NEL PAESE LUSITANO

Champalimaud Foundation, hall principale

A ottobre si è tenuto il viaggio CNETO in Portogallo, nello specifico a Lisbona e dintorni. Il viaggio di quest’anno si è caratterizzato per la visita a diverse strutture di recente realizzazione e ciò ha permesso ai partecipanti di vedere le novità che il parco ospedaliero portoghese offre. La scelta di questa meta è stata sottoposta negli scorsi mesi alla Giunta e al Consiglio del CNETO, a partire anche da un viaggio studio promosso da AIOP nel 2019. Il Portogallo si è dimostrato negli ultimi anni un laboratorio interessante per lo sviluppo di nuovi modelli sanitari, grazie anche al lavoro di enti come l'Associação Portuguesa de Hospitalização Privada, che promuove l’innovazione nel settore dell’organizzazione e gestione ospedaliera privata. La realtà portoghese, infatti, sta affrontando con determinazione sfide simili a quelle italiane, come ad esempio l’invecchiamento della popolazione, la necessità di una sanità territoriale più forte e una crescente attenzione alla sostenibilità ambientale, sviluppando risposte progettuali integrate tra ambito ospedaliero e sociosanitario. Ogni visita è diventata la possibilità di un dialogo, di un approfondimento tra i gestori e progettisti delle strutture e i partecipanti del gruppo CNETO.

IL SSN PORTOGHESE

Il Serviço Nacional de Saúde (SNS) è il sistema sanitario pubblico del Portogallo, istituito nel 1979. Garantisce l’accesso universale, tendenzialmente gratuito, alle cure mediche per tutti i cittadini e residenti. È finanziato principalmente attraverso le tasse, e gestito dal Ministero della Salute.

Il SNS copre una vasta gamma di servizi: medicina generale, specialistica, ospedaliera, maternità, pediatria, emergenze, vaccinazioni e farmaci; e in generale esistono dei ticket sanitari, chiamati "taxas moderadoras", per alcune prestazioni, ma molte categorie, come bambini, anziani, disoccupati o malati cronici, sono esentate. Le cure primarie sono erogate attraverso i Centros de Saúde, le nostre simil Case di Comunità, presenti su tutto il territorio. Negli ultimi anni, il governo ha puntato su digitalizzazione e telemedicina per migliorare l’efficienza del sistema. In Portogallo, come in Italia, esiste una coesistenza tra sistema sanitario pubblico (SNS) e un settore privato ben sviluppato. Il settore privato fornisce servizi sanitari paralleli, a pagamento diretto o tramite assicurazioni private. Molti cittadini si rivolgono al privato per ridurre i tempi di attesa per visite specialistiche, esami diagnostici o interventi chirurgici, poiché il SNS può avere liste d'attesa lunghe, specie nelle aree urbane. In generale il SNS portoghese collabora con strutture private attraverso convenzioni (contratti esterni). Ciò avviene quando il pubblico non riesce a soddisfare la domanda: ad esempio, alcune prestazioni ospedaliere o diagnostiche possono essere erogate da cliniche private, ma coperte dal SNS. In Portogallo, circa un terzo della popolazione ha un'assicurazione sanitaria privata. Queste assicurazioni offrono accesso più rapido o servizi extra non sempre coperti dal

■ CNS Torres Vedras - residenze e organizzazione dei blocchi

SNS. In sintesi, il modello portoghese, come quello italiano, è un sistema misto, con un forte pilastro pubblico e un ruolo crescente del privato. In entrambi i paesi, il settore privato risulta complementare con quello pubblico, soprattutto per velocizzare l’accesso alle cure, ma non lo sostituisce. Entrambi cercano di bilanciare universalità, equità ed efficienza, anche se con approcci leggermente diversi. A seguire vengono presentati i casi studio visitati, secondo il calendario del viaggio.

HOSPITAL DA LUZ LISBOA

Uno dei principali ospedali privati del Portogallo, inaugurato nel 2007, questo complesso ospedaliero di Lisbona si estende su una vasta area e combina un ospedale per acuti con una struttura residenziale integrata, coniugando cura, comfort e tecnologie avanzate. Negli ultimi anni è stato oggetto di un’espansione che ha permesso di offrire un impianto compatto con un sistema di corti interne molto luminose e giardini aperti al pubblico. La pianta del complesso è stata pensata per separare chiaramente flussi di utenti, pazienti e staff, garantendo privacy e un chiaro wayfinding. Il complesso ospita le principali specialità mediche e chirurgiche, con centri multidisciplinari di eccellenza in oncologia, cardiologia, chirurgia robotica e medicina digitale. In generale, l’Hospital da Luz rappresenta un modello di sanità privata d’eccellenza che unisce architettura di qualità, innovazione tecnologica e ambizione internazionale, riconosciuto nel 2025 come uno dei 50 migliori ospedali d’Europa per qualità clinica, innovazione e capacità di ricerca. Durante la visita, infatti, i partecipanti hanno avuto modo di incontrare

■ Joaquim Chaves Saude CORE - area laboratorio
■ Champalimaud Foundation. A sinistra: cortile interno, sopra: facciata con piazza

il personale e percepire il loro senso di appartenenza e l’orgoglio di lavorare in questo ospedale. Esso è inoltre il primo ospedale universitario privato in Portogallo, grazie alla partnership con Universidade Católica Portuguesa (UCP) e l’avvio di attività didattica e formativa in medicina. Come ci ha raccontato il Direttore della struttura, è uno degli ospedali più ambiti dagli specializzandi medici proprio perché è riconosciuto il grande valore sociale e sanitario di questo importante complesso medico.

HOSPITAL 2025 LUSÍADAS

L’ospedale, inaugurato nel 2008, si è affermato come una delle principali strutture private dell’area metropolitana di Lisbona, offrendo un ampio ventaglio di servizi medici e chirurgici specializzati. La struttura è riconosciuta per l’eccellenza clinica: è uno dei primi ospedali privati a Lisbona ad ottenere la certificazione internazionale della Joint Commission. Sul fronte tecnologico, ha conseguito il livello 6 (poi 7) della scala EMRAM dell’Healthcare Information and Management Systems Society (HIMSS), confermando un elevato grado di digitalizzazione della cartella clinica e dei processi informativi. In aggiunta, dal punto di vista della sostenibilità ambientale, nel 2023 l’ospedale ha ottenuto la certificazione ISO 14001 per la gestione ambientale, a testimonianza dell’impegno nel ridurre l’impatto energetico e delle risorse. Da un confronto con l’ospedale visitato nelle ore precedenti, si osserva una forte differenza con Hospital da Luz proprio perché si osserva un’attenzione più limitata alla qualità delle finiture degli spazi ma in compenso si riscontra una grandissima efficienza degli standard clinici e tecnologici con un approccio avanzato alla sostenibilità gestionale. Organizzativamente, l’ospedale ha adottato anche metodologie “Lean” nei servizi di manutenzione e ingegneria clinica, al fine di migliorare efficienza, ridurre i tempi di inattività degli apparecchi e aumentare la qualità del servizio. Il complesso nel tempo si è ampliato, organizzandosi su due edifici staccati tra di loro e differenziati tra le attività diurne e quelle diagnostico-terapeutiche con le degenze ospedaliere.

HOSPITAL DE CASCAIS DR. JOSE DE ALMEIDA

Questo è un ospedale generale polivalente situato nell’area di Alcabideche, nel comune di Cascais, inaugurato nel 2010. Si tratta di un caso studio pubblico-privato visitato durante il viaggio. La struttura serve una popolazione di circa 300-350 mila abitanti e dispone di un edificio moderno, con una superficie di circa 45.000 metri quadri, 800 parcheggi e circa 280 posti letto. Tra le sue specialità ci sono cardiologia, ginecologia/ostetricia, neonatologia, oncologia, pediatria, ortopedia, oftalmologia, oltre a servizi diagnostici avanzati come radiodiagnostica e anatomia patologica. La peculiarità di questo caso studio è che gestito in regime di partenariato pubblico-privato (PPP), attraverso una cooperazione tra

il Servizio Sanitario Nazionale portoghese e il gruppo Ribera Salud. Il PPP, infatti, non è relativo solo alla gestione del contenitore, il cui contratto ha una durata di trent’anni, ma anche alla gestione delle attività sanitarie con un contratto che viene rinnovato ogni otto anni, fino ad un massimo di trent’anni di concessione.

L’ospedale ha ottenuto varie certificazioni di qualità come ISO 9001, ISO 14001, Joint Commission International e raggiunge un elevato livello di maturità tecnologica (HIMSS livello 7 EMRAM). Durante la visita abbiamo avuto modo di scoprire molte delle innovazioni che l’ospedale sta sperimentando nel tracciamento dei farmaci, delle medicazioni, ecc. attraverso soluzioni innovative che stanno attuando proprio per ridurre al massimo eventuali errori di processo. È previsto un ampliamento dell’edificio nei prossimi anni con l’estensione di circa due piani sulla struttura esistente; ciò viene garantito dal sovradimensionamento della maglia strutturale.

CHAMPALIMAUD FOUNDATION

Tra le visite più sorprendenti si conta il Champalimaud Centre, un centro biomedico all’avanguardia inaugurato nel 2010 e situato in prossimità del Tagus river a Pedrouços (Belém). Questa fondazione nasce nel 2004 su volere del magnate portoghese António de Sommer Champalimaud, che ne ha definito come missione principale la promozione di ricerca biomedica, cure cliniche sofisticate e innovazione con impatto sociale. Progettato dall’architetto Charles Correa, l’edificio principale include spazi di ricerca, aree cliniche, laboratori, amministrazione e spazi aperti pubblici. L’architettura è pensata per integrare l’ambiente: giardini tropicali coperti, viste sul fiume, pergolati, spazi luminosi che favoriscono l’interazione tra

Foto di gruppo presso CUF Tejo

ricercatori, clinici e visitatori. Il concept dell’edificio si costruisce attorno alla “translational research”: all’interno dello stesso polo si collegano strettamente la ricerca di base, lo sviluppo tecnologico clinico, la diagnosi e le cure per il cancro, le neuroscienze. Di conseguenza anche l’esperienza del paziente diventa centrale attraverso la realizzazione di spazi come il giardino privato per utenti, zone di accoglienza armoniose, aree verdi per migliorare comfort psicologico durante visite e degenza.

Architettonicamente, si distingue anche per il ponte in vetro che collega due edifici, un elemento simbolico e funzionale che enfatizza la trasparenza e la leggerezza del design. Recentemente è stato inaugurato il Botton-Champalimaud Pancreatic Cancer Centre, una struttura dedicata esclusivamente alla ricerca e al trattamento del cancro del pancreas, una delle forme tumorali più difficili da curare. Il nuovo complesso misura circa 12.000 m² con tre piani fuori terra e due interrati, ed è dotato di laboratori d’avanguardia, sale operatorie, reparti di ricovero e strutture di degenza intensiva. È stato costruito accanto all’edificio principale seguendo i criteri di integrazione architettonica con l’edificio esistente e privilegiando comfort visivo e accesso alla luce naturale, con viste sull’acqua e sulla vegetazione, cortili, spazi che favoriscono la serenità del paziente.

Tra le caratteristiche distintive di questo edificio che ospita le degenze ospedaliere, vi sono: sale operatorie circolari, che i partecipanti non hanno avuto modo di visitare; spazi di infusione che richiamano cabine di prima classe con panorami rilassanti; uso di elementi naturali come giochi d’acqua e visuali sul fiume per migliorare l’esperienza del paziente. In aggiunta, la struttura accorpa ricerca, cure cliniche e trial sotto lo stesso tetto, permettendo una maggiore efficienza operativa (trasporto sicuro di materiali biologici, laboratori cGMP, flussi operativi integrati) e un contatto diretto tra le attività di laboratorio e la cura clinica.

Attualmente il centro ha ottenuto la possibilità di estendere le aree di laboratorio e di innovazione tecnologica biomedicale in un capannone destinato ai magazzini portuali, vincolato dalla Soprintendenza. In un prossimo viaggio studio in Portogallo, i partecipanti CNETO potranno quindi visitare queste nuove aree e riscoprire le innovazioni che questo grande centro svilupperà per il futuro della medicina e della ricerca.

LABORATORIO CORE - JOAQUIM CHAVES SAÚDE

Tra le visite più interessanti del viaggio si può annoverare il Laboratorio di analisi cliniche CORE, situato a Carnaxide, una delle strutture più avanzate del gruppo privato Joaquim Chaves Saúde. La struttura, di recente realizzazione, all’interno di un edificio preesistente è in grado di processare oltre 7.000 tipologie di analisi, sia di routine che urgenti. I risultati per le analisi vengono consegnati in meno di 24 ore. Dispone di tecnologie di ultima generazione e automatizzazione in vari processi (preparazione dei campioni, estrazione, analisi dei

COSA VEDERE ANCORA?

Il viaggio prevedeva la visita anche di strutture pubbliche che non siamo riusciti ad organizzare per motivi tecnici e logistici dovute alla mancanza di conferme da parte delle strutture. Tra queste era prevista la visita all’Hospital Beatriz Ângelo, una struttura ospedaliera pubblica situata a Loures, inaugurata nel 2012 nell’ambito di un progetto volto a soddisfare le esigenze sanitarie della zona nord-ovest della capitale portoghese. Tale caso studio risultava interessante per i partecipanti in quanto rappresenta un concentrato di sanità pubblica moderna nell’area di Lisbona con un’infrastruttura recente, forte carico assistenziale, e una crescente integrazione con la formazione e la ricerca. Tra i prossimi interventi che potrebbero essere attenzionati per il futuro, vi è Hospital de Todos-os-Santos, conosciuto anche come Hospital de Lisboa Oriental, che rappresenta uno dei prossimi progetti più ambiziosi e strategici del sistema sanitario portoghese. Situato a Marvila, nella zona orientale di Lisbona, l’ospedale ha l’obiettivo di modernizzare l’offerta sanitaria della capitale e rispondere in modo più efficace alle esigenze di una popolazione in crescita. Il nuovo ospedale sarà in grado di accogliere circa 2 milioni di cittadini, diventando uno dei maggiori poli sanitari della regione metropolitana di Lisbona. L’Hospital de Todos-os-Santos andrà sostituire ben sei strutture sanitarie attualmente esistenti, alcune delle quali ospitate in edifici storici ormai non più adeguati alle esigenze della medicina moderna.

dati), il che aumenta l’efficienza e riduce il margine di errore. Si tratta di un vero e proprio laboratorio di sperimentazione che vede la principale collaborazione con attrezzature innovative per l’esecuzione delle analisi. Il servizio include tre importanti tipologie di laboratorio nel medesimo spazio: analisi cliniche, genetica medica e anatomia patologica. Reputiamo che i partecipanti, in occasione anche del Congresso CNETO sui laboratori clinici e di ricerca, abbiamo toccato con mano un sistema innovativo e di grande efficienza organizzativa e logistica.

CUF TEJO

Inaugurato nel 2020, l’Hospital CUF Tejo è una struttura privata situata nel quartiere Alcântara nella città di Lisbona, costruita per sostituire il precedente Hospital CUF Infante Santo. Il progetto è stato realizzato da Frederico Valsassina e ha una superficie lorda pari a 75.000 m², di cui circa 31.000 destinati a zone cliniche e di supporto. Si tratta di un ospedale contemporaneo con un sistema di facciata che non riconduce immediatamente e giocando molto con i volumi sospesi che caratterizzano la parte finale delle stecche della degen -

za. È una tipologia a piastra e corpi sovrapposti, dispone di sei piani fuori terra e quattro piani interrati, inclusi tre livelli di parcheggio con oltre 800 posti auto. La struttura è stata pensata con un approccio clinico centrato sulle patologie del futuro, con centri specializzati come oncologia, neuroscienze, cardiologia, pneumologia, otorinolaringoiatria e oftalmologia. Per tale motivo ospita circa 200 posti letto, oltre 100 ambulatori di consultazione, 65 ambulatori per esami e trattamenti, 14 box di terapia intensiva e 10 sale operatorie a cui si aggiungono gli spazi dedicati alla day-surgery. Dispone anche di un pronto soccorso per adulti e di un servizio di pediatria non programmata, aperti a svariate ore del giorno, con funzione prettamente privata. Il polo ospedaliero promuove la ricerca clinica e la formazione universitaria e post-universitaria, integrando tecnologie diagnostiche e terapeutiche avanzate. Già dal suo avvio, l’ospedale si propone come riferimento a Lisbona per le cure ad alto livello, capace di affrontare le sfide epidemiologiche attuali e future attraverso una risposta integrata, multidisciplinare e centrata sul paziente. Per maggiori informazioni, si rimanda all’articolo pubblicato sul n. 1/25 di Progettare per la Sanità.

CNS DI TORRES VEDRAS

L’ultimo caso studio è rappresentato da una struttura specialistica neurologica per anziani, il Campus Neurológico Sénior (CNS). Localizzata a Torres Vedras, sorge su un’area collinare di circa 17.000 m², composta da due edifici collegati che ospitano tre unità complementari: l’area diurna (inclusa l’unità di neuroriabilitazione), un’unità di degenza e un’area residenziale per soggiorni di lunga durata.

L’area ambulatoriale, separata dall’area residenziale, offre visite in molte specialità neurologiche, trattamenti riabilitativi, terapie della parola, terapia occupazionale e training cognitivo. Dispone di due palestre e di una piscina per la riabilitazione in acqua, strumenti utili per programmi che includono, fra gli altri, la gestione a distanza e l’assistenza domiciliare.

La struttura ospita, nell’area di degenza, 42 posti letto, in camere singole o doppie, per programmi intensivi multidisciplinari, e altri 42 posti letto nell’area residenziale per utenti che necessitano di aiuto nelle attività quotidiane, garantendo comfort, privacy, sicurezza, e assistenza 24 ore su 24, con un’équipe medica e infermieristica dedicata. Fra i programmi specializzati, il CNS propone percorsi

Champalimaud Foundation – giardino interno
Hospital da Luz - corte interna
Hospital CUF Tejo
■ Foto di gruppo presso Joaquim Chaves Saúde CORE

■ Presentazione presso Champalimaud Foundation

intensivi per Parkinson e altre malattie del movimento, Alzheimer e altre demenze, o per il recupero con un approccio integrato che include fisioterapia, idroterapia, logopedia e supporto cognitivo. In generale il CNS di Torres Vedras si propone come centro di eccellenza neurologica, integrando cura, riabilitazione, supporto residenziale e innovazione sociale, con un approccio centrato non solo sulla malattia, ma anche sul mantenimento della dignità, autonomia e benessere delle persone coinvolte e delle loro famiglie. La sede visitata accoglie sia attività riabilitative che residenziali, ma tante altre strutture presenti sul territorio portoghese offrono servizi diurni per la comunità.

SPUNTI E CONSIDERAZIONI

In maniera sintetica, di seguito riportiamo alcuni spunti di riflessione emersi dal viaggio: è oggettivo che la visita a casi studio privati non ci abbia permesso di comprendere nella sua interezza come funziona il sistema sanitario portoghese ma, allo stesso tempo, se l’intento del viaggio è anche comprendere quali sono i trend futuri e futuribili, le visite hanno permesso di cogliere quali sono le innovazioni che il Portogallo sta mettendo in campo. Rispetto al contesto italiano, ove si riscontra una forte sinergia tra pubblico e privato, la sensazione è che in questo stato ci sia una netta distinzione tra questi due settori e le convenzioni pubbliche siano molto puntuali e rigide. L’esperienza del PPP relativa sia per la gestione del “contenitore” che del “contenuto” clinico presso l’Hospital De Cascais è stata molto interessante, sebbene si sia riscontrata l’adozione di scelte progettuali molto basilari.

Nell’ambito delle soft quality, in molti degli edifici si è riscontrata la presenza dei materiali di finitura lignei, e/o simil legno, e l’utilizzo di colori molto caldi, fortemente associati alla cultura locale, quali il giallo ocra (Champalimaud Foundation e CUF Tejo) e il verde scuro (Hospital da Luz) che rendono molto accoglienti e familiari gli spazi comuni e i corridoi. In aggiunta, si è osservato che la sguscia non è così ricorrente all’interno degli ambienti ospedalieri, ad esclusione delle aree critiche. In molte delle strutture visitate, si è riscontrata la presenza di simulation center per la formazione degli operatori

in diversi contesti, quali la sala operatoria, la terapia intensiva, la sala parto, ecc. Ciò ha fatto molto riflettere sull’importanza della formazione dei giovani, avendo degli spazi specifici per la simulazione di interventi con diversi scenari clinici da saper affrontare. In aggiunta, alcuni di questi spazi sono proprio realizzati come “spazio polmone”, e cioè come aree che ad esigenza possono essere adoperate per ospitare postazioni aggiuntive. Infine, in molti interventi visitati, anche di recente realizzazione, si è osservato che il piano tecnico viene spesso localizzato circa a metà della struttura, in prossimità del blocco operatorio.

RINGRAZIAMENTI

Tra le molte attività che vengono svolte annualmente all’interno della nostra associazione, il Viaggio CNETO è uno degli appuntamenti più attesi proprio perché consente ai soci di confrontarsi con colleghi internazionali ma, soprattutto, di visitare progetti di recente realizzazione per analizzare i trend in atto negli altri paesi nell’ambito delle costruzioni sanitarie, comprendendo anche l’impostazione dei diversi sistemi sanitari nazionali, i modelli gestionali, ecc. Il viaggio quest’anno ha ospitato ben 28 partecipanti, e confidiamo che di anno in anno possano parteciparvi tutti i soci, proprio perché reputiamo che tale esperienza non sia solo un’esperienza tecnica, ma soprattutto un’occasione per fare networking tra i soci e i colleghi internazionali. Oltre a tutte le persone entusiaste e fiere della struttura sanitaria ove operano e che ci hanno accompagnato nei sopralluoghi, un ringraziamento speciale va rivolto ad Oscar Gaspar e Rita Oliveira, colleghi di APHP e coautori di questo contributo, che sin da aprile ci hanno aiutato nell’identificazione dei casi studio. Tale viaggio infatti nasce sulla scia di un precedente viaggio studio organizzato da AIOP, e abbiamo ricevuto i contatti dei colleghi grazie al prof. Gabriele Pelissero. Infine, è doveroso ringraziare Lab Travel Srl Mice, e in particolare Mariangela Peretta e Paolo Di Cesare, per il supporto organizzativo. Nelle prossime settimane i colleghi del gruppo di lavoro dedicato valuteranno le prossime mete di viaggio per l’anno 2026, da sottoporre alla giunta e al consiglio CNETO.

GLI AUTORI

MARCO GOLA

Design & Health Lab, DABC, Politecnico di Milano, segretario generale CNETO

GIUSEPPE LAUDANI

DBA spa, referente viaggi studio CNETO

OSCAR GASPAR

Associação Portuguesa de Hospitalização Privada

RITA OLIVEIRA

Associação Portuguesa de Hospitalização Privada

Ambienti protetti con porte Airslide

Negli ambienti ad alto afflusso, la porta automatica non è solo un varco, ma un elemento strategico per la sicurezza, l’igiene e il comfort ambientale. Da questa visione è nata FAAC Airslide, la porta automatica scorrevole con barriera d’aria integrata, progettata per garantire la separazione tra interno ed esterno e il controllo ottimale delle condizioni ambientali. La lama d’aria, incorporata direttamente nel sistema di automazione, crea una zona di separazione dinamica che riduce al minimo la diffusione di polveri, virus e batteri, contribuendo al contempo a mantenere stabile la tempe-

ratura interna. Questa tecnologia è particolarmente efficace negli ambienti ospedalieri e sanitari, dove la protezione delle aree sensibili e la gestione della qualità dell’aria rappresentano priorità assolute. Airslide è inoltre dotata della tecnologia Energy Saving, che ottimizza automaticamente i tempi di apertura e chiusura delle ante: le porte si aprono solo in caso di reale necessità, riducendo gli sprechi energetici legati al riscaldamento e al raffreddamento degli ambienti. In un contesto come quello sanitario, dove il numero di utenti in transito porte può essere molto elevato, questa

tecnologia permette risparmi energetici considerevoli. I test condotti su installazioni ad alto traffico hanno evidenziato una riduzione delle dispersioni d’aria fino al 66%, con un sensibile miglioramento del comfort interno. Il sistema, brevettato e conforme alle normative europee in materia di sicurezza e automazione (EN16005), può integrare un dispositivo antipanico a sfondamento con riarmo automatico, garantendo elevati standard di protezione. Ogni porta Airslide è testata per 2 milioni di cicli senza manutenzione e, in modalità stand-by, consuma solo 3 Watt.

Morsettiere Fireproof per gli ospedali

In un mercato sempre più attento alla sicurezza e all’affidabilità degli impianti elettrici, DKC lancia la gamma di morsettiere Fireproof della Linea Cosmec. Questa gamma è stata concepita per contesti critici dove la sicurezza antincendio rappresenta un elemento imprescindibile, come ospedali e strutture sanitarie.

Le morsettiere Fireproof possono resistere a temperature fino a 830 °C per 120 minuti, consentendo il proseguimento della funzionalità degli impianti elettrici anche in situazioni di emergenza come incendi, rischio

che in tali ambiti deve essere minimizzato per salvaguardare vite umane e continuità dei servizi essenziali.Realizzate con materiali di altissima qualità, come la ceramica per la base e l’alluminio per i componenti metallici, le morsettiere Fireproof assicurano una resistenza superiore agli stress termici e meccanici. Il design modulare e componibile permette un’installazione flessibile e personalizzata, facilitando il lavoro di quadristi e installatori e adattandosi alle specificità di ogni progetto, dal più semplice al più complesso.

Un supporto in terapia intensiva

GE HealthCare, azienda attiva negli ambiti della tecnologia medica, della diagnostica farmaceutica e delle soluzioni digitali, ha annunciato di aver ricevuto il marchio CE per il suo monitor paziente Carevance, promuovendo un'assistenza accessibile e affidabile per un numero maggiore di pazienti a partire dall'Europa. Carevance offre una soluzione clinicamente affidabile ed economica con parametri convalidati e un flusso di lavoro intuitivo ed efficiente che può aiutare i team di assistenza a rimanere concentrati sui loro pazienti. Carevance è progettato per supportare ospedali e medici nella fornitura di un monitoraggio dei pazienti coerente e di alta qualità attraverso algoritmi clinici comprovati e parametri scalabili, consentendo

un'implementazione flessibile in un'ampia gamma di contesti di cura. Con un solo clic, è possibile attivare la funzione per accedere alla rappresentazione grafica in tempo reale dei dati dei pazienti, al fine di monitorare e comprendere i cambiamenti nella stabilità emodinamica durante e dopo l'intervento chirurgico.

Carevance utilizza algoritmi proprietari e tecnologie collaudate di GE HealthCare per fornire misurazioni accurate e coerenti in tutte le aree di terapia intensiva. Con un'accuratezza clinicamente validata per i segni vitali chiave, tra cui la saturazione di ossigeno, l'elettrocardiogramma (ECG) e la frequenza respiratoria, Carevance garantisce che i medici possano fidarsi dei dati che ricevono e contribuisce a consentire decisioni terapeutiche migliori. Progettato per l'efficienza operativa, Carevance include tecnologie come l'algoritmo EK-Pro che può aiutare a ridurre i falsi allarmi ECG fino al 92%, aiutando i team di assistenza a concentrarsi sul tempo da dedicare ai propri pazienti.

Nuove soluzioni all’Ospedale di Chivasso

La nuova ala dell’ospedale di Chivasso, in provincia di Torino, si distingue nettamente dalle strutture ospedaliere preesistenti. Con un bacino di utenza di circa 200.000 persone, la nuova ala, articolata su cinque piani, ospita il pronto soccorso, il centro prelievi, la terapia intensiva, la neurologia, la medicina generale e la farmacia ospedaliera. In questa struttura moderna e tecnologicamente avanzata si inseriscono perfettamente le soluzioni Vimar, in particolare il sistema modulare di chiamata d’emergenza Call-way, in grado di assicurare una gestione rapida ed efficace delle richieste dei pazienti, semplificando il lavoro del personale medico.

Oltre a migliorare l’efficienza operativa, consente di monitorare presenze, tempi di risposta, stato del sistema e disponibilità del personale, ottimizzando l’impiego delle risorse. Ogni paziente può effettuare una chiamata di emergenza tramite l’apposito dispositivo, collegato al pulsante posto sulla testa del letto, permettendo così al personale medico di rispondere tempestivamente anche a distanza. Progettato in conformità alla norma VDE0834-1-2, Call-way è qui completato dall’impianto elettrico realizzato con Plana Antibacterial: placche bianche in tecnopolimero e una gamma specifica ma ampia di dispositivi appositamente pensati per ospedali, ambulatori, case di cura. Trattati con ioni d’argento, aiutano a prevenire la formazione e la proliferazione di germi dovuta anche al contatto e all’utilizzo dei punti luce da parte di più persone. Il trattamento è stato testato su oltre 50 specie diverse di batteri.

Convegno CNETO 2025

Le nuove sfide dell'Ospedale 4.0

I laboratori ospedalieri e di ricerca

Anche quest'anno il CNETO propone il suo annuale convegno, in programma il 23/24 novembre a Camogli (GE) presso l’Hotel Cenobio dei Dogi. L’evento focalizza l'attenzione su un’area funzionale assai strategica. Il convegno potrà contare su esperti del settore in grado di portare, con un approccio multidisciplinare, il loro contributo su come ripensare gli spazi dedicati ai laboratori. Un’occasione preziosa, per i partecipanti, di confrontarsi con esperti e background molto differenti tra loro. L’edizione di quest’anno vede anche un'importante partecipazione di sponsor che arricchiranno i contributi delle sessioni e consentiranno di toccare con mano alcune soluzioni in loco.

Giornata 1 - 23 novembre 2025

Relazioni di introdurre al tema

14.00-14.15

Saluti istituzionali

14.15-14.30

Introduzione al Convegno

14.30-15.00

Laboratories of the future: which are the next frontiers?

15.00-15.30

Programmazione della rete dei laboratori sul territorio italiano

15.30-16.00

Ruolo dei laboratori in ospedale quanto l'area laboratoriale influisce sulla diagnosi, la loro localizzazione e i tempi

16.00-16.30

Gli esami di laboratorio di oggi e domani modalità di esecuzione e processo

QUESTION TIME E COFFEE BREAK

17.00-17.20

Modelli organizzativi dei Laboratori

17.20-17.40

Dalla teoria alla pratica esperienze progettuali di laboratori clinici

Laboratori ospedalieri

17:40-18.00

Automazione e robotica come influenzano il layout? Rifunzionalizzazione dell’area del Laboratorio Analisi ICH per l'introduzione di una linea automatizzata

18.20-18.40

Progettare per il futuro i nuovi laboratori dell’AOU Siena come motore della medicina di domani, tra innovazione e rigenerazione

18.40-19.00

Prossime sfide del Next Generation Hospital possiamo ragionare sulla condivisione delle attrezzature tra aree omogenee?

QUESTION TIME Cena sociale e dopocena con i giovani CNETO

Giornata 2 - 24 novembre 2025

Laboratori di ricerca e per la produzione

9.15-9.45

Sfide e opportunità dei laboratori di ricerca

9.45-10.20

Livelli di sicurezza dei laboratori

10.20-10.40

Trend evolutivi delle apparecchiature di laboratorio come pensare le dimensioni degli spazi?

10.40-11.00

Nuovi requisiti e nuove frontiere stampa 3D e altre innovazioni

QUESTION TIME E COFFEE BREAK

11.30-11.50

Comunicazione tempestiva dei risultati di laboratorio per garantire la sicurezza dei pazienti esistono soluzioni tecnologiche in grado di automatizzare il processo?

11.50-12.10

Digital Labs con approccio sostenibile

Bilanciamento tra compliancy normativa e strategie di contenimento dei consumi energetici

Prossime frontiere: aspetti comuni e trasversali relativi ai lavoratori

12.10-12.30

Aree di conservazione campioni e test dove localizzarle e come dimensionarle

12.30-12.50

Costi dei laboratori: realizzazione e manutenzione

12.50-13.10

Officine Farmaceutiche: quali sono le prossime frontiere?

13.10-13.30

Conclusioni “La carta di Camogli” Question time

1

2

3

4

5

6

La banca dati

dei prezzari DEI aggiornata mensilmente

Cosa ti offre DEIPLUS PREMIUM:

Tutte le voci dei PREZZARI DEI dal 2018 (più di 88.000)

7 DEI

Tutte le voci dei PREZZARI REGIONALI dal 2023

Normativa tecnica indispensabile al progettista.

Più di 17.000 provvedimenti ricercabili per testo, per classificazione e per estremi (tipologia, numero, data)

Schede merceologiche: per ogni voce di materiale è presente la relativa scheda tecnica delle varie aziende produttrici

Biblioteca digitale: più di 100 volumi sfogliabili del mondo dell’edilizia. Ambiente e bioedilizia, Capitolati, Codici, Consolidamento e restauro, Geotecnica, Progettazione, Sicurezza e tanti altri argomenti

Più di 34.000 pagine per un valore di 4.500 € in libri

18 Check-list: listini precompilati con tutte le voci necessarie per i lavori più frequenti tra cui rifacimento bagno, rifacimento facciata, impianto fotovoltaico, impianto riscaldamento condominio, villino ipo

METRICODEI: il software per creare il computo metrico, completamente integrato con la banca dati DEIPLUS PREMIUM

Turn static files into dynamic content formats.

Create a flipbook
Issuu converts static files into: digital portfolios, online yearbooks, online catalogs, digital photo albums and more. Sign up and create your flipbook.