Los Eventos by





![]()





Hemos establecido un proceso sencillo para ayudarte en la decisión y saber si Quince es el mejor lugar para tu día especial.
1. Inicialmente te pedimos que revises las siguientes opciones de precio, espacios y paquetes. Hemos tratado de hacer esto conciso y claro para una evaluación rápida y educada.
2. Al final, te redirigiremos a un pequeño formulario para conocer tus intereses para tu evento basado en lo que te ofrecemos.
3. Tu Event Concierge asignado analizará tus elecciones y te llamará para hablar sobre las opciones.
4. Por último, tu Concierge te guiará durante todo este proceso para ayudarte a crear un evento único en Quince con el objetivo de que tú tus invitados los recuerden por siempre.
Por favor siéntete libre de contactarnos con preguntas o inquietudes durante cualquier parte del procesos.




QUINCE ofrece espacios privados a precios competitivos e incluye las siguientes amenidades:
❖ Equipo de Catering
❖ Vajilla
❖ Cristalería
❖ Cubierto
❖ Servilleta de tela
❖ Mobiliario Existente
❖ Motivos Florales en Mesa
❖ Música Ambiental
❖ Iluminación Ambiental
❖ Montaje del Espacio
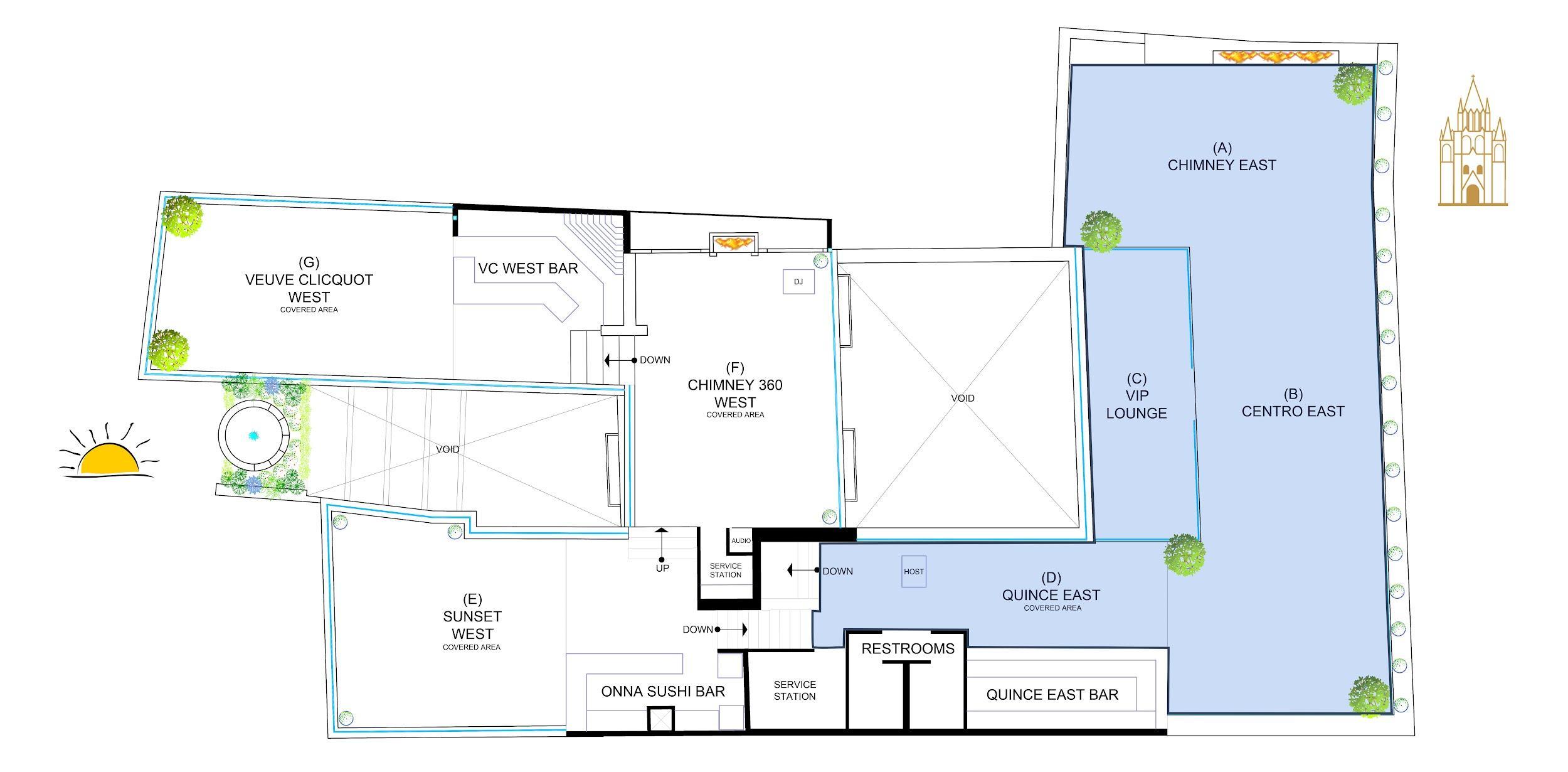
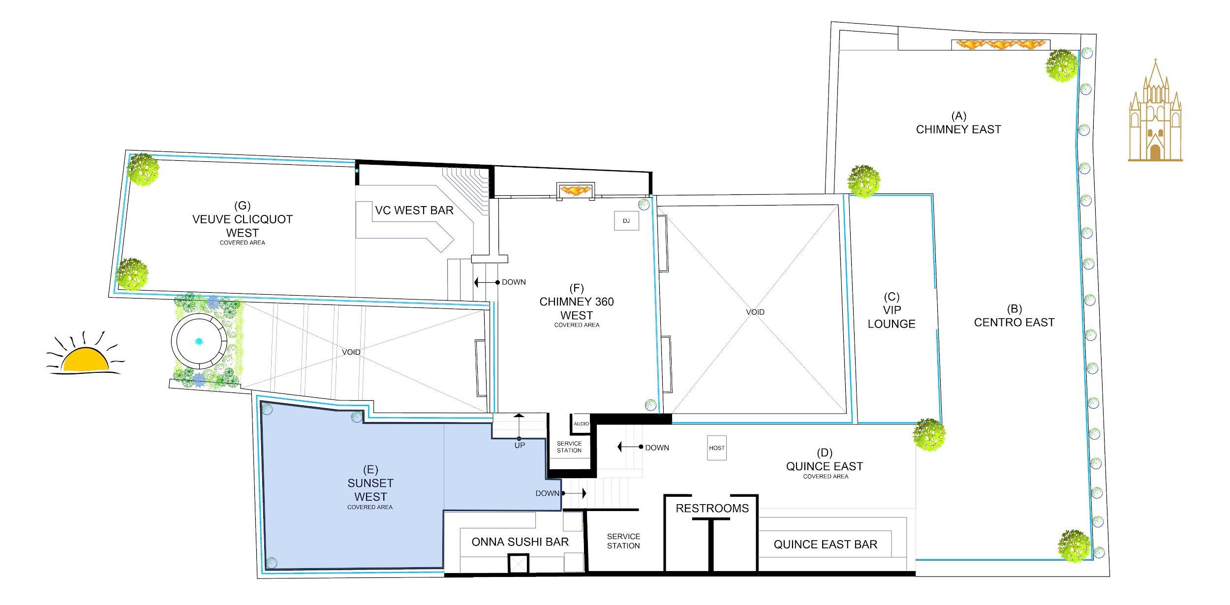
Los espacios están agrupados y etiquetados de la A a la G en este Dossier. El precios de los espacios varía de acuerdo al día y la hora.
Toldos están incluídos en el precios de las Terrazas Oeste de Quince. El lado Este requiere rentar el servicio a un proveedor externo.







Capacidad 30 sentados / 45 estilo coctel
La tarifa por hora de los espacios privados es determinada según el horario elegido.
Lunes-Miércoles Jueves Viernes-Sábado Domingo
Espacio B + C

Capacidad 40 sentados / 60 estilo coctel
La tarifa por hora de los espacios privados es determinada según el horario elegido.
Intervalo Lunes-Miércoles Jueves Viernes-Sábado Domingo








Mínimo de 3 hrs para eventos. *Consumo mínimo en horario premium
Espacio A+B+C+D

Capacidad 100 sentados / 150 estilo coctel
La tarifa por hora de los espacios privados es determinada según el horario elegido.
Intervalo Lunes-Miércoles Jueves Viernes-Sábado Domingo
Mínimo de 4 hrs para eventos. *Consumo mínimo en horario premium $297,000 MXN +25% servicio.









Capacidad 25 sentados / 40 estilo coctel
La tarifa por hora de los espacios privados es determinada según el horario elegido.
Lunes-Miércoles Jueves Viernes-Sábado Domingo

Capacidad 30 sentados / 45 estilo coctel
La tarifa por hora de los espacios privados es determinada según el horario elegido.
Intervalo Lunes-Miércoles Jueves Viernes-Sábado Domingo








Espacio G

Capacidad 32 seated / 40 estilo coctel
La tarifa por hora de los espacios privados es determinada según el horario elegido.
Mínimo de 3 hrs para eventos. *Consumo mínimo en horario premium $74,880 MXN +25% servicio.

Capacidad 62 sentados / 85 estilo coctel
La tarifa por hora de los espacios privados es determinada según el horario elegido.
Intervalo Lunes-Miércoles Jueves Viernes-Sábado Domingo









Capacidad 87 sentados / 125 estilo coctel
La tarifa por hora de los espacios privados es determinada según el horario elegido.
Lunes-Miércoles Jueves Viernes-Sábado Domingo
Mínimo de 4 hrs para eventos. *Consumo mínimo en horario premium $288,000 MXN + 25% servicio.







Elserviciocanapés genera unambientecálidoycasual,enelcual la gente convive con naturalidad, mientras disfrutan de las terrazas y susincomparablesvistas.
● Losmeserospasanentrelosinvitados ofreciendo cócteles, vino, tragos y deliciosos bocadillos cuidadosamente seleccionados para satisfacer a todos losinvitados.

● Una estación de comida es una gran opción. Similar a un buffet, excepto que permite a los invitados servirse mientrasinteractúanentresí.
● La mesa permanecerá rebosante y vibrante en todo momento. Los invitados podrán servirse a su gusto, mientras los meseros les ofrecen cóctelesybebidas, alolargo de todo elevento.



● A nuestros chefsles encanta mostrar sushabilidadesofreciendoalgunosde los mejores platillos de nuestra cocina. Nuestros chefs interactúan con los invitados, ayudándolos a personalizarsusplatillos.
● Estas estaciones son propicias para casicualquiertipodecocina,nuestras favoritas son sushi Nikkei, tacos gourmet&rawbar.


• Menúscreadosalamedidaacentúan el concepto de tu evento. Servido sobre delicados manteles, arreglos florales eiluminación,elbuffetserá elcentrodeatención.
• Nuestros chefs servirán a cada invitado en el momento que ellos prefieran, permitiendo que disfruten el evento de una forma casual yelegante.

• Los platillos son servidos al centro de la mesa para disfrutar y compartircontusinvitados.
• Ofreciendo una amplia variedad de platillos, es una opción fácil para satisfacerelgustodetusinvitadosy probardetodounpoco.


• Formal y elegante, es la manera clásicadeservirtugranevento.
• El servicio emplatado asegura que todoocurraentiempoyforma,bajo unitinerarioprecisoyplaneado.
• Platillos individuales aseguran que los invitados con restricciones alimenticias se sientan cuidados y consentidos.







El Chef Gonzalo ha creado un menú único exclusivo para los Eventos Quince. Este menú ha impresionado a los muchos invitados que hemos recibido a lo largo de estos 4 años.
Por favor revisa las siguientes opciones y elige lo que tu creas ideal para tu evento.
El chef se complace en proporcionar también menús personalizados adaptables a alergias alimentarias o preferencias especiales. Estos menús se cotizan por separado y el precio puede variar respecto a nuestros paquetes de Dossier.
Las opciones y precios de los paquetes en este Dossier no son modificables. Para solicitudes especiales, es probable que los precios cambien según la solicitud.



UN COCTEL DE BIENVENIDA & DOS OPCIONES MÁS PARA EL EVENTO
RON
BACARDI BLANCO
MATUSALEM PLATINO
WHISKY
JW RED LABEL
BALLANTINES FINEST
VODKA
SMIRNOFF
ABSOLUT BLUE
TEQUILA
TRADICIONAL PLATA
CENTENARIO PLATA
GIN
BEEFEATER
LONDON DRY BOODLES

MEZCAL
CREYENTES JOVEN
400 CONEJOS REPOSADO
VINO TINTO
LAS MORAS
MALBEC
VINO BLANCO
ELENA WALCH
VINO ESPUMOSO
RICCADONNA BRUT
CERVEZA
MEXICAN
REFRESCO
LIMONADA
AGUA
MXN
UN COCTEL DE BIENVENIDA & DOS OPCIONES MÁS PARA EL EVENTO
RON
MATUSALEM CLÁSICO
HAVANA 7
WHISKY
JW BLACK LABEL
CHIVAS REGAL 12
VODKA
TITO´S
ABSOLUT ELYX
TEQUILA
1800 CRISTALINO
MAESTRO DOBEL
GIN
HENDRICKS
TANQUERAY TEN
MEZCAL
AMORES JOVEN
AMORES CUPREATA
VINO TINTO
LAS MORAS
MALBEC
VINO BLANCO
ELENA WALCH
VINO ESPUMOSO
RICCADONNA BRUT
CERVEZA
MEXICAN & INT’L
REFRESCO
LIMONADA
AGUA

Platino $2,160 MXN
UN COCTEL DE BIENVENIDA & DOS OPCIONES MÁS PARA EL EVENTO
RON
MATUSALEM 23
ZACAPA 23
WHISKY
CHIVAS REGAL 15
GLENFIDDICH 15
VODKA
GREY GOOSE
TITO´S
TEQUILA
MAESTRO DOBEL
DON JULIO 70
GIN
LONDON ONE HENDRICK´S
MEZCAL
MONTELOBOS ESPADIN
AMORES LOGIA
VINO TINTO
LAS MORAS
MALBEC
VINO BLANCO
ELENA WALCH
CHAMPAGNE
MOET CHANDON
CERVEZA
ALL BEER
REFRESCO
LIMONADA
AGUA


Etiqueta Plata
$810 MXN
Precio & Porción p/p

Etiqueta Oro
$1,260 MXN
Precio & Porción p/p
COCTEL & CANAPÉS
8 CANAPÉS VARIADOS CHAROLEADOS
4 CANAPÉS DULCES CHAROELADOS
COCTEL & CANAPÉS
QUESOS & CHARCUTERIA
PAN ARTESANAL
12 CANAPÉS VARIADOS CHAROLEADOS
6 CANAPÉS DULCES CHAROLEADOS
ESTACIONES
8 DISPLAY DE CANAPÉS VARIADOS
4 DISPLAY DE CANAPÉS DULCES
ESTACIONES
QUESOS & CHARCUTERIA
PAN ARTESANAL
12 DISPLAY DE CANAPÉS VARIADOS
6 DISPLAY CANAPÉS DULCES

Etiqueta Platino
$1,710 MXN
Precio & Porción p/p
COCTEL & CANAPÉS
QUESOS & CHARCUTERIA
DIP & CRUDITES
PAN ARTESANAL
16 CANAPES VARIADOS CHAROLEADOS
8 CANAPÉS DULCES CHAROLEADOS
2 LATE NIGHT BTES
ESTACIONES
QUESOS & CHARCUTERIA
DIP & CRUDITES
PAN ARTESANAL
16 DISPLAY DE CANAPÉS VARIADOS
8 DISPLAY DE CANAPÉS DUCES
2 LATE NIGHT BITES


Etiqueta Plata
$810 MXN
Precio & Porción p/p

Estación Activa & Buffet
Etiqueta Oro
$1,260 MXN
Precio & Porción p/p
ESTACIÓN ACTIVA
NO DISPONIBLE EN ESTA ETIQUETA
BUFFET
NO DISPONIBLE EN ESTA ETIQUETA
ESTACIÓN ACTIVA
QUESOS & CHARCUTERIA
PAN ARTESANAL
2 ESTACIONES ACTIVAS TEMÁTICAS
1 ESTACIÓN TEMÁTICA DE POSTRE
BUFFET
QUESOS & CHARCUTERIA
3 CANAPÉS VARIADOS CHAROLEADOS
PAN ARTESANAL
1 ENSALADA O SOPA EN BUFFET
3 PLATOS FUERTES EN BUFFET
CANAPÉS DULCES VARIADOS CHAROLEADOS

Etiqueta Platino
$1,710 MXN
Precio & Porción p/p
ESTACIÓN ACTIVA
QUESOS & CHARCUTERIA
PAN ARTESANAL
3 ESTACIONES ACTIVAS TEMÁTICAS
2 ESTACIÓN TEMÁTICA DE POSTRE
2 LATE NIGHT BITES
BUFFET
QUESOS & CHARCUTERIA
DIP & CRUDITES
3 CANAPÉS VARIADOS CHAROLEADOS
PAN ARTESANAL
1 ENSALADA EN BUFFET
1 SOPA EN BUFFET
4 PLATOS FUERTES EN BUFFET
CANAPÉS DULCES VARIADOS CHAROLEADOS
2 LATE NIGHT BITES


Etiqueta Plata
$810 MXN
Precio & Porción p/p

Family Style & Emplatado
Etiqueta Oro
$1,260 MXN
Precio & Porción p/p
FAMILY STYLE (PARA COMPARTIR)
NO DISPONIBLE EN ESTA ETIQUETA
EMPLATADO
2 CANAPÉS VARIADOS CHAROLEADOS
PAN ARTESANAL
SOPA O ENSALADA
PLATO FUERTE
POSTRE
FAMILY STYLE (PARA COMPARTIR)
QUESOS & CHARCUTERIA
ENTRADA
PAN ARTESANAL
ENSALADA
PLATO FUERTE
POSTRE
EMPLATADO
QUESOS & CHARCUTERIA
3 CANAPÉS VARIADOS CHAROLEADOS
PAN ARTESANAL
SOPA O ENSALADA
PLATO FUERTE
POSTRE

Etiqueta Platino
$1,710 MXN
Precio & Porción p/p
FAMILY STYLE ( PARA COMPARTIR)
QUESOS & CHARCUTERIA
DIP & CRUDITES
ENTRADA
PAN ARTESANAL
ENSALADA
PLATO FUERTE
POSTRE
2 LATE NIGHT BITES
EMPLATADO
QUESOS & CHARCUTERIA
DIP & CRUDITES
3 CANAPÉS VARIADOS CHAROLEADOS
PAN ARTESANAL
SOPA
ENSALADA
PLATO FUERTE
POSTRE
2 LATE NIGHT BITES



Disponible en Cualquier Paquete
❖ Quesos & Charcutería… $180 mxn p/p
❖ Dips & Crudités… $144 mxn p/p
❖ Canapés… $72 mxn pza
❖ Sopa… $144 mxn p/p
❖ Ensalada… $144 mxn p/p
❖ Plato Fuerte… $540 mxn p/p
❖ Postre… $144 mxn p/p
❖ Barra de Ceviche… $216 mxn p/p
❖ Raw Bar… $270 mxn p/p
❖ Late Night Bite… $180 mxn p/p




❖ Degustación de Agaves: Una variedad de los mejores tequilas y mezcales con un maestro del tequila que explica los matices de sabor a los invitados mientras disfrutan. Los precios tienen un descuento del 25% respecto a carta. Al final de la noche, puedes llevarte las botellas abiertas a casa.
❖ Slackliner: Puedes disfrutar del equilibrista #1 de México caminando sobre la cuerda floja en medio de tu evento. Ve a nuestro Instagram para ver videos. $5,400 mxn
❖ Percusionista: Nuestro increíble percusionista siempre es un éxito, toca junto al DJ para aumentar el ambiente de la fiesta y hacer que la gente se ponga de pie y baile al ritmo del tambor y la música. $9,000 mxn.
❖ Pirotecnia: Fuegos artificiales fríos que chispean alrededor de Quince durante ese momento especial, son el factor sorpresa que permanecerá en sus recuerdos para toda la vida. $450 mxn por bengala.
❖ Mariachi: Solo disponible si rentas toda la Terraza Este u Oeste de Quince. El precio depende de cuánto tiempo y el nivel de mariachi que elijas.


$1,080 mxn
ETIQUETAS DEL BAR
ETIQUETAS DE COCINA
25% Descuento en tarifa de renta.
50% Descuento en tarifa de renta.


$1,530 mxn
$1,710 mxn
75% Descuento en tarifa de renta.
100% Descuento en tarifa de renta.


25 % de servicio es una recompensa para tu equipo de eventos y staff quienes hacen esto posible.
El equipo culinario de Quince está dirigido por nuestro chef ejecutivo Gonzalo Martínez, originario de San Miguel de Allende y quien fuera un chef ejecutivo en el famoso Rainbow RoomenNuevaYork.
Él está allí para la mayoría de los eventos, personalizando platillos y creando una experiencia memorable paratiytusinvitados.
La mixología de Quince se encuentra en el Top # 10 en México, nuestro mixólogo Rodrigo Vidales, fue galardonado recientemente con el 1er lugar en la competencia de mixología “WorldClassMexic0”.
Élysuequipocrearáncóctelesapartir delascombinacionesmásinesperadas quedeleitarántupaladaryelespíritu detodos.
Lashostessrecibiránalosinvitadoscon una sonrisa. Nuestro staff amable y atento consentirá a tus invitados y se asegurará de que todo fluya durante su estancia en Quince. El gerente, los capitanes, los meseros ylos bussers los mantendrán satisfechos, con el objetivo constante de que ningún invitado levanteunamanoparaseratendido.








Reserva & Confirmación de Tu Evento
Contrato acordado y firmado.
Pago anticipado del 50% de alimentos, bebidas y servicio.
90 Días Antes
Segundo pago anticipado del 50% de alimentos, bebidas y servicios.
30 Días Antes
Conteo anticipado de invitados finales.
Pagos adicionales de alimentos y bebidas, incluidos alquileres o decoración por terceros.
7 Días Antes
Pago de invitados adicionales a la lista Final/Final de invitados y consumos extras.
Depósito reembolsable en garantía del 10% por daños.
Todos los pagos son no-reembolsables a menos que Quince cancele el evento.
Solo se aceptan transferencias o efectivo. Lo sentimos, no recibimos tarjetas de crédito.




Después de finalizar la reserva, comenzamos las reuniones para finalizar los menús de alimentos y bebidas.
dos invitados, preferiblemente antes de la sesión de planificación formal.
Una Sesión de Planificación Formal es idealmente 90 días antes del evento con el objetivo de determinar el diseño, estilo y decoración, menús, opciones de servicio y solicitudes y expectativas adicionales para el evento.
La Sesión de Planificación Final es idealmente dos semanas antes del evento con el objetivo de finalizar todos los detalles, incluida la lista de invitados.
❖ El conteo Final/Final de invitados se debe entregar a más tardar 7 días antes de la fecha del evento.
❖ Los invitados que sobrepasen el recuento Final/Final el día del evento, deberán pagar una tarifa del 25% sobre el precio de los paquetes.




Haz clic en este enlace para ver algunas preguntas breves que nos ayudarán a comprender y brindarte las mejores opciones según tus preferencias y necesidades para tu día especial en Quince.





❖ Infladitas de Cordero Braseado
❖ Mini Sopes Mixtos, Tinga de Pollo, Cerdo BBQ, Berenjena Rostizada (1 sabor a elegir)
❖ Tarta de Elote Amarillo y Parmesano, Mayonesa Picante
❖ Arancini de Hongos y Trufa, Queso Parmesano Grana Padano, Tomillo


❖ Shots de Ceviche de la Casa, Pesca del Día, Leche de Tigre, Edamame, Shichimi Togarashi
❖ Pastelito de Cangrejo Jumbo, Mayonesa Criolla
❖ Bites de Cremoso de Langosta (extra 50 pesos)
❖ Camarón Cajún Pochado (extra 30 pesos)
❖ Mini Bao de Cerdo Rostizado
❖ Crostini de Hamachi Pochado, Prosciutto Crujiente, Aioli de Yuzu
❖ Tapa de Pulpo a la Parrilla, Salmorejo de Tomate, Ajo Tostado
❖ Mini Bites de Hamburguesa, Pan Brioche, Queso Cheddar Añejado, Cebollitas a Baja Temperatura con Tomatillo y Serrano


❖ Crema de Elote con Potsticker de Camarón
❖ Vichyssoise de Papa Silvestre con Poro, con un Toque de Aceite de Trufa de Invierno
❖ Capuchino de Lenteja con Raviolo Frito de Queso, Espuma de Parmesano
❖ Sopa de Cebolla Blanca con Queso Camembert Artesanal
❖ Crema de Alcachofa, Queso Suave de Cabra, Aceite de Cebollín
❖ Consomé de Tomate, Tortellini de Cangrejo a la Veracruzana
❖ Crema de Espárragos con Jengibre, Croqueta de Jamón Serrano
❖ Gazpacho Tradicional
❖ Sopa Fría de Zanahoria con Manzana Verde al Curry
❖ Escabeche de Pulpo Estilo Carpaccio con Té de Cítricos, Hierbas Finas, Mousse de Aguacate


❖ Carpaccio de Filete de Res Sellado, Ensalada de Arúgula y Champiñones Marinados
❖ Salmón Pochado a la Grecque, Lenteja Beluga, Jus de Cilantro Criollo, Crema Fresca
❖ Terrina de Berenjena, Consomé de Tomate, Crema de Pimiento
❖ Media Luna de Camarón, Aguacate, Tomate Concassé, Albahaca Púrpura
❖ Tartar de Atún, Salsa de Soya y Miel, Serrano, Vegetales Salteados Crujientes
❖ Bites de Cerdo Braseado, Polenta a la Parrilla, Relish de Cebolla Roja Encurtida y Habanero, Salsa de Frijol Negro


Etiqueta Plata
Pechuga de Pollo Orgánico, Pimiento del Piquillo Relleno de Queso Fresco, Mole, Crema de Queso Picante
Roulade de Pollo, Curry Verde de Pistache, Risotto de Xoconostle
Filete de Cerdo al Horno, Coliflor al Curry, Salsa de Ají Amarillo
Mixiote Vegetariano, Hongos Portobello, Salsa de Chiles Endémicos Secos, Puré de Papa Rústico
Etiqueta Oro
❖ Filete de Res a la Parrilla, Puré de Papa, Fricassé de Hongos y Brisket, Salsa Perigord
❖ Grouper a la Plancha, Salsa de Cebolla Rostizada y Almendras Estilo Veracruz, Risotto de Limón
❖ Trip Tip Ssamjang Marinado a la Parrilla, Doble Papa Duchesse Horneada, Pesto de Cilantro
❖ Robalo a la Talla Marinado en Aioli de Chiles, Cebolla Rostizada, Almendra, Puré de Papa Al Cilantro
Etiqueta Platino
❖ Filete de Res Prime Rostizado, Langostino a la parrilla, Mousseline de Papa Trufada, Jus de Vino Tinto Local
❖ Hamachi al Sartén, Gnocchi de Zanahoria y Jengibre, Crema de Langosta y Esencia de Armagnac
❖ Pato Pekín Marinado en Harissa, Coles de Bruselas a la Naranja, Salsa Gastrique
❖ Rib Eye a las Brasas, Costilla Corta Braseada, Hongos de Recolección, Puré de Colinabo y Doble Crema
❖ Blackened Totoaba, Macarrones y Queso, Relish de Piña Rostizada
❖ Picante de Langosta, Langosta en su Jugo “Sudado” con Crema de Ají amarillo al Pernod (Precio puede variar)

❖ Pastel Molten de Chocolate
❖ Pastel de Elote Dulce
❖ Pastel Black Forest
❖ Pastel de Chocolate sin harina semiamargo
❖ Trio de Sorbets
❖ Galletas Artesanales
❖ Chocolateria
❖ Tarta de Banana Foster
❖ Pavlova & Frutos Rojos
❖ Macarrones
❖ Tiramisú


❖ Cheesecake de Pie de Manzana
❖ Cheesecake de Zarzamora
❖ Cheesecake de Baklava


Gracias por pensar en Quince para tu día especial, ¡Esperamos celebrarlo contigo!


