EL LAGO

![]()

A haven for families, a foundation for community, welcome to El Lago. The newest community of 16 villas within Querencia, El Lago showcases architectural innovation, thoughtful design and exceptional craftsmanship throughout.

Our on-site design and architectural team drew inspiration from the surrounding Querencia lake, Sea of Cortez, mountains and arroyo for each single-family villa within El Lago.
Located centrally within the Querencia masterplanned community, El Lago features 16 single-family villas with vertical living layouts of two and three levels – the first of its kind within Querencia –maximizing views and social space for families and friends. Inspired by the Baja with welcoming and grounded earth tones, the residences offer modern living and timeless elegance within Los Cabos’ most vibrant private community.

FUTURE CONDOMINIUM HOMES EL VALLE 7 - 10

Ascendant Villas
Descendant Villas











All content herein, including the description of the real estate product, amenities and specifications may change without notice. Furniture not included.



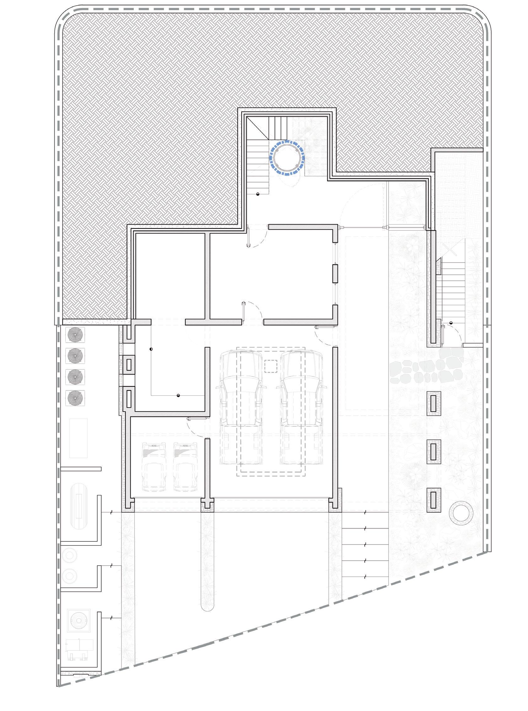
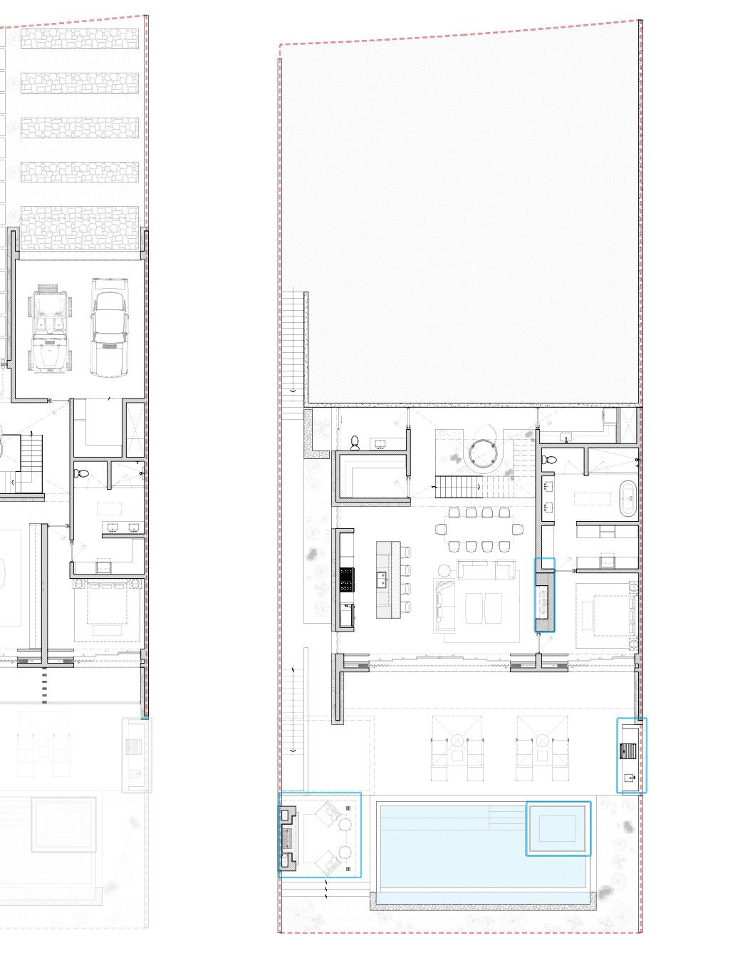
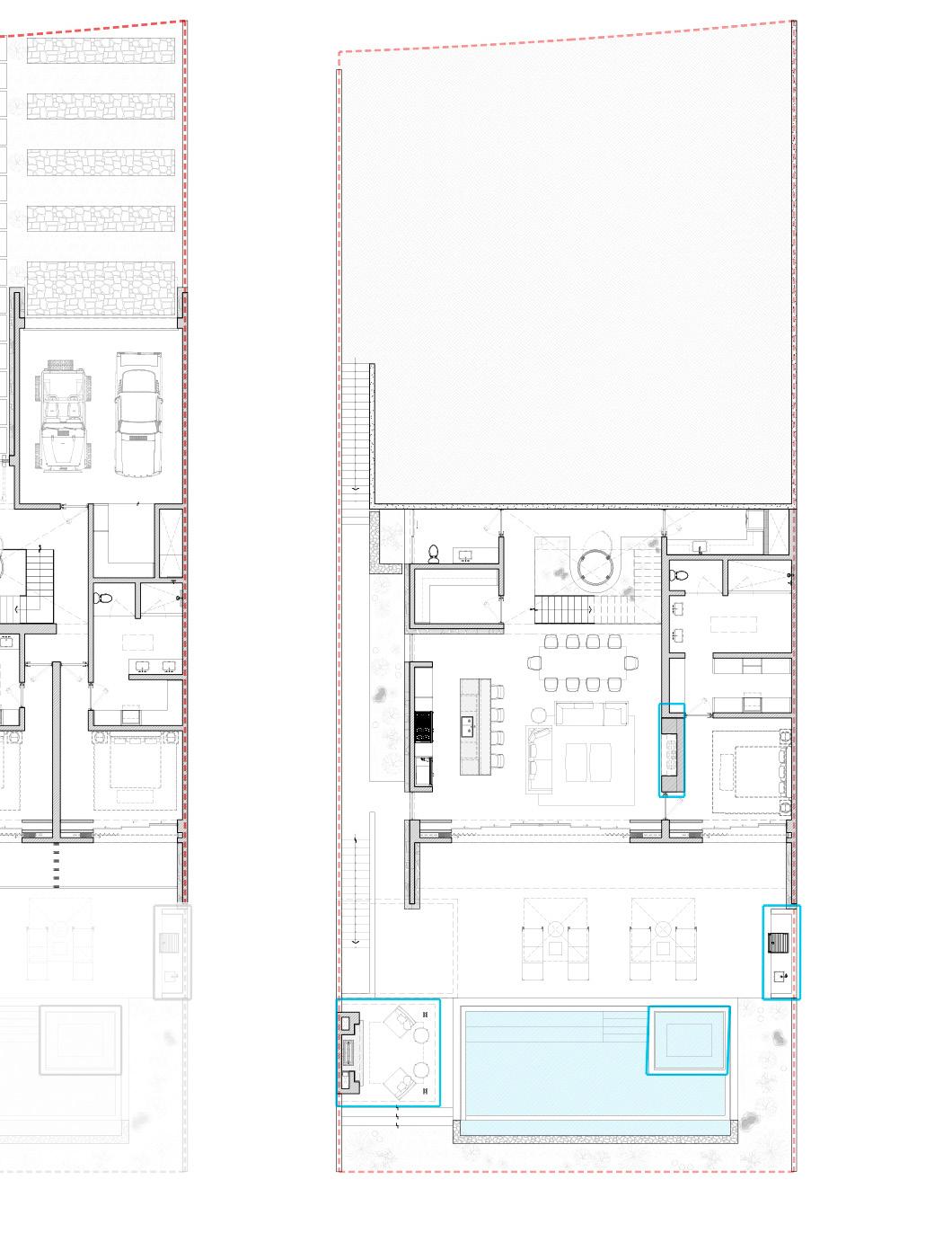
Beds: 3 Baths: 3 Full, 1 Half Total living space Sq. Ft: 6,597 A/C Sq. Ft: 4,478 Covered terrace Sq. Ft: 1,970

All content herein, including the description of the real estate product, amenities and specifications may change without notice. Furniture not included.

FIREPIT UPGRADE POWDER ROOM GREAT ROOM LIVING ROOM ELEVATOR
FIREPLACE UPGRADE
DINING

FIREPLACE UPGRADE
OUTDOOR DINING
LEVEL 02

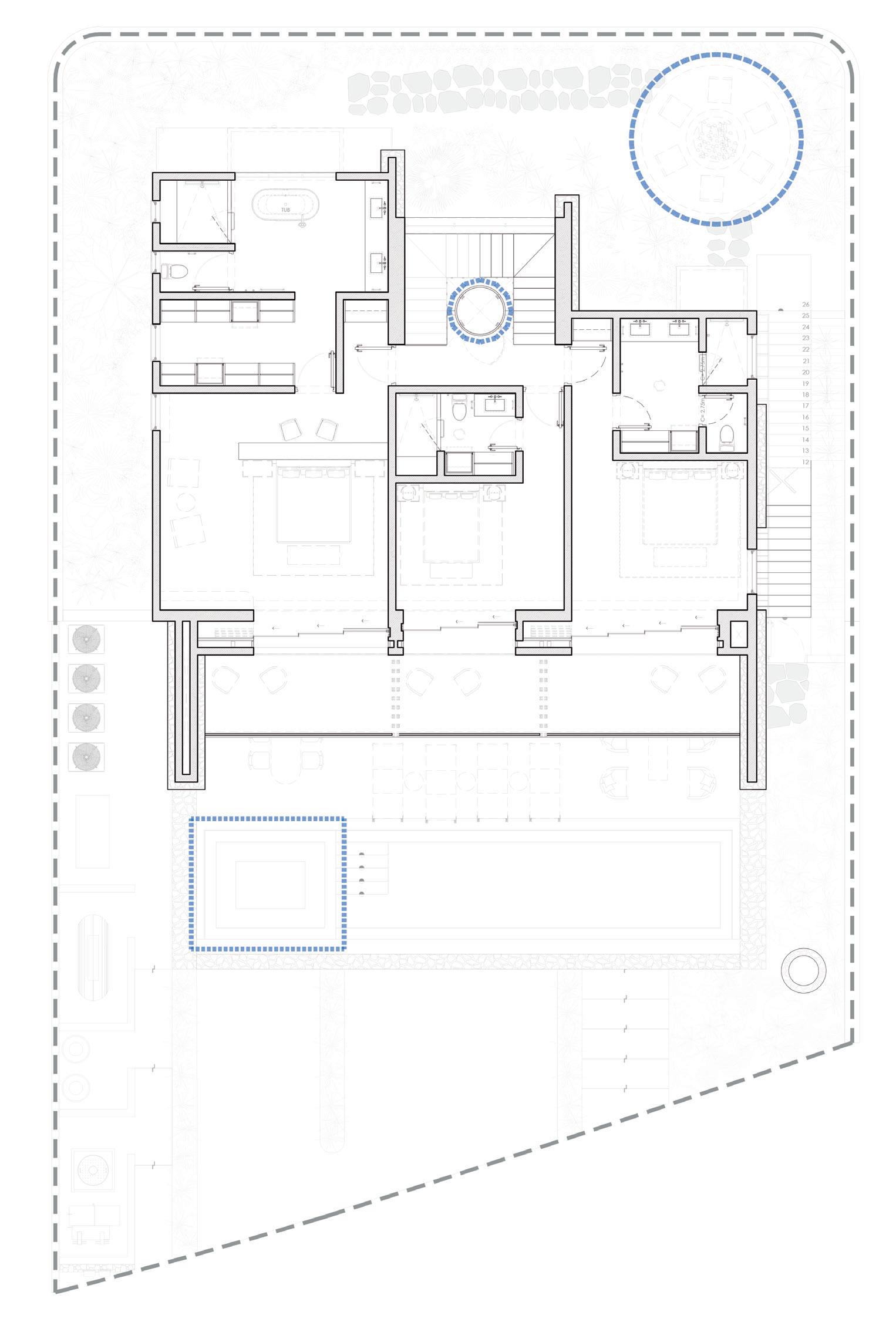
PRIMARY BEDROOM
PRIMARY BATH TERRACE
Beds: 4
Baths: 4 Full, 1 Half
Total living space Sq. Ft: 6,597
A/C Sq. Ft: 4,478
Covered terrace Sq. Ft: 1,970 Garden Sq. Ft: 1,664
Beds: 3
Baths: 3 Full, 2 Half
Total living space Sq. Ft: 5,069
A/C Sq. Ft: 4,191
Covered terrace Sq. Ft: 878
Garden Sq. Ft: 1,307
All content herein, including the description of the real estate product, amenities and specifications may change without notice. Furniture not included.

KITCHEN

WALK-IN CLOSET
DINING SHOWER
BATH 2
FIREPLACE UPGRADE
GREAT ROOM
WALK-IN CLOSET TERRACE
POWDER ROOM
BATH 3
FAMILY ROOM
BED 2
OUTDOOR DINING
BED 3
Beds: 3
Baths: 3 Full, 2 Half
Total living space Sq. Ft: 5,405
A/C Sq. Ft: 4,326
Covered terrace Sq. Ft: 1,078
Garden Sq. Ft: 1,157


BATH
WALK-IN CLOSET WALK-IN CLOSET PRIMARY BEDROOM
Beds: 4
Baths: 3 Full, 2 Half
Total living space Sq. Ft: 5,405
A/C Sq. Ft: 4,326
Covered terrace Sq. Ft: 1,078
Garden Sq. Ft: 1,157

WALK-IN CLOSET

WALK-IN CLOSET PRIMARY BEDROOM PRIMARY BATH

Querencia is alive. For those in search of a community-minded home where they can spend time with children, grandchildren, extended family and friends, Querencia is a dream come true. Active and vibrant, Querencia combines outdoor recreation, community, a zest for life and life-long learning in an environment known for its dramatic and inspiring beauty.
· 18-hole Tom Fazio Signature Golf, Driving Range and Clubhouse
· Sprawling 70,000 sq. ft. Club Village
· Private Beach Club on the best Surf Break in Cabo
· Fitness & Wellness Programming
· Eleven on-site restaurants
· The Spa At Querencia
· Nearly 15 miles of hiking and biking trails
· Court play (tennis, pickleball and padel)
· Kid Friendly - Teen and Kids Clubs
· Speaker Series
· Concierge & Property Management
· 24/7 Security
· Onsite Medical Office










content herein, including the description of the real estate product, amenities and specifications may change without notice.