Portfolio_Pimchanok Robroo

Page 1

.
portfolio
Pimchanok Robroo

Pimchanok Robroo, Pim

Architecture student

Silpakorn University

Birth : 13 Aug 2001

Age : 22

Nationality : Thai

Address : 99/194 Jirathip Village Sukapiban5 Rd. Saimai, BKK 10220

Contact

Email : pim2001@hotmail.co.th

Tel : 0929662998

Work

twitter : @pymnos freelance illustrator

Education

2013 - 2018 Horwang School

2019 - 2024 Silpakorn Uni. B.Arch, Faculty of Architecture

Languages

Thai : Native

English : Good

Korean : Basic

profile

project design

1st year -basic design-shelter design -sitting design-local house design

2nd year -living upon the play

- apartment design - condominium design -house design

3rd year -bus terminal-workplace Phahon Yothin -art academy-highrise building -shopping mall design

4th year -house prefab-Silom iconic -RPACC-green room hospital

internship ANONYM studio

5th year -thesis

My Abilities computer skills

Autodesk Autocad Enscape

Autodesk Revit

Adobe illustrator

Trimble Sketchup Microsoft office

Lumion

other skills

graphic design drawing digital painting model making

Pimchanok Robroo
01 04 02 1 4 7 10 13 16 28 01 living upon the play 02 green room 03 RAPPCC 04 together house 05 the silom iconic 06 cotto design contest 07 mini thesis : Dog in Town 08 thesis : Time travel by solo travelers 09 japanese arch card 10 internship 11 art work 18 21 26 30
06 03 05 table of content

living upon the play

commercial building 01

living upon the play

/ fop / perfectionist

commercial building
NEPHEW (25)
ตองการรับรูธรรมชาติโดยการมอง energetic
ตองการรับรูธรรมชาติจากการเขาไปสัมผัส โปรเจ็คนี้เปนการรีโนเวทตึกแถวเกายาน เจริญกรุงเพื่อใชเปนที่อยูอาศัยและเปนตึก สำหรับธุรกิจ
โดยโจทยมีการกำหนดตัว user เปนคุณ ลุงกับหลานชายที่รวมทำธุรกิจดวยกัน จึงทำการเริ่มคิดจากการกำหนดบุคลิกคราวๆของ user และกำหนด ตัวธุรกิจ start up ขึ้นมา เปนธุรกิจ perfume labที่มีทั้งระบบ ออนไลนและหนาราน มีโซนแล็ปสำหรับใหลูกคาไดลองผสมน้ำหอมเอง โดยเฉพาะและมีเรือนกระจกสำหรับปลูกดอกไม และในสวนพักอาศัยก็ตองตอบสนองความตองการของบุคลิกที่ตางกัน ของตัว user ดวยเชนกัน
UNCLE (60)
gentle
/ easy-going / kind
start up
โดยโปรเจ็คนี้ไดมี intention เสริมอีกหนึ่งอยากคือ ตองการสราง space ที่ไมมีภายในภายนอกแบงแยกชัดเจน ดังนั้นจึงมีการแทรก court พื้นที่สีเขียว หรือชองเปดเขาไประหวางฟงกชั่นตางๆ ทำใหผูใชงานสามารถสัมผัสไดทั้ง บรรยากาศแบบ in door และ out door สลับกัน ตรงกับความตองการของ user หลักของโครงการซึ่งก็คือตัวคุณลุงและหลาน ซึ่งชื่นชอบในธรรมชาติเชน เดียวกันแตตองการรับรูถึงธรรมชาติตางกัน พื้นที่สีเขียวบางจุดจึงสามารถเขาไป สัมผัสหรือมีสวนรวมกับธรรมชาติได ในขณะที่บางจุดสามารถรับรูผานการมอง เพียงเทานั้น

and health care

green room
02
hospital

เนื่องจากจำเปนตองใชเวลาอยู

ที่นี่ในระยะหนึ่ง หากสามารถสรางบรรยากาศใหเหมือนการ

พักฟนอยูที่บานไดก็คงดี จึงมีความคิดที่จะเพิ่ม communication ระหวาง

คน-คน และ คน-ธรรมชาติ โดนใช tools และ method

ที่คิดขึ้นมา

green
hospital and health care connect related are with common space devide common space level with gentle lamp to keep privacy
longstay health care โดยมีจุดประสงคหลักที่จะสรางความ คุนเคยและบรรยากาศผอนคลายที่ไมเหมือนกับโรงพยาบาล
room
โปรเจ็คนี้เปนการออกแบบโรงพยาบาลควบคูไปกับตัว
ทั่วไปใหกับคนไขที่มาใชงาน

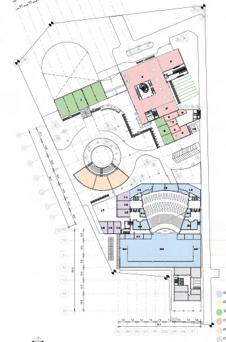
rattanakosin performing art and convention center

RAPPCC

03

rattanakosin performing art and convention center

RAPPCC

EXPLODED DIAGRAM

FUNCTION

3rd FLOOR

- learning center co-working space meeting room

- grand hall studio dressing room

2nd FLOOR

- convention and exhibition hall

- grand hall hall storage room dressing room

1st FLOOR

- shop restaurant

- convention and exhibition hall hall staff room teachnical room

- amphitheater

- admin

BASEMENT

- shop retail

- parking

เนื่องจากบริเวณไซตของโครงการมี chatacter ที่คอนขางโดดเดน และแตกตางกันในแตละมุมมองจึงมีแนวคิดในการออกแบบ พื้นที่การใชงานจาก context ของไซต

EXPLODED DIAGRAM

ไอเดียหลักของการออกแบบคือ ตองการใหเกิดการเลนระดับเชื่อมตอกันในแตละ ฟงกชั่นตั้งแตชั้นใตดินขึ้นมา โดยใหมุมมองหลักเปดออกสูวิวริมแมน้ำ ซึ่งการแบงระดับจะแบงไดเปน 3 ระดับ คือ ชั้นใตดิน ไดแก รานคาและลาน อเนกประสงค เชื่อมตอขึ้นมาโดยทางลาดที่ชั้น 1 ซึ่งเปนรานอาหาร และสวนของ amphitheater ซึ่งชั้นบนสุดของที่นั่งของ amphitheater จะไปสิ้นสุดที่พื้นของ ชั้น 2 พอดี ทำใหผูใชงานบนชั้น 2 สามารถยืนชมการแสดงที่จัดขึ้นบริเวณ amphitheater ชั้น 1 ไดดวย

clusterd house

Grandpa +Grandma

Son +Dauther

Aunt +Niece

Dad +Mom

PLAN 1st FLOOR together

โปรเจ็คนี้เปนการออกแบบบานแบบ clustered สำหรับครอบครัวใหญ โดยมีโจทยใหออกแบบ บานสามหลังที่อยูติดกัน โดยผูอาศัยประกอบดวย คุณปู คุณยา พอ แม ลูกสาว ลูกชาย ปา และ หลานสาว เริ่มตนจากการจับกลุมเพื่อแยกเปนบาน 3 หลัง ไดแก 1. คุณปู+คุณยา 2.พอ+แม 3.ลูกสาว +ลูกชาย 4.ปา+หลานสาว โดยใหกลุม คุณปู+คุณยา และ ปา+หลานสาว เปนบานหลังเดียวกัน เพื่อใหสะดวกตอการดูแลผูสูงอายุ แตใชทางเดิน+น้ำเพื่อแยกความเปนสวนตัวระหวาง 2 พื้นที่
house
04

PLAN 2nd FLOOR

การจัดวางผังเปนการวางแบบมี court
การตกแตงภายในตองการใหมีความ cozy ผสมกับบรรยากาศแบบ tropical มีชองเปดคอนขางมากเพื่อชวยในการถายเทของอากาศสำหรับชวงกลางวัน
ตรงกลางซึ่งเปนสระวายน้ำรวมและสวน ขนาดเล็ก ทำใหบานแตละหลังมีจุดเชื่อมกันเปนพื้นที่สวนกลางที่จะออกมาใชรวมกัน

the Silom iconic

05
mixused condominium

mixused condominium

the Silom iconic

เนื่องจากบริเวณไซตเปนจุดศูนยกลางที่รวบรวมผูคน จากหลายๆเสนทางจึงตั้งใจที่จะออกแบบพื้นที่ซึ่งเปดรับผูคน และสรางทางสัญจรใหสะดวกมากขึ้น จึงมีไอเดียที่จะสรางการทำงานรวมกันกับเมืองและมอบ public plaza ใหกับเมือง เพื่อเพิ่มทางเดินเชื่อมตอไปยัง landmark ซึ่งประกอบไปดวยศูนยการคาตางๆ และสถานีรถไฟ mrt
แบง 2 ฟงกชั่นออกเปนตัวทาวเวอร 2 ฝง ไดแก สวน residential และสวน office ซึ่งทั้งสองทาวเวอรมีโครงสรางเชื่อมตอกันดวย shared facilities ที่วางอยูบนสวน office และพยายามแทรกพื้นที่สีเขียวเขาไป นอกจากในสวน ของชั้น 4 ซึ่งเปนตัวสวนสาธารณะสำหรับผูใชอาคารแลวยังมีการ subtract อาคาร เพื่อไลระดับพื้นที่สีเขียว

cotto

เนื่องจากสถานการณแพรระบาดของ Covid-19 ทำใหวิถีชีวิตเปลี่ยนไป โดยสวนมากจะใชชีวิตและทำงาน(work from home)อยูภายในพื้นที่สวนตัว ของตนเพื่อปองกันการแพรระบาด จึงไดแนวคิดที่จะนำเอาพื้นที่ทำงานและพื้นที่
green space ทำใหรูสึกเปนสวนหนึ่งกับธรรมชาติ และมีการออกแบบแบบยั่งยืนโดยการเปด ALLTOPIA
EXPLODED DIAGRAM
พักผอนมาติดกันและเพิ่มความยืดหยุนโดยการขั้นกลางดวยพื้นที่
design
06
contest
SECTION PLAN

Make a statement / Ask a question / Raise the problem

โดยเฉพาะในสถานการณการแพรระบาดของโควิด

ระเบียบสุนัขใหอยูเปนที่เปนทางตามจุดที่กำหนดไวไดก็จะงายตอเจาหนาที่ที่จะเขามาควบคุมดูแลในสวนของวัคซีนและการทำหมัน รวมถึงการนำสุนัขไปที่ศูนยพักพิงระยะยาวเพื่อดูแลตอ การจัดการปญหาสุนัขจรจัดอยางยั่งยืนควรใชหลัก

จากการทำแบบสอบถามคนจำนวน 100 คน พบวา บริเวณสวนใหญที่มักจะพบกลุมสุนัขจรจัดนั้นแบงเปนสถานที่หลักๆไดดังนี้ 40% บริเวณชุมชน/ที่พักอาศัย 31% บริเวณริมถนน 19% บริเวณตลาดสด 10% บริเวณอาคารหรือพื้นที่ที่ถูกทิ้งรกราง และบริเวณอื่นอีกประปราย เชน บริเวณวัด หนาเซเวน หรือบริเวณพื้นที่โลงที่ยังไมถูกพัฒนา Community Roadside Fresh Market Abandoned Places สุนัขจรจัด ไมใชสุนัขปา โดยสวนใหญจะเปนสุนัขบานที่ถูกเลี้ยงมากอน แตภายหลังถูกทอดทิ้ง เพราะเมื่อสุนัขโตแลวไมไดนารักอยางที่เจาของคิดเอาไว
เจาของบางคนกลัวติดโควิดจากสัตว บางคนกลัวทำสุนัขติดเชื้อ บางคนตองกักตัวหลายวัน หรือบางคนไดรับ ผลกระทบทางเศรษฐกิจ
ทั้งหมดนี้เปนสาเหตุสำคัญที่ทำใหในชวง 2 ปที่ผานมานี้จำนวนสุนัขจรจัดเพิ่มขึ้น นั่นหมายความวา หากไมมีการควบคุมจำนวนสุนัขดวยการ “ทำหมัน” จำนวนสุนัขจรจัดอาจเพิ่มขึ้นไปอีก ยอมทำใหเกิดความเสี่ยงตอโรคพิษสุนัขบาเพิ่มขึ้นตามมาได เราจะสามารถชวยเหลือใหสุนัขถูกควบคุม มีที่อยูอาศัยหลบแดดหลบฝนชั่วคราว เพื่อใหงายตอการจัดการของเจาหนาที่ดวยการออกแบบทางสถาปตยกรรม ไดหรือไม ?
ดูแลไมไหวเลยตัดสินใจนำไปปลอยในชุมชนหรือวัด
พยายามจัดระเบียบ และยกระดับคุณภาพชีวิตทั้งคนในชุมชนและสุนัข เพื่อใหสุนัขจรจัดในชุมชนนั้นมีที่หลบแดด หลบฝน ขณะเดียวกันก็อยู ใหเปนที่เปนทาง ไมเกะกะถนน แตจะตองมีความยืดหยุนและไมเบียดเบียนชุมชน
“CNVR” ดังนี้
การจับสุนัขและแมวจรจัด
การทำหมัน เพื่อควบคุมจำนวนสัตว V-Vaccine การฉีดวัคซีนปองกันโรคพิษสุนัขบา ซึ่งควรจะฉีดกระตุนทุก ๆ ป
การนำกลับไปที่เดิม เพื่อปองกันสุนัขจรจัดหนาใหมที่จะเขามาแทนที่
ก็จะเกิดปญหาสัตวจรจัดนี้ไมจบสิ้น จะเปนการดีหาก จะมีแนวทางการปรับทัศนคติเกี่ยวกับแนวคิดการใหคุณคาที่มีตอสัตวตอไป
: อะไรเปนปจจัยใหสุนัขมารวมกลุมกันที่บริเวณดังกลาว Community Roadside Fresh Market Abandoned Places People Food Safe Shelter Solitary Solution
อาจเปนเพียงที่พักพิงเพียงชั่วคราวเทานั้น เมื่อสามารถจัด
C- Catch
N-Neuter
R-Return
การแกปญหาสัตวจรจัดที่ผานมานั้นเปนการแกที่ปลายเหตุคือมีการรับเลี้ยงสัตวจรจัดหรือกำจัดทิ้งซึ่งหากไมไดรับการแกไข ที่ตนเหตุนั่นคือความคิดความเชื่อของคนในสังคม
KEYWORD

DESIGN

07

mini thesis

D Gs in TOWN D Gs in TOWN

How to help stray dogs in your locality?

ตัว shelter มีการออกแบบเพื่อกันแดดกันฝนใหสุนัขจรจัด โดยมีแนวคิด ในการออกแบบใหเปนกึ่ง sculpture + green เพื่อใหสามารถนำไปวางในเมือง ไดโดยยังมีประโยชนในการเพิ่มพื้นที่สีเขียวและเปนพื้นที่นั่งพักผอนไดอีกดวย โดยรูปรางของตัว shelter จะไมแนนอน มีการปรับคละแบบโดยคอนขางจะ free form แตมีขนาดมาตรฐานที่สุนัขสามารถเขาไปอาศัยอยูได และมีถาดใส อาหารภายในเพื่อเปนตัวลอใหสุนัขเขามาภายใน shelter รูปแบบการจัดวางในแตละตำแหนงจะไมเหมือนกัน เชน ในบริเวณพื้นที่วาง จะมีการจัดวางเปนกลุม ในขณะที่บริเวณริมถนนจะมีการวางเรียงกัน ตามทางเดินอยางมีระเบียบ
08
Time traveled by Solo travelers thesis

กลมกลืนเขากับวิถีชีวิตของชาวบานในบริเวณพื้นที่โครงการ รวมถึงดึงเอาเอกลักษณ ของศิลปะวัฒนธรรมทองถิ่นแบบดั้งเดิมออกมาใชในการ ยอนเวลา อีกดวย

Time travel by solo travelers หรือยอนเวลาผานสถาปตยกรรม

ที่ชวนใหนัก ทองเที่ยวที่ชื่นชอบการเดินทางคนเดียวไดเดินทางมารับประสบการณการทองเที่ยวที่ได พักผอนใกลชิดกับธรรมชาติเรียนรูวัฒนธรรมและวิถีชีวิตดั้งเดิมของชาวบาน และสัมผัส ภูมิปญญาทองถิ่นซึ่งมีเอกลักษณเฉพาะตัวของชาวกะเหรี่ยงในตำบลเมืองคอง จังหวัดเชียงใหม อยางสะดวกสบายและตรงกับความตองการยิ่งขึ้น ผานการศึกษาพฤติกรรมของกลุม

เนื่องจากในปจจุบันการเดินทางทองเที่ยวคนเดียวนั่นเปนที่นิยมมากขึ้น และมี แนวโนมเติบโตอยางตอเนื่อง
ตองการของนักทองเที่ยวลุยเดี่ยว
สรางความ
จึงอยากใหโครงการนี้เปนโครงการที่ตอบสนองตอทุกความ
(Solo travelers) และทำงานรวมกับชุมชน
โครงการ
กับนักทองเที่ยวลุยเดี่ยว เปนโครงการเชิงวัฒนธรรมกึ่งๆโฮมสเตยขนาดยอม
นักทองเที่ยวลุยเดี่ยว (Solo Travelers) พรอมคำนึงถึงการใชประโยชนของพื้นที่อยางคุมคา Ex trovert s ol o travelers I n trovert s ol o travelers

เมื่อพิจารณาลักษณะทางกายภาพของพื้นที่โครงการจะเห็นวาภายในพื้นที่โครงการ นั้นมีตนไมเดิมอยูเปนจำนวนมาก ทำใหเกิดเปนความตั้งใจในการเก็บตนไมเดิมไวทั้ง หมดเพื่อนำมาใชประโยชนในการสรางพื้นที่ที่มีบรรยากาศเฉพาะ จากการแทรกตัว ของบานพักเขาไปยังพื้นที่วางระหวางตนไมและใชการเพิ่ม-ลดระดับความสูงในการ สรางการเปลี่ยนแปลงทางมุมมองที่ทำใหเห็นตั้งแตลำตนขึ้นไปถึงบนยอดไม อีกทั้งยัง

เปนการเพิ่มความเปนสวนตัวใหแกผูเขาใช

อยางมาก

นอกจากนี้

เนื่องจากสภาพของพื้นที่โครงการที่มีความเปนธรรมชาติ

จึงมีความตั้งใจที่จะทิ้งรองรอยการใชงานใหนอยที่สุด การนำเสาเขามาใช และยกพื้นใตถุนใหสูงขึ้น ซึ่งเปนลักษณะเดียวกันกับเรือนกะเหรี่ยงนั้นชวยลดพื้นที่ ใชสอยในชั้นพื้นดินใหเหลือเพียงสวนที่จำเปนเทานั้น

extrovert solo travelers introvert solo travelers

japanese arch card

09
Internship 10
anonym studio

assignment

- Baan Ladprao site analysis

- Baan Ladprao surrounding model

- Baan MP study design entrance and stairs

- Baan MP restroom detail

- Baan MP electrical diagram

- physical model

commission

แมจะไมไดเรียนทางสายดิจิตอลอารตโดยตรง แตดวยความชอบวาดรูปมา ตั้งแตจำความไดจึงไดฝกฝนดวยตัวเองมาเรื่อยๆจนไดรับโอกาสและความไววางใจ ใหทำงานหลากหลายมากขึ้น ซึ่งนอกจากจะไดพัฒนาทักษะการวาดรูปสรางสรรค ผลงานแลวยังเพิ่มความสามารถดานการติดตอสื่อสารกับลูกคา รวมถึงการจัดการ เวลา เนื่องจากรับงานวาดรูปมาตั้งแตสมัยเรียนจึงตองบริหารเวลาใหดีเพื่อไมใหมีผล กระทบตอการทำงานที่มหาวิทยลัยและยังตองทำงานตามกำหนดการที่ตกลงกับลูกคา อีกดวย

Art works
11

animatic

After Effect

ทดลองทำภาพ
แบบเคลื่อนไหวดวยโปรแกรม
จากการเรียนรูดวยตัวเอง
ไดออกแบบภาพปกและภาพประกอบบางสวนของนิยายชุด คนดีอยากจีบ โดยนักเขียนโคยังงี เปนงานนิยายเรื่องยาวชุดแรกที่ไดทำ
EMAIL : pim2001@hotmail.co.th TEL : (+66)929662998

Turn static files into dynamic content formats.

Create a flipbook
Issuu converts static files into: digital portfolios, online yearbooks, online catalogs, digital photo albums and more. Sign up and create your flipbook.