
CP O R T A
F O L I O



CONTACTO
joansalucas20@gmail.com 993916667
Lima - Perú
APTITUDES
Creatividad
Responsabilidad
Resiliencia
Honestidad
Proactividad
Adaptabilidad
![]()

CP O R T A
F O L I O



joansalucas20@gmail.com 993916667
Lima - Perú
Creatividad
Responsabilidad
Resiliencia
Honestidad
Proactividad
Adaptabilidad
¡Hola! Me llamo Cristina y mi gusto por la arquitectura inició desde que estaba en el colegio gracias a las ferias universitarias que visité
A lo largo de mi trayectoria como universitaria y practicante, me di cuenta de que me gustaba mucho el modelado de espacios interiores, es algo que me apasiona y lo cual deseo perfeccionar poco a poco








CONDOMINIO BICENTENARIO
REMODELACIÓN DE LATARCHÉ
CASA DE LAS 3 MARIAS
TIENDA VISUMANS
REMODELACIÓN KOKETA
DISEÑO DE MUEBLE DIDÁCTICO
DISEÑO DE MOBILIARIO PARA RECEPCIÓN
SECTOR DE UN CEBE OTROS RENDERS

ESTE PROYECTO FUE REALIZADO COMO PRACTICANTE PARA LA CONSTRUCTORA MORENO LINCH, UBICADA EN TRUJILLO.
SE REALIZÓ UNA PROPUESTA DE DISEÑO INTERIOR PARA LOS DEPARTAMENTOS Y ÁREAS COMUNES DEL CONDOMINIO EN BASE A LOS PLANOS EXISTENTES









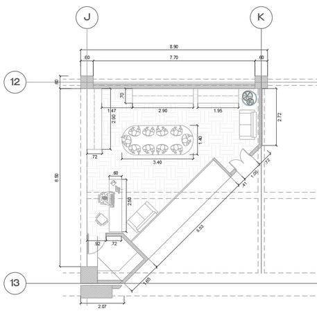
LATARCHÉ ES UN RESTAURANTE UBICADO EN EL DISTRITO DE CARABAYLLO, LA PROPUESTA
BUSCA AMPLIAR LOS ESPACIOS Y BRINDAR UN AMBIENTE CÓMODO A LOS USUARIOS. SE IMPLEMENTÓ UN ESTILO MÁS ATRACTIVO Y ELEMENTOS COMO UN ESCENARIO Y ACABADOS MÁS DINÁMICOS YA QUE EL




PROPUESTA DE REMODELACIÓN DE LA CONOCIDA CASA LAS 3 MARÍAS UBICAD EN ESPAÑA EL DISEÑO PROPUESTO TRATA DE REPRESENTAR UN AMBIENTE FRESCO, DÁNDOLE UN TOQUE RÚSTICO Y MODERNO A LA VEZ, SIN NECESIDAD DE APLICAR TANTA MADERA.




VISUMANS ES UNA TIENDA DE ROPA ENFOCADA EN UNIVERSITARIOS, OFRECIENDO UN ESTILO URBANO, POR ELLO LA PROPUESTA DE DISEÑO SE BASÓ EN ELLO. TAMBIÉN SE PROPUSO UN DISEÑO DE ESCAPARATE
( C O M P L E M E N T A R I O S A D Y A C E N T E S )
EXHIBICIÓN ESCAPARATE DE ISLA
ESTANTES Y COLGADORES DESCANSO
RECEPCIÓN DEPÓSITO ESCAPARATE EN FACHADA


EN CUANTO AL ESC REPRESENTAR EL E LLEVA EL USUARIO ENFOCADO EN EL DEP TOMADO SE BASÓ EN
TIPO DE ESCAPARATE:
ESTRATEGIA DE DISEÑO
(MEDIDA)








KOKETA ES UNA TIENDA DE LENCERÍA LA REMODELACIÓN PROPUESTA FUE ELABORADA
PARA SU SEDE EN REAL PLAZA PRIMAVERA. SE BUSCÓ NEUTRALIZAR LOS COLORES Y PROPONER UN ESTILO MINIMALISTA, A SU VEZ, SE PROPUSO UN NUEVO ESTILO EN EL LOGO.


IMAGEN DE TIENDA TERMINADA





LA PROPUESTA SE BASA EN UN MOBILIARIO PARA DORMITORIO DE UNA NIÑA DE 8 AÑOS, EL ESTILO APLICADO ES ROMÁNTICO Y SE CONSIDERÓ LA SEGURIDAD DEL MUEBLE PARA EL USUARIO.
PLANTA MUEBLE DESPLEGADO - CERRADO CORTE




SUPERFICIE NO POROSA

PINTURA NO CONTIENE COMPONENTES TÓXICOS


RESISTENTE, SIN RIESGO A CAERSE




PROPUESTA DE MOBILIARIO EN BASE EMPRESA "TOCOMADERA".
EL CONCEPTO DE BASÓ EN EL DI SOBRESALIENTE DEMUESTRA LA ENERG INTERCECCIÓN SON OBSTÁCULOS QU PLANTA








Es uctura de drywa con paca de yeso RF con acabado estuco coor cementopuldo

MuebedeMDFenplanchasconacabado tpo formka con coor blanco con repserodeaencón



Uso de la técnica del machimbrado


Uso de tornillos para la unión entre las planchas deMDF D3 D4

La estructura de drywall se une mediante los listones de mdf en el mueble con tornillo de latalargo
Uso de tarugos de madera a presión con colasintética

EL PLANO OBSERVADO ES UN SECTOR DE 1000M2 SELECCIONADO, CON LA FINALIDAD DE PODER PRESENTAR LOS DETALLES DE LA ZONA DE LA BIBLIOTECA, ADMINISTRACIÓN, ALGUNAS AULAS Y PARTE DEL HALL PRINCIPAL.














































ELEVACIONES UNICAMENTE DEL SECTOR

LOS COLORES FUERON ELEGIDOS TOMANDO EN CUENTA LA PSICOLOGÍA DEL COLOR YA QUE ES UN CENTRO DE EDUCACIÓN BÁSICA ESPECIAL.














