Skip to main content

2853 & 2861 Sharon Road

Page 1

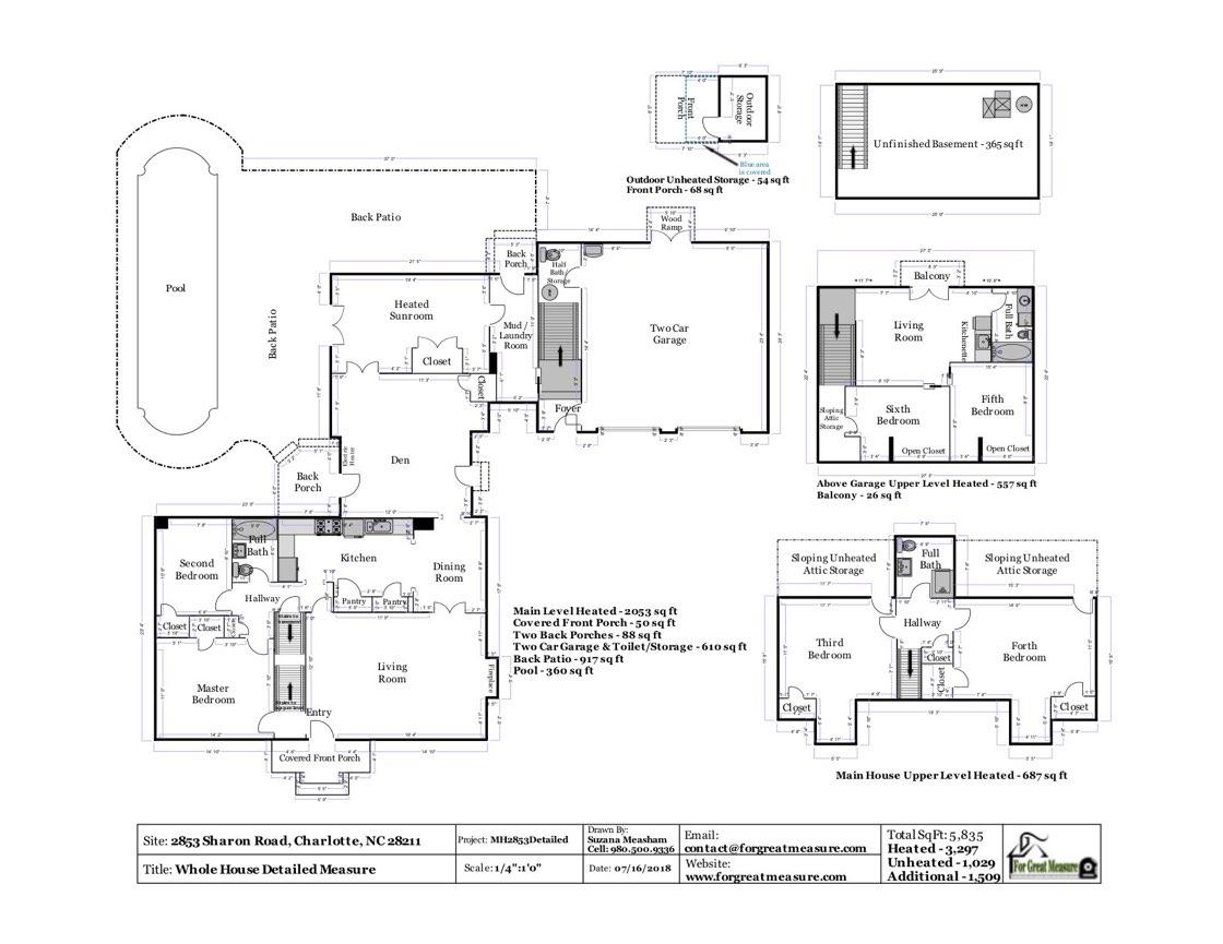
immed OutdoorUnheatedStorage = 54.59 Front Porch - 685qft

: = Unfinished Basement -365sqft |

Back Patio

MainLevel Heated - 2053 sqft Covered Front Poreh -505qft Two Back Porches - 88 sq ft Two Car Garage &Toilet/Storage -6108q ft Back Patio -9175qft Pool- 360 sqft

Fifth Bedroom Open Closet |, J Ormco

Above Garage UpperLevel Heated-5575q Baleony - 26 agft Sloping Unhested | AttieStorage , SlopingUnheated AtticStorage

Main Honse

?tle:
?Title:
UpperLevel Heated -6875qft tes Draven By Email: Total SqFt:5,835 Site:2853 Sharon Road, Charlotte,NC28211 [PrecAntatpopented |StronaMeasham | ME ag measure, Heated goes oy
i yates Website: Unheated -1,029fet
WholeHouseDetailedMeasure Sealess/4"a Datevor/isjaore | Websites sae 22028, Petter

M.8. 3, PG. 219

0.B. 29322, PG. 631 PID #18108108

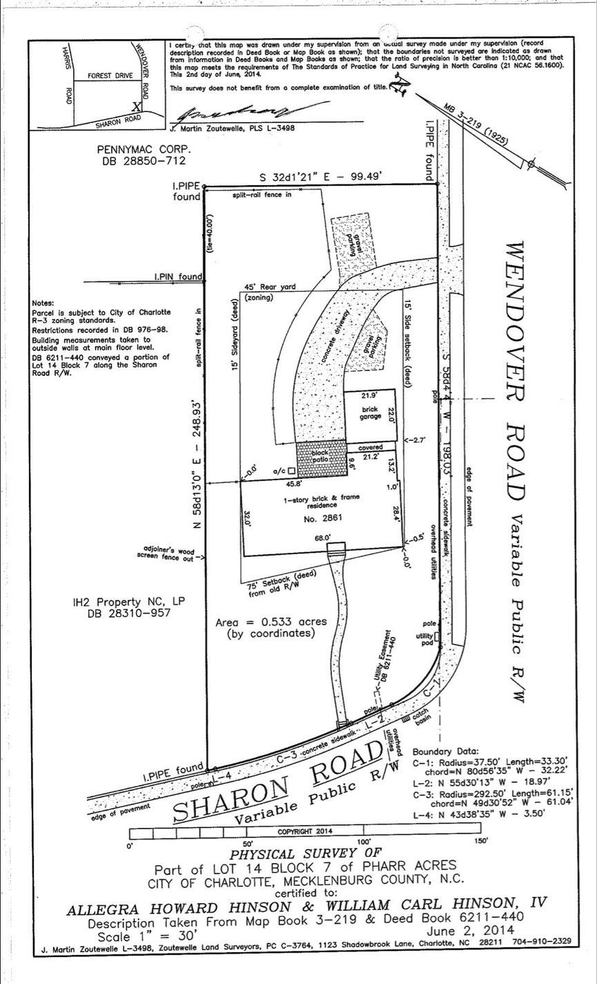
THIS SURVEYDOESNOT REFLEGT A COMPLETE TITLE EXAMINATIONAND IS NOT TOSE USED IN LIEU OF ALEGAL TITLE EXAMINATION ?| CERTIFY THAT THIS MAP WAS DRAWN UNDER MY SUPERVISION FROM AN ACTUAL SURVEY MADE UNDER MY SUPERVISION (DEED DESCRIPTION RECORDED IN BOOK: 32886, PAGE: 904 OR OTHER REFERENCE SOURCE SHOWN HEREON): THAT THE BOUNDARIES NOT SURVEYED ARE INDICATED AS DRAWN FROM INFORMATION REFERENCED ON ADJOINING LOTS OR ADDITIONAL REFERENCES SHOWN HEREON; THAT THE RATIO OF PRECISION IS 1:10,000; AND THAT THIS MAP MEETS THE REQUIREMENTS OF THE STANDARDS OF PRACTICE FOR LAND SURVEYING IN NORTH CAROLINA (21 NCAC 56.1800).? THis DAY OF 2020. THIS WAP IS NOT INTENDED TO MEET GS, 47-30 REQUIREMENTS. SIGNED 4. AREA COMPUTED BY THE COORDINATE METHOD. ROBERT F. LEE, PROFESSIONAL LAND SURVEYOR L-4755 2. ALL DISTANCES ARE HORIZONTAL GROUND (GEODETIC) UNITED STATES SURVEY FEET 4. BEARINGS AND DISTANCES SHOWN IN PARENTHESES, AND PROPERTY SHOWN AS. DASHED WERE TAKEN FROM DEEDS. MAPS OR OTHER PUBLIC RECORD. 5. THIS PROPERTY IS CURRENTLY ZONED R~3. R?3 MINIMUM SETBACK REQUIREMENTS: @RISTING IRON REBAR FRONT= 30? OR AS SHOWN: SIDE YARD= 67; REAR YARD= 45°. SETBACKREQUIREMENTS EXISTING IRON PIPE SEY FORTH INDEEDRESTRICTIONSMAYEXISTFOR THISPROPERTYANDMAYORMAYNOTBE ISTING CONCRETE MONUMENT SHOWN HEREON,PRIOR TOANYDESIGNORCONBTRUGTIONONTHISPROPERTY SETBACK D, PONT REQUIREMENTSMUSTBEVERIFIEDBY THEHOMEQWNERORCONTRACTOR WITH THE IGATYICOUNTY ZONINGADMINISTRATION. 6. THIS PROPERTY IS NOT GRAPHICALLY SHOWN IN A DESIGNATED FLOOD HAZARD AREA (ZONE "X"); PER FEMA FIRM MAP NUMBER: 3710455200K, DATED: 02/19/2014. 7, UNDERGROUND UTILITIES NOT LOCATED AT THE TIME OF SURVEY. IF SHOWN UTILITY AG UNTT/HVAC TQ) | LOCATIONS ARE APPROXIMATE SASED ON LOCATIONS OF ABOVE GROUND cas METER ? @ |APPURTENANCES. JS. THE TERM ENCROACHMENT IS USED AS A MEANS TO CONVEY THAT PER LISTED DEEDS AND NAPS THAT AN OBJECT TOUCHES OR CROSSES THE DEED OR MAP LINE IN THAT AREA ON THE DATE OF SURVEY. NO CERTIFICATION OR STATEMENT IS BEING MADE ITO THE POSSESSION, ADVERSE OR OTHERWISE OR TITLE TO THE LAND EFFECTED. RIGHT-OF-WAY 'SETGACK NOW
| 7
7
2 cham | ?OWNERSHIP UNKNOWN 0.507 Acres. 22101.838 Sq.ft.
ry
6° SIDE vano TEE r
ENN es
4 a
2
6° WOOD PRIVACY FENCE FALLS 0.9+/? FEET OVER (LEFT) OF LINE, A POSSIBLE: ENCROACHMENT MAY EXIST AS. SHOWN. 6 SIDE YARD 5 SereKK Sons) ste NOTES ?_? #5 EIR LEE LAND SURVEYING, PLLC. #2853SHARONROAD NC FIRM LICENSE NUMBER: P-1259 THE MAJOR PORTION OF LOT 15, BLOCK 7 OF APORTIONOFPHARRACRES P.O. BOX 180 CHARLOTTE, MECKLENBURG COUNTY, NC MT. HOLLY, NC 28120 : MELISSA E. HIGHSMITH PHONE: (704}575-2586 PROSPECTIVE OWNER: EMAIL; robertiee@lealandsurvaying.com REFERENCES: wer leslandourveying.com MAP BOOK: 3 PAGE: 219 DEED BOOK: 32886 PAGE: 904 TAX PARCEL IDENTIFICATION NUMBER: 181-081-07 DRAWN BY: R, LEE FILE NUMBER: 5833
OR FORMERLY PART OF LOTS 13 & 15, BLOCK 7 M.B. 3, PG. 219 D.B. 29650, PG. 640 PID #18108109
NOW OR FORMERLY
LOT 13, BLOCK ?A? M.B, 6, PG, 453 D.B. 31848, PG. 542 PID #18108110
NOW OR FORMERLY Lot 1, BLOCK ?A?
M.B. 6, PG. 453
NOW OR FORMERLY D.B. 11973, PG. 655
PART OF LOT 14, BLOCK 7 PID #18108106
ne Tcertny-that this map was drawn under my supervision from on ocusa survey made under my supervision (record description recorded in Deed Book or Map Book as shown); thot the boundaries not surveyed are indicated as draw in information in Deed Booka and Mop Books 3 shown; that the ratio of precision ie better than 1:10,000; and thot is map meats the remente of Tha Standards of Practice for Land Surve; In Nortfi Carotina (21 NCAC 56.1600) Se gee sont heregu a ? » This surveydoesnot benefit from o complete examination «0 > Y Mortin Zoutewelle, PLS L-3498 PENNYMAC CORP. DB 28850-712 S$ 32d1'21" ? ? 99.49" LPIPEg Notes: Parcel is subject to City of Charlotte R=3 zoning stondords, Restrictions recorded in 0B 976-88. Building measurements taken to outside walls at main floor level. DB 6211-440 conveyed a portion of Lot 14 Block 7 along the Sharon Road R/W. IH2 Property NC, LP DB 28310-957 Area = 0.533 acres (by coordinates) % Boundary Data: LE? \ BOPaI neti aaise Ee 3c L-2: N 55d30'13" W - 18.97" pub C-3: Radius=292.50"_Length=61.15'chord=N 49430°52? W ? 61.04? L-4: N 43d38°35" W - 3.50 COPYRIGHT 2014, 50° 100° 150" PHYSICAL SURVEY OF Part of LOT 14 BLOCK 7 of PHARR ACRES CITY OF CHARLOTTE, MECKLENBURG COUNTY, N.C. certified to: ALLEGRA HOWARD HINSON & WILLIAM CARL HINSON, IV Description Taken From Map Book 3-219 & Deed Book 6211-440 Scale 1? = 30° June 2, 2014 J. Martin Zoutewelle L--3498, Zoutewslle Land Surveyors, PC C-3764, 1123 Shadowbrook Lone, Charlotte, NO 28211 704-910-2329

Turn static files into dynamic content formats.

Create a flipbook