

spis treści
1. o mnie [BIO i CV]
2. projekty wnętrz
3. wystawiennictwo
4. prace graficzne
Od 2021 roku studiuję dziennie architekturę wnętrz na Polsko-Japońskiej Akademii Technik Komputerowych. W swoich projektach zwracam szczególną uwagę na detale. Wierzę, że to właśnie w nich tkwi esencja wyjątkowego wnętrza.




wykształcenie
• Liceum Ogólnokształcące im.
Kazimierza Wielkiego w Warszawie
• Polsko-Japońska Akademia Technik
Komputerowych (architektura wnętrz)
umiejętności
AutoCAD
Sketchup Vray
Adobe Illustrator
Adobe Photoshop
3ds MAX
MS Office
doświadczenie
• Projekt redekoracji biura Freeport
Metrics
• Projekt aranżacji wnętrza mieszkania
w kamienicy przy ulicy Lipowej 9
• Praktyki w firmie RIOASI
osiągnięcia
Konfrontacje plakatu studenckiego
2022: udział w wystawach
międzynarodowych m.in. w Polsce, Korei
Południowej i Indonezji
szkolenia
• Szkolenie z firmą TEKA
• Szkolenie z firmą PEKA
• Szkolenie z firmą Hansgrohe/AXOR
PROJEKTY
WNĘTRZ



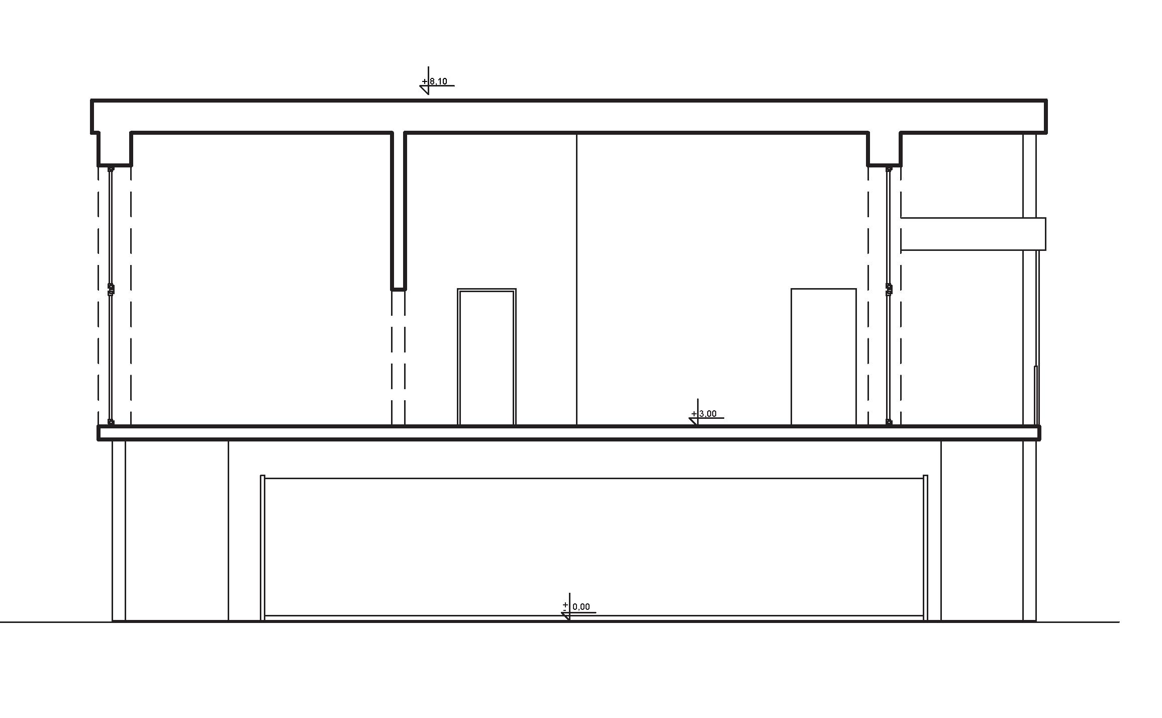
projekt domu jednorodzinnego
semestr: III
prowadzący: prof. nadzw. dr hab. Joanna Walędzik-Stefańska, dr Anna Wręga
Zadanie polegające na zaprojektowaniu od podstaw domu dla wymyślonych we własnym zakresie inwestorów. Dodatkowym wyzwaniem było inspirowanie się bezpośrednio twórczością wybranego architekta.
Twórcą, którym się inspirowałam został japoński architekt Sou Fujimoto. Jego projekty charakteryzuje
sterylna biel połączona z naturalną zielenią. Starał się w maksymalny sposób
połączyć ludzi z otaczającą ich przyrodą. Chcąc oddać chociaż namiastkę koncepcji architekta na piętrze znajduje
się niewielki, otwierany ogród zimowy z dodatkowym
świetlikiem, dzięki czemu
inwestorzy mogą integrować się z przyrodą.
Dom został zaprojektowany pod potrzeby małżeństwa w wieku 50 lat. Kobieta jest pracującą zdalnie projektantką mody, mąż zaś emerytowanym handlarzem sztuki. Oboje wyjechali, aby odpocząć od zgiełku miasta i w spokoju cieszyć się własnym towarzystwem. Budynek zostałby postawiony na działce 1500m ² w Świeradowie-Zdrój.




Wnętrze w stylu industrialnym w połączeniu z niebieskimi akcentami. Duże okna wprowadzają naturalne światło do wnętrza, dzięki czemu w dzień jest ono pięknie wyeksponowane.
przekrój A-A przekrój B-B


