Ar. Prerana Katkar Portfolio

Page 1


Be the energy you want to connect with

D.O.B. - 4 May 1998

Mobile No. - +919867845374

Email Id. - ar.preranakatkar@gmail.com

Address - Sanpada, Navi Mumbai, Maharashtra, India

LinkedIn - ttps://www.linkedin.com/in/preranakatkar-61383a180

SOFTWARE SKILLS

PROFESSIONAL

Project Management

Teamwork

Transport Planning

Urban Planning

Urban Design

Architecture

Government Experience

Design Concept

Public Relation

Researcher

Problem-Solving Report Writing GIS, 3D, Rendering

PERSONAL

Creative Spirit

Time Management

Multitasking

Organized

Perceptive

Leadership Spirit

Fast Learner

Campaigner

Videographer

Artist

Content Creator

Digital Marketing

Sportsperson

WORK

https://drive.google.com

/drive/folders/1cJozX2p

bHK3oqtpgjGTfx5OGEag

6DBub?usp=drive_link

Architect | Planner | Urban Designer

Prerana H. Katkar

EXPERIENCE

Town Planning Expert | 6 Months

CEGP (Centre for Education Governance and Policy) - Consultant at Mira Bhayandar Municipal Corporation

Mira Bhayandar Development Plan| PWD Works | Health Department Projects | Encroachment Works | Traffic

Mobility Plan, Tender, Proposals, Commercial Website and App Designs, Project Management | CSR Conclave

Urban Planner & Researcher | 5 Months

TMA (The Mobility Agenda), Bangalore

Metro Accessibility Plan | Road safety, Report, Exhibition, Site Analysis | Blog Writing

Urban Mobility Champions Fellowship | 3 Months

YLAC (Young Leaders for Active Citizenship) Worked With Jhatkaa.org, Bangalore

Enhanced Public Transport Infrastructure | Cycle School Campaigns at Delhi and Researched Sustainable Mobility for Specially-abled People in Bangalore | Content for Digital Marketing

Urban Design Intern | 2 Months

DULT (Directorate of Urban Land Transport), Bangalore

Sustainable Mobility Accords (SuMA) | Designed Safe access for Specially-abled People and Placemaking along Rajakaluve, Connected with communities in J.P. Nagar

Architect | 1 Year 11 Months

Cubic Design Studio, Pune

Commercial and Residential Projects | Client Meetings

Architecture Intern | 4 Months

HSA (Hiten Sethi & Associates ), Navi Mumbai

Worked on Architectural and Interior Projects | Handled Different Projects Simultaneously

ACHIEVEMENT

Government Experience | Collaboration with the Hon Commissioner on the Mira Bhayandar Development Initiative

Namma Raste Exhibition | Exhibited The Metro Accessibility Proposal

Designuru : Short Film on Bangalore | Engaged in the Production of a Film with fellow Architects and Designers

Audit for Walkable Malleshwaram | Street Walkability Analysis with Sensing Local

Urban Corridors of Pune Camp Area | Collaborated with Ar Khushru Irani and Studied Urban Corridors

Pune Biennale | Worked with Artists and Designers on Urban Themes and Community Engagement Initiatives

National Service Scheme | Contributed to Rural School Development, Wall Art Projects, Environmental Projects

EDUCATION

Masters Of Architecture In Urban Design | R V College Of Architecture, Bangalore, Karnataka, India

Bachelor In Architecture | B V D U College Of Architecture, Pune, Maharashtra, India

Architecture | Planning | Urban Design

Exploring Identity Of Place Through The Lens Of Cultural Heritage, Paithan, Maharashtra

M Arch in Urban Design | Urban Design Thesis

In Street On Street - Basavanagudi, Conservancy Lane, Study - The Element Of Surprise

M.Arch in Urban Design | Urban Studio Semester I

Cultural Rhythm Of Communities - Shravanbelagola, Karnataka

M.Arch in Urban Design | Urban Studio Semester II

Future City – Barrier-Free Future City

M.Arch in Urban Design | Urban Studio Semester III

Infinity Beach Resort Diveagar, Maharashtra

Bachelor’s in Architecture | Architecture Thesis

Architecture and Interior Project

HAS (Hiten Sethi & Associates), Navi Mumbai | Internship

Urban Corridors of Pune Cantonment Area

Urban Corridor Study Summer Workshop | Competition

Sustainable Mobility Accords (SuMA) – Planning with People, J.P. Nagar Layout

DULT (Directorate of Urban Land Transport), Bangalore | Internship

Metro

The

EXPLORING THE IDENTITY OF PLACE THROUGH THE LENS OF CULTURAL HERITAGE

M.Arch in Urban Design | Urban Design Thesis

Exploring Identity Of Place Through The Lens Of Cultural Heritage - The Case 0f Paithan, Maharashtra

India, a country with a momentous ethnicity and as a geographical, politico-cultural entity has been interacting with the outside world throughout history. The history of cities is the account of their constantly changing form. of additions and subtractions in the organization Cultural heritage plays an important role in creating and enhancing social-cultural towns which enhance the quality of life and the well-being of individuals and their communities It inspires citizens to participate in public life It continues diversity and intercultural dialogue by contributing to a stronger sense of belonging, memories, experience of place in a wider community which enhance a better understanding between peoples.

Paithan's distinct architectural and cultural heritage was enriched by different dynasties which ruled Paithan over a period of time starting from Satvahanas to the Nizam These rulers brought with them their own culture, region and architectural styles which eventually blended with the original flavors' of Paithan to form its secular architecture

The intent is to understand the formation of spatial patterns of settlements, the development of networks, the distribution of land use, and their interdependence to increase the social, political, cultural, religious, economic, and tourist aspects. Heritage creates a sense of identity and security by connecting our past, present, and future. The goal is to preserve this ancient town with heritage and cultural identities, as well as to conserve cultural heritage and craft

Urban Design Issues

• Due to rapid transformations Cities getting homogenized

• Cities and towns leading to loss of meanings, associations, attachments, memories and identities

• Relation between physical environment, cultural heritage and place identity has been neglected

• Lack of economic potential

• Migration of Communities involved in Art and Craft

Need

• Preserving an ancient town with heritage and cultural identities

• Conservation of cultural heritage and craft

Aim :

The study aims at documenting Place-Identity with the case of Paithan and identify elements in the built fabric that continue to add to the sense of Place-Identity across age groups and preserve the uniqueness of place

And focus on how it can be source of employment, economic growth, and innovation and contributing to city sustainability. At the neighborhood level, creating networks to form an opportunities for those who are often socially and economically excluded.

URBAN SYSTEM

Settlement : Stages Of Evolution

Egalitarian Societies

Agricultural City

Growing City

Urbanization in India is a complex and dynamic layering of imposition, assimilation, amalgamation, variation and re-interpretation of values as a result of diverse cultural influences In the urban process Activity systems, the localization of space, inhabitation of space and personalization of space play an important part in it’s structuring

Existing Community Settlement

Bazar road
Residential Area Chowk
Nathgalli Entrance
Baazar Road

Activity Mapping Of Town Local Issues

A map represents the most popular access points and locations that people frequent

Additionally, it highlights the street with historic architecture It portrays the heritage of the dying Paithan The main gathering site is adjacent to the bus stop, which is the main intersection in Paithan The second gathering area is at Shivaji Chowk, which is on a commercial street Ghats are a significant component of Paithan

Some people frequent Naag Ghat as well as the temples that have adapted into the sociocultural intersection of Paithan Locals lack decent access to the river's edge and public places in this area

Everyday Ritual _ 10th Rituals Pilgrimage Paithan On Festivals Day

On the tenth day of the death ritual, people travel to Paithan to perform pooja at Nath Ghat People are travelling from the nearby area, primarily from Aurangabad Every day, thousands of people visit for this ceremony These pilgrims travel there by bus or own vehicle, and they are located close to Nath Ghat

This practice is also carried out in the Godavari River, which limits people from connecting with nature at the river's edge

People are drying their clothes on the crowded Ghat while engaging in these rituals This restricts locals from using the Nath ghat as a gathering area

Pilgrimage Heat Mapping

Lack of connection between people and River edge The Open spaces are underutilized due to limited activities happening around open spaces Lack of maintenance of gardens Lack of maintenance of Heritage Locals are demanding Ghats

Eknath Shrashti Pilgrimage Mapping

This heat map demonstrates where people are concentrated and where tourists go the most As a result, both the Nath temple and certain other landmarks are visited by pilgrims, although not all of them We can tell that the locals and Pilgrims were not particularly interlinked However, the River's margin plays a crucial role in this

During festivals, pilgrims travel to Paithan for visiting Nath Mandir to offer prayers People visit for a single day, bath in the Godavari River, and then depart Temporary shops move closer to Nath Mandir during festival times, boosting Paithan's economy The absence of activity on the route leading to other landmarks in Paithan prevents pilgrims from going there

A festival known as Eknath Sashti is performed on the day that Sant Eknath left his body in the River Godavari and entered into Jala Samadhi in Paithan Those who wish to participate in this occasion go from all of Maharashtra and northern Karnataka Visitors come to shortages, which creates temporary jobs for people and boosts the economy Pilgrims go to the Nath Temple, River, Ghat, and other important landmarks in Paithan The majority of pilgrims' movement occurs near the river's edge People are now just attending for one or two days instead of the usual 3 to 7 days of the celebration Here we can see the loss of place identity There aren't any tourist attractions that allow visitors to remain longer

Town losing its identity:

The need to provide a ground in reconnecting urban design proposals with their cultural context should initiated by the need to promote the spatially expressed localism in the urban built environments as one of the elements of an urban identity This need is largely due to the currently operative highly standardised planning system, which undermine the diversity of cultures

• Lack Of Connection Between Nature And People

• Horizontal Movement Pattern Are Not Strongly Established

• Underutilized Community Spaces

• Heritage Structures Are In A Dilapidated State And Are Being Looked For Redevelopment To New Uses

• Lack Of Amenities For Tourists Hence Leading To Short Term Visits

STRATEGY MAPPING

• riverfront redevelopment - by providing activities near open spaces and river edges enhancing the connection of people to nature.

• enhanced connections between locals and tourists by horizontal connections through community and temple places which will lead to the town’s economic growth

• redevelopment of streetscape - providing activities near open spaces and enhancing the green network by providing trees and community spaces

• grade community spaces - providing new amenities near junctions (food shops, street furniture. tourist infrastructure

• repurposing of heritage buildings.

DESIGN

Design Intervention Zone

Zone 1

• Riverfront redevelopment - by providing activities near open spaces and river edge enhancing the connection of people to nature.

• Redevelopment of streetscape - providing activities near open spaces and enhancing green network by providing trees and community spaces.

3

Zone 2

• Grade community spaces - providing new aminities near junctions (food shops, street furniture tourist infrastructure

• Repurposing of heritage buildings

• Coverting delaplated structures for tourist stay and restorants

• and creating gathering spaces.

Enhanced connections between locals and tourists by horizontal connections through community and temple places which will lead to the economic growth of the town

Zone

IN STREET ON STREET - BASAVANAGUDI, CONSERVANCY LANE, STUDY

THE ELEMENT OF SURPRISE

M.Arch in Urban Design | Urban Studio Semester I

The Studio explores both the character (tangible and intangible parameters/ factors) of the street and attempts to construct an overarching premise within which the selected streets can be thematically compared It examines the transformation of each street; analyses its responsiveness within the larger urban context and identifies the forces determining changes within the street and its impact on local, precinct and city scales in the future. In conclusion, it attempts to resolve the issues through key design interventions by building proposals that will help people find new ways to engage with the street and strengthen the public realm. Our group studied Conservancy Lane, Basavanagudi and Jayanagar. We studied how this place transformed and documented it Understood the role of conservancy lane in this place and found the issues of the same and further made a project on it

The Element Of Surprise :

The intent of the design is to improve the connectivity between people and public spaces with the conservation of nature and culture. Which will contribute to economic growth. This would increase walkability in the conservancy lane and Dead Ends will act like a welcoming street. The dead ends which once created insecure spaces, now seem more safe to traverse through

DESIGN STRATEGIES

• Use of Public Areas

• Connection between streets and open spaces

• Vegetation

• Interaction of communities

• Permeable

Open Space is a celebration of life and its challenges. We help make life a celebration, specially for those whom such celebration seems distant and human rights remains a dream The celebration of life is a fundamental human right that we endorse.

Issues

• Less use of Public Areas

• No Proper Connection between streets and open spaces

• Less Permeable

• Less Vegetation

• Less Interaction of communities

User Groups

• student

• Office people

• Senior citizens

• Children

• Residence

• Visitors

• People who do Awareness

Objectives

• Connection between streets

• Interaction of communities

• Increase Permeable

• Metro to open space connection

Section Armugam Circle
DESIGN OF ARMUGAM CIRCLE
School And Park Connection at Armugam Circle
Connecting School To M.N. Roa Park

DESIGN OF CAFE PARK

Open Space is a celebration of life and its challenges We help make life a celebration, specially for those whom such celebration seems distant and human rights remains a dream The celebration of life is a fundamental human right that we endorse

• Connection between streets and open spaces

• Interaction of communities

• Permeable

DESIGN OF 2 STREETS

• Connection between streets

• Interaction of communities

• Increase Permeable

• Metro to open space connection

Streets Identification:

Walkable

• Reason to walk

• Safe Walk

• Comfortable Walk

• Interesting Walk

• Connectivity

These are the connections between spaces and places, as well as being spaces themselves.

Conservancy Lane 1
Conservancy Lane Connecting Other Lanes And Cafe
DESIGN OF MAIN STREET
Patalamma Temple Road Views
Cafe Park Near Armugam Circle

CULTURAL RHYTHM OF COMMUNITIES SHRAVANBELAGOLA, KARNATAKA

M.Arch in Urban Design | Urban Studio Semester II

The idea was to study the Pilgrim Cities of India - Shravanabelagola and comprehend the urban form and culture, as well as how the religious nature and belief system of the people is reflected in the structure of the city and architecture. The way such towns are influenced by nature, mythology, and modern development practices dominates their characteristics. Localization of space, inhabitation of space, and personalization of space all play essential roles in the construction of urban process activity systems Shravanbelagola is influenced by Jainism and was also renowned as the seat of Jain education, which can provide valuable insight into a place's live character and how people interact with it Shravanabelagola is renowned for the Mahamastakabhisheka, a Jain religious festival that takes place every 12 years. The manner in which this society established sacred landscapes, settlements, and architecture was impacted by land and nature. A mix of traditional architecture and Jain belief system has transformed this location into a Jain and state level tourism destination The concept is the result of an extensive studio study of the town The intention of the design is to provide an engaging environment for various user groups and connect them with a green slide to bring urban activities closer to nature Connecting Lakes with People promotes the significance of nature in everyday life by creating cultural gathering places in urban areas that encourage pilgrims and tourists to spend more time with nature.

Observations :

Shravanbelagola has Jainism influence on the city.

Jain Practices influence on urban spaces. Interaction between people and spaces depends on culture of town, different communities have different occupations.

Issue :

Lack of connection between people and open spaces.

Lack of cultural gathering spaces.

Lack of connection of cultural spaces to natural spaces.

Lack of connectivity between people and streets

Lack of spaces for kids and women

Communities are settled separately and because of that interaction between different community people is less. Even different communities have different occupations It led to less communication and less exchange of knowledge happens

Conclusion :

Communities are settled separately and because of that interaction between different community people is less Even different communities have different occupations. It led to less communication and less exchange of knowledge happens.

Strategy:

Increasing connection between Kalyani and people.

Making gathering spaces more active.

Theater Culture - Bringing back Connecting Bus stop area to Park/garden. Further connecting parks to streets and people

Increasing Hotels (reg resto, street food) Giving Identities to small hotels | Bhojanalayas.

Making people realise communication is the power of Living.

Connecting Lakes with people brings back the importance of nature in life by creating cultural gathering space

Shravanbelagola has Jainism influence on the city. Jain Practices influence on urban spaces. Interaction between people and spaces depends on culture of town, different communities have different occupations.

VISION : To Connect Cultural Places With People With Respect To Nature

Placing Steps after Kalyani walls, and Decreasing heights of the compound wall , adding jali for a better view. People will connect to kalyani with the help of this design.

Making gathering spaces more active.

Relocating Bus Stop and adding Cultural Hub over there.

Increasing Hotels (reg resto, street food)

Giving Identities to small hotels | Bhojanalayas

Connecting Lakes with people bring back the importance of nature in life by creating cultural gathering space.

Stakeholders:

Citizen

• Women

• Children

• Men

• Senior Citizens

Street Vendors

Shopkeeper

Gardener

Pourkarmikas (road cleaners)

Travellers

Hassan District, GoK

Land Owners

Malha Grampanchayat

Area of Intervention :

Providoing road axis from matha till lake for better connectivity of natur and people.

Lake as Cultural place for women and kid specially

Program :

• Adding Katte's in front of houses

• Adding Water pump.

• Introduction of Religious Marker

• Design Policies for Cultural streets

• Development around Kalyani

• Reconnecting Cultural space

• Redesign Busstop

• Reconnect Lake

Cultural Zone includes intervention zone of 1.Residencial streets and 2.cultural small spaces and 3.small open spaces.

4.Tree Katte (Entry of town

5.Connection of lake to nearby roads

The connectivity between people and culture in this town is very high. People respect and value this place The idea is to increase the connection between people and spaces And increase interaction between different communities.

Policies in Residencial areas : Policy for old cultural street and Street facad to retain the culturwe of the town. The Architecture of shravanbelagola should be protected for that the type of houses will be kept same.

More than G + 2 Structures not allowed. Sloping roof is assential.

Plint should be minimum 0.45 M and maximum 0.6 M.

Coloums which are in exterior should match to architecture of town.

Bridge on Lake .

People should cross the from one side of lake to other side of the lake. It will increase the relationship between nature and people. different communities will com,e together and can have different events near lake which keeps people connected.

Increasing connectivity between cultural spaces and people.

Reducing the gap between different user groups and places or spaces is necessary which we understand from the study of Shravanabelagola

Children need play ground and place for the exploration of different skills. Women need places where they can come together and interact with different people.

Social Zone includes intervention zone of

1 Commercial streets and 2 Market Space

3 Ganpati Mandir surrounding 4.Kalyani surrounding.

Commercial Street Policies

Providing one leveled footpath, No encroachment allowed.

Traditional Roof, Sloping roof

Seating in front of shops

Marking of Vander areas with paint

Adding Steps welcome people to visit near kalyani and communicate with different people.

Adding Step Structure for vendors in market street so that it can use by different users

When verdors are not there people can use that as seating space

Adding Steps welcomes people to visit Kalyani and communicate with different people. Footpaths and seating on the side where near shops can give a better axis to public It will provide seating to vendors and it might give indirect boundary to vendors

Footpath near Kalyani which has width of 4M , providing seating for women which also near by market, mandir and food stalls like pani puri, vada paav

Here women communication will increase and exchange of knowing will happen.

Vindegiri hills side Kalyani border has a parking area, adding it with sating same as in front of basadi to connect people traditionally.

Providing this type of seating shows the importance of the architecture of Shravanabelagola

The integration of tree forms into the rhythmical space concepts of the green public space and the water

Different local trees near lake can attract people from town and adding medicinal and flower trees can give rise to it.

Nature Zone includes intervention zone of 1.onnecting road to main commercial street

2.Bus Stop and 3 Big Cultural open spaces

4 Lake surrounding

The main concept is creating an interactive space for different users.

Making two different level parts and connecting them by a green slide to bring urban activities closer to nature

Enhancing green ground area and covering outer boundary with trees.

By providing Wooden Bridge that goes inside the lake, people can connect more with the place And adding different levels by steps can follow the topography of the place.

Seating inside lake boundary for good interaction with lake. Wooden Structure will merge in nature and will not disturb the surrounding.

View near Lake
Section
Section
Section
Section

FUTURE CITY – BARRIER-FREE FUTURE CITY

M.Arch in Urban Design | Urban Studio Semester III

The studio's purpose was to develop a future city that will assist people, nature, and culture to stay tied and valued. A Barrier-free City is one that ensures that people are connected without regard to cultural, architectural, economic, public space, or language barriers. Bangalore's metro area population in 2021 was 12,765,000, a 3.55% rise from 2020, raising tensions between natives and immigrants Bangalore Mysore has an old connection As a result, development along Mysore Road is constant Due to which the development along Mysore Road is constant Which includes many institutes and universities and big parcel lands This site also includes Vrishabhavathi River and Lakes. Nice Road and Mysore Road acts like barrier which is dividing place into 4 different areas.

The aim is to build a location that connects people, places, urban forms, nature, and built environments to create a barrier-free environment. Public spaces are urban areas' living rooms, gardens, and corridors They boost the development and desirability of a community by extending small living areas and offering locations for social interaction and economic activities

FUTURE CITY INTRODUCTION

A City which ensure to connect people without cultural, architectural, economical, Public space and Language Barrier The place which connections between People, Place, Urban Form, Nature and Built to Create a Barrier Free Environment

Public Spaces make Cities more People-Oriented Public spaces are the living rooms, gardens and corridors of urban areas They serve to extend small living spaces and providing areas for social interaction and economic activities, which improves the development and desirability of a community.

URBAN DESIGN ISSUES

Lack of Connectivity : City network, Transportation connectivity, Educational Institutes connections to Residence, Connections between Nature to People, Open Space Network, Economy, Resources.

Lack of Accessibility : Easy accessibility to Nature, Pedestrian Accessibility, Healthy lifestyle, Accessibility to different opportunities, Daily Needs, Entertainment

Physical Barrier : Big Land Parcels, Railway line, Natural barrier, institutional barrier, Lack of Access

Visual Barrier : Big Land Parcels, Bridge, River Edge

Social Barrier : Lack of access to social spaces, Lack of interactive spaces, Socio-Cultural Spaces

VISION

Commercial

Mutation Corridor

Shopping , Food

Market

Residential

Residential (Mixed)

Residential (Main) Row House

Institution

Universities

College

School

Religious Place

Health Institutes

Hospital

Open Space

Public Space

Semi-public Space URBAN

Restructuring the place by enhancing connections between People, Place, Urban Form, Nature and Built to Create a Barrier Free Environment

URBAN DESIGN STRATEGIES

Integrating Transport Connection: Last Mile Connectivity

Preserve Green Blue Corridor : Buffer Zone at water edge, Introduce No Development Zone, Preserve Green Spaces, Improve Accessibility

Temporal Use of Open Space : Shared open space

Connecting Public Spaces : Give Preference to Mixed-use Development

Buffer zone at the edge of the road: Introducing policy for 10% commercial area in front of big Parcel of Land

URBAN DESIGN STRUCTURE PLAN

DESIGN

Barrier-free means taking the first steps towards greenifying the city on a bigger scale. By building the framework for a green unity where there is room for inclusive identity and growth.

Block Design :

Crossing :

At grade pedestrian crossings are to be provided at all intersections as large number of pedestrians cross the street at intersections

Safe pedestrian road crossings shall be provided also on streets with flyovers and underpasses.

To ensure pedestrian safety and convenience, crossings should be designed for Specially abled with navigating tactile pavers, zebra crossing, Signs, Traffic signal pole, etc

Bollard :

• Provided on footpath at strategic locations in the vicinity of road junctions. Railings should also be provided It would prevent vehicle movement on footpath near junctions Reflective radium tape fitted on it to make it easily visible in the dark.

• Rounded Edges

• Seating Bollard at needed locations.

Detail Area Layout : Residential and Commercial area Junction
Building Zone
Block Design
area near Main Road

Roads are not merely functional conduits from point A to point B They serve as green boulevards adorned with rain gardens that cleanse the air and enrich the streets with birdsong and the jovial ambiance of cafes. Bicycle lanes encourage healthier transportation choices and accommodate sustainable enterprises such as bike repair shops.

By providing adequate space and water to plants and trees, ecosystems thrive naturally, reducing maintenance costs and mitigating water damage while preserving biodiversity

INFINITY BEACH RESORT DIVEAGAR, MAHARASHTRA

Bachelor’s in Architecture | Architecture Thesis

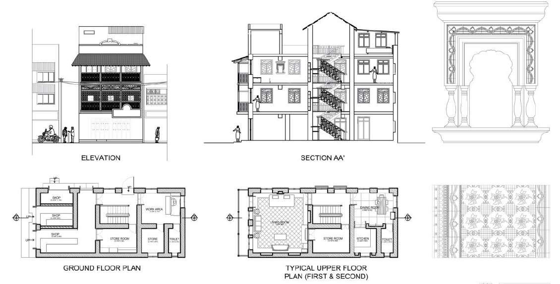
Diveagar is a village located in Raigad District in Maharashtra approximately 170kms from south of Mumbai. This region includes a fishing settlement, a beach, a temple and local business in coconut and beetlenut tree farming and tourism such as restaurants, cottages, rentals etc. It has a golden Ganesha idol which once attracted tourists, is now stolen. A comparison with Alibaug, its 4km long beach has potential to cater to tourism exponentially. But it is not as well developed with tourism infrastructure as in Alibaug.

The aim of this project was to attract more tourists, provide better services, and boost the economy of the surrounding areas The programme includes the development of a resort with 5-star services as well as a gathering place for various occasions Since the environmental circumstances are extreme, and to shed more light on the community, vernacular style and materials have been used

Site Plan And Sections

VILLA PLANNING

ARCHITECTURE AND INTERIOR PROJECTS

During my internship, I worked on projects with critical aspects such as interactive space planning, functionality, sustainability, energy efficiency, and safety.

A majority of experience gained in the internship was through intense work in interior design with a team of 2 architects and 4 interior designers. The work included material selection, sectional and elevational details, false ceiling, furniture layout, 3D visualization and many other aspects for varied genres of projects such as National Cancer Centre, Nagpur, Working spaces, L&T Apartments, Renovations, etc

A learning from this was developing moods for different spaces by the right choice of materials, colors, furnishings, talking to clients regarding designs, and working closely with the labourers and artists, vendors and consultants.

Projects:

• Museum Island at wonder’s Park

• Theme-based development of playgrounds in Navi Mumbai (site visit & data collection of 17 gardens)

• National Cancer Institute, Nagpur

• L&T Residential Project, Navi Mumbai

Conceptual Form

Additional Plots

Plot No. 53 : 1300 Sq.m Plot No. 57 : 5997.94 Sq.m

The conceptual Form is derived from the shape of ellipsoid. We developed a diagrid structural system that acts as a complete frame to achieve a large column less space in the last level The lowers levels have independent structural systems in both blocks. Further, we created the skin which is wrapped on the structural shell as a cladding material.

The cladding material is a combination of the translucent part and the opaque part The translucent part allows natural light to enter into the exhibit areas.

Geometrical Composition: The orientation of the structure is such that the front is visible from the main roads and wonderspark. There is view of Wonders park from podium level of science

Top View Of Skin
Design Approach: Visual Connectivity

DESIGN APPROACH : SPACE PLANNING

Geometrical Composition: The geometrical composition of the Science Center & Convention Center are in response of the viewpoints towards the Wonders Park & existing Urban context

Architectural Details : Entrance Lobby
Architectural Details : Atrium
Architectural Details : Ramps

URBAN CORRIDOR STUDY: CANTONMENT AREA, PUNE

Urban Corridor Study Summer Workshop | Competition

This workshop introduced to the Public Realm of the Pune Cantonment with reference to streets, alley ways, public courts and markets, all within the context of heritage buildings which are struggling to survive the tide of rapid social and economic change. Through on-site study of identified areas and buildings, institutions, living practices and community interactions within the Camp area, we were able to document and evolve methodologies to address key issues challenging the place and its architecture The Workshop extended over a period of 10 days and the students of Bharati Vidyapeeth College of Architecture, Pune and Mumbai were involved and it was Headed by Ar. Khushru Irani from Pune.

The four primary streets running north- south and more or less parallel to each other were laid and were named as East Street, Main Street, Centre Street and the West Street These four streets were intersected by Narrow roads in East- west direction In between these roads there was a network of narrow lanes The largest of the four was called ‘Main Street’, (now Mahatma Gandhi Road)was lined by residential buildings and shops To the east of Main Street was named as‘East Street’forming eastern boundary of bazaar where the majority of the European stores, churches and Public buildings were located. The eastern side of East Street directly interfaced with the cantonment lands. To the west of Main Street lay the two remaining longitudinal roads, Centre Street and West Street which was the westernmost of the Sadar Bazar major roads)

SUSTAINABLE MOBILITY ACCORDS (SUMA) PLANNING WITH PEOPLE, J.P. NAGAR

Directorate of Urban Land Transport, Bangalore | Internship

KNMTA and DULT are working with selected communities for SuMA Cohort 2020-21.

To engage communities at the neighbourhood level to further spread awareness on benefits of sustainable modes of transport like walking, cycling and public transport To support the community to formulate specific goals and action plans for transforming itself into a sustainable neighbourhood, by providing necessary support in the form of capacity building, assistance in showing measurable impact on ground. During internship I designed Safe access for Specially-abled People and Placemaking along Rajakaluve, Connected with communities in J.P. Nagar.

Project 01: Safe Access For Specially Abled

JP Nagar is home to two institutions that work with physically and visually challenged persons Mobility India and Samarthanam are also within 150m of the upcoming metro station at Ragigudda

Project 02: Placemaking Along Rajakaluve

A rajakaluve runs from North to South of the site. Interventions have been taken up to improve the walking experience and quality of space along the drain edge.

SAFE ACCESS FOR PEOPLE WITH DISABILITY

Intent :

To ensure ease of access to PWD and other Disadvantaged groups.

Objectives :

Making movement corridors universally accessible

Improving footpath conditions and Safe crossing for PWD

Ramp access to negotiate level difference

Reducing vehicular movement on

1st crossroad

Strategy:

1. Ensuring safe accessibility to Smarthanam Trust and Mobility India from Public Transport Stations.

2. Modifying the road space to prioritise PWDs

PLACEMAKING ALONG RAJAKALUVE

A rajakaluve runs from North to South of the site Intervention have been taken up to improve the walking experience and quality of space along the drain edge.

Site Visit : Place understanding through the lens of Specially able people

Exhibition: First exhibition to commissioner Second Exhibition to J P Nagar Community and people
JP Nagar is home to two institutions that work with physically and visually challenged persons. Mobility India and Samarthanam are also within 150m of the upcoming metro station at Ragigudda.

METRO AREA ACCESSIBILITY PLAN, YELACHENAHALLI, BANGALORE

The Mobility Agenda Foundation | Namma Raste Exhibition

Yelachenahalli, located on the Green Line's North-South corridor on Kanakapura Road, features an elevated metro station. This densely developed neighborhood includes malls, high-rises, schools, restaurants, and shops within a 1km radius, leading to significant metro use by school children The surrounding area mainly consists of residential and commercial properties along with industries, temples, parks, and a lake However, the accessibility to key locations such as the JKV School on the east side of the station poses safety concerns for children and the elderly due to on-street and footpath parking. Moreover, there is a lack of continuous footpaths connecting the station to adjacent bus stops and landmarks. As part of this project, I conducted comprehensive site visits to assess the current conditions and identify key areas for improvement. My responsibilities included site analysis, planning, designing, and setting the strategy and detailed design for the accessibility plan I also worked extensively on 3D modeling, rendering, and the complete start-to-end planning process This holistic approach aimed to enhance the safety and connectivity of the Yelachenahalli metro area, making it more accessible for all residents and visitors.

Overview

Yelachenahalli has an elevated metro station on the North- South corridor in the Green Line located on Kanakapura Road. This neighborhood is densely developed with malls and high-rise structures. Several schools, restaurants, and shops are located within 1km radius of the station, leading to a higher % of school children using the metro. The surrounding land use mostly consists of residential and commercial areas along main streets, with industries and temples, public parks and lake. The access to JKV School on the east side of station is unsafe for children and elderly because of on-street and footpath parking. There is no continuous footpath connecting the station to adjacent bus stops and landmarks.

Key Issues

Pedestrian Crossing:

No Zebra crossing

Not conspicuous

No speed breaker/ traffic calming measures

No signages

Line of sight blocked by pillars in median while crossing

Parking:

Present only on one side of metro

High parking turnover rate (1.5-2)

On-Street and footpath parking

Unsafe for pedestrians especially school kids and elderly

Street Design and Utilization:

Drop on-off points blocked by gates

Drop off done directly on road or pedestrian crossing

No footpaths continuity on road after metro station

No Tactile Paving

Lack of Ramps

Lack of Street Furniture

Study Framework

Pedestrian Safety

Raised footpaths

Barriers between Fast moving traffic and pedestrians

Line of sight for vehicles and pedestrians

Safe pedestrian crossing with refuge Islands

Ample Street lighting

Pedestrian Comfort

Ramps and Tactile paving for all paths

Continuous footpaths to nearby major destinations

Tree Cover, street furniture

Multi utility zones, Street vending areas

Water booths, Toilets

Visible & Conspicuous Signages

Speed limits, stop /yield sign, U-turn

Pedestrian crossing, Drop on-off signs

Signs to amenities like bus stops, toilets, water booth, lifts, gathering spots, parking

Directions to entrances, lifts and nearby landmarks

Multimodal-Modal Integration

Feeder bus connectivity

Continuous footpath to the bus stops

Cycle parking and public bicycle docks

Drop-on & off zones for rickshaws, taxis

Traffic Calming around Metro station

Tabletop pedestrian crossings / Speed breakers / Pelican Signals

Stone pitching around median openings, U-turns

Reduced speed limits

Parking Management

Competitive parking fares

Parking for cycles, 2w, 4w

Preferable to be present on both sides of road

Tabletop pedestrian crossing
Pickup and drop Points
Tactile paving and ramps
Pick-up & Drop location
Cycle Parking
Green cover
Ramps
Bollards Protective railing Benches
Prerana Katkar

Turn static files into dynamic content formats.

Create a flipbook
Issuu converts static files into: digital portfolios, online yearbooks, online catalogs, digital photo albums and more. Sign up and create your flipbook.