ARCHITECTURE PORTFOLIO 2023

Page 1

AR CHITEC TUR AL ARCHITECTURAL

POR TFOLIO PORTFOLIO

PREETI BANDHU

PREETI BANDHU

STUDENTOF

BACHELOR OF ARCHITECTURE

SOFTWARE SKILLS

AUTOCAD

SKETCHUP

ADOBE PHOTOSHOP

ADOBE INDESIGN

ENSCAPE

MS POWERPOINT

EDUCATION

BACHELOR OF ARCHITECTURE

UNIVERSITY SCHOOL OF ARCHITECTURE AND PLANING ,DWARKA SECTOR 16-C, SECTOR

DIPLOMA IN ARCHITECTURAL ASSISTANTSHIP IN CHHOTU RAM RURAL INSTITUTE OF TECHNOLOGY KANKAN JHAWALA, DELHI

SECONDARY EDUCATION

GOVT. SARVODYA KANAY VIDYALAYA, NITHARI, GOVT. SARVODYA KANAY

HAND SKILLS

DRAFTING

MS EXCEL

MS WORD

WORK EXPERIENCE

Hi, I’m Preeti bandhu, currently pur- Hi, I’m Preeti bandhu, suing my 5th year Bachelor degree suing in University School of Architecture in University of Architecture and Planning, Guru Gobind Singh and Guru Indraprastha University, sector-16C, Indraprastha sector-16C, Dwarka. I’m keen on designing spac- Dwarka. es that undergoes through different es that layers of understanding to achieve achieve a simple, functional and contextual functional and contextual design.This portfolio will present my my selected acedemic work and extra curricular work reflecting my passion curricular work my passion and interest interest.

PERSONAL INFORMATION

BORN : 9 AUGUEST 2000 DELHI, INDIA

ADDRESS : NORTH WEST DELHI

CONTACT :

8178007239

preetibandhu2@gmail.com

LANGUAGE : HINDI, ENGLISH

INTERNSHIP

Firm : Om Associates

(01 june 2018 - 31 july 2018 and 25 april 2019 - 25 july 2019)

ACADEMIC DESIGNS

MODEL MAKING

SKETCHING

PAINTING

WRITING

1st SEM

KISOK DESIGN 2019

2nd SEM

RESIDENCE DESIGN 2020 Dwarka, Delhi

3rd SEM

PRIMARY SCHOOL DESIGN 2020 Dwarka, Delhi

4th SEM

JAMALI KAMALI REDEVELOPMENT DESIGN 2021 Mehrauli, Delhi

5th SEM

NID COLLEGE DESIGN 2021 Vasant kunj, Delhi

6th SEM

HOSPITAL DESIGN 2022 Dwarka, Delhi

7th SEM

HOUSING DESIGN 2022

Bhiwani, Haryana

8th SEM

URBAN DESIGN 2023

Sarita vihar, delhi

CONTENTS

URBAN DESIGN

HOUSING

JAMALI KAMALI REDEVELOPMENT

WORKING DRAWING

URBAN DESIGN

Year :- 2023 ( 8th sem )

Location :- Sarita vihar L pocket

Team Member :- 4

01

LOCATE IN THE VIBRANT NEIGHORHOOD OF SARITA VIHAR , SOUTH DELHI , OUR STUDIO IS DEDICATED TO THE CONCEPT OF “ EVERYDAY URBANISM. ” THIS INNOVATIVE APPROACH UNDERSCROES THR CRUCIAL IMPORTANCE OF CREATING AN ENVIORNMENT THAT WELCOMES AND ACCOMMODATES EVERYONE, FOSTERING A SENSE OF INCLUSIVITY AND ACCESSIBILITY

THREE MONTHS OF DOCUMENTATION , WE THOROUGHLY STUDIED THE DDA COMPLEX IN SARITA VIHAR L POCKET . BASED ON THEME OF “ EVERYDAY URBANISM “ WE PROPOSED INTERVENTAION FOR THE NEIGHBORHOOD PARKS , CLUSTER PARKS, MARKET.

OPEN SPACE REVAMPING STRATEGY

MARKET REVAMPING STRATEGY

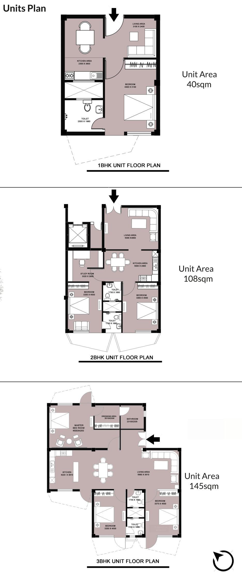
02 HOUSING DESIGN

Year :- 2023 ( 7th sem )

Location :- Haryana (Bhiwani)

Site Area :- 4 Acre

THE AIM TO IS DESIGN A SPACE WHERE PEOPLE SOCIALLY INTERACTED WITH EACH OTHER AND ALSO CREATE GREEN ENVIRONMENT THAT MAKES THE PEOPLE MORE HAPPAY AND ATTACHED WITH THE NATRE LIKE CLOSED INFRASTRUCTURE .

IMBIBLING THE ORGANIC CHARACTER OF OLD INDIAN CITIES AND VILLAGE RAS HOUSE IS CREATED AS A SERIES OF WINDING STREETS INTERSPERSED WITH LANDSCAPED SPACE.

STUDENT BLOCK ELEVATION

VILLAGES BLOCK ELEVATION

KAMALI KAMALI

REDEVELOPMENT DESIGN

Year :- 2021 ( 4th sem )

Location :- Mehrauli, Delhi

Site Area :- 14560sqm

Team Member :-

03
JAMALI
3

THE DESIGN DEMANDED A TEMPORARY STRUCTURE THAT COULD BE ERECTED WITH NO NEED OF DIGGING THE GROUND. THE DESIGN NEEDED TO ACT LIKE A TOURIST ATTRACTION SPOT SO THAT WHEN THE FOOTFALL EXPANDS, PEOPLE NOTICE THE IMPORTANCE AND SIGNIFICANCE OF THIS ARCHEOLOGICAL SITE WHICH HOLDS THE HISTORY OF DELHI FOR PAST THOUSANDS OF YEARS, WHICH OTHERWISE GOES IGNORED AND AT WORSE EVEN BELITTLED.

THE DESIGN HAD TO TAKE IN CONSIDERATION THAT NO MONUMENT IS DOMILSHED IN ANY SCALE, EVEN THE TOPOGRAPHICAL VARIATIONS IN SITE ARE TRIED NOT TO BE INTEREFERRED.

SITE PLAN
04 WORKING DRAWING

GROUND FLOOR PLAN

21 18 14 10 11 20 16 15 21 15 10 16 18 20 PASSAGE PASSAGE PASSAGE TOILET TOILET PASSAGE PASSAGE 3405 230 230 230 230 230 230 230 230 4095 3460 8190 4575 655 1500 W W W W W W W W W W W W W W W W W1 W1 W1 W1 W1 V V V V V V D D1 D1 D1 D1 D1 D1 D1 D1 D1 D1 D1 D1 D1 D1 D1 D1 D1 D1 D1 D1 D1 D2 D2 D2 UP MAIN ENTRY MAIN ENTRY ENTRY COURT YARD BACK ENTRY BACK ENTRY COURT YARD +450MM LVL -1050 MM LVL +1650 MM LVL +900 MM LVL ENTRY ENTRY ENTRY ENTRY FIRE CLOSET DEPARTMENT HEAD OFFICE 2800 DEPARTMENT OFFICE FACULTY CO CLASS ROOM CERAMIC 6400 X 6040 CLASS ROOM CERAMIC 7275 X 6040 3070 FACULTY CO FILM CLASSROOM 5717 7540 FILM CLASSROOM 5717 X 4835 LAB ROOM 2500 X 3070 CAMERA 3000 X 2000 INTERIOR 6840 X 6385 ROOM CERAMIC 5005 X 6385 FURNITURE AND INTERIOR CLASS ROOM 5005 X 6385 FURNITURE AND 6840 X 6385 TOILET 3630 X 4500 PANTRY 3230 4695 SCREEN PRINTING STORE STORE ROOM 3700 X 6040 4695 X 4040 AHU 3412 X 4500 ELECTRICAL ROOM TOILET TOILET 5006 X 3830 TOILET 5006 X 3748 FEMALE 2930 X 4500 MALE TOILET 3630 X 4500 FACULTY DEPARTMENT HEAD OFFICE 4200 X 4500 FACULTY LEAD OFFICE LEAD OFFICE 3000 4000 X 3400 CERAMIC STUDIO 7140 FACULTY PA ROOM FURNITURE 4695 X 6385 ROOM CERAMIC CLASS ROOM CERAMIC RESEARCH AND DESIGN CENTRE INTERIOR CLASS ROOM 4695 X 6383 INTERIOR CLASS ROOM 7140 X CERAMIC STUDIO 7525 6118 X 43972 FACULTY 4000 X 3400 TOILET 5006 X 3863 TOILET 5006 X 3830 REGULAR FACULTY OFFICE 4000 3400 4000 X 2800 TOILET 2930 X 4500 TOILET 3630 X 4500 FACULTY LEAD DEPARTMENT 3000 X 4500 FACULTY 4000 X 2300 4000 X 400 PA ROOM 3000 X 2000 REGULAR FACULTY LEAD LEAD OFFICE PASSAGE PASSAGE LOOBY 12 18 4000 2800 10268 44432 OPEN TO SKY OPEN TO SKY B C D E F G H I J K L M N O 7000 7000 6898 6552 6718 5910 1140 6950 6885 4600 6898 6552 6885 4600 1 2 3 4 5 6 7 8 9 10 11 12 13 14 15 16 17 18 19 20 21 22 23 24 8505 8820 4140 4600 3143 4895 5040 1960 3100 3043 4260 6740 5060 1330 3710 385 4410 3243 4600 4140 8820 4095 4410 A
MODEL CLASS MODEL CLASS ROOM PRODUCT STUDIO PRODUCT CLASS RESEARCH AND DESIGN PASSAGE PASSAGE PASSAGE PASSAGE PASSAGE CERAMIC STUDIO ELECTRICAL ROOM PASSAGE PARAPET LEVEL+/-00 MM PARAPET 4000 150 MM CEMENT CONC. SECTION AT AA’

FIRST FLOOR PLAN

22 21 18 16 15 21 22 17 16 23 230 2930 1200 2660 4430 1200 1830 1200 8060 1200 6118 600 4636 1534 1200 840 2230 1500 4600 1718 3000 1831 400 3000 3000 2448 W W W W W W W W W W W1 W1 W1 W1 W1 W1 W1 W1 V V V V V V D D D D D1 D1 D1 D1 D1 D1 D1 D1 D1 D1 W D1 D2 D2 D2 DN UP UP DN 4000 GRAPHIC DESIGN STUDIO 13000 DIGITAL GRAPHIC STUDIO 4000 8960 GRAPHIC CLASSROOM CLASSROOM 5005 X 6385 RESEARCH AND DESIGN CENTRE 13494 X 7540 DRAWING 6400 FURNITURE AND INTERIOR STUDIO PRODUCT 14895 STORE ROOM 13490 4500 FEMALE 2930 X 4500 MALE TOILET 3630 X 4500 TOILET TOILET 5006 X 3748 2930 TOILET 3630 X 4500 5006 X 3830 TOILET 5006 X 3863 TOILET TOILET 2930 X 4500 TOILET 3630 X 4500 4048 ELECTRICAL PASSAGE PASSAGE PASSAGE PASSAGE PASSAGE PASSAGE PASSAGE PASSAGE PASSAGE PASSAGE BALCONY BALCONY BALCONY BALCONY BALCONY BALCONY 12 15 14 17 10 23 20 12 15 14 17 23 20 12 17 10 B C D E F G H I J K L M N O 7000 7000 6898 6552 6718 5910 1140 6950 6885 4600 6898 6552 6885 4600 1 2 3 4 5 6 7 8 9 10 11 12 13 14 15 16 17 18 19 20 21 22 23 24 8505 8820 4140 4600 3143 4895 5040 1960 3100 3043 4260 6740 5060 1330 3710 385 4410 3243 4600 4140 8820 4095 4410 A CLOSET HEAD OFFICE OFFICE FACULTY CO LEAD OFFICE CLASS ROOM CERAMIC CLASS ROOM CERAMIC TOILET TOILET TOILET LIFT LOBBY CLASSROOM TOILET CLOSET TOILET TOILET ANIMATION CLASSROOM PASSAGE STORE ROOM STAIRCASE COURT FIRST FLOOR LEVEL+4450 MM 900 1500 1450 1450 1500 230 230 230 230 RAMMED EARTH 150 MM THICK SAND 40 MM THICK TILE 150 MM THICK 150 MM SECTION AT BB’

SECOND FLOOR

FRONT ELEVATION SIDE

21 1213 20 300 7000 7000 18383 6552 230 230 300 300 230 230 230 230 230 230 230 230 230 3245 230 282 6358 250 230 900 1718 2100 2000 230 1808 3000 1770 230 1918 1540 230 770 1230 W W W W W W W W W W W W W W1 W1 W1 W1 W1 W1 V V V D D D1 D1 D1 D1 D1 D1 D1 D1 D1 D2 D2 D2 D2 D2 D2 D D1 DN DN DN PLASTER LAB AND GLASS LAB 10460 X 8960 FIRE STAIRCASE CLOSET 2300 X 2300 ANIMATION 14760 X 14935 MODEL CLASS ROOM 7140 X 6385 MODEL CLASS ROOM 5295 6385 X 1500 FEMALE TOILET 2930 X 4500 MALE TOILET 3630 X 4500 TOILET TOILET 5006 X 3748 TOILET 4500 TOILET 3630 X 4500 TOILET 5006 X 3863 PASSAGE PASSAGE BALCONY 14 18 10 3630 2930 3748 2800 7075 6548 B C D E F G H I J K L M N O 7000 7000 6898 6552 6718 5910 1140 6950 6885 4600 6898 6552 6885 4600 1 2 3 4 5 6 7 8 9 10 11 12 13 14 15 16 17 18 8505 8820 4140 4600 3143 4895 5040 1960 3100 3043 4260 6740 5060 1330 3710 385 4410 A
ELEVATION MM -45653 MM LVL 1000 900 1000 1000 900 PARAPET LEVEL+13450 MM MUMMTY 2400 2400
KITCHEN DETAILS TOILET DETAILS ELEVATION SECTION AT B SECTION AT C SECTION AT A SCALE 1:20 SCALE : 1:20 SCALE : 1:20 SCALE : 1:20 1800 600 150 3150 3150 150 150 LVL +150MM LVL +250MM LVL +1250MM WC) LVL +2100MM (TILE) LVL +2850MM( CLEAR HEIGHT) LVL +3000(RCC SLAB 150MM THICK) GROUND LEVEL PLINTH LEVEL TILE VENTILATOR MIRROR 150 650 150 WASH BASIN PIPE WALL WASH BASIN TAP GL LVL +00MM LVL +150MM LVL +2850MM( CLEAR HEIGHT) LVL +3000(RCC SLAB 150MM THICK) LVL +720MM( BATH TUB HEIGHT) LVL +2100MM (TILE) GL LVL +00MM LVL +1250MM WC) LVL +2100MM (TILE) LVL +2850MM( CLEAR HEIGHT) LVL +3000(RCC SLAB 150MM THICK) MIRROR VENTILATOR TAP 2400 2400 2800 DETAIL AT 1 WASH BASIN 750 150 650 TAP WASH BASIN PIPE 150 WASH BASIN ELEVATION WASH BASIN 500 718 650 200 718 390 WATER CLOSET PLANWATER CLOSET ELEVATION A C B TOILET PLAN SCALE 1:20 930 1000 930 2500 2500 1200 TOWEL RAIL TILE 10 MM THICK WALL 230 MM THICK BATH TUB TAP VENTILATOR WALL TAP WASH BASIN MIRROR DRY ZONE LVL 00MM 2800 1 ELEVATION CHIMNEY VIEW LINE SKETCH OF SPLIT CHIMNEY OUTDOOR WALL ISOMETRIC VIEW KITCHEN 3000 X 4000 PLAN A B D C X SECTION AT A SECTION AT D SECTION AT C ELEVATION SECTION AT B DETAIL AT SINK (X) F.T ROAD KEY PLAN CLASS ROOM CLASS TOILET ROOM ROOM ROOM BADMINTON OPEN OFFICE PRINCIPAL DINING LVL+750MM PRINCIPAL RECEPTION ROOM CLASS LVL+750 ROOM WAITING ROOM KITCHEN ROOM ROOM SERVICE LANE SERVICELANE ROAD 1000 2000 1000 3000 1305 1200 1495 150 850 600 750 150 2100 3000 420 900 186 201 900 1500 150 2250 SCALE 1:25 SCALE : 1:20 SCALE : 1:20 SCALE : 1:25 SCALE : 1:25 SCALE : 1:25 SCALE : 1:25 SCALE : 1:25 REFRIGERATOR GAS SINK SINK CHIMNEY CABINET CHIMNEY PIPE CABINET 150 MM THICK PLINTH TAP UTENSIL BOX WALL CHIMNEY PIPE 150 MM THICK PLINTH SINK WALL
05
MISCELLANEOUS

8178007239

preetibandhu2@gmail.com

PREETI BANDHU

Turn static files into dynamic content formats.

Create a flipbook
Issuu converts static files into: digital portfolios, online yearbooks, online catalogs, digital photo albums and more. Sign up and create your flipbook.