Portfolio werkomgevingen

Page 1

Portfolio werkomgeving

II
1 3 Werkomgevingen en atelier PRO TRANSFORMATIE 7 Huisvesting Atelier PRO, Den Haag 9 Kantoor EDGE Stadium, Amsterdam 13 Vernieuwbouw en inrichting hoofdkantoor Anthura, Bleiswijk 17 Renovatie ING, Amsterdam 25 Eromesmarko, Wijchen 27 Verbouwing en interieur Toren C, Den Haag 31 Vernieuwd Gemeentehuis Zeist 37 Raadhuis Ede MONUMENTEN 43 Interieur Stadshuiskwartier Deventer 49 Bibliotheek Bijzondere Collecties UvA NIEUWBOUW 55 Research Diagnostiek Centrum Amsterdam UMC 57 Hoofdkantoor IKK Süd-West, Saarbrücken 59 3 Regiokantoren Enexis, Maastricht, Venlo en Zwolle 67 Gemeentehuis Bronckhorst, Hengelo
Inhoud

Werkomgevingen en atelier PRO

Andere manieren van werken vragen om transformaties van huisvesting.

Ondanks dat de vraag naar nieuwe kantoren is afgenomen blijft het ontwerpen en bouwen van kantoorinterieurs een grote en actuele bouwopgave. Onder invloed van veranderende werkprocessen, nieuwe ICT voorzieningen, andere eisen aan comfort en exploitatie neemt de behoefte toe om ook reeds bestaande en relatief jonge gebouwen aan te passen. Het kantoor moet bovendien een passende eigentijdse accommodatie zijn die een representatieve weergave is van de identiteit van de organisatie. De aantrekkelijkheid van de ingreep bepaalt voor een groot deel de duurzaamheid. De aandacht voor het ‘visitekaartje’ verschuift daarmee, van het exterieur naar het interieur.

Visie: het kantoor als bron van inspiratie Noem het ‘Flexwerken’, ‘Het Nieuwe Werken’, of ‘Activiteit Gerelateerd Huisvesten’ maar een nieuw kantoorinterieur gaat voor ons verder dan het simpelweg toepassen van een methode. In onze visie is de oer-functie van het moderne kantoor juist het bij elkaar brengen van mensen. Zowel organisatorisch, publiekelijk als bestuurlijk. Het kantoor moet een fijne plek zijn waar mensen zich goed voelen, doorlopend collega’s ontmoeten en ouderwets productief kunnen zijn. Werkomgevingen waar mensen graag willen zijn. Daar ligt voor atelier PRO de uitdaging.

Ontmoetingen stimuleren

De mogelijkheid om ‘overal’ te kunnen werken wordt vaak misbruikt in de argumentatie voor bezuinigingen en efficiëntie. Het idee dat een kantoor geen bestemming is, maar een reeks ruimten waar men met een laptop neerstrijkt is een illusie. Hoewel de digitalisering voor veel vrijheden zorgt, vergroot ze juist ook de behoefte aan oog-in-oog contact. Mensen komen naar kantoor vanwege de sociale interactie en het uitwisselen van ideeën. Met de digitalisering is het einde van het fysieke kantoor niet in zicht. Kennisdeling en het faciliteren van inspirerende ontmoetingen komen steeds meer centraal te staan. Dat heeft zijn weerslag op het kantoormeubilair. Het gebouw en de inrichting zijn bij uitstek de dragers van een passende bedrijfscultuur. Wil je als werkgever de beste werknemers aan je weten te binden, dan moet je een uitmuntende werkomgeving kunnen bieden. Het interieur moet zijn werknemers koesteren en tegelijkertijd het bedrijf in staat stellen om zich gemakkelijk aan te passen aan nieuwe kansen, nieuwe processen en werkmethoden.

Activiteit Gerelateerde Werkomgeving

Een goed functionerende werkomgeving heeft volgens ons drie basis ingrediënten: ontvangen, ontmoeten en werken. Deze drie hoofdfuncties liggen elk in een eigen zone, hebben een eigen sfeer en typologie van inrichting en ruimtevorm.

De ontvangstzone is open en toegankelijk voor bezoekers. Bijvoorbeeld een ruim atrium met veel daglicht. De ruimte is overzichtelijk en is altijd goed verbonden met de stedelijke ruimten buiten het gebouw. Een openbare ruimte maar dan binnen. De ontmoetingszone kent verschillende soorten ontmoetingen en dus ook verschillende soorten plekken. Deze liggen tussen ontvangen en werken in. Het gaat om spreekkamers, een werkcafé, atrium of ontvangsthal etc.

De werkzone is het domein van de medewerkers. Deze werkzone kunnen we ook weer onderverdelen in 3 activiteitenzones. Voor ontmoeten communiceren en concentreren. Elke activiteitsoort heeft zijn eigen eisen, uitstraling en ontwerpuitgangspunten.

De impact van de gezonde werkomgeving

Uit diverse onderzoeken blijkt dat de kwaliteit van de werkomgeving een cruciale rol speelt in het welzijn van de gebruiker. Simpel gezegd: een betere huisvesting zorgt voor betere resultaten. Het bevorderen van gezondheid van werknemers leidt tot een lager ziekteverzuim, hogere motivatie, minder verloop en meer voldoening. En uiteindelijk een hogere productiviteit.

Ontwerp maatregelen voor een gezond kantoor Ontwerpbeslissingen kunnen terugverdiend worden. Een betere luchtkwaliteit levert productiviteitstoename van meer dan 10%. Kwalitatief uitzicht leidt tot een toename tot 10%. Nog belangrijker zijn de invloed van daglicht, thermisch comfort en akoestiek met een productiviteitsverhoging van meer dan 10%. Veelvuldig onderzoek toont aan dat het psychologische effect van akoestiek op mensen, en hoe zij de geluidsomgeving ervaren, zeer groot is. Om een goed resultaat te kunnen boeken, is het belangrijk om verschillende maatregelen integraal toe te passen. Atelier PRO houdt zich al jaren bezig met dergelijke vragen en maakt ze leidend in het ontwerpen van kantoren. Wij zetten ons in voor zowel vastgoedeigenaren als gebruikers om een duurzaam hoger rendement te behalen.

Met richting wijzende interieurs en vernieuwende concepten voor gezonde werkomgevingen loopt atelier PRO voorop in de ontwikkeling van het hedendaagse kantooropgave en vervult een vooraanstaande rol in de ontwerpdiscussie.

In dit portfolio overzicht laat atelier PRO zien hoe een ‘lean business-strategie’ – flexibel en effectief – vertaald wordt naar het interieur van een gezonde werkomgeving.

3

Transformatie

Entreegebied, een van de vele uitbreidingen. De oorspronkelijke buitengevel van het gebouw Forum

6
hoog en tuin Archiefkelder Uitbreiding kantoor Atelier PRO en uitbreiding tuinhuis Uitbreiding met serre Uitbreiding administratie maquettekelder Rotonde in de tuin Forum onder de tuin en uitbreiding tuinhuis

Het Forum. Hier zijn werkplekken gecreëerd onder de duinen.

Huisvesting Atelier PRO, Den Haag

Sinds 1976 is atelier PRO gevestigd aan de Kerkhoflaan in Den Haag. Wat begon als een kleine groep enthousiaste vakmensen is in de loop der jaren uitgegroeid tot een bureau van vijftig professionals met ambitie.

Door de organische groei van het bureau is de huisvesting door de jaren heen uitgebreid. Bij elke uitbreiding heeft atelier PRO zich laten inspireren door de kracht van de locatie en respect voor de duinomgeving. Deze gedachte van ‘genus loci’ ligt ten grondslag aan alle ontwerpoplossingen van onze architecten. Ons eigen bureau is daar een sprekend voorbeeld van.

7

Periode 2019 - 2023

Opdrachtgever

Edge Technologies

Projectarchitect

Hans Kalkhoven en Dorte Kristensen

Projectleider

Robert Adema

Adres

Roeskestraat 100, Amstrdam

Bruto oppervlakte

29.221 m²

8

Kantoor EDGE Stadium, Amsterdam

Een bestaand gebouw uit 2001, dat toentertijd al duurzaam was, verder verduurzamen en transformeren tot een eigentijds kantoor - dát was de opdracht die atelier PRO kreeg van ontwikkelaar EDGE.

In het najaar van 2020 verhuisde Loyens & Loeff uit kantorencomplex Forum, dat twintig jaar geleden werd ontworpen door atelier PRO. Het karakteristieke pand, toen al vooruitstrevend op het gebied van duurzaamheid, is nu omgevormd tot verzamelgebouw EDGE Stadium. Door de transformatie is een moderne en inspirerende werkomgeving ontstaan voor verschillende bedrijven en bedrijfjes; een bewuste mix, die onderlinge wisselwerking en innovatie bevordert.

Het nieuwe EDGE Stadium is een gezond en groen kan toor, met natuurlijke materialen, weelderige beplanting, een hoge luchtkwaliteit en een wijds dakterras.

Begane grond nieuwe situatie

Links: nieuwe situatie entreegebied. Het paviljoen achter in het atrium is gedemonteerd, uitgebreid en voorzien van een nieuwe gevel; Onder: oude situatie

9
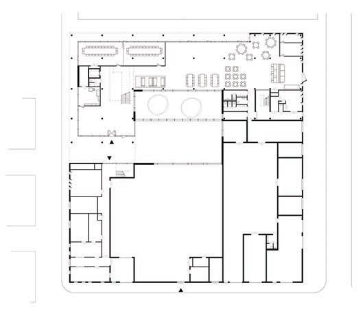
0 5 101520 25 (m) plattegrond begane grond Edge Stadium Amsterdam floorplan ground floor Edge Stadium Amsterdam

Het atrium krijgt een geheel nieuwe uitstraling en wordt heringericht als centrale ruimte met voorzieningen voor de toekomstige huurders.

10
Oude situatie Nieuwe situatie
12 Periode 2018 - 2022 Opdrachtgever Anthura bv Projectarchitect Hans Kalkhoven, Amal Habti Adres Anthuriumweg 14, Bleiswijk Bruto oppervlakte 2.930 m2
Oude
& nieuwe situatie

Vernieuwbouw en inrichting hoofdkantoor Anthura, Bleiswijk

Vernieuwbouw en inrichting van hoofdkantoor van Anthura B.V., veredelaar in Anthurium en Orchideeën. Het project behelst het ontwerp van een nieuwe eigentijdse werk-, ontmoetings- en ontvangstomgeving.

De drager van het bestaande gebouw zijn hergebruikt en het kantoor kreeg een totaal nieuwe gevel en indeling. Op deze manier is het grote kassencomplex betrokken bij de ontvangst- en ontmoetingsomgeving om de sterke identiteit van het bedrijf te vertegenwoordigen en zo een kijkje achter de schermen te geven.

13
14
15

Periode 2016 - 2020

Opdrachtgever

ING Bank N.V.

Projectarchitect

Dorte Kristensen, Costanze Knüpling, Hans kalkhoven

Projectleider

Tobias Thoen

Adres

Bijlmerdreef 109, Amsterdam

Bruto oppervlakte

15.919 m2

16

Renovatie ING, Amsterdam

Atelier PRO ontwierp het gebouw Maple aan de Bijlmerdreef in Amsterdam Zuidoost, en transformeerde daarmee een gedateerd kantoor uit de jaren 80 tot een hoogwaardige werkruimte voor de ING.

De herbestemming is onderdeel van de grotere stedenbouwkundige ontwikkeling van het gebied tot innovatiedistrict Cumulus Park.

De gevel aan de Bijlmerdreef is opgebouwd uit kaders van gekleurd aluminium composiet, met daarin naar voren en naar achter verspringende glazen ruiten; in combinatie met de om-en-om toegepaste erkers zorgt dit voor een gefacetteerd effect, dat de gevel een ‘kristallen’ geometrische structuur geeft.

Naast het ontwerp van de casco-renovatie ontwikkelde Atelier PRO ook het ontwerp van de gehele fit-out en de inrichting.

Hoofdingang

17
18 0 2 10 (m) plattegrond begane grond ING FINANCIAL PLAZA AMSTERDAM ground floor plan ING FINANCIAL PLAZA AMSTERDAM
grond
Begane
19
Vergadercentrum Entreegebied met restaurant
20 Vergadercentrum
21 Centrale collaboration
areas
22
collaboration
Centrale
areas
Derde verdieping Silence area
23

Periode 2020 - 2021

Opdrachtgever

Euromesmarko

Projectarchitect

Thijs Klinkhamer

Projectleider

Thijs Klinkhamer

Adres

Nieuweweg 240, Wijchen

Bruto oppervlakte 850 m²

24

Eromesmarko, Wijchen

Atelier PRO heeft voor Eromesmarko een kantooromgeving met showroomfunctie ontworpen op de verbouwde locatie in Wijchen. Tijdens de renovatie van het pand is ons gevraagd mee te denken over de inrichting van hun werkomgeving met meubilair van de Fair Furniture Group, waar Eromesmarko deel van uitmaakt.

De werkomgeving voor Eromesmarko is ontworpen voor 8 verschillende afdelingen, elk met hun eigen functie en aantal medewerkers met een voorkeur voor actief-, zelfstandig- of samenwerken. De verschillende concepten voor elke afdeling zijn uniek, hebben een eigen kleur en type meubilair en vallen binnen de Fair Furniture Group. (Eromesmarko, Vepa, Nomique, Beta stoelen, Zooi, De lockerfabriek en Nice price office).

25

Periode 2014

Opdrachtgever

Bouwinvest Dutch Institutional Office Fund en CBRE

B.V. Property Management

Projectarchitect

Dorte Kristensen en Naomi Schiphorst

Interieurarchitect

Thijs Klinkhamer

Adres

Beatrixlaan 590, Den Haag

Bruto oppervlakte

1.050 m²

26

Verbouwing en interieur Toren C, Den Haag

In 2005 is in het Beatrixkwartier te Den Haag een grootstedelijk multifunctioneel gebouw gerealiseerd; het Prinsenhof. Tien jaar na de oplevering zijn de huurders van het eerste uur vertrokken. Eigenaar Bouwinvest en beheerder CBRE hebben atelier PRO gevraagd om binnen een seizoen en een vastgesteld budget een verdieping van Toren C van het WTC The Hague compleet te transformeren. Doel van de transformatie was om een ‘modelverdieping’ te maken en hiermee te laten zien hoe een modern bedrijf op een eigentijdse manier in deze nieuwe ruimte gehuisvest kan worden.

Oude situatie

Onder: zelfde perspectief na verbouwing

27

Om de ruimtelijke kwaliteit van de vrijgekomen verhuurbare verdiepingen zo goed mogelijk in beeld te brengen, heeft atelier PRO allereerst de indeling afgestemd op de meest heldere logistiek, de beste oriëntatie, de mooiste lichtinval.

Met de middelen die de methode van Activiteit Gestuurd Werken verschaft, is vervolgens de ruimte ingedeeld in diverse werk- en ontmoetingsruimten.

28
29

Periode 2010 - 2013

Opdrachtgever

Gemeente Zeist

Projectarchitect

Dorte Kristensen en Mira van Beek

Interieurarchitect

Susan Vlemminx en Tamara van Spronsen

Adres

Het rond 1, Zeist

Bruto oppervlakte

7.393 m²

30

Vernieuwd Gemeentehuis Zeist

In het vernieuwde gemeentehuis van Zeist komen vier generaties gemeentehuizen in één ensemble samen. De nieuwe uitbreiding verbindt het historische gemeentehuis uit 1878, het monumentale raadhuis uit 1908 en het Lengkeek-gebouw uit 1984 met elkaar. Elke bouwkundige ingreep op deze bijzondere en historische plek is gevoelig. Voor het realiseren van haar vernieuwde onderkomen en de herontwikkeling van dit gebied stelde de gemeente daarom voorwaarden om de monumenten en historisch belangrijke stedenbouwkundige structuren in het plangebied te behouden.

Atelier PRO ontwierp het interieur en bracht samenhang tussen de verschillende gebouwen met één homogeen interieur. Duurzaamheid en Het Nieuwe Werken waren daarbij belangrijke vertrekpunten, naast de aandacht voor de historische gebouwen en stedelijke ruimten.

31
32
Een deel van de buitengevel van het Lengkeekgebouw is wit geschilderd en decor geworden voor de diensten-balie in de publiekshal Karakteristieke rood-bruin meranti trappen en leuningen zijn behouden

De kozijnen uit het gesloopte interieur zijn hergebruikt in lambriseringen en kastwanden

De realisatie van een duurzaam gebouw was een van de belangrijkste eisen van de gemeente. Zowel in de keuze van techniek, materialen als los meubilair is duurzaamheid een drijfveer geweest: energiezuinige technieken, gebruik van een warmtekoude-opslag voor koelen en verwarmen, natuurlijke materialen, bamboe, on spot werkverlichting, c2c vloerbedekking, behang op gerecycled papier zijn enkele uitwerkingen van de duurzame

Meest in het oog springend is het hergebruiken van de uit het Lengkeek-gebouw gesloopte kozijnen in lambriseringen en kastenwanden. Voor atelier PRO was hergebruik van de bestaande gebouwen een gegeven en vanzelfsprekendheid. De bestaande, hergebruikte delen van het raadhuis zijn voorzien van nieuwe, aanvullende schilisolatie. Het bestaande glas is vervangen door HR++ glas, bij de monumentale gevels zijn voorzetramen toegepast. Het dak van het Lengkeek-gebouw is van nieuwe isolatie voorzien en afgewerkt met plantaardige, witte dakbanen welke gunstig zijn voor het milieu

Het bestaande gemeentehuis had voor aanvang van de werkzaamheden een energielabel G. Het nieuwe gemeentehuis is opnieuw gelabeld en wordt door de duurzame aanpassingen nu beoordeeld met energiela-

33
Eerste verdieping
34 1 1 1 1 3

1 elke verdieping heeft een eigen sfeerthema waardoor de oriëntatie en vindbaarheid is vergroot

2 op iedere verdieping: servicekern met toiletten, stijgpunten, printhoek, pantry en kastruimte (0,5 m / werknemer)

3 voorbeeld van fotobehang in de spreekkamers met dank aan de inzenders van de fotowedstrijd

4 oude Dorpstraatpanden zijn in ere hersteld door toevoeging van kunst, behang en lambrisering van hergebruikte kozijnen

35
1 1 2 2 3 4

Periode 2011

Opdrachtgever

Gemeente Ede

Projectarchitect

Dorte Kristensen

Interieurarchitect

Elisabeth Tukker

Adres

Bergstraat 4, Ede

Bruto oppervlakte

2.100 m²

Looproutes worden logischer: men neemt eerder de trap en de verdiepingen komen beter in verbinding met elkaar.

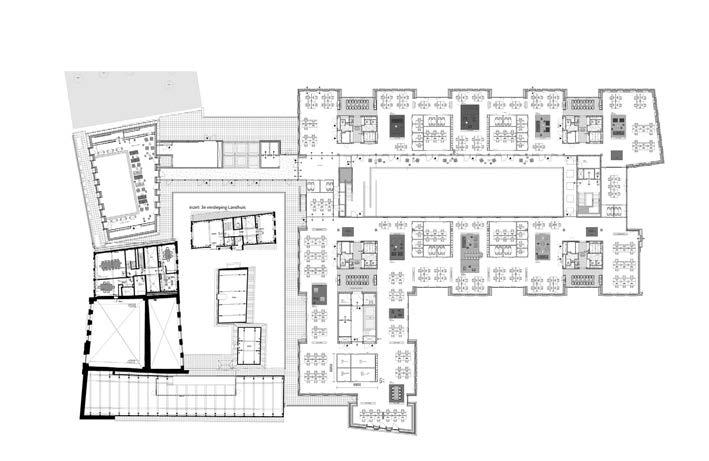
36
get JB den haag 1102 B 02 Interieur Gemeen ehuis Ede Functi ele plattegr d optie A Bouwdeel B 2e verdieping afwasmachine 40 werkplekken 18 zitplekken A bedrijvigheid rust stilte dynamiek

Raadhuis Ede

Atelier PRO heeft het bestaande Raadhuis van Broekbakema (1977) heringericht in het kader van een cultuurveranderingstraject van de gemeente Ede. Het Nieuwe Werken heeft hier zijn intrede gedaan. Na de realisatie kon een huidige tweede huisvesting worden afgestoten. Transparante puien bij de centrale split-level trappenhuizen versterkt het zicht naar andere verdiepingen en vormen zo belangrijke plekken voor ontmoeting. Naast de trappenhuizen zijn ‘huiskamers’ geplaatst waar medewerkers samen komen voor koffie, een informeel gesprek of de afdelingsbijeenkomst. Hier zijn ook de facilitaire voorzieningen zoals panty’s, printers en toiletten.

De kleurfamilie van groenen, gelen en blauwen correspondeert met de ontspannen omgeving van Ede. Lichte natuurlijke tinten bij werkruimten (rust) afgewisseld met kleurige huiskamers (ontmoeting). Houten latten bij de concentratie- en overlegruimten zorgen voor privacy. Leuk detail zijn de verrijdbare krukjes op de werkvloer afkomstig uit de bossen van Ede.

37
Vlnr: huiskamer, overleg/team ruimte, open werkplekken
38
Bestaande Raadhuis voor de verbouwing
39
40

Monumenten

Periode 2012 - 2015

Opdrachtgever

Gemeente Deventer

Projectarchitect

Dorte Kristensen en Naomi Schiphorst

Interieurarchitect

Wessel Reinders, Susan Vlemminx

Adres

Grote Kerkhof 4, Deventer

Bruto oppervlakte

19.500 m²

42

Interieur Stadshuiskwartier Deventer

In het ontwerp voor het Stadhuiskwartier staat het vormgeven van keuzemogelijkheden centraal. Mensen die hier werken, kunnen kiezen uit werkplekken met een grote variatie. Bijvoorbeeld een short-stay plek: hier zit je max 2 uur. Ook als bezoeker heb je keuzes, zoals in de publiekshal. Hoef je maar even je paspoort op te halen? Dan neem je plaats op een houten bank. Als voorbereiding op een langere afspraak kun je je terugtrekken in een rustige hoek. Dit hebben wij ‘Het Nieuwe Wachten’ genoemd.

43
Werkplekken volgens ‘Het nieuwe werken’

Tweede verdieping

Eerste verdieping

Begane grond

44
46
47

Bibliotheek Bijzondere

Collecties UvA

Een aantal panden aan de Oude Turfmarkt in Amsterdam is herbestemd tot bibliotheek Bijzondere Collecties van de Universiteit van Amsterdam. Ondanks strenge monumenteneisen, zag atelier PRO kans het fikse programma in de eeuwenoude structuren te passen. Door een doorbraak te forceren in een vermolmd negentiende-eeuws pand, kon het bestaande hof worden overdekt en fungeert het nu als ‘binnenstraat’. Zo kon er binnen een zeer complexe context een overzichtelijke structuur ontstaan.

Periode

1999 - 2007

Opdrachtgever

Universiteit van Amsterdam

Projectarchitect

Hans van Beek en Dorte Kristensen

Interieurarchitect

Merkx + Girod architecten

Projectleiding

Fred Alebregtse

Adres

Oude Turfmarkt 129, Amsterdam

Bruto oppervlakte

6.151 m

49
Oude situatie Linkerpagina: bestaande gevels opgenomen in overdekte binnenstraat
50

Verschillende werkplekken Interieurontwerp: Merkx + Girod

51
52

Nieuwbouw

Periode

2012-

Opdrachtgever

VU Medisch Centrum

Projectarchitect

Martijn de Visser, Hans Kalkhoven, Alex Letteboer, Bas Woldman

Projecteider

Hans Tak en Paul Vlaar

Adres

Van der Boechorststraat, Amsterdam

Bruto oppervlakte

20.510 m²

54

Research Diagnostiek

Centrum Amsterdam

UMC

Atelier PRO heeft het ontwerp gemaakt voor de nieuwbouw van het Research Diagnostiek Centrum dat deel uitmaakt van het Amsterdam UMC. Het gebouw met kantoren en laboratoria aan de Van der Boechorststraat, is ongeveer 28.100 m² groot en is onderdeel van een grotere, toekomstige uitbreiding aan de zuidzijde van het bestaande VUmc–complex aan de Boelelaan in Amsterdam. Het gebouw is flexibel in opzet als een toekomstbestendige huisvesting voor het zogenaamde ‘Adore’ project. ADORE staat voor Amsterdam Oncology and Neuroscience Research en behelst een nieuwe manier van medisch-wetenschappelijk onderzoek waarin het gebruik van de synergiën tussen oncologisch en neurowetenschappelijk onderzoek centraal staat.

In het ontwerp van atelier PRO is sterk de nadruk gelegd op een combinatie van het concept ‘healing environment’, duurzaamheid en flexibiliteit. Het gebouw bevat twee atria die fungeren als ‘groene longen’: het zijn getemperde buitenklimaatzones met binnentuinen waaromheen clusters van werkruimtes worden gegroepeerd.

55

Periode

2014- 2021

Opdrachtgever

KK Sud-West

Projectarchitect

Alex Letteboer, Martijn de Visser, Constanze

Knüpling en Menno Roefs

Projectleiding

Ronald Peters en Martin Busch

Adres

Europaallee, Saarbrücken, Duitsland

Bruto oppervlakte

21.682 m² (incl parkeergarage)

56

Hoofdkantoor IKK SüdWest, Saarbrücken

Het administratiegebouw van het IKK is een gebouwencomplex met ca. 19.200 m² kantoorruimte, evenals andere functies zoals een klantencentrum en een kantine met een garage met ca. 110 parkeerplaatsen. Het ontwerp van Atelier PRO maakt optimaal gebruik van de kwaliteiten van het terrein en de randvoorwaarden, zoals het optimaal inspelen op niet te overschrijden hoogtes, kabeltracés en geluidsoverlast van het spoor. Hierdoor ontstaat een sculpturale bouwvorm, gevormd rond twee centrale atria.

Het gebouw presenteert zich anders naar de verschillende toegangsstraten van het centrum, naar het spoor en naar de centrale toegangsas van de Europaallee.

57

Periode 2011- 2014

Opdrachtgever

Enexis

Projectarchitect

Alex Letteboer en Bas Woldman

Projectleiding

Jaco de Koning

Adres

Willem Alexanderweg

Maastricht, Greenpark Venlo, Marslanden Zwolle

Bruto oppervlakte

5912 m² (Maastricht), 5429 m² (Venlo), 5055 m² (Zwolle)

De vorm van de energiebesparende, zelfbeschaduwende gevelmodules is geïnspireerd op een kunstwerk van de Delftse kunstenaar Jan Schoonhoven

58

3 Regiokantoren Enexis, Maastricht, Venlo en Zwolle

Met drie nieuwe energieneutrale regiokantoren met bedrijfsruimte in Venlo, Maastricht en Zwolle, stapt netbeheerder Enexis een nieuw tijdperk binnen, waarbij de ontwikkeling van een intelligent elektriciteitsnet samengaat met de bouw van duurzame huisvesting.

De gebouwen voldoen mede door een groene long en een zelfbeschaduwende gevel aan zeer hoge duurzaamheideisen. De energieneutrale kantoren zijn gecertificeerd met een BREEAM Excellent score; in deze combinatie een primeur in Nederland.

59
60

Enexis Maastricht

61 1 2 3 4 5 6 7 7 7
Begane grond 1 vergaderruimten
2 restaurant 3 groene long 4 werkplaats 5 voertuigen stalling 6 opslag 7 kantoor
62

Enexis Zwolle

Links: de groene long zorgt voor passieve verwarming van de ventilatielucht in de winter. Rechts: kantoren

63 0 (m) 5 20 plattegrond begane grond Enexis Zwolle ground floor Enexis Zwolle Begane grond
64

Enexis Venlo

65
Links: entreeruimte interieurontwerp door Groen en Schild

Periode 2005 - 2009

Opdrachtgever

Gemeente Bronckhorst

Projectarchitect

Dorte Kristensen en Christina Kaiser

Interieurarchitect

Tamara van Spronsen en Thijs Klinkhamer

Adres

Elderinkweg 2, Hengelo

Bruto oppervlakte

7.573 m²

66
Gemeentehuis Bronckhorst situatie

Gemeentehuis

Bronckhorst, Hengelo

Gemeentehuis Bronckhorst is het resultaat van de bundelding van een veertigtal dorpen en buurtschappen tot een van de grootste plattelandsgemeenten van Nederland. In het gebouw zijn kantoorfuncties, vergaderruimtes, een openbare receptie en een raadzaal ondergebracht.

Het gebouw combineert het toepassen van passiefbouwen technieken met een karakteristiek in het landschap ingepaste volume. Een uitzonderlijk energiezuinig gemeentehuis.

67
68
69
70
71 Atelier PRO architects Kerkhoflaan 11a 2585 JB Den Haag +31(0)70 3506900 info@atelierpro.nl www.atelierpro.nl

Turn static files into dynamic content formats.

Create a flipbook
Issuu converts static files into: digital portfolios, online yearbooks, online catalogs, digital photo albums and more. Sign up and create your flipbook.