Portfolio interieur

Huisvesting atelier PRO, Den Haag
Herinrichting en interne renovatie van Berlage Lyceum, Amsterdam
Meander Centrum voor oncologische zorg, Amersfoort
Kantoor Anthura, Bleiswijk
Renovatie ING Maple, Amsterdam
Eromesmarko, Wijchen
Inbreiding & her-inrichting Museum Allard Pierson
Lumion, Amsterdam
Woonzorgcentrum Scheldehof
Interieur Carmel College Salland
Verbouwing en interieur Toren C
PRO Table
Cultuurhuis De Klinker, Winschoten
Interieur Stadskwartier, Deventer
Metis Montessori Lyceum Oosterpark
Uitbreiding Metis Montessori Lyceum
Admiraal de Ruyter ziekenhuis (ADRZ), Vlissingen
De Mosselbank
Meander Medisch Centrum, Amersfoort
Healing Sofa
Ser viceplein de Meerpaal, Dronten
Onder wijspark Ezinge, Meppel
Gemeentehuis Bronckhorst
Zorgcentrum Willibrord
Gemeentehuis Zeist
Raadhuis Ede
Interieur MFC De Statie, Sas van Gent
ROC Graafschap College, Doetinchem
Beneden tuin
Tuin boven het Forum
Begane grond entreegebied
Entreegebied, een van de vele uitbreidingen. De oorspronkelijke buitengevel van het gebouw is nu binnenmuur.
huisvesting subtiel ingepast in duinbostuin
Sinds 1976 is atelier PRO gevestigd aan de Kerkhoflaan in Den Haag. Wat begon als een kleine groep enthousi aste vakmensen is in de loop der jaren uitgegroeid tot een bureau van vijftig professionals met ambitie.
Door de organische groei van het bureau is de huisves ting door de jaren heen uitgebreid. Bij elke uitbreiding heeft atelier PRO zich laten inspireren door de kracht van de locatie en respect voor de duinomgeving. Deze gedachte van ‘genus loci’ ligt ten grondslag aan alle ontwerpoplossingen van onze architecten. Ons eigen bureau is daar een sprekend voorbeeld van.
Het Forum. Hier zijn onder de duinen werkplekken gecreëerd.
Periode 2020Opdrachtgever Esprit Scholen
Projectarchitect
Dorte Kristensen, Constanze Knüpling, Wessel Reinders
Projectleiding Paul Vlaar
Adres Pieter Lodewijk Tak
straat,33-34 Amsterdam
Bruto oppervlakte 10.200 m²
herstellen van oude glorie met respect voor historische waarde
Het Berlage Lyceum is een Unesco-school voor twee talig onderwijs (voor mavo, havo, vwo en gymnasium). Vrijheid van denken, tolerantie, waardering, uitdaging, elkaar stimuleren en wereldburgerschap staan hoog in het vaandel en vormen onderdeel van het DNA. De school heeft haar ambitie als volgt gedefinieerd: “Versterk de goede dingen die wij hebben en verras ons met dingen die wij niet hebben”.
In de visie van atelier PRO wordt de oude glorie van de school hersteld, met respect voor de historische waarde van de monumentale elementen. Door respectvolle ingrepen wordt een nieuwe, moderne leeromgeving gemaakt. En door het interieur hedendaags te maken, krijgt het Berlage Lyceum gebouwen die passen bij haar leervisie en identiteit.
Periode 2019- 2021
Opdrachtgever Meander
Medisch Centrum
Projectarchitect Dorte
Kristensen, Thijs Klinkhamer
Projectleiding Ronald Peters
Adres Maatweg 3, Amersfoort
Bruto oppervlakte 1.000 m²
In 2021 heeft Meander Medisch Centrum Amersfoort een eigen centrum voor oncologische zorg gekregen. Dit is een speciale kliniek voor alle oncologische aandoeningen. Hiermee komt de filosofie achter het oorspronkelijke ontwerp van het ziekenhuis, ‘de mens centraal’, een stap dichterbij.
Waar voorheen de behandelende specialismen ver spreid waren over het ziekenhuis, waardoor patiënten altijd naar de verschillende afdelingen moesten, zitten ze nu bij elkaar in een kliniek.
Links: Huiskamer behandeling en nazorg
Onder: Wachtkamer diagnostiek
Periode 2019-2022
Opdrachtgever Anthura
Projectarchitect Hans kalkhoven, Amal Habti Projectleiding
Hans Kalkhoven, Tobias Thoen
Adres Anthuriumweg 14, Bleiswijk
Bruto oppervlakte ca 2930 m²
Situatie
hoofdkantoor voor specialist in anthurium en orchidee
Herinrichting en verbouwing van bestaande hoofd kantoor van Anthura B.V., veredelaar in Anthurium en Orchidee. Het project behelst het ontwerp van een nieuwe eigentijdse werk-, ontmoetings- en ont vangstomgeving.
Van het bestaande gebouw zijn de drager hergebruikt en kreeg het kantoor een totaal nieuwe gevel en indeling. Op deze manier is het grote kassencomplex betrokken bij de ontvangst- en ontmoetingsomgeving om de sterke identiteit van het bedrijf te vertegenwoor digen en zo een kijkje achter de schermen te geven.
Ontwerpperiode
Opdrachtgever ING Bank N.V.
Dorte Kristensen en
Knüpling
Interieurarchitect
Wessel Reinders
Projectleider Tobias Thoen
Adres Bijlmerdreef 109, Amsterdam
Bruto oppervlakte 15.919 m2
Eerste
een tweede leven voor kantoorgebouw uit de jaren tachtig
Atelier PRO heeft de renovatie ontworpen van het ING Maple gebouw. Vanaf 2019 maakt ING Maple onderdeel uit van het Amsterdamse innovatiedistrict Cumulus Park, een initiatief van ING aan de Bijlmerdreef. ING Maple (een oorspronkelijk ontwerp van Broek Bakema uit de jaren tachtig) is een langgerekt gebouw dat verknoopt zit aan een parkeergarage, een woonblok en de verschillende niveaus van het winkelgebied in de Amsterdamse Poort.
Atelier PRO heeft voor Eromesmarko een kantooromge ving met showroomfunctie ontworpen op de verbouwde locatie in Wijchen. Tijdens de renovatie van het pand is ons gevraagd mee te denken over de inrichting van hun werkomgeving met meubilair van de Fair Furniture Group, waar Eromesmarko deel van uitmaakt.
De werkomgeving voor Eromesmarko is ontworpen voor 8 verschillende afdelingen, elk met hun eigen functie en aantal medewerkers met een voorkeur voor actief-, zelfstandig- of samenwerken. De verschillende concepten voor elke afdeling zijn uniek, hebben een eigen kleur en type meubilair en vallen binnen de Fair Furniture Group. (Eromesmarko, Vepa, Nomique, Beta stoelen, Zooi, De lockerfabriek en Nice price office).
Inbreiding
Periode 2017- 2020
Opdrachtgever
Universiteit
Projectarchitect
Kristensen, Lisette Plouvier, Wessel Reinders
Interieurarchitect
Wessel Reinders, Dorte Kristensen
Projectleiding Eelko
Wessel
Adres Oude
Bruto
Schuine lijnen binden de hoogtespron gen van de oude daken.
verborgen diamant aan de Oude Turfmarkt
Atelier PRO ontwierp de nieuwbouw en renovatie voor het Allard Pierson, een monumentale universitaire kennis- en erfgoedinstituut van de Universiteit van Amsterdam. Binnen de bestaande rooilijnen is een transparante, inbreiding gerealiseerd.
Met de transparante nieuwbouw uit staal en glas blijft dit ensemble leesbaar en zijn de diverse hoogte sprongen gebonden met een nieuwe voorgevel. Door de nieuwe inbreidingsruimte te verbinden met de bestaande ruimtes in het gebouw is een compactere routing door de collectiepresentaties gecreëerd.
Een nieuwe trap verbindt de nieuwe ruimte en het oude.
De schuine gevellijnen binden de diverse hoogtesprongen van de botsende dak- en gevelniveaus.
Periode 2015-2019
Opdrachtgever
Gemeente Amsterdam
Projectarchitect Dorte Kristensen en Martijn Visser
Projectleider Eelko Bemener
Interieurarchitect Amal Habti
Adres Vlaardingerlaan 25, Amsterdam
Bruto oppervlakte 14.100 m²
Renovatie 6.410 m²
Nieuwbouw 7.690 m²
Totale bouwkosten
€ 14.400.000,-
Winner of Silver World Architecture News (WAN) 2020 Award
Nominatie World Interior News (WIN) 2020 Award
Nominatie Nationale Staalprijs 2020 in de categorie ‘karakteristieke stalen bouwdelen’
Nominatie ArchDaily 2021 Building of the Year Awards
Lumion is een middelbare school voor MAVO /HAVO / VWO. De school is gehuisvest aan de Vlaardingenlaan 25 in Amsterdam. Daarbij is gebruik gemaakt van delen van het monumentale schoolgebouw dat zich op de locatie bevindt. Het gaat om één van de jongste monu menten in Nieuw-West, en is gebouwd in 1973 naar een ontwerp van architect J.B. Ingwersen. Het brutalistische gebouw kenmerkt zich door het gebruik van veel beton en glas en grote overkragingen.
In de vernieuwde school is de bovenbouw in het gere noveerde monument gerealiseerd, de onderbouw kreeg een geheel nieuw bouwdeel dat door een transparante centrale hal met het monument verbonden is. Op het terrein is ook een nieuwe sporthal gerealiseerd.
Lumion is de eerste partner van Kunskapsskolan Nederland.
Een nest genoemd ‘Nature Takes Over’; open leergebied dat op elke verdieping een ander thema kent.
Verwonderzaal ‘Britse Lagerhuis’ voor debatten en discussies.
Mary Quant, wordt geassocieerd met de wereld op zijn kop zoals in de jaren ‘60 van de vorige eeuw.
In de gerenoveerde oudbouw zijn voor de bovenbouwleerlin gen diverse vrije leeromgevingen beschikbaar.
Boven: een nest genoemd ‘Escher meets Einstein’.
Onder: een van de vele leer ruimtes voor de bovenbouw
Periode 2012 - 2017
Opdrachtgever WVO Zorg Architect atelier PRO
Projectarchitect
Dorte Kristensen en Christina Kaiser
Interieurarchitect Thijs Klinkhamer
Projectleider Marjon Main
Adres Peperdijk en Wagenaarstraat, Vlissingen Bruto oppervlakte 19.030 m²
Zorggebouw van het jaar 2018
WAN Award Healthcare 2018
Nominatie Gouden Piramide 2018 Nominatie StiB Award 2018 Nominatie Beste vastgoedzorgproject 2018
in de grote lege hal bouwen we nieuwe vloeren op de verdiepingen maken we woningenwe maken ruimte voor gezel ligheid op de begane grond
Schematisch uitleg van het ontwerpconcept van de Plaat werkerij
Linker pagina vlnr: De Plaatwer kerij en nieuwbouw. De stalen constructies zijn zichtbaar geble ven. Andere zichtbare elementen zijn de enorme stalen deuren, een binnenhijskraan en de dak constructie op kolossale poten met daarop oorspronkelijke markeringen die de vroegere bedrijvigheid verraden.
Restaurante op de begane grond, ook toegankelijk voor het publiek.
In en naast de voormalige zware Plaatwerkerij op de Scheldewerf in Vlissingen is nu een uniek woonzorg centrum gevestigd. Dit spiksplinternieuwe zorgcentrum omvat tevens een mix van publieksvoorzieningen als brasserie, ateliers, bioscoop, theater, kapsalon, win kels en parkeergarage. Een boeiende opgave om zo’n kolossaal gebouw na jaren een nieuwe invulling te geven. Deze locatie versterkt het collectief geheugen; sommige bewoners van nu zijn de werknemers van de Plaatwerkerij toen. Bovendien is dit project een aanja ger voor een vergeten stedelijk gebied.
In de Plaatwerkerij bevinden zich 120 units voor soma tische en psychiatrische patiënten. Psycho-geriatrische patiënten zijn ondergebracht in de nieuwbouw die ook gebruikt wordt voor zelfstandige bewoning zonder zorg. Deze opzet zorgt voor sociaal verkeer en vitaliteit in het gebouw.
woonunits voor dementerende ouderen liggen rondom de (binnen)wintertuin. Dit waarborgt bewegingsvrijheid en veiligheid. De deuren staan zo veel mogelijk open waardoor de ouderen vrijelijk kunnen struinen door de wintertuin en bij elkaar op bezoek kunnen. Her senen gaan steeds verder terug naar de kinder tijd en het ergste dat je kunt doen is kinderen opsluiten. We willen een open huis, ook voor demente bewoners.
Atelier PRO heeft een maatsystematiek ontwikkeld, waardoor de drie typen zorgwoningen onderling kunnen uitwisselen. Met als eindresultaat een bijzonder fraaie en innovatieve zorginstelling. Op deze wijze kunnen relatief simpel veranderingen aangebracht worden om aan te sluiten op de veran derende zorgvraag
Woningen
Rechts: woonkamerparcour in plaats van gangen in de Plaat werkerij, met geheugenwanden naast de woningingangen. Hier kunnen persoonlijke attributen van vroeger worden opgehan gen. Dit zorgt voor thuisgevoel en helpt als het geheugen het laat afweten. Deze ruimte is bestemd om gasten te ontvan gen, te klaverjassen en andere gezelligheid.
Apparte menten inclusief mogelijkheid tot zorg (aanleunwo ningen)
Alle installaties zijn verticaal geor ganiseerd voor maximale flexibili teit en toekomst
Rechts: Trap en psychoge riatrische woonkamer in de nieuwbouw. Dementie betekent dat zintuigen slechter worden. Op het eind is het enige overge bleven zintuig de tast. Daarom hebben we in de kamers ver schillende stofferingen gebruikt voor kleden en meubels. Dat prikkelt.
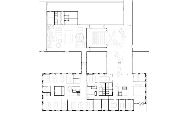
Periode 2012 - 2015
Opdrachtgever
Carmel College Salland Projectarchitect
Dorte Kristensen, Martijn de Visser
Interieurarchitect
Thijs Klinkhamer Projectleider
Eelko Bemener, Tobias Thoen Adres Hofstedelaan 4, Raalte Bruto oppervlakte 8.909 m² Bouwkosten € 8.000.000,-
50 20 (m)
plattegrond begane grond interieur Carmel college Raalte groundfloor interior CarmelcollegeRaalte
De domeinen zijn flexibel in gebruik. Bij de indeling is rekening gehouden met de aard van het gebruik, van druk naar geconcen treerd.
ingetogen & ruimtelijk met aangename en prikkelende leerplekken
Atelier PRO heeft voor de Havo/VWO leerlingen van het Carmel College in Raalte een geheel vernieuwde leeromgeving ontworpen.
Doel was om voor de ruim 1500 leerlingen een school te ontwerpen die klein en prettig in gebruik aanvoelt. Een school waar de leerling centraal staat. Om dit doel te bereiken is bijzondere aandacht besteed aan kleinschaligheid. Het resultaat is een gebouw met aan gename en prikkelende leerplekken, waar binnen en buiten natuurlijk in elkaar overgaan.
Leerpleinen en sfeerbeelden Links onder: De bank is speci aal ontworpen voor de school en is op verschillende manie ren te gebruiken
Periode 2014
Opdrachtgever
Bouwinvest Dutch Institutional
Office Fund en CBRE B.V.
Property Management Projectarchitect
Dorte Kristensen en Naomi Schiphorst
Interieurarchitect
Thijs Klinkhamer
Projectleider Ernstjan Cornelis Adres
Beatrixlaan 590, Den Haag Bruto oppervlakte 1050 m²
In 2005 is in het Beatrixkwartier te Den Haag een groot stedelijk multifunctioneel gebouw gerealiseerd; het Prinsenhof. Tien jaar na de oplevering zijn de huurders van het eerste uur vertrokken. Eigenaar Bouwinvest en beheerder CBRE hebben ate lier PRO gevraagd om binnen een seizoen en een vast gesteld budget een verdieping van Toren C compleet te transformeren. Doel van de transformatie was om een ‘modelverdieping’ te maken en hiermee te laten zien hoe een modern bedrijf op een eigentijdse manier in deze nieuwe ruimte gehuisvest kan worden.
Om de ruimtelijke kwaliteit van de vrijgekomen verhuurbare verdie pingen zo goed mogelijk in beeld te brengen, heeft atelier PRO aller eerst de indeling afgestemd op de meest heldere logistiek, de beste oriëntatie, de mooiste lichtinval. Met de middelen die de methode van Activiteit Gestuurd Werken verschaft, is vervolgens de ruimte ingedeeld in diverse werk- en ont moetingsruimten.
Met zijn robuuste karakter is de PRO Table geschikt voor zowel het moderne kantoor en als eet-, werk- en leestafel thuis.
ontwerp van atelier PRO architekten
De PRO Table is ontworpen door atelier PRO architek ten voor de nieuwe kantoren in het Stadhuiskwartier te Deventer. De tafel heeft een stalen onderstel met kenmerkende A-lijn vorm en is verkrijgbaar in twee stan daard maten.
Het tafelblad kan worden afgewerkt met hout, linoleum of corian. Met zijn robuuste karakter is de PRO Table ideaal voor het moderne, grotendeels papierloze kan toor en in huis als lees-, werk- of eettafel.
De PRO Table wordt geproduceerd door Van der Plas Meubel & Project.
Afmetingen:
Blad afwerking: hout, corian, linoleum in diverse kleuren
Frame: poedercoat zwart, wit, grijs en antraciet
Periode 2009 - 2014
Opdrachtgever
Gemeente Winschoten
Projectarchitect
Dorte Kristensen en Lisette
Plouvier
Interieurarchitect
Lisette Plouvier
Projectleider Eelko Bemener
Adres
Oldambtplein, Winschoten
Bruto
ca 7.800
Doorsnede
Vlnr: zicht op de bibliotheek, receptiebalie/foyer en café
culturele baken van het noorden
Het Cultuurhuis in Winschoten is een huis waar expres sie in al haar dimensies zal worden beoefend, getoond en bewonderd. In dit gebouw, waar ‘verschillende’ bezoekers samenkomen, zijn op dynamische wijze een theater, muziekschool en bibliotheek in één cultuurhart samengevoegd. Dit laat zich vertalen in een compo sitie van verlichte witte vlakken, vloeiende vormen en het houten monoliet van de theaterzaal, als ware een sprookjesachtig decor voor het culturele leven van Win schoten.
Atelier PRO heeft de interieuropdracht voor het gehele Cultuurhuis excl. bibliotheek.
Periode 2012 - 2016 Opdrachtgever Gemeente Deventer Projectarchitect Dorte Kris tensen en Naomi Schiphorst Interieurarchitect Wessel Reinders, Susan Vlemminx en Thijs Klinkhamer Adres Grote Kerkhof 4, Deventer
Bruto oppervlakte 24.000 m²
Renovatie 4.500 m2 Restauratie 4.500 m2
het nieuwe wachten naast het nieuwe werken
Atelier PRO was verantwoordelijk voor de renovatie en restauratie van de monumentale delen van het nieuwe stadhuis. We brachten de oude glorie van de sfeervolle stijlkamers en kantoren in deze historische delen zoveel mogelijk terug en hebben die verder versterkt in het kleurgebruik. De ruimtes zijn zorgvuldig ingericht met enerzijds antieke, maar anderzijds ook eigentijdse elementen, waarin de laatste technologie is verwerkt. Deze nieuwe toevoegingen passen mooi en vanzelfsprekend in het historische karakter. In ons ontwerp staat het vormgeven van keuzemogelijkheden centraal. De tafels hier zijn multi-inzetbaar en snel in opstelling aan te passen: als één grote vergadertafel of opgedeeld in separate delen voor kleinere gesprekken. Maar ook als bezoeker heb je keuzes. Hoef je maar even je paspoort op te halen? Dan neem je plaats op een houten bank. Als voorbereiding op een langere afspraak kun je je terugtrekken in een rustige hoek. Dit hebben wij ‘Het Nieuwe Wachten’ genoemd.
Links: Het Nieuwe Wachten op het publieksplein
Rechts: Centrale receptiebalie Publieke ruimte
Periode 2011 - 2012
Opdrachtgever Montessorie
Scholengemeenschap Amsterdam
Interieurarchitect Dorte Kristensen en Elisabeth Tukker
Projectleider Paul Verhaar
Adres Mauritskade 58, Amsterdam
Bruto oppervlakte 3.873 m² Bouwkosten € 2.700.000,-
Een open leerplein dat mid dels een nieuwe opening in de wand meer zichtbaarheid heeft gekregen vanuit de centrale ver keerszone
Open leerplein met links de balie voor personeelsleden en deel schoolleider
De monomentale trappenhui zen zijn voorzien van akoestich dempende wandpanelen, een kunstwerk van Chris Vermaas ism Chin-Lien Chen
Open leerplein met nieuwe inrichting
renoveren naar Montessorionderwijs HAVO/VWO anno 2013
Onderwijs veranderd met de tijdsgeest. Dit geldt ook voor het statige monumentale schoolgebouw aan de Mauritskade 58 in Amsterdam uit 1904. Atelier PRO heeft dit pand aan de rand van het Oosterpark, door renovatie en verbouwing geschikt gemaakt voor het Montessorionderwijs HAVO/VWO anno 2013. Met res pect voor het oude is op de bestaande structuur voort geborduurd, zodat de nieuwe vormgeving en inrichting de bijzondere authentieke detaillering verstrekt.
Het oorspronkelijke 3-laagse gebouw bestaat uit een structuur van lange gangen en statische klaslokalen, waarmee niet voldaan werd aan de huidige onderwijs opvattingen. Open leerpleinen hebben het ritme van de aaneengeschakelde lokalen doorbroken en zijn op een moderne manier gekoppeld aan de trappenhuizen en gangen.
Periode 2014 - 2018
Opdrachtgever Montessori
Scholengemeenschap
Amsterdam
Projectarchitect
Dorte Kristensen, Sandrine
Rointru en Naomi Schiphorst
Interieurarchitect
Thijs Klinkhamer, Amal Habti
Projectleiding
Naomi Schiphorst, Paul Vlaar
Adres Mauritskade 58, Amsterdam
Bruto oppervlakte 4.674 m²
Totale bouwkosten
€ 6.479.895,-
De gevel is voorzien van een opvallende, zwart geper foreerde panelen, deze fungeren als zonwering en zijn onderdeel van het kunstwerk ‘Here Comes The Sun’
les krijgen met uitzicht op het groen
Nieuwe school 2014-2016
Door een toenemend aantal leerlingen had de Montessori School Amsterdam behoefte aan meer onderwijsruimte. Daarom creëerde atelier PRO een schoolontwerp voor een uitbreiding die volledig voldoet aan de criteria van hedendaagse schoolseisen.
De nieuwbouw past naadloos in het historische Ooster park en tegelijkertijd maakt het interieur gepersonali seerd leren mogelijk.
Leerplein
Periode 2015 - 2016
Opdrachtgever Zorgvastgoed Zeeland
Architect atelier PRO
Projectarchitect
Dorte Kristensen en Menno Roefs
Interieurarchitect Wessel Reinders
Projectleiding
Menno Roefs, Wessel Reinders
Adres Koudekkerkseweg 88, Vlissingen
Bruto vloeroppervlakte 11.669 m² nieuwbouw 455 m² renovatie 11.214 m²
Bouwkosten € 15.000.000,-
De ruimtelijkheid, de afwerking en inrichting van het nieuwe atrium maken het wachten, in vaak spanningsvolle omstandigheden, minder onaangenaam
Omdat het Admiraal de Ruyter Ziekenhuis in Vlissingen niet meer aan de eisen voldeed en te groot was om te kunnen exploiteren is atelier PRO gevraagd een ontwerp te maken voor de renovatie en gedeeltelijke nieuwbouw.
Het gebruik van groen en veel daglicht kenmerken het ontwerp. Deze uitgangspunten dragen bij tot een zo pret tig mogelijk verblijf en een goed functionerend helder gebouw voor patiënten, bezoekers en personeel. De revitalisatie is mogelijk gemaakt door crowdfunding.
ontworpen in scheveningen voor een ziekenhuis in Zeeland
De Mosselbank is bedacht op de grens van Schevenin gen, waar ons bureau is gevestigd. Maar hij staat ergens waar nog echte mosselmannen zijn: Zeeland!
De plaatsing van deze wachtelementen makt, met de overige inrichting, deel uit van de revitalisatie van het vernieuwde Admiraal de Ruyter Ziekenhuis in Vlissingen.
Atelier PRO maakte voor de architectuur en het interieur het ontwerp. De ruimtelijkheid, de afwerking en inrich ting van het nieuwe atrium maken het wachten, in vaak spanningsvolle omstandigheden, minder onaangenaam. Deze loungeruimte is licht, het uitzicht is groen en je kunt plaats nemen op de opvallende zitmeubels, de mosselbanken. Kan het Zeeuwser? Dit sterke regionale karakter is met de keuze van kleuren, materialen en vormen ook terug te vinden in het overige interieur. De losse inrichtingselementen zijn door atelier PRO ont worpen in samenwerking met projectinrichter Weststrate uit Middelburg.
Periode 2006 - 2013
Opdrachtgever
Meander Medisch Centrum Projectarchitect
Hans van Beek ism Mark Bruin, Jeroen Ekama, Paul Fouchier, Emile Jansen, Menno Roefs
Interieurarchitect
Wessel Reinders, Thijs Klinkhamer, Ellen Vaal
Adres Maatweg, Amersfoort Bruto oppervlakte
Aantal bedden / kamers 600 - 584
Ingang van het ziekenhuis met de ‘loper’ als toegang voor voetgangers en fietsers
Vlnr: De Laan, de Foyer met auditorium, Oranjerie, restau rant als ontmoetingsplein en wachtruimte in de Brink.
De Oranjerie, wachtruimte voor apotheek, priklab en poliklinieken.
een ziekenhuis waar je goed de weg vindt
Meander Medisch Centrum is met een BVO van 112.000m² een grootschalige zorginstelling. Een der gelijk gebouw kan snel uitmonden in een medische machine, wanneer niet gelet wordt op de menselijke schaal en de kleinste behoeftes. In het kader van gene zing en rust heeft atelier PRO een medisch centrum ontworpen waarin een menswaardige omgeving is gecreëerd die in nauw contact staat met de ecologische waarde van de omliggende groene omgeving van de Eemscheg. De inrichting betreft alle openbare gebieden (zoals restaurant, oranjerie, apotheek en ontmoetings ruimtes), de patiëntenverblijven, de balies, pantry’s en wachtruimtes.
Traditioneel ziekenhuis met meer persoonskamer
Modern ziekenhuis met een persoonskamers en brede gang
Meander Medisch Centrum met een persoonskamers en centrale ontmoetingsruimte (scheg)
Schegvormige gang
Eenpersoonskamer; variatie in kleur en materialisatie op achter wanden van de kamers
Door atelier PRO speciaal ontwor pen bedbank
De Healing sofa in het Mean der Medisch Centrum
ontwerp van atelier PRO architekten gemaakt door Keijsers
Slapen in een ziekenhuisbed is toch anders dan thuis. Zeker na een operatie of bij langdurige ziekte. Een ver trouwd iemand in de buurt is voor de patiënt dan heel plezierig. Daarom heeft atelier PRO dit multifunctioneel Healing Sofa ontworpen. Dit rooming-in meubel is uniek in Nederland en in samenspraak met het Mean der Medisch Centrum ontwikkeld.
Het is een van de eerste, multifunctionele zorgmeubels voor de professionele instellingen. De Healing Sofa is een combinatie van bureau, logeerbed, bank en tafel.
De Healing Sofa wordt geproduceerd door Keijsers Lun diform.
Overdag fungeert het meubel als bank. Het is zodanig ontworpen dat het prak tisch inpasbaar is, eenvoudig om te bouwen en een fraai geheel vormt met de overige inrichting van de patiënten kamer.
Opdrachtgever De Meerpaal en Flevomeer Bibliotheek
Projectarchitect
Dorte Kristensen, Mira van Beek
Team Leon Verhoeven, Thijs Klinkhamer, Wessel Reinders
Projectleider
John Koks, Mira van Beek
Adres De Rede 80, Dronten
Bruto oppervlakte 750 m² Bouwkosten € 218.400,-.
verbouwing en inrichting.
In 2005 wilden alle organisaties in De Meerpaal een eigen balie maar tijden zijn wederom veranderd: bezoe kers van de bioscoop en het theater kopen bijvoorbeeld nauwelijks nog kaartjes aan de kassa. Tegelijkertijd willen de Meerpaal en de bibliotheek (nog) meer een trefcentrum zijn voor de inwoners van Dronten. De oplossing is gevonden in het samenvoegen van alle klantcontactfuncties van de organisaties en het toevoe gen van een lichte horecafunctie. Hierdoor is het toch mogelijk op ieder tijdstip van de dag bezoekers te woord te staan en van dienst te zijn en wordt het aantrekkelij ker nog even te blijven plakken of met een tijdschrift te wachten tot de muziekles van een kind is afgelopen
Het nieuwe serviceplein in De Meerpaal in Dronten, kortom, is een laagdrempelige, levendige plek met een podium en goede koffie.
Periode 2011 - 2014
Opdrachtgever Woonconcept
Onroerend Goed bv
Projectarchitect Dorte
Kristensen en Christina Kaiser
Interieurarchitect
Thijs Klinkhamer
Projectleiding Christina Kaiser en Ronald Peters
Adres
Ezingerweg 51- 85, Dhaliastraat 2 en 4, Ambachtsweg 2, Meppel Bruto oppervlakte
scholen 22.468 m², sport indoor 7.594 m²
Kosten per m² €966,Totale bouwkosten € 29.000.000,
Ground floor
Campus: ‘kleine’ scholen in een groot complex
Onderwijspark gezien vanaf de sportvelden
huisvesting nieuwe stijl
Onderwijspark Ezinge is een complex dat vijf verschil lende scholen huisvest. Een HAVO/VWO, VMBO, MBO, een school voor moeilijk lerende kinderen en een school voor moeilijk opvoedbare kinderen zijn hier samengebracht en worden ondersteund door een sport accommodatie en ruimte voor onderwijsgerelateerde bedrijvigheid. De afzonderlijke scholen zijn herkenbaar door de geheel eigen binnensfeer en een eigen school hart. Door de horizontale verdeling, die tevens subtiel in hoogte varieert, is de massa visueel opgedeeld in klei nere volumes. Hierdoor anticipeert het gebouw op de kleinere schaal van de naastgelegen woonwijk. Hoewel de scholen zelfstandig opereren met eigen theorielo kalen en leerpleinen, zijn ze onderling verbonden aan de hand van gedeelde, strategisch geplaatste praktijkonderwijslokalen. Een centraal gelegen watervaltrap langs vides en spannende loopbruggen vormt een ware ‘route architecturale’ door het gebouw.
Links: auditorium van het Lyceum (HAVO / VWO)
Onder: verschillende onder wijsruimten van het Lyceum
Periode 2007 - 2009
Opdrachtgever
Gemeente Bronckhorst
Projectarchitect
Dorte Kristensen en Christina Kaiser
Interieurarchitect Tamara van Spronsen, Thijs Klinkhamer (atelier PRO)
Adres
Elderinkweg 2, Hengelo (Gld)
Bruto oppervlakte 7.573 m² Bouwkosten € 14.000.000,-
Het ontwerp is bijzonder omdat het consequent toepassen van passief bouwen technieken in de utiliteits bouw in Nederland, voor zover bekend, niet eerder was voorgeko men. Hiermee is een robuuste basis gelegd voor een zeer energiezuinig gebouw.
Vide met links ruimte voor projectgroep
Het gemeentehuis bevat kantoorfuncties, verga derruimtes, een openbare receptie en een raadzaal
uitzonderlijk duurzaam en energiezuinig gemeentehuis
Gemeentehuis Bronckhorst is volledig ingericht volgens de principes van het Nieuwe Werken: geen vast bureau, zo veel mogelijk papier-vrij werken en ‘s avonds een clean desk. Er zijn 3 typen werkplekken: Concentratie, Administratie en Communicatie plekken. Daarnaast is er de informele ruimte waar medewerkers lounchen, koffie drinken, de afdeling-nieuwtjes verspreiden. Hier hangen de geboortekaartjes en ansichten met witte stranden, hier staat de bokaal van het vorige volleybal toernooi. De plek die het werken aangenaam maakt.
Het interieur ademt de sfeer van het gebouw en de omgeving. De materialen en de kleuren, de verlichting, het zicht vanuit het interieur op het landschap (de wis selwerking tussen buiten en binnen) zijn op subtiele wijze gemanipuleerd om deze samenhang in sfeer en karakter te krijgen.
Plattegrond psy chogeriatrisch kamer
Periode 2012 - 2013
Opdrachtgever Stichting Werkt voor Ouderen
Architect atelier PRO
Projectarchitect
Dorte Kristensen en
Naomi Schiphorst
Interieurarchitect
Susan Vlemminx en Thijs
Klinkhamer
Samenwerkend architect
Van Aken Architecten
Plattegrond woning voor somatische patiënten
Adres Bachtensteene 14, Middelburg
Bruto oppervlakte 5.000 m²
Woonkamer psychogeria trisch afdeling
De woonkamers zijn inge richt naar wens van de bewoners
Belangrijk uitgangspunt voor het ontwerp van het interieur is de wens van de opdrachtgever om een huiselijke, welkome sfeer te creëren zonder dat dit professionele zorg en een veilige omgeving in de weg staat
innovatief en flexibel interieur voor het welzijn van bewoners
Met het nieuwe interieur van het Zorgcentrum Willibrod aan de Bachtensteene in Middelburg ont wierp atelier PRO een thuis voor de bewoners in een huiselijke sfeer. Willibrod heeft 3 groepswoningen met elk 7 psychogeriatrische patiënten en 39 appartemen ten waar somatische zorg wordt geboden. Een veilige plek voor de 62 bewoners. De groepswoningen delen een keuken en woonkamer, daarnaast heeft iedereen een eigen kleine woon- en slaapkamer. De apparte menten zijn meer op de stadsomgeving georiënteerd. Door de flexibiliteit kan men de ruimten aanpassen aan de vraag van het moment.
Privé verzameling oud Hol landse borden.
De kleuren van de meubels helpen bij oriëntatie.
Veel oog voor detail, kleur, ruimte en daglicht in het ontwerp.
De installaties zijn verbor gen achter de te openen lambrizering.
Periode 2010 - 2013
Opdrachtgever Gemeente Zeist
Projectarchitect Dorte Kris
tensen en Mira van Beek
Interieurarchitect
Susan Vlemminx (atelier PRO)
Adres Het rond 1, Zeist
Bruto oppervlakte 7.393 m² Bouwkosten renovatie en inrichting € 6.200.000,-
Raadzaal met maatwerk tafels
het nieuwe werken in bestaand gebouw en nieuwbouw
Tussen het monumentale raadhuis uit 1908 en een uitbreiding uit de jaren 80 ( Lengkeek-gebouw) is door RAU een nieuwe aanbouw ontworpen. De vaste en losse inrichting van het nieuwe gemeentehuis is van de hand van atelier PRO. De publiekshal, in de nieuwbouw, is ingevuld met een variatie aan publieke functies zoals balies, wacht- en overlegplekken, spreekruimten en een leesruimte. Het Lengkeek-gebouw en de aangrenzende neoclassicistische panden aan de Dorpsstraat zijn inge richt volgens de principes van Het Nieuwe Werken. Het gehele bestaande binnenwerk is verwijderd, op stijg punten en sanitaire blokken na. Deze zijn geïntegreerd in een servicekern met ondersteunende functies zoals kastruimte, printers en pantry. De inrichting is in basis rustig, licht en natuurlijk. De seizoenen zijn als thema gebruikt om iedere verdieping een eigen identiteit en sfeer te geven. De anciënniteit van de panden aan de Dorpsstraat (1877) is in de afwerking (weer) zichtbaar gemaakt door voor de afwerking te refereren aan heren kamers met donkere lambriseringen (van uit het Leng keek-gebouw gesloopte kozijnen), gekleurde wanden en behang met gestileerde natuurprints.
1 elke verdieping heeft een eigen sfeerthema waardoor de oriëntatie en vindbaarheid is vergroot
2 op iedere verdieping: service kern met toiletten, stijgpunten, printhoek, pantry en kastruimte (0,5 m / werknemer)
3 voorbeeld van fotobehang in de spreekkamers met dank aan de inzenders van de fotowed strijd
4 oude Dorpstraatpanden zijn in ere hersteld door toevoeging van kunst, behang en lambrisering van hergebruikte kozijnen (5)
Periode 2011
Opdrachtgever Gemeente Ede Projectarchitect
Dorte Kristensen en Elisabeth
Tukker
Interieurarchitect
Elisabeth Tukker
Adres Bergstraat 4, Ede
Bruto oppervlakte 2.100 m² Bouwkosten € 1.016.000,-
Looproutes worden logi scher: men neemt eerder de trap en de verdiepin gen komen beter in ver binding met elkaar.
Vlnr: huiskamer, overleg/team ruimte, open werkplekken
De voormalige kamertjes zijn vervangen door een open ruimte waardoor de bestaande karakteris tieke kolommenstructuur weer mooi zichtbaar is en daglicht optimaal bin nenkomt.
herinrichting financiert zichzelf door meer efficiënt ruimtegebruik
Atelier PRO heeft het bestaande Raadhuis van Broekba kema (1977) heringericht in het kader van een cultuur veranderingstraject van de gemeente Ede. Het Nieuwe Werken heeft hier zijn intrede gedaan. Na de realisatie kon een huidige tweede huisvesting worden afgestoten.
Strategisch geplaatste ruimten voor concentra tie of overleg creeeren luwte’s tussen waardoor meer werkplekken ont staan.
Transparante puien bij de centrale split-level trappen huizen versterkt het zicht naar andere verdiepingen en vormen zo belangrijke plekken voor ontmoeting. Naast de trappenhuizen zijn ‘huiskamers’ geplaatst waar medewerkers samen komen voor koffie, een informeel gesprek of afdelingsbijeenkomst. Hier zijn ook de facili taire voorzieningen zoals panty’s, printers en toiletten. De kleurfamilie van groenen, gelen en blauwen corres pondeert met de ontspannen omgeving van Ede. Lichte natuurlijke tinten bij werkruimten (rust) afgewisseld met kleurige huiskamers (ontmoeting). Houten latten bij de concentratie- en overlegruimten zorgen voor privacy. Leuk detail zijn de verrijdbare krukjes op de werkvloer afkomstig uit de bossen van Ede.
frisse kleuren en transparantie
In het hart van Sas van Gent staat het zwart houten multifunctionele gebouw en seniorencomplex De Statie. Naast een bibliotheek, diverse wijkvoorzie ningen en een sportaccommodatie met Olympische afmetingen, biedt het complex onderdak aan twee basisscholen, een kinderdagverblijf, peuterspeelzaal, GGD-post en een wooncomplex met 23 seniorenappar tementen. Het gebouw faciliteert daarnaast maar liefst 15 sportclubs en 25 verenigingen. In tegenstelling tot de donkere houten gepotdekselde buitenkant oogt het interieur van De Statie licht en warm.
Links: trap in ruimtelijke entreehal van basis school ‘De Sasse Vaart’
Ontmoetingsruimte, natuurlijk daglicht brengt licht in de vide
Periode
Rechter pagina: doorkijk vanaf galerij naar biblio theek
Vlnr: bibliotheek, open
transparant schooldo mein met vrolijk gekleurde nissen/vensters, tribune
Leistra
Periode 2006 - 2010
Opdrachtgever
Graafschap College
Projectarchitect
Dorte Kristensen en Lisette
Plouvier
Interieurarchitect
Tamara van Spronsen
Adres Maria Montesoristraat 3, Doetinchem
Bruto oppervlakte 5.961 m² school, 1397 m² parkeergarage Bouwkosten €11.902.323,-
Vlnrr: studiewerkplek met zicht naar kantine, lokalen cluster, centrale hal
uit het landschap gesneden
Voor de materialisering van de gevels van het Graaf schap College, een ROC met 700 leerlingen is naast het gras gekozen voor natuurlijke materialen die mooi verouderen, zoals blank gelakte houten kozijnen, alu minium en leien. Deze materialen vormen in relatie met het groen van het gras een contrast en geven karakter aan de gevel.
Het interieur dat eveneens door atelier PRO is ontwor pen, is opvallend strak en smetteloos wit uitgevoerd. Bij alle aansluitingen van wanden en balustrades op vloe ren en trappen zijn zeer strakke en doordachte details doorgevoerd. De ruimtelijke beleving van dit gebouw is door het inventieve kleurgebruik en het vele daglicht bijzonder aangenaam.
centrale hal