Portfolio bildung

Page 1

Portfolio bildung

Inhalt 5 Bildung und Atelier PRO 7 Wir über uns 9 Neue Räume in der Schullandschaft 15 Clean air schools IDEE & RAUM 21 Lumion, Amsterdam 25 Carmel college Salland, Raalte 29 Liseo Boneriano, Bonaire 31 Metis Montessori, Amsterdam 33 Extension Metis Montessori Lyceum 37 IJburg college 2, Amsterdam ORT & CHARAKTER 43 Preparatory secondary vocational education Veurs, Voorburg 45 Vrijzinnig Christelijk Lyceum, Den Haag 47 Vitalis College, Breda 51 Ausbildungspark Ezinge, Meppel 57 ROC Graafschap College, Doetinchem ALT & NEU 63 Rudolf Steiner School & College, Haarlem 67 The British School of Amsterdam 71 Vakcollege Eindhoven & Aloyisius De Roosten Mavo, Eindhoven 75 Edith Stein College, Den Haag GESUND & NACHHAlTIG 83 Strabrecht College, Geldrop 85 Gerrit Rietveld College Utrecht 91 Research Diagnostics Center Amsterdam UMC

Bildung und Atelier PRO

Gesund und angenehm

Atelier PRO beschäftigt sich mit Kindern, Jugendlichen und ihrer Lern- oder Unterrichtsumgebung. Aus unserer Sicht muss diese Umgebung GESUND und ANGENEHM sein, um gute schulische Leistungen zu ermöglichen. Dies gilt für alle Arten von Unterrichtsgebäuden: Grund-, weiterführende und Hochschulen.

Bei einer gesunden und angenehmen Lern- oder Bildungsumgebung achten wir Architekten auf das Raumklima, die Verkehrsanbindung an die Stadt, die logische Struktur im Gebäude und die Lage der verschiedenen Räume innerhalb des Gebäudes. Schüler oder Studenten und Mitarbeiter sollen sich in unseren Gebäuden zuhause fühlen. Dabei ist es wichtig, dass ein Gebäude gesund und der Aufenthalt angenehm ist.

Gebäude von Atelier PRO bieten Raum für verschiedene Unterrichtsvisionen. Wir sind der Meinung, dass die Entscheidung für die Interpretation einer Bildungsvision bei Geschäftsführung und Dozenten liegen muss und nicht bei den Architekten. Unsere Aufgabe ist es, Gebäude zu entwerfen, die für verschiedene Visionen geeignet sind. Zusammen mit Benutzergruppen und Bildungseinrichtungen suchen wir nach dem optimalen Entwurf. Wir legen großen Wert auf die Umsetzung unausgesprochener Wünsche in Ausgangspunkte. Das erfordert Phantasie und verlangt eine gute Kommunikation während der Entwurfsphase. Dieser Ansatz führte zu vielen markanten Bildungsgebäuden, von denen wir Ihnen hier eine Auswahl präsentieren.

5
6 IJburg College, Amsterdam

Wir über uns

Atelier PRO wurde 1976 in Den Haag als Architekturbüro gegründet, in dem sich Profis aktiv mit Architektur, Städtebau, Innenarchitektur und Gebäude- und Kosten-Management befassen. Unser Sitz ist ein spezieller Dünengarten in der Archipelbuurt in Den Haag. Dieser Ort ist Ausdruck dessen, wer wir sind, weil er deutlich macht, wie wichtig uns der genius loci ist. Von Anfang an war ein kontextbezogener Ansatz bezüglich der Architektur unsere Motivation, und das ist auch heute noch so. Von diesen Grundsätzen ausgehend schafft Atelier PRO eine überraschende und zukunftsweisende Architektur mit starkem sozialem Engagement. Der Ursprung unseres Namens ist: PRO = Plan, Ruimte, Ontwikkeling (Plan, Raum, Entwicklung). Für uns ist die Qualität einer Wohnumgebung die Basis dafür, dass sich Menschen entwickeln können. Daher ist es kein Zufall, dass ein Großteil unseres Portfolios gesellschaftliche Liegenschaften sind. Unsere Sichtweise bezüglich Bildung und Gesundheitswesen fand Ausdruck in verschiedenen Schulen, multifunktionellen Beherbergungseinrichtungen und Einrichtungen des Gesundheitswesens. Hinzu kommen kulturelle und öffentliche Gebäude wie Theater und Kulturzentren.

Unser Engagement für eine Verbesserung der sozialen Umgebung drückt sich auch in einem großen Interesse an und Affinität zu Renovierung und Wiederverwendung aus. Die Entdeckung und Verwendung der verkannten Schönheit bestehender Gebäude führt oft zu überraschenden Entwürfen. Uns ist die historische Schichtung der gebauten Umwelt sehr wichtig, und wir fragen uns: Welche Eigenschaften können wir erhalten und nutzen, um Mehrwert zu schaffen?

Wir versuchen, in die Zukunft zu blicken, indem wir zum Beispiel einen möglichen Beitrag der Architektur und Stadtentwicklung zu einer nachhaltigen Wohnumgebung ausloten. Die laufende Weiterentwicklung von Kenntnissen und Fähigkeiten spielt daher für unser Team eine wichtige Rolle. Wie wird zum Beispiel die saubere Stadt der Zukunft aussehen? Welche neuen Materialien können wir nutzen, um umweltfreundliche Fassaden zu entwerfen? Wir meinen, dass solche Themen sehr aktuell sind. Unsere Neugierde und unser Unternehmergeist manifestieren sich in Entwürfen mit hoher Nachhaltigkeit, zukunftsweisenden Strategien für Lehrgebäude und gelungenen Büro-Innenausstattungen, die den Standards einer modernen gesunden Arbeitsumgebung genügen.

7
8
Carmel College Salland, Raalte

Neue Räume in der Schullandschaft

Herkömmliches oder personalisiertes Lernen?

Veränderungen im Schulsystem hat es immer schon gegeben. Und das ist nicht verwunderlich, denn die Gesellschaft verändert sich rasant und mit ihr auch das Schulsystem. Die Revolution in der Kommunikations- und Datentechnik beschleunigt diesen Prozess, und es ist die Frage, ob es in der Zukunft überhaupt noch Schulgebäude geben muss. Junge Menschen holen sich den ganzen Tag Informationen über iPad, Smartphone oder Laptop, und Wissen steht auf Abruf zur Verfügung, unabhängig von Ort und Zeit. Außerdem setzt sich zunehmend die Erkenntnis durch, dass die Schule nicht der einzige Ort ist, an dem Wissen vermittelt wird. Lebenslanges Lernen bedeutet, dass viele Menschen auch außerhalb der Schule Räume bräuchten, um Kenntnisse und Fähigkeiten zu erwerben. Atelier PRO ist der Meinung, dass eine neue Art von Räumen erforderlich ist, in denen Kenntnisse und Fähigkeiten optimal ausgetauscht werden können.

In der Debatte über schulische Räume stehen sich zwei Auffassungen gegenüber. Im einen Extremfall ist man überzeugt, dass das Klassenzimmer und der klassische Unterricht die Bausteine für das Schulsystem sind. Im anderen Extremfall ist man überzeugt, dass der Erwerb von Wissen eine dynamische Aktivität ist. Personalisiertes Lernen ist ein Beispiel hierfür. Das würde in letzter Konsequenz bedeuten, dass Klassenzimmer oder Schulen überflüssig wären. Das sind jedoch zwei extreme Auffassungen. In der Praxis versuchen die meisten Schulen, eine Balance zwischen beidem zu finden. Atelier PRO ist der Ansicht, dass es sich bei diesen beiden Extremen um einen scheinbaren Widerspruch handelt und der wichtigste Ausgangspunkt übersehen wird: Der Mensch ist ein soziales Wesen, und Lernen oder Wissensaufnahme ist ein sozialer Prozess. Das ist die Grundlage der Schullandschaft. Es geht hier um eine subtile Wechselwirkung und nicht um Extrempositionen. Soweit also nichts Neues. Die meisten Schulen suchen innerhalb der bestehenden Schulstruktur nach einer Lösung u. a. mit Selbstlernzentren usw.

9
10
Gerrit Rietveld College, Utrecht

Aktivitäten

Neu sind eine andere Denkweise über Schulgebäude und die konsequente Entscheidung für Aktivitäten innerhalb der Schule als Ausgangspunkt für den Raumplan der Schule. Diese Aktivitäten sind auch soziale Prozesse, die teilweise über die neuen Medien stattfinden, aber vor allem auch an bestimmten Orten, an denen Menschen zusammenkommen. Weiterhin geht es nicht nur um das Wissen an sich, sondern um die Fähigkeit, dieses Wissen aufzunehmen. Das Lernen zu lernen ist dabei wichtig. Eine Friseurin, ein Kfz-Mechatroniker oder ein Gymnasiast lernt das Fach nicht am Bildschirm alleine in seinem Zimmer zuhause, sondern muss sich konkret mit Frisuren oder Fahrzeugteilen auseinandersetzen oder an sokratischen Gesprächen teilnehmen. Wir finden vor allem die sozialen Prozesse und die verschiedenen Aktivitäten von Schülern und Lehrern wichtig. Diese Aktivitäten sind manchmal widersprüchlich. In der Schullandschaft befinden sich die Aktivitätsorte dort, wo sich die verschiedenen Aktivitäten abspielen, und diese sollten im wörtlichen Sinne Raum gegeben werden. Unsere Raumpläne und Innenausstattungen sind darauf ausgerichtet. Sie stehen für die neue Generation Schulen.

Bereichsgliederung bezüglich Aktivitäten innerhalb der Schullandschaft: von Dynamik zur Ruhe Im Großen und Ganzen verläuft die räumliche Gliederung von sehr dynamischen Aktivitäten zu sehr ruhigen Aktivitäten. Diese Gliederung spiegelt sich im Aufbau der Räume. Die Schullandschaft mit Selbstlernzentren ist an sich bereits neu, und die betreffenden Räume werden noch viel spezifischer werden. Die Aktivitäten der Schüler werden immer stärker betont, und als Ergebnis davon nimmt die Differenzierung in der Art und Qualität der Räume und Möbel zu.

11
12
Vakcollege Eindhoven & Aloyisius De Roosten Mavo

Das städtische Umfeld, der Eingangsbereich der Schule und die Treppen und Gänge innerhalb der Schule spielen eine wichtige Rolle. Vor allem in den sozialen Bereichen tauschen die Schüler die neuesten Nachrichten aus: im Eingangsbereich, in der Aula oder Mensa.

Je tiefer man in das Gebäude vordringt, desto mehr herrscht Ruhe und Konzentration. Große Schulen werden heute oft in räumliche Bereiche mit ca. 200 Schülern unterteilt. Dadurch wird die Zusammenhörigkeit unter den Schülern gefördert, da Schüler im gleichen Entwicklungsstadium jeweils zusammenhängende räumliche Bereiche erhalten. Schüler und Dozenten kennen einander. Innerhalb dieser Bereiche gibt es Selbstlernzentren, Studienzentren oder Bibliotheken, wo die Schüler gemeinsam oder individuell an Projekten arbeiten. Manchmal sind diese Räume informell, und es darf dort geredet werden. Manchmal läuft sogar das Radio. An anderen Orten geht es leiser zu. Ein solcher Ort ist der Raum, in dem Anweisungen gegeben werden oder in dem Schüler individuell arbeiten. Hier ist es am ruhigsten. Diese Räume können auch Fachräume sein.

Eine Folge der Bereichsgliederung in der Schullandschaft ist, wie bereits erwähnt, eine Differenzierung von Räumen und Möbeln innerhalb der Schule. Bauphysikalische Qualitäten dieser Räume sind dabei wichtig. Gute Akustik hat einen großen Einfluss auf die schulischen Leistungen. Das klassische Schulgebäude wird sich zu einer Schullandschaft weiterentwickeln, die das lebenslange Lernen möglich macht und die Aktivitäten, die beim Erwerb von Kenntnissen und Fähigkeiten erforderlich sind, berücksichtigt.

13
14
School project, Antwerpen

Clean air schools

Studienauftrag atelier PRO über Unterrichtsgebäude zusammen mit der Stadt Antwerpen, TNO Delft, TU Delft, The Why Factory, Dutch Green Building Council und Syntens Innovatie Centrum

In Ballungsräumen besteht nach wie vor eine Nachfrage nach neuen, guten Schulen. Diese Schulen werden oft an den noch verfügbaren Standorten in Städten nahe Umgehungsstraßen geplant. In Bezug auf die Luftqualität sind das aber die schlechtesten Standorte. Mit Clean Air Schools wollen wir die Dringlichkeit des Problems auf die Tagesordnung bringen und räumliche Lösungen bieten. Hierbei betrachten wir in einem integralen Entwurfsteam die Möglichkeiten, die uns ein Gebäude bietet, um im Innen- und Außenbereich die Luftqualität zu verbessern. Wir untersuchen dabei die möglichen Effekte, die räumliche Änderungen oder Eingriffe auf die Luftqualität haben können.

Fallstudie

Für Clean Air Schools haben wir in Zusammenarbeit mit der Gemeinde Antwerpen einen geeigneten Ort gefunden. Um eine entsprechende Entwurfsstudie durchführen zu können, ist es wichtig, dass das Mikroklima, die Konzentrationen aller Arten von Luftverunreinigungen und die Luftströmungen am Standort ermittelt werden. Mit Unterstützung der Gemeinde Antwerpen konnten wir relevante Daten aus vorhandenen Messungen verwenden. Unser Hauptaugenmerk galt der Problematik im Zusammenhang mit Feinstaub und Stickstoffdioxid (NO2). In Absprache mit der Gemeinde Antwerpen wurde beschlossen, den Standort am Desguinlei für den Fall zu nutzen. Dies ist ein innerstädtischer Bereich, der in Bezug auf Luftqualität in einer sensiblen Zone liegt (EU-Richtlinien). Die Fallstudie wurde während eines „Pressure Cooker“-Workshops ausgearbeitet. Mittels eines ortsspezifischen Konzepts erstellte das Entwurfsteam (Alex Letteboer, Bas Woldman, Thijs Klinkhamer, Sjoerd Hoogewerf und Berit Piepgras) mit einer speziell hierfür entwickelten Clean-Air-Toolbox Konzepte, um diese in einen endgültigen Entwurf umzusetzen. Diese Tools sind räumliche Eingriffe, die die Luft im Außen(und Innen-) bereich eines Gebäudes verbessern können. Während der Entwurfsphase wurden Erkenntnisse und Entwurfsergebnisse zusammen mit der Gemeinde Antwerpen, The Why Factory TU Delft, Dutch Green Building Council, Imago Bouwers und TNO in verschiedenen Sitzungen ausgewertet. (Anm.: d.h. diese gaben nur Feedback)

15
16
Gerrit Rietveld College, Utrecht

Durchlässig

Der endgültige Entwurf ist ein Gebäude, das nach dem „Zwiebelschalenprinzip“ aufgebaut ist. Die Außenluft wird mit elektrostatischen Filtern gereinigt und in das Innere der Schule ,die Klassenzimmer, geleitet. Indem diese saubere Luft auf Überdruck gebracht wird, kann sie auch in anderen Bereichen der Schule genutzt werden: in den Gängen und den überdachten halböffentlichen und öffentlichen Bereichen in und um die Schule.

Die äußerste „Schale“ in diesem System ist die Fassade neben dem Ring. Diese bildet eine Barriere zur Autobahn hin, so dass die Luft auf diese Weise nach oben und über den Rest von Antwerpen hinweg geleitet wird. Durch die ausgefallene Gestaltung der Fassade auf dieser Seite werden zusätzliche Turbulenzen erzeugt, damit sich die Luft zusätzlich mit den saubereren höheren Luftschichten vermischt, so dass die Feinstaubgehalte schnell sinken.

Das Gebäude wirkt als Filter

Elektrostatische Filter sorgen also für saubere Luft in den Klassenzimmern. Diese Luft wird in die Schulhöfe, die halböffentlichen Bereiche, die mit Glas überdacht sind, weitergeleitet. Von hier aus strömt die saubere Luft nach außen, um eine bessere Luftqualität im öffentlichen Raum in der Nähe des Haupteingangs zu erreichen. Der Schulhof liegt im Windschatten des schalenförmigen Gebäudes, um einen Straßenschluchten-Effekt mit sauberer Luft zu erzeugen. Wir nehmen an, dass die Form des Gebäudes die saubere Luft, die dort herausgeblasen wird, einigermaßen zurückhält, so dass sie sich nicht zu schnell mit der verunreinigten Umgebungsluft vermischt. Ob das wirklich so funktioniert, wollen wir noch in einem Windkanal prüfen. Auf diese Weise bietet der Entwurf die Möglichkeit, ein Fenster im Klassenzimmer zum halb-öffentlichen überdeckten Bereich hin zu öffnen, um Luft ohne Feinstaub oder Ruß hineinzulassen. Hierin liegen Möglichkeiten, das Programm „Frische Schulen“ mit passivem Bauen zu kombinieren. Neben den genannten Maßnahmen wurde im Entwurf alles für ein energieneutrales und angenehmes Schulgebäude getan wie z. B. die Anwendung einer Algenfassade als Sonnenschutz und Bioreaktor, eine Fertig-Holzkonstruktion für eine saubere Baugrube während der Bauphase, ein angenehmes Raumklima und eine „Löcherdecke“ (für eine angenehmere Luftzufuhr im Innenbereich). Auch die Reduzierung von Schadstoffemissionen aus Baustoffen und Möbeln ist eine Bedingung.

Nächste Schritte

Wir haben mit Ulf Hackauf von The Why Factory und Annemie Tormans und Jan Bel von der Stadt Antwerpen ausführlich über den Entwurf diskutiert, wobei wiederum eine Reihe guter Ideen entstanden. Der Entwurf wurde im September 2013 während der JOQUIN-Konferenz einem Publikum von Clean-Air-Experten vorgestellt. Die Reaktionen waren begeistert. Die allgemeine Auffassung ist jedoch, dass die Vorhersage von Luftströmen sehr schwierig ist. Daher sind weitere Untersuchungen in Windkanälen und sogar die tatsächliche Realisierung eines Prototyps erforderlich, um gute Ergebnisse zu erreichen.

17

Idee & raum

Secundairy school for general, higher and pre-university education

Period 2015 - 2019

Client Gemeente Amsterdam-

Project architect Dorte

Kristensen & Martijn Visser

Interior architect Amal Habti

Project leader Eelko Bemener

Address Vlaardingerlaan 25, Amsterdam

Gross floor area 14.100 m²

Building costs € 14.400.000,-

20

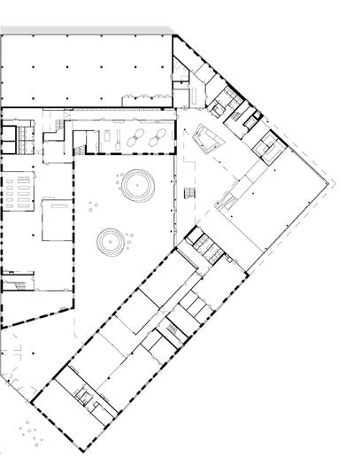
Lumion, Amsterdam

brutalist monument gets fresh start

Lumion is a secondary school for general, higher and pre-university education. The school is housed at Vlaardingenlaan 25 in Amsterdam. Use is made of parts of the monumental school building on the site. It is one of the youngest monuments in New West, and was built in 1973 to a design by architect J.B. Press. The brutalist building is characterized by the use of concrete, glass and large cantilevers.

The senior grade has been realized in the renovated monument, the junior grade has been given a completely new building component that is connected to the monument through a transparent central hall. A new sports hall has also been realized on site.

21
Left: entrance area Bottom from left to right: rear of the building; Forum with overhanging spiral staircase; Detail of the facade

tweede verdieping

In the renovated old building, there are different free learning environments for the upper secondary students

22
23
A ‘nest’; open learning areas that has a different theme on each floor.

Secundairy school, 1500 students

Period 2012 - 2015

Client Carmel College Salland

Project architect Dorte Kristensen and Martijn de Visser

Project leader Eelko emener, Tobias Thoen

Address Hofstedelaan 4, Raalte

Gross floor area 8.909 m²

Cost / m² € 898,-

Building costs € 8.000.000,-

24
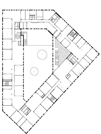
Begane grond

Carmel college Salland, Raalte

focus on the pupils surrounded by the green Salland landscape

Atelier PRO has designed a completely new learning environment, encompassing both the architecture and interiors, for the senior general (HAVO) and pre-university (VWO) students at Carmel College in Raalte. The landscape design was made in collaboration with Oase Stedenbouw en Landschap urban planning consulting agency.

The challenge

The aim was to create a school that would provide over 1500 students with an intimate, comfortable atmosphere – a school where students themselves are top priority. To do so, a special focus has been placed on small-scale design aspects. The result is a building with comfortable and engaging learning environments, where interior and exterior merge seamlessly with one another.

25

The multipurpose areas are flexible in use. The area layout has been determined by its use. It can be used as a study or as a group facility.

26

The sections next to the windows are of light masonry. This creates a play of light and dark stripes, like the keys of a piano.

27

Periode 2016-2018

Auftraggeber Ministerie van BZK

Rijksvastgoedbedrijf Rijksdienst

Caribisch Nederland

Projkecteam

AtelierPRO/Jacobs Architekten (Eindhoven/Bonaire)

Projekt architekt Dorte

Kristensen & Constanze Knüpling

Projectleiter Constanze Knüpling (atelierPRO)

Adresse Kaya Amsterdam, Kralendijk, Nederlandes Antillen Bonaire

Bruttogeschoßfläche 1.500 m²

The climate of Bonaire is dry and arid. Typical of the local architecture, the large covered outdoor and overhangs. They throw shadows over the façade and outside space, which makes it possible to use it as an educational space.

28
Ground floor

Liseo Boneriano, Bonaire

An elegant new ensemble

The Liseo Boneriano is a highschool on the Caribbean island of Bonaire. Part of the school is now situated in a building on Kaya Amsterdam in Bonaire. The number of students has increased to such an extent that lack of sufficient educational space became a serious issue. The team of atelier PRO architects and Jacobs Architects created a design to extend the schoolbuilding in such a way that both junior and senior pupils have room to attend class at this location.

This redevelopment will appear as one elegant new ensemble with great attention to the outdoor space. The outdoor space will feature as the public domain, enabling students and teachers to meet in a relaxed manner. These new functional education facilities offer Bonaire an important and attractive educational setting that focuses on interaction.

29

Gesamtschule

Gymnasium, Realschule

Periode 2011 - 2013

Auftraggeber Montessori Scholengemeenschap

Amsterdam

Projektarchitekten

Dorte Kristensen, Elisabeth Tukker

Projektleiter Paul Verhaar

Adresse Mauritskade 58, Amsterdam

Bruttogeschoßfläche 3.873 m²

Baukosten insgesamt € 2.700.000,-

By creating a new opening in the wall, the open learning space has been given more visibility from the central traffic area

The monumental staircases feature sound absorbing wall panels, an artwork by

30
Chris Vermaas in collaboration Chin-Lien Chen

Lagenplan

Metis Montessori, Amsterdam

Umstrukturierung eines Schulgebäudes in eine Montessorischule für den Gymnasialunterricht 2013

Der Unterricht in der Schule unterliegt dem Geist der Zeit. Gleiches gilt auch für dieses würdevolle und unter Denkmalschutz stehende Schulgebäude an der Mauritskade 58 in Amsterdam aus dem Jahr 1904. Atelier PRO hat in 2013 das Gebäude am Rande des Oosterparks im Zuge der Renovierung und des Umbaus in eine Montessorischule für die Gymnasialstufe umstrukturiert. Die vorhandene Struktur wurde unter Respektierung des historischen Erbes so erweitert, dass die neue Form und Gestalt die besondere, ursprüngliche Architektur noch verstärkt. Das einst dreistöckige Gebäude verfügt über eine Struktur mit langen Gängen und statischen Klassenzimmern, die im Widerspruch zu modernen pädagogischen Auffassungen stehen. Daher wurden spezielle Lernbereiche geschaffen, die den Rhythmus der aneinander gereihten Klassenzimmer durchbrechen.

31
Open learning space O O B-digiboard werk 2508 CH den haag STAND VAN ZAKEN CML Oosterpark, Amsterdam 1109 DO-20.15 interieur begane grond

Phase

2: new extension school

Period 2014 - 2018

Client Montessori Scholengemeenschap Amsterdam

Project architect

Dorte Kristensen, Sandrine Rointru and Naomi Schiphorst

Project leader

Naomi Schiphorst, Paul Vlaar

Address

Mauritskade 58, Amsterdam

Gross floor area 4.674 m²

Cost / m² € 1.386,-

Building costs € 6.479.895,-

32
Ground floor existing and extension ‘Here comes the sun’ is the name of Kris Kabel’s artwork, which is sprinkled like confetti over the black aluminum facade

Existing building and extension. Below: careful connection from new to old, whereby the old plane tree has been given a prominent role

learning, overlooking the green

New school 2014-2016

Extension Metis Montessori Lyceum to

Due to an increasing number of pupils, the Montessori School Amsterdam needed more educational space. That is why atelier PRO created a school design for an extension that fully meets the criteria of contemporary school requirements.

The new building fits seamlessly into the historic Oosterpark and at the same time the interior makes personalized learning possible.

33
34
A skating rink forms the smooth transition from building to park
35

Secundairy school for general and higher education

Periode 2014 - 2016

Auftraggeber Stichting

Samenwerkingsschool ABVO

Projektarchitekt

Dorte Kristensen, Karho Yeng

Projektleitung Karho Yeung

Adresse Geertje Wielemastraat

23a Amsterdam

Bruttogeschoßfläche 7.089 m²

Baukosten € 6.378.209,-

The gold anodised aluminum facade cladding has a striking character and is a harmonious appearance in the stony environment. Depending on the perspective, the aluminum cassettes provide a poetic light game

36
Ground floor

IJburg college 2, Amsterdam

personalized learning

Atelier PRO’s design for IJburg College 2 in Amsterdam was selected as part of a European tender. IJburg College 2 is a new secondary school that will accommodate approximately 900 students at VMBO-T and HAVO levels. The aim is to realise a ‘High Tech Green’ school that fits well with this site. IJburg College’s main school is located on IJburg, in Amsterdam. For its extension, a branch of the school will be built on neighbouring Zeeburgereiland. The school’s site is surrounded by greenery and water, typical for Zeeburgereiland. Atelier PRO’s design comprises a compact building that is adapted closely to the urban design framework. The main concept of the design was developed from a bottom-up approach whereby students, teachers and parents were asked to contribute ideas about the school. This was combined with the school’s vision that the shared floors for practical subjects be placed centrally between two departments to create a meeting point.

37

The system of stairs ensures that different parts of the school are connected and users can meet each other

38

Ort & charakter

New preparatory secondary vocational education

Design period 2019Client Stichting Scholengroep

Spinoza

Project architect

Dorte Kristensen, Constanze

Knüpling, Skander Saadi

Project leader

Constanze Knüpling, Lia Tuijt

Address Delflandlaan 04, Voorburg

Gross floor area 4.450 m²

42
Lobby Situation

Preparatory secondary vocational education Veurs, Voorburg

compact & clear with a traditional facade

The new Veurs schoolbuilding is a compact volume with a clear shape. The masonry façade corresponds to the surrounding buildings.

The shape and appearance of the building are determined by various elements. Not only the urban development preconditions, the plot shape and Image Quality Plan of the area have been of influence, but also the desire to realize an optimal walking lines inside the building. Choosing this building shape resulted in another very important achievement. It led to an optimum ratio between the building volume and the surface of the outer shell, according to the most energy efficient requirements.

43

Renovation and new construction of school for senior general secondary education and pre-university education.

Period 2015 - 2018

Client Vrijzinnig Christelijk Lyceum

Project architect

Dorte Kristensen and Mira van Beek

Project leader Ronald Peters, Paul Fouchier, Paul Vlaar

Address Van Stolkweg 35, Den Haag

Gross floor area 8.000 m²

Building costs € 6.000.000,-

44

Vrijzinnig Christelijk Lyceum, Den Haag

a beatiful villa

The Vrijzinnig Christelijk Lyceum (VCL) is an independent school for senior general secondary education and pre-university education. Its old building is comprised of various component parts built at different points in time, with a total floor area of around 8,000 square metres. The oldest part, a villa dating back to 1903, is a national monument and has been preserved. The more recent parts, built in the 1930s, 1960s and 1980s, were replaced by new construction. The VCL had drawn up an extensive program of requirements in which they asked for a more practical, compact and accessible building while retaining the identity and positive characteristics of the original school building. Naturally, the identity of the location, integration into the environment, improvement of the indoor climate and sustainability also played a preconditional role.

45

Berufsschule, Fachschule

Periode 2014 - 2018

Auftraggeber

ROC West Brabant

Projektarchitekten Dorte

Kristensen, Lisette Plouvier, Evelien van Beek

Projektleiter Lisette Plouvier

Adresse

Biesdonkweg 33, Breda

Bruttogeschoßfläche

10.840 m²

46

Vitalis College, Breda

Kompaktes Gebäude, aufgelockert mit Innenhöfen

Im Norden der niederländischen Stadt Breda entsteht das Vitalis-College als praxis-orientiertes Ausbildungszentrum: Hier werden unter anderem die Bereiche Modedesign und Pflege angesiedelt.

Atelier Pro konzipierte den College-Neubau als kompakten Baukörper, der durch mehrere Höfe aufgelockert wird. Dadurch ist der Sichtkontakt zwischen den einzelnen Fachbereichen gewährleistet. Der untere Teil besteht aus zwei Schichten, welche allgemeine Einrichtungen wie Klassenräume und das offene Lehrzentrum beherbergen. Drei Türme werden sich über diesen Abschnitt erheben, die jeweils einen Fachbereich beherbergen. Die Türme sollen das Gebäude strukturieren und als Wahrzeichen der Schule dienen.

47
48
49

Gesamtschule

Gymnasium, Realschule, Fachschule, zwei Sonderschule

Periode 2011 - 2014

Auftraggeber Woonconcept

Onroerend Goed bv

Projektarchitekten Dorte

Kristensen en Christina Kaiser

Projektleiter Christina Kaiser und Ronald Peters

Adresse

Ezingerweg 51-85, Dhaliastraat 2-4, Ambachtsweg 2, Meppel

Bruttogeschoßfläche

31.899 m²

Baukosten insgesamt

€ 29.000.000,-

50
Ausbildiungs Park gesehen von das Bahnhof Meppel Lagenplan

Ausbildungspark Ezinge, Meppel

Lernen in einer grünen Umgebung

Der Ausbildungspark Ezinge ist ein Gebäudekomplex, der fünf verschiedene Schulen beherbergt. Ein Gesamtschulkomplex, eine Schule für schwererziehbare Kinder und Jugendliche sowie eine Sonderschule sind hier zusammengefasst. Als verbindendes Element werden Räumlichkeiten für berufsbildende Maßnahmen sowie Sporthallen gebaut. Die verschiedenen Schulen haben alle ein eigenes Foyer und strahlen eine eigene Atmosphäre aus.

51
Ausbildungs Park gesehen von das Park
52
55

Berufsschule

Periode 2006 - 2010

Auftraggeber

Graafschap College

Projektarchitekten

Kristensen, Lisette Plouvier

Innenarchitekt

Tamara van Spronsen

Projektleiter

Adresse Maria Montesoristraat

3, Doetinchem

Bruttogeschossfläche

5.961 m² school

1397 m² parkeergarage

Baukosten insgesamt

€11.902.323,-

56
Lagenplan

ROC Graafschap College, Doetinchem

aus der Landschaft geformt

Das Graafschap College, eine Berufsschule für 700 Schüler, liegt am Rande des Zentrums von Doetinchem, zwischen einer Bundesstraße und einem Wohnviertel.

Die Schule hat ein geschwungenes, begrüntes Dach, dass auf seine Weise eine Verbindung zwischen den unterschiedlichen städtebaulichen Maßstäbe der Umgebung formt. Die Berufsschule beherbergt Ausbildungszweige für Wirtschafts- und Dienstleistungsberufe.

57
Die Schule mit dem begrünten Dach
58
59
Alt & neu
62 Reuse of part of existing school New

Rudolf Steiner School & College, Haarlem

secondary and primary school form a single unit

The new building of the Rudolf Steiner College, together with the adjacent transformed primary school and after-school care facilities, form a new entity in the Schalkwijk district. A transparent connecting section makes it possible for both schools to share functions, which is a basic principle of the Waldorf philosophy.

Because the new college had to find a place in the limited space between the existing school and the street, a compact layout was designed in three layers. In the centre of the building there are two large spaces: the main hall and the gymnasium above it. The rest of the programme folds itself around these spaces. Roof lights bring a great amount of daylight into the entire building.

Primary school + MAVO (lower general secondary education), HAVO (higher general secondary education) and VWO (pre-university education)

Periode 2017 - 2022

Client Stichting Voortgezet Vrijeschool Onderwijs Noord-Holland (SVVONH)

Project architect

Martijn de Visser

Address Belgielaan, Haarlem

Gross floor area 6.143 m²

63
65
Left: Rooflights bring a great amount of daylight into the entire building. Below: media library with roof terrace; large auditorium in the college; canteen with media library above

The school is made up of three sections: Early Years (ages 3 to 7), Junior School (7 to 11) and Senior School (11 to 18). The school follows the National Curriculum for England

Period 2016-2021

Client British School

Amsterdam

Project architect Dorte

Kristensen, Lisette Plouvier Landscape designer

Buro Sant en Co

Address Havenstraat, Amsterdam

Gross floor area 10.000 m²

Nomination Architectenweb school building of the year 2021

66
Ground floor From left to right: The dome Arched rooms, 6th form common room. Cell Wing, the original narrow galleries have been widened by means of steel insertions in the voids to provide more spacious meeting and traffic areas.

The British School of Amsterdam

a former prison transforming into British School

The British School of Amsterdam (BSA) offers a British international education to 900 children aged from three to 18. The BSA chose to transform a historic penitentiary to house its three scattered schools (Early years, Juniors and Seniors) along with community facilities.

The architectural assignment was a challenge. The closed and introverted nature of the prison had to be reconciled with the world-oriented spirit of education. In addition to the 6,762 m² renovation of the municipal monument, 7,361 m² new construction has been added in a harmonious manner. The logistics and routing within the old prison was used as a basis and the new program components were attached to it. Each building section, or wing of the prison, is a specific school. The central hall is the meeting point for everyone, the halls in the wings are used by the different schools.

67
Old situation

From left to right: the cells have been broken open and transformed into teaching spaces; transparent connection between old and new; multifunctional space; playground

69
Left: “The Globe”, a central meeting place for young and old

Berufsschule, Fachschule

Periode 2012 - 2015

Auftraggeber

Ons Middelbaar Onderwijs

Projektarchitekten Dorte

Kristensen und Pascale Leistra

Projektleiter Pascale Leistra

Adresse Piuslaan 93, Eindhoven

Bruttogeschossfläche

10.576 m²

Renovierung 4.136 m²

Neubau: 6.440 m²

70
doorsnede
Erdgeschoss
doorsnede

Vakcollege Eindhoven & Aloyisius De Roosten Mavo, Eindhoven

Spiel zwischen alt und neu

Atelier PRO ist verantwortlich für die Renovierung des alten Hauptschulgebäudes aus den 50-iger Jahren sowie dem Neubau der Vakcollege Eindhoven & Aloyisius De Roosten Mavo, eine neue Schulgebäude, dass zwei Schulen beherbergen wird: die Schule de “Burgh&Aloysius” sowie die Schule “de Roosten“ sowie einer Sporthalle. Obwohl beide Schulen Räumlichkeiten teilen werden, ist es extrem wichtig, jeder Schule seine eigene Identität und Ausstrahlung zu geben . Das renovierte bestehende Hauptgebäude bleibt mit seiner historischen Ausstrahlung verantwortlich für die Interaktion mit der Nachbarschaft, so dass der Neubau, wie vom Auftraggeber gewünscht im Schutz des alten entstehen kann.

71
Neue Situation Bestehende Situation
72

Gesamtschule

Gymnasium, Realschule

Periode 2013 - 2015

Auftraggeber Heijmans Bouw

Projektarchitekt Alex Letteboer, Pascale Leistra und Menno Roefs

Projektleitung Pascale Leistra, Menno Roefs

Adresse Couperusplein 33, Den Haag

Bruttogeschoßfläche 7.230 m² (5.570 m² nieuw, 1.660 m² bestaand)

Baukosten € 6.313.000,-

Lagenplan

74

Edith Stein College, Den Haag

Landgut in der Hager Innenstadt

In der Den Haager Innenstadt, am Ende des Louis Couperusplein, soll ein klares, kompaktes Unterrichtsgebäude realisiert werden. Hierdurch entsteht Platz auf dem Grundstück der Schule für Sport , Spiel , Gartenbau und Freiluftunterricht. Eine neue Umgebung , die Schülern aus verschiedene Problembezirken der Stadt auf einem besonderen Grundstück ein Zuhause bieten soll..

75
76
78
79

Gesund & nachhaltig

Secondary education. Brainpoort school for gymnasium, atheneum, havo and mavo

Periode 2018 - 2020

Client

KWK huisvestingsregisseurs

Project architect

Dorte Kristensen, Mira van Beek

Project leader René Souverijn

Address Grote Bos 2, Geldrop

Gross floor area 8.000 m²

Costs per m² € 1.500,-

Building costs €12.000.000,-

82
Strabrecht College Geldrop begane grond ground floor 5 (m) plattegrond begane grond Strabrecht College Geldrop Strabrecht College Geldrop 01 5 (m) plattegrond begane grond Strabrecht College Geldrop ground floor plan Strabrecht College Geldrop Strabrecht College, Geldrop begane grond ground floor
Exterior, atrium and learning area Ground floor

Strabrecht College, Geldrop

High sustainability ambitions, ready for the future

Strabrecht College has moved to a new building. The location for the new building is a few steps away from the Strabrechtse heath in Geldrop. A beautiful location surrounded by trees.

The patios, one of the characteristic elements of the old building, are back in the new building. They bring light deep into the building, provide the opportunity to teach outdoors and refine the scale of the contour, thus matching the grain of the environment.

A transition to personalized learning has been translated into four clusters with classrooms, study and learning areas that are located like houses at the central auditorium.

The school and municipality had high sustainability ambitions in terms of both energy use and circularity. In that sense too, the Strabrecht College is ready for the future!

83

Gesamtschule

Gymnasium, Realschule

Periode 2011 - 2014

Auftraggeber Gemeente

Utrecht

Projektarchitekten

Dorte Kristensen und Lisette

Plouvier mit Evelien van Beek

Projektleiter Eelko Bemener

Adresse Winklerlaan 373, Utrecht

Bruttogeschossfläche

9.867 m²

Baukosten insgesamt

€ 10.692.125,-

Lagenplan und volumenstudie

84

Gerrit Rietveld College Utrecht

das Rad als Grundidee eines dynamischen Grundrisses

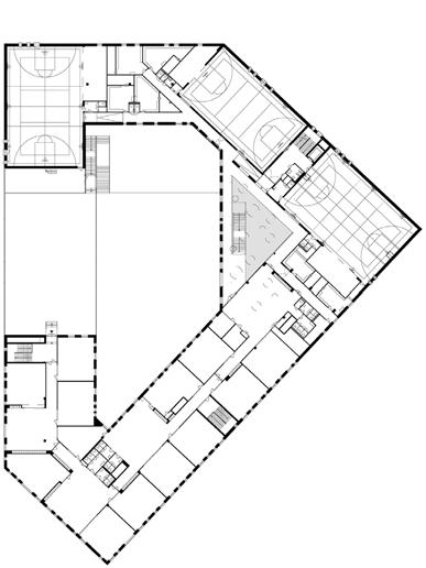
Das Gerrit Rietveld College ist eine weiterführende Gesamtschule in Utrecht für ungefähr 1200 Schüler. Außerdem beinhaltet das Projekt verschiedene Sporthallen und Räumlichkeiten für eine noch nicht bekannte Funktion, die dem Viertel zu Gute kommen soll. Der Neubau liegt im grünen Stadtteil “Tuindorp” im Osten von Utrecht. Der Grundgedanke des Entwurfs ist ein Rad, dass um einen Innenhof dreht. Alle Funktionen sind so um den Hof verteilt, das sie einfach verschoben werden können, wenn der Bedarf an Räumlichkeiten sich ändert. Auf diese Weise ist ein sehr flexibler Entwurf entstanden, der sich an Veränderungen innerhalb der Schule leicht anpassen lässt. Im Zentrum der Schule liegt ein Foyer am Hof, von wo aus direkt alle Bereiche des Gebäudes sowie die Dachterrassen erschlossen sind.

85
86
88
Begane grond Eerste verdieping 1 aula 2 atrium 3 fietsenstalling 4 laboratorium 5 domein exact 6 technasium
3 4 2 1 8 5 6 7 3 4 2 1
6
7 domein kunst en cultuur 8 hof
5
1 domein exact 2 personeel 3 terras 1 4 domein mens & samenleving 5 domein talen 6 1&2 HAVO VWO
1 2 4 5 6
Tweedeverdieping 1 survivalzaal 2 domein sport en beweging 3 turnzaal 4 speelzaal 5 1&2 MAVO HAVO 6 terras 2

Period 2012 -

Client VU Medisch Centrum

Project architect

Hans Kalkhoven, Alex Letteboer, Bas Woldman

Project leader

Hans Tak and Paul Vlaar

Address Van der Boechorststraat, Amsterdam

Gross floor area 28.159 m²

90

Research Diagnostics Center Amsterdam UMC

sustainable and flexible

Atelier PRO made the design for the new building of the Research Diagnostics Center that is part of the Amsterdam UMC (University Medical Centre). The building with offices and laboratories on the Van der Boechorststraat, is approximately 28,100 m² and is part of a larger, future expansion on the south side of the existing VUmc complex on the Boelelaan in Amsterdam. The building is flexible in design as a future-proof housing for the so-called ‘Adore’ project. ADORE stands for Amsterdam Oncology and Neuroscience Research and encompasses a new way of medical-scientific research in which the use of the synergies between oncological and neuroscientific research is central.

In atelier PRO‘s design, the combination of a healing environment, sustainability and flexibility has strongly been emphasised. The building contains two atriums that function as ‘green lungs’: these are tempered outdoor climate zones with indoor gardens, surrounded by clusters of workplaces.

91
atelier PRO architekten Kerkhoflaan 11a 2585 JB Den Haag +31(0)70 3506900 info@atelierpro.nl www.atelierpro.nl

Turn static files into dynamic content formats.

Create a flipbook
Issuu converts static files into: digital portfolios, online yearbooks, online catalogs, digital photo albums and more. Sign up and create your flipbook.
Portfolio bildung by pr@atelierpro.nl - Issuu