Prahita Internship Portfolio

Page 1

ARCHITECTURAL PORTFOLIO

NALLAPURAJU PRAHITA

prahita.247@gmail.com

IG ID: _._prahi_._

As a person driven by curiosity and an insatiable thirst for knowledge and passion for the built environment, my nature pushes me to explore and appreciate the intricacies of architecture from various perspectives. Over the past four years of my education, I have gained a solid foundation in architectural principles, design techniques, and construction methods.

By approaching my studies with a strong sense of dedication and discipline, I am committed to honing my technical abilities and developing strong design sensibilities. I am always seeking feedback and critique to grow as a designer and refine my craft.

Overall, I am passionate, open-minded, and constantly seeking new knowledge and experiences. I strive to create eaningful and impactful designs that not only enhance the built

ABOUT ME

BIRTH 10 APRIL, 2002

NATIONALITY Indian

RESIDENCE Visakhapatnam, Andhra Pradesh

LINGUISTIC ABILITIES

Telugut

English

Hindi

Odia / Oriya

Spanish

EDUCATION

2019-Present

Bachelor of Architecture

Sri Sri University | Cuttack | Odisha

2017-2019

11th & 12th | Sri Chaitanya Jr College | Steel Plant | Andhra Pradesh

2017 | 10th Grade | Chaitanya Public School | AP

INTERESTS

Photography

Sketching

Gaming

Cooking

Learning softwares

Learning languages

DOCUMENTATION

Naggar Castle | Study Tour Documentation | 2023

Barabati Fort | ANDC | 2022

Sambuvanipalam | Indigenous Dwelling Heritage

Documentation | 2021

Mukteshwar Temple Complex|Documentation| 2020

Siddheswar Temple | Heritage Documentation | 2019

SOFTWARES

Auto CAD

Sketch up

Escape

Lumion

Twin-motion

Photoshop

InDesign

Microsoft Power point

ArcGIS

Google Earth pro

E-tabs

Microsoft Word

Microsoft Excel Design Builder

EXPERTISE

Information Research

Hand Drafting

Hand Cut Modeling

Conceptualization

Team Work

Observation

Space Planning

Decision Making

WORKSHOPS & SEMINARS

Verticality and Urban Spaces | Kiit University

Nikon workshop | Sri Sri University

Building Services | Sri Sri University

Sketch up Modeling | Kaarwan Design School

Landscape Design | Kaarwan Design School

Sustainable Design | Kaarwan Design School

Light & Colors in Interior Designing | Archilecture

Indian Institute of Architects | Odisha Chapter

Architecture and Music | Sri Sri university

Drafting

Modelling

Visualitation

ArcGIS for Site Analysis | LPU, Punjab

Design Builder Software | LPU, Punjab

ACHIEVEMENTS & COMPETITION

Special Mention | Interior Design Trophy

Representation

ZONAL NASA | 2022 [pair]

Cartography

Structural Analysis office

Energy Simulation

2nd place | Verticality and Urban Spaces

Kiit University | 2022 [team]

1st Place | Hotel in 3000s

Sri Sri university | 2020 [team]

Shortlisted | Temple Documentation

COA Heritage Documentation | 2021 [team]

Co-working & Co-living | Design Addvance

Ac-edge | 2022 [pair]

School of Architecture | Design 24

ZONAL NASA | 2022 [team]

Tourist Hub | Vertical Design Studio

Sri Sri University | 2022 [team]

Design isn’t coming up with colors and shapes. it’s about developing a series of questions and idea which has a certain rigor and consequence to them.

Contents

Academic Projects

Vertical Housing

Highway Amenities

Competition

Mixed-use Hub

Revival of Barabati Fort

Documentation

Naggar Castle

Sambuvnipalam

Miscellaneous

Photography

Cartography

S A D A N A M

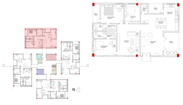
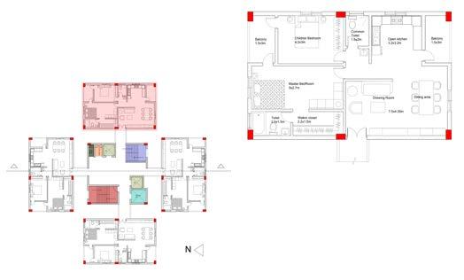
Vertical Housing

Design Brief: Housing requires no introduction as it already acclaimed its reputation as a challenge for the designer. The Exercise aims to deal with essential elements of high rise housing design. Since the day vertical growth came into favor of countries striving to resolve population v/s habitable Land dispute, the fundamental of living attached to the ground lost its value. And since long time, multi storied structures have found in vain the correctness of neighborhood as an integrated and well-thought design feature. Thus, the exercise would also focus upon achieving the sense of neighborhood in tall buildings.

Design Problem: In creating a sense of community in a neighborhood or in a building we need to, Design a central node, Create a boundary, Create an image of similarity of buildings,Create opportunities/catalysts for social meeting.-spaces for community activity, Safety for children from vehicular traffic inside the campus. It is often said that children are the true neighborhood people, Neutralizing possibilities of Vertigo, Structural simplicity as well as structural innovativeness, Climatically suitable for the area.

Location: Berhampur, Odisha

Site Area: 4.35 Acres

Type: Vertical Housing

1 2 3 1 2 3 4 5
FORM DEVELOPMENT SITE PLAN BASEMENT FLOOR
4BHK FLOOR PLAN 2BHK FLOOR PLAN 3BHK FLOOR PLAN STILT FLOOR PLAN

TYPICAL FLOOR FOR PLAN 4BHK WITH FURNITURE

TYPICAL FLOOR FOR PLAN 4BHK WITH FURNITURE

service lift Electrical room refuge chute lift DRG.NO. CON/CHA/HB/TB-02 [1] ALL DIMENSIONS ARE IN M.M. UNLESS OTHERWISE MENTIONED. [2] ONLY FIGURED DIMENSIONS ARE TO BE FOLLOWED NEITHER THE BARS SHALL BE COUNTED [3] ANY DISCREPANCY IN THE DRGS. SHALL BE BROUGHT TO THE NOTICE OF THE ARCHITECT/ CONSULTANT AND CLARIFICATION OBTAINED IN WRITING PRIOR TO EXECUTION OF WORK. [5] CLEAR COVER OF OUTER LAYER REINF. SHALL BE AS FOLLOWS. (a) FOUNDATION 50 mm. (b) COLUMN 40 mm.(c) BEAM 40mm. OR DIA OF BAR WHICHEVER IS MORE (d) SLAB 15 mm. [6] END/SIDE COVER OF ALL REINFORCEMENT IN BEAMS SLAB 25 mm. OR DIA OF BAR WHICHEVER [7] THE COVER BLOCK OF CEMENT MORTAR SHALL BE USED TO ENSURE THE REQD.COVER OF REINF. [8] DEVELOPMENT LENGTH SHALL BE 50D WHER IS THE DIAMETER OF BAR. [11] NECESSARY FIXTURE FOR ELECTRICAL, PLUMBING, ETC. SHALL BE PROVIDED IN SLAB, BEAMS [13] P.C.C.(1:4:8) SHALL BE PROVIDED. OR AS PER SPECITICASTION MENTIONEL IN ESTIMATE [14] EXPANSION GAP SHALL BE PROVIDED ABOVE FOUNDATION RAFT LVL. TO TERRACE LVL. AT LOCATION [15] ALL PLAIN CONCRETE RCC SHALL BE STRICTLY IN ACCORDANCE WITH THE PROVISION OF IS 456:2000 [15] CUTTING,BENDING,FIXING & PLACING OF BARS SHALL BE IN ACCORDANCE WITH IS 2502:1968, IS [2] NOT MORE THAN 50 OF BARS SHALL BE LAPPED AT A SECTION AND LAPS SHALL BE STAGGERED. [4] VERTICAL BARS OF RCC COLUMN AT TOP SLAB SHALL BE EXTENDED UPTO TOP OF BEAM & BENT INTO (III)AT THE JUNCTION OF TWO NOS OF THE BEAM COMMON SUPPORT SHALL BE CONSIDERED AS FIRST SUPPORT FOR THE HIGHER NO OF BEAM WHILE SECOND SUPPORT FOR THE LOWER NO OF BEAM. (IV) AT THE LOCATION OF COMMON SUPPORT HIGHER OF THE REINFORCEMENT OF BOTH THE BEAMS REINFORCEMENT AT BOTTOM FACE AT MID SPAN ,SAME CURTAILMENT RULE AS FOR TOP FACE (VI) IF REINFORCEMENT AT SUPPORT AT TOP FACE IS LESS THAN THE REINFORCEMENT AT TOP FACE AT TOP FACE AT MID SPAN,SAME CURTAILMENT RULE AS FOR BOTTOM FACE REINFORCEMENT IS TO BE (VII)LOCATION OF BEAMS IN PLAN WITH RESPECT TO THE COLUMNS SHALL BE PROVIDED AS PER PROPOSED VERTICAL HOUSING AT Ttypical plan with furniture layout A B C D F G 1 4 2 3 E 1 4 5 6 2 3 A B C D F G E 7 5 6 7 30000 30500 30000 30500 2600 3900 5400 4600 4700 9400 2600 3900 5400 4600 4700 9400 9400 1800 600 3800 4700 9400 350 600 C1 C1 C1 C1 C1 C1 C1 C1 C1 C1 C1 C1 C1 C1 C1 C1 C1 C1 C1 9400 1800 600 3800 4700 9400 350 600 350 600 350 600 350 600 350 600 350 600 350 600 350 600 350 600 600 350 600 350 600 350 600 350 600 350 600 350 600 350 600 350
DRG.NO. [1] ALL DIMENSIONS [2] ONLY [3] ANY DISCREPANCY CONSULTANT [5] CLEAR (b) COLUMN [6] END/SIDE [7] THE [8] DEVELOPMENT [11] NECESSARY [13] P.C.C.(1:4:8) [14] EXPANSION [15] ALL PLAIN [15] CUTTING,BENDING,FIXING [2] NOT [4] VERTICAL (III)AT THE SUPPORT (IV) AT THE REINFORCEMENT (VI) REINFORCEMENT TOP FACE (VII)LOCATION PROPOSED 600 600 600 LAPPING ZONE Typical arrangement for Lateral Ties & Lapping 600 Lap=58 dia bar 12a a PEDESTAL R/F b a B A p# no. N.G.L±000 A X B axb 8# TIE 3 NOS. SHAPE OF PED. REF. 150 r# NOS. p# NOS. (A+150) X (B+150) EXCAVATION 450 TYP. -1825 FOUNDATION LEVEL. DC (125)PCC 1:4:8 SAND FILLING 150 Ld N.G.L PD 1200 P.L-600 P.L-600 TIE BEAM A B C D F G 1 4 2 3 E 1 4 5 6 2 3 A B C D F G E 7 5 6 7 30000 30500 30000 30500 2600 3900 5400 4600 4700 9400 2600 3900 5400 4600 4700 9400 9400 1800 600 3800 4700 9400 C1 C1 C1 C1 C1 C1 C1 C1 C1 C1 C1 C1 C1 C1 C1 C1 C1 C1 C1 350 600 600 350 600 350 600 350 600 350 350 600 350 600 350 600 350 600 350 600 350 600 600 350 600 350 600 350 600 350 600 350 600 350 600 350 600 350
FOOTING LAYOUT PLAN OF 4BHK BLOCK

LINTEL BEAM LAYOUT PLAN FOR 4BHK ROOF BEAM LAYOUT PLAN FOR 4BHK

TYPICAL FLOOR PLAN OF 2BHK BLOCK LINTEL LEVEL PLAN DRG.NO. CON/CHA/HB/TB-02 [1] ALL DIMENSIONS ARE IN M.M. UNLESS OTHERWISE MENTIONED. [2] ONLY FIGURED DIMENSIONS ARE TO BE FOLLOWED NEITHER THE BARS SHALL BE COUNTED [3] ANY DISCREPANCY IN THE DRGS. SHALL BE BROUGHT TO THE NOTICE OF THE ARCHITECT/ CONSULTANT AND CLARIFICATION OBTAINED IN WRITING PRIOR TO EXECUTION OF WORK. [5] CLEAR COVER OF OUTER LAYER REINF. SHALL BE AS FOLLOWS. (a) FOUNDATION 50 mm. (b) COLUMN 40 mm.(c) BEAM 40mm. OR DIA OF BAR WHICHEVER IS MORE (d) SLAB 15 mm. [6] END/SIDE COVER OF ALL REINFORCEMENT BEAMS & SLAB 25 mm. OR DIA OF BAR WHICHEVER [7] THE COVER BLOCK OF CEMENT MORTAR SHALL BE USED TO ENSURE THE REQD.COVER OF REINF. [8] DEVELOPMENT LENGTH SHALL BE 50D WHER D IS THE DIAMETER OF BAR. [11] NECESSARY FIXTURE FOR ELECTRICAL, PLUMBING, ETC. SHALL BE PROVIDED IN SLAB, BEAMS [13] P.C.C.(1:4:8) SHALL BE PROVIDED. OR AS PER SPECITICASTION MENTIONEL IN ESTIMATE [14] EXPANSION GAP SHALL BE PROVIDED ABOVE FOUNDATION RAFT LVL. TO TERRACE LVL. AT LOCATION [15] ALL PLAIN CONCRETE RCC SHALL BE STRICTLY IN ACCORDANCE WITH THE PROVISION OF IS 456:2000 [15] CUTTING,BENDING,FIXING PLACING OF BARS SHALL BE IN ACCORDANCE WITH 2502:1968, IS [2] NOT MORE THAN 50 OF BARS SHALL BE LAPPED AT SECTION AND LAPS SHALL BE STAGGERED. [4] VERTICAL BARS OF RCC COLUMN AT TOP SLAB SHALL BE EXTENDED UPTO TOP OF BEAM BENT INTO (III)AT THE JUNCTION OF TWO NOS OF THE BEAM COMMON SUPPORT SHALL BE CONSIDERED AS FIRST SUPPORT FOR THE HIGHER NO OF BEAM WHILE SECOND SUPPORT FOR THE LOWER NO OF BEAM. (IV) AT THE LOCATION OF COMMON SUPPORT HIGHER OF THE REINFORCEMENT OF BOTH THE BEAMS REINFORCEMENT AT BOTTOM FACE AT MID SPAN ,SAME CURTAILMENT RULE AS FOR TOP FACE (VI) REINFORCEMENT AT SUPPORT AT TOP FACE IS LESS THAN THE REINFORCEMENT AT TOP FACE AT TOP FACE AT MID SPAN,SAME CURTAILMENT RULE AS FOR BOTTOM FACE REINFORCEMENT IS TO BE (VII)LOCATION OF BEAMS IN PLAN WITH RESPECT TO THE COLUMNS SHALL BE PROVIDED AS PER PROPOSED VERTICAL HOUSING AT service Electrical refuge chute lift A B C D F G 1 4 2 3 E 1 4 5 6 2 3 A B C D F G E 7 5 6 7 30000 30500 30000 30500 2600 3900 5400 4600 4700 9400 2600 3900 5400 4600 4700 9400 9400 1800 600 3800 4700 9400 600 350 576.8180 336.4772 C1 C1 C1 C1 C1 C1 C1 C1 C1 C1 C1 C1 C1 C1 C1 C1 C1 C1 C1 350 600 600 350 600 350 600 350 600 350 350 600 350 600 350 600 350 600 350 600 350 600 600 350 600 350 600 350 600 350 600 350 600 350 600 350 600 350 REINFORCEMENT DETAIL OF BEAM (TYP) 50 D 0.3L1 & 50D 0.3L1 & 50D L1' 0.25 L1' SUPP. STRPS. 0.1 L1 SPAN STPRS. SUPP. STRPS. 0.25 L1' 0.15 L1 GREATER OF L1 GREATER OF 50 75 0.3L2 50D 0.3L2 50D L2' SECONDARY BEAM SUPP. STRPS. 0.25 L2' 0.15 L2 SPAN STPRS. EXT. STRPS. (TYP) (2+2)-2L-10 SUPP. STRPS. 0.25 L2' 0.15 L2 GREATER OF L2 GREATER OF TYP.DETAIL SHOWING PRIMARY AND SECONDARY BEAM JUNCTION WITH BOTH SIDE RING @ 4'' C/C MIN. 5 NOS.EITHER SIDE DRG.NO. CON/CHA/HB/TB-02 ALL DIMENSIONS ONLY FIGURED ANY DISCREPANCY CONSULTANT AND [5] CLEAR COVER (b) COLUMN 40 [6] END/SIDE COVER [7] THE COVER BLOCK [8] DEVELOPMENT [11] NECESSARY FIXTURE [13] P.C.C.(1:4:8) SHALL [14] EXPANSION GAP [15] ALL PLAIN CONCRETE [15] CUTTING,BENDING,FIXING [2] NOT MORE THAN [4] VERTICAL BARS (III)AT THE JUNCTION SUPPORT FOR THE (IV) AT THE LOCATION REINFORCEMENT (VI) IF REINFORCEMENT TOP FACE AT MID (VII)LOCATION OF PROPOSED 2BHK BLOCK ROOF
PLAN service lift A B C D F G 1 4 2 3 E 1 4 5 6 2 3 A B C D F G E 7 5 6 7 30000 30500 30000 30500 2600 3900 5400 4600 4700 9400 2600 3900 5400 4600 4700 9400 9400 1800 600 3800 4700 9400 C1 C1 C1 C1 C1 C1 C1 C1 C1 C1 C1 C1 C1 C1 C1 C1 C1 C1 C1 350 600 600 350 600 350 600 350 600 350 350 600 350 600 350 600 350 600 350 600 350 600 600 350 600 350 600 350 600 350 600 350 600 350 600 350 600 350
BEAM

TERRACE PLAN FOR 4BHK STAIRS CASE SECTION FOR 4BHK

STAIR CASE DETAILS OF 2BHK BLOCK

EAST ELEVATION FOR 4BHK

NORTH ELEVATION FOR 4BHK

RCC WATER OVERHEAD TANK FOR DOMESTIC USE MUMPTY ROOF PLAN- SERVICE STAIRCASE 100m Ø RWP SLOPE1:50 100m Ø RWP SLOPE1:100 WATER TANK FOR FIRE FIGHTING DRG.NO. CON/CHA/HB/TB-02 [11] NECESSARY FIXTURE FOR ELECTRICAL, PLUMBING, ETC. SHALL BE PROVIDED IN SLAB, BEAMS [13] P.C.C.(1:4:8) SHALL BE PROVIDED. OR AS PER SPECITICASTION MENTIONEL IN ESTIMATE [14] EXPANSION GAP SHALL BE PROVIDED ABOVE FOUNDATION RAFT LVL. TO TERRACE LVL. AT LOCATION [15] ALL PLAIN CONCRETE RCC SHALL BE STRICTLY IN ACCORDANCE WITH THE PROVISION OF IS 456:2000 [15] CUTTING,BENDING,FIXING PLACING OF BARS SHALL BE IN ACCORDANCE WITH IS 2502:1968, [2] NOT MORE THAN 50 OF BARS SHALL BE LAPPED AT SECTION AND LAPS SHALL BE STAGGERED. [4] VERTICAL BARS OF RCC COLUMN AT TOP SLAB SHALL BE EXTENDED UPTO TOP OF BEAM BENT INTO (III)AT THE JUNCTION OF TWO NOS OF THE BEAM COMMON SUPPORT SHALL BE CONSIDERED AS FIRST SUPPORT FOR THE HIGHER NO OF BEAM WHILE SECOND SUPPORT FOR THE LOWER NO OF BEAM. (IV) AT THE LOCATION OF COMMON SUPPORT HIGHER OF THE REINFORCEMENT OF BOTH THE BEAMS REINFORCEMENT AT BOTTOM FACE AT MID SPAN ,SAME CURTAILMENT RULE AS FOR TOP FACE (VI) IF REINFORCEMENT AT SUPPORT AT TOP FACE IS LESS THAN THE REINFORCEMENT AT TOP FACE AT TOP FACE AT MID SPAN,SAME CURTAILMENT RULE AS FOR BOTTOM FACE REINFORCEMENT IS TO BE (VII)LOCATION OF BEAMS IN PLAN WITH RESPECT TO THE COLUMNS SHALL BE PROVIDED AS PER PROPOSED VERTICAL HOUSING AT TERRACE ROOF PLAN 100m Ø RWP SLOPE1:50 100m RWP SLOPE1:50 MUMPTY ROOF PLAN- FIRE ESCAPE STAIRCASE service lift lift 100m Ø RWP SLOPE1:100 100m Ø RWP SLOPE1:100 100m Ø RWP SLOPE1:100 100m Ø RWP SLOPE1:100 100m Ø RWP SLOPE1:100 2 300 300 DETAIL AT [P] 150 150 DETAIL AT [X] 50 MM Ø S.S CAP 75 MM Ø S.S BALL 25 MM Ø S.S PIPE BALUSTER 50 MM Ø S.S PIPE HANDRAIL BALUSTRADE PILLAR BASE DIA. 90 MM R.C.C WAIST ROOF SLAB 150 300 18 MM HALF ROUND NOSING IN MARBLE STONE FOR TREADS 25 MM THK. BASE OF CEMENT MORTAR (1CEMENT:4 MORTAR) 25 DETAIL AT 2 18 Service staircase D1
DRG.NO. [5] (b) [6] [7] [8] [11] [13] [14] [15] [15] [2] [4] (III)AT SUPPORT (IV) REINFORCEMENT (VI) TOP (VII)LOCATION PROPOSED 1st FLOOR LEVEL (+4.65 M) 2nd FLOOR LEVEL (+7.8 M) STILT FLOOR LEVEL (+1.5 M) 3rd FLOOR LEVEL (+10.95 M) 4th FLOOR LEVEL (+14.1 M) ROOF LEVEL (+37.5 M) 5th FLOOR LEVEL (+17.25 M) 6th FLOOR LEVEL (+20.4 M) 7th FLOOR LEVEL (+23.55 M) 8th FLOOR LEVEL (+26.7 M) 9th FLOOR LEVEL (+29.85 M) 10th FLOOR LEVEL (+33 M) A A' Key plan east elevation DRG.NO. CON/CHA/HB/TB-02 ALL DIMENSIONS ARE M.M. UNLESS OTHERWISE MENTIONED. ONLY FIGURED DIMENSIONS ARE TO BE FOLLOWED NEITHER THE BARS SHALL BE COUNTED ANY DISCREPANCY THE DRGS. SHALL BE BROUGHT TO THE NOTICE OF THE ARCHITECT/ CONSULTANT AND CLARIFICATION OBTAINED WRITING PRIOR TO EXECUTION OF WORK. [5] CLEAR COVER OF OUTER LAYER REINF. SHALL BE AS FOLLOWS. (a) FOUNDATION 50 mm. (b) COLUMN 40 mm.(c) BEAM 40mm. OR DIA OF BAR WHICHEVER MORE (d) SLAB mm. [6] END/SIDE COVER OF ALL REINFORCEMENT IN BEAMS SLAB 25 mm. OR DIA OF BAR WHICHEVER [7] THE COVER BLOCK OF CEMENT MORTAR SHALL BE USED TO ENSURE THE REQD.COVER OF REINF. [8] DEVELOPMENT LENGTH SHALL BE 50D WHER THE DIAMETER OF BAR. [11] NECESSARY FIXTURE FOR ELECTRICAL, PLUMBING, ETC. SHALL BE PROVIDED SLAB, BEAMS [13] P.C.C.(1:4:8) SHALL BE PROVIDED. OR AS PER SPECITICASTION MENTIONEL IN ESTIMATE [14] EXPANSION GAP SHALL BE PROVIDED ABOVE FOUNDATION RAFT LVL. TO TERRACE LVL. AT LOCATION [15] ALL PLAIN CONCRETE RCC SHALL BE STRICTLY IN ACCORDANCE WITH THE PROVISION OF 456:2000 [15] CUTTING,BENDING,FIXING PLACING OF BARS SHALL BE IN ACCORDANCE WITH IS 2502:1968, [2] NOT MORE THAN 50 % OF BARS SHALL BE LAPPED AT SECTION AND LAPS SHALL BE STAGGERED. [4] VERTICAL BARS OF RCC COLUMN AT TOP SLAB SHALL BE EXTENDED UPTO TOP OF BEAM BENT INTO (III)AT THE JUNCTION OF TWO NOS OF THE BEAM COMMON SUPPORT SHALL BE CONSIDERED AS FIRST (IV) AT THE LOCATION OF COMMON SUPPORT HIGHER OF THE REINFORCEMENT OF BOTH THE BEAMS REINFORCEMENT AT BOTTOM FACE AT MID SPAN ,SAME CURTAILMENT RULE AS FOR TOP FACE (VI) REINFORCEMENT AT SUPPORT AT TOP FACE LESS THAN THE REINFORCEMENT AT TOP FACE AT TOP FACE AT MID SPAN,SAME CURTAILMENT RULE AS FOR BOTTOM FACE REINFORCEMENT TO BE (VII)LOCATION OF BEAMS IN PLAN WITH RESPECT TO THE COLUMNS SHALL BE PROVIDED AS PER PROPOSED VERTICAL HOUSING AT 1st FLOOR LEVEL (+4.65 M) 1st SILL LEVEL (+5.55 M) 1st LINTEL LEVEL (+6.75 M) 2nd FLOOR LEVEL (+7.8 M) STILT FLOOR LEVEL (+1.5 M) 2nd SILL LEVEL (+8.7 M) 2nd LINTEL LEVEL (+9.9 M) 3rd FLOOR LEVEL (+10.95 M) 3rd SILL LEVEL (+11.85 M) 3rd LINTEL LEVEL (+13.05 M) 4th FLOOR LEVEL (+14.1 M) 4th SILL LEVEL (+15 M) 4th LINTEL LEVEL (+16.2 M) 5th LINTEL LEVEL (+19.35 M) 6th LINTEL LEVEL (+22.5 M) 7th LINTEL LEVEL (+25.65 M) 8th LINTEL LEVEL (+28.8 M) 9th LINTEL LEVEL (+31.95 M) 10th LINTEL LEVEL (+35.1 M) 5th SILL LEVEL (+18.15 M) 6th SILL LEVEL (+21.3 M) 7th SILL LEVEL (+24.45 M) 8th SILL LEVEL (+27.6 M) 9th SILL LEVEL (+30.75 M) 10th SILL LEVEL (+33.9 M) ROOF LEVEL (+53.05 M) 5th FLOOR LEVEL (+17.25 M) 6th FLOOR LEVEL (+20.4 M) 7th FLOOR LEVEL (+23.55 M) 8th FLOOR LEVEL (+26.7 M) 9th FLOOR LEVEL (+29.85 M) 10th FLOOR LEVEL (+33 M) 11th SILL LEVEL (+37.05 M) 11th FLOOR LEVEL (+36.15 M) ELAVATION-A Front Elevation [1] ALL DIMENSIONS ARE IN M.M. [2] ONLY FIGURED DIMENSIONS ARE [3] ANY DISCREPANCY IN THE DRGS. CONSULTANT AND CLARIFICATION OBTAINED [5] CLEAR COVER OF OUTER LAYER (b) COLUMN 40 mm.(c) BEAM [6] END/SIDE COVER OF ALL REINFORCEMENT [7] THE COVER BLOCK OF CEMENT [8] DEVELOPMENT LENGTH SHALL [11] NECESSARY FIXTURE FOR ELECTRICAL, [13] P.C.C.(1:4:8) SHALL BE PROVIDED. [14] EXPANSION GAP SHALL BE PROVIDED [15] ALL PLAIN CONCRETE RCC SHALL [15] CUTTING,BENDING,FIXING PLACING [2] NOT MORE THAN OF BARS [4] VERTICAL BARS OF RCC COLUMN (III)AT THE JUNCTION OF TWO NOS SUPPORT FOR THE HIGHER NO OF (IV) AT THE LOCATION OF COMMON REINFORCEMENT AT BOTTOM FACE (VI) REINFORCEMENT AT SUPPORT TOP FACE AT MID SPAN,SAME CURTAILMENT (VII)LOCATION OF BEAMS PLAN PROPOSED VERTICAL 1st FLOOR LEVEL (+4.65 M) 1st SILL LEVEL (+5.55 M) 1st LINTEL LEVEL (+6.75 M) 2nd FLOOR LEVEL (+7.8 M) STILT FLOOR LEVEL (+1.5 M) 2nd SILL LEVEL (+8.7 M) 2nd LINTEL LEVEL (+9.9 M) 3rd FLOOR LEVEL (+10.95 M) 3rd SILL LEVEL (+11.85 M) 3rd LINTEL LEVEL (+13.05 M) 4th FLOOR LEVEL (+14.1 M) 4th SILL LEVEL (+15 M) 4th LINTEL LEVEL (+16.2 M) 5th LINTEL LEVEL (+19.35 M) 6th LINTEL LEVEL (+22.5 M) 7th LINTEL LEVEL (+25.65 M) 8th LINTEL LEVEL (+28.8 M) 9th LINTEL LEVEL (+31.95 M) 10th LINTEL LEVEL (+35.1 M) 5th SILL LEVEL (+18.15 M) 6th SILL LEVEL (+21.3 M) 7th SILL LEVEL (+24.45 M) 8th SILL LEVEL (+27.6 M) 9th SILL LEVEL (+30.75 M) 10th SILL LEVEL (+33.9 M) ROOF LEVEL (+53.05 M) 5th FLOOR LEVEL (+17.25 M) 6th FLOOR LEVEL (+20.4 M) 7th FLOOR LEVEL (+23.55 M) 8th FLOOR LEVEL (+26.7 M) 9th FLOOR LEVEL (+29.85 M) 10th FLOOR LEVEL (+33 M) 11th SILL LEVEL (+37.05 M) 11th FLOOR LEVEL (+36.15 M)
ELAVATION-A

V I S H R A M

Highway Amenities Center

Design Brief: India ranks second in the world in terms of road network connectivity, where 15-crore commuters take their journey through national highways each day. People spend ten minutes of their time on an average at each Toll plaza. Passengers who travel through highways face difficulties in terms of basic amenities. Also, the death rates due to road accidents have increased drastically. To mitigate these issues, the Ministry of Road Transport and Highways (MoRTH), through the NHAI, has launched the Wayside Amenities program to improve the availability of civic amenities on Indian National Highways. As a part of this, NHAI is building three structures to provide basic, moderate and advanced amenities to commuters and hence proposed the mega-plan of developing world-class roadside amenities along the National Highways through three sub-structures.

Design Problem: To design a center which helps to improve long distance experience for commuters. To create employment opportunities for local youth. A platform for farmers to sell their produce. To encourage frequent breaks during the journey. To reduce driver fatigue related accidents. Helipad to expedite evacuation during medical emergencies and providing disaster relief. Highway Village is a mega-project which is proposed to be constructed across 183 sites in the country. It will be developed through the Public-Private Partnership (PPP) model.

Location: Near Fathepur, utter Pradesh

Site Area: 20,234sqmts (5Acres)

Type: Mixed Use Building

MACRO ZONING MICRO ZONING

There are 4 types of zones in the site such as:

Zone 1: Fueling Stations

Zone2: Truckers area

Zone3: Other Vehicles area

Zone4: Amenities area

TENTATIVE SITE PLAN

FINAL SITE PLAN SERVICE PLAN
MAIN BUILDING FUEL STATION MOTEL DHABA ADMIN DORM FOOD COURT
ADMIN BLOCK DHABA BLOCK DORMITORY BLOCK FOOD COURT BLOCK

PHYSICAL MODAL

MAIN BUILDING BLOCK MOTEL BLOCK

Mixed-use Hub

Design Brief: The global pandemic and lockdowns have boosted technological advancements in our live-work patterns. Today, global companies have adapted to a hybrid model of work from office and home. Tier 2 and 3 cities in India can potentially emerge as business hubs & open fantastic opportunities, which will require urban development reforms and development of infrastructure. This opportunity will enable the qualified young professionals to work from home, stay closer to family, have a better work-life balance, thereby increasing their productivity and decreasing the pressure on mega-cities. But to achieve this, we need to reimagine the environment to fulfil the aspirations of the globally aspiring Indian youths from towns. Research and successful models of urbanism have shown that mixed-use developments yield economic and social.

Design Problem: To design a mixed-use development program which are beacons for their sustainable design and planning. Projects that represent the aspirations of the youth; that are examples of good architectural interventions; and invoke qualities of wellbeing, inclusivity, and an integrated approach. An opportunity to design innovative futuristic mixed–use hubs specifically for towns (Tier 2,3,4 cities), evoking a wholesome life experience while being net zero energy efficient.

Location: Opposite VIT University, Vellore, Tamil Nadu, India

Site Area: 20,234sqmts (5Acres)

Type: Mixed Use Building

Wind Direction in the site is from North West to South East .

Orienting the shorter side of the building towards the west for minimum heat gain.

Orienting longer side of the building towards west allows more wind.

L-shape building allows more wind and has less surface area on the west side.

Concept is derived from Work-life balance ideology. It is the state of equilibrium where a person equally prioritizes the demands of one’s career and the demands of one’s personal life. Work-life balance is an important aspect of a healthy work environment. Team Work, Connections and Networking are the other Ideologies of our concept which further helped us to create and derive the form of our Design. A curated co-working community at this workspace ensures a variety of talent that can help each other grow. This co-working space comes with Three zones i.e., public, semi - public & private offices helps to segregate the workflow and amenities

Co-living Block Co-working Block

Tenth Floor and Eleventh Floor accommodates Double user units max for 2 per room and has 2 rooms totally 4 people unit.

Eighth Floor and Ninth Floor also has co-working space only reserved for the users of co-living space of the building

Sixth Floor and Seventh Floor accommodates Single user units max for 2 people per room.

Fourth Floor and Fifth Floor has one kind of co working space open for public users.

Second Floor and Third Floor accommodate Dorms with up to 8 people per room.

Ground Floor and First Floor with a grand lobby and super market and many more amenities for the user.

3 Basement Floors With Double Decker Parking accommodating up to 900 users and has 2 ramps in total both for entry and exit of co-living and co working users

Double User Unit Single User Unit Dorm Unit

Cartography Through ArcGIS

Hillshade map Conture map Aspect map
Slope map Rail and Road map Hydrology map

Revival of Barabati Fort Competition

65ANDC-41 65ANDC-41

Naggar Castle Documentation

Sambuvanipalam

Retrieving the roots

Documentation

Miscellaneous Photography Cartography

Normalized Difference Built-Up Index (NDBI )

Cartography Through ArcGIS

Normalized Difference Vegetation Index (NDVI )

Normalized Difference Water Index (NDWI )

“Less is more, Less is better” - Oki Sato Contact prahita.247@gmail.com 9347564523 W IG ID: _._prahi_._

Turn static files into dynamic content formats.

Create a flipbook
Issuu converts static files into: digital portfolios, online yearbooks, online catalogs, digital photo albums and more. Sign up and create your flipbook.
Prahita Internship Portfolio by prahita nallapuraju - Issuu