Pune ,
Residential School
2. Campus design
B.Arch
-
4. of
PROJECT LIST – ARCHITECTURAL DESIGN PROJECTS
3.SajjangadResidential at Kumthekar Road, Maharashtra ,
-
Housing
studies
the training courses – Revit and 3d Max BACHELOR OF ARCHITECTURE (GENERAL)2008-2013
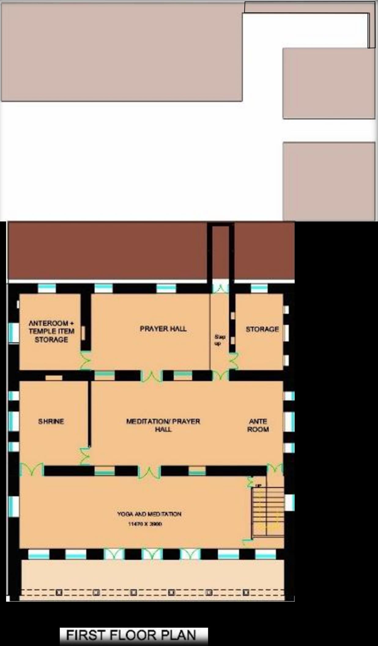
1. thesis project SANT PARAMPARA SAUNSHODHAN VAADHYAN KENDRA, SHEGAON centre for spiritual
Outputs
India
•Keertan
B.Arch Thesis project SANT PARAMPARA SAUNSHODHAN VA ADHYAN KENDRA, SHEGAON Centre for spiritual studies



•History of Sant Parampara

•Bharuda
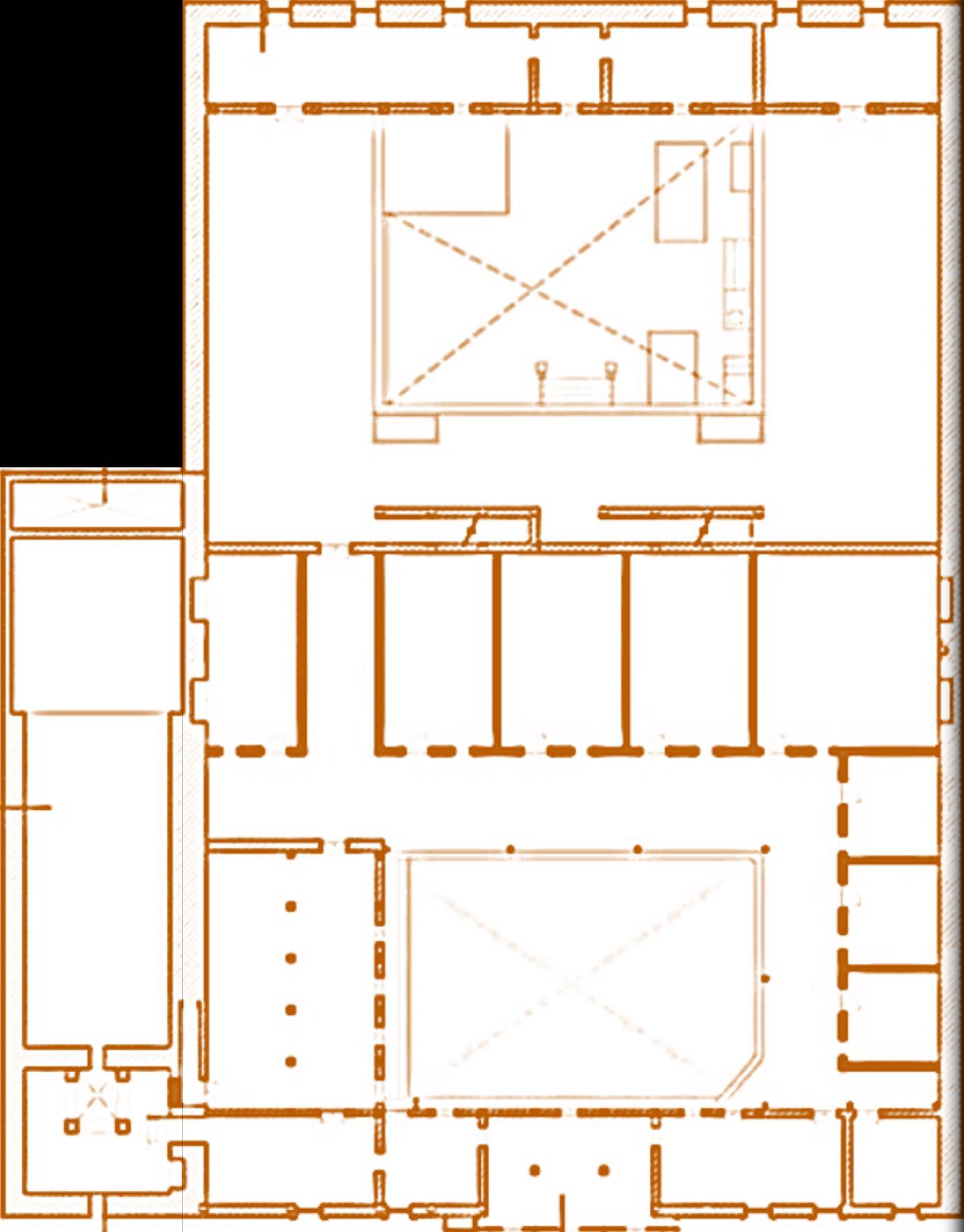
DESIGN PROJECT GROUND FLOOR PLAN Institutional area FIRST FLOOR PLAN Institutional area GROUND FLOOR PLAN Residential area FIRST FLOOR PLAN Residential area NN N N




under
va
five major subjects :
Basicallyvillagehas
, is an

• Planning in rigid form and cluster is observed as a response to hot and dry climate
Gajananmaharaj Saunsthan ,
The project Sant Parampara Saunshodhan Adhyayan Kendra institute running Shri Sant Shegaon
•Sanskrit
•Paulibhajan
N


Village Shegaon has many colleges and also schools but not a research institute which teaches or guides in the subjects related to Sant Parampara As per people’s request in the village Saunthan is organising such an institute which will help the followers and poor people of the
ARCHITECTURAL
•As a response to hot and dry climate, courtyard planning with small pockets is soseenthe immediate response to the existing architecture would be courtyards






Volumetric analysis
B.Arch Thesis project SANT PARAMPARA SAUNSHODHAN VA ADHYAN KENDRA, SHEGAON Centre for spiritual studies


CONSTRUCTION DETAILS


Meditation
Mangalore tiled roofing material centre roofing details



Conceptual sketches

Planning in units which are enclosed in an enclosure consisting of courtyards and small pockets It will help to capture cool air and release hot air


The following drawing is an architectural design project Contours and landscape details were first introduced in this project


Project requirement :







Site location: Sajjangad



Concern : Structure should respond climatically to the existing moderate climate and should work with your concept using materials , positions of openings, orientation




About the Project :
GROUND FLOOR PLAN SITE LOCATION NORTH SIDE VIEW WEST SIDE VIEW N INSTITUTIONAL AREA RESIDENTIAL AREA INTERPRETATION CENTRE Campus design Residential School Sajjangad Section View Section SectionPlan VOLUMETRICANALYSIS Construction Detail N N N








Sampoorna Shikshan Shala Sajjangad A residential school for learning various arts and skills, with a concept based on ideologies of Samartha Ramdas Swami includes classrooms , offices, dormitories, dhyanmandir and interpretation centre

LANDSCAPE PLAN PLANTING POLICY


VIEW AT PATHWAY TYPE OF TIMBER SEATING VIEW AT ART SECTION CONSTRUCTION DETAILS OF BLUESTONE PATHWAY

NYCANTHES ARBORISTIS - 3 DELONIX REGIA 3 ALSTONIA SCHOLARIS 7 ALTERNANTHERA 32 CAESALPINIA PULCHERRIMA 40 GOLDEN DURANTA 33 PLANTING POLICY





DETAIL AT CLASSROOMS AREA

Campus design – Landscaping Details - Residential School Sajjangad




Concern : Shopkeepers facing the Laxmi road to be given pucca/ permanent constructed shops without disturbing their daily income
Site location: Pune, between Kumthekar road and Laxmi road, Maharashtra, India
• Low density medium rise growth is preferred
Residential Housing at Kumthekar Road, Pune , Maharashtra , India
Plan N
Elevational Section
SITE ANALYSIS
• Existing trees should not be demolished
Project requirements :
CONCERNS
VARIOUS OPTIONS FOR 90 SQ M UNITS VARIOUS OPTIONS FOR 60 SQ M UNITS VARIOUS OPTIONS FOR 60 SQ M UNITS







CLUSTER DESIGN OPTIONS
• Maintaining the skyline of the existing peth area

Three different type of clusters or units with areas 40 sq m, 60 sq m and 90 sq m were specified with a given ground coverage



About the Project :
• Activities like parking should be planned according to the direction of traffic
• Bye laws should be considered for staircases and lift
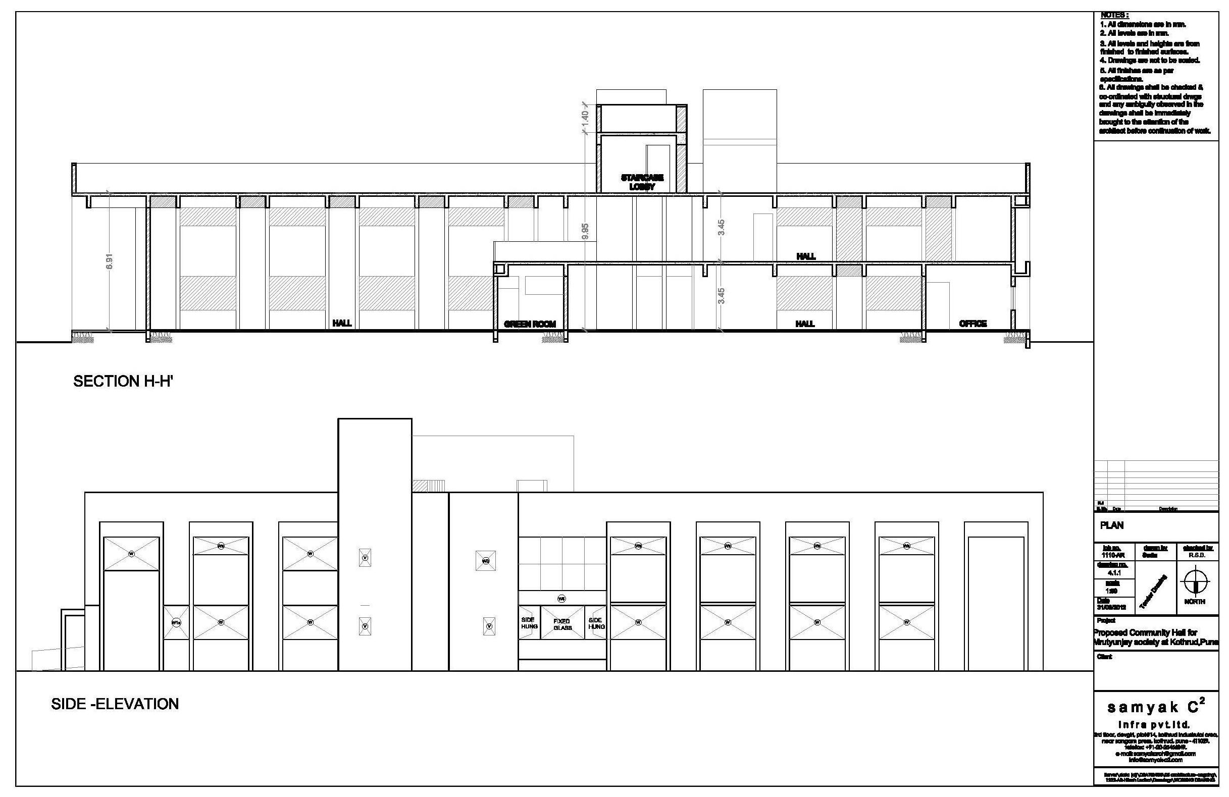
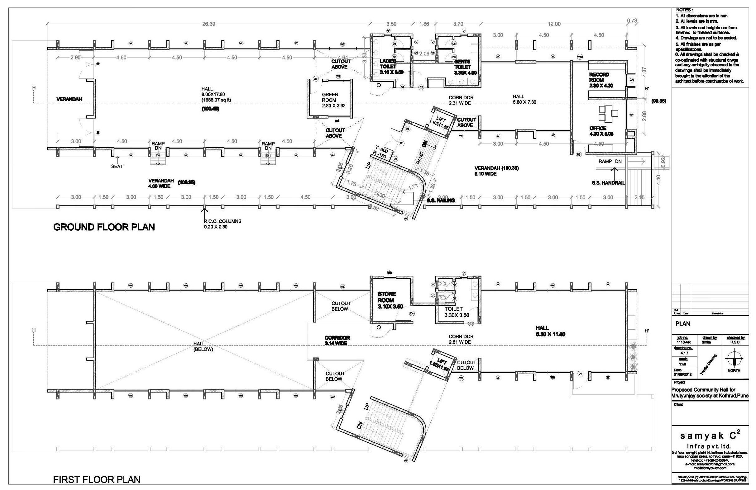
Mrutyunjay Community Hall, Pune, India
Internship project – Tender drawings


TV stand with decorative element bungalow project Max

Building bird’s eye view Apartment interior layout Building night view



Living Room stair view Living Room TV wall view Living Room TV stand view


software – Software Training in 2013 Outputs of the training courses – Revit and 3d Max
Views created from 3d
Revit



TV room day view TV room day view

2. Landcsape project for the client ramkrishna mission at belgaum, karnataka, india
PROJECT LIST – M.Arch conservation
5. Conservation proposal for the historic town of karanja laad, india- M.Arch thesis project
8.2016M.Arch
: extra curricular activities structural conservation workshop in fort ahhichatragarh, rajasthan , india
9.researchAdaptive reuse competition entry – re-use the fallen church at Grottole Italy 2021 –group entry
8.India lost and found research project on mahanirban math site lens individual
1. Restoration and revitalization of the historical building at belgaum, karnataka, M.Archindia
3. Adaptive re-use of holkar wada –pandharpur, maharashtra, india
internship - 2015
MASTERS IN ARCHITECTURAL CONSERVATION2014-2016
OF ONGOING CHANGES WHILE RESTORATION DRAWINGS
PHOTOS OF SITE
PROJECT NAME :


Restoration and revitalization of the Historical building at Belgaum, Karnataka, India M.Arch Internship - 2015

Proposed / present use Museum based on the life of Swami Vivekananda, Souvenir store, Dining Hall, Kitchen, Owner’s residence,Curator’s room, Staff room, Security guard room, Guest House and a small open air theatre.




SECTION SECTION NN
DOCUMENTATION
Past Use - The ground floor of the house is used for a bookshop, office, kitchen, dining room & bathroom.The first floor consists of a prayer hall, the room where Swami Vivekanand(a famous saint and a preacher) stayed, residence for Maharaj, Storage rooms, Pantry & toilet (later addition) The second floor which is in completely dilapidated condition has two rooms with slopping Mangalore tiled roof A hundred year old idol of Ganapati (local deity) is safely displayed in the prayer hall on first floor.
Client : Ramkrishna Mission Ashrama , Belgaum Location: Risaldaar lane, Near Tarun Bharat, Belgaum , Karnataka, India

Restoration and Revitalization of Historical building of the town centre at Belgaum, Karnataka


PROPOSED SITE PLAN



FOR INSPIRATION
•Repairing of damaged timber staircase and stone cleaning and stone repairs and burnt materials.

•Maintaining the colonial features like stained glass and cast iron railing provided to the structure.
Laying of lime concrete on slab

Lime water application on floor and ramming with Korchi(flat tool)

•Restoration of traditional flooring and roofing
•Part reconstruction of front façade, after removal of front additions, reconstruction of balcony flooring.
IMAGE
RESTORATION MEASURES PROPOSED
•Removal of insensitive interventions done within the period of time to the structure.
Laying of mat (chatai)

DOCUMENTATION OF ONGOING CHANGES WHILE RESTORATION -DRAWINGS TRADITIONALTECHNIQUEFLOORING
Framing of rafter and beams on balcony

Laying of mud on the mat
•Mangalore tile roofing replaced and provided with new construction technology.


•Use of traditional materials like lime, timber with same construction technology of the olden times.
•Strengthening the structure by introducing binders such as stone slabs, within the structure so that it lives for a prolonged period.
•Existing traditional elements, in the area tree trough, kitchen utensils of stone, retained.
•Restoration of the structure so that it maintains the serenity of the existing spaces like Swami Vivekananda room.
•Bringing back the symmetry of the structure,by construction repairs.
•Enhancing the beauty of the structure by upgrading the quality of landscape spaces around like gardens, existing trees, Tulshikatta
Wet Gunny bags spread on floor to keep the floor wet
STUDY OF CONSTRUCTION DETAILS TIMBER JOINERY ON SITE ON -SITE SKETCHES FLOORING AND ROOFING CONSTRUCTION TECHNIQUES




DESIGN OF GRATING AROUND A HERITAGE TREE ON SITE


Design of a pergola in a garden Design of a pergola in the garden Design of a pathway in a garden





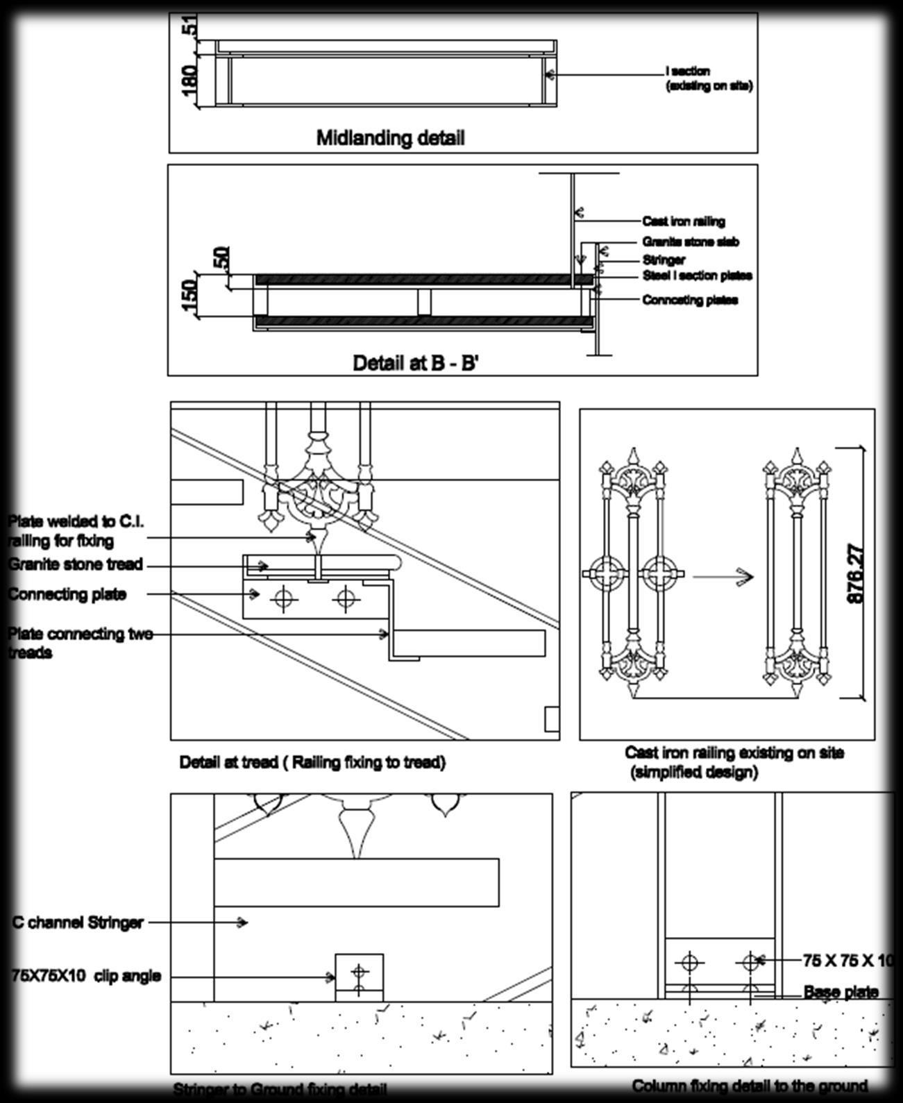
INTRODUCING A STEEL STAIRCASE WITHOUT HAMPERING THE FABRIC OF THE EXISTING HISTORIC STRUCTURE

DETAILS OF THE STAIRCASE
LOCATION OF THE STAIRCASE

LANDCSAPE PROJECT FOR THE CLIENT RAMKRISHNA MISSION AT BELGAUM, KARNATAKA, INDIA


HANDS ON EXPERIENCES ON SITE DOCUMENTATION OF ONGOING CHANGES WHILE RESTORATION -DRAWINGS

for adaptive reuse
of column tops with floral ornamentationViewofwadafrom roadside Main

is
in the
Floor Adaptive Re use
16th century old residential

plans
included documentation of both floor plans, and a


Details entrance of the Wada
View of courtyard from first floor

Details
Every year during the festival of ‘Wari’ the town accommodates a huge number of devotees proposal structure
Ground floor plan First floor planOrnamentationwindows , with lime ADAPTIVE RE-USE OF HOLKAR WADA – PANDHARPUR, MAHARASHTRA, INDIA Main entrance of the Wada Project goals Establishing heritage potential, architectural documentation of the wada, condition mapping, proposing new activities N SectionalElevationElevation Ornamentation- door and columns timber Rooms for guests


Holkar wada located religious town Pandharpur/ a structure project proposal







It is
attempts to revive this old
and promote local products and skills Design proposal Activities proposed on Ground floor Cafe, Audio visual activities and presentations about local heritage, shops abutting main road which consist of local products focusing on food items, clothing etc
called a ‘wada’ The
The
of
of cornices
ADAPTIVE REUSE COMPETITION ENTRY RE-USE THE FALLEN CHURCH AT GROTTOLE ITALY 2021 TEAM MERAKI group entry

Mahanirban math(Nitya Thakur Math)is a religious heritage structure located at the Rashbehari Avenue in the busy Kalighat area of Kolkata established by the saint Sri Sri Nityagopal It has a garden with a temple, Natmandir, and a small office Outside the temple, a beautiful pond and a garden filled with rare species of trees welcome the visitors It is the busiest space when in times of different festivals of the Math and welcomes visitors for their daily prayers
INDIA LOST AND FOUND Research on Mahanirban Math SiteLens Architectural Heritage




Language and oral traditions, Music, dance, instruments, Folklore/ love & ghost stories, mythology, Rituals
Roof detailing The flat roof of the temple is decorated with elements of Islamic architecture with recurring leaves on the top and painted stars on the roofline The parapet also has columns with lights fixed in the corners

Corinthian columns In the colonnaded corridor Corinthian columns are observed which are a representation of Neo Classical architecture in the Colonial period The column originates from the Greek architecture style, and it is one of the classical orders of architecture The capital of the column has lavish ornamentation which resembles leaves and flowers (Basel)The columns have fluted shafts and the height of the capitals gives them more slender effect The Corinthian column base rests on the plinth The columns in the Math are now colored in bright orange, yellow and red In all the corners of the corridor the columns are grouped in four to support the roof
Architecture
• The Math was established in the year around 1890, the building style seems to be of the colonial period (around 1890 1900) The area of the Math premises is 100 bigha and the temple is built in stone It has a blend of Neo Classical and Indo Saracenic influence on its elements It has a huge dome on the roof with five arches on all sides of the temple Around the main temple, there is a pradakshina path(circumambulation path) with the colonnaded corridor In the front of the temple, is an assembly hall called Natmandir which appears to be a later addition The Natmandir is often used for local gatherings, kirtans, and festivals of the Math
•During the stay of Sri Sri Nityagopal at the Mahanirban Math, Vasanti Ashtami tithi was celebrated with different musical instruments like conch shells, mridangas, cymbals, and bells All this music was followed by the light offering ceremony All the devotees cried, ‘Glory to Guru Jnananda!’ This procession was followed by the kirtans (music) for a long time Then they washed the body of Thakur(Sri Sri Nityagopal) with milk and water and covered his forehead with sandalwood paste and offered him fresh flowers from the garden Also, many delicacies were prepared for the festival for all the devotees The festival used to be a grand celebration which is being continued all these years (Nityapadananda, 1948)
•On the premises of the temple, there is also a beautiful pond with many trees


Architectural Style

Surroundings
Arches The temple has both multifoliate cusped arches and pointed arches outside and inside on the walls of the doors of the temple On the top of these arches a detailing of flowers and leaves can be seen
•Rituals like Shraddha(death rituals), Upanayana (sacred thread), Annaprasana (First rice eating)are performed by the priests at the Math for the local people and later the Ashram packs food for them for their journey back home

Dome The dome on the top of the flat roof is an Islamic faceted dome with convolutions(called as melon dome). It also has finials on the top. It is articulately painted with floral design.

INDIA LOST AND FOUND RESEARCH PROJECT ON MAHANIRBAN MATH SITE LENS INDIVIDUAL RESEARCH
•Along with the daily rituals of Chants and prayers in the mornings, several festivals are celebrated every year at the Math Sri Sri Nityagopal’s birth anniversary is celebrated every year on Vasanti Ashthami Titihi and also Gurupournima tithi Flowers from the garden of the temple such as hibiscus are offered to the deity every day
• The term ‘Math’ originally means a temple, a building, or a pagoda, occupied by saints, priests, and sannyasins, also a monastery, a hermitage, etc The Mahanirban math consists of a temple(burial place of Sri Sri Nityagopal), Natmandir (Assembly hall), and a small shop with books
There are many rare species of trees out of which some are more than 100 years old (De, 2012) There are also ducks in the temple premises These natural elements make the area scenic, pleasant, and spiritual for the visitors