



TheplanterboxconceptisbasedonLeveling,because theplanterboxperformsmultiplefunctionssuchas sitting, planting, and serving as a drop-off point. BecauseofMalaysia'scurrentfoodshortage,today's youthareunawareofMalaysianagriculture.Through fieldresearch,Idiscoveredthatthereareapproximately 8 to 9 schools, including elementary and middle schools.Planterboxescanteachkidshowtoplant upside down and vertically. Gravity Stairs also considershumansenses,resultinginvaryinglevelsof visualexperience.Inaddition,therigidsteelrailing texture is similar to the solid tree trunk texture. Climbingupfollowedbyvariousverticalplantsstepby stepwhilesteppingontheglassfloorandlooking downpiquesone'sinterest.
ThemanagerofFarmyVerticalFarm,whichislocatedatEncorpStrandMall,SecondFloor, PetalingJaya,Selangor,invitedus.Throughoutthesections,theresearcherswhohaveworked therewithextensiveexperienceexplainhowverticalfarmingworksstepbystep.Hedidexplain thatonthesecondfloorofEncorpStrandmallisafullyscalable1200sqfwith5racksof7level eachurbanfarmthatgrowscropsindoorsandusestechnologysuchasspecialLEDlightsto simulatesunlight.Fertilizersaremixedwithwaterandtransportedthroughanetworkofpipes throughouttherails.WaterPumpSystemandelectricalsystemfunctionstodistributewateras wellascontrollingthelightbyhavingit12houronand12hourofftosimulatetheday.
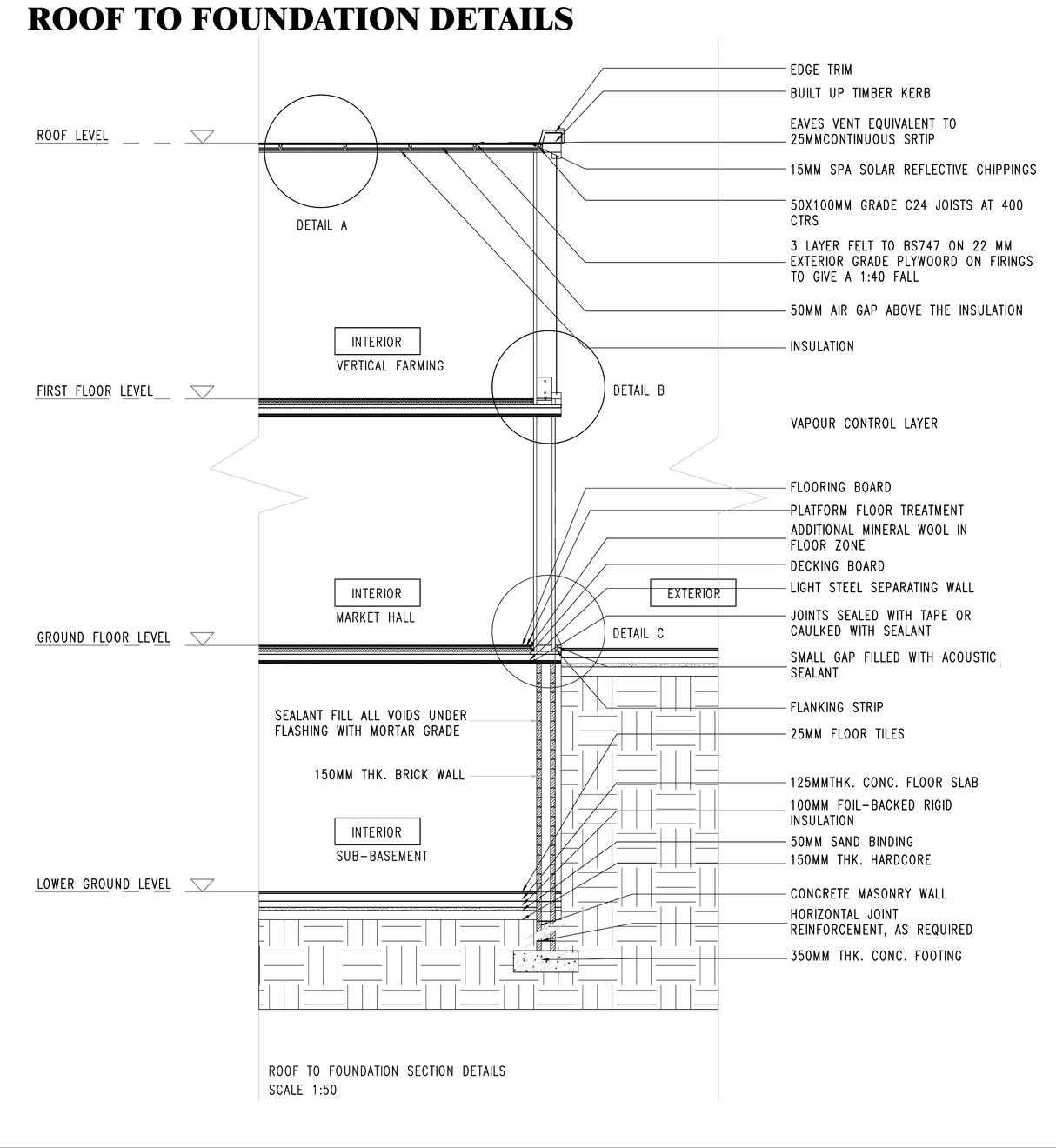
2A
Todemonstrateandinterpretthesite’stangibleand intangiblesignificances,understandingofdifferent theories,andrelevantprogrammesonsite.
Thisdesignfocusesonopenspacetoprovideuserswithavarietyofmarket experiences. In this proposal, users could also have different visual experiencesastheymovefromonespacetoanother.Furthermore,in responsetothehotsunonMarch21st,Canvaissuggestedtoinstallonthe sitetoavoidsunglare,whichmayhurtusers'eyesandinterrupttheirfruitful experiences.
Thesite'svegetationwouldbehighlightedinthisdesignproposaltoachieve passiveclimaticmitigation.Thebuildingformisdesignedtopiquethe interestofpedestrianswhilealsoattractingmorepeopletothissitearea.In addition,thereisabridgeinthemiddlethatconnectsthepassagewayspaces tootherspaces.Throughthebridge,itispossibletoprovideadifferentpoint ofviewtousersatthesiteareaandtoprovideadditionalactivities.
Theemphasisinthisdesignproposalisonvariousbuildingformsthatalternatebetweenregularandirregularshapes.Marketandverticalfarmingspaces arelocatedontheleft.Themarketprovidesacurvedroofasasunshadedevicetoimprovetheuser'sshoppingexperience.Userscanalsoenjoy1-day farmrr,whichislocatedatthetopofthemarketandprovidesjuicyfreshvegetablesandfruits,makingpeoplemoreinterestedinpurchasingitemsinthe market.Verticalfarmingalsoeducatesthecommunityaboutfarmingmethodsthroughone-dayfarmersevents.Lastbutnotleast,thedesignaimsto bringjoytothesurroundingcommunitywhilealsoeducatingvisitorsaboutenvironmentalawareness.
TheprojectislocatedinPersiaranTropicana,aquiet and sunny suburban area of Petaling Jaya, Kuala Lumpur,Malaysia.Thestreetismostlylinedwith landscapingandfarmingbusinesses.
Theaimofthisproposalistobridgethegapbetweencommunitythroughactivitiesthat allowthemtoplay,grow,gather,andlearntogether.ItislocatedatPetalingJaya, Selangor.Bywayofthismarket,thisproposalgivesthecommunitythechancetolearn about farming method and environmental awareness, which also benefit nearby communities.Apartfromthat,itassistsinconnectingthecommunitythroughdifferent activitiesintheproposal,suchas1-dayfarmer,workshops,buyingfreshvegetablesorfruits andenjoyingdifferenttypesofmouthwateringfood.Italsocanbeusedasashortcutfrom thebackofsiteBtotheadjacentbuildingnearthesite.However,underthisproposal, sustainablefarmersmarketsareusedtosellfreshfruitsandvegetablesthathavejustbeen pickedfromthegreenhouse.Thepublichasaccesstoasizabletransformativespacethat doublesasanightmarketandamarkethallduringtheday.
Basicshapewascreatedaccording siteBsetbackline.
Createdapathwayforaccessibility andcirculationsthroughthespaces.
Both entrances was twisted to attracttheresidentsorusersatboth side,createcuriousity.
Providemorelevelstoallowusersto havedifferentvisualexperiencesas theymovethroughthespaces.
To avoid direct sunlight and maximise ventilation, louvres are added.
Adaptive structures are developed in differentlevelstocreatenewspacesand
TheMarketstallscanbeadaptedtothe availablespaceregardlessofitssizeand shape.
Theentranceatthebackofthesiteis smallercompareatthefrontentranc-es.
Thereasonsistocreatecuriousitytothe community hence promote again the
Themarkethallmightbe convertedtoanightmarket atnight.Therationalefor having a night market is that the location at Tropicana has less programming at night, making the street deadly silent. The night market servestoincreasethevibes of the site while also illuminating every dark nook of the site with spectacular sights, sounds, andscentsofgastronomy. Duetothesite'savailability of programming all day, users may spend the day withfriendsorfamilyfrom morningtillevening.
ofthe
tothe
and
Theprogrammeinthiscasestudyisprimarilyfocusedonopenspacemarket combinedwithurbangarden.Thisdesignprovidesanenhancedconnection tothestreetsandtheelevatedwalkwaysystemaswellasaplaceforpeopleto meetandrelax.Thestreetbecomesbusyasaresultofpeopleenjoying buyingfoodandbeveragesonthebottomfloor.Yourviewofthestructure beginstoalterasyougotohigherfloors.Thefirstfloorisprimarilyforusers touseasacafeandmeetingarea,whilethetopfloorisaroofgardento providebufferspaces.Theyalsoemployedexposedstructureintheirdesign, suchascolumnsandbeams.Thev-shapedwoodcolumnisjoinedbya 10mmspliceplate,whilethestiffeningribisan8mmsteelplateheldbya botandnut.
TheMetiaBuildingwasconstructedtohousetheJoensuuForestResearch Institute'sgrowingemployees.Theconferencefacilities,whichresemblean upside-downboat,andtheslopingcolumnsoftheentrance,whichare inspiredbylogboomsfromfloatinglogsdownrivers,dominatetheyard. Woodistheprimarymaterialutilisedthroughoutthestructure,fromthe structuralframetotheoutsidecladding.Itisdistinguishedbyitsparticular shape and homogeneous materiality, which are accomplished by the widespreaduseofwood.Awoodencolumn-beam-slabbuildingonthis magnitudehasneverbeentriedbefore.
TheMarl<thalisanentirelynewtal<eonatypicalGermanmarl<etsquare. Asecure,coveredsquareisnestledbeneathalargearch,with20retailunits, restaurantsandcafesatthesides.Theendsofthearchhadtobephysically closedtoprovideprotectionfromtheweatherbutarekeptastransparentas possiblebyasingle-glazedcablenetfai;:ade.Theyofferadiverserangeof products:fromfreshfishtogame,fromcappuccinotocheese,fromlocal favouritestoexoticcuisine,andfrombargainstoexclusiveslowfood.
SCALE