


Property Information
• 35 acres
• New Construction Flex and Warehouse Buildings
Flex Phase I - 5,000-25,000 1Q 2025
Flex Phase II- 5,000-25,000 Future
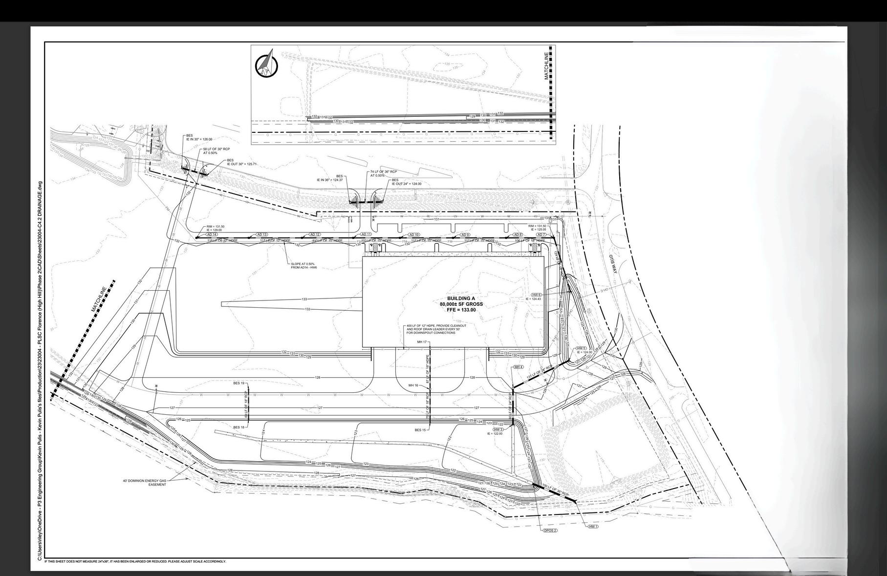
Warehouse I- 40,000 -150,000
3Q 2025
Warehouse II - 40,000 - 120,000
Future

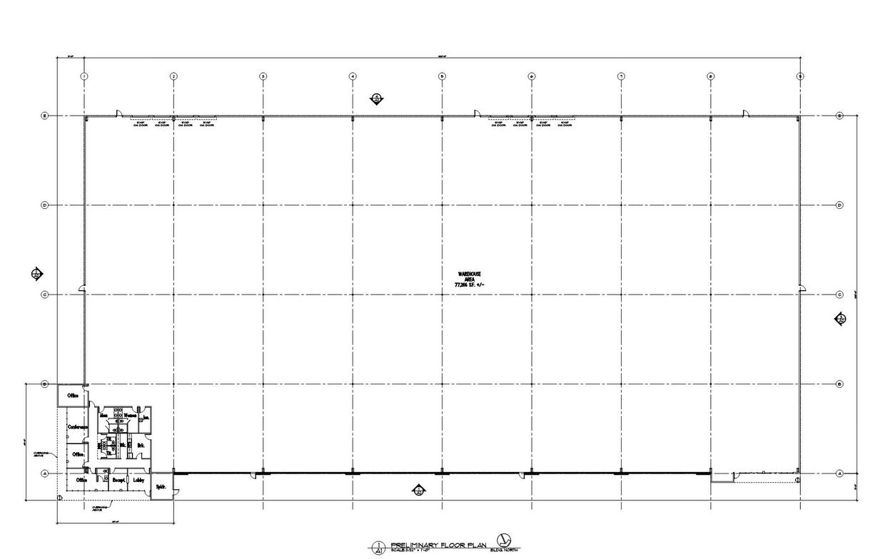
Suites for 5,000-25,000 SF
Initial Buildout Includes: 3 offices
Conference room
IT closet
Bathrooms
Further buildouts negotiable


WAREHOUSE SPECIFICATIONS

32' clear height
50x50 columns
Drive in and Dock
high doors
Ample Parking





























$3.12 BILLION AESC
BATTERY PLANT
BRINGING 2,700 JOBS



LOCATED AT THE INTERSECTION OF I-20, WHICH BEGINS IN FLORENCE EXTENDING THROUGH I-95, THE MAJOR NORTH/SOUTH THOROUGHFARE ON THE EAST COAST. IS ALSO IN CLOSE PROXIMITY TO DIRECT INTERSTATE CONNECTIONS WITH I26 AND I-77






South Carolina is known to be one of the most business friendly states offering substantial tax credits and exemptions, such as those for corporate income taxes and sales taxes on vital equipment. The SC Job Development Credit program and retraining options show our commitment to creating new jobs and building successful industries throughout the state.
Locally we offer a five-year property tax abatement and Fee-in-Lieu of Property Tax program, allowing customized tax arrangements that fit your business. It's the ideal choice for industries seeking high-quality job creation in a supportive economic setting. Join us in South Carolina, where success is driven by remarkable incentives and a friendly community.




