PKG Design Portfolio

Page 1

Interior Design Portfolio

Selected Works

P K Princess Kay Guntalilib

From the Designer

First-generation graduate from Washington State University and received a Bachelor of Arts in Interior Design degree.

Coming from a Filipino background our culture is all about caring for each other. My family is filled with medical professionals, and at the beginning of my college years, I was majoring in the medical field. At the time I thought that was the only way that I could help people until I discovered the profession of Interior Design. At a young age, I was aware of my natural talent for creativity whether it was creating my own clothing line, redecorating my bedroom, or designing my dream home. This made me realize that the redirection in college still leads me to achieve my core values in life and while doing what I love at the same time.

I hope to establish a career as a designer working on projects focusing on hospitality, assisted living, retail, and workplace design. Where my love, creativity, and skills can be utilized to create designs of beauty and significance.

This portfolio consists of a few of the projects that I have done over the years in the SDC program at WSU together with my Philippine Family Residence that I assisted in the design process.

Table of Contents 01. Seascape Commercial Retail 02. Tech Vida Global Workplace 03. Woven Garden Adaptive Reuse Hotel 04. 05. Study Abroad Design in Florence Family Home Philippine Residence

Pier 56 Seascape

Project Type: Commercial Retail | Individual Project

Location: Seattle, Washington

Date: Spring 2023 | 4th year

The adaptive reuse design of Pier 56 project addresses the issue of the Compulsive Buying Disorder. Main component of the issue is people having difficulties in not being able to control themselves to buying things frequently and using retail therapy to solve their mental health problems temporarily.

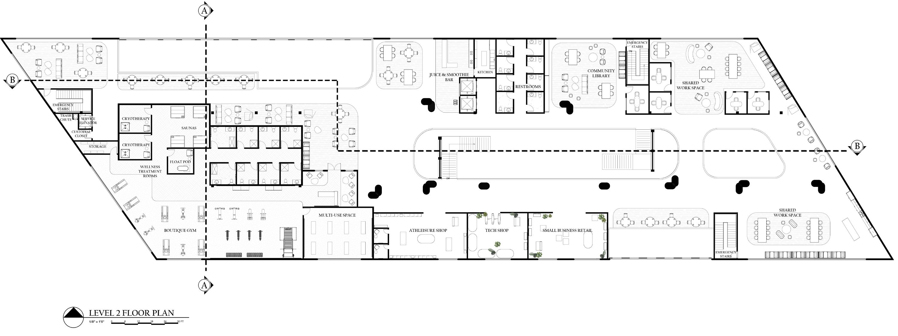
01.
Information Desk Area Software Used: Revit | Photoshop | Enscape | Canva
Central Stair Lounge

This project implements a space where people have all kinds of services that can aid their mental well-being without the pressures of needing to spend loads of money with regret.

This community hub offers a range of activities and services to the neighborhood that is beneficial to the consumer.

1. Aluminum 2. Wood Panels 3. Lime Wash Paint 4. Concrete tiles 5. Oak wood beams 1. 2. 3. 3. 4. 1. 5. 6. 7. 8. 8. 10. 9. 9. 9. 6. Custom tile 7. Marble stone counters 8. Luxury vinyl tile flooring 9. Upholstery fabric 10. White oak wood tables Retail Shop Seating Lounge Access research booklet via QR code

There are 6 full kitchen food vendor booths that is open to any small business to rent out along with a shared storage space.

The idea came from food trucks but instead it is placed in an indoor seating where people can gather together and eat food with the view of the Seattle Great wheel.

Food Vendors Coffee Shop Boutique Gym Sauna Area Multi-use Room Community Library Shared Workspace
Section A Section B

Pier 56 SEASCAPE

Perspective Section

Tech Vida

Project Type: Global Workplace | Group Project

Location: San Jose, Costa Rica

Date: Spring 2022 | 3rd year

The workplace is inspired by Adobe in which we worked closely with Gensler and an Adobe client throughout the semester.

This partnership was a great opportunity for my team to learn from ID professionals that work in the industry and understand the needs of real clients.

The goal was to design a global workplace that aligns with the company’s culture and where the site is located.

SAN JOSE COSTA RICA

Calle 27, La California, San Jose’ 10101, Costa Rica

Software Used: Revit | Photoshop | Enscape | Canva

Reception Desk

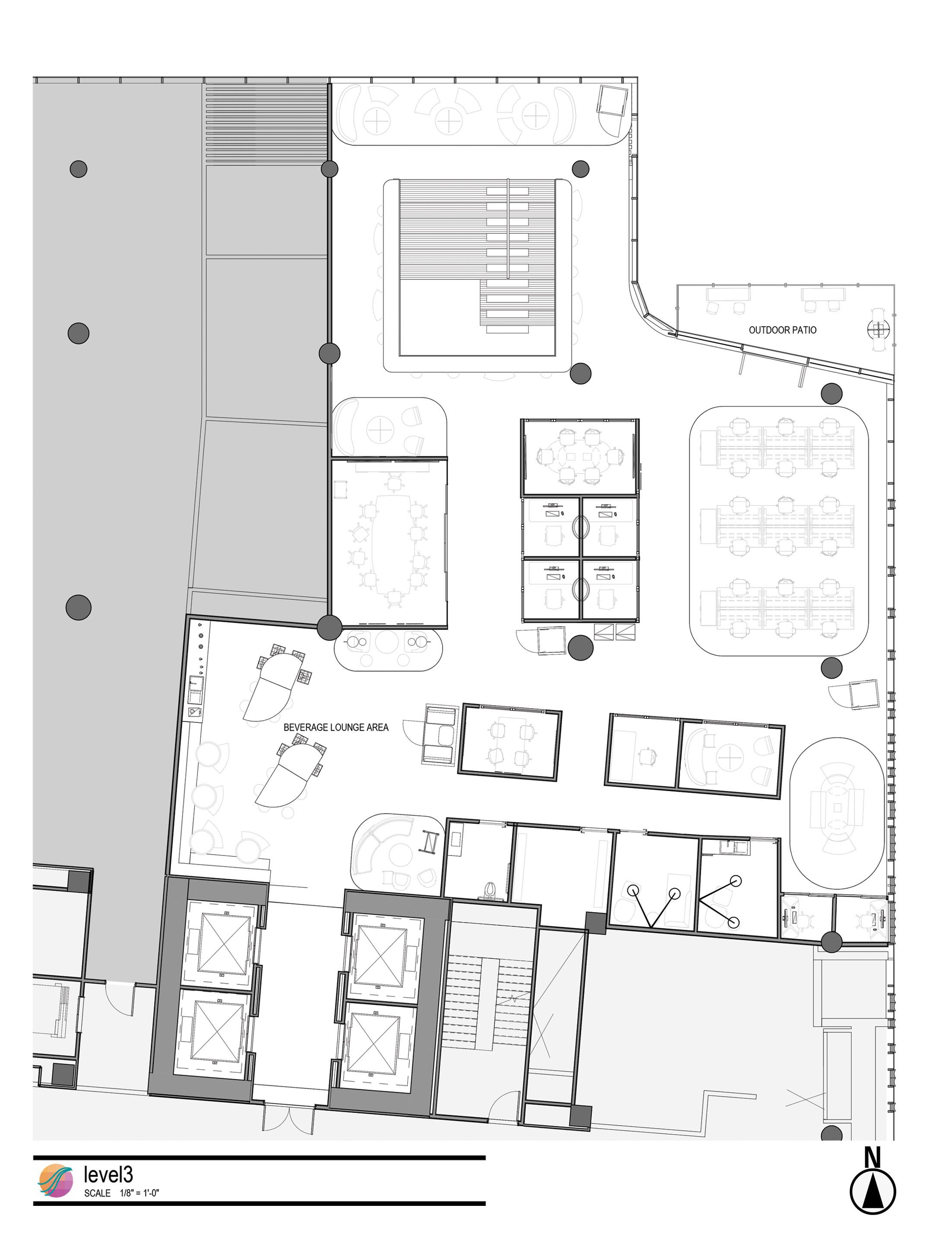
02.
Outdoor Balcony
Team Meeting Room Collaboration Space Stair Seating Fitness Room Meeting Room Collaboration Space Outdoor Balcony Collaboration Space

The different levels in Tech Vida are color coordinated by the types of spaces it consists. On this level, events, team collaboration, and client meetings occur so we chose to do a warm palette to emphasize color theory on how these colors give off an energetic feel to the space.

Material Board Meeting Room Community Space

On this level is mainly accessible to our employees of Tech Vida, this level has a cool color palette to replicate a relax and focus space. There are shared workspaces, conference rooms and an beverage work lounge for employees to grab a drink mid shift if they would like.

There are plenty of team spaces accompanied by a open work area with operable desks, depending of the preference of sitting or standing up.

Shared Workspace Beverage Lounge Work Lounge

Woven Garden

Project Type: Adaptive Reuse Hotel | Group Project

Location: Yazd, Iran

Date: Fall 2021 | 3rd year

Originally the Sa’adat Textile Factory in Yazd, Iran. Woven Garden Hotel is inspired by the threads of traditional handcrafted Persian rugs. The design of the hotel embodies the elements of the carpets like the vibrant colors and woven threads to life. The “unwoven” fabric, uses the details of weaving, tangling threads to take sculptural form throughout the interior.

Woven Garden, celebrates the Persian culture and the city of Yazd while encouraging health and wellbeing with the support of new technology.

YAZD

Site Location: Sa’adat Textile Factory

Reception Desk Software Used: Rhino3D | Photoshop | Twinmotion

03.
Atrium
Central

Processional Diagram

The hotel interior brings in elements of the carpets through its colors and woven threads by deconstructing them to be applied everywhere.

The design consists turquoise wall coverings, amber carpeting, marble flooring and gold for the threads elements.

Access research on the site via QR Code

Upper Level View

Seating Lounge Seating Lounge

Perspective Section

There are four levels in the Woven Garden Hotel with a large opening at the center to get a view of the courtyard.

To access the interior courtyard, guests need to go down to the basement level 2. All of the guest rooms, corridor and other amenities surround the perimeter of the courtyard for natural light shining through from above to the spaces in the hotel. The back of house corridor is hidden behind the guest rooms as well.

04.

Study Abroad

Design in Florence Program

Location: Study Abroad in Florence, Italy

Date: Fall 2022 | 4th year

For my last year in the ID program, I had the opportunity to spend my fall semester in Florence, Italy with a group of design students.

We had design projects focusing on honoring the Florentine artisan heritage and reconnecting the importance of creating by hand. My peers and I visited multiple historical places and these watercolored sketches were from some of the things we have seen.

The David Cinque Terre Venice Ponte

Market Stall Model

The final project of our semester in Florence is to design our own version of the market stalls that we see all around the city of Florence.

Using the knowledge that we have learned through this experience, guided the design of this market stall.

Ponte Vecchio Arc de Triomphe Louvre Eiffel Tower

Family Home

Philippines Residence on Ancestral Land

Location: Kalinga, Philippines

Date: 2017 - 2022

My parents purchased a piece of land that has been in our family for generations to generations in 2017. For my immigrant parents from it is a dream to be able to build their own home in our motherland country. Our home is nearly completed after all of these years of building it from the ground up.

Using my skills that I have learned in the Interior Design program, I used my knowledge in guiding my parents decisions throughout the design process of our family home. From space planning to choosing finishes and materials.

Original Home

This is an image of the original home that was on the land. My grandmother raised my dad and his siblings in this home. Once everyone immigrated to America the land was unoccupied for years.

The land was given to the oldest sibling out of 4. Then my dad was given the opportunity to purchase the land from his brother. That is how my dad’s dream home project began.

Exterior Finishes

05.
Exterior View from the Street Level

Staircase

There are 3 levels in our home. Our home has a total of 4 bedrooms, 4 full bathrooms, outdoor balcony, and 2 full kitchen and living rooms.

The basement area is accessed from the park-in garage. There is a connection to an covered outdoor area that has its own kitchen and living room. We designed that space to be easily accessible for my grandparents without needing to go up any staircase. Also, in the Philippines we love to host parties for our community so this space can be used for that as well.

Living & Dining Area Covered Outdoor Area

Interior Design Portfolio

Selected Works

P K Princess Kay Guntalilib

Turn static files into dynamic content formats.

Create a flipbook
Issuu converts static files into: digital portfolios, online yearbooks, online catalogs, digital photo albums and more. Sign up and create your flipbook.