Piyush Patel
Selected Works

![]()
Piyush Patel
Selected Works

2021-2024

4TH YEAR ARCHITECTURE STUDENT
CGPA - 8.78
I am 23 year old student of Architecture at Malaviya National Institute of Technology Jaipur, currently in my fourth year out of five-year major, passionate about creating functional and aesthetically pleasing spaces. My academic journey has equipped me with a solid understanding of design principles and technical skills. I am eager to gain practical experience and contribute to impactful architectural projects.
I look forward to the opportunity to be a part of your Team, Thank you for your consideration
Phone No.
Social Id
+91 6268899133
Private : piyush10111819@gmail.com Institute : 2021uar1198@mnit.ac.in
Instagram : piyush_p1809

Linked-in : linkedin.com/in/piyush-patel-51b58915a

Behance : behance.net/piyushpatel1809
DOB
Nationality
Institutional Address
Permanent Address
2021- Present
2019

18TH September 2001
Indian
H9, Aurobindo Hostel, Malaviya National Institute of Technology, JLN Marg, Jaipur, 302017
H/No. 92, W/No. 06, Vill. Thandhar, Gandai, Dist. KCG, Chhattisgarh, 491881
Bachelors in Architecture (B.Arch) | Malaviya National Institute of Technology, Jaipur (NIT Jaipur)
Higher Secondary Education | Kendriya Vidyalaya Khairagarh, Chhattisgarh
Hindi | English
Chess | Music | Photography
October 2023
January 2024
March 2024

Top 50 | NASA ANDC | National Association of Students of Architecture, India
Top 12 | NASA LIK | National Association of Students of Architecture, India
Participated | NASA HUDCO | National Association of Students of Architecture, India
May 2022
July 2024
October 2024
April 2022
Fabuary 2023
May - July 2024
2D Drafting


3D Modeling

Rendering/Post-Production



Rajasthan Architectural Festival, Jaipur | The Indian Institute of Architects Rajasthan Chapter
ACE Reflect | ACE TECH | Jaipur Exhibition & Convention Centre (JECC)
GRIHA Regional Conclave| NASA HUDCO | National Association of Students of Architecture, India
Volunteer | Pink Fest, Jaipur | Jawahar Kala Kendra, Jaipur
Executive | Blitzchlag 23 | Malaviya National Institute of Technology, Jaipur
Summer Intern | The Forms, Jaipur


Presentation
+
+



“A Harmonious Retreat in Jaipur
Thoughtfully designed to cater to diverse needs, Jaltarang Guest House in MNIT Jaipur offers an inviting blend of comfort and functionality. The project features well-appointed guest rooms, VIP suites, dormitories, a spacious dining hall, and meeting rooms. Complementing these spaces are essential amenities such as a pantry, laundry, and dining facilities, making it ideal for all visitors. With student-friendly features and a focus on hospitality, Jaltarang provides a welcoming environment for every guest in the heart of Jaipur.”


Legends 1. Main Site Entry/Exit
Service Entry/Exit
Sequrity Room
Entrance Porch
Building Block
Two Wheeler Parking
Parking
Footpath/ Paved Area
Road
Garden
Electric Room
Swimming Pool 13. Building Back Exit
Terrace Garden








Legends
1. Entrance Porch
2. Foyer
3. Reception
4. Waiting Lawn
5. Dormitory
6. Service Room (Linen/Storage etc)
7. Caretaker Office
8. Record Room
9. Room
10. 2m wide Corridor
11. Toilet
12. Pre-function Space
13. Multipurpose Room
14. Dinning
15. Kitchen+Storage
16.Service Entry/Ramp
17. Staircase
18.Lift
Legends
1. Porch
2. Double Height Space
3. 2m wide Corridor
4. Guest Room
5. Meeting Room
6. Family Suite
7. Male Toilet
8. Female Toilet
9. Pwd Toilet 10. Staircase 11. Lift 12. Terrace








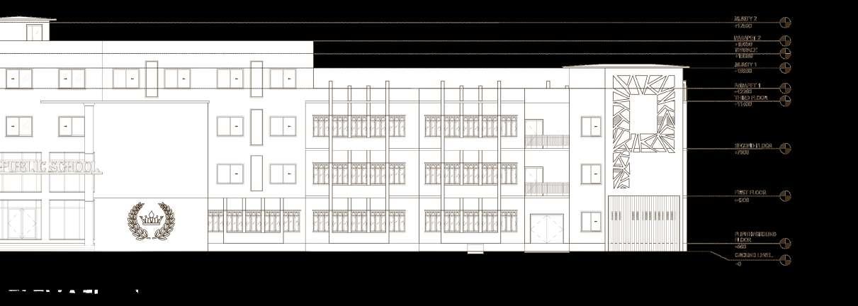
“A Vision of Holistic Growth Designed to inspire and nurture young minds, Ascendia Crown School blends functionality with creativity. From spacious classrooms to state-of-the-art facilities like computer labs, AV rooms, and science labs, every detail caters to a progressive learning environment. The campus features a football ground for sports enthusiasts, a multipurpose hall for events, and a canteen designed to serve 1,000 students efficiently. This project embodies the philosophy of fostering academic excellence, extracurricular engagement, and community interaction in a thoughtfully designed space.”

















“ A Gateway to Bikaner’s Heritage
The Bikaner Darshan Interpretation Centre is a cultural landmark that celebrates the rich history and traditions of Bikaner through modern architectural design. The project includes dynamic exhibition halls, interactive zones, and an auditorium for lectures and performances, offering a truly immersive experience. Courtyards inspired by traditional architecture provide open spaces for relaxation and community engagement, while a library and archive preserve the region’s heritage for future generations. A cafeteria add to the visitor experience, creating a space that connects the past with the present in a welcoming, functional environment.”



Located in Shivbari area of Bikaner, is rich in cultural and historical significance, helps to preserve and showcase the region’s heritage.
• 24 m wide Road on front side
• Site Area: 6390 sqm
• FAR : 2
• Builtup Area : 12775 sqm
• Climate Zone : Hot & Dry
• Soil Type : Sandy Saline Soil, Raft Foundation Used





Site Entry/Exit
7m Wide Road
Entrance Porch
Surface Parking
Atrium
OAT
OAT Stage
2m Wide Footpath
Outdoor Seating Cafe
Outdoor Exhibition Space
Basement Ramp
Emergency Staircase
Terrace


























The ‘F O R M S’ architecture interiors landscape conservation 4-Ga-18, Jawahar Nagar, Jaipur, (Raj.) INDIA Ph: 91 141 2652980, 098280 79064, 098280 20300 e mail: kavita_design@yahoo.co.in
Jaipur 20, July, 2024
This is to certify that Mr. Piyush Patel of 4th Year, Department of Architecture & Planning, MNIT, Jaipur has worked in our office The Forms from 17th May, 2024 -05th July, 2024 on designing and detailing of various heritage and Architectural projects. During his tenure, He was found to be sincere and hardworking. We wish him success in his future endeavors.


































