Pine Barrens Tribune June 17, 2023-June 23, 2023

Page 1

SOUTHAMPTON—Residents of Southampton Township’s LeisureTowne and Hampton Lakes communities will once again have to accommodate increases in their water and sewer bills in the coming months—in fact, a number of them, on a staggered basis— as a result of a “stipulation of settlement” reached between three “signatory parties” comprising the Pinelands

Water/Wastewater Company, the staff of the New Jersey Board of Public Utilities (BPU) and the state Division of Rate Counsel, which is supposed to serve as the ratepayers’ advocate, in regard to rate hike requests made by the company last September.

While the overall amount of the rise will not be quite as high as that initially sought by the utility, which is a subsidiary of Middlesex Water Company, of Iselin, the process that resulted in the settlement was nevertheless

Two More Major Wildfires

Occur in Burlington County, Consuming Combined Total of 1,400 Acres Amid Dry Spell

Nearly 100 Firefighters Called to Battle ‘City Line Road’, ‘Buzby Boggs’ Wildfires in Pemberton and Evesham Townships; Lightning Cause of Earlier Medford Blaze

lambasted by some LeisureTowne residents who participated in an online forum earlier this year.

The settlement agreement also is apparently too late to change at this point in time, since a provision signed by Administrative Law Judge Jacob S. Gertsman on March 13 states that if the BPU “does not adopt, modify, or reject

PEMBERTON—“Here we go again, huh,” is how Assistant State Fire Warden Bill Donnelly began a June 9, 8 p.m. press conference on the City Line Wildfire, which broke out earlier in the day in a remote area of Pemberton Township, near the Manchester Township line, and as he and other New Jersey Forest Fire Service (NJFFS) officials debriefed the media on what turned into an 850-acre blaze, marking the third such major wildfire in Burlington County in less than two weeks, a pager belonging to Shawn Judy, a division forest fire warden for the NJFFS, sounded. It would later turn out that it was apparently in relation to another wildfire observed just before 8 p.m. in the area of Evesham Township’s Black Run Preserve, which ultimately became another major one and burned about 700 acres of woodlands near Kettle Run Road – not too far away from the site of the Medford wildfire of June 3, which officials have now officially attributed to a lightning strike.

“Things are dry,” said Donnelly prior to the Evesham call coming in, noting that “our folks are staying very busy” and predicting they will continue to do so “until it rains in

FREE • Large Tree Removal –It’sWhat We Do! • Quality Tree Trimming and Tree Cutting • State-of-the-Ar tStump Removal TRU STE DT REE CA RE AND RE MOVA L WIT HS IZ ZILI NG SU MME RS AV ING S W I T IZZ ILIN GS UMM ER S IN GS South Jersey’sMost TrustedTreeRemoval Company! We Gettothe ROOT of Your Problem y p y LicensedTreeCareOperator #735 - 8 NJ BoardofTreeExper ts Registration#NJTC768355 OFFERING: GREATTVALUE • INCREDIBLE DEALS • AMAZING SERVICE PREMIUM ★★★★★ BUSINESS, WITHMANY LOCAL REFERENCES. A+ BBB Rating S h J NO TREE TOO TALL… NO JOB TOO SMALL! • 24/7 Emergency Storm Damage Service • Ef ficient Land Clearing and Demolition • Bobcat Services and Dumpster Rental Contact Us Today to Schedule Service or Request aFREEEstimate! Call (856) 288-1793 •Visit www.bigtimber treeser vicellc.com m! m Open 24/7 to Get the Ge th Job Done! Jo Done Free re Estimates Estimate Summer me Discount on Di nt T ree Removal ee Remov Mention This Ad is A for 25% 5% OFF! F! Offer Expires Of f Ex re 8/31/23 1/2 P.O. Box 2402, Vincentown, NJ 08088 | 609-801-2392 CONTACT US: Presorted Standard US Postage PAID ncentown,Vi NJ Permit 190 ****ECRWSS**** LOCAL POSTAL CUSTOMER INDEX Business Directory 14 Local News 2 Marketplace 13 Worship Guide 12 Facebook.com/PineBarrensTribune www.pinebarrenstribune.com @PineBarrensNews Vol. 7 – No. 31 ♦ The News Leader of the Pines ♦ June 17 - June 23, 2023 609-801-2392 REACH NEWSPAPER BY PHONE: HIGH-WATER MARK SEND NEWS, EVENTS AND LETTERS TO: NEWS@PINEBARRENSTRIBUNE.COM FOR AD INQUIRIES, CONTACT: SALES@PINEBARRENSTRIBUNE.COM
Water, Sewer Rate Hikes
for LeisureTowne, Hampton Lakes Are Slightly Lower Under Terms of a Settlement Signed in April Than Those Requested by the Utility Company, But Still Substantial; Increases to be Phased in Over Two-Year Period Are Called Exorbitant by Critics Who Also Claim Process Failed to Adequately Represent Interests of Ratepayers
Approved
Photo By Douglas D. Melegari
See WATER/ Page 8 See WILDFIRE/ Page 11
The water tower/tank serving the LeisureTowne community.

BurlCo Superior Court Judge Reduces Fines Given to Carns Family Matriarch, Finding That There Is No Indication She Pled Guilty to ‘Continuing Violations’

After Medford Township Prosecutor Had Called Defendant’s Appeal Arguments ‘Sham’, Court Sides with Defendant, Reducing Fine from $10K to $2K for ‘Single’ Day Violations; Carns Family Declares Decision ‘Huge Win’ for Them and ‘Big Loss’ for Township Mayor

MEDFORD—Despite forceful objections, at times, from Medford Township Prosecutor Christopher Koutsouris that a motion filed in Burlington County Superior Court by the defense of Carolyn Carns, asking the higher court to reduce a pair of $5,000 fines levied against her by a municipal court judge back in November 2022 over municipal ordinance violations, amounted to a “sham” and that the defendant was merely seeking a “second bite at the apple,” Superior Court Judge Mark P. Tarantino ultimately sided with the defendant late last month due to what he viewed as “ambiguities” in the transcript when the “quasi-criminal matter” came before the municipal court and the pleas were entered, reducing the penalties to $1,000 each.

It represented a victory of sorts for the Carns family and its supporters, which have vigorously decried the “harsh” $10,000 total fine levied for two zoning violations against the 81-year-old matriarch who had never been prosecuted before last year – a matter which has also caused residents to seemingly sour on the all-Republican Medford Township Council, which previously came out in favor of the penalties levied following the township’s vigorous prosecution of the matriarch, despite outrage (see separate story).

Some family members and locals have also taken issue with charges having been brought against Carns in the first place, believing not only is the matter involved trivial and entails both arbitrary and outdated laws, but that the case was politically motivated and retaliatory in nature over a dispute between the family and Medford Mayor Charles “Chuck” Watson. The mayor and township, as previously reported by this newspaper, have denied the allegations of retaliation.

The issue before Tarantino, however, did not deal with the facts of the case, per se, and the “court does notice this is not a motion to withdraw a guilty plea,” he said.

Rather, the defense sought to have a “De Novo Review of the municipal court transcript,” in hopes of having the penalties reduced, arguing that in September 2022, Carns had only pled guilty to violations having occurred on a “single” date, April 5, 2022, as listed on the pair of citations, and did not plea to a “continuing course of conduct” or “continuing violations,” for which she was sentenced on Nov. 7, 2022, by Pemberton Municipal Court Judge Charles Shimberg (who oversaw the case at the local level because of a conflict with Medford’s judge).

The Pine Barrens Tribune previously reported that a request last year of Carns, to forego a trial, had been granted, over the objections of the state (considered the plaintiff when a case is brought by a municipality, as in this case, with Medford having brought the case against Carns), and then the matriarch subsequently pled guilty to the pair of zoning violations in an about face: one issued for allowing her twin sons to park more than one commercial vehicle on her property, and the other issued for failing to seek a zoning permit to allow a commercial business to operate there, with the tree business having been registered at the 265 Medford-Mount Holly Road address.

At part one of a sentencing hearing, this newspaper previously reported, Koutsouris, in a somewhat unprecedented move, wanted to call witnesses to testify “who might have input on behalf of the state,” maintaining

those “witnesses,” including non-township employees, could attest to “ongoing violations” of “at least” 115 days.

With Carns facing the prospect of a $1,000 a day fine for each day of an ongoing violation of local land use law, Koutsouris suggested that he was in fact presenting a bargain of sorts, by the state only requesting a fine for five days’ worth of violations for each of the offenses versus the potential of 115 days’ worth, noting that if the municipality had decided to make a case that the violations spanned 115 days, Carolyn Carns would be looking at a fine upwards of $115,000 per summons. Koutsouris further declared the state’s request of $5,000 per summons was “modest” and “nowhere near” what the state “is entitled to.”

Shimberg, in recognizing that Koutsouris wanted to call “character witnesses for purposes of sentencing,” even though a trial had been averted due to the pair of guilty pleas, had acknowledged at one point that he was “not sure” that it would be necessary due to the case having entered the sentencing phase.

The Pemberton municipal court judge ultimately allowed “arguments” to be presented to determine if supplemental testimony was necessary during sentencing, and the first part of a municipal court sentencing hearing turned into a debate between Daniel M. Rosenberg, representing Carns, and Koutsouris, with Rosenberg maintaining his client simply pled guilty to the violations as having occurred on the dates of the issued summonses – April 5.

Had the state, he added, “intended to make an argument” that this has been a “‘continuing course of conduct,’” his client would have “pled and acknowledged a continuing course of conduct,” but didn’t, he pointed out at the time. The Medford prosecutor argued that the state Supreme Court “authorized” that a continuing course of conduct can be pursued without having to issue “new charges or summonses” every time.

The calling of the witnesses never happened, however. Shimberg said that since the state was only seeking a $5,000 fine versus the maximum $115,000 fine per summons, he “didn’t know if that is necessary.”

He then waited several weeks, before resuming the sentencing hearing, but didn’t allow for any more statements to be made by the plaintiff or defendant.

“The ordinance is unambiguous on its face that this is a continuing violation,” declared Shimberg, adding that a letter issued by Medford Solicitor Timothy Prime warned of enhanced penalties for each and every day of a continuing violation. “ … I think under the circumstances, while I certainly would not impose a fine of $115,000, and Mr. Koutsouris has not asked for a fine of $115,000, given the length of time that this has dragged on, and that the notice that has been provided by the prosecution is sufficient, I am therefore going to adopt the recommendation of the prosecutor and impose on each violation a $5,000 fine and $33 court cost.”

Shimberg’s statement pertaining to “the length of time that this has dragged on” was despite no admission or evidence having been presented to that effect by the state.

During the May 31 Superior Court hearing in front of Tarantino, Rosenberg maintained in one of what he called “several undisputed facts” that “the only pleading in this case indicated April 5, 2022,” and the summonses

See MATRIARCH/ Page 9

Page 2 ♦ LOCAL NEWS / FEATURES WWW.PINEBARRENSTRIBUNE.COM Saturday, June 17, 2023
Trreee e E Exxpeer r t “ “A N Namme e Y Yoou u K Knoow a annd d T Tr r u usst t ” A F Fuullll-Ser r v viice e P Prooffeessssiionnaal l Coommppaanny S h hawwn n S Smmiith h – O w wnneer r 1 187 Arrnneeyys s M Mouunnt t R Rooaad d • Peemmbbeer r t toonn, , NJ 0 08068 Speciali in i : • ree Remo al • Stump Remo al • Shapin • 2 Hour Stor m Dama e • Land C lear in • Dead ood Remo al • r imming • Ins rance ork Tree Ser vice Lowest Prices Around! F ee Estimates • F ll Ins ed G a anteed L o est P ices! 75 ft. Bucket Truck Available 40 TonCrane Available Call or Text Shawn at 609-685-5912 Senior Citizen Discount NJTC 784054 Lic#791112 NJ Lic. 13VH03567000 www.LoveYourSmileDental.com •info@LoveYourSmileDental.com 1529 Rt 206, Unit D (Next to Pizza 206), Tabernacle, NJ 08088 RichardJ.Weber,DMD Dr.Weber has been recognized for excellence in dentistry and has trained nationally and internationally with the most prestigious members of the profession. NEW PATIENT SPECIAL FOR A DENTAL CLEANING, EXAM AND X-RAYS (over $300 value)! We need to schedu e your new patient visit by July 31, 2023 $99 609-388-1101 CALL TODAYTOSCHEDULE YOUR NEW PATIENT APPOINTMENT. Caring Quality Convenient STAT E- OF-T HE- AR T Dental Pr ac ti ce with the latesttechnology and amenities to make your dental experience unlikeany youhave had in the past! with the latest technology and amenities make your dental experience unlike any you have had in the past!

Medford Solicitor, Following Superior Court Judge’s

Ruling to Reduce Fines Levied on Carns Family Matriarch, Leaves Door Open to Possible ‘Appeal’ Higher Court Ruling Seemingly Counters Republican Council’s Previous ‘Statement’ That Family Was ‘Persistent, Repetitive Violators,’ with Sibling Demanding Apology

MEDFORD—Following a recent decision by Burlington County Superior Court Judge Mark P. Tarantino that the state, or in this case Medford Township, did not prove beyond a reasonable doubt last year that 81-yearold defendant and Carns family matriarch, Carolyn Carns, committed “continuing violations” of Medford zoning law, hence an ordered reduction in a pair of fines previously issued by a municipal court judge from $5,000 to $1,000 each, Township Solicitor Timothy Prime, at an ensuing Medford Township Council meeting, left the door open to the possibility that the township will appeal the decision to a state Appellate Court.

In fact, during the latest governing body meeting, he made a point three times that a decision had not yet been arrived at whether to appeal or not appeal the higher court’s decision – that despite apparent outrage and growing unpopularity with what many seemingly view as an overly-aggressive, taxpayer-funded prosecution of Carns amid allegations of political retribution.

Word that the township may not be putting the case to bed just yet came as one of Carolyn Carn’s sons, Brian, in the first governing body meeting to follow Tarantino’s decision, declared he would “love an apology to our mother” from the council.

The all-Republican council, back in December of last year, after both Brian Carns, and his twin brother, David, along with many residents lambasted the council for what they viewed as an excessive punishment, refused to denounce the punishment, with some members even defending it.

“In terms of the fine, they were fined less than five percent of the total opportunity to be fined in this, and I feel like that is more than fair,” said Councilman Erik Rebstock back on Dec. 20, 2022, alluding to Municipal Court Judge Charles Shimberg having sided in November 2022 with Medford Prosecutor Christopher Koutsouris’ request to assign Carolyn Carns with a $5,000 fine for each of a pair of zoning summonses, having found her in violation of two zoning laws for five days, while Koutsouris contended he had evidence that the Carns family matriarch was actually in violation of the local zoning ordinances for at least 115 days, or what he said could have amounted to a $115,000 penalty for each summons that was issued.

As Tarantino found in his decision last month, Carolyn Carns was given no trial in the matter, and therefore, there was nothing entered into the official transcript proving beyond a reasonable doubt that Carolyn Carns committed “continuing violations” of Medford zoning law. And the higher court judge’s review also found that a pair of guilty pleas entered by Carolyn Carns in September 2022 was for single violations (see separate story).

In a prepared “Council Statement

Concerning Carns Family” given on the night of Dec. 20, 2022, Mayor Charles “Chuck” Watson, who read it into the record publicly, contended that “the first violations occurred in 2016” and the “Carns family then applied for a use variance” to allow Cornerstone Tree Service to operate on the property (one of the summonses issued in 2022 had to do with the operation of a commercial business on Carolyn Carns’ farm, or that tree service business).

However, as previously reported by this newspaper, Carns abandoned the use variance process after being hit with what she viewed as excessive fees, and at the time, the matter purportedly didn’t result in any summonses or admissions in a court

of law. Watson, by reading the statement, acknowledged in December of last year “no fines or penalties were issued at that time.”

“The most recent complaint in April of this year (2022) resulted in the Carnes (sic) being again charged with illegally operating the Cornerstone Tree Service business on the property and illegally storing and using more than one commercial vehicle at the property,” said Watson on the night of Dec. 20, 2022, as he continued to read the statement aloud.

“On May 1, in response to a request from the Carns (sic), the township advised the Carns (sic) that the ordinance penalties could be up to $1,000 per day and that each day of the violation constitutes a separate offense.

“The township further advised the Carns (sic) that the township would seek enhanced penalties because the violations represent a clear and unambiguous intent to continue to violate the law over an extended period of time, and after the Carns (sic) had previously agreed to stop the illegal use of the property.

“With full knowledge of the potential penalties, the Carns (sic) then pled guilty to both offenses and the court imposed a $5,000 fine for each offense, because the Carns (sic) were persistent and repetitive violators and could have been fined even more if the township had requested it. Although they had full knowledge of the potential penalties before pleading guilty, the Carns (sic) have now appealed the sentence, which, of course, they have the right to do.”

Deputy Mayor Lauren Kochan, after the mayor read the statement into the record (the nature of which enraged numerous locals and led to fallout at subsequent council meetings), remarked, “I also agree with the sentiment of the statement” and Councilwoman Donna Symons added, “I also agree with the statements the mayor has made.” Councilman Frank Czekay, who was serving as the deputy mayor at the time of the December statement, also voiced his “agreement with the comments that you made,” though he maintained the municipal court judge set the fines, not the governing body, and the council delegated responsibility to the township zoning officer to enforce the township zoning laws.

Tarantino’s ruling, however, if it stands, would mean that there actually wasn’t “‘a clear and unambiguous intent to continue to violate the law over an extended period of time,’” as the mayor suggested last year, actually proven beyond a reasonable doubt.

Brian Carns, on June 7, in demanding council issue an apology, asserted, the “fine got reduced by 80 percent.”

He added, among other things, that the township “came after us like war criminals” to the point that one “would think this is a capital murder case,” and in pointing to an apparent jab that Koutsouris took at Carolyn Carns during one municipal court proceeding for having told Shimberg through her counsel that she is a “church going woman,” Brian Carns declared the prosecutor “questioned my mom’s faith” while “our lawyer spoke based on the law.”

“Why would you pick on a farm to begin with?” is a question Brian Carns put to officials on June 7, maintaining of the 30acre farm his mother presides over, “We have all that space.”

He also asked officials, “Why would you guys think it is OK to come out there and terrorize it.”

Prime, in an initial response, declared, “There was so much misinformation in that public statement, I am having a difficult

Saturday, June 17, 2023 AD HOTLINE: (609) 801-2392 or SALES@PINEBARRENSTRIBUNE.COM LOCAL NEWS / FEATURES ♦ Page 3
See FALLOUT/ Page 12 ParkingAvailable for: •Tractors and Trailers •Box Trucks •Boats •Cars We areOpening aCamdenTruck Yard for Tractor TrailerParking! Call 201-985-7669 to Reser ve Today SecureYardwithSecurity All New TenantsGet 1Month Free! T r uck Stop USA Tr Don t Miss This Bubble! ruck Stop US seeks in estors e are creating the orld’s onl truck parking PP in the countr Earn 4 Percent Monthly on Your Investment Guaranteed. , Call 201-985-7669 Looking for Investors! ’ T r uck Stop USA Tr

Medford Township Council Changes Three-Decade Old Law to Allow Residents to ‘Work from Home’ Without First Having to Obtain Planning Board Approval Even Though Home Offices Became Commonplace After Coronavirus Pandemic, Resident Expressed Concern After Being Asked to Put $1,750 in Escrow Account; Review of Law Leads to Discussion About Removing Medical Home Occupations

MEDFORD—It has been more than three years since the Coronavirus pandemic forced tens of millions of people to work from home, and since that time, millions of Americans are estimated to still have not returned to the workplace, instead conducting their jobs from a virtual office inside their homes.

And the thought that working from home could somehow be illegal in a municipality or necessitate one to obtain a permit first, that would then be followed by an inspection of the living quarters, in addition to having to appear before a local planning board, has probably never even crossed most remote worker’s minds given that working from home has become an accepted practice posing little, if any, neighborhood disruption in most cases.

But in Medford Township, a municipality that has seen its fair share of controversies over the years in regard to what some allege are overzealous code enforcement activities on the part of the municipality, the all-Republican Medford Township Council voted June 7 to change a three decade old law to allow work from home situations without having to first go to the local Planning Board (though it has technically still kept the permit requirement in place, though the solicitor suggested it just gives a person an option to request one to show proof to a higher authority, if mandated).

The reason for the law change, the Pine Barrens Tribune has learned, is that a local insurance agent, Brendan Canavan (whose mother-in-law happens to be Carolyn Carns, an 81-year-old Medford resident who is now a prominent community figure in recently battling the township over zoning matters and being given two $5,000 fines for firsttime offenses last year, which have since been reduced [see separate story]), approached the township zoning official, Ann Bell, in April, to make application for a “conditional use home occupation.”

Canavan, as he explained during a June 7 Medford council meeting, “was thinking of moving my office from Mount Laurel” to his home at 265 Medford-Mount Holly Road (where he lives with his wife, whose mom is Carolyn Carns) because his employer has been “thinking of closing that office,” and any business cards or letterhead, which “I was thinking of having printed up” has to have the physical address on it because in his line of work “you can’t run a business with a P.O. box and then work from some undisclosed location.”

It is because of that requirement that he reportedly emailed Bell “with what I want to do” and “completed an application,” noting that he took these steps to not put his motherin-law through any additional trouble.

Bell, he maintained, responded that among many things, he needed to put $1,750 in an escrow account and sign an escrow agreement, in addition to paying a $250 application fee. The zoning official also requested that five copies of the application be submitted with notarized signatures.

“I am really mystified as to why an escrow would be required for something that already fits in the zoning and (is described in the) documents for a home occupation,” Canavan told council. “I wasn’t asking for anything special. And I am supposed to sign, have five copies made, and then I was told that anybody from the zoning or planning boards could show up and inspect the property as a result of me operating a business there.”

This newspaper, in obtaining public records pertaining to this matter, has learned that

Bell not only requested those items from Canavan, but also asked to be provided with five copies of the “floor plans” that “depict” where the “permitted home occupation shall be conducted.” The township zoning official cited a requirement that it must be “within two rooms, or 25 percent of the total gross habitable floor area of the home, whichever is less.”

“At the time, I said this really isn’t business friendly, and I am not going to put my motherin-law through that,” Canavan told council June 7. “She owns the property, and I don’t know what else could come up as a result of that inspection.”

Canavan, prior to the June 7 Medford council session, took issue with the ordinance in an email to township officials.

Prime, during a preceding May 16 council meeting, in summarizing Canavan’s concerns, recognized that a “home occupation ordinance” on the books, which he said is over 30 years old, “requires you to meet some conditions and go before the planning board to affirm those conditions are met.”

“With the pandemic, obviously the number of people working at home has exploded,” acknowledged Prime in raising the issue. “There was a question (about the requirements in the ordinance) from a life insurance salesperson, who works strictly from home, but doesn’t see people at home and doesn’t have a sign or anything (like that).”

Then, Prime, in pointing to a proposed amendment to the home occupation ordinance that he drafted, asserted, “we felt it be appropriate to clarify that if you don’t see people at the home, and there is no evidence of a business being run there, then there is no reason to have to go to the planning board.”

“This amendment clarifies that if you don’t see people at home, (and you) live there, and there is no sign and no visible evidence of a business, you don’t need approval and the ordinance doesn’t apply to you,” Prime explained of the change.

Medford Council, on the evening of May 16, formally introduced the draft ordinance that would allow for the amendment.

But prior to the introduction, Prime provided some history on the home occupation ordinance, adopted in 1992, pointing out that it “allows you to operate a certain business out of your home,” and it had been adopted then because “historically” attorneys, physicians, seamstresses, and bakers “operated out of their homes, especially in Medford Village.

He added that in recognizing those home occupations, the ordinance set the standard that you “can’t have more than one employee” or “more than one customer or client” at the premises, at any given time.

However, while the Medford governing body members, including Medford Mayor Charles “Chuck” Watson agreed with Prime that people should be allowed to work from home without having to come to the planning board so long as – as the mayor put it – there are “no customers and no signs” and the individual is not operating a “commercial establishment in anyway” and “are not bothering their neighbors,” their review of the home occupation ordinance led some councilmembers to question whether other areas of the ordinance need be tightened.

“Are we comfortable with the existing ordinance for home occupations?” Councilman Frank Czekay asked.

He ultimately asked another question that revealed more about the premise of his initial question, asking, “Do we need to beef it up – it is 30 years old?”

Fmr. Medford Lakes Boro. Councilman Gives Ultimatum to Current Council Over His Demand for Second Referendum on Moving Municipal Elections

Aromando Says He Will Secure Necessary 400 Signatures to Put Question on Ballot in Event Governing Body Doesn’t Act Three Years After Voters Weighed In on Issue

former councilman of Medford Lakes Borough has given the municipality’s Borough Council an ultimatum: either initiate a second referendum asking voters if they would like to hold municipal elections on General Election Day, instead of in May, or he will pursue collecting the necessary 400 signatures to have the referendum added to the ballot.

“I am getting the signatures, regardless, unless you put it on the ballot,” declared Former Borough Councilman Joseph A. Aromando III, a frequent council critic and challenger, in delivering the ultimatum during a May 24 governing body session. “If I don’t hear anything, I will assume that it is a ‘no’ and will do what I am going to do.”

In 2019, just prior to the COVID pandemic, a non-binding referendum was placed on the ballot in Medford Lakes, “to ascertain whether Medford Lakes voters prefer to keep the municipal elections in May.”

The borough is one of a handful of Burlington County towns that hold municipal elections in May, with most other towns having such races decided on General Election Day in November.

While 445 voters answered “yes” and 722 voters decided “no” to the question, the way in which the question was worded actually meant that by voting “no,” the majority of voters who cast ballots chose not to keep municipal elections in May.

In other words, some 62 percent of voters deciding the question expressed that they wanted to elect members of borough council in November, during the General Election, rather than in May.

But by the question being a non-binding one, the final decision rested with borough council. It decided against an ensuing ordinance that would have implemented the change.

Borough Manager Dr. Robert Burton and Councilman William Fields, who was borough mayor at the time of the referendum, contended that by moving the election to coincide with state and national races, it might expose the borough to partisan politics and distract from the local issues at hand.

Unlike most county towns, borough council is non-partisan.

However, Aromando previously suggested he felt there was a concern on the part of the council that by moving the elections to November, when there is typically more

voter participation, there would be an increased chance of an opposition candidate being propelled to victory.

He also previously disputed the notion that by moving the local races to November, it would allow regional or national politics to infiltrate down to the local level, contending there is no tolerance for that in Medford Lakes.

Aromando, a former councilman in Medford Lakes from 1998-2002, has run in every borough council race since losing his seat in a bid to regain one on the governing body.

Additionally, Aromando took issue with the borough continuing to hold May elections, citing unnecessary additional costs.

Burton, in a previous story, confirmed there would be a $3,500 cost savings to the borough, per fiscal year, if the election date is moved to November.

The ordinance that would have enacted the wishes of voters in the November 2019 election was narrowly turned down by borough council in a 3-2 vote in March 2020, just as the Coronavirus pandemic was beginning to take hold.

Current Mayor Dr. Gary Miller, at the time of council’s decision, contended that it was his position that the majority of voters did not actually support moving the municipal elections because only 1,167 voters weighed in on the referendum, reflecting only 21 percent of the total registered voters in the borough.

However, Councilman Thomas Cranston, voted in favor of adopting the ordinance at the time, and while he expressed that he had some concerns with it, he believed it was important to honor the opinions of voters.

“As much as I think the May election suits the town fine, and does keep county and national politics out of our local issues to the extent that it is possible, we asked for the voters’ opinions and we got an answer,” said Cranston at the time. “Whether we researched it enough ahead of time, or put enough information out there, or whatever the case may be, it was asked and answered. I respect everyone coming out, whichever way they felt. It is just tough for me to ignore the results of that vote.”

Council, on May 24 of this year, despite the ultimatum from the former borough councilman, did not respond.

Councilwoman Gail Caputo and Councilman Dennis O’Neill were not on

Page 4 ♦ LOCAL NEWS / FEATURES WWW.PINEBARRENSTRIBUNE.COM Saturday, June 17, 2023 Each Of fice is Independently Owned and Operated. Let My 26 Years of Real Estate Experience Guide YouThrough the Selling and Buying Process! Kirk DeAngelis ABR, SFR Broker Associate #9 700995 o6 09.654.8797 c6 09.346.6984 kfda@hotmail.com 400 Stokes Road Medford, NJ 0805 5 All ia nc e FOR SALE $275,000 76 Kingston Way •Southampton, NJ 08088 Residential •2Beds 2Baths •1,360 Sq. Ft. •15Acres LEISURETOWNEATITS FINEST 55+ Adult Community
See COUNCIL/ Page 12
UNDER CONTRACT
See REFERENDUM/ Page 6

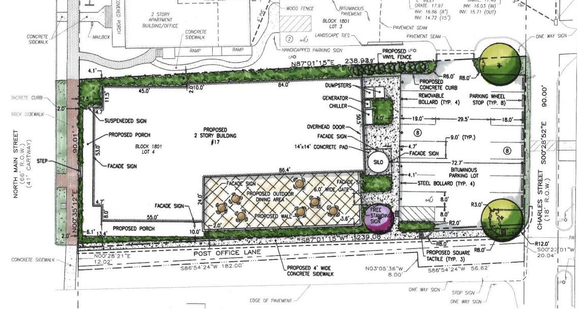
Medford Council Authorizes Demolition of Former Municipal Building in Historic District, Changes Zoning for Lot to Allow for New Brewery Sale of Parcel for $218K to North Jersey Firm Authorized by Governing Body with 9,000-sq.-ft. Building with Indoor Tasting Room, Outdoor Area Planned

MEDFORD—The former municipal building at 17-19 N. Main Street is slated for demolition, officials announced during a June 7 Medford Township Council meeting, with an intent to replace it with a 9,000-square foot brewery.

The sale of the lot has also now been set in motion, though at a purchase price that some say is undervalue, and in response, the municipal solicitor has pointed to the building’s condition as “not” being “up to snuff.”

During the governing body’s June 7 session, council approved a redevelopment plan for the site of the former municipal offices, after having previously designated Magnify Brewing, LLC, as the redeveloper of the parcel, back in May 2021.

Additionally, council took action on June 7 to sell 17-19 N. Main Street to Magnify Brewing for $218,000.

The parcel, Township Solicitor Timothy Prime explained, comprises two residential homes on N. Main Street that were “combined as an addition” where the township operated municipal offices for many years.

Medford built a new, two-story combination municipal/library building at 49 Union Street, or just down the street from the old municipal building, with the new facility having opened back in 2021.

At that time, the township vacated the offices at 17-19 N. Main Street.

According to Prime, the former municipal building has long been part of the township’s Public Park Education (PPE) zone. That zoning has meant, he explained on June 7, that the township “can’t sell it for any use” as the property must be used for a “park or for education purposes.”

“So, the township council collectively decided to redevelop the property, put out a Request for Proposals (RFPs) to potential purchasers to rehabilitate it, and then did get one response from Magnify Brewery.”

By adopting a redevelopment plan for a parcel, it allows the township to change the zoning for it. A redevelopment plan, as explained in a township statement included on the June 7 meeting agenda, is “site specific and provides all of the zoning and bulk standards for the redevelopment of the property.”

That is the initial action council took by passing Ordinance 2023-9 on June 7, titled, “Ordinance Adopting Redevelopment Plan for Block 1801, Lot 4, 17 North Main.”

After the ordinance passed, a consent agenda was passed unanimously, with Resolution 129-2023, titled, “Authorizing Execution of Redevelopment Agreement with Magnify Brewing” part of that consent agenda.

A statement on the provided agenda explained that “the agreement states Magnify Brewing, LLC, is the redeveloper (reaffirming a council action from May 2021) and contains what responsibilities the redeveloper has regarding the redevelopment of the property,” adding, “Magnify Brewing, LLC, will redevelop the property known as 17-19 North Main Street into a brewery.”

According to the redevelopment agreement, obtained by this newspaper, Magnify Brewing proposes to demolish the existing improvements on the property and construct a new facility of approximately 9,000-square feet, including approximately 3,000-square feet set aside for an indoor tasting room and an adjacent outdoor space.

The firm, it is added in the agreement, intends to employ a staff of approximately 15 people.

“The township designated them as a

redeveloper of the property,” said Prime on June 7 of Magnify Brewing, which was founded in 2014 and currently operates a flagship destination brewery in Fairfield Township, Essex County. “The Pinelands Commission has reviewed the application, and tentatively approved the demolition of the building, not the approval of the new brewery.”

Prime maintained that the Pinelands Commission had to approve the demolition of the building because it is “over 50 years old.”

While the redevelopment plan “establishes the new zoning for the property that would permit a microbrewery at that property,” according to Prime, “this ordinance does not authorize any construction, or anything to be built” just yet.

Rather, Magnify Brewing, he said, can now “go to the Planning Board” to seek site plan approval, and there will be “at least one public hearing before the planning board based on the application,” and then the planning board will need to approve a site plan “before anything goes forward.”

Any site plan, he noted, will also ultimately require Pinelands Commission approval.

Since word trickled out last year that the township was negotiating with Magnify Brewing to purchase the property, and had designated the firm the redeveloper for the Medford parcel, it has generated a plethora of controversy in the community.

Some locally-owned breweries already in the township have reportedly privately and publicly expressed concern that the opening of another brewery in the downtown will adversely impact their businesses, with Magnify Brewing a North Jersey firm.

There have also been public allegations made about Mayor Charles “Chuck” Watson allegedly trying to entice the business to come to town, all of which have not been independently verified by this newspaper to date (serving as the source of these allegations, in part, is executive session meeting minutes, including from February 2021, when it is recorded that “Mayor Watson reported that a brewery reached out to him about their interest in the 17 North Main” and it was decided “the redevelopment sub-committee will make contact with the brewery” and then, two months later, behind closed doors, it was recorded that “Mr. Prime stated he is working on the 17-19 North Main Street Redevelopment Plan,” all of this occurring before RFPs were sought on July 25, 2021, with one ultimately having gotten awarded to a brewery [after the proposals were read on Sept. 7, 2021].)

Other sources of purported controversy have entailed the purchase price (some have claimed the appraisals received are flawed and downtown Medford real estate is worth a lot more than what the township is getting for the parcel), traffic and parking concerns, efforts by some township officials to secure an easement from a neighboring property owner (Medford Village Car Care) for what is known as Post Office Lane, the advertisement process behind the RFPs (some have argued that simply placing a legal notice in a paid publication with limited circulation in Medford, and during the COVID pandemic, didn’t give locals adequate notice the facility had been for sale, which many have since claimed they would have been potentially interested in purchasing had they known it was available, and might have potentially led to a higher sale price).

All of these allegations led council to respond publicly with a statement back on

Saturday, June 17, 2023 AD HOTLINE: (609) 801-2392 or SALES@PINEBARRENSTRIBUNE.COM LOCAL NEWS / FEATURES ♦ Page 5 We Move Sheds! Email Us oda at info@AmishCoun r Sheds.com! NJHIC#13VH09843900 e install Stone Pads! 609-284-8776• AMISHCOUNTRYSHEDS.COM at the BEST Prices!
See BREWERY/ Page 6

REFERENDUM

(Continued from Page 4)

council in 2020, at the time of the ordinance decision, though their voting record tends to closely align with that of the current mayor.

“Why not sit down and allow residents to vote on this?” asked Aromando on May 24. “This could be a validation for what was decided –moving the election date to November.”

At the latest council meeting, unanimous action was taken to pass an ordinance on second reading pertaining to sidewalk responsibility, acting on a previous discussion, with Fields having previously explained the intent is to “basically have something on the books where people maintain their sidewalks when there is ice and snow.”

Also passing on second reading is a local ordinance that makes a portion of Stokes Road, that runs through the borough, a “school zone,” which would lower the speed limit along the stretch of road from 35 mph

BREWERY

(Continued from Page 5)

Dec. 20, 2022.

“Once the township moved into the new building, the process of selling the old building began,” said council in the statement. “The first step was designating the township property as an ‘area in need of redevelopment’ and adopting a redevelopment plan to specify the possible uses of the property. Main Street is more bustling than it has ever been. The one thing that we always hear is that we need more food and beverage businesses on Main Street, and these were the uses designated in the redevelopment plan.

“Two appraisals were then done on the building. The township then advertised asking for RFPs, to redevelop the property. The minimum bid was established by averaging the values of the two appraisals, which is standard. The township received one response. A successful brewery, with a location in North Jersey, submitted the only response. Their proposal was to build their second brewery and tasting area on the property. Council then adopted a resolution accepting the brewery’s RFP and named the brewery as the redeveloper of the property.

“This process was done very publicly. There were not only council meetings, but there were public meetings at the planning board. The redevelopment plan was adopted by ordinance, after a public hearing. The RFP was accepted and the resolution appointing the redeveloper was adopted at a public meeting. None of this was behind closed doors and anyone had the

to 25 mph when children are present.

The enacted law established a school zone for Neeta and Nokomis Schools “between 300 feet south of Bowker Road and 500 feet north of Lenape Trail during recess when the presence of children is clearly visible from the roadway, or while children are going to or leaving school during opening or closing hours.”

Deliberations continued May 24 about introducing an ordinance that would amend “our existing demo ordinance.” It was explained at a prior council meeting that officials aim to conduct “preservation” of log cabins in its Historic District, and are, therefore, looking to require more than simply expert word that one is beyond repair or that it would be cost prohibitive to repair one before it can be demoed.

“The planner provided an outline of his thoughts, and put it all in a memo,” said Heinold, noting that memo has since been forwarded to council for its review.

The borough solicitor maintained that the borough already has the “proper legal framework” in place “in terms of justifying what we are required to have in a demolition

opportunity to submit a proposal.

“The owners of the brewery became interested in Medford several years ago. They loved the location and the thriving downtown area. They reached out to the township planning and zoning office about a site they were looking at, the former Kirby’s Feed Store, now the Feed Mill. There was nothing in the township regulations that would bar them from developing that site and they pursued it. The brewery ultimately was outbid by the group that developed the Feed Mill. They asked the township to let them know if there were any other locations in the township. Several locations were suggested to them, but after a review, they decided that they wouldn’t work for them. The municipal building and library were mentioned to them as future possibilities, but the township still occupied them and would for some time. Clearly the brewery monitored the status of the buildings and responded to the advertised RFP.

“There was no special treatment given to the brewery; they just were the only ones to submit a proposal.”

The controversy was again raised during the June 7 meeting, with Prime asserting, “This is just one step in the process of putting this property back on the tax rolls, and also, hopefully, as an addition to the village.”

“It contributes to the revitalization of the village,” he declared. “This is not a monetary thing, and I do not think the township is looking to maximize profit on the building. The township obtained two appraisals on the property, and the average between the two appraisals constituted the purchase price. We, the township council, are looking to put the property back on the tax rolls

ordinance,” declaring, “It is just a matter of strengthening what we have on the books.”

However, he acknowledged that “demolition ordinances have kind of been a hot topic lately” and that one was recently passed in Riverton, “where it was challenged, and the ordinance was knocked down by the court.”

However, Heinold expressed his belief any action by Medford Lakes Council would hold given it has the legal framework already in place.

Aromando, on May 24, again inquired about the status of the ad-hoc Tree Committee and whether long-promised updates would be made to the borough’s existing tree ordinance, which were anticipated to be introduced earlier this year following a meeting of the committee.

“Is it safe to say you are not going to take any action on the concerns of the people who contacted council in December 2020, and continue the way we are?” the former borough councilman asked.

Burton responded that there will be “one final meeting” of the ad-hoc committee

“that is basically going to sum up the recommendations the committee made.” He expected a “list” to be generated on “how we implement those.”

“After that meeting, if everybody agrees on that, that should be the last meeting of that ad-hoc committee,” Burton said.

Council then convened an executive session to discuss an “attorney-client privilege matter” with Heinold specifying it was a closed session to provide “an overview of a legal issue.” Upon the governing body reconvening the regular session, Aromando loudly protested that the proper procedure wasn’t followed in going behind closed doors and maintained the resolution adopted permitting the executive session did not provide the reason the public needed to be excluded.

Heinold responded, in part, that what was discussed “will not become public unless council wishes to do so” because the closeddoor meeting was convened for an attorneyclient privilege matter.

and revitalize it, which hopefully will lead to revitalization of the village.”

According to Resolution 2023-130, another unanimously-approved consent agenda item, titled, “Authorizing Execution of Agreement of Sale with Magnify Brewing, LLC, for the Purchase and Sale of the former township municipal building property at 17-19 North Main Street, Block 1801, Lot 4, Medford Township,” the township obtained an appraisal from Martin Appraisal Associates, which valued the property at $290,000 as of June 3, 2021.

The township obtained a second appraisal from Sockler Realty Service Group, which valued the property at $146,000.

According to the resolution authorizing the sale and detailing the two appraised values, “both appraisals reflected the

significant cost of demolition of the existing buildings and improvements on the property in order that it could be completely redeveloped, resulting in the purchase price being established in the RFP by the average of the two appraisals in the amount of $218,000.”

The received appraisals have been a particular point of contention since late last year on the Medford 08055 social media group page, a prominent one ran by Joe Maggelet. He had been a staunch supporter of the Watson administration and a member of the mayor’s inner circle, up until last year’s multiple controversies surrounding the administration.

One of the reasons he has since pulled

See BREWERY/ Page 10

Page 6 ♦ LOCAL NEWS / FEATURES WWW.PINEBARRENSTRIBUNE.COM Saturday, June 17, 2023
Photo Provided Concept plan for a brewery planned at 17-19 N. Main Street in Medford Township, as presented in a redevelopment plan prepared by Taylor Design Group.
Saturday, June 17, 2023 AD HOTLINE: (609) 801-2392 or SALES@PINEBARRENSTRIBUNE.COM LOCAL NEWS / FEATURES ♦ Page 7

WATER

in raising awareness of the company’s request made last fall, said she wasn’t surprised to learn that the company was granted a rate hike, and concurred that “they never get as much as they ask for.”

declared. “And I don’t think I am represented fairly. They have to explain to us how they represent us.”

this decision within 45 days and unless such time limit is otherwise extended,” the decision would become final. The settlement became effective on April 12, although affected customers were not immediately informed of the rate changes, which they can expect to be “notified” of when they get their bill.

According to figures listed in settlement documents drawn up by the BPU, the increases that will be introduced in quarterly increments will end up amounting to $20.76 on a home with a standard 5/8-inch meter for water, representing a 52.7 percent increase at the end of a two-year period that began in April, when the agreement was signed, and $24.64 for wastewater services, a 26.52 percent rise over the same period.

Due to the gradual phasing in of the newly approved rates, however, customers with a standard meter and average water and wastewater usage will only see a hike of slightly over $5 each in their bills for both services during the first six months of that process.

Originally, the company had asked for approval of “an increase in rates for water service to produce additional annual revenues of 64.22 percent” and “for wastewater service to produce additional annual revenues of 26.76 percent above the adjusted annual level of revenues for the test year ending December 31, 2022.”

But putting in a request for a higher figure than it actually ends up being granted by regulators is par for the course where utilities are concerned, according to Bill Cozzi, a resident of LeisureTowne who has had extensive background working with utilities, and who was among some 18 individuals who offered testimony and comments at two online public hearings conducted on Jan. 12 by Gertsman. (In referring to those hearings, the BPU noted it had “received a significant number of petitions in opposition to the proposed increase from members of the Leisure Township,” as LeisureTowne was erroneously described.)

“That is typical utility procedure—ask for more than they expect to get,” contended Cozzi, currently one of seven candidates for three open seats on the LeisureTowne Board of Trustees. “The BPU compromises and drops it down to something less, which is probably in the range of what that utility was looking for.”

“But we really didn’t want any rate increase,” he asserted, pointing out that it had only been “a short time since the last one” and that he believed the company should have been required to provide better justification for this latest hike, for example, by showing that it is upgrading the service it provides to customers.

Resident Evelyn “Evie” Doherty, a former board member who is again running for a seat on the board, and who has been instrumental

If anything, she said she believed in this instance “they didn’t get as much as they thought they would,” in addition to not having the increase made retroactive through the beginning of the year, something she considered a positive aspect of the settlement.

But one thing Doherty said she found especially disturbing is that “the water company never seems to get enough—and they are always back for increases in a couple years.”

An even more scathing reaction to the rate increases came from former LeisureTowne board member Thomas Haluszczak, an attorney who now does consulting work, and who characterized them to the Pine Barrens Tribune as having been “padded in very arcane language that lay persons are unable to parse out,” and that “is being tortured to hide accounting mechanisms that are so unfair that if everyone did understand them, there would be wholesale revulsion.”

Haluszczak said he thought the newly revised water rates are “so exorbitant and the rate valuation metric so onerous that alternatives have got to be explored,” one being the idea that “the community as an ongoing concern should have its own well,” rather than depending on the water company, which he also accused of providing “substandard water” that doesn’t taste good, is cloudy and has a smell, forcing residents to have to shoulder the additional cost of using bottled water.

And while “drinking from a well is one thing, flushing a toilet is another,” he declared, and since the residents wouldn’t all be able to install their own septic tanks, the company should be compelled to compromise on its wastewater charges rather than allowed to raise them even higher.

Haluszczak also decried the manner in which the settlement was arrived at, maintaining that rather than a hearing before an administrative law judge, “it should be the subject of a thorough Superior Court inquiry, complete with discovery and witness testimony, and viewed against the backdrop of the water company’s submission being drafted in obscure, almost ambiguous and purposefully convoluted language.”

When anything is this difficult to comprehend to begin with, but also “presented in such a way as to make it even more complex,” he asserted, “then I believe the BPU or the judge has a duty to clarify each and every argument being proffered to lift money out of our pockets.”

Cozzi, too, was highly critical of the way ratepayers’ interests were treated at this particular hearing, with the Division of Rate Counsel, one of the signatories to the agreement, assigned to act as their advocate.

“I don’t think it is a fair representation of all the people who have to pay these bills,” he

He contended that was especially true given the fact that, unlike private sector companies, utilities such as Pinelands Water are not part of a “competitive market that drives the private sector to stabilize prices.”

As an example of the lack of regard for customers he believes was demonstrated by parties to the settlement, Cozzi cited the fact that those affected by the rate increases hadn’t even been notified about them, so “we didn’t know whether they got approved or not.”

website of the State of New Jersey, the Division of Rate Counsel is supposed to be “an independent voice for the consumer,” which has been charged by the Legislature with being “devoted to the maximum extent possible to ensuring adequate representation of the interest of those consumers whose interest would otherwise be inadequately represented in matters within the jurisdiction of the Division of Rate Counsel.”

Both Doherty and Haluszczak also emphasized that they had received no notice of any sort about the settlement or resulting rate hikes.

However, as the Pine Barrens Tribune learned in the course of looking into the matter, there is apparently no obligation to notify ratepayers of any such developments on the part of either the water company or the agencies involved in negotiating its requests. According to an email sent to this newspaper by Robyn Roberts, the New Jersey Division of Rate Counsel’s public information officer and legislative liaison, the only legal requirement was for the utility to publish a notice of the proposed rate increases “in a local newspaper” (which wasn’t this one, despite its being the only paper in the township reporting on local news at the present time) at least 20 days prior to the Jan. 12 public hearings on them, and “no further notices are required by law.”

In a subsequent email, sent in response to a reporter’s query as to whether that meant there is no legal obligation to inform ratepayers of a settlement or its terms, Roberts noted that once the settlement agreements are approved by all the commissioners, “anyone can have access to view the information on the BPU’s website.”

Doherty, however, maintained that when she finally took it upon herself to make an inquiry to the BPU about whether it had acted on the company’s petition, “the instructions they gave me were difficult to follow, and I’m a computer consultant. I had written it all down, but it didn’t work.” After then calling the township and finding that “nobody there knew anything about the rates,” she told this newspaper that she decided to contact the water company directly, which informed her of the rate change that would go into effect April 15, but didn’t bother mentioning that additional ones were due to be phased in.

Haluszczak said that after the hearing earlier this year, “everything went off the radar” in regard to the rate changes, and apart from some comments on the Nextdoor social media site by people wanting to know the status of the request, “We got no information at all.”

He also doubted that the Division of Rate Counsel was actually representing consumers as an advocate in this particular instance.

“I never heard their lawyer say more than two or three words,” he contended.

According to a description at the official

Formerly known as the Division of the Ratepayer Advocate, a separate agency within the now-defunct Department of the Public Advocate, its mission is described as being “to serve as an independent advocate and make sure that all classes of utility consumers receive safe, adequate and proper utility service at affordable rates that are just and nondiscriminatory,” as well as “to ensure that all consumers are knowledgeable about the choices they have with utility competition.”

The agency’s webpage further notes that “public participation also strengthens Rate Counsel’s challenges to rate increase requests and affects decisions of the BPU.”

However, the page notes, “to avoid the expense of litigation whenever it is in the best interest of ratepayers, Rate Counsel negotiates with utilities and attempts to settle as many issues as possible without or before going to a contested hearing.”

The documentation provided by the BPU includes a statement that, “The board is mindful of the impact any rate increase has on its customers.”

“However, having reviewed the record in this matter, including ALJ Gertsman’s initial decision and the stipulation, the board finds that the signatory parties have voluntarily agreed to the stipulation and that the stipulation fully disposes of all issues in this proceeding and is consistent with the law,” it notes. “In reaching this decision, the board must balance the needs of the ratepayer to receive safe, adequate, and proper service at reasonable rates while allowing the utility the opportunity to earn a fair rate of return.”

It then goes on to state that the order shall be effective as of April 12, 2023, indicating it had received BPU approval with the signatures of the BPU’s president and three other commissioners, and attested to by its secretary.

A subsequent provision states that “this stipulation is the product of extensive negotiations by the signatory parties, and it is an express condition of the settlement embodied by this stipulation that it be presented to the board in its entirety without modification or condition” and that “if adopted in its entirety by the board, no appeal shall be taken by them from the order adopting same as to those issues upon which the signatory parties have stipulated herein.”

In addition to the increases that were approved for average water and sewer uses, the agreement lists even higher ones for structures with meters larger than 5/8” (with the company

(Continued from Page 1) See WATER/ Page 10

Page 8 ♦ LOCAL NEWS / FEATURES WWW.PINEBARRENSTRIBUNE.COM Saturday, June 17, 2023 Travis Garage Doors &Repair Operator Remotes Broken Springs/ Cables Since 1971 New Garage Doors +Electric Openers Service &Repair 7Days aWeek for Your Convenience (609) 859-2992 All Credit Cards Accepted LECK ’S EXTERMINA TING EXTERMIN AT IN G 102 S. Bellevue Ave. |Langhorne, PA |215-752-0898 Protectors Of Public Health &Property Pest Control Services &Pest ControlSupplies Now Serving South Jersey •Pests •Termites •Carpenter Ants •Mice •Spiders •Household Bugs •Bees •Beetles 10% OFF for New Customers, Militar y, andFirst Responders

MATRIARCH

(Continued from Page 2

say the violations being written up occurred “on or about April 5,” which he contended “is to suggest” that in addition to having occurred on April 5, it could have occurred “on April 4 or 6 – on or about the single date.”

“There is no language that says an end date, multiple dates or anything along those lines,” Rosenberg added. “Another undisputed fact is there is no request for a presentation made to the court, or on the record, to amend that pleading. The only pleading I have is the April 5, 2022, notice, which states that specific date.”

The defendant’s counsel also maintained that it is “also undisputed there is no request by the state, or by the court, as to the specific dates being pled to.”

“I can represent to the court that I found out about that 115 figure at the sentencing,” maintained Rosenberg, adding that if the prosecution was “going to entertain multiple dates, that should have been something communicated.”

Rosenberg argued one way for the state to have remedied the situation was to have requested an “amendment to the pleadings,” and under the law, “the defendant then has an opportunity to request adjournment.” But that did not happen, according to Rosenberg. Carns’ attorney emphasized to Tarantino that Carns “pleaded to what she was served with, which represents a single date – full stop.”

“She isn’t pleading to these range dates,” he argued, contending Carns’ intention was to move forward pleading to a “single charge” for each of the summonses “knowing her exposure was $1,000” for each single offense.

The defendant’s counsel then delved into various pieces of case law, maintaining it has been determined that cases involving municipal ordinance violations are “supposed to have a level of strict construction” or be “narrowly construed.” In one case, he said, there was a single day penalty applied to a violation “because of ambiguity” when it came to other dates that might have been involved.

Rosenberg also pointed to case law cited by the state in a brief that “talks about the constitutionality of punishments,” a case where the ruling apparently favored a continuing violation penalty, but contended a “distinguishing fact” is “that there was a trial,” whereas Carns was not provided with one that would have resulted in her guilt for 115 days’ worth of violations.

“Here, Ms. Carns comes up, pleads guilty to the citation, and the citation was given a single date,” Rosenberg argued. “Then, at the point where we come back to sentencing, no evidence is provided of when it started or stopped. That candidly can’t happen.”

He added yet another piece of case law arrived at the conclusion that “for each date” of an alleged violation, “a separate cause of action” is required and “requires notice” to be served on the defendant.

“There is nothing in that plea that says continuing violation,” emphasized Rosenberg, but in response to a question from the judge, acknowledged “there may be other issues down the road” and the family is “popular” with the town at the moment with “back and forth” on issues “unrelated to these two violations.”

That acknowledgement, along with a statement from Rosenberg indicating there had been some awareness that the state might argue a continuing violation, was something Koutsouris initially seized on, contending Carns and her attorney “had notice of these arguments,” adding they occurred through an “informal conference” that was “off the record.”

“Not only did the state consider it to be a continuing violation, but the state wanted a trial so the state could prove its case,”

Koutsouris declared. “The state was denied the state’s right to a trial.”

He further maintained the state “objected” to Carns having pleaded guilty for that reason, suggesting the state was then put into a position where it had to “issue a brief at sentencing.”

Koutsouris further maintained a remark of the defendant’s counsel that there has been “a lot of talk of continuing violations” simply “sounds to the state like a lot of notice.”

“Of course, the defendant didn’t get her way, and because the defendant didn’t get her way on sentencing … she wants another bite at the apple again and it turns that proceeding into a sham!” said Koutsouris somewhat forcefully. “The state wanted to give the defendant a trial and she didn’t want it! She fought against it. She said, ‘I wanted to plead guilty,’ and the reason she wanted to plead guilty, I imagine, is that she was guilty!”

If the “defense counsel” didn’t learn of the 115 days’ worth of violations until the date of sentencing, Koutsouris asserted, “I guess the defense counsel didn’t look at the brief when it was submitted in advance.”

Shimberg, Koutsouris argued, “did what the enabling ordinance allows him to do in a quasi-criminal violation: assess a penalty for every day that could be demonstrated.”

Shortly after the municipal prosecutor asserted “there is a lot of red herrings here,” and that the Carns exposure “was $1,000,” except that it is “per day,” and reiterated his belief that the defense attorney knew the state’s position “well in advance” that it was pursuing penalties for “continuing violations” but “chose to ignore it,” Tarantino handed down his ruling.

While Tarantino said that when it comes to a municipal ordinance violation, “the court can consider each day that an ordinance is violated as a continuing violation,” and “summonses issued do not need to have any language” specifying the dates of “continuing violations for that ordinance,” the Superior Court’s decision on the filed appeal is to be “based on De Novo Review of the municipal court ‘transcript.’”

The official “record of the municipal court proceedings,” or transcript, Tarantino emphasized, “is important here for the purposes of this court’s decision on this case.”

In reviewing the transcript, Tarantino found there was no “testimony at trial” and that with respect to the guilty plea, “there must be something placed on the record, or established beyond a reasonable doubt, by testimony, that creates the continuing nature of a violation.”

“The court finds that was not done in this case, despite what everyone says,” Tarantino asserted.

He then pointed to page 9 of the transcript, which contains a transcription of the moment when the Sept. 19, 2022, guilty plea was entered into the record by Carns, emphasizing “line one and line 11 are very important.”

Tarantino, in pointing out line one reflects Carns’ guilty plea to the first ordinance violation, or failure to obtain a zoning permit prior to any change in use, notes that it is recorded that the defendant was asked by the court, “‘Are you pleading guilty to the ‘charge?’”

“One charge – that is singular,” Tarantino pointed out.

Then on line 11 of page 9 of the court transcript, Tarantino points out that when Carns was asked by Shimberg for her plea to the charge of having more than one commercial vehicle stored at her residence, he specifically asked, ‘What’s your plea to the charge, guilty or not guilty,” maintaining “those are singular in nature.”

“The court finds – maybe even more significantly – that there was no factual basis taken in court for the continuing violation as to this offense,” said Tarantino in making his ruling. “This was maybe discussed, but again, the court can’t rely on ‘maybe’ what

See MATRIARCH/ Page 15

Saturday, June 17, 2023 AD HOTLINE: (609) 801-2392 or SALES@PINEBARRENSTRIBUNE.COM LOCAL NEWS / FEATURES ♦ Page 9 Applytoday: 609.836.6008 HR@aspenhillshealt hcare.com Nurses Cer tified Nurses Aides Generous sign-on bonus Com petitive paypac kage Great work environment 609.836.6010 |aspenhillshealthcare.com 600 Pember tonBrowns Mills Road,Pember ton, NJ OUTSTANDING REHAB CARE IN AS CE NI CC OUNTR YS ET TING Shor t-term rehabilitativecare Fine dining &amenities Fast-track therapyprogram Exceptional nursing staff Long-term, respite &hospicecare Beautiful grounds &accommodations
)

WATER

(Continued from Page 8)

to determine the size, type and make of meter to be used, based on the service desired), as well as additional charges for sprinkler connections that are separately metered. As for wastewater, users will be assessed an additional fee of $15.81 per month for each unit connected to the township’s collection system that has a garbage disposal installed within it. The ultimate inequity of this entire process, Haluszczak contended, is its failure to consider “the captive market of retired people that this company knew they were going to serve who are on fixed incomes and required water.”

“Where,” he asked, “is a detailed analysis of the socioeconomic breakdown of each water customer in this guaranteed market?”

Almost as if to answer that question, however, on the evening of June 13, Peter Peretzman, a spokesman for the BPU, emailed replies to some queries the Pine Barrens Tribune had put to the agency the previous week, including one regarding whether the economic status of the water company’s LeisureTowne customers,

BREWERY

(Continued from Page 6)

back his support, he told this newspaper in an interview earlier this year, has been over the township’s handling of the old town hall.

Maggelet is a former Medford historic district property owner of 38 S. Main Street. He described to this newspaper that he ultimately sold his building in the downtown, “which is actually probably onefifth the size of that building on Main Street” for $269,000 in 2016.

In addition to a first-floor small shop, and apartments on the second and third floors, Maggelet pointed out his property had only two parking spaces in the back, in contrast with the former municipal building “that has a lot of parking in the back, which is premium in Medford.”

Prime, earlier this year, when previously asked to respond to certain parts of Maggelet’s interview with this newspaper, particularly that the appraisal might have been well undervalue, initially responded “the parking lot is not included in the sale,” and demanded to know “who is saying this – that’s crazy.”

“Are you familiar with the property?” Prime asked this reporter. “If you go down Post Office Lane, the (old) municipal building is on the left, the car care center is on the right – you drive down and there are parking spaces there diagonally, where you can park and there is a little parking lot

many of whom are elderly and on fixed incomes, is taken into consideration in allowing these rates to be raised.

“Yes,” he responded. “The board gives significant consideration to the impact of its decisions on ratepayers in every action it takes. The result of this is why the parties agreed to phase in the rate increase in four installments.”

Peretzman also noted that “this rate case, as most of our rate cases, was conducted under the process set forth as part of the responsibilities of the Office of Administrative Law,” pointing out that “there were two public hearings conducted to allow impacted members of the public to give their input” as part of that process.

Peretzman also endeavored to answer a question posed by this newspaper as to whether the rate increase is expected to result in any direct improvement of service to customers in LeisureTowne and Hampton Lakes, where water quality appears to be a subject of controversy, or whether it is just intended to help the company meet its existing obligations.

“As in all rate cases,” the board spokesman replied, “Pinelands had the burden of proof, which the company met under New Jersey statutes.” The utility, he explained, was required by law (N.J.S.A. 48:2-21(d)) to prove

in the back, and that is what that person is probably referring to – that is part of this, that is part of the municipal building. But if you hit Charles Street, and go beyond Charles Street, that is the old Cranberry Hall that has the bigger parking lot – that use to be the meeting hall, before they bought the police station. Are you with me – that is not part of the sale.”

At the time of the interview, Prime said he didn’t know how many parking spaces were there, or actually part of the sale, but that it is a little parking lot only.

When further pressed about the value of the appraisals, the solicitor declared, “let’s hold on a second,” paused, and then told this reporter to “remember with this appraisal, the building also has to be torn down, demolished.”

“It is substandard,” Prime declared. “It doesn’t have any handicap accessibility. … It is not up to snuff.”

In quoting the two appraisal prices to this reporter, Prime emphasized, “what we did is take the two, divided them and averaged them and I think it is $218,000.”

“That’s the facts,” Prime declared. “These are MIAS (Moral Injury Appraisals Scale) … two appraisals … and our tax assessor recommended Martin … and Sockler has appraised other properties for us.”

Maggelet, in the interview with this newspaper earlier this year, also questioned why a for sale sign wasn’t put up on the building “so everyone knew it was for sale,” and contended that while he believes the advertising process used by the township was a legal one, officials likely were aware the ad

that the rate increase was just and reasonable.

“Both staff and rate counsel agreed that Pinelands met their burden of proof,” and “that the agreed upon rate increase was just and reasonable,” he said.

The stipulation, Peretzman contended, “includes capital improvements that have been made since Pinelands’ last base rate case,” which “should improve the level of service provided” by the company.

The request for a rate increase, he further maintained, was “thoroughly reviewed by BPU Staff,” with the Division of Rate Counsel performing “a separate, equally thorough review.”

Water quality issues, however, “are not part of the BPU’s regulatory oversight,” he added, and questions regarding them “should be directed to Middlesex Water or the New Jersey Department of Environmental Protection (NJDEP).”

Finally, asked why it is necessary for these rates to be raised every couple of years,” Peretzman responded that “it is important for companies to file periodic rate cases in order to keep the system up and running and to help avoid major rate increases at once.”

“Whenever a petition and rate case is filed before the BPU, he stated, that agency

seeking RFPs is “in a classified section hardly anyone reads,” and that as far as the argument that the process was also announced at a planning board meeting, “nobody goes to the planning board meetings.”

Prime, when later asked why a for sale sign was reportedly not posted on the building, replied, “we weren’t selling the property just to sell it.”

“We are trying to get it back on the tax rolls, but also trying to find a redeveloper that will turn it into something that will help the Village,” he said.

During the June 7 council session, when a resident asked wouldn’t this “be an opportunity to turn it into a parking lot,” contending more parking is needed in the Village, particularly on the north end, Watson responded, “I guess it could have been, but we decided, as a council, to redevelop it into something,” before also teasing a future parking project.

The mayor then provided key clarification that makes further sense out of the issue –the township sought RFPs for the site to be developed into a “food and beverage” concept, believing that is what would be able to provide for the revitalization that the council has intended for the downtown.

“The township felt that was the best use –to redevelop it, and not clear it (the parcel) and make it just a parking lot,” Prime added.

Councilman Erik Rebstock then asked Prime to review once more “the process we took to get the RFPs,” acknowledging there has been “some question of how did we get to a single bidder,” maintaining the June 7 session

“conducts the rate case under the process set forth by the New Jersey Administrative Code and statutes.” And any questions “regarding specific details about Pinelands Water and Pinelands Wastewater’s petitions for a rate increase,” he added, should be directed to the company itself.

But the only response that Bernadette M. Sohler, Middlesex Water Company’s vice president for Corporate Afffairs, gave this newspaper when asked whether the company was planning to make any “material improvement” in its service to Pinelands customers that had necessitated the rate hike, was that the BPU had approved settlement agreements “that were based on the information the companies provided in their petitions ... that were the subject matter of these filings.”

Sohler, however, did email the following message to the paper concerning how Pinelands customers are notified of rate modification: “The board order is posted on the NJBPU website, (and) we also post the Pinelands Water and Wastewater tariff to our website under ‘Rate Information.’ Customers are notified of the rate change on their bill.”

“The township had to decide what to do with the property,” Prime responded. “The council determined the best way to proceed is under the New Jersey Redevelopment Law – that law requires a designation of a redeveloper.”

He contended at the time of council’s determination, “the law did not require public notice” and that a “private sale” could occur “if it was redeveloped,” though the law “has changed since then.” A check of a legal notice database, however, found the RFP was advertised on July 25, 2021, in the Burlington County Times.

“Council decided who else might be interested,” Prime said. “With the existing zoning, we knew we had to do something to allow the property to be developed. The first step was to seek RFPs, and find out if anyone is interested. Then we would have council determine how to proceed. It was not required to be a brewery. We did not limit it. But the township did indicate it did not want residential (use). The only response was from Magnify. It was an exceptional response. That led to all the steps in the redevelopment process ….”

Maggelet, as he had remarked in the interview earlier this year with this newspaper, called the deal “very shady” in a June 14 social media posting, and questioned how it just came to be that a North Jersey firm happened to read the classified section of an area newspaper to know the building was for sale (with the Dec. 20, 2022 serving as a rebuttal to that claim), quipping, “They advertised it in the government classified ad section of a newspaper that no one reads

Page 10 ♦ LOCAL NEWS / FEATURES WWW.PINEBARRENSTRIBUNE.COM Saturday, June 17, 2023
GA RD EN STAT EP UB LIC AD JUSTERS,I NC. JOHN R. MOORE Public Adjuster NJ •PA StateLicensed &Bonded Fire• Smoke• Wind •Water •Hail• Va Office: (856) 983-7086 •Cell: (609)923-32 ndalism 0
Mulch, Sand &Topsoil Installation Avai labl e R.E .T.C onT RaCT oRs We Also Do Brush Hog Mowing, Lawn Mowing and Cleanups! S d & i l l l i DumpTruck Service Call or Text 609-410-1008 Email Us @Tubertini193@hotmail.com NJ Lic 13VH11599500

WILDFIRE

(Continued from Page 1)

the area,” with there also being a number of other smaller brush fires under 5 acres having been reported throughout the area since the start of the month.

There was some good news in that there ultimately was some heavy downpours in the area on June 12 and 14, with more expected June 16, but still several dry days went by before it rained.

CITY LINE WILDFIRE DISPLAYS ‘REALLY ERRATIC FIRE BEHAVIOR’

The “City Line Wildfire,” which broke out in the vicinity of an unimproved and sandy City Line Road in Pemberton Township, initially threatened two structures, according to officials, with that blaze’s incident commander, John Earlin, Sr., a section forest fire warden for the NJFFS, describing that the conflagration exhibited “really erratic fire behavior.”

An initial plan of attack for the blaze – first spotted around 11:33 a.m. June 9 by observers manning the Cedar Bridge and Apple Pie Hill fire towers, Earlin described, had intended to keep the wildfire within an approximately 80-acre planned containment area.

However, he explained that the “wind kept changing directions on us” and “it was taking the fire in a couple different directions.”

“We tried to use a couple small roads, and improved them real fast with tractors and plows,” said Earlin of the initial moments of the City Line Wildfire. “And we lit a backfire along the roads.”

That initial attempt at containment, however, reportedly became unsuccessful

“when the backfire came together with the head fire (or the main fire front),” and that is “when it ended up spotting across and we ended up having to go bigger,” Earlin declared.

The section forest fire warden described that when he arrived on scene “there was a few acres burning,” but by the time of the 8 p.m. presser, it grew to 350 acres.

The plume of smoke had grown markedly in size from when reporters first arrived earlier in the evening at the incident command post established at Whitesbog Village.

Pasted on a fire response vehicle behind Earlin was a NJFFS map showing a revised 850-acre containment area, with Donnelly pointing out crews are “going to be out here all night.”

“When I first got here, I had picked out a smaller road that I thought maybe we could hold the fire to, since I had gotten there pretty early,” Earlin said. “I had some cranberry bogs to the south, so I thought we would be able to pinch the fire off onto a road. I think it would have been held at about 80 acres if we would have held it there. But when the head fire, or the main part of the fire, met with the backfire, it spotted across our contingency line.”

As of the afternoon of June 10, the wildfire was reported by the NJFFS to have reached 850 acres in size, and was 50 percent contained. It took until June 12 for firefighters to reach 100 percent containment.

North Branch Road, Glassworks Road, City Line Road and Butler Place Road were closed during the height of the conflagration. About 50 firefighters, according to Earlin, were involved in the response. The section forest fire warden described that it was hunting cabins and trailers belonging to an “older hunting club” in the area that were initially threatened.

“They are all going to be safe,” he told reporters. “There were no evacuations, as nobody was there. I actually knew the people (who own it) and told them not to come down, it is going to be OK.”

After Donnelly had just got done telling the media that gathered for the briefing that “this here is our 10th major wildfire this year,” and “it is a very dry year” and one that has been “quite dry” compared to past years, Judy’s pager sounded and word spread about a half hour later of another potential wildfire in Evesham.

“I walked into the bathroom this morning, brushing my teeth, and I looked at my face and said, ‘Man I got a lot of bags under my eyes – I got to start sleeping a little bit more,” said Earlin before the pager sounded. “The nights – we have been mopping up fires.”

LOCAL PHOTOGRAPHER REPORTEDLY SPOTS BUZBY BOGGS WILDFIRE

As reporter’s questions were being answered in Pemberton, the Pine Barrens Tribune has learned that Marlton-based professional photographer, Josh Street, of Josh Street Design & Photography, was traversing Evesham Township’s Black Run Preserve when he encountered smoke and flames.

“Is this a controlled burn?” he asked, in posting a picture of the scene on the Black Run Preserve Community Facebook page. “Because if not, it is spreading pretty fast and there is no one around … .”

Street posted the photo at 7:43 p.m. on June 9. Within about 15 minutes, locals were tagging Evesham Township Fire Chief Carl Bittenbender. The fire chief, responding almost immediately, asked Street to call him via his cellphone.

As a nearby resident declared, “I live behind it and (am) looking for any signs of smoke

now,” and urged someone to call in the blaze “ASAP,” Street told those following the post that he had since made contact with the chief.

“At about 8 p.m. last night, I was notified via Burlington County Central Dispatch of a smoke condition, presumed to be a wildfire, in a heavily-wooded block here off Kettle Run Road,” said Tom Gerber, section forest fire warden and incident commander of what was ultimately dubbed the Buzby Boggs Wildfire. “I arrived on scene, and probably about 10 to 15 minutes later, I interfaced with the Evesham Fire Department, and we determined the fire was in this very-heavily forested, very-vehicle inaccessible block of forest between Kettle Run Road and the Camden County line.”

Gerber, in a second press conference held at 10 a.m. on June 10 at the Kettle Run Fire Rescue building, described that “this particular fire was over 20 acres in size” when he first arrived at the scene and that it was “being driven by a strong northwest wind.”

He noted it was “making its way to Kettle Run Road.”

“It is a very hilly area for South Jersey,” he explained of the area where the flames were discovered. “It sits at about 219 feet above sea level. So, it is a little bit of mountainous terrain here in what is otherwise flat country. We determined we had to go indirect and do a burnout operation on Kettle Run Road, and that is what we did.”

A containment area “probably in the neighborhood of 600 acres,” he said, was planned during the overnight hours. He estimated some 45 personnel were brought in to participate in the firefighting activities. As of late Saturday evening, the fire reached about 600 acres in size, the NJFFS

See WILDFIRE/ Page 13

Saturday, June 17, 2023 AD HOTLINE: (609) 801-2392 or SALES@PINEBARRENSTRIBUNE.COM LOCAL NEWS / FEATURES ♦ Page 11
Photo By New Jersey Department of Environmental Protection A tree becomes completely engulfed in flames during the City Line Wildfire. Photo By Douglas D. Melegari Fire officials share a light moment when section fire warden John Earlin, Sr., center, declared that after spending many nights mopping up fires he looked in a mirror and said, “‘Man I got a lot of bags under my eyes.’”
ALBA PIZZA PINE GROVE DRYCLEANERS TOP NAIL SALON RETAIL SPACEAVAILABLE! FOR MORE INFORMATION, CALL: 18 BROADWAY, BROWNS MILLS, NEW JERSEY 08015 Pine Grove Plaza ShoppingCenter 856-218-8677 P 5 7
Pine GroveTenants

FALLOUT

time responding.”

However, he ultimately found the words to do so, and it was at that point he first left open the door to an appeal.

“The township is not going to relitigate the case,” Prime responded. “The defendant pled guilty to the case. The judge imposed a penalty. The (Superior Court) reduced the fine – and I have the transcript of the hearing – not because the defendant wasn’t guilty. He imposed the maximum fine on each offense of $1,000. He was not convinced that the defendant understood she was pleading on quality to multiple days of offenses. I find that hard to believe because she had a very competent, very good attorney. But having said that, the judge ruled – one judge ruled one way, the (Superior Court) judge ruled another way. The township still has to decide whether or not to appeal that decision.”

The latter statement led to shouting in council chambers, but Prime repeated it again to slightly clarify why he was leaving the door open to an appeal.

“The township has not decided whether or not to appeal the decision …,” Prime said.

Then, in retorting, “nobody is treating anybody like a war criminal” and the situation is merely “a case where the township was enforcing the local zoning ordinance,” he exclaimed, “the court has ruled, the superior court has ruled and that is the end of the matter as far as, we think, we are concerned, other

COUNCIL

(Continued from Page 4)

Councilwoman Donna Symons responded that she “agrees” with Czekay, maintaining that “some” things in the home occupation ordinance appear to her as “outdated.”

In further elaborating on his concerns, Czekay suggested he felt home occupations should be permitted for the “learning professions,” listing off accountants and lawyers, but questioned whether a “doctor or dentist” should be allowed as such professions, declaring “there is a lot more activity around them than around an accountant or professional engineer.” An engineer, he added, “probably goes out and visits their sites.”

Prime, in response, said the home occupation ordinance is “pretty broad,” while Watson gave thought to whether any medical professions should be performed in a “professional office.” While the mayor gave the subject thought, Czekay said he “thinks of medical patients and parking, and everything that goes along with it.”

When the Medford solicitor pointed out that the “ordinance says” that a person having a home occupation can’t have “no more than one client, customer, patient or visitor seen” at any one time inside the home, Czekay questioned, “How can you enforce that for a doctor.”

“At least tighten it up with the medical profession,” Czekay declared.

Prime responded that he “could amend it to eliminate physicians, dentists, and optometrists,” but amid further deliberation, officials were openly unsure just how many of those home occupations currently exist in Medford. Some officials recounted having seen various medical home occupations in their travels over the past couple of decades, including one that used to exist “on a small road off Route 70.” When one official pointed to a potential operation on Tuckerton Road, Watson declared, “I didn’t know about that one.”

Czekay, at one point, recalled having done “a few approvals on the zoning board, but just a handful,” but that, “I can’t imagine we approved a whole lot.”

than we have to determine about the appeal.”

According to a later interview with a Carns family spokesperson, the family has been informed the township has 20 days to file an appeal with the state Appellate Court. While attempts to confirm that figure with the court system were unsuccessful as of press time, if true, that would mean a decision would have to be made around the week of June 19.

Medford council held an executive session June 7, and among the topics listed to be discussed was “litigation,” but the governing body emerged from the closed session announcing that “no action” for now would be taken that night on the subjects discussed. Council is due to meet again June 20.

Also during the June 7 session, when Brian Carns gave his address for the record (giving two of them in this instance, Prime laughed out loud. While it wasn’t clear why Prime laughed at that moment, it led Brian Carns to declare, “It’s insulting you are laughing.”

The Carns sibling then suggested Prime’s laughter was somehow connected to a raw, emotional subject that landed one of the councilmembers in hot water earlier this year – whether Brian Carns is actually an owner of 265 Medford-Mount Holly Road, or the Carns Family Farm, with the sibling declaring, “you seem to think I really don’t own the place, and I do – I do own the farm, just like my sister and brothers do.”

“Once again, there seems like there is so much inappropriate behavior, on this side, during this whole fight,” Brian Carns declared. “And this is just one (example) of them. I don’t get it. You guys are supposed to be professionals.”

“I think we have to have a better idea of what people asked for in the past,” asserted Deputy Mayor Lauren Kochan. “I think it is good to have some background.”

Prime responded that “it’s your call,” and explained that if the governing body on May 16 directed him to make further amendments to the home occupation rules, it would delay the work from home clarification from being enacted.

Ultimately, Czekay agreed with his colleagues to “move forward with the clarification,” and “do that later,” or any removal of the medical occupations as permitted home occupations. Czekay then asked that Township Manager and Clerk Kathy Burger “pull information on how many approvals we had over the years,” while Watson, after Burger recalled an optometrist operating from a Medford home in the 80s, surmised “maybe we have to be careful that there are people already out there.”

Canavan, on June 7, in pointing to the May 16 governing body discussion about the medical home occupations, declared that by “tightening up restrictions, it doesn’t seem like any problems are being addressed.”

“You say you want to get rid of ‘medical’ or ‘doctors,’” Canavan recounted. “How are we going to police their waiting rooms or enforce only a one-person waiting room? It just seemed to me to be more of an overreach. It didn’t seem to be following Republican principles, or to be business friendly. It just seemed like you wanted to tighten things up just for the sake of tightening it up. It just seemed not to be business friendly.”

Canavan added that when it comes to discussion of “eliminating medical offices, you guys might be familiar with telemedicine and telehealth, with doctors doing visits over the internet that don’t require someone to come to their office anymore.”

“Things have evolved where I would really discourage you line iteming them out, saying ‘all medical offices,’” said Canavan, believing there was a strong possibility physicians might work from home in the township currently. “I don’t think you are trying to solve a problem by doing that. I think it is counterproductive.”

Watson responded that council is “moving on an ordinance” June 7 “that eases restrictions.”

See COUNCIL/ Page 15

Page 12 ♦ WORSHIP GUIDE WWW.PINEBARRENSTRIBUNE.COM Saturday, June 17, 2023 2 Hartford Road | Medford NJ 08055 medfordumc.org | 609/654-8111 info@medfordumc.org follow us on facebook.com/MedfordUMC Please join us for Worship 9:00 am Contemporary In-Person or Facebook Live 10:30 am Traditional In-Person or Facebook Live 18 Mill St. Vincen town , J 0 8 0 8 8 Worsh ip: S un d ays 10 a .m . 609 - 859 -22 9 Tra n sportation Ava ilable Call 609-859-2883 www.fbcvnj.org •609-859-8967 Rev Ver nl E Mattson, Pastor 39 Main Street V incentown, NJ 08088 COME VISIT! We wouldlove to meet you! Sunday School 9:45 a m Sunday Worship Service 11 a m Cross Roads Youth Group - Sundays 5 p m B ble Study - Wednesdays 6:30 p m Prayer Fellowsh p - Wednesdays 7:15 p m Adult Choir Practice - Wednesdays 7:30 p m FirstBaptist Church IAmThat IAm Ministries, Inc. All Are Welcome! Sunday Worship Seervice at 11:30 a.m. Pastors Florence a and Russell Webber r 50 Burrs Mill Roadd, Southampton, NJ 08088 609 -847- 4848 www.iamthatiamministriesinnc com ww w.riephoffsawmill.com We areafamily-owned business forover 50 yearssupplying top- qualitylumber produc ts. WE BUY STANDING TIMBER 763 Route524,Allentown,NJ08501 •Oak FenceBoards& Posts •Custom CutHardwood Lumber •TreeStakes -Trailer Decking •Crane Mats Riephoff Sawmill 609-259-7265
(Continued from Page 3)

AUTOMOBILES/TRUCKS

Cash Paid for Your Car. Looking to buy better than junk cars. Call 1-866-261-5277. We come to you.

H PAID FOR YOUR CAR $

CONCRETE

E&H Concrete. Concrete, rock, brick and paver. All work guaranteed. Call 609-367-3292.

WILDFIRE

(Continued from Page 11)

reported. Full containment of this blaze was also reached at noontime June 12.

“We knew we could contain the fire through a pretty good block of woods,” Gerber told reporters. “The area has some good natural breaks along streams and old cranberry bogs (hence the name given to the wildfire: Buzby Boggs Wildfire), and there is an open piece of township property to the west that we could bound it to.”

At the height of the conflagration, or what would become the state’s 11th major wildfire of 2023 – a designation given to any wildfire achieving 100 or more acres in size, according to Gerber, five structures, all homes, were threatened.

All of them, however, were located “on the perimeter of the fire” and “have very good defensible space,” Gerber noted. That spacing, similar to what firefighters encountered just a short distance away in Medford Township the weekend before with a major wildfire, allowed fire engines and brush trucks to be “very close to the homes” to provide for sufficient structural protection.

The section forest fire warden also described that, like with that of the Medford blaze, evacuations weren’t necessary, and residents were instead informed crews were “protecting in place,” with “face-to-face”

DENTAL INSURANCE

*Physicians Mutual Insurance Company. Covers 350 procedures. Real insurance - not a dis-count plan. Get your free dental info kit! 1-855-526-1060 www.dental50plus.com/ads #6258.

FURNITURE REPAIR

Adam’s Furniture Restoration, LLC. Fully insured. Furniture repair, kitchen cabinet refinishing, touch-ups, and in-home services. Call 1-856-979-6210. Visit www.facebook. com/adamsfurnres.

HAULING

ANYTHING, WE HAUL IT. ATTICS, BASEMENTS, DEMOLITIONS, SHEDS REMOVED, POOLS REMOVED, SPACEPLACES CLEANED OUT, ETC. CALL 609-694-9356.

meetings having reportedly occurred with every affected resident.

“A lot of them lived here a long time, and some of them remember the bigger fires that occurred in this area back in the 60s and 70s,” said Gerber, who has been the section forest fire warden in this area of Burlington County, up against the Camden County line, for around 40 years.

Gerber further described that the “very isolated” structures initially threatened by the wildfire were “in different areas” of the neighborhood, scattered across Braddock Mill, Kettle Run and Tomlinson Mill roads in Evesham.

Bittenbender, who described that the wildfire is located on private property and in a portion of the Black Run Preserve western trailheads, reported that Kettle Run Road, between Sycamore Avenue and Braddock Mill Road, had to be closed during the daylight hours of Saturday (June 10).

“It is difficult to travel down Kettle Run Road,” the local fire chief told reporters during the June 10 press conference. “The smoke migration is pushing towards the east and is making that road tough to navigate by vehicle.”

Black Run Preserve, he noted, was anticipated to be closed at least until Tuesday, June 13, “to keep people away from the smoke and hopefully minimize the calls about smoke in the area.” Some frequenters of the area reported on June 14 that they had been advised the trails and trailheads on west side of Kettle Run Road remain closed until further notice due to safety concerns from the fire, and that they might remain closed for several weeks.

Based on the forecasted wind direction, Bittenbender anticipated that the smoke would blow toward “the Hopewell Road area, Little Mill Golf Course, Little Mill Woods, and the Preserves.”

The causes of both fires were reported to be under investigation as of press time.

POSSIBILITY IT COULD TAKE ‘COUPLE MONTHS’ BEFORE FIRES ARE PUT OUT

“Containment” or “controlled” is not the same thing as being “put out” completely, Donnelly advised on June 10. He described containment as firefighters essentially “putting a box” around the fire and “boxing it in” to where firefighters take steps to prevent fire from going over the control lines.

“We have three phases of a fire,” Donnelly explained. “Our first objective is to contain the fire, which basically means we are going to stop the forward progress of this fire. Then, from there, we want to get that fire under control. Once under control, we work

MISCELLANEOUS

*Are you a pet owner? Do you want to get up to 100% back on vet bills? Physicians Mutual In-surance Company has pet coverage that can help! Call 1-844-774-0206 to get a free quote or visit insurebarkmeow.com/ads.

*BATH & SHOWER UPDATES in as little as ONE DAY! Affordable prices - No payments for 18 months! Lifetime warranty & professional installs. Senior & Military Discounts available. Call: 855-761-1725.

*Become a published author. We want to read your book! Dorrance Publishing trusted since 1920. Consultation, production, promotion & distribution. Call for free author’s guide 1-877729-4998 or visit dorranceinfo.com/ads.

*Diagnosed with lung cancer? You may qualify for a substantial cash award - even with smoking history. No obligation! We’ve recovered millions. Let us help!! Call 24/7, 1-877-648-2503.

READER ADVISORY

* Reader Advisory: The National Trade Association we belong to has purchased the above classifieds with an asterisk. Determining the value of their service or product is advised by this publication. In order to avoid misunderstandings, some advertisers do not offer employment but rather supply the readers with manuals, directories and other materials designed to help their clients establish mail order selling and other businesses at home. Under NO circumstance should you send any money in advance or give the client your checking, license ID, or credit card numbers. Also beware of ads that claim to guarantee loans regardless of credit and note that if a credit repair company does business only over the phone it is illegal to request any money before delivering its service. All funds are based in U.S. dollars. Toll free numbers may or may not reach Canada.

on extinguishing the fire 100 percent. Once the fire is extinguished 100 percent, then we declare the fire out.”

But extinguishing the recent wildfires completely, he predicted, “is probably not going to occur until we get some substantial rain in the area.”

“Fires that occur this time of the year, of this magnitude, will typically burn until a couple of inches of rain end up falling,” he said. “So, you can see these fires not being declared out until a couple months from now, (in the) worst case scenario, depending on what precipitation we get throughout (the next couple of weeks).”

As for the ongoing high to extreme fire danger conditions, Donnelly declared that “it doesn’t look like there is a whole lot of relief going forward,” in terms of substantial rainfall, further asserting, “that could pose a problem for us going forward.”

In making those declarations, he pointed to long range forecasts, which he said show above normal temperatures, as well as below normal precipitation.

“Up until the time mother nature speaks, it is just a best guess,” he said. “Right now, we are ramping up and anticipating a long busy summer based on where we are now, and the long-range forecast models. It doesn’t look like a whole lot of relief going forward.”

Officials with the NJFFS often point to April into early May as being the peak of wildfire season, the result of warm, sunny and dry conditions coinciding with vegetation not having “greened up” or “leafed out,” allowing the hot sun to penetrate the forest floor, or

the fuels such as pine needles.

But given “we have had a prolonged period of dry weather, our fuels are deceptively dry, meaning that even though our vegetation has turned green as we enter into the summer months, because of this dry weather, they are very receptive to fire,” warned Judy June 9 as he and Donnelly looked on at the intensifying smoke plume over the City Line Road Wildfire.

“So, as we get into this long, dry period, we ask that the public help us out by remaining safe and adhere to the regulations and restrictions we put on open burning,” Judy declared. “Please be self-conscious and conscious not to ignite wildfires. Ninety-nine percent of all wildfires here in New Jersey are caused by people. That other 1 percent is caused naturally, by lightning. This past week, we did have one lightning strike fire, which occurred in Medford Township.”

(The Medford fire Judy was referencing is one that burned 210 acres in the area of Elderberry Drive and Jackson roads in Medford. It broke out just after midnight on June 3, following an isolated cluster of thunderstorms passing through that part of the county, and at one point threatened 40 homes.)

Donnelly pointed out that a person found responsible for an “accidental wildfire” as a result of careless actions could face up to a $100,000 fine along with having to reimburse the costs to suppress the fire, while anyone who intentionally sets a fire will be charged with arson, face up to a $500,000 fine, all in addition to having to reimburse the costs to suppress the fire.

Saturday, June 17, 2023 AD HOTLINE: (609) 801-2392 or SALES@PINEBARRENSTRIBUNE.COM MARKETPLACE ♦ Page 13
CA
Photo By New Jersey Department of Environmental Protection A view of the Buzby Boggs Wildfire, which came close to a rural road in Evesham Township. Photo By Douglas D. Melegari Division Forest Fire Warden Shawn Judy, at a June 9 press conference, says a prolonged period of dry weather has resulted in fuels that are deceptively dry.
Page 14 ♦ BUSINESS DIRECTORY WWW.PINEBARRENSTRIBUNE.COM Saturday, June 17, 2023 ELECTRICAL/SOLAR NJ ELEC LIC. #17352 NJ HIC LIC. #13VH06386900 PA HIC LIC. #PA103855 • Sales • Service • Installation JEFF PEREZ Owner/Operator 2127 Suite D, Route 206, Southampton,NJ08088 tel: 609 • 801 • 2420 Email: jperez@paradise-solar-energy.com www.paradisesolarllc.com BUSINESS & SERVICE DIRECTORY Local ELECTRICAL Phone (609) 859-2424 License HIC 13VH00274200 NJ State License #8759 Fax(609) 859-0941 Cell (609) 820-0292 Joseph Scialabbo Sr Licensed Master Electrician Joseph.S@Shamrock-Inc.com www.shamrock-inc.com 143 RedLion Rd P.O. Box2537 Vincentown, NJ 08088 SHAMROCK INC. Heating &Air Conditioning PEST CONTROL 1603 Route 206, Tabernacle,NJ08088 BATHTUBREFINISHING Free Estimates •Fully Insured Commercial/Residential •10% Senior and Veteran Discouunt • Tuband Tile Glazing • Countert r op Refinishing Ma king Old Tubs Lo ok New! Call Jorge609-752-2308• Emailquilesqualitytubs@yahoo.com NJ Lic.#0450332322 Over 10 Years Experience Quiles Quality Tubs SINCE 1989 Whole House Generators Backhoe & Bucket Truck Service A+ BBB Rating • FREE Estimates www.bearelectricco.com COMMERCIAL & RESIDENTIAL RUSS HUBSCHMAN OWNE 609-894-9014 ELECTRICAL AUTOMOTIVE LANDSCAPING Lawn Cutting, Fer tilization & Bed Mainten ance Landscape, Shru b & Tree Inst allation “We Provide a View for You to Come Home To” Office: 609-268-1211 • Text: 856-297-5200 Em ail: classic@m ygogreen com • www MyGoGreen com NJ Lic. 13VHO1135600 Pest Lic. 98445A In Business Over 25 Years Credit Cards Accepted redit rds A pted PAINTING • Garage Floors and More! Decorative Concrete Floor Coatings • Concrete Grinding and Surface Preparation www.we coa tco nc ret e. co m Want to talk now? ...Call me at 866 .654 .480 0 CONCRETE FLOOR COATINGS MASONRY MASONRY AND CONCRETE REPAIRS •Brick •Block•Stucco •Stone •Concrete Since 1975 Call 856-268-7013 No JobToo Small! POWER WASHING 609-859-1633 609-654-7651 609-868-1178 Ser ving All Areas Remove mold, grime, dust and dirt from houses, buildings, decks and concrete surfaces. Fully Insured NJ Lic 13VH08130600 MATT NOBLE POWER WASHING 47 Years’ Experience (Cell) C A L L N OW T O S C H E D U L E CAL LN TO SCH EDU LE Y O U R A P P O I N T M E N T! YOU RA PPO INT MEN P O W E R W A S H I N G PO WER WA SHI NG Wash Away the Pollen POWER WASHING L i c e n s e d a n d I n s u r e d ro alpo er ashingllc@ ahoo com ro alpo er ash.net 6 0 9 - 4 2 4 - 6 2 9 2 60 9- 424 -6 292 PET SERVICES Phone: (609) 535-5201 •Fax: (609) 535-5202 Email: bbpetsalon@yahoo.com 125 Red Lion Road Southampton, NJ 08088 Please don’t hesitate to call for more information: (609) 228-5750 or www.kitapplegatelaw.com LAW OFFICE OF KIT APPLEGATE (609) 228-5750 S ATTORNEY AUTOMOTIVE 856-916-7829 HNAVARRO@STAYFRESHMAD.COM WWW.STAYFRESHMAD.COM

the discussions were. The court has to rely on the transcript, and the factual basis as to whether you are pleading guilty or not guilty to the charge.”

Tarantino also noted his review did not find that Shimberg said “‘this is a continuing violation from April 5 to whatever,” on the record, as well as did not find that he specifically asked the defendant if “‘you agree this was a continuing violation.’”

“It is very, very skimpy,” said Tarantino of the pleas that had been entered into the record by Carns. “And the most significant part is that it did not include the knowledge that this was a continuing violation. If the case was tried, it would have been very clear that the state’s position was that it was a

continuing violation.”

The court, he added, “can’t guess” that the defendant was “knowingly aware” she was pleading guilty to “a continuing violation.”

“In fact, the court agrees the defendant was rather surprised by the sentence, and we know that any ambiguity has to be resolved in favor of the defendant in any quasi-criminal or criminal matter. The court will find this guilty plea and conviction is not of a continuing nature.”

However, in light of the guilty pleas still standing, Tarantino said the “court will impose fines of $1,000, plus court costs, in each of the summonses.”

The Superior Court decision, it was noted by Tarantino, could be appealed at the Appellate Court level (see separate story).

While an audio tape of the May 31 Superior Court proceedings, obtained by this newspaper on June 6, was quite revealing, a signed court order from Tarantino, also

obtained by this newspaper, notably did not make any mention of the action taken to reduce the fine from what was prescribed by Shimberg, or give the basis for that decision (one would have had to compare the fines on Tarantino’s order to that of the ones listed on Shimberg’s decision).

Rather, Tarantino identified his court order as one “finding defendant guilty on De Novo Review” and that “upon De Novo review, the court finds the defendant GUILITY of Medford LDO (Land Development Ordinance) Section 501(c), more than one commercial vehicle owned or used by the resident in the residential zone.”

“Defendant must pay a fine of $1,000 and $33 in court fees,” the document continues. “The defendant is also GUILTY of Medford LDO Section 100.1, failure to obtain zoning permit prior to any use. Defendant must pay a fine of $1,000 and $33 in court fees.

Defendant must arrange a payment plan with

the Medford Township Municipal Court.”

This newspaper first learned of the sentencing appeal having been apparently granted through a statement Brian Carns, one of Carolyn Carns’ sons, posted on Facebook following the Superior Court decision.

“The Carns Family would like to thank Burlington County for reducing our mother’s fine from $10,000 to $2,000 ... ,” Brian Carns wrote. “We appreciate you guys stepping in and protecting our family farm and our Mom, Carolyn Carns, from these vicious members in our community that clearly lost their way. It is a huge win for us and a big loss for you Chuck Watson … Also special thanks to our lawyer Dan Rosenberg. You Rock!” Tarantino, after issuing his ruling, asked Koutsouris if he had anything additional that he would like to say, with the Medford prosecutor replying, “No judge, thank you – thank you for your courtesies.”

“I know you mentioned ‘tightening up,’ and it may have been mentioned in discussions, but we are easing restrictions,” the Medford mayor maintained, to which Canavan responded, “that’s great.”

Prime clarified that the only action being

taken June 7 is that “someone just working from home is exempt from the ordinance,” or having to get planning board approval, and that “if you don’t need to have a sign, if you don’t see people at the business, if you don’t park people other than yourself and no business equipment visible, we will just give a zoning permit” after a fee of around $100 is paid.

“But why would someone need to get a permit if they are working at their home, virtually?” asked Symons, to which the Medford solicitor

replied, “They don’t need a permit – but if you need proof for a company, or the state, that the address is that address, you can get a permit.”

Despite the extensive history behind the Carns saga playing out in Medford, at the preceding May 16 council session, Prime quipped at one point, “I am not sure why this gentleman even asked” about home occupation/ work from home requirements, “but there is enough of a question I thought to amend the ordinance,” noting “ordinarily I would handle

this by interpretation.”

Brian Carns, a sibling of Carolyn Carns, later quipped it is because “you guys are always looking up our address,” with Prime, during the deliberations, at one point quipping to Canavan, “But all of us work from home, and it seems to me that is what you are doing. Now that your business address is that address, unlike some other activities like someone may accuse someone of doing at the address, you are fine.”

Saturday, June 17, 2023 AD HOTLINE: (609) 801-2392 or SALES@ PINEBARRENSTRIBUNE.COM BUSINESS DIRECTORY ♦ Page 15
PUBLIC ADJUSTERS Personaliz ed ser vice forhomeownersclaims: Joseph R. Moore Jr.Public Adjusters, LLC 609-330-2292 FIRE •SMOKE • IND •WATER•FL OD•ETC. MOKE •WIND ATER •FLOOD •ETC. PR OP ER TY DA MA GE? Call JoeFirst! P.O. Box326 Medford, NJ 08055 email: joe@joemoorepublicadjusters.com JoeMoorePublicAdjusters.com ROOFING OFFERING FREE ESTIMATES Has Been in Business For Over 35 Years DIAMOND ROOFING Guaranteed Return Phone Call Within 24 Hours! Owned &Operated By Dave Mikulski Call 609-268-9200 Operates in All of South Jersey Specializing in Roofing and Gutters FREE Estimates •Fully Insured Operates from Sunrise to Sunset Lic.#13H01716900 WE BEAT EVERYWRIT TEN OFFER ASPHALTPAVING CALL NOW forNoMoney Down Financing Options! 609-457-3959 •Roofing •Siding •Gutters •Paving Proud to be Local Women Owned Small Business HIC# 13VH11412400 NM-00497209 ROOFING OFFERING FREE ESTIMATES Has Been in Business For Over 35 Years DIAMOND ROOFING Guaranteed Return Phone Call Within 24 Hours! Owned &Operated By Dave Mikulski Call 609-268-9200 Operates in All of South Jersey Specializing in Roofing and Gutters FREE Estimates •Fully Insured Operates from Sunrise to Sunset Lic.#13H01716900 WE BEAT EVERYWRIT TEN OFFER TOWING BUSINESS & SERVICE DIRECTORY Local N.J. Lic. #NJTC768133 TREE SERVICES WELL SERVICES Keith Abrams Lic# 1283 TREESERVICES Reynolds & Sons Tree Service “Professional Quality Service is a Family Tradition” Landscaping Firewood Serving BurlingtonCounty for33 Years Fully Insured FreeEstimates MedfordArea 609-654-1900 Mt.Laurel 856-234-3453 Pemberton 609-893-9329 Expert Tree Care TREE SERVICES Land Clearing Removals Firewood Rober tH.Griscom FullyInsured NJTC768766 (609) 654-6602 NJ Lic. 13VH0639550 0 P.O. Box311 Medford, N.J.08055 MATRIARCH (Continued from Page 9) COUNCIL (Continued from Page 12)

INTRODUCING CAPITAL HEALTH OB/GYN − BROWNS MILLS

Capital Health OB/GYN – Browns Mills is a comprehensive women’s health practice. After serving women in the Lower Bucks County, PA region for almost 30 years, our team is bringing its trusted obstetric and gynecologic care to women in Browns Mills, NJ.

Our experienced and board certified providers include DRS. ROBERT BERK, NEIL BLUEBOND, GWENDOLYN GRANT, AMY HARVEY

O’KEEFFE, MARK KUHN, and ANNE WALKER. Our team provides women with comprehensive prenatal and obstetrical services, as well as annual women’s health exams, in office hysteroscopy, open and minimally invasive/laparoscopic surgery, cancer screenings, and minor surgical services.

Capital Health OB/GYN – Browns Mills joins Capital Health Medical Group’s extensive network of more than 500 physicians and other advanced care providers who offer primary, specialty and surgical care.

MOST INSURANCES ARE ACCEPTED, INCLUDING TRICARE NOW ACCEPTING NEW PATIENTS

INTRODUCING CAPITAL HEALTH AT DEBORAH – EMERGENCY SERVICES

If you need medical attention and your doctor’s office is unavailable, visit us 24 hours a day, seven days a week at Capital Health at Deborah – Emergency Services.

Located on the Browns Mills campus of Deborah Heart and Lung Center, Capital Health at Deborah Emergency Services is a satellite emergency department that offers ambulance and walk-in patients hassle-free access to top quality care. Physicians and clinical staff at the 10,000 square-foot, 12-room facility provide a wide range of medical services with seamless access to Capital Health and Deborah if additional treatment is necessary.

If you are experiencing signs of a stroke or heart attack, call 911.

Visit

200 Trenton Road, Browns Mills, NJ 08015

Page 16 ♦ LOCAL NEWS / FEATURES WWW.PINEBARRENSTRIBUNE.COM Saturday, June 17, 2023
CAPITAL HEALTH OB/GYN BROWNS MILLS 6 Earlin Avenue, Suite 290, Browns Mills, NJ 08015 capitalhealthobgyn.org/brownsmills
TO MAKE AN APPOINTMENT, CALL 609.537.7200 @capitalhealthnj
capitalhealth.org/deborahSED to learn more. CAPITAL HEALTH AT DEBORAH – EMERGENCY SERVICES

Turn static files into dynamic content formats.

Create a flipbook
Issuu converts static files into: digital portfolios, online yearbooks, online catalogs, digital photo albums and more. Sign up and create your flipbook.