PORTFOLIO Racciatti Pilar

![]()

Soy estudiante de 6to año de la carrera de Arquitectura, curiosa, creativa, con gran habilidad comunicativa y un buen desarrollo en el trabajo en equipo. Me caracterizo por ser una persona responsable, detallista y perseverante. Apasionada por el diseño, la espacialidad y la construcción.
Enfocada en el diseño arquitectónico y en la producción visual de proyectos de arquitectura, presento versatilidad para aprender y trabajar en diferentes campos y asumir nuevos retos, buscando constantemente la manera de mejorar y superarme a mi misma.

22/05/2000 - 24 años

EXPERIENCIA LABORAL
PENSAER DESARROLLOS - Aux. de Producto
Rosario - Santa Fe Mayo 2024 - Diciembre 2024
Referencia: 3416413926 - Virginia
-Gestión y propuesta de armado de Showroom de desarrollos
-Propuesta de interiorismo y equipamiento de amenities y espacios comúnes.
-Gestión de paquetes de lanzamiento, avances de obra y entrega de desarrollos
-Coordinación y armado de brochure, plantas, renders y recorridos 360°
-Propuesta proyectual arquitectónica de anteproyectos, fachadas, espacios comúnes, tipología de unidades, cocinas, baño e interiorismo.
PARCO MUEBLES
Arq. Maria Fernanda Armanino, Rosario - Santa Fe Agosto 2023 - Enero 2024
Referencia: 3416936561
-Venta de muebles de diseño propio
-Asistencia en el diseño y la planificación de proyectos de interiores, brindando asesoramiento personalizado
-Gestión de inventarios, manejo de proveedores y coordinación de pedidos
-Supervisión y coordinación de traslados y entregas
-Administración de pagos, manejo de caja, y procesamiento de facturas y remitos
SECR. DE PLANEMIENTO URBANO
Arq. Gervasio Solari - Arq. Lorena Klanjscek, Rosario - Santa Fe (Prácticas) Mayo 2023 - Agosto 2023
Referencia 3416183471
-Relevamiento, replanteo y proyecto de áreas públicas
-Realización de legajo técnico
LEGAJISTA
Arq. Mariana Erausquin, Pergamino - Bs. As
Diciembre 2022 - Febrero 2023
-Visita de obras



-Realización de legajo de obra
-Producción visual de imágenes
+54 2477-694845
pilar.racciatti@gmail.com
Rosario, Santa Fe
ATENCIÓN AL CLIENTE
Libreria Copilibro, Pergamino - Bs. As
Marzo 2021 - Diciembre 2021
-Encargada de caja
-Carga de remitos y facturas
-Cierre de caja
-Asesoramiento personal
-Community Managger
-Atencion al público

EDUCACIÓN
UNIVERSIDAD
Facultad de Arquitectura, Planeamiento y Diseño - UNR
2018 - Actualidad
Porcentaje de aprobación 96.77 %
SECUNDARIO
Colegio Nuestra Señor del Huerto - Pergamino, Bs As Bachiller en Humanidades
Año de finalización : 2017

CURSOS Y CERTIFICACIÓNES
CURSO DE DECORACIÓN Y DISEÑO DE INTERIORES
Diseño de Interiores - Nivel 1 (En curso)
Idilica Deco - Certificación de UTN
CERTIFIACIÓN SOBRE ACCIÓNES Y ESTRATEGIAS DE MITIGACIÓN FRENTE AL CAMBIO CLIMÁTICO
Secr. de Planeamiento de la Municipalidad de Rosario (2023)
CURSO POSTPRODUCCIÓN DE PLANIMETRÍA ARQ EN PHOTOSHOP
Domestika (2022)
CURSO DE DISEÑO DE INTERIORES
Arq. Constanza Delgado (2020)
CURSO DE DISEÑO DE INTERIORES DE ESPACIOS MULTIFUNCIONALES
DecoEstuido (2020)
CURSO DE LUMION
SideView (2020)
CURSO DE SKETCHUP
Domestika (2020)
CURSO DE ILLUSTRATOR

PARTICIPACIÓNES ACADÉMICAS

WORKSHOP ES.C.A.LA - Fapyd - UNR (2022)

WORKSHOP PRAXIS - Fapyd - UNR (2023) - Fapyd - UNR (2022)
CONGRESO AROZTEGUI - Fapyd - UNR (2022)
CONGRESO ABVP + 50 - Santa Fe - UNL (2022)
WORKSHOP 5 TALLERES Fapyd - UNR (2023)
DISEÑO BIOCLIMATICO Y SOSTENIBLE - Fapyd - UNR (2022) EL ESPACIO DEL COLOR
ESTRATEGIAS PROYECTUALES DE LA ARQUITECTURA
DEPORTIVA - Fapyd - UNR (2022)
SOFTWARE









IDIOMAS
INGLES
Nivel Intermedio








01
Construyendo el pasiaje
-Cátedra: Arq. Gustavo Carabajal
-Ubiación: Rosario, Santa fe
-Superficie: 130Ha
-Año: 2023 (6to año)
Trabajo complementario al programa de la materia
02 03 04 05
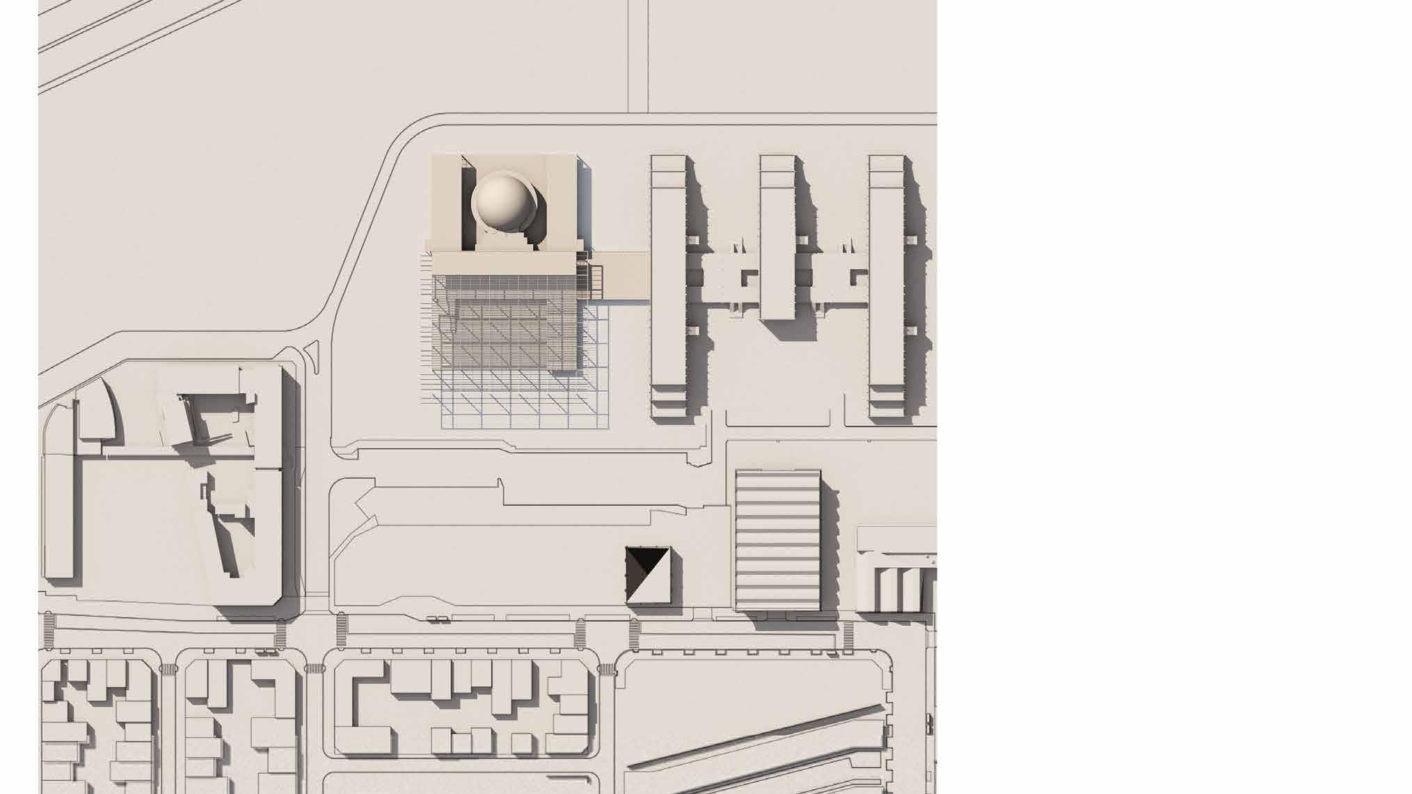
Enclave 4 manzanas
-Cátedra: Arq. Gustavo Carabajal
-Ubiación: Rosario, Santa fe
-Superficie: 50.000m2
-Año: 2022 (5to año)
Habitar colectivo contemporàneo
-Cátedra: Arq. Gustavo Carabajal
-Ubiación: Rosario, Santa fe
-Superficie: 6.000m2
-Año: 2021 (4to año)
Ampliaciòn CAU
-Cátedra: Arq. Gustavo Carabajal
-Ubiación: Rosario, Santa fe
-Superficie: 7.000m2
-Año: 2021 (4to año)
Complejo de viviendas Pichincha
-Cátedra: Arq. Juan Manuel Rois
-Ubiación: Rosario, Santa fe
-Superficie: 10.000m2
-Año: 2020 (3er año)
-Programa: Esparcimiento, àrea inundable, reserva, recreaciòn
Sobre el proyecto
La propuesta atiende a una necesidad de contemplar el paisaje al tiempo que se piensa la arquitectura.
Si bien se tratò de un ejercicio por fuera del programa de la materia, no deja de ser de suma importancia. Esta idea contempla diferentes actividades que pueden relizarse dentro de un espacio de reserva, donde por momentos el àrea se inunda y ofrece otro tipo de paisaje, luego existen espacios contemplativos y otros de movimiento, siempre preservando la fauna y flora nativa.
(Cabe aclarar que solo se podìa utilizar la tècnica del collage para representar las imàgenes)







-Programa: Museo, Oficinas administrativas, vivienda colectiva, esparcimiento.
La propuesta arquitectónica da respuesta a una demanda habitacional en crecimiento. Partiendo de un sitio estratégico para la ciudad, se ofrece un proyecto que articule múltiples usos concentrados en un enclave de 4 manzanas.
Su organización plantea una continuidad con los usos de carácter más público hacia la avenida principal, ofreciendo una amplia plaza seca para encuentros multitudinarios que continúa desde el Parque Independencia que se vincula con el museo. Dejando a sus espaldas el conjunto de viviendas que se adaptan a la forma de la manzana y a su vez ofrecen un gran sitio verde de esparcimiento.






















-Programa: Comercios, Oficinas administrativas, vivienda colectiva, esparcimiento.
Sobre el proyecto
El proyecto supone plantear un complejo de viviendas en el centro de la ciudad de Rosario, que incluya diversos usos que se adaptan a las necesidades del entorno y las personas que lo habitan.
Teniendo en cuenta las caracterìsticas planteadas se proyectaron dos torres de viviendas excentas, mientras que ubica un paseo comercial en planta baja que atraviesa la manzana de lado a lado, y dos placas enchapadas de uso administrativo. Esta resolución da respuesta a una nueva forma de habitar, donde los usos se mezclan, las distancias son más cortas y se plantea una nueva tipología de vivienda.










-Programa: Aula magna, bar, sala de lectura, esparcimiento
Sobre el proyecto
El proyecto se plantea como un nuevo programa dentro del campus universitario el cual ofrece un uso colectivo, dejando de lado que cada carrera tenga su propio edificio asilado de los demás, para proyectar uno nuevo que integre todos los usos y facultades.
La obra está organizada en torno al aula magna, que es el volúmen principal el cual ordena el resto de la composición, organizando los espacios al rededor de ella, en forma de U. Atravesados por una cinta que actúa de terraza y corredor que comunica con el edificio vecino.
El espacio de ingreso, es un gran espacio diáfano que actúa de distribuidor hacia los demás usos, dejando lo más privado que requiere concentración y tranquilidad, en relación a la ribera.










-Programa: Vivienda, comercio, esparcimiento
Sobre el proyecto
La propuesta se encuentra ubicada en el barrio Pichincha, una zona en pleno auge de la ciudad, donde se encuentran numerosas propuestas gastronómicas y actividades colectivas.
Esta obra ofrece un amplio conjunto de viviendas aterrazdas, que se yuxtaponen para formar un recorrido guiado en caracol, el cual está atravesado por patios internos.
Esta nueva forma de habitar rompe con los lineamientos tradicionales, para darle un nuevo carácter al conjunto colectivo y a la idea de vivir en la privacidad de tu hogar, compartiendo espacios de esparcimiento.







Este trabajo se trata de una remodelaciòn, en la cual espacio íntimo y acogedor, desde la Dado el pequeño espacio disponible, se decidiò la ofreciendo una experiencia màs privada y cómoda,

cual me enfoque, junto al pedido del cliente, en crear un eleccion de materiales hasta el diseño. separación estratégica entre ducha/inodoro y lavabo, cómoda, manteniendo un diseño moderno y funcional.








En este proyecto, el desafío era transformar un monoambiente en un espacio funcional y acogedor para alquiler temporal. La clave fue reimaginar el espacio desde la luz y la integración, priorizando tanto la estética como la practicidad. Un divisor de vidrio permitió separar ambientes sin comprometer la luminosidad, creando una sensación de amplitud y continuidad visual. Se diseñó un mueble a medida que conecta las distintas áreas: un sistema versátil que funciona como placard, soporte para TV, b arra comedor y mesa de cocina. Los tonos neutros aportan serenidad, mientras que los acentos en amarillo mostaza brindan personalida d. El resultado es un espacio pensado para durar, donde cada detalle suma funcionalidad y diseño



Este proyecto consistió en rediseñar una habitación pequeña que se adapta a las necesidades de una pareja joven. El diseño de trabajo cómodo para la oficina en casa
Se incorporó un escritorio en L que optimiza la circulación y funciona como sofá cuando no hay visitas, aporta versatilidad mientras que el escritorio en verde seco añade carácter y frescura. varillado de madera, logrando un ambiente cálido,

pequeña sin uso para convertirla en un espacio multifuncional diseño combina funcionalidad y estética, creando un lugar casa y una habitación de invitados. maximiza el área disponible. Una cama individual, que versatilidad al espacio. Los colores neutros generan equilibrio, frescura. La pared principal se intervino con un mural y cálido, moderno y con un toque de personalidad.




En este trabajo se diseñó una fachada que busca modernizar la estética del conjunto a través de un juego de volúmenes que organ iza el sistema. El cuerpo correspondiente al ingreso vehicular se posiciona de manera predominante hacia la calle, otorgándole mas comunicación a la mism a y reforzando su funcionalidad. En contraste, el ingreso peatonal se retrae, creando una transición más íntima y acogedora. Este acceso se enmarca con una cinta blanca continua que conecta visualmente el alero y un cantero lineal, unificando los elementos y generando una composición armónica. Esta estrategi a no solo organiza los espacios, sino que también realiza la percepción del ingreso, otorgándole identidad y jerarquía dentro.


