PORTFOLIO PILAR MATE SANJUAN (ENGLISH)

Page 1


Architect

July 5th, 2000

Madrid, Spain

Selected works 2018-2024

PILAR MATÉ SANJUÁN PORTFOLIO

NET

“A city that extends onto the water.”

Fort San Pedro. IloIlo, Philipppines.

UNIT SORIANO

-..With Iloilo´s Technology University.

“Musical school program along the river.” Riviera del Manzanares. Madrid, Spain. UNIT GARRIDO.

MEDINE ET TANERIE

“Three projects: desert, medine et tanerie.” Morocco.

UNIT MORELL

GOOD USE, LIVING

“Communal prefabricated housing.”

Previ. Lima, Perú UNIT RIBOT

WATERLANDSCAPE

“A landscape approach to Hangzhou´s issues.” Hangzhou. Zhejiang, China - ..With Zhejiang University (ZJU).

SITOPÍA

ivestock, cheese and divulga�ve spaces . Navalcarnero. Comunidad de Madrid, Spain. JORGE TÁRRAGO MINGO

FLOWERPOT

“Ecologic housing. Architectural design I.” UNIT ULARGÜI

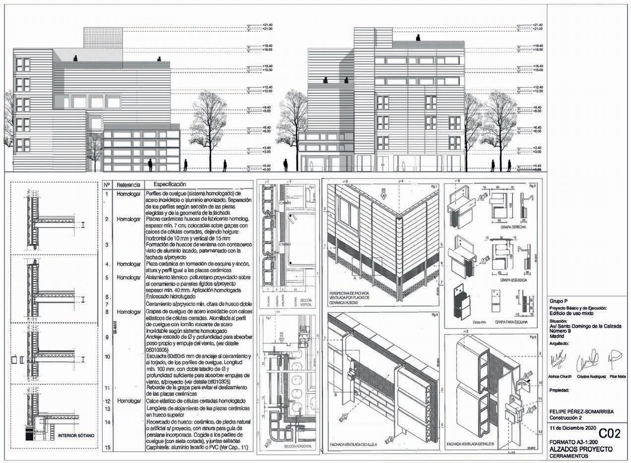
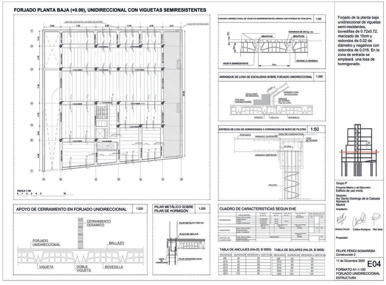
CONSTRUCTION II

er�cal housing, mixed construc�ve methods. Las Tablas. Madrid, Spain.

.. ith Ainhoa hurch ris�na odriguez

CREATIVE EXPLORATION

Photography, ilustra�ons and more. Instagram account: @artesthem partnership account: @matecousteau

Fort San Pedro, IloIlo. Philippines

*GROUP PROJECT WITH RADHA KUNCHEV AND PIETRO ANSELMI

Architectural design VIII spring 2022

the city from catastrophes and create a new economic system based on the

1 barrier against tsunamis and other natural catastrophes.

2-A Dive Center that seeks to reconnect the people of Iloilo with the water and promote cleanliness and knowledge of the marine world.

3-A school center to combat the high illiteracy rate and promote

Fort San Pedro, IloIlo. Philippines

**WITH HONORS

Fort San Pedro, IloIlo. Philippines **WITH HONORS

DESERT

Merzouga desert. Sahara, Morocco.

Architectural design VII spring 2022

source of spirituality, is the common theme in the projects. necessity and a spiritual element. The design is organized around Nor-

The second project, "La puerta de Fez" centers on the entrance to the and a spiritual end.

The third project establishes a tea house in the Chouara tanneries, linking the process of leather tanning with the Moroccan ritual of tea making. The -

MEDINE ET TANERIE

**WITH HONORS

Chouara Tanneries. Fez, Morocco.

Architectural design III autumn 2020

Do we live or just inhabit?

hip lacking any community spirit, giving way to the technological unit, clearly

the beauty and what gave it meaning. It was constantly changing, constantly evolving. Now that we know it, we can take advantage of this to move

Thus, a way of living is proposed for the use of the community, juxtaposing living with supply through a hierarchy of uses. **WITH HONORS

Previ. Lima, Perú

**WITH HONORS

**WITH HONORS

Previ. Lima, Perú

Architectural design V spring 2021 part.

It is clear that we depend on nature, which is why the most obvious thing to do is to delve into it and start working hand by hand, towards a

Architecture is understood as a support for life, it allows to be colonised one to generate a sonorous background of calm and tranquillity, which helps

Soundscapes that inspire us are created; behind each landscape, sounds and the seasons, this harmonious sound merges with the music and becomes the thread of life through architecture.

Hangzhou. Zhejiang, China.

spring 2022

Milan, involving students from exchange programs. In a strategic partners-

insights and experiences. This intercultural and academic synergy was crucial in addressing the unique challenges of Hangzhou.

Hangzhou, the capital of Zhejiang Province in China, is a city of historical importance and contemporary vitality. Known for the Grand Canal and the

versity. Beyond its rich history, Hangzhou is a thriving center for economics,

management and residents' well-being.

Navalcarnero, Comunidad de Madrid. España

Master's Thesis Project in Architecture Autumn 2023- Ongoing

Situated in Navalcarnero, the project aims to recover a silo for an experimental agro-livestock initiative, emphasizing the historical city-countryside connection. Beginning with a focus on extending the city fabric to the site, the proposal respects the existing, reivindicating the silo as a monument that constrasts with spontaneous vegetation. This leads to the identification and consolidation of traces and improvised paths on the site as the silo stands out creating synergies crucial to the ideation process.

Early insights include utilizing existing elements, introducing a public park concept, incorporating filters for visual continuity, program fragmentation, and reactivating local fauna and flora. The pursuit of a sustainable project in harmony with the environment leads to a clearly disassembled model, emphasizing scenes and itineraries exploring the site and discovering landscapes.

This approach involves an in-depth study of programs, quantifying spaces, and determining user proximities.

Ecologic neighbourhood

Architectural design I spring 2018

The program is solved in plan with a wide wall that collects all the server spaces. The served space consists of a large diaphanous room, with some more privacy.

rior streets, while the roofs are coupled together following a scheme of

rchive r werpot **WITH HONORS

the methods covered in class. As a result of all the hard work, we received the highest grade in the class.

ALZADOS NORTE-SUR
ALZADOS ESTE-OESTE
@artesthem
@matecousteau
@matecousteau

Turn static files into dynamic content formats.

Create a flipbook
Issuu converts static files into: digital portfolios, online yearbooks, online catalogs, digital photo albums and more. Sign up and create your flipbook.
PORTFOLIO PILAR MATE SANJUAN (ENGLISH) by pilar mate sanjuan - Issuu