台科大建築研究所-建築環境特論論文

Page 1

國立台灣科技大學 建築研究所 建築環境特論論文 金門縣古城國小附設幼兒園之碳足跡評估應用 指導教授:鄭政利 博士 研究生:李尉綸 中華民國一一一年十二月
目次
4-1 加裝太陽能光電板 4-2 基地內造林 4-3 自我舉證減碳結果 30 31 31 第四章、自我舉證減碳策略 第五章、 減碳評估總結果 第六章、 結論與建議 ....................................................... .......................................................... ................................................ ........................................................... ..................................................... ................................................... ..................................................... ..... ................................................ .......................................................... ............................................................... ...............................................................
1-1 評估動機與目的 1-2 評估案例簡介 1-3 案例圖面 1-4 評估方法 01 01 02 04 05 07 19 第一章、前言 2-1 評估總表 2-2 各項評估結果分析 2-3 碳足跡評估總結 第二章、軟體評估分析 3-1 木構造工法比較與選擇 3-2 CLT版片設計 3-3 結構轉換設計 3-4 建築使用階段減碳措施 3-5 設計前後差異比較 3-6 更改設計後減碳結果 20 20 23 24 25 26 第三章、更改設計減碳策略

圖1-2-1 古城國小附設幼兒園渲染圖

圖1-3-1 全區配置圖

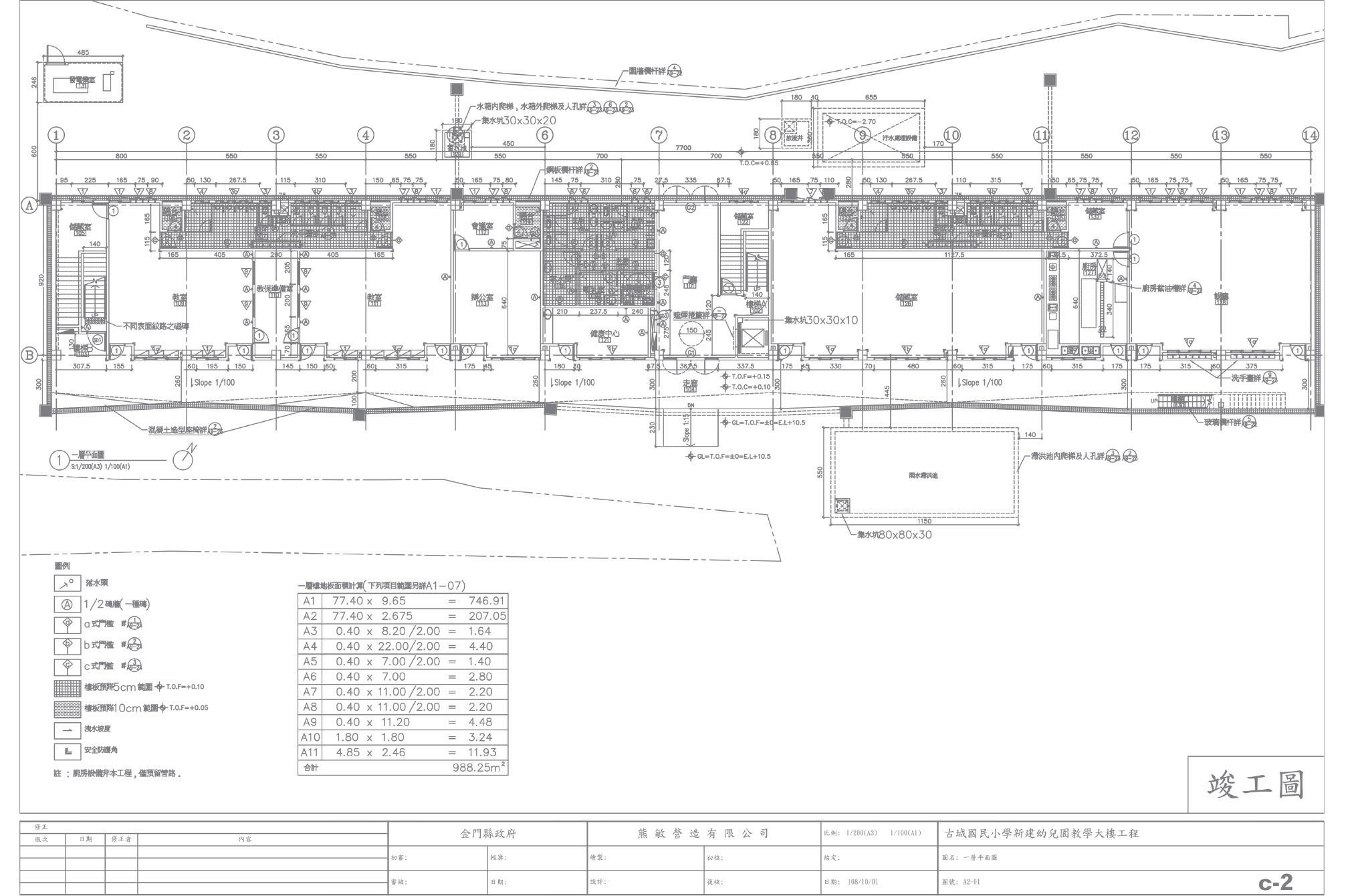
圖1-3-2 一樓平面圖

圖1-3-3 二樓平面圖

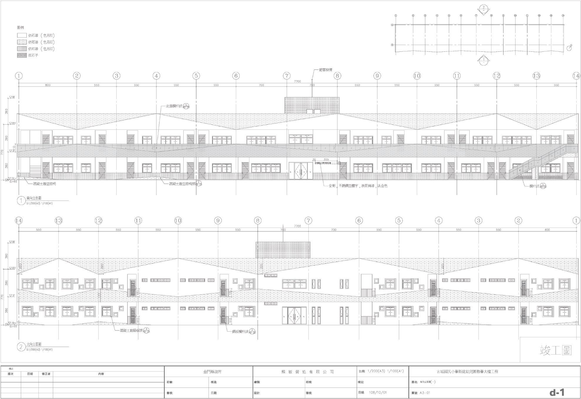
圖1-3-4 南向立面圖

圖1-3-5 建築物等角拆解圖

圖1-4-1 REVIT建築模型

圖1-4-2 台達建築碳足跡評估軟體LCBA-Delta

圖2-1-1 碳足跡各項碳排放量圓餅圖

圖2-1-2 無施做空調設備切結書

圖2-1-3 碳足跡各項碳排放量直條圖

圖2-2-1 新 建 工 程 資 材 ( C F m )各項碳排放量佔(TCF)比例直條圖

圖2-2-2 建築主結構模型

圖2-2-3 與工業區距離(A1)

圖2-2-4 與海岸線距離(A2)

圖2-2-5 建築物FL1內隔間牆

圖2-2-6 建築物內隔間牆分佈等角圖

圖2-2-7 營建施工之總碳排( C F c )各項碳排放量佔(TCF)比例直條圖

圖2-2-8 修繕更新工程資材總碳排( C F r m )各項碳排放量直條圖

圖3-2-2 直交積層材(CLT)

圖3-2-3 CLT預製尺寸設計圖

圖3-2-4 CLT二樓樓版設計圖

圖3-2-5 本建案二樓平面圖

圖3-3-1 結構轉換後一樓平面圖

圖次 .................................................
............................................ ............................................................. ............................................................. ...................................................... ................. ........................................................ ..................................................... .................................................... ............................................ ................. ...................................................... ................................................. 01 02 02 02 02 03 04 04 06 06 06 07 08 10 10 11 11 13 17 20 22 22 22 23 23 23 23 25 25
圖3-3-2 本建案原始一樓平面圖 圖3-3-3 結構轉換前後差異比較 圖3-3-4 結構轉換後南向立面圖 圖3-5-1 原建築物等角拆解圖 圖3-5-2 結構轉換後等角拆解圖

圖3-5-3 結構轉換後渲染效果圖

圖4-1-1 建築物加設太陽能光電板後渲染圖

基地內造林配置圖

表2-1-1 LCBA-Delta 碳足跡評估總表

表2-1-2 碳足跡各項碳排放量

表次

表2-2-1 新 建 工 程 資 材 ( C F m )各項碳排放量

表2-2-2 基 礎 假 設 工 程 資 材之 總 碳 排 ( C F f w )

表2-2-3 建築各項主結構數量

表2-2-4 建 築 軀 體 工 程 資 材之 總 碳 排 ( C F b )各項碳排放量

表2-2-5 建 築 軀 體 工 程 資 材之 總 碳 排 ( C F b )各項碳排放量

表2-2-6 營建施工之總碳排( C F c )各項碳排放量

表2-2-7 建築使用階段耗能總碳排( C F e u )各項碳排放量

表2-2-8 修繕更新工程資材總碳排( C F r m )各項碳排放量

表2-2-9 拆除及廢棄物處理之總碳排( C F d w )各項碳排放量

表2-3-1 本案碳排放超標主要因素

表2-3-2 本案無自我舉證減碳量( C F o )與空調碳足跡(CFa)

表3-2-1 CLT厚度標示表

表3-2-2 CLT厚度設計表

表3-2-3 活載重設計規範

表3-6-1 更改構造前後各項評估係數差異表

表3-6-2 LCBA-Delta更改設計後評估總表

表3-6-3 更改設計後碳足跡各項碳排放量

表3-6-4 原建築(RC)60年與(CLT)30年比較表

表3-6-5 (RC)30年與(CLT)30年比較表

表4-2-2 自我舉證減碳量( C F o )總減碳量

表5-1 LCBA-Delta 最終評估總表

原建築與最終減碳總結果比較表

圖次
..........................................
05 05 07 08 08 09 12 13 14 16 18 19 19 21 21 21 26 27 27 28 28 31 32 32
表5-2
................................. ......................... ......................... ...................... ......................................................... ........................................................ ..................................... .................................... ........................................
........................................... ....................................................
25 30 31
圖4-2-1
................................................. ......................................................
金門縣古城國小附設幼兒園之碳足跡評估應用 01 第一章、 前言 1-1 評估動機與目的 現今科學研究已證實氣候變遷造成的影響相當緊急,氣候議題引發國際高度重視,歐 盟已經將2030減碳55%設定為近期目標,而臺灣也在提出「2050淨零碳排路徑」。 建築產業是製造碳排放的主因,佔比高達35%,因此我們必須提出評估政策,將建築 生命週期之「建造階段」降低碳排放量或使用固碳材料,在「使用階段」減少能源消耗, 達到近零甚至是零碳排的標準,建築是人類與環境之間溝通的載體,如何因應變化讓建築 不再是製造碳排的主因已是產業發展的目標。 1-2 評估案例簡介 案例:金門縣古城國小附設幼兒園 基地位置:金門縣金城鎮大古崗100號 建築師:陳昆豐 建築構造:鋼筋混凝土 內牆構造:全部採用鋼筋混凝土
建築物類型:學校類建築 圖1-2-1 古城國小附設幼兒園渲染圖/本研究繪製 基地面積:3113.64平方公尺 建築面積:988.25平方公尺 建蔽率:27.96% 建築總樓地板面積:1996.57平方公尺 建築樓層數:地上2層,無地下空間 綠建築評估等級:合格級
N 1-3 案例圖面 圖1-3-4 南向立面圖/評定書提供 02 金門縣古城國小附設幼兒園之碳足跡評估應用
03 金門縣古城國小附設幼兒園之碳足跡評估應用
1.一樓主要空間: 教室兩間、教保準備室、辦公室、會議室、圖書儲藏室、健康中心、餐廳廚房、門廳。 2.二樓主要空間: 教室三間、教保準備室兩間、辦公室兩間、多功能活動教室。 3.地下: 獨立基礎,本案無地下空間。 二樓(FL2) 屋頂層(RFL) 一樓(FL1) 基礎 圖1-3-5 建築物等角拆解圖/本研究繪製
1-4 評估方法 評估流程: 1.REVIT模型建置進行面積計算與檢討 2.使用台達建築碳足跡評估軟體LCBA-Delta「設計評估系統BCFd」評估建築碳排量 3.取得Excel表單數據後提出結論 4.針對結論提出改善建議 建築生命週期碳足跡計算式: TCF = 新建工程CFm + 營建施工CFc + 建築使用CFeu + 修繕維護CFrm + 拆除廢棄CFdw - 自薦減碳技術CFo 圖1-4-1 REVIT建築模型/本研究建製 圖1-4-2 台達建築碳足跡評估軟體LCBA-Delta 04 金門縣古城國小附設幼兒園之碳足跡評估應用

第二章、 軟體評估分析

2-1 評估總表

藉由碳足跡評估軟體得到表2-1-1,建築物總碳排放量為(TCF)=3818220.1KgCO2e,基

準案取值(TCF')=4041624.3KgCO2e,建築物年均碳排量(CFI)=31.87kgCO2e/m2.yr,基準 案取值(CFI')=33.74kgCO2e/m2.yr,整體碳排低於基準案取值5.53%,經分級認證等級判 定該建築為合格級(5%×γ<DCF≦10%×γ)。

案件名稱

建築分類

金門縣古城小學附設幼兒園 D3-學校類建築

樓層高修正係數(a1) = 0.99 平均耗電強度修正係數(a2) = 1.0 非中央空調型空間優惠係數(a3) = 0.7

設計案總碳足跡(TCF) = 3818220.1(KgCO2e)

基準案總碳足跡(TCF') = 4041624.3(KgCO2e)

設計案碳足跡指標(CFI) = 31.87(kgCO2e/m2.yr)

基準案碳足跡指標(CFI') = 33.74(kgCO2e/m2.yr)

總樓地板面積AF 構造形式

1996m2 RC

分級修正係數(Y) = 0.69

生命週期減碳(LCr) = 1.25 自我舉證減碳量(CFo) = 0

減碳百分比(DCF) = -5.53% 分級認證等級 = 合格級 / 5%×γ<DCF≦10%×γ 4 , 0 4 1 , 6 2 4 . 3 3 ,8 1 8 , 2 2 0 . 1 -5 . 5 3 %

表2-1-1 LCBA-Delta 碳足跡評估總表

表2-1-2 碳足跡各項碳排放量

準案總碳排量百分比 1 , 1 6 1 , 5 2 3 . 6 1 7 , 4 1 4 5 2 , 1 0 4 , 9 9 4 4 6 2 5 , 3 1 3 0 1 3 2 , 3 7 8 9 0 1 , 2 4 1 , 9 6 1 . 7 1 8 , 4 3 4 7 1 , 8 1 0 , 3 2 6 4 5 88 , 9 2 5 7 1 5 8 , 5 7 1 5 0 +1 . 9 9 % +0 . 0 3 % - 7 2 9 % - 0 9 0 % +0 6 5 % ±0 0 0 % 工項分項 新建工程資材之總碳排( C F m ) 營建施工之總碳排( C F c ) 建築使用階段耗能總碳排( C F e u ) 修繕更新工程資材之總碳排( C F r m ) 拆除及廢棄物處理之總碳排( C F d w ) 自我舉證減碳量( C F o ) 碳排量(KgCO2e) 碳排量(KgCO2e) 設計案總碳足跡(TCF)總計 05 金門縣古城國小附設幼兒園之碳足跡評估應用
基準案 設計案 設計案分項減碳量佔基

藉由圖2-1-1與2-1-3可得知,建築使用階段耗能總碳排( C F e u )為建築生命週期中製造 碳排放量最多,佔總碳排量47.41%,其次依序為新建工程資材之總碳排( C F m )32.53%,修 繕更新工程資材之總碳排( C F r m )15.42%,拆除及廢棄物處理之總碳排( C F d w )4.15%,營建 施工之總碳排( C F c )0.48%。

用階段佔比通常約為7成左右,得知該建築使用階段碳排佔比算少,主要原因在圖2-1-2, 古城國小附設幼兒園綠建築評定書內容提及到,該建築物未施做任何中央空調、獨立空調 設備,所以空調耗能碳排放量為0。 (使用) 47.41% (新建) 32.53% (修繕)15.42% (拆除)4.15% (施工)0.48% 新建工程資材 (CFm) 32.53% 營建施工 (CFc)
建築使用階段 (CFeu) 47.41% 修繕工程資材 (CFrm) 15.42% 拆除及廢棄物處理 (CFdw)
設計案取值 基準案取值 0 00 500,000 00 1 000 000 00 1 500 000 00 2,000,000 00 2,500,000 00
06 金門縣古城國小附設幼兒園之碳足跡評估應用
建築使用階段耗能總碳排( C F e u )佔比47.41%雖然為最多,但相較於其他建築案例之使
0.48%
4.15%
圖2-1-3 碳足跡各項碳排放量直條圖 圖2-1-2 無施做空調設備切結書/評定書提供 圖2-1-1 碳足跡各項碳排放量圓餅圖

1, 241, 961. 74 (KgCO2e)

1, 161, 523 60 (KgCO2e) 154, 572 96 (KgCO2e) 136, 643 93 (KgCO2e)

1, 001, 887 65 (KgCO2e) 939, 378. 54 (KgCO2e) 56, 479. 80 (KgCO2e) 56, 479. 80 (KgCO2e) 29, 021 34 (KgCO2e) 29, 021 34 (KgCO2e)

2-2 各項評估結果分析 1.新建工程資材之總碳排( C F m ) 新建工程碳排( CFm ) = 基礎假設CFfw + 建築軀體CFb + 設備CFe + 室內裝修CFin CFm=CFfw+CFb+CFe+CFin………………………………………………………………………………(式2-2-1)
新 建 工 程 資 材 之 總碳 排 ( C F m ) 基 礎 假 設 工 程 資 材之 總 碳 排 ( C F f w ) 建 築 軀 體 工 程 資 材之 總 碳 排 ( C F b ) 設 備 工 程 資 材 之 總碳 排 ( C F e ) 建 築 室 內 裝 修 資 材之 總 碳 排 ( C F in ) +1.99% +0.44% +1.55% ±0% ±0% 設 計 案 取 值 基 準 案 取 值 設 計 案 取 值 基 準 案 取 值 設 計 案 取 值 基 準 案 取 值 設 計 案 取 值 基 準 案 取 值 設 計 案 取 值 基 準 案 取 值 表2-2-1 新 建 工 程 資 材 ( C F m )各項碳排放量 圖2-2-1 新 建 工 程 資 材 ( C F m )各項碳排放量佔(TCF)比例直條圖 0 00 200,000 00 400 000 00 600,000 00 800,000 00 1,000,000 00 1,200,000 00 基礎建設 工 程 (CFfw) 4.05% 建築軀體工程 ( C F b ) 26.24% 設 備 工 程 ( C F e ) 1.48% 拆除及廢棄物處理 ( C F in ) 0.76% 設計案取值 基準案取值 由表2-2-1與圖2-2-1可得知新建工程資材之總碳排( C F m )之中,建築軀體工程碳排放 佔比最高,佔總碳排放(TCF)26.24%,而此項目也超出基準案取值 1.55%,不僅沒有減 碳還超量碳排放,可見此案例在軀體工程資材設計上非常不合格,要進行改善策略必須先 從此項目進行。 07 金門縣古城國小附設幼兒園之碳足跡評估應用

取 值

超出基準值 154, 572. 96 (KgCO2e) 136, 643. 93 (KgCO2e) +1.13%

假 設 工 程 資 材之
設 工 程
基 礎 假 設 工 程 資 材之 總 碳 排
w ) 計算式
設 計 案
基 準 案
(1) 基 礎 08 (2) 建 築 軀 體 工 程 資 材之 總 碳 排 ( C F b ) CFb=主結構碳排CFs(樓高、樓板面積、地震力公式求得)+Σ六項內外裝碳排(面積x碳 排標準) 由表2-2-4可得知建 築 軀 體 工 程 資 材之 總 碳 排 ( C F b )1, 001, 887. 65 (KgCO2e),超出基 準值9 3 9 , 3 7 8 . 5 4 (KgCO2e) 1.06%,為不及格狀態,其中主結構工程資材碳排量(CFs)與 內隔間牆工程資材之碳排(CFiw)為首要改善目標。 金門縣古城國小附設幼兒園之碳足跡評估應用
總 碳 排 ( C F f w ) 主結構為鋼筋混凝土建構完成,由表2-2-2可得知基 礎 假
資 材之 總 碳 排 ( C F f w ) 154, 572. 96 (KgCO2e),超出基準值136, 643. 93 (KgCO2e) 1.13%,為不及格狀態。
( C F f
CFfw=0.19×CFs 項目 數量:支
表2-2-2 基 礎 假 設 工 程 資 材之 總 碳 排 ( C F f w ) 圖2-2-2 建築主結構模型/本研究建製 表2-2-3 建築各項主結構數量 獨立基礎 28 結構柱 28 大梁 84 小梁 27 懸臂梁 28 繫梁 26

地上樓層數(S)=2

地下樓層數(Sb)=0

1, 001, 887. 65 (KgCO2e) 939, 378. 54 (KgCO2e) +1.06%

813,541.87 (KgCO2e) 719,178.57 (KgCO2e) +13.12%

1,850.34 (KgCO2e) 1,850.34 (KgCO2e) ±0%

(KgCO2e) 51,360.16 (KgCO2e) -375.66%

9,968.29 (KgCO2e) 5,223.31 (KgCO2e) +90.84%

(KgCO2e)

21,758.92 (KgCO2e) 42,696.76 (KgCO2e) -50.96%

43,269.12 (KgCO2e) 42,979.24 (KgCO2e) +0.06%

09 建 築 軀 體 工 程 資 材之 總 碳 排 ( C F b ) 計算式 CFb=CFs+CFcf+CFow+CFw+CFiw+CFf+CFr 超出基準值
設 計 案 取 值 基 準 案 取 值 主結構工程資材碳排量(CFs)
設 計 案 取 值 基 準 案 取 值
設 計 案 取
基 準
設 計 案 取 值 基 準 案 取 值 外窗工程資材之碳排(CFw)
設 計 案 取 值 基
屋頂外裝工程資材之碳排(CFr)
設 計 案 取 值 基 準 案 取 值
設 計 案 取 值 基 準 案 取 值 表2-2-4 建 築 軀 體 工 程 資 材之 總 碳 排 ( C F b )各項碳排放量
地下主結構工程資材(Cb)=0 外牆構造之單位碳排(Cowj)=15公分RC外牆/77.75 內隔間牆單位碳排(Fiwj)=12公分RC隔間牆/81.02 內隔間牆面積(Aij)=1,138.05m2 設計地震力係數(Z)=金門縣金城鎮/0.253 外窗面積(Awj)=239.16m2 外窗玻璃碳排(Fwgj)=8mm強化玻璃/21.84 外窗窗框構造碳排(Fwfj)=鋁框架構造/19.84
鷹架工程資材之碳排(CFcf)
案 取 值 外牆外裝工程資材之碳排(CFow) 19,294.12
準 案 取 值 內隔間牆工程資材之碳排(CFiw) 92,204.97 (KgCO2e) 76,090.16
+21.17% 設 計 案 取 值 基 準 案 取 值 地板內裝工程資材之碳排(CFf)
總樓地板面積(AF)=1,996.57m2 總立面面積(Ae)=2,055.94m2 外牆不含柱樑面積(Aowj)=1471.04m2 構造係數(W)=RC/1.0 高爐混凝土減碳比例(Bc)=0.88 模版面積係數(mi)=學校類建築/3.7 模版單位面積碳排(Fm)=木模板/3.2 鷹架單位碳排(Fcf)=鋼管施工架/0.9 屋頂面積(Ar)=966.26m2 屋頂外裝工程之單位碳排(Fr)=44.78 金門縣古城國小附設幼兒園之碳足跡評估應用
(2)-1 主結構工程資材碳排量(CFs)
×
(2)-2 外窗工程資材之碳排(CFw) CFw=Σ(Fwgj+Fwfj)×Awj ………………………………………………………………………………(式2-2-4) 圖2-2-4 與海岸線距離(A2)/金門縣都計整合網 圖2-2-3 與工業區距離(A1)/金門縣都計整合網 結構工程資材碳排量(CFs)超標之主因可由式2-2-2得知,在進行此項目計算時,最後
CFs=((Cs×W+Cb)×Bc+Cw+Cm)
LCr …………………………………………………………………(式2-2-2) LCr=1.0-(A1+A2+A3+B1+B2+B3+C1+C2) …………………………………………………………………(式2-2-3)
須要乘以生命週期減碳係數(LCr),而LCr基準案取值為1.0,但本案LCr設計案取值為1.25 ,LCr是造成主結構工程碳排量超出基準值主因。
本建案外窗面積(Awj)=239.16,外窗採用8mm強化玻璃與基準案取值相同,窗框使用鋁 框架構造,其單位碳排(Fwfj)設計案取值=19.84,基準案取值=0.0,故外窗工程資材之碳排 (CFw ) 超標主因為使用鋁窗框構造所導致,下階段考慮將窗框構造更換為木製窗框,增加 減碳百分比。 10 金門縣古城國小附設幼兒園之碳足跡評估應用
而LCr超出基準值原因可透過式2-2-3與圖2-2-3、2-2-4得知,經由金門縣都市計畫整 合網測得本建案距離工業區518.1公尺,距工業區1公里以內其空氣汙染(A1)=-0.05,本建 案距離海岸線800.7公尺,距海岸線1公里以內其海水鹽害(A2)=-0.2,本案例Lcr計算式之 中除了空氣汙染(A1)與海水鹽害(A2)以外,其餘值皆為0,最終計算出本案例LCr=1.25
FL1內隔間牆面積=601.3 FL2內隔間牆面積=536.75 圖2-2-6 建築物內隔間牆分佈等角圖/本研究繪製 11 金門縣古城國小附設幼兒園之碳足跡評估應用
(2)-3 內隔間牆工程資材之碳排(CFiw) CFiw=ΣFiwj×Aij……………………………………………………………………………………………(式2-2-5) 本建案之綠建築評定書內容提及到,本案例內隔間牆全數採用RC澆製,故內隔間牆單 位碳排(Fiwj)=12公分RC隔間牆/81.02,隔間牆面積是由REVIT模型進行面積計算得知,內 隔間牆面積(Aij)=1,138.05m2,並透過式2-2-5計算內隔間牆工程資材之碳排(CFiw)結果 為92,204.97 (KgCO2e),超出基準值76,090.16 (KgCO2e) 21.17%,為不及格狀態,其主 因正是內隔間牆全數採用RC導致。 圖2-2-5 建築物FL1內隔間牆/本研究繪製

(3)-1 電氣設備工程資材碳排量(CFe1)

本建築為公共建築類別,修正係數a以1.2帶入,室內總樓地板面積(AFI)=1415.68m2

CFe1=1.2 x (0.00001 x AFI x AFI + 9.75 x AFI + 9056) = 22878.87(KgCO2e)

(3)-2 給排水設備工程資材碳排量(CFe2)

本建築為公共建築類別,修正係數b以0.8帶入,室內總樓地板面積(AFI)=1415.68m2

CFe2=0.8 x (0.00002 x AFI x AFI + 6.36 x AFI + 9477) = 18,881.52(KgCO2e)

(3)-3 消防設備工程資材碳排量(CFe3)

計算式 CFe=CFac+CFe1+CFe2+CFe3+CFt-CFt 超出基準值 56, 479 80 (KgCO2e) 56, 479 80 (KgCO2e) ±0%

0.00 (KgCO2e) 0.00 (KgCO2e) ±0%

22,878.87 (KgCO2e) 22,878.87 (KgCO2e) ±0%

設 計 案 取 值 基 準 案 取 值 表2-2-5 建 築 軀 體 工 程 資 材之 總 碳 排 ( C F b )各項碳排放量 12 金門縣古城國小附設幼兒園之碳足跡評估應用

(3) 設 備
材 之 總碳 排 ( C F e ) 此項 總碳 排 共分為五個項目,空調、電器設備、給排水、消防設備、輸送設備。
設 計 案 取 值 基 準 案 取 值 電氣設備工程資材碳排量(CFe1)
設 計 案 取 值 基 準 案 取 值 給排水設備工程資材碳排量(CFe2)
設 計 案 取
基 準 案 取 值 消防設備工程資材碳排量(CFe3)
設 計 案 取
CFe3=1.0 x (0.00005 x AFI x AFI + 3.08 x AFI + 2622) = 7082.49(KgCO2e) 空調工程資材碳排量(CFac) 基 準 案 取 值 輸送設備工程資材碳排量(CFt)
18,881.52 (KgCO2e) 18,881.52 (KgCO2e) ±0%
設 計 案 取 值 基 準 案 取 值 設 備 工 程 資 材 之 總碳 排 ( C F e )
7,082.49 (KgCO2e) 7,082.49 (KgCO2e) ±0%
7,636.92 (KgCO2e) 7,636.92 (KgCO2e) ±0%

18, 434. 72 (KgCO2e) 17, 414 46 (KgCO2e) 8,385.59 (KgCO2e) 8,385.59 (KgCO2e) 7,952.73 (KgCO2e) 9,028.87 (KgCO2e) 1.25 1.00

2.營建施工之總碳排( C F c )
( CFc ) = 新建施工CFc1 × 生命週期減碳係數LCr + 修繕施工CFc2
營建施工碳排
CFc=CFc1×LCr+CFc2 ……………………………………………………………………………………(式2-2-6)
營建施工之總碳排(CFc) 新建工程施工碳排(CFc1) 修繕更新施工碳排(CFc2) 生命週期減碳係數(LCr) +0.03%
設 計 案 取 值 基 準 案 取 值 設 計 案 取 值 基 準 案 取 值 設 計 案 取 值 基 準 案 取 值 設 計 案 取 值 基 準 案 取 值 營建施工階段佔整體總碳排量
新建工程施工碳排 (CFc1) 0.27% 修繕更新施工碳排 (CFc2) 0.21% 設計案取值 基準案取值 圖2-2-7 營建施工之總碳排( C F c )各項碳排放量佔(TCF)比例直條圖 0 0 2,000 0 4,000 0 6,000.0 8,000 0 10,000 0 12,000 0 13 金門縣古城國小附設幼兒園之碳足跡評估應用
+0.05% -0.03%
(TCF) 0.48%,是建築生命週期五大項目中佔比最少的 階段,由表2-2-6得知營建施工之總碳排( C F c )總碳排放量18, 434. 72 (KgCO2e)稍微超出基 準案取值17, 414. 46 (KgCO2e) 0.58%,主要原因也是受生命週期減碳係數(LCr)影響。 表2-2-6 營建施工之總碳排( C F c )各項碳排放量

建築使用階段耗能總碳排( C F e u )

1,810,326.42 (KgCO2e) 2,104,994.40 (KgCO2e) -7.29% 設 計 案 取 值 基 準 案 取 值

建築使用階段空調耗能碳排量(CFa) 0.00 (KgCO2e) 0.00 (KgCO2e) ±0% 設 計 案 取 值 基 準 案 取 值

建築使用階段照明耗能碳排量(CFl) 1,156,821.66 (KgCO2e) 1,446,027.07 (KgCO2e) -7.16% 設 計 案 取 值 基 準 案 取 值

建築使用階段電器耗能碳排量(CFel) 542,260.15 (KgCO2e) 542,260.15 (KgCO2e) ±0% 設 計 案 取 值 基 準 案 取 值

建築使用階段給污水耗能碳排量(CFwt)

(KgCO2e)

(KgCO2e) -0.14%

(KgCO2e)

(KgCO2e)

) 使用階段碳排( C F e u ) = 空調碳足跡CFa + 照明碳足跡CFl + 電器碳足跡CFel +
+
CFeu=CFa+CFl+CFel+CFwt+CFtr+CFg ………………………………………………………………(式2-2-7) 表2-2-7 建築使用階段耗能總碳排( C F e u )各項碳排放量 建築使用階段耗能總碳排( C F e u )之中,照明碳足跡( CFl)佔比最多,高達64%,其次為 電器碳足跡( CFel)佔比30%,本建案未施做任何空調設備與加熱設備,故空調碳足跡( CFa ) 與加熱設備耗能(CFg)為0,下階段預計加裝「省電能源一級之獨立空調」,計畫性降低空
14 金門縣古城國小附設幼兒園之碳足跡評估應用
12,037.25
17,499.82
設 計 案 取 值 基 準 案 取 值 建築使用階段運輸耗能碳排量(CFtr) 99,207.36
99,207.36
±0% 設 計 案 取 值 基 準 案 取 值 建築使用階段加熱耗能碳排量(CFg) 0.00 (KgCO2e) 0.00 (KgCO2e) ±0% 設 計 案 取 值 基 準 案 取 值 3.建築使用階段耗能總碳排( C F e u
給污水設備耗能CFwt
輸送設備耗能CFtr + 加熱設備耗能CFg
調耗能碳排量,使設計值遠低於基準值進而省下更多的碳排比例。

(1) 建築使用階段照明耗能碳排量(CFl)

CFl=ΣEUIli×AFIi×ERli×β× LC ………………………………………………………………………(式2-2-8)

建築空間之照明耗能密度(EUIli)=10hr學校教室類/32

建築物之室內樓地板面積(AFI)=1415.68m2

建築空間之照明設備總承諾節能潛力(ERli)=LED照明設備/0.8

電力的碳排係數(β)=0.532

建築生命週期標準(LC)=RC/60

(2) 建築使用階段電器耗能碳排量(CFel)

CFel=ΣEUIei×AFIi×ERei×β× LC ………………………………………………………………………(式2-2-9)

建築空間之電器耗能密度(EUIei)=10hr學校教室類/12

建築物之室內樓地板面積(AFI)=1415.68m2

建築空間之電器設備總承諾節能潛力(ERei)=1.0

電力的碳排係數(β)=0.532

建築生命週期標準(LC)=RC/60

(3) 建築使用階段給污水耗能碳排量(CFwt)

CFwt=Wt×β× LC …………………………………………………………………………………………(式2-2-10) Wt=(Qw×Ewp+(Qw-Qrw)×Ewt)×Rw …………………………………………………………………………(式2-2-11) Rw=1.0-0.3×r1-0.05×r2 ………………………………………………………………………………(式2-2-12) 本建案在建築使用階段給污水耗能碳排量(CFwt)低於基準案取值31.21%,主要是受式

15
2-2-11之中的省水效率(Rw)的衍生計算式2-2-12之中的省水馬桶比例(r1)與省水水拴比例 (r2)影響,達到大幅減碳效果。 經本案綠建築評定書內容可知,本案室內31座馬桶全部使用省水馬桶,故省水馬桶比
金門縣古城國小附設幼兒園之碳足跡評估應用
例(r1)=1.0,37個水栓有9個為省水水栓,故省水水拴比例(r2)=0.243,將(r1)、(r2)帶入 式2-2-12可得省水效率(Rw)=0.69,遠小於基準值1.0。

修繕維護(CFrm)= 新建工程資材碳排 × 生命週期更新次數

修繕更新(CFrm)= CFcf×RTcf + CFow×RTow + CFw×RTw + CFiw× RTiw + CFf×RTf+ CFr×RTr + CFin×RTin + CFac×RTac + CFe1 × RTe1+ CFe2×RTe2 + CFe3×RTe3 +CFt×RTt CFrm=CFcf×RTcf+CFow×RTow+CFw×RTw+CFiw×RTiw+CFf×RTf+CFr×RTr+CFin×RTin+CFac×RTac+CFe1×RTe1+CFe2 ×RTe2+CFe3×RTe3+CFt×RTt ……………………………………………………………………………(式2-2-13) 修繕更新工程資材總碳排( C F r m )x更新次數 5 88 , 9 2 5 . 7 (KgCO2e) 6 2 5 , 3 1 3 (KgCO2e) -0.90%

(KgCO2e)

(KgCO2e)

(KgCO2e)

(KgCO2e)

(KgCO2e)

4.修繕更新工程資材之總碳排( C F r m )
設 計 案 取 值 基 準 案 取 值
設 計 案 取 值 基 準 案 取 值 16
鷹架工程資材之碳排(CFcf) x 1.0 1,850.34 (KgCO2e) 1,850.34
±0% 設 計 案 取 值
準 案 取 值 外牆外裝工程資材之碳排(CFow) x 1.0 19,294.12
51,360.16
-0.79% 設 計 案 取 值 基 準 案 取 值 外窗構造之生命週期更新次數(RTw) x 1.0 9,968.29
5,223.31
+0.12% 設 計 案 取 值 基 準 案 取 值 內隔間牆工程資材之碳排(CFiw) x 2.0 92,204.97 (KgCO2e) 76,090.16 (KgCO2e) +0.80%
計 案 取 值 基 準 案 取 值 地板內裝工程資材之碳排(CFf) x 2.0 21,758.92 (KgCO2e) 42,696.76 (KgCO2e) -1.04%
表2-2-8 修繕更新工程資材總碳排( C F r m )各項碳排放量 修繕更新工程資材之總碳排( C F r m )佔總碳排放(TCF)15.42%,由表2-2-8與圖2-2-8可 得知內隔間牆工程資材之碳排(CFiw)佔比最高,此項設 計 案 取 值92,204.97 (KgCO2e)高於 基準案取值76,090.16 (KgCO2e) 21.17%,更新次數為兩次。 雖然修繕更新工程資材是低於基準案取值的,但此數據是受內隔間牆工程資材超標之 結果,下階段計畫將內隔間牆更改為其他材料,使修繕更新與軀體工程資材減少更多碳排 放。 金門縣古城國小附設幼兒園之碳足跡評估應用

建築室內裝修資材之總碳排(CFin) x 5.0

(KgCO2e)

(KgCO2e)

29,021.34 (KgCO2e) 29,021.34 (KgCO2e) ±0% 設 計 案 取 值 基 準 案 取 值

空調工程資材碳排量(CFac) x 0.0 0.00 (KgCO2e) 0.00 (KgCO2e) ±0% 設 計 案 取 值 基 準 案 取 值

電氣設備工程資材碳排量(CFe1) x 2.0

1.0

22,878.87 (KgCO2e) 22,878.87 (KgCO2e) ±0% 設 計 案 取 值 基 準 案 取 值

18,881.52 (KgCO2e) 18,881.52 (KgCO2e) ±0% 設 計 案 取 值 基 準 案 取 值

設 計 案 取 值 基 準 案 取 值

7,082.49 (KgCO2e) 7,082.49 (KgCO2e) ±0% ±0%

7,636.92 (KgCO2e) 7,636.92 (KgCO2e)

設 計 案 取 值 基 準 案 取 值 表2-2-8 修繕更新工程資材總碳排( C F r m )各項碳排放量

設計案取值 基準案取值 0 20000 40000 60000 80000 100000 120000 140000 160000 180000 圖2-2-8 修繕更新工程資材總碳排( C F r m )各項碳排放量直條圖 屋頂外裝工程資材之碳排(CFr) x 2.0
43,269.12
42,979.24
+0.01% 設 計 案 取 值 基 準 案 取 值 給排水設備工程資材碳排量(CFe2) x 2.0 消防設備工程資材碳排量(CFe3) x 1.0 輸送設備工程資材碳排量(CFt) x
17 金門縣古城國小附設幼兒園之碳足跡評估應用

(2) 廢棄處理碳排(CFwa)

CFwa=(0.54×S+0.864×Sb+39.9)×AF……………………………………………………………………(式2-2-16)

地上樓層數(S)=2

地下樓層數(Sb)=0 總樓地板面積(AF)=1,996.57m2

5.拆除及廢棄物處理之總碳排( C F d w ) 拆除廢棄碳排(CFdw) =(拆除工程CFd+廢棄處理CFwa)×(1.0+CFrm/CFm)×LCr CFdw=(CFd+CFwa)×(1.0+CFrm/CFm)×LCr ……………………………………………………………(式2-2-14) 拆除及廢棄物處理之總碳排( C F d w ) 158,571.54 (KgCO2e) 132,378.85 (KgCO2e) +0.65%

拆除工程總碳排(CFd) 4,232.73 (KgCO2e) 4,232.73 (KgCO2e)

81,819.44 (KgCO2e) 81,819.44 (KgCO2e)

(KgCO2e)

(KgCO2e)

設 計 案 取 值 基 準 案 取 值
設 計
基 準 案 取
設 計 案
基 準 案 取
案 取 值 基 準 案 取 值 生命週期減碳係數(LCr) 1.25 1.00 設 計 案 取 值 基 準 案 取 值 表2-2-9 拆除及廢棄物處理之總碳排
案 取 值
值 廢棄物處理之總碳排(CFwa)
取 值
值 修繕更新工程資材之總碳排(CFrm) 588,925.68 (KgCO2e) 625,313.01
設 計 案 取 值 基 準 案 取 值 新建工程資材之總碳排(CFm) 1,241,961.74 (KgCO2e) 1,161,523.60
設 計
( C F d w )各項碳排放量 (1) 拆除工程碳排(CFd) CFd=(0.06×S+0.096×Sb+2.0)×AF ……………………………………………………………………(式2-2-15) 地上樓層數(S)=2 地下樓層數(Sb)=0 總樓地板面積(AF)=1,996.57m2
18 金門縣古城國小附設幼兒園之碳足跡評估應用

構造的一半,同時也是所有構造系統中

藉由表2-3-2可得知本案並無施做獨立空調與中央空調,故空調碳足跡( CFa )為0,下 階段預計加裝「省電能源一級之獨立空調」,計畫性降低空調耗能碳排量,使設計值遠低 於基準值進而省下更多的碳排比例,在自我舉證減碳量( C F o )的部分,本案也沒有任何設

計回應,此建築屋頂層設計平坦且規矩,目前無任何用途顯得相當可惜,下階段計畫於屋

頂安裝「太陽能光電設備」,在敷地設計的部分,建築建蔽率只占基地27.96%,有超過七 成的基地面積可造「人工林」,為建築生命週期換取更多減碳量。

813,541.87 (KgCO2e) 719,178.57 (KgCO2e) +13.12%

0.00 (KgCO2e) 0.00 (KgCO2e) ±0%

建築使用階段空調耗能碳排量(CFa)
設 計 案 取 值 基 準 案 取 值 主結構工程資材碳排量(CFs)
設 計 案 取 值 基 準 案 取 值 內隔間牆工程資材之碳排(CFiw)
設 計 案 取 值 基 準 案 取 值 設 計 案 取 值 生命週期減碳係數(LCr)
設 計 案 取 值 基 準 案 取 值 2-3
工 程
造在計算軀體工程的構造係數也只有0.5,正是RC
92,204.97 (KgCO2e) 76,090.16 (KgCO2e) -0 (KgCO2e) +21.17%
1.25 1.00
碳足跡評估總結 經過碳足跡(TCF)的各大項目數據分析後,發現本案例因基地靠海岸線與工業區1公里 內,導致計算碳排之生命週期減碳係數(LCr)上有先天的劣勢,透過表2-3-1可發現此案 在因應減碳設計時,於新建工程資材 ( C F m )中的建 築 軀 體
( C F b )考慮碳排量設計時最 不週全,其項目之中的主結構工程資材(CFs)與內隔間牆工程資材(CFiw)更是此案設計上 的缺點,此案的結構體與內隔間牆使用超量的 RC 構造進行設計,筆者計畫下階段將建築 主結構與內隔間牆更改為木構造進行設計,因為木構造不只有減碳還有固碳之功用,木構
構造係數最小的結構形式。
自我舉證減碳量( C F o ) ±0% 表2-3-2 本案無自我舉證減碳量( C F o )與空調碳足跡(CFa) 表2-3-1 本案碳排放超標主要因素 19 金門縣古城國小附設幼兒園之碳足跡評估應用
第三章、 更改設計減碳策略 3-2 CLT版片設計 CLT版片是以奇數不同向堆疊膠合而形成,通常以3、5、7層最為常見,單片版厚度從
3-1 木構造工法比較與選擇 在前章結尾之碳足跡評估總結中提到,筆者計畫更改此案結構形式,將RC構造更改為 木構造,傳統木構造主要可分為日式軸組工法與北美2*4工法,而近代木構造開始流行鋼 木混和結構與直交積層材(Cross-laminated timber),鋼木混和結構可以有效解決傳統木 構造在梁柱接頭設計不良與耐震等問題,適合用於高樓層木構造建築,直交積層材(CLT) 則是利用直交式技術進行集成品之製造,可協調不同方向的特性,使集成品品質穩定與提
圖3-2-2 直交積層材(CLT)/researchgate.net 圖3-2-1 直交積層材(CLT)/Lever Architecture 20 金門縣古城國小附設幼兒園之碳足跡評估應用
16~51mm、寬度60~240mm均有,CLT常見寬度尺寸以3的倍數為主、有60cm、90cm、120cm至 300cm,長度最高可達16.5cm,厚度最後可達50mm。
高其性能,CLT不僅是結構牆體之構成元素,更可直接作為承重牆、剪力牆與樓板等結構 用途。 本案的樓層數低,只有地上兩層樓並無地下空間,內隔間牆數量相當多,筆者判斷使 用木構造板牆系統做結構轉換最適當,可以建立在盡量不改變原建築平面配置條件下,達 到結構轉換,於是最終選擇使用直交積層材(CLT)進行結構轉換設計。

金門縣古城國小附設幼兒園之碳足跡評估應用

1.CLT厚度設計

CLT的厚度會影響最大垮距設計與樓板荷重,本案為學校類建築,經查表3-2-3可得知 教室每平方公尺活載重不得小於250公斤,比一般住宅規範嚴格,因此筆者選用較厚的CLT (L-200-5s)進行設計,其厚度為20公分,是以五層4公分木材直交膠合而成,容許變形量為

L-200-5s 活載重=2.5(kN/m2) 最大垮距=6.3m 容許變形量=L/325

Type L3s L3s L3s L3s L3s L5s L5s L5s L5s L5s L5s L5s-2

20cm 五層

L - 200 - 5s

表3-2-1 CLT厚度標示表/本研究參考繪製

Layers 3 3 3 3 3 5 5 5 5 5 5 5

L panel C 20 20 20 20 30 40

L 20 20 30 30 40 20 30 40 40 40 40 60

C 20 40 30 40 40 20 20 20 40 40 40 40

L 20 20 30 30 40 20 20 20 40 40 40 60

表3-2-2 CLT厚度設計表/本研究參考繪製

L 20 30 40 40 40 40 21

表3-2-3 活載重設計規範/內政部營建署

L/325,最大垮距可達6.3公尺,活載重 2.5(kN/m2)經換算後為 255.102(kgf/m2),大於建 築技術規則規範之教室活載重250(kgf/m2)。 mm 60 80 90 100 120 100 120 140 160 180 200 160

2.CLT長寬尺寸設計

CLT製造流程通常是將電繪圖面送至工廠進行預製,考慮預製成本等因素,採用模矩 化設計將尺寸設計單一是最節省成本與施工效率的方式,前文有提到CLT版片最大尺寸可達 (長16.5m x 寬3m),經由筆者對照本建築案例平面圖進行CLT版片尺寸設計後,最終決定以 (長12.6m x 寬2.7m)做為樓板材料尺寸。

透過圖3-2-5可得知建築在南向有設計平面為斜面的懸臂式走廊,此時模矩化設計就 能直接因應各種斜度進行切削。 12.6m

12.6m 28@2.7m

2.7m 原始生產尺寸12.6m x 2.7m 隨建築物懸臂走廊之斜面進行切削

圖3-2-3 CLT預製尺寸設計圖/本研究建製 圖3-2-4 CLT二樓樓版設計圖/本研究繪製 圖3-2-5 本建案二樓平面圖/本研究繪製

22 金門縣古城國小附設幼兒園之碳足跡評估應用
3-3 結構轉換設計
圖3-3-3 結構轉換前後差異比較/本研究繪製 23 圖3-3-4 結構轉換後南向立面圖/本研究繪製 金門縣古城國小附設幼兒園之碳足跡評估應用
結構轉換為CLT構造後,平面以90公分為間距進行模矩化配置,配置結果與建築原始平 面尺寸會有些許落差,但落差不大,總樓地板面積(AF)保持相同不影響變更後之計算,立 面開窗數量與尺寸階保持與原案相同,變更設計後不影響總立面面積(Ae)與外窗面積(Awj) 之計算,但在計算外牆不含柱樑部位之總外牆面積(Aow)與外牆鄰接外氣的柱樑面積(Acb) 時會有更動,因為原建築結構為梁柱系統,而進行CLT結構轉換後變成板牆系統。 圖3-3-1 結構轉換後一樓平面圖/本研究繪製 圖3-3-2 本建案原始一樓平面圖/本研究繪製

(r2)=0.243提升至1.0,原省水效率(Rw)=0.69降至0.65,減少汙水耗能碳排。

3.照明耗能碳排量(CFl)

因本案使用階段碳排佔最大比例的是照明設備,於是筆者選擇將原案使用的總承諾節 能潛力(ERli)=80%之LED燈泡,加入反光片與M行燈罩,將節電率69.76%轉換為承諾節能 潛力值,輸入係數由0.8降至0.7,進而降低建築使用階段耗能總碳排( C F e u )。

3-4 建築使用階段減碳措施
輸送設備耗能碳排量(CFtr) 原建築設有一台一般標準電梯,每年標準耗電量(Eel1)=3108,將此電梯更換為電能回 收電梯,使標準耗電量(Eel1)降至1381,減少輸送設備碳排。
給污水耗能碳排量(CFwt) 本案37個水栓有9個為省水水栓,筆者將所有水栓都使用省水水栓,使原省水水拴比例
24 金門縣古城國小附設幼兒園之碳足跡評估應用
圖3-4-1 傳統T8燈泡與省電燈泡比較表 圖3-4-2 一般燈罩與M型燈罩示意圖
1.
2.
3-5 設計前後差異比較 圖3-5-2 結構轉換後等角拆解圖/本研究繪製
原建築物等角拆解圖/本研究繪製 圖3-5-3 結構轉換後渲染效果圖/本研究繪製 25 金門縣古城國小附設幼兒園之碳足跡評估應用
圖3-5-1

1.更改構造前後係數調整(因生命週期減少一半,生命週期更新次數皆除以二計算)

鋼筋混凝土(RC) 木構造(CLT)

構造係數(W) 1.0 0.5

建築物生命週期標準(LC) 60 30

鋼筋混凝土(RC) 木構造(CLT)

高爐混凝土之減碳比例(Bc) 0.88 1.0

鋼筋混凝土(RC) 木構造(CLT)

外牆不含柱樑部位之總外牆面積(Aow) 1471.07m2 1816.78m2

鋼筋混凝土(RC) 木構造(CLT)

外牆鄰接外氣的柱樑面積(Acb) 345.7295m2 0

鋼筋混凝土(RC) 木構造(CLT)

內隔間牆單位碳排(Fiwj)

鋼筋混凝土(RC) 木構造(CLT) 外窗窗框構造碳排(Fwfj) 鋁框架構造=19.84 軟木窗框=0.98

12公分RC隔間牆=81.02 最優值=19.22

鋼筋混凝土(RC) 木構造(CLT)

模版單位面積碳排(Fm) 木模板=3.2 無模板=0

鋼筋混凝土(RC) 木構造(CLT)

省水水栓使用比例(r2) 0.253 1.0

鋼筋混凝土(RC) 木構造(CLT)

屋頂外裝工程之單位碳排(Fr1) 五角磚油毛氈屋頂=44.48 PU防水屋頂=21.65

鋼筋混凝土(RC) 木構造(CLT)

地板內裝資材碳排標準(Ffj) 磨石子地坪=15.37 拼花木地板=-39.48

鋼筋混凝土(RC) 木構造(CLT) 表3-6-1 更改構造前後各項評估係數差異表

鋼筋混凝土(RC) 木構造(CLT)

3-6
更改設計後減碳結果
26
外牆構造之單位碳排(Cowj) 15公分RC外牆=77.75 最優值=19.22 金門縣古城國小附設幼兒園之碳足跡評估應用

2.更改設計後評估總表

藉由碳足跡評估軟體得到表3-5-2,更改設計後以木構造(CLT)之30年生命週期計算建 築物總碳排放量(TCF)=1610382.3KgCO2e,基準案取值(TCF')=2111810KgCO2e,建築物年

均碳排量(CFI)=26.89kgCO2e/m2.yr,基準案取值(CFI')=35.26kgCO2e/m2.yr,整體碳排

低於基準案取值23.74%,經分級認證等級判定該建築為黃金級 (20%×γ<DCF≦25%×γ)

,此分析結果直接由評估軟體輸出。

案件名稱 建築分類

金門縣古城小學附設幼兒園 D3-學校類建築

樓層高修正係數(a1) = 0.99 平均耗電強度修正係數(a2) = 1.0 非中央空調型空間優惠係數(a3) = 0.7

設計案總碳足跡(TCF) = 1610382.33(KgCO2e)

基準案總碳足跡(TCF') = 2111810.07(KgCO2e)

設計案碳足跡指標(CFI) = 26.89(kgCO2e/m2.yr)

基準案碳足跡指標(CFI') = 35.26(kgCO2e/m2.yr)

減碳百分比(DCF) = -23.74%

總樓地板面積AF 構造形式

1996m2 木構造(CLT)

分級修正係數(Y) = 0.69 生命週期減碳(LCr) = 1.25 自我舉證減碳量(CFo) = 0

表3-6-2 LCBA-Delta 更改設計後評估總表

新建工程資材之總碳排 金門縣古城國小附設幼兒園之碳足跡評估應用

基準案 設計案 設計案分項減碳量佔基 準案總碳排量百分比 692, 002.7 14, 724. 9 1, 024, 934 3 261, 569 2 1 18, 578 9 0

582, 143. 5 12, 979. 9 804, 967 8 86, 705 1 123, 586 1 0

-5. 20% -0.08% - 10. 42% - 8 28% +0.24% ±0 0 0 % ( C F m ) 營建施工之總碳排( C F c ) 建築使用階段耗能總碳排( C F e u ) 修繕更新工程資材之總碳排( C F r m ) 拆除及廢棄物處理之總碳排( C F d w ) 自我舉證減碳量( C F o )

工項分項 碳排量(KgCO2e) 碳排量(KgCO2e) 設計案總碳足跡(TCF)總計 27

表3-6-3 更改設計後碳足跡各項碳排放量

分級認證等級 = 黃金級 / 20%×γ<DCF≦25%×γ 2, 111, 810.07 1,610, 382. 33 -23.74%

透過表3-5-4可得知更改設計前的60年生命週期之RC建築,與更改設計後的30年生命

週期之CLT建築,總碳排放量(TCF)相差約2.37倍之多,表3-5-5則顯示若將RC建築生命週

鋼筋混凝土(RC)60年 木構造(CLT)30年 (RC)-(CLT)多於碳排 (RC)/(CLT)碳排倍數

1 , 2 4 1 , 9 6 1 7 1 8 , 4 3 4 7 1 , 8 1 0 , 3 2 6 4 5 88 , 9 2 5 . 7 1 5 8 , 5 7 1 . 5 0 3 ,8 1 8 , 2 2 0 1

KgCO2e

659, 818 2 5, 454.8 1, 005, 358 6 502, 220.6 34, 985.4 0 2, 207, 837.77 KgCO2e

(RC)30年生命週期與(CLT)30年生命週期比較

約2.13倍 約1.42倍 約2.24倍 約6.79倍 約1.28倍 0 約2.37倍

期也降低為30年做比較,RC建築總碳排放量(TCF)仍高於CLT建築1.58倍,可見不管是以何 種生命週期年限進行比照,將建築更改為CLT後之結果都是有減少更多碳排放的。 582, 143 5 12, 979 9 804, 967 8 86, 705. 1 123, 586. 1 0 1,610, 382 33 KgCO2e

表3-6-4 原建築(RC)60年與(CLT)30年比較表 金門縣古城國小附設幼兒園之碳足跡評估應用

鋼筋混凝土(RC)30年 木構造(CLT)30年 (RC)-(CLT)多於碳排 (RC)/(CLT)碳排倍數 ( C F m ) ( C F c ) ( C F e u ) ( C F r m ) ( C F d w ) ( C F o ) (TCF) 單位

582, 143. 5 12, 979 9 804, 967 8 86, 705 1 123, 586 1 0 1, 610, 382. 33 KgCO2e

659, 818. 2 1, 003.1 100, 195.4 133, 450 6, 240.8 0 937, 558.57 KgCO2e

1,241,961.7 13,953.0 905,163.2 257,036.1 129,826.9 0 2,547,940.9 KgCO2e 表3-6-5 (RC)30年與(CLT)30年比較表 28

3.更改設計前後各項碳排量差異比較
(RC)60年生命週期與(CLT)30年生命週期比較 ( C F m ) ( C F c ) ( C F e u ) ( C F r m ) ( C F d w ) ( C F o ) (TCF) 單位
約2.13倍 約1.07倍 約1.12倍 約2.96倍 約1.56倍 0 約1.58倍

營建施工之總碳排(CFc)

建築使用階段耗能總碳排(CFeu)

修繕更新工程資材之總碳排(CFrm)

拆除及廢棄物處理之總碳排(CFdw)

新建工程資材之總碳排(CFm) 更改設計後設計案取值 原建築設計案取值 原建築基準案取值

自我舉證減碳量(CFo)

金門縣古城國小附設幼兒園之碳足跡評估應用 0 500000 1000000 1500000 2000000 2500000

圖3-6-1 更改設計前後各項碳排放量橫條圖

(修繕) 15.42%

(電器) 30% (新建) 32.53%

(使用) 47.41%

(汙水)1% (輸送)3% (拆除)7.67%

(照明) 64%

(拆除)4.15% (施工)0.48% 更改設計後

(新建) 36.15%

(電器) 33%

(修繕) 5.38% (照明) 63%

(汙水)1% (輸送)5% (施工)0.81% 原建築案例 圖3-6-2 更改設計前後各項碳排放量佔比圓餅圖 圖3-6-3 更改設計前後使用階段碳排放量佔比圓餅圖

29
(使用) 49.99%
金門縣古城國小附設幼兒園之碳足跡評估應用 第四章、 自我舉證減碳策略 4-1 加裝太陽能光電板 建築屋頂層設計平坦且規矩,非常適合加設太陽能光電板使用,筆者計畫將屋頂面積 (Ar)966.26m2扣除屋突面積72.741m2剩餘面積全部設置太陽能光電板。 太陽能發電(CFoi)減算法 = 每日平均日射量 x 修正係數 x 太陽光電設置容量 x 365天 x 使用年限 x 換算係數 每日平均日射量=3.3 修正係數=0.8 屋頂面積(Ar)=966.26m2
3.3
圖4-1-1 建築物加設太陽能光電板後渲染圖 30
屋突面積=72.741m2
x 0.8 x 89.3519 x 365 x 20 x 0.532 = 太陽能發電減碳量 916098.583 KgCO2e 平屋頂1kW=10m2; 太陽光電設置容量=89.3519 使用年限=20 換算係數=太陽光電/0.532
4-2 基地內造林 利用建蔽率只有27.96%之優勢,在基地內種植大量台灣朴樹進行固碳,並以造林面積 視為人工林面積與其生命週期來換算成抵碳量。 造林減碳量(CFoi)減算法 = 換算係數 X 單顆面積 x 種植數量 x 建築物生命週期標準(LC) 換算係數=15KgCO2e/(m2*yr) 單顆面積=12.56m2 種植數量=30 建築物生命週期標準(LC)=CLT木構造/30 15 x 12.56 x 30 x 30 = 基地內造林固碳量 169560 KgCO2e 4-3 自我舉證減碳結果 圖4-2-1 基地內造林配置圖 自我舉證減碳量( C F o )總計 表4-2-2 自我舉證減碳量( C F o )總減碳量 金門縣古城國小附設幼兒園之碳足跡評估應用 31

第五章、 減碳評估總結果

將第三章的更改設計減碳結果與第四章的自我舉證減碳結果兩者合併,計算出最終獲 得的總減碳數據與原建築相比,碳排放量相差7.28倍,碳足跡評估軟體計算總結果的設計

案取值低於基準案取值48.86%,遠超過減碳25%的鑽石級標準,雖然未能達成零碳排,但

也成功邁向近零碳排放之目標。

案件名稱 建築分類

金門縣古城小學附設幼兒園

D3-學校類建築

樓層高修正係數(a1) = 0.99

平均耗電強度修正係數(a2) = 1.0

非中央空調型空間優惠係數(a3) = 0.7

設計案總碳足跡(TCF) = 524723.74(KgCO2e)

基準案總碳足跡(TCF') = 1026151.49(KgCO2e)

設計案碳足跡指標(CFI) = 8.76(kgCO2e/m2.yr)

基準案碳足跡指標(CFI') = 17.13(kgCO2e/m2.yr)

減碳百分比(DCF) = -48.86%

分級認證等級 = 鑽石級 / 25%×γ<DCF 582, 143. 5 12, 979. 9 804, 967. 8 86, 705 1 123, 586 1 -1, 085, 658.58 524, 723.74 KgCO2e

總樓地板面積AF 構造形式

1996m2 木構造(CLT)

分級修正係數(Y) = 0.69

生命週期減碳(LCr) = 1.25 自我舉證減碳量(CFo) = 1085658.58(KgCO2e)

木構造(CLT)30年 (RC)-(CLT)多於碳排

659, 818. 2 5, 454.8 1, 005, 358. 6 502, 220.6 34, 985.4 1, 085, 658.58 3, 293,496.36 KgCO2e

約2.13倍 約1.42倍 約2.25倍 約6.79倍 約1.28倍 約7.28倍

金門縣古城國小附設幼兒園之碳足跡評估應用
32
鋼筋混凝土(RC)60年
(RC)/(CLT)碳排倍數 原建築碳排量與最終減碳結果比較 ( C F m ) ( C F c ) ( C F e u ) ( C F r m ) ( C F d w ) ( C F o ) (TCF) 單位 1 , 2 4 1 , 9 6 1 . 7 1 8 , 4 3 4 . 7 1 , 8 1 0 , 3 2 6 . 4 5 88 , 9 2 5 7 1 5 8 , 5 7 1 5 0 3 ,8 1 8 , 2 2 0 1 KgCO2e
表5-2 原建築與最終減碳總結果比較表 表5-1 LCBA-Delta 最終評估總表

案件名稱 建築分類 總樓地板面積AF 構造形式

金門縣古城小學附設幼兒園 D3-學校類建築 1996m2 木構造(CLT)

設計案總碳足跡(TCF) = 524723.74(KgCO2e)

原建築基準案總碳足跡(TCF') = 4041624.3(KgCO2e)

設計案碳足跡指標(CFI) = 8.76(kgCO2e/m2.yr)

原建築基準案碳足跡指標(CFI') = 33.74(kgCO2e/m2.yr)

減碳百分比(DCF) = -87.01%

(CFc)

新建工程資材之總碳排(CFm) 最終減碳設計案取值 原建築設計案取值 原建築基準案取值

若撇除掉LCBA-Delta碳足跡評估軟體的計算規則,將最終減碳總結果以對照方式與原 建築基準案取值進行比較,實際共減碳87.01%,本結果尚未計算CLT建築之總材積與固碳 量,若計算CLT建築30年固碳量並設為自我舉證減碳量( C F o ),此建築已達到零碳排放,甚 至成為負碳排放的建築。 金門縣古城國小附設幼兒園之碳足跡評估應用 33 圖5-1 最終減碳總結果各項碳排放量橫條圖 表5-3 實際減碳結果 0 500000 1000000 1500000 2000000 2500000 自我舉證減碳量(CFo) 拆除及廢棄物處理之總碳排(CFdw) 修繕更新工程資材之總碳排(CFrm) 建築使用階段耗能總碳排(CFeu) 營建施工之總碳排

第六章、 結論與建議

經過一系列的計算後,得知建築物使用的構造形式與材料的單位碳排影響甚大,同樣 規模的建築,即使樓地板面積相同,RC構造與木構造的碳排量計算結果仍是天壤之別,木 構造對於環境永續的幫助是相當重要的,遠看歐洲日本等國家已經有許多超高層木構造建 築正在為環境固碳,反觀台灣因為礙於法規、營建成本與林造產業等等的因素,目前還未 能普及木構造建築,顯得相當可惜。 在進行木構造碳排量計算時,筆者發現有許多木構造相關係數是無法透過網路得知的 ,許多材料的單位碳排係數需要有低碳建築聯盟LCBA會員資格才得以開放查詢,但此聯盟 會員是需要收費的,筆者認為如果要將近零與零碳概念有效推廣給大眾,應該將材料數據 蒐集更齊全,尤其是木構造的相關資料,並將所有資料開放給大眾查閱,這樣才能更方便 專業人士進行碳排量評估,確實推廣碳排放之重要性。

金門縣古城國小附設幼兒園之碳足跡評估應用 參考文獻與資料: 1.建築材料碳足跡資料系統建置之研究-國立成功大學/林憲德教授 2.綠建築標章碳足跡標示制度規劃研究-國立成功大學/林憲德教授 3.木構造生命週期碳足跡與林木經營碳匯效益評估-國立臺灣大學氣候變遷與永續發展學程碩士論文/李冠賢 4.4x4 House碳足跡評估應用-國立台灣科技大學建築環境特論論文/蘇靖雯 5.建築環境特論講義/鄭政利 6.CLT建造手冊-https://issuu.com/9995745/docs/clt_boook 7.低碳建築聯盟LCBA碳排資料庫-https://www.lcba.org.tw/article/?article_item_id=81 34

Turn static files into dynamic content formats.

Create a flipbook
Issuu converts static files into: digital portfolios, online yearbooks, online catalogs, digital photo albums and more. Sign up and create your flipbook.
台科大建築研究所-建築環境特論論文 by Pigger 0725 - Issuu