Portfolio Pietro Groppi

Page 1


PIETRO GROPPI

CONTACTS

+39 3405619924

pietrogroppi1@gmail.com

LANGUAGES

SOFTWARE SKILLS

PROFESSIONAL EXPERIENCES

12/2024 - 05/2025

09/2022 - 07/2023

02/2022 - 08/2022

05/2020 - 09/2020

Piacenza - exibith design, lighting design, product communication

RICARDO CARVALHO ARQ & ASS

Lisbon - junior architect

RICARDO CARVALHO ARQ & ASS

Lisbon - internship, design assistant

BESTETTI ASSOCIATI

Milan - interniship, interior design assistant

EDUCATION

09/2022 - 07/2023 12/2024

09/2021 - 07/2022

09/2020

07/2017

MASTER’S DEGREE ARCHITECTURE - BUILT ENVIROMENT - INTERIORS

Politecnico di Milano - 110L/110

ABROAD THESIS PROGRAM

Universidade Autonoma de Lisboa / Politecnico di Milano

ERASMUS PROGRAM

Universidade Autonoma de Lisboa

BACHELOR DEGREE IN ARCHITECTURAL DESIGN

Politecnico di Milano - 108/110

SCIENTIFIC HIGH SCHOOL DIPLOMA

Liceo scientifico L. Respighi, Piacenza

HOUSE WITH ONE WALL

Beja - Portugal 2022

The “house with one wall” project, located in the Alentejo countryside, is characterised by the omnipresent presence of a single wall, which organises its composition and guides the visitor’s path through a continuous succession of spaces. Passing from an open and public dimension to a more intimate one, typical of the interior spaces, the wall - the “Ariadne’s thread” of this composition - defines the nature and sensitivity of each environment through the change of its dimensions and proportions. On the left of the entrance, we find the stable for the horses and in succession three pools, one for animals, one for plants and one for people. Once inside the house proper, the different heights of the floor follow the path through the succession of rooms, rising each time and helping to define gradually more compressed and intimate spaces. The roof, resting directly on the wall, opens in several places to give light to the interior spaces, at the same time configuring the different patios of the swimming pools and the inner courtyard. In the main living room, it is possible to have a direct view of the horse pool through a large window, thus creating a direct relationship - visual and spatial - between man and animal, man and nature.

HOUSE IN ALENTEJO

Grandola - Portugal 2022 - 2023

Ricardo Carvalho Arquitetos

The project of the house in Grandola, Alentejo, is based on the idea of realising a living dimension in the articulation of two hortus conclusus. The pure geometric forms of the circle and the square pierce the roof and create two internal courtyards with different spatial qualities. The first square patio hosts the entrance, as well as the overlooking of the private rooms and services, these ones protected by vegetation. The main space of the house, on the other hand, is articulated between the second patio, which is circular, and the view to the exterior, cut into the perimeter wall of the house, which also becomes its frame. The continuation of the perimeter wall, with its oblique cut, gives shape to the kitchen space, giving complexity to one of the most central rooms of the house.

WAREHOUSEIN ALGARVE

Vila do Bispo - Portugal

2023 - on going

Ricardo Carvalho Arquitetos

This is a project for the renovation of a warehouse in Budens, Algarve. The central load-bearing wall becomes the axis on which an interplay of solids and voids, of spaces and courtyards is distributed, generating a series of rooms of minimal dimensions, interlocking with each other. The right and left wings are independent of each other, both with dedicated access, a bathroom, a kitchen and a bedroom on the mezzanine floor, organised to allow maximum flexibility and freedom of use. Given the minimal size of the courtyards, the glazing was designed to ensure visual and spatial continuity between the interior and exterior.

MULTIPURPOSE PAVILION DA UAL

Lisbon - Portugal

2023 - 2025

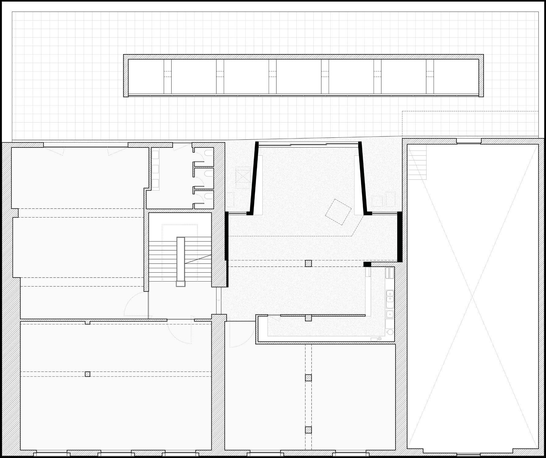
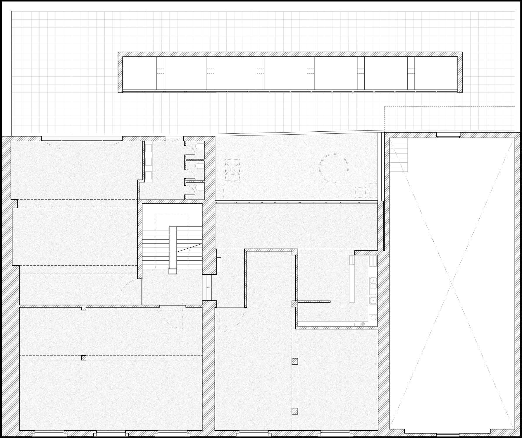
The project transforms the rooftop terrace of the Autonomous University of Lisbon, aiming to restore its role as a central gathering place in the daily life of the school. The existing condition was defined by a disorganized layout of the bar, with an entrance misaligned with the main circulation, resulting in a confusing and uncomfortable space for students. By demolishing the previous veranda, enough surface was freed to introduce a new lightweight pavilion—an adaptable, multifunctional space available to the school for informal talks, small exhibitions, or simply as a high-quality environment for students and professors to enjoy between classes. The realignment of the entrance, the carefully tilted walls, the single-pitch roof, and the strategic positioning of the openings define a dynamic space, rich in unexpected perspectives and visual depth. The new structure leaves the existing building untouched, integrating with lightness and enhancing the terrace as a vibrant extension of academic life.

DAVIDE GROPPI’S PAVILLION

Euroluce - Milan 2024 - 2025

The project explores light through a symbolic triad: White, Black and Mirror. Presence, absence and reflection. From this foundation, the space takes shape as a museum-like journey, guiding visitors through a sequence of thresholds, rooms and corridors that reveal, conceal or multiply light in a progressive narrative. The entrance opens onto a monochrome void, where White diffuses a suspended, ethereal brightness. As the path unfolds, Black introduces the idea of negation: dark backgrounds compress perception, isolate luminous elements and distill light into its purest form. Mirror, finally, reverses the scene, creating unexpected reflections and layered perspectives that expand the space and challenge visual expectations. This is not a traditional product showcase, but a spatial narrative designed to express the essence of light as envisioned by the company — a light that is pure, direct, never decorative. Architecture was therefore conceived in its most essential form: an absolute space, a sequence of pure rooms unfolding one after another, ready to host and give voice to the company’s light compositions, without adding anything more. Subtraction and silence define the language of the space, enhancing the ideas of lightness and invention — fundamental principles of the brand’s identity. In this way, the stand becomes a narrative, and the path its structure: an immersive experience that celebrates the three fundamental expressions of light, revealing its beauty, surprise and perceptual depth.

Davide Groppi s.r.l.

Turn static files into dynamic content formats.

Create a flipbook
Issuu converts static files into: digital portfolios, online yearbooks, online catalogs, digital photo albums and more. Sign up and create your flipbook.
Portfolio Pietro Groppi by Pietro Groppi - Issuu