静けさ
HERNÁNDEZ JIMÉNEZ PABLO FRANCISCO

-Análisis de sitio
-Intenciones de diseño
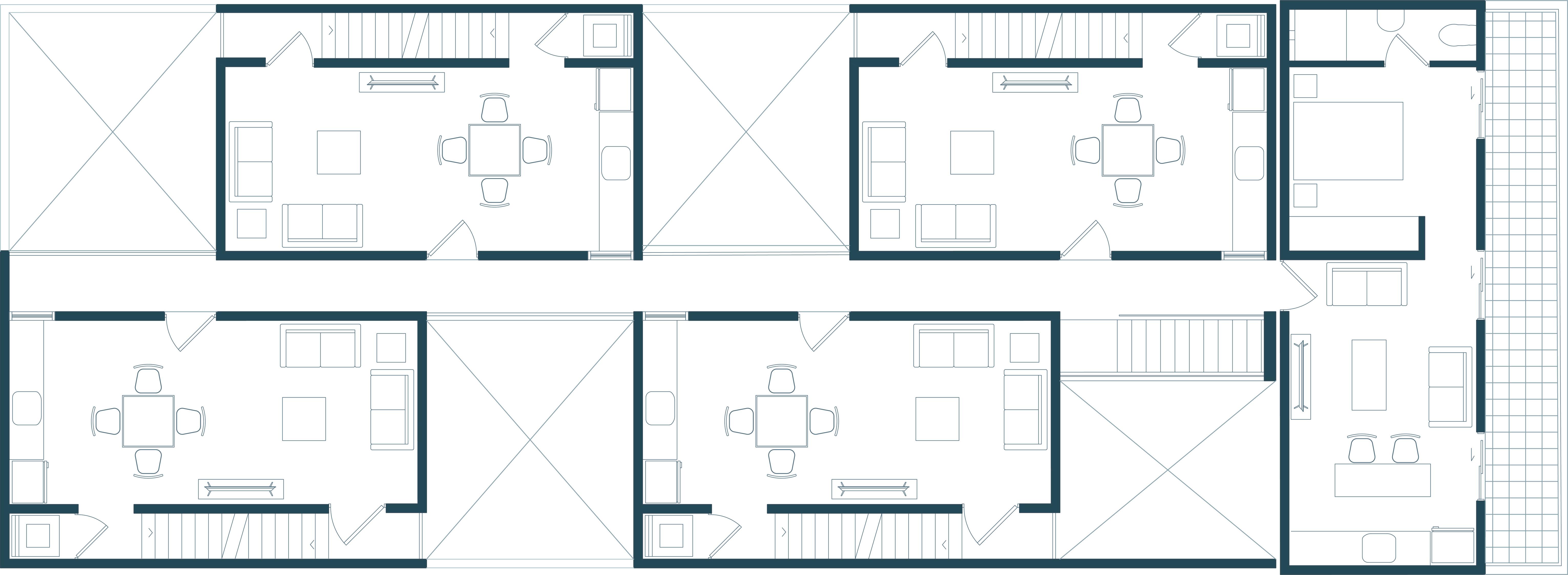
-Planta baja
-Segundo piso
-Tercer piso
-Planta de azotea
-Render
El proyecto consta de un edificio con 10 departamentos, 8 de ellos completamente nuevos en su construcción y 2 construidos a partir de una casona recuperada y restaurada en su totalidad arquitectónica y estructural.
El proyecto se encuentra en la colonia Escuadrón 201, alcaldía Iztapalapa, 09060, CDMX.
El predio se encuentra entre dos grandes ejes: Eje 3 y Churubusco; por lo que el ruido en la zona es constante, siendo un importante aspecto a considerar.
Terreno
Vías principales
Vías secundarias
Como equipamiento cuenta con escuelas, mercados, parques, plazas comerciales, la central de abastos, entre otros; estos factores dan como resultado que la zona sea demasiado concurrida, con flujo vehicular constante y flujo peatonal alto hasta las 23:00 horas. La mayoría de habitantes de la colonia son comerciantes, por lo que después de una larga jornada de trabajo buscan descansar en su hogar, siendo esto impedido por el ruido de la zona.
Debido a la zona en la que se encuentra el proyecto, se busca generar un entorno de serenidad en los departamentos.
Generando una transición entre el espacio público y el privado, se busca que uno no permee con el otro, creando espacios interiores que propicien la calma, privacidad y confort en sus habitantes.
Priorizando los aspectos naturales, se utilizó la iluminacion y la ventilación natural como principales factores en el diseño. aprovechando la luz del este por las mañanas y la luz del oeste por las tardes; y colocando ventanas en lugares estratégicos para contar con la mayor ventilación posible a lo largo del año.
La utilización de colores y materiales fue de gran importancia en el diseño, eligiendo colores como el azul para generar sensaciones de tranquilidad y materiales como la madera para insonorizar distintas habitaciones.
Iniciando con el primer nivel de lo público, encontramos 4 departamentos con cocina, sala, comedor, cuarto de lavado y terraza.
Con acabado de yeso blanco, la pared que resalta es la de concreto azul que se encuentra en la terraza, la cual cuenta con plantas que ayudan a la concentración y a reducir el estrés.
Esta barrera natural, sirve igualmente como barrera visual para evitar que el paso de los vecinos resulte incomodo para quien se encuentre en su terraza.
Las actividades dentro del espacio pueden variar, ya que, aun que es un espacio reducido, no cuenta con ninguna separación, siendo posible incluso el extenderse hacia la terraza. Esto debido a que los comerciantes de la zona suelen necesitar bodegas o lugares de almacenamiento.
Este nivel se define como el privado, pues solo se tiene acceso desde dentro de los departamentos.
En este nivel se encuentran todas las habitaciones del edificio, orientando las mayores posibles hacia el este y/o sureste, teniendo solamente una habitación orientada al oeste, sin embargo a esta le proyecta sombra el resto del edificio, por lo que se evita que se caliente demasiado el cuarto.
Aquellas habitaciones que colindan directamente con otra, se colocó acabado de madera de pino de primera calidad para insonorizar cada habitación.
Para acceder al baño es forzoso subir o bajar a este nivel, sin embargo el acceso es inmediato, evitando entrar a la recámara. Siguiendo la tónica de la planta baja, se colocaron pequeñas bodegas en el núcleo de escaleras.
S
El tercer nivel cuenta con la misma distribución que el primer nivel, con la diferencia de que éstos departamentos cuentas con dos escaleras, por la derecha se baja a la habitación y por la izquierda se sube a su espacio privado/roof garden, donde se hace uso de la vegetación como barrera visual.
Estos cuatro espacios se proyectaron como lugares que propicien la convivencia y relajación de sus habitantes, siendo un espacio público que no tiene contacto con le espacio privado del departamento.
Para aprovechar los recursos naturales, se colocaron calentadores solares para los diez departamentos.
P L