U V A M.ARCH SELECTED WORKS 2026
PENGYU WU
PENGYU WU
EDUCATION
University of Virginia School of Architecture, Charlottesville, VA
Master of Architecture
August 2024 - May 2026
Rensselaer Polytechnic Institute School of Architecture, Troy, NY
Bachelor of Architecture Minor in Electronic Arts
August 2018 - May 2024
EXPERIENCE
ZXD Architects, Beijing — Design Intern May 2024 - July 2024
Worked on large-scale design projects, including a school campus and a historic park master plan focused on preservation and tourism. Contributed to the design of campus dormitories and science buildings through 3D modeling and plan drafting. Assisted in largescale facade design and modeling for a historic town redevelopment.
Studio North, Martha’s Vineyard
June 2022
Participated in a design-build workshop led by Moskow-Linn Architects to design and construct a mobile pavilion for the Island Grown Initiative of Martha’s Vineyard. Collaborated in a small, interdisciplinary team to custom-build the structure using on-site resources and respond directly to farmers’ needs.
Shougang Design Institute, Beijing — Publication Design
June 2019 - July 2019
Collaborated with teams and worked on small-scale public projects including rest stops and public restrooms, and contributed to graphic design and layout for publications.
AWARDS
Rensselaer Polytechnic Institute School of Architecture
2021: Vertical Design 3
2021: Vertical Design 1
2020: Architecture Design Studio 4 Integrated Design Schematic
University of Virginia School of Architecture
2026: Portfolio Pages Competition: Best Graduate Design Portfolio
CONTACT INFO
pengyuwu1106@gmail.com (410) 739-9167
853 W Main St Charlottesville, VA 22903
SKILLS
• Rhino 3D model, Grasshopper, Vray
• Autodesk Revit, AutoCAD
• Adobe Suite
Photoshop, Illustrator, Indesign, AfterEffect
• ArcGIS
• DaVinci Resolve
• Unreal Engine
• D5
• Fabrication
CNC, Wood Work, 3D Printing, Laser Cutting
LANGUAGES
English Mandarin
`
01 JUTTING VOIDS
Beirut, Lebanon
Summer 2021
Critic: Matthew Lopez
Collaboration: Jonathan Marcos Rensselaer Polytechnic Institute
JUTTING VOIDS comprises three typologies: a normative bar, a surface, and a series of jutting volumes. The combination of jutting volumes, spatial additions, and subtractions ultimately immerses any observer into an experience through a series of jutting voids.
The 2020 Beirut Explosion left an everlasting impact on Lebanese society-- at least 191 individuals perished in the blast, and multiple counts of infrastructure are still yet to be repaired from the wounds inflicted by the catastrophe. Jutting Voids is a terminal-memorial complex that would replace the currently defunct Passenger Terminal at Beirut’s Port Authority and is intended not only to circulate passengers from naval passenger and cruise lines but also to honor those who fell in this untimely explosion.



A Protected Memorial set back 45 degrees from the terminal guarded from the coast line. The memorial is oriented towards the explosion site as a direct tribute.


Typology from bar shaped terminal stepping down to the ground condition of the memorial, to create the protection layer.


The Memorial is made to be a mirror image of the terminal, following the same 30-6090 degree typology of the terminal. The memorial is designed to be a heart-warming gathering place for people who come here to share memories and pay homage to their loved ones. It is also a safe place for local artists to express respect in the form of their art.
To the northeast of the memorial is a park. This park includes some parking spaces, green vegetation areas, and a bridge. This functions as an additional outdoor space, as many local markets can take place here. The bridge is extended over to the ocean, pointing directly to the explosion site, acknowledging and honoring the event. As time progresses, people can come to the end of the bridge and watch the explosion site getting rebuilt and repurposed to strengthen Beirutian hope and resilience.




THE VOID is created through the massing shift from a singular linear bar into a series of articulated volumes. This transformation pulls the building apart, carving a void between solid elements and allowing light, air, and circulation to pass through. Rather than functioning as leftover space, the resulting void becomes a deliberate outdoor gathering room, it supports informal occupation, and invites moments of pause within an otherwise transit-driven environment.





02
COPY PASTE
New York, NY
Fall 2022
Critic: Edwin Liu
Collaboration: Jonathan Marcos, Ashley Clark Rensselaer Polytechnic Institute
FAST FASHION HAS RISEN TO FAME DUE TO CONSTANT SOCIAL MEDIA MARKETING THAT PROMOTES FASHIONABLE PRODUCTS FOR LOW PRICES AND HIDES THE UNETHICAL WORKING CONDITIONS, LOWER-QUALITY END PRODUCTS, AND ENVIRONMENTAL CONTAMINATION WITH THEIR BYPRODUCTS.
Shein has taken the title of the fastest fast-fashion company by applying this fast-fashion model to an extreme. Shein is committed to making fashion accessible to all, and by reaching consumers in more than 150 countries, the production and consumption of their products is a global effort. Throughout history, NYC has been a home for immigrants and a significant fashion capital of the world. Due to the migrant crisis, NYC’s shelter system faces a breakdown due to the city’s ‘right to shelter’ law. A Shein complex at 30 Rockefeller Center would celebrate the absurdity of the fast-fashion model and alleviate the strain placed on the NYC shelter system. Shein is working to provide migrants with resources to survive in a new country, but at what cost? The design of the complex hides the dark powerhouse of the manufacturing plant by having a variety of publicaccess programs, such as offices and actively changing exhibition centers that disorient audiences away from the truth. However, Shein’s corner-cutting schemes also reflect in the HQ’s design, which will ultimately result in tenants finding the dark holes within Shein.





1: Absurdity Standing in the Midtown Manhattan, the project materializes the scale of fast-fashion systems.
2: Cover Up The dreamy geometry and flashy billboards cover up the original Rockefeller Center and the unethical nature.




Clockwork Section reveals the drastic condition changes in different parts of the building. But rather than interfering with each other they work together as one system.

03 Living Boundaries
Washington DC
Fall 2024
Critic: Peter Stec
University of Virginia
Washington, DC originally envisioned as a model democratic city now faces pressing challenges, including a shortage of affordable housing, increasing social segregation, gentrification, and declining neighborhood vitality. This project responds by addressing the lack of affordable mid-scale housing along Connecticut Avenue while using architecture to support social interaction and community life.
Located on Site C1 in Cleveland Park, directly across from the Park and Shop, the proposal expands housing options for single-parent families and young adults while reinforcing the Park and Shop’s role as a neighborhood anchor. The building establishes an open, permeable edge along the street, surrounding retail and public space. Its form embraces the central plaza, strengthening connections between housing, commerce, and the public realm.






Drawing inspiration from comparable mixed-use residential typologies of Chu Hai College’s new campus by OMA. The design wraps public programs at the core with private residential spaces above and around them, both in plan and section. This configuration produces a hybrid typology that integrates living, circulation, and communal activity.
Within the residential zones, single-loaded corridors on each floor function as social spaces rather than purely utilitarian passages, connecting apartments to a central vertical “playground.” Floor-level lobbies are programmed with shared activities, encouraging movement, interaction, and a sense of collective life throughout the building.
1: Concept Diagram
2: South East Street View From Connecticut Ave



Hallways The “Sliced-Opened“ Axonometric drawings demonstrate the spatial hierarchy between private and public programs and the important role of the hallways for social space and circulation.


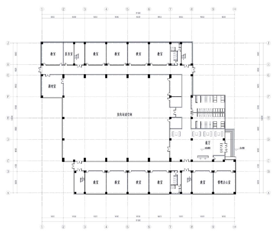
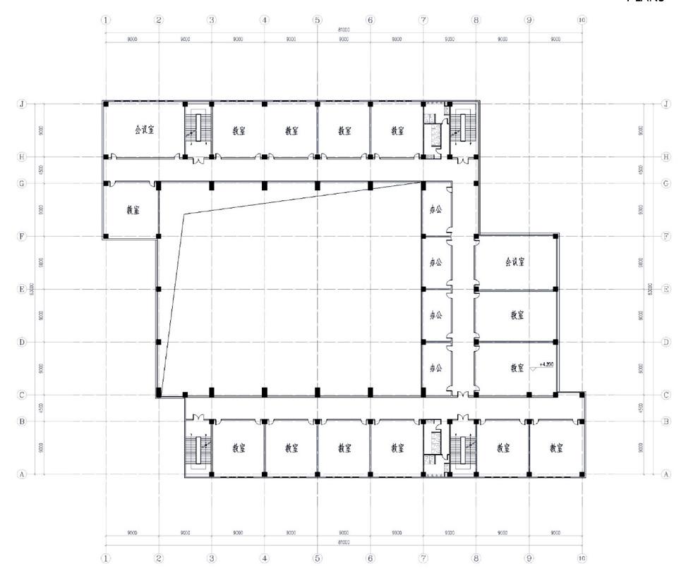
ChangZhi Education Comprehensive Training Base
Changzhi City, China
Summer 2024
ZXD Architects
The City of Changzhi invited ZXD Architect to a design competition for the city’s new Internship and Training Base. The site is located 15.4km northeast of the downtown area. The overall size is about 203814.75 square meters. The project includes 76927 square meters of class and training areas, 62325 square meters of admission and residential areas, and 10850 square meters of underground parking and support programs. I participated in this project from the beginning of May to the end of June, throughout the entire schematic design process of the final iteration. My primary role on this project was to design Research Building A and the Gymnasium, and assist with the residential buildings.


Environment Energy Research Building
Size: 17000 Square meters capacity: 1300 students
Primary Reponsibilities
• Massing Adjustments
• Facade Design
• Building Materials for Rendering
• Floor Plans






Size: 4800 Square meters capacity: 500 students
• Massing Adjustments • Facade Design



