Peiwen Li_Interior Design Portfolio_2023

Page 1

INTERIOR DESIGN PORTFOLIO

2021-2023 SELECTED WORK Peiwen Li

Design is the blooming of inspiration, nurtured by experience and refined by time.

Peiwen Li

912-200-0840

peiwen1031@outlook.com linkedin.com/in/peiwen99

01 02 03 04 CLEAN INSPIRING NEST BREW BLOSSOM VIRTURAL SPACE PATTERN DESIGN

CLEAN

Project type: Public bath

Time Period: May 2021 - August 2021

Location: Huangxing Road, Changsha, Hunan, China

Bring a physically and mentally clean effect and helps newcomers to public bathing feel comfortable.

PUBLIC BATH FOR RELAXATION AND SOCIALTY

01

SITE OF CHOICE ARCHITECTURE

HANDMADE MODEL

ADJUST REGIONAL BALANCE IN FUNCTION AND ECONOMY

1. Balancing a wide range of commercial land.

2. New economy drives old economy.

WINDOW OF LOCAL SYMBOLS

1. The linkage between symbolic characteristics and existing culture and art.

CLEAN RESEARCH & ANALYSIS
2. Visually brightened.

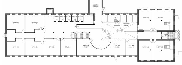
FLOOR PLAN

1 bathing pool

2 toilet

3 shower room

4 single bath

5 scrub or rest area

6 reception

7 dressing room

8 sauna room

CIRCULATION ANALYSIS

SPACIAL ANALYSIS
1 2 2 3 4 5 6 7 8
1st
FLOOR PAN 2nd FLOOR PAN
-1st
FLOOR PAN
CLEAN

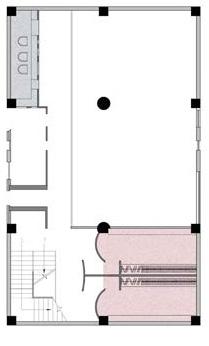
BATH JOURNEY

ELEVATION MATERIAL

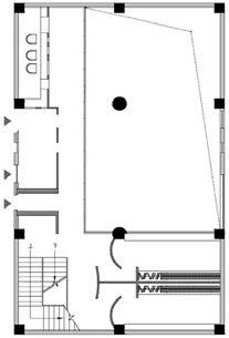
SPACIAL ANALYSIS
CLEAN

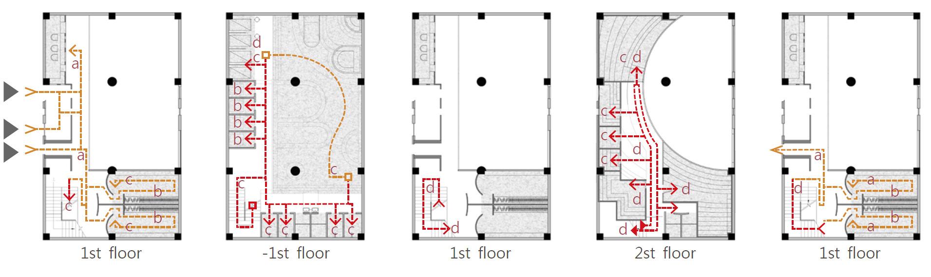
THOUGHTFUL DESIGN OF SIGHT LINE AT THE ENTRANCE

At the beginning, the guests will be confined to a small space. Once they enter any doorway, they will see the misty bathing atmosphere behind them through several arches.

The opening doorway on the left side of the entrance leads the guests to the reception to check in.

From the archway through the wall, after they enter a long corridor with a good view. Turn right and start the bath.

SIGHT LINE ANALYSIS

What can this project provide for visitors?

Body: Detoxification, promoting blood circulation and removing blood stasis, skin care.

Psychologically: A low speed, focused and relaxed activity can help relieve stress.

Remove the mask and make friends equally and widely.

Not limited by the number of people, enjoy alone or together.

Including a variety of light entertainment: chess and video watching.

SPACIAL ANALYSIS
Internal And External Sight Lines Sight Among Functional Areas Disturbed Sight Of The Pool
CLEAN
ACTIVITIES...

PERSPECTIVES

SINGLE BATHTUB

There is a separate small bathtub in the big pool. You can find a hazy afternoon enjoyment between the gauze curtain and the sunlight.

There are also several types of sauna rooms. Some are small rooms which can be locked, suitable for family, or close friends.

People in the pool can't easily see each other because they are blocked by the hanging curtains , with the Tyndall effect caused by water mist and light.

1 single bathtub

reception

bathing pool

single bathroom

2
3
5
1 3 5 1
4 sauna room
CLEAN 3 4 5 2

INSPIRING NEST

Project type: Academic building

Time Period: January 2023 - March 2023

Location: Clark Hall, Savannah, GA 31401

Redesign academic builiding for Art and Design college.

INSPIRING EDUCATIONAL BUILDING

01

PREVIOUS FLOOR PLAN SITE

BRANDING COLLAGE

SCAD is a college of art and design located in the dreamy vintage city, Savannah. Most of academic buildings are converted from old buildings.

SCAD focuses on students' innovative thinking, so it creates various vibrant scenarios to stimulate students' creativity.

SCAD also focus on collaboration among students. It offers a large number of majors, giving students from all over the world a vast arena. SCAD also hopes the connection will continue into employment after graduation.

Need a private space to be alone, where I can nap gracefully during class breaks, or talk to friends on the phone when I'm in a bad mood.

Create a public decompression area or inspiration idea wall.

The stairs are too far away for traffic.

The equipment used in the classroom for virtual meeting needs to be enhanced.

Increase the opportunities of telecommuting, can save a lot of time.

1. The building receive most of its natural light from the south-east corner. Because the sun is always to the south and the east window is larger. 2. Design strategies: Reduce the wall in the southeast facing space to bring in maximum light. Savannah, GA, USA
INSPIRING NEST
229 Martin Luther King Jr Blvd, 31401
RESEARCH & ANALYSIS

CONCEPT IN SPACE CONCEPT

SCAD Bees' Home: Inspiring Nest

This will be an inspiring home for SCAD members. The vibrant space encourages mutual engagement and collaboration, which will inspire them with each other. At the same time, the nest-like space will provide them with a sense of home.

SHELTER

• Cut-out space as display window

• Cave space

• Puzzles, assemblable furniture and brick panels

• Bee elements

DESIGN APPROACH
+ +
ELEMENTS IDEATION COLLABORATION

BUBBLE DIAGRAM

INSPIRING NEST
3rd FLOOR PAN 2nd FLOOR PAN 1st FLOOR PAN

INSPIRING SECTIOAN

Wait...I think I found a bee shape here, What a nest of inspiration for SCAD BEE!

All sorts of things are happening in the colorful space. Just Hooking at it gives me so much inspiration!

PERSPECTIVES
INSPIRING NEST

COLLABORATIVE SPACE

PERSPECTIVES 2 4 3
Common demension pattern and puzzel pattern contribute to a space where ideas come alive.

I design a bee pattern as wallpaper, using light blue color to match peaceful study environment.

There will be projection and VR accessories in each nest, giving immersive experience.

BEE'S NEST 1
INSPIRING NEST

Project type: Restaurant

Time Period: June 2022 - April 2022

Location: 9 Drayton St, Savannah, GA 31401

Concept restaurant for Korean cuisine.

KOREAN-STYLE IZAKAYA

04
BREW

CONCEPT

regeneration inherity vitality

KEY EXPERIENCES

The concept of this project was narrowed down to "brew". Inspired by the main ingredients of the chef's cooking, tofu and rice wine, which are remaken from traditional agricultural crops.

The project aims to express the cycle between tradition and emergence, and the restaurant was designed to fit the theme of regeneration and re-creation, both in terms of interior materials and decorative shapes.

The brewing and craft areas in the kitchen will also emphasize these recycled functions and concepts. At the same time the overall atmosphere of the restaurant will be warm and positive, giving a sense of pure and simple quality.

U-shaped table which enables to see the surrounding people's meals.

BREW DESIGN APPROACH
Design a direct elevator for transport food. A NYC-based chef and restauranteur, cookbook author, and philanthropist. Hooni Kim
CLIENT ANALYSIS
DESIGN DETAIL
Ambient Task Task / Decorative Accent LT-1, LT-2 LT-3, LT-4, LT-5 LT-6, LT-7 LT-8 CH-2 CH-1 CH-3 ST-1 FL-1 FL-2 FN-3 FN-2 FN-1 FN-4 CH-5 TB-1 TB-2 SF-1 SC-1
LIGHTING PLAN FURNITURE PLAN
PERSPECTIVES
BREW
DINING AREA

Project type: Gallery + Residential

Time Period: September 2022 - November 2022

Location: 136 Washington St, Binghamton, NY 13901

Personal gallery and residential design in rust belt.

04
BLOSSOM
PERSONAL GALLERY AND HOME

CLIENT PERSONA

SITE: RUST BELT

CLIENT STYLE SURROUNDING STYLE

ANDREW EMMA

Professor of photography department at RISD

Age: 45 years old

Culture background: France

CONCEPT

The process of blossoming is based on the original accumulation, which is reconstructed, refined and released. The moment of blossoming is magnificent and positive. Like Andrew and Emma, after years of working in the art field, it was their moment to fully express themselves when they were ready to run their gallery.

The concept will be applied to architectural structures. One will see the rotating installation hanging from the ceiling on the first floor like a slowly blooming flower. It will be the highlight of the entire gallery. Echoing this is another opening to the roof, filled with euphoria.

In addition, the shape of the decoration will be close to the shape and color of the flower. And the overall atmosphere will be positive and bright, just like the flower season.

Commercial art gallery manager

Age: 42 years old

Culture background: America

The Rust Belt refers to the geographic region from New York through the Midwest that was once dominated by manufacturing.

The Rust Belt is synonymous with regions facing industrial decline and abandoned factories rusted from exposure to the elements.

The French word éclore means to bloom.

E: Andrew is French and they both have E in their names.

BLOSSOM RESEARCH & ANALYSIS
LOGO

FLOOR PLAN 1/8'' MATERIAL SELECTION

SECTION - SOUTH 1/8''

Both of these openings give the impression of being in full bloom. Upon entering, visitors are greeted by a slowly rotating artwork on the first floor's ceiling, which gives the impression of flowers in bloom.

And in the other opening, fake seasonal flowers dangle from the third floor. Visitors will be treated to a romantic scene of falling flowers if they look upward.

GALLERY FLOOR
FIRST
FL2 -up 447 SF GALLERY 2 103 100 SF LECTURE STORAGE 108 274 SF GALLERY 3 105 232 SF LECTURE/ EVENTS 106 162 SF GALLERY KITCHEN 107 OPEN TO ABOVE OPEN TO ABOVE 106 SF LOBBY 101 352 SF GALLERY 1 102 35 SF CLOSET 104 6 SF literature display wall mount art 2 drawer file storage RECEPTION MOVABLE WALLS line of opening above movable display table temporary paper curtain SCULPTURE DISPLAY wall mount art BENCH CH1 BENCH CH1 CH2 3 LF countertop CH3 projection screen E1 R ICE MAKER 25 seats 5 LF countertop S D MW dishes storage DW 4'0" 7'3" hanging curtain ADA door pad EQ1 ELEVATOR temporary paper curtain ALIGH 10' - 11 1/8" 4' 5"
Scale Project Number 1/8" = 1'-0" 1 Level 1 W4 W2 W1
www.autodesk.com/revit
WALL FINISHES CH1 CH3 W4 W1 W2 CH2 W3 W2 W1 FL2 RECEPTION FL1 FL1
LOBBY FURNITURE FLOOR FINISHES
BLOSSOM
6' 4" 10'-8'' LT2 LT2 LT4 LT1 1 GALLERY 3 LIGHTING LT1 LT2 LT3 LT4 CEILING CL2 CL1
GALLERY 2 REFLECTED CEILING PLAN

SECOND FLOOR PLAN 1/8''

The hanging paintings are flexible and can be taken down if the space needs to be empty.

FL2 向下 UP OPEN TO BLOW OPEN TO BLOW 990 SF GALLERY 4 215 SF LOBBY 57 SF ADA UNISEX W.C. 206 SF EXECUTIVE OFFICE 189 SF MEETING 101 SF ART WORK STORAGE TB1 TB1 TB1 staff acces s only temperature control TB2 TB2 TB3 CH2 CH2 CH4 CH4 EQ2 SF1 SF1 SF1 SF2 SF2 lighting control mirror grab bar 15 LF storage 4' - 9" 8' - 0" 4' - 9" glass fence with handrail enclosed glass wall rotating frame hanging on ceiling track wall mount art customized column cladding customized hollow decoration SH1 ELEVATOR 10' 11 1/8" 4' 5" www.autodesk.com/revit DESIGNERS Studio 1 - Gallery 1/8" = 1'-0" 1 Level 2
FL2 -LT5
GALLERY 1 W1 GALLERY 2
FL2
3 GALLERY FLOOR
W2
GALLERY

MATERIAL SELECTION

BLOSSOM
CH4
MEETING EXECUTIVE OFFICE FL4
FN2 EQ2
LOBBY
K1 E1
FURNITURE FINISHES EQUIPMENT GALLERY 4
TB3 SF2 SH1 CH2 TB2 FL3
TB1
FN1 FN3 FN4 FN5
ADA W.C. FL2 SF1
EQ1

THIRD FLOOR PLAN 1/8''

RESIDENTIAL FLOOR DN 149 SF LIVING 159 SF MASTER BED 55 SF 3/4 BATH 90 SF GUEST RM 57 SF MASTER BATH 33 SF CLOSET 159 SF KITCHEN 169 SF DINING 21 SF LAUNDRY 104 1 WO C R S DW T P client access only EQ2 CH2 CH5 CH5 CH7 SH2 SF4 CH6 EQ2 EQ2 EQ3 EQ3 E2 TB4 TB5 SF3 SF2 SF2 4'0" china cabinet MW side table buit-in drawer 4 LF counter 2'0" double size sleep sofa end table TB6 printer storage closet 5 LF filing cabinet, 4LF shelving washer and dryer storage ELEVATOR GRILL 2 www.autodesk.com/revit BERNICE BIENENSTOCK FURNITURE LIBRARY INTERIOR DESIGN COMPETITION SPONSORED BY THE AMERICAN SOCIETY OF INTERIOR DESIGNERS 1/8" = 1'-0" 1 Leve 3
KITHCHEN
FN8 FN9 3' 0" 1' 6"1' 0"1' 1"2' 5" 2'11" 1'6" 1'0" 2' 1 3/4" 2' 2" 1' 5" 3' 0" 2'5" 1/4" = 1'-0" 1 KITCHEN-EAST 1/4" = 1'-0" 2 KITCHEN-NORTH FN7 FN8 FN9 3'0" 1'6"1'0"1'1"2'5" 2'11" 1' 6"1' 0" 2'1 3/4" 2'2"1'5" 3'0" 2' 5" 1/4" = 1'-0" 1 KITCHEN-EAST 1/4" = 1'-0" 2 KITCHEN-NORTH FN7 FN8 FN9 3'0" 1'6" 1'0" 1'1" 2'5" 7'0" 3' 2" 3'0" 2' 11" 1'6"1'0" 2'1 3/4" 2'2"1'5" 3'0" 2'5" 1/4" = 1'-0" 1 KITCHEN-EAST 1/4" = 1'-0" 2 KITCHEN-NORTH FN7 FN8 FN9 3' 0" 1' 6"1' 0"1' 1"2' 5" 7' 0" 3'2" 3' 0" 2' 11" 1'6"1'0" 2' 1 3/4" 2' 2"1' 5" 3' 0" 2'5" 1/4" = 1'-0" 1 KITCHEN-EAST 1/4" = 1'-0" 2 KITCHEN-NORTH FN7 E2 LT6 Emma's paiting Andrew's handmade paiting D1 SH2 LIVING ROOM MASTER BEDROOM GUEST BEDROOM LIVING ROOM
SF2
B1 CH6 CP1
TB6 CH7
ELEVATION
SF3
TB5
SF4 FN11

FURNITURE

FINISHES

EQUIPMENT

BLOSSOM

Project concept: New romantics

Time Period: November 2020 - September 2020

Software: Rhino, SU, Lumion

Immersive space experience can reflect emotional changes of lovers.

OTHER WORKS VIRTURAL SPACE IN VR GAME

Project concept: Colorful and collaborative bees

Time Period: January 2023 - March 2023

Skill: Photoshop, Screen print. Exploring combination of motifs.

OTHER WORKS PATTERN DESIGN

EXPLORE THE GARDENS

INFINITE POSSIBLE PIECES

IDEAS IN THE PUZZLE

IDEAS IN THE PUZZLE

PORTABLE DIMENSION

Turn static files into dynamic content formats.

Create a flipbook
Issuu converts static files into: digital portfolios, online yearbooks, online catalogs, digital photo albums and more. Sign up and create your flipbook.
Peiwen Li_Interior Design Portfolio_2023 by peiwen.li - Issuu