pedro leggerini_portfolioB

Page 1

experiência profissionalpedro leggerini oliveira ferramentas

arquiteto e urbanista

FAU-PUC/RS 2017-1

pedro.leggerini@hotmail.com +55 51 99343 8118

brasileiro, residente em porto alegre-rs

áreas de interesse arquitetura, representação gráfica em arquitetura, cgi, desenho à mão livre

idiomas

português - nativo inglês - proficiente espanhol - avançado

hype studio

arquiteto (2019-2021)

alta escritório de arquitetura arquiteto (2017-2019) estágio (2014-2017)

scopeomedia - escritório especializado em cgi sociedade (2015-2018)

takeda arquitetos paisagistas estágio (2012-2014)

domínio completo nos softwares do pacote adobe - photoshop, illustrator e indesignpara pós-produção de imagens, elaboração de diagramas e apresentações.

autocad como ferramenta para desenvolvimento de projeto e 3ds max como ferramenta principal para modelagem 3d, tendo o sketchup como ferramenta secundária. renderização com o corona renderer domínio completo dos softwares acima citados.

conhecimentos básicos em archicad e rhinoceros

2

vencedor do prêmio iab-rs 2017 memória e paisagem: revitalização da ilha da casa da pólvora trabalho de conclusão de curso

menção honrosa concurso nacional de projeto para o espaço do arquiteto cau-rs, 2016 alta escritório de arquitetura menção honrosa concurso nacional de projeto para sede administrativa da câmara municipal de porto alegre-rs, 2015 alta escritório de arquitetura

premiações / eventos

monumento projeto selecionado pela comissão organizadora do XXI congresso brasileiro de arquitetura para ser executado no local do evento, 2019 com lívia koeche

high hopes - dom.rf+strelka standard housing competition projeto painelista no XXI congresso brasileiro de arquitetura, 2019 alta escritório de arquitetura

obra

projeto selecionado para exposição no viaduto das artes em belo horizonte, minas gerais, 2019 com lívia koeche

3

memória e paisagem

revitalização do centro de interpretação ambiental da ilha da casa da pólvora

• vencedor do prêmio iab-rs 2017

trabalho de conclusão de curso porto alegre, rio grande do sul 2017

orientadores prof. arq. caroline kuhn prof. arq. josé carlos marques

Há outro significado mais rico para a nostalgia, que define o fragmento abstrato como chave. O poder emotivo da nostalgia reside, neste sentido, não no desejo de reinstaurar fisicamente algo perdido, mas nas imagens idealizadas - e fragmentárias - do passado que aparecem, às vezes de maneira inesperada, no contexto de um presente muito diferente. Maccreanor Lavington. Visión Arquitectonica. a+t 8. 1996

Dotado de atributos naturais excepcionais, o Parque Estadual Delta do Jacuí – PEDJ - é a maior Unidade de Conservação da Região Metropolitana e abrange áreas nos municípios de Porto Alegre, Canoas, Nova Santa Rita, Triunfo e Eldorado do Sul. O ecossistema do Parque é constituído por um mosaico de matas, banhados, campos inundáveis e é povoado por grande diversidade de espécies da fauna silvestre, destacando-se as aves aquáticas e palustres. A Ilha da Casa da Pólvora é uma das trinta ilhas espalhadas pelo lago Guaíba, está situada a pouco mais de um quilômetro do cais de Porto Alegre e da Usina do Gasômetro. Compõem sua estrutura três edificações, o Paiol de Pólvora, a Casa da Guarda e a Casa de Chácara, construídos na década de 1850. Transformados em escombros ao longo do tempo, foram reformados entre 1998 e 2001 por iniciativa do programa Pró-Guaíba, que tinha o objetivo de promover o desenvolvimento socioambiental da Região Hidrográfica do Guaíba, para utilização do local pelo turismo, em eventos culturais e para acomodar um museu sobre o ecossistema. Infelizmente, após a recuperação das estruturas, não houveram quaisquer ações de efetivação do complexo cultural, educativo e científico, e nem mesmo recursos para a sua manutenção. Tal descaso está acarretando na degradação, mais uma vez, do conjunto de edificações que fazem parte do patrimônio histórico da cidade.

A intervenção na Ilha da Casa da Pólvora traz consigo a possibilidade de criar um equipamento de escala metropolitana, visando estabelecer uma interface apropriada entre a urbe porto alegrense e o Parque Estadual Delta do Jacuí. Para tanto, considera-se a inserção de equipamentos com porte adequado à significância da unidade de conservação na cidade e na paisagem. Visando a consolidação do local como espaço público efetivo, a escolha do programa e a escala são decisivas, devendo atingir públicos variados. O projeto leva em conta as melhorias realizadas através do programa Pró-Guaíba, porém interpreta que para a ativação plena da área, é necessária a presença de estrutura capaz de abrigar diferentes eventos, sejam eles vinculados diretamente ao tema do ecossistema e da história local, sejam eles de assuntos diversos. Valendo-se das edificações históricas da ilha, criam-se dois polos principais de atividades: situado ao sul e vinculado ao Paiol de Pólvora e à Casa da Guarda, estabelece-se o Museu do PEDJ, voltado ao turismo ecológico, cultural e ao lazer; situado ao norte e vinculado à Casa da Chácara se estabelece o Centro de Pesquisa PEDJ. É a intenção de conjugar a memória do lugar com as demandas de sustentabilidade atuais. Um diálogo entre passado e presente no qual é respeitada a vocação do local.

4

fotos da maquete de estudos da intervenção no sul da ilha e da torre da casa de guarda vista a partir da ilha da pintada mapa demonstrando os principais equipamentos no entorno

5

plano de manejo pedj

tratando-se de uma unidade de conservação, o pedj conta com plano de manejo próprio que limita os tipos de atividades antrópicas que podem ocorrer nas diferentes áreas do parque, visando a conservação do ecossistema local.

o zoneamento da ilha se distribui em quatro tipos de uso:

as zonas primitivas são áreas de mínima intervenção humana, possuindo fauna e flora com grande valor científico. apenas atividades de baixo impacto são permitidas, como visitações com fins educativos;

as zonas de uso extensivo são áreas predominantemente naturais, podendo apresentar algumas intervenções humanas. tem como objetivo oferecer acesso ao público com facilidade e permite a instalação de estruturas simples para interpretação ambiental;

as zonas de uso intensivo são constituídas por áreas antropizadas. no caso da ilha em questão, por construções de valor histórico, permitindo instalação de equipamentos voltados a valorização da cultura e ecossistema do local;

as zonas de recuperação são áreas consideravelmente antropizadas que devem ser restauradas e incorporadas às ZPs, com o objetivo de deter a degradação do ecossistema.

implantação geral

6
zp zue zui zr zp zoneamento
zue zui zr

vista fluvial da ilha da casa da pólvora e o centro de porto alegre: à direita a parte sul da intervenção na ilha: o museu e o trapiche junto aos edifícios históricos à esquerda, o cais do porto e a usina do gasômetro

centro de interpretação ambiental da ilha da casa da pólvora

7

vista do acesso fluvial ao conjunto de edificações do museu

8

museu do parque estadual delta do jacuí casa de guarda e paiol de pólvora

para implantação do programa

01. situação anterior à reforma do pró-guaíba: edificações em ruínas.

02-03. situação posterior à reforma do próguaíba: construção de trilha suspensa em madeira, incluindo trapiche e praça elevada com palafitas em concreto armado. há também a construção de unidade de apoio com estrutura em concreto armado, contando com infraestrutura mínima. nas preexistências instalam-se novas coberturas em estrutura metálica e há a recuperação de interiores e fachadas

04-05. adequações à intervenção proposta: preservação da laje, palafitas e fundações em concreto armado da unidade de apoio, assim como da praça elevada. remoção das trilhas em madeira, em péssimo estado de conservação, e das paredes de alvenaria da unidade de apoio, para mudança de programa.

06-07. percebe-se a necessidade de controlar o acesso a trilha a partir do acesso fluvial.

08-09. inserção do programa

10-11. a implantação se dá de forma cartesiana nos eixos norte e sul, leste e oeste, tanto para auxiliar na orientação em um sítio pouco conhecido, assim como forma de se contrapor às edificações preexistentes.

12-13. adequação dos percursos: a edificação do museu funciona como um pórtico de acesso à trilha, introduzindo o tema ao visitante que a percorrerá, assim como controlando o acesso.

14-15. os eixos tanto da trilha, como do atracadouro, visam valorizar a visual das preexistências.

9
diretrizes
01 04 07 10 13 02 05 08 11 14 03 06 09 12 15
10 embarque catamarã marina pública praça de chegada casa de guarda casa de pólvora 01 02 03 04 05 06 07 08 09 10 café/restaurante unidade admin. unidade apoio museu pedj trilha interpretativa implantação

do parque estadual delta do jacuí casa de guarda e paiol de pólvora

baixa nível 3.25

catamarã trapiche embarcações praça de chegada recepção/loja acesso nível 0.00 café cozinha sanitário pne acesso terraço estações de trabalho recepção/espera sala técnica sanitário pne sanitários diretoria sala de reuniões armários área funcionários vestiário lixo seco lixo orgânico mini e.t.e. transformador e bateria reservatório águas cinzas reservatório água potável zeladoria espaço multiuso auditório sala tradutor srojeção camarim acesso terraço informações armários sanitário pne sanitários depósito paiol exposições dep. acervo dep. limpeza acesso terraço acesso nível

11 desembarque
0.00 01 02 03 04 05 06 07 08 09 10 11 12 13 14 15 16 17 18 19 20 21 22 23 24 25 26 27 28 29 30 31 32 33 34 35 36 37 38 39 40 41 42 planta
museu

sala de exposições do museu

12

museu do parque estadual delta do jacuí casa de guarda e paiol de pólvora

elevação norte elevação oeste elevação sul elevação norte

13

saída para a trilha interpretativa: acesso ao paiol de pólvora enquadrado pelo volume do museu

a opção pelo uso majoritário de estrutura metálica na construção leva em consideração as especificidades do local.

sua eficiência construtiva proporciona racionalidade, leveza, montagem rápida e sem necessidade de canteiro de obras, evitando gerar resíduos ambientalmente nocivos, e é totalmente reciclável.

corte cc

corte bb

corte aa

16

museu do parque estadual delta do jacuí casa de guarda e paiol de pólvora

seção construtiva sala de exposições

pilar em concreto armado in loco 40x40cm chapa para fixação da estrutura metálica perfil ‘I’ metálico 40x40cm perfil ‘I’ metálico 50x20cm forro em chapa metálica dobrada de aço patinado escurecido perfil ‘I’ metálico 30x15cm perfil ‘I’ metálico 35x20cm piso nível 3.25cm piso elevado em concreto celular pré-moldado piso elevado em concreto celular pré-moldado; laje painel wall e=55mm; estrutura para suporte painel wall perfil ‘I’ 12x7,5cm; isolamento térmico em lã de rocha guarda corpo em perfil ‘T’ 7,5x5cm apoiado por barra chata metálica e=1cm quadro metálico articulado chapa de alumínio expandido pistão hidráulico perfil ‘T’ metálico 15x20cm perfil ‘I’ metálico 15x20cm esquadria de alumínio perfil ‘I’ metálico 55x20cm perfil ‘I’ metálico 50x20cm forro em chapa metálica dobrada de aço patinado escurecido cobertura

piso elevado em concreto celular pré-moldado; proteção mecânica; impermeabilização manta asfáltica; camada de regularização; laje em painel wall e=55cm; estrutura para suporte painel wall; perfil ‘I’ 12x7,5cm; isolamento térmico em lã de rocha jardim cobertura vegetação; terra vegetal; areia; brita 2; bidim; brita 3 guarda corpo metálico em perfil tubular circular d=3cm

17 01 02 03 04 05 06 07 08 09 10 11 12 13 14 15 16 17 18 19 20 21

o percurso da trilha interpretativa perpassa os diferentes estratos de vegetação existentes na ilha: a relação entre o visitante e bioma se fortalece através da relação entre os mirantes e as especificidades do estrato circundante

os grandes vãos reduzem a pegada da trilha elevada no solo módulo refúgio e torre mirante combinam-se para apreciar o bioma dos sacos

18

módulo refúgio

trilha elevada e refúgios para interpretação ambiental

guarda corpo em perfil metálico ‘T’ 7,5x5cm apoiado por barra chata piso grade placa em concreto celular pré-moldada 150x75cm e=4cm perfil ‘I’ metálico 20x7cm perfil ‘C’ metálico 80x20cm pilar cilíndrico em concreto armado

loco d=50cm

elevada

mirante

19
moldado in
01 02 03 04 05 06
trilha
torre

vista do conjunto do centro de pesquisas pátio coberto que conecta os laboratórios às salas administrativas

20

centro de pesquisas do parque estadual delta do jacuí casa de guarda e paiol de pólvora

diretrizes para implantação do programa

01. situação anterior à reforma do pró-guaíba: edificação em ruínas. telhado e interiores em condições precárias

02. situação posterior à reforma do pró-guaíba: recuperação da cobertura, fachadas e interiores. adequação para uso como laboratório de pesquisas do bioma: para tanto são construídas divisórias internas em alvenaria e um volume anexo funcionando como copa de apoio.

03. adequações à intervenção proposta: aproveitamento das melhorias estruturais na edificação preexistente, porém são removidos o volume anexo da copa e as divisórias internas.

04-05. percebe-se a necessidade de controlar o acesso à trilha neste outro extremo da ilha.

06-07. inserção do programa: inserção de estrutura para laboratórios.

08-09. assim como no conjunto da pólvora, respeita-se a orientação espacial absoluta norte-sul, leste-oeste, como forma de orientação e contraste com o volume preexistente.

10. adequação dos percursos: a edificação age como um pórtico, controlando o acesso à trilha e à área de preservação.

11-12. os eixos geradores das passarelas elevadas buscam relacionar a nova edificação com a preexistente.

21
01 04 07 10 02 05 08 11 03 06 09 12

trilha interpretativa centro de pesquisa pedj unidade hospedagem unidade apoio casa de chácara atracadouro

baixa nível

multiuso biblioteca/recepção lab. dep. laboratório depósito sanitário pne sanitários laboratórios sala monitoria dep. espécimes cantina cozinha sanitário pne vestiários dormitório acesso terraço recepção/espera depósito chácara sala técnica dep. limpeza estações de trabalho sala de reunião diretoria

seco e laboratorial lixo orgânico transformador e baterias mine e.t.e. reservatório águas cinzas reservatório água potável

22 exposição/sala
lixo
01 02 03 04 05 06 07 08 09 10 11 12 13 14 15 16 18 19 20 21 22 23 24 25 26 27 28 29 01 02 03 04 05 06 planta
1.25 implantação

centro de pesquisas do parque estadual delta do jacuí casa de guarda e paiol de pólvora

elevação norte elevação sul corte bb

23

arena do cavalo crioulo

esteio, rio grande do sul 2019 cliente abccc

desenvolvimento de projeto hype studio

equipe jean grivot maurício santos júlia fraga matheus oliveira projeto estrutural simon engenharia

A Arena do Cavalo Crioulo se localiza em Esteio, no interior do Parque Estadual de Exposições Assis Brasilsede da Expointer -, em área concedida à Associação Brasileira dos Criadores de Cavalo Crioulo, a ABCCC. A pista principal é palco de provas equestres que anualmente atraem grande público, principalmente as provas do Freio de Ouro. O espaço configura-se em uma serie de galpões e adições feitas ao lado da pista de provas ao longo do tempo sem um ordenamento preestabelecido, decorrência de investimentos em tempos espaçados.

Atendendo aos principais desejos da associação - a construção de uma cobertura de vão suficientemente grande para cobrir a principal pista de provas por inteiro; e a construção de camarotes, para geração de renda -, o projeto é concebido de modo que possa ser executado também em etapas espaçadas no tempo, fazendo uso de elementos construtivos modulares e faseando a obra com a construção de partes que podem funcionar com certa autonomia enquanto o conjunto ainda está inconcluso.

Além de qualificar as instalações atuais e organizar os fluxos gerados pelas atividades que ali coexistem, o projeto possibilita a ampliação gradual da capacidade de receber maiores públicos, podendo em sua configuração completa receber lotação máxima de cerca de quatro mil e quinhentos expectadores. A preferência por sistemas construtivos de baixo custo e com melhor aproveitamento nos levou a optar pelo uso de estrutura em concreto pré-moldado nos módulos de arquibancadas e nos pilares da cobertura. Acima dos pilares, o vão da cobertura é vencido por estrutura metálica, encimada por telhas sanduiche.

24
25
vista sul do conjunto experiências voltadas ao mercado

a estrutura de cobertura que protege a saída da pista de provas pode também abrigar palco desmontável para eventos musicais

26

baixa térreo

lojas existentes áreas administrativas pista mangueira bilheteria lojas cocheiras acesso camarotes / lounge locação bares / apoio pista de provas projeção cobertura palco

27 tatersal
01 02 03 04 05 06 07 08 09 10 11 planta
corte transversal experiências voltadas ao mercado

vista dos camarotes e da arquibancada leste, à esquerda o lounge

28

módulo camarote

o módulo camarote com área interna de 20m²

arquibancada para 15 pessoas em uma área

de 10m², totalizando 30m² de área.

planta baixa 2º pavimento

tatersal lojas existentes arquibancada mangueira pista mangueira camarotes lounge arquibancadas pista de provas projeção cobertura palco

experiências voltadas ao mercado

29
01 02 03 04 05 06 07 08 09
e
externa

lounge com assentos voltados para a pista da mangueira

vista do acesso aos camarotes, lounge e arquibancada leste

30
31 tatersal lojas existentes mangueira vazio lounge arquibancadas pista de provas projeção cobertura palco 01 02 03 04 05 06 07 planta baixa 3º pavimento lotação arquibancadas programa experiências voltadas ao mercado
32

proposta de faseamento da construção

fase 01 fase 02 fase 03 fase 04 fase 05 fase 06 fase 07

experiências voltadas ao mercado

arquibancada leste 12 camarotes arquibancada leste 24 camarotes cobertura da pista de provas cobertura palco lounge camarotes arquibancadas oeste e norte lojas e novas cocheiras

33

apartamento mínimo

projeto de interiores para apartamento de 27m² no edifício praça4, no bairro menino deus

porto alegre, rio grande do sul 2018 cliente lugares com alma alta escritório de arquitetura equipe gabriel johansson azeredo henrique nandi clezar

com hype studio luiza konzen jean grivot imagens scopeomedia marcenaria prosmóvel fotografia gabriel carpes

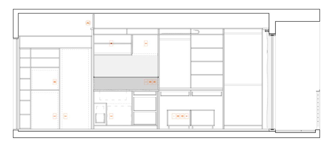
O edifício Praça4, projetado e incorporado pelo escritório HypeStudio, se localiza no bairro Menino Deus, em Porto Alegre. O bairro tem como principal atrativo a facilidade de deslocamento entre o centro e a zona sul da cidade, pois conectado a ambas regiões, dispõe da diversidade de usos das áreas centrais e de amplos espaços verdes junto ao rio Guaíba, característicos da zona sul. Situado em lote estreito, o prédio é voltado ao público estudantil, dispondo de apartamentos tipo studio, com 28m², e duplex, com 62m². O acesso aos mesmos se dá por uma série de espaços verdes condominiais subtraídos do volume da edificação, por isso o nome do empreendimento. Por disporem de área bastante reduzida, os apartamentos são comercializados com projeto de interiores que otimizam ao máximo o uso do espaço.

É sobre este problema que o seguinte projeto se debruça: a solução do projeto de interiores para o apartamento tipo studio, de 28m², através de desenho de mobiliário que permita ampla flexibilidade de layouts. A ideia é que um só cômodo se transforme em vários, o mesmo espaço pode transformar-se em dormitório, sala de estar/tv, jantar e cozinha sem abrir mão de conforto, ao contrário de várias funções apertadas no mesmo ambiente. A cama queen desce de dentro de um nicho sobre a estrutura do sofá. A mesa de jantar, com rodízios, tem lugar para até seis pessoas, podendo ser encaixada abaixo do painel da TV após o uso. Ao lado do sofá, o armário se abre em uma mesa de escritório. A cozinha conta com lugar para geladeira, forno-microondas, lava-louças, lava-roupas, cooktop, depurador e uma cuba espaçosa. A cozinha pode ser ocultada pelo painel da TV, que desliza e dá acesso ao roupeiro. Na sacada, pode-se ter uma churrasqueira e até uma pequena horta.

34
35
experiências voltadas ao mercado

planta baixa nível 1.20

planta baixa nível 0.30

36

corte ff / bb corte jj / cc corte kk / dd

experiências voltadas ao mercado

37

a marcenaria abriga uma cama tamanho queen e nicho que se transforma em mesa de escritório. o painel deslizante à direita quando fechado protege a área de dormir dos ruídos dos eletrodomésticos

38

experiências voltadas ao mercado

o televisor em painel deslizante esconde ora o roupeiro, ora o nicho da cozinha, alternando o uso de ambos. a mesa articulada situada abaixo do painel da tv quando totalmente aberta pode sentar até 6 pessoas

39
40
41
experiências voltadas ao mercado
42

apartamento construído para visitação

43
experiências voltadas ao mercado

espaço do arquiteto cau-rs

• menção honrosa concurso público nacional de projeto espaço do arquiteto cau/rs porto alegre, rs 2016

alta escritório de arquitetura equipe

gabriel johansson azeredo gabriel leivas waquil luísa kogler

O projeto para o Espaço do Arquiteto é resultado de um Concurso de Arquitetura promovido pelo Conselho de Arquitetura regional em 2016. O projeto de interiores para o espaço com dimensões restritas f se alicerça em duas premissas: flexibilidade de layout e oposição à subdivisão do espaço existente.

O projeto é dividido, então, em duas partes: bloco central de atendimento e bloco de recepção com áreas técnicas. Essa divisão estratégica resulta em um grande e amplo espaço que pode ser utilizado de diversas formas: reuniões, workshops, exposições, palestras, feiras e lançamentos.

Uma estrutura de aço suspensa define o bloco central. A escolha estrutural permite flexibilidade programática: espaços internos do bloco central podem ser reconfigurados de acordo com a necessidade do Conselho. Esse setor do projeto abriga o atendimento e salas privativas, podendo ser inteiramente enclausurado com cortina descendentes.

O bloco de recepção e serviços concentra, de forma eficiente, parte do programa de necessidades e evita que as partes técnicas segmentem o projeto. Recepção, almoxarifado, copa, lavabos e armários ficam acomodados nesse setor.

44
45 concursos

lógica

46 recepção acesso siccau sanitário recepção unidades de atendimento sala de atendimento privativo coleta biométrica espaço para exposições 01 02 03 04 05 06 07 sanitários almoxarifados almoxarifado limpeza copa rack de
ponto eletrônico bicicletário 08 09 10 11 12 13 14 planta baixa térreo
47 concursos
vista do bloco central
48

central tendo seus

para acesso

sistema siccau e área

biométrica

49 possibilidades de layout workshop vernissage lançamento livro e palestra sala de reuniões tripla sala de reuniões dupla com passagem 01 02 03 04 05 concursos 04 02 03 05 01 vista do bloco de recepção o bloco
painéis acústicos utilizados como expositores computadores
ao
para coleta
junto ao atendimento

o bloco central é uma peça visualmente permeável e extremamente flexível. ele usa tecnologias simples - essencialmente divisórias móveis e cortinas automatizadas - para configurar diversas opções de layout. as salas de reuniões podem ser subdivididas em três, duas, ou uma grande sala – além de poderem se desmaterializar, ampliando para novas e imprevistas as possibilidades de utilização do espaço.

o bloco de recepção e serviços é um bloco único que arremata a irregularidade da planta original e convida o visitante a adentrar o espaço ao mesmo tempo que acomoda grande parte do programa de necessidades. na cota mais alta, rente à laje, situam-se os dutos do aparelho: os de retorno resguardados por uma veneziana metálica que arremata o bloco por inteiro, e o de insuflamento passando por cima da mesma.

50
diagrama axonométrico bloco de recepção diagrama axonométrico bloco central

espaço do arquiteto com layout adaptado para receber exposição

concursos

juntos pela diversidade

concurso público nacional de projeto pavilhão do brasil na expo 2020

dubai, emirados árabes unidos 2018

alta escritório de arquitetura equipe gabriel johansson azeredo henrique grillo ândrio vicari henrique nandi clezar ruti conrad

O tema do Pavilhão do Brasil na EXPO 2020 Dubai, Together for Diversity, é um belo jogo de palavras que nos lembra quão importante é compreendermos que o nosso país é uma enorme convergência de culturas de origens diferentes e que a celebração desta complexidade é a única base sobre a qual podemos conceber nossa união. A arquitetura desenhada para o pavilhão se baseia na ideia de estarmos juntos uns com os outros. O projeto não segmenta os visitantes em uma longa fila de experiências introvertidas, mas sim oferece um grande espaço que privilegia a interação e a convivência. Os espaços são amplos e as experiências são coletivas, sempre convidando ao diálogo e à colaboração. A organização do fluxo e a concatenação de espaços que promovem a sequência de experiências planejadas para que se aprofundem os eixos temáticos da expografia deixa margem suficiente para que cada visitante percorra o pavilhão em seu próprio ritmo.

O pavilhão se apresenta para os visitantes como uma enorme marquise que pode ser acessada de qualquer direção que se venha e a partir da qual já se pode antever, através da permeabilidade do perímetro, o grande espaço central de pé-direito múltiplo ao redor do qual se organiza o projeto. Este espaço central monumentalizado onde as pessoas se reúnem possui precedentes em diversas culturas que compõem o Brasil, desde as aldeias indígenas até os espaços religiosos europeus, enquanto o círculo possui uma potência imagética que remete à união e à coletividade. A materialização do pavilhão através de superfícies translúcidas e de uma geometria de matriz cartesiana permite também que visitantes de culturas árabes percebam que há ali uma sutil homenagem à sua cultura. Assim, enfatizamos que a atitude do Brasil é amistosa e que sua mensagem é universal. Ainda que o pavilhão seja bastante aberto a partir do ponto de vista do observador, ele protege-se inteiramente do forte sol da região e aproveita sua forma para eliminar naturalmente o ar quente, substituindo-o continuamente através de uma estratégia passiva de controle térmico conhecida como efeito chaminé. Acreditamos, por fim, que as características plásticas do projeto possam ser bem vindas na paisagem construída da EXPO 2020, tornando o pavilhão do Brasil visível e atraente de uma maneira simples e contundente.

52
53 concursos

planta baixa térreoprograma e fluxos

a posição central que a área para eventos temporários ocupa na planta é ponto de partida para a organização do programa de necessidades: a partir dela se define um grande espaço de pé-direito múltiplo ao redor do qual se configura um amplo e contínuo salão elevado sobre o térreo que recebe os ambientes expositivos para o público geral.

a grande marquise de entrada somada à permeabilidade do térreo permite fácil manejo das filas sem perturbar o acesso às áreas de alimentação ou aos eventos temporários.

a combinação de amplos elevadores com largas escadas permite que tanto a chegada como a saída dos salões expositivos seja confortável.

ao final do percurso, o visitante pode optar por visitar a loja, sair diretamente do pavilhão em direção ao parque da expo caso assim preferir ou, ainda, visitar as áreas de alimentação, uma vez que a curva suave descrita pelas linhas do projeto sugere naturalmente esta rota.

convidados vip possuem um acesso específico na parte traseira do pavilhão, a partir de onde podem acessar diretamente tanto as áreas administrativas, como as áreas de alimentação ou até mesmo a exposição sem ter de utilizar os mesmos acessos do público geral.

recepção/informações acesso e saída exposição auditório/exposições itinerantes loja lanchonete/café com área vip exposição: together for tomorrow

programa de apoio: sanitários, cozinha lanchonete/café, acesso vip, camarim, elevador serviço/ social/monta-cargas, doca, acesso serviço, depósito auditório.

54

planta baixa mezanino

planta baixa terceiro pavimento

programa de apoio: sanitários, copa e cozinha restaurante, depósito mantimentos, câmara fria,al moxarifado limpeza, elevador serviço/ social/monta-cargas.

exposição: together for nature exposição: together for peoplerestaurante

programa de apoio: sanitários, controle sistema geral, sala ti, sala e vestiários staff, depósito exposição, elevador serviço/social/monta-cargas.

55
concursos
56

museologia e expografia

O projeto expográfico se baseia na promoção de experiências sensoriais coletivas e na interação dos visitantes entre si. A exposição inicia ampliando o primeiro eixo temático: Together for Nature. Os espessos filtros de luz presentes nas fachadas do pavilhão criam um sombreamento rico em texturas que diminui a luminosidade do espaço interno a um nível em que se consegue utilizar projeções com forte contraste, aumentando a riqueza de cores e detalhes.

(fig.a)

Os visitantes são recebidos por uma enorme maquete topográfica representando a vastidão do território brasileiro. Um projetor de alta definição lança sobre o mapa animações em computação gráfica que revelam as diversas características da natureza no Brasil.

(fig.b)

Em seguida, o visitante entra em contato com uma enorme mesa junto ao vazio central, onde uma tela sensível ao toque permite a interação concomitante de diversas pessoas com palavras-chave ligadas aos eixos temáticos explorados na exposição. O sistema então cruza os temas de interesse dos visitantes e seleciona um vídeo que explora estes assuntos transmitidos em toda a superfície interna do pavilhão

(fig.c)

O percurso para o lado oposto do vazio central inclui uma galeria planejada para apresentar ao visitante amostras da abundante flora nativa do Brasil. Já inócuos do ponto de vista biológico, mas ainda instigantes para a visão e o tato, estes fragmentos estão dispostos de maneira aparentemente aleatória no espaço, como se levitassem, criando uma constelação tridimensional de objetos ricos em detalhes, cores e texturas na qual o visitante penetra completamente e com a qual interage corpo a corpo.

57
concursos
c b a
58

museologia e expografia

(fig.d)

Na terceira galeria, o eixo temático Together for People é apresentado de maneira lúdica e interativa. Os visitantes são convidados a participar de um jogo de curta duração que se baseia na remoção de peças de uma estrutura empilhada. Cada peça contém uma tela onde um brasileiro apresenta seu modo de vida, seu trabalho e a cultura de sua região de maneira objetiva. O colapso inevitável da estrutura evidencia metaforicamente que o Brasil é um país diverso e que todos os brasileiros contribuem para construí-lo e são fundamentais para mantê-lo sólido e unido.

(fig.e)

Já no pavimento térreo, o visitante pode interagir com a instalação Turning Table, onde expande-se o terceiro e último eixo temático: Together for Tomorrow. Aqui, painéis giratórios apresentam, de um lado, desafios que o Brasil precisa enfrentar em diversas áreas como energia, preservação ambiental, economia e gestão climática, já no lado oposto os painéis expõem de maneira clara e ilustrada as ações que tanto o governo como organizações não governamentais estão pondo em prática no país para garantir que o futuro de todos seja promissor.

Ao final, caso o auditório não esteja em uso, o visitante pode sentar-se confortavelmente na área central para acompanhar por mais alguns minutos as transformações que os vídeos imersivos causam no pavilhão, aprendendo mais sobre a cultura e a natureza do Brasil.

quando o salão para eventos temporários não está em uso, ele se integra aos ambientes expositivos naturalmente.

59
concursos
e d

high hopes

concurso internacional de projeto

dom.rf + strelka standard housing and residential development concept russia 2018 alta escritório de arquitetura

equipe gabriel johansson azeredo ândrio vicari lucas kirschner henrique nandi clezar natália pires

projeto estrutural eng. matheus erpen benincá eng. bruna spricigo

Em 2018, a DOM.RF lançou, junto com a Strelka, o Concurso Standard Housing and Residential Development Concept com o objetivo de desenvolver projetos residenciais em escala urbana através de tipologias habitacionais alternativas. O foco do concurso estava na criação de novos layouts de apartamentos - de studios a apartamentos de quatro dormitórios - e que fosse garantida a qualidade urbana e espacial. As edificações deveriam atender critérios de sustentabilidade e deveriam ser dividas em tipologias de baixa, média e alta altura.

O projeto procura encontrar equilíbrio e beleza no tecido da cidade. Acreditamos na importância de ter ruas ricamente ativadas no nível do pedestre e na alegria de reuniões inesperadas e qualquer outro tipo de interação social urbana - todavia, não buscamos essas qualidades em qualquer tipo de emulação do tecido da cidade medieval, mas em quarteirões da cidade relativamente pequenos, porosos e entrelaçados. O projeto explora calçadas periféricas e o interior dos blocos - proporcionando um ambiente urbano, rápido e silencioso, com mais alternativas de caminhos bucólicos. Uma construção baixa e linear conecta o os edifícios residenciais, ajudando a moldar espaços legíveis dentro do bloco, enquanto fornece espaço para atividades comerciais e públicas que são complementos essenciais para as residências. Acima dela, os moradores encontram os abundantes terraços condominiais para banhos de sol, plantio e reuniões amigáveis.

Quanto à arquitetura, a composição respeita a expressão plástica e qualidades materiais de cada edificação ao mesmo tempo que cria identidades por manipulações sutis no arranjo de os elementos. A proposta de estrutura mista de concreto e madeira serve um uso mais lógico de materiais locais renováveis. Os planos são flexíveis, utilizando as fachadas como sistemas não só de iluminação e ventilação, mas também para soluções de armazenamento, mesas e balcões. As áreas úmidas são linearmente dispostas, racionalizando a construção e deixando amplas zonas livres para os espaços principais dos apartamentos, conferindo não só flexibilidade para alterações de layout dentro das unidades, mas também para reorganizações inteiras de pavimentos, permitindo a edifícios para suportar mudanças de demanda em prazos muito mais longos.

60
61 concursos

para proporcionar o máximo de flexibilidade aos pavimentos tipo das edificações, as áreas de apoio se aglutinam em faixas bem definidas: internamente e junto às circulações verticais, as faixas condensam as áreas molhadas; enquanto externamente e junto às fachadas, as faixas condensam armários e bancadas, proporcionando proteção da incidência solar através da profundidade das fenestrações.

62
acesso gallery building acesso urban villa acesso tower building térreo público comercial auditório loja âncora estar coberto 01 02 03 04 05 06 07 planta térreo do conjunto faixas funcionais
63 concursos
corte transversal
corte
longitudinal
64

gallery building

planta nível 15.20

planta nível 12.10

planta nível 9.00

planta nível 5.90

65 studio 01 dorm. 01 dorm. + 02 dorm. 03 dorm. 4 un. 6 un. 6 un. 5 un. 2 un. x2 x2 concursos
66

urban villa

tower building

planta níveis 18.30 / 21.40

planta níveis 5.90 / 18.30 / 30.70 / 43.10

planta níveis 9.00 / 21.40 / 33.80 / 46.20

planta níveis 12.10 / 15.20

planta níveis 5.90 / 9.00

planta níveis 12.10 / 24.50 / 36.90 / 49.30

planta níveis 15.20 / 27.60 / 40.00 / 52.40

67 studio 01 dorm. 01 dorm. + 02 dorm. 03 dorm. 12 un. 20 un. 20 un. 16 un. 08 un. studio 01 dorm. 01 dorm. + 02 dorm. 03 dorm.
2 un. 4 un. 5 un. 6 un. 4 un. x2 x4 x4 x4 x4 x2 x2 concursos
68 abaixo, apartamento 01 dormitório tower building acima, apartamento 02 dormitórios gallery building studio 23,64 m²gallery building 23,20 m²urban villa 23,90 m²tower building catálogo de apartamentos
69 01 dorm 01 dorm + 02 dorm 03 dorm 41,23m² 44,90 m² 45,50 m² 57,08,64 m² 62,40 m² 58,60 m² 79,25 m² 82,90 m² 84,00 m² 102,37 m² 101,10 m² 101,40 m² concursos

concepção estrutural e tecnologias construtivas

Os três edifícios propostos priorizam o uso de elementos estruturais em madeira massiva, especialmente de madeira lamelada colada (MLC) e madeira lamelada cruzada (CLT).

As paredes externas compostas por painéis CLT são protegidas por membranas hidrofugantes e revestidas com ripas de madeira serrada. Elas contribuem para o isolamento termoacústico dos edifícios, e, em alguns casos, auxiliam no sistema estrutural, especialmente no contraventamento.

As divisões internas são compostas por painéis leves de vedação, visando obter a flexibilidade arquitetônica almejada. Os núcleos de concreto armado nas circulações verticaisconstituem uma barreira contra a propagação de incêndios nas rotas de fuga e contribuem significativamente com os sistemas de contraventamento dos edifícios. Todos os elementos de madeira são protegidos do contato direto com o solo, utilizando-se fundações de concreto armado.

O edifício tipo Urban Villa é estruturado primordialmente por um sistema de vigas em MLC, que transmite as cargas aos pilares de MLC, a algumas paredes de CLT das fachadas e ao núcleo vertical de concreto. As lajes são todas de CLT.

O edifício tipo Gallery apresenta uma disposição linear e é estruturado primordialmente por pórticos transversais em elementos de MLC, que garantem o contraventamento na menor direção. Um núcleo de concreto conectado aos pórticos por vigas longitudinais em MLC garantem o travamento na outra direção.

O formato circular do edifício tipo Tower proporciona um melhor desempenho aerodinâmico, diminuindo o coeficiente de arrasto quando comparado a uma edificação prismática tradicional. O sistema de contraventamento é composto por núcleos rígidos de concreto nas circulações verticais, conectados por vigas radiais a uma casca externa composta por pilares de MLC e painéis CLT curvos. Em relação à segurança estrutural contra incêndios, lajes mistas de CLT-concreto criam barreiras de propagação entre os pavimentos.

diferentes configurações de quarteirões com variações na disposição das tipologias habitacionais e da barra térreo de uso público

70
71 concursos

casa da sustentabilidade

concurso público nacional de projeto secretaria do meio ambiente de campinas campinas, sp 2016

alta escritório de arquitetura equipe gabriel johansson azeredo gabriel leivas waquil

com barra arquitetos rodrigo steiner leães eduardo kopittke

Concebida para se integrar completamente ao Parque Taquaral, a Casa da Sustentabilidade propõe que a visita ao edifício seja uma experiência fluida e concatenada com os demais percursos existentes no parque, amalgamando-se aos espaços abertos circundantes tanto através da continuidade de seus fluxos como com seus elementos de arquitetura que procuram diluir a transição entre áreas externas e internas ao longo da promenade.

Um percurso periférico protegido pela generosa cobertura do edifício circunda toda a planta, o que significa que independentemente da direção pela qual o visitante se aproxime, uma vez acolhido pela Casa, todas as rotas estão disponíveis. O acesso noroeste prevê uma larga escadaria em leque que se desenvolve ao redor do salão de reuniões principal. Uma pequena fenestração oferece a possibilidade de saber se há alguma atividade de interesse em andamento.

As amplas portas de acesso no sudeste alinham-se com as portas do acesso noroeste, de modo que a galeria de exposições principal funciona como uma adjacência ao percurso proposto, não exigindo do visitante que dê meia volta e percorra novamente alguma área já visitada. Assim, a visita ao edifício se torna muito mais atraente mesmo para o transeunte cotidiano, que muitas vezes atravessa o parque por necessidade e que dessa maneira pode se sentir convidado a agregar a Casa ao seu roteiro diário e, possivelmente, também a sustentabilidade que ela propala ao seu estilo de vida.

O espaço de exposições temporárias conta com pé-direito alto e abundante iluminação natural proveniente tanto das aberturas laterais, protegidas da insolação direta pelas longas projeções da cobertura do edifício, como pela iluminação zenital sobre o alinhamento das portas, onde a proteção dos raios solares se dá pelo posicionamento estratégico de placas solares - gesto que une simbolicamente as estratégias de economia ativa e passiva de energia presentes no edifício. As áreas administrativas integram-se visualmente ao salão de exposições, fazendo proveito de sua iluminação natural.

72
73 concursos
elevação oeste

vista das escadarias que conduzem ao mezanino e à cobertura

da sala principal de reuniões

74 guarda municipal pista de patinação estação bonde casa da sustentabilidade reuniões administração exposições 01 02 03 04 05 06 implantação
vista

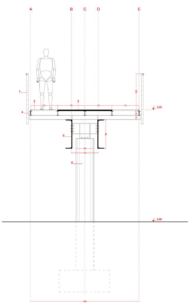
cobertura: a cobertura visitável permite conhecer as soluções de captação de água da chuva e de energia solar, além de familiarizar o visitante com outras soluções ecológicas de construção como iluminação zenital e coberturas verdes – aqui aproveitadas como hortas educativas. um amplo deck flutuante configurase como um espaço aberto público singular, que oferece longas visuais sobre o parque enquanto se conecta ao passeio contínuo disponível ao visitante. acima do salão principal de reuniões e levemente descolado do plano de cobertura, apresenta-se um característico volume cilíndrico onde se encontram os reservatórios superiores e seus maquinários.

mezanino: as escadarias que levam à cobertura funcionam também como núcleos de contraventamento estrutural. aberturas para a casa de bombas responsável por levar a água filtrada pelos jardins aos reservatórios superiores, localizada sob a escadaria que leva à cobertura, reforçam o caráter didático da construção.

o percurso que leva à cobertura da casa inclui grandes varandas acomodadas sobre as zonas de pé-direito comum do térreo concatenadas ao circuito de visitação. se prevê um espaço para exposições sobre o tema e a instalação de um pequeno bar de apoio para visitantes.

térreo: o acesso noroeste prevê uma larga escadaria em leque que se desenvolve ao redor do salão de reuniões principal. as portas de acesso à sudeste alinham-se com as portas do acesso à noroeste, de modo que o espaço de exposições principal funciona como uma adjacência ao percurso proposto. situadas à oeste e ao longo deste principal eixo circulatório, as áreas administrativas. o espaço de exposições temporárias conta com pé-direito alto e abundante iluminação natural. o salão de reuniões conta com om iluminação e ventilação natural, pé-direito múltiplo e dispõe de depósito, salas de apoio e infraestrutura multimídia.

75
concursos

vista do mezanino vista do salão de exposições

76

placa fotovoltaica horta deck flutuante de madeira estrutura deck policarbonato reciclado estrutura fixação policarbonato quadro metálico para vegetaçãotrepadeira estrutura secundária madeira haletas articuladas calha pluvial viga madeira laminada colada pilar madeira laminada colada laje moldada in loco bloco de terra batida chapa de vedação à seco viga de baldrame jardim filtrante britas e vegetais

77 concursos
diagrama axonométrico construtivo
01 02 03 04 05 06 07 08 09 10 11 12 13 14 15 16 17

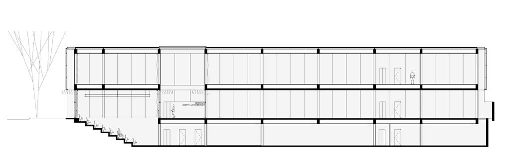
memorial joseph lutzenberger no vila flores

porto alegre, rio grande do sul 2016

acadêmico

Emigrado para o Brasil na década de 20, o alemão Joseph Franz Lutzenberger foi arquiteto e artista plástico de relevância no cenário cultural riograndense. Estabelecido em Porto Alegre, lecionou no antigo Instituto de Belas Artes. É como artista plástico considerado um dos maiores expoentes da arte gaúcha nas técnicas de aquarela e desenho, sensível a temas como a natureza da região e os costumes do povo. Como arquiteto, foi projetista de edificações simbólicas da capital, como a Igreja São José, a Fundação Pão dos Pobres e o Palácio do Comércio, caracterizadas pelo estilo eclético com tendência ao art déco.

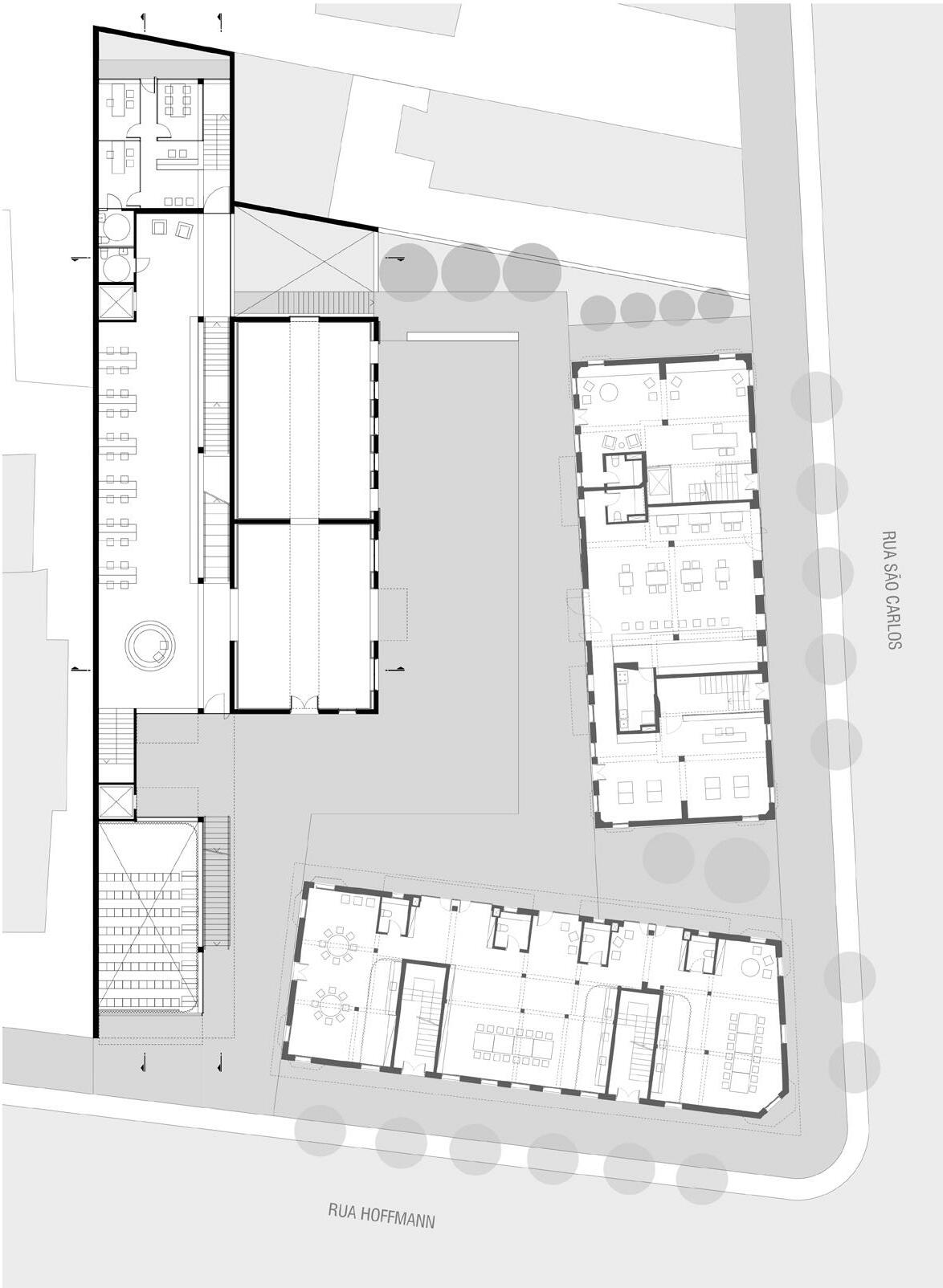
O bairro Floresta, integrante da antiga região industrial da cidade chamada de zona do 4º Distrito, recebeu dele o projeto do conjunto de edificações hoje conhecido como Complexo Arquitetônico Vila Flores, localizado na esquina das ruas São Carlos e Hoffmann. Construído no final da década de 20, dispunha de moradias de aluguel para a crescente população de trabalhadores que se deslocava para a região, antes em franco desenvolvimento. O conjunto é composto por dois prédios de três pavimentos em estrutura mistaalvenaria portante e concreto armado - e um galpão em alvenaria, conformando juntos um pátio interno. Conta com poucos adornos e baywindows nas suas salas principais.

Nos anos 50, o êxodo da indústria para áreas periféricas da cidade, ocorrido como na maioria dos centros urbanos, culminou no esvaziamento da região do 4º Distrito: inicia-se assim um ciclo de decadência que ainda perdura. A diversidade de usos do que já fora antes referido como ‘bairro-cidade’ por sua autossuficiência, deu lugar a ruas inóspitas majoritariamente ocupadas por usos voltados ora ao mercado automotivo, ora ao armazenamento de bens. A região tornou-se uma espécie de apoio ao centro multifuncional. Com o crescente desinteresse em residir na região, o conjunto de edificações projetadas por Joseph Lutzenberger se deteriorou.

Após longo período ostracizado, o alto custo do solo nas áreas centrais da cidade tem hoje invertido a tendência de esvaziamento da região. Com infraestrutura consolidada e imóveis com alto potencial para readequação de seus usos, a região se tornou atraente para a realização de projetos de diferentes iniciativas.

É o caso do Complexo Arquitetônico Vila Flores, que atualmente com administração própria, realiza a conservação e a adaptação da estrutura existente para ambientes flexíveis de trabalho voltados ao fomento da economia criativa local. Hoje, o Vila Flores é um polo cultural da região.

É neste contexto que se situa o presente projeto de intervenção: a proposição de uma estrutura capaz de abrigar e expor o acervo da obra de Joseph Lutzenberger, assim como equipamentos que sirvam de apoio às atividades socioculturais que já ocorrem. A área da intervenção abrangerá o lote adjacente com frente à rua Hoffmann; e se limitará ao uso do pátio interno – galpão incluso – e dos térreos das edificações de três andares, deixando à encargo da administração do complexo o desenvolvimento dos ambientes de trabalho localizados nos andares superiores.

Como o local costuma abrigar atividades simultâneas, o projeto tem como premissa principal dotar de autonomia as diferentes partes do programa: o pavimento térreo dos edifícios lindeiros às vias receberão

78

à esquerda, foto do conjunto projetado por joseph lutzenberger à direita , o pátio central a partir de pontos de vista opostos

atividades de uso comum do complexo, enquanto as atividades de memorial do arquiteto se concentrarão no volume a ser inserido no terreno vizinho. O galpão em alvenaria, que hoje abriga as principais atividades coletivas em área interna, será mantido e adaptado aos fluxos gerados pela nova inserção, tanto por economia de recursos, como por afeição à memória recente. Nele ocorrerão as exposições itinerantes, conservando as características de um espaço flexível que poderá tirar proveito do fluxo e da escala entre o pátio interno e a edificação do memorial.

A nova edificação terá seu volume e programa dividido em duas partes pelo átrio, que organiza o acesso às mesmas. Se situarão junto à rua Hoffmann o auditório e a sala multiuso, podendo realizar atividades de terceiros sem conflitar com as atividades exclusivamente vinculadas ao tema do memorial, que ficarão aos fundos. No térreo e resguardados lateralmente pelo galpão, se situarão a recepção e uma pequena biblioteca tratando de temas pertinentes à memória do arquiteto e artista, enquanto que no segundo pavimento, a sala de exposição do acervo permanente estabelecerá uma nova relação visual com as edificações do conjunto histórico. Nos fundos do lote, o pequeno pátio configurado pela irregularidade do terreno, dará luz e privacidade às áreas administrativas. Por fim, o subsolo volta a unir as duas partes do programa, conectando internamente as funções de serviço ao foyer do auditório.

No sentido transversal, a estrutura em concreto armado moldado in loco que receberá as atividades prin cipais do novo programa se afasta, através de eixo de pilares, em 1,50 m do galpão a ser preservado. Duas torres alinhadas ao limite lateral do lote aglutinam as áreas molhadas e as circulações verticais secundárias, garantindo flexibilidade aos layouts de exposição e outras atividades culturais. Situando-se na faixa rema nescente entre o galpão e a nova estrutura, as circulações verticais principais e seus patamares são sustenta dos por estrutura metálica que se engasta na estrutura em concreto armado a partir do segundo pavimento, propondo um percurso que se vale da interface das construções de diferentes épocas. O segundo pavimento é todo envelopado por telhas onduladas de policarbonato translúcido, fixadas em quadros metálicos, que por sua vez se conectam na estrutura metálica engastada. Isso proporciona leveza ao novo volume quando em contato com o antigo galpão, a partir do exterior; e uma reinterpretação visual turva e embaçada das edificações históricas preservadas, a partir do interior.

79
projetos acadêmicos
80 recepção exposições itinerantes biblioteca temática auditório café coworking oficinas administração loja 01 02 03 04 05 06 07 08 09 planta baixa térreo
81 auditório foyer depósito geral depósito acervo espaço funcionários utilidades pátio sala multiuso exposições acervo permanente sala de restauro 01 02 03 04 05 06 07 01 02 03 projetos acadêmicos planta baixa subsolo planta baixa segundo pav.

memorial e galpão vistos a partir da rua hoffmann

82

corte cc

corte bb

corte

83 projetos acadêmicos
aa

da recepção do memorial

84 perspectiva

projetos acadêmicos axonométrica explodida

85
86 escada
que conduz à sala multiuso no segundo pavimento vista a partir do galpão
interior
do galpão de exposições itinerantes

telha sanduíche, e=5cm forro tipo colmeia, 5x5cm trilho cortina de correr concreto armado in loco perfil tubular metálico, 15x15cm cortina tipo rolo telha de policarbonato translúcido grelha móvel para proteção solar luminária piso em madeira tábuas telha francesa existente tesoura madeira existente perfil tubular metálico, 7,5x15cm chapa metálica zinco isolamento lã de rocha esquadria alumínio gesso acartonado, e=1,5cm parede em alvenaria existente piso cimento queimado piso paralelepípedo

87
01 02 03 04 05 06 07 08 09 10 11 12 13 14 15 16 17 18 19 20 projetos acadêmicos seção construtiva transversal

sala de exposições do acervo permanente conjunto visto a partir do pátio central

88
89 projetos acadêmicos

obra

• selecionado para exposição no viaduto das artes, belo horizonte

outros territórios concurso para intervenções efêmeras no bairro buritis belo horizonte, minas gerais 2019

com lívia koeche

O concurso Outros Territórios foi uma chamada de ideias para a elaboração de um conjunto de intervenções efêmeras de caráter público no bairro Buritis, em Belo Horizonte, com o objetivo de ampliar a discussão sobre os vazios urbanos de forma multidisciplinar e despertar a sensibilidade da sociedade acerca do potencial que os mesmos possuem. Neste caso, tais vazios são representados pelos resíduos espaciais gerados entre o conflito da lógica econômico-construtiva engendrada por incorporadoras, que primam pela replicação de tipologias de torres residenciais quase como um carimbo – sem levar em conta especificidades locais, sejam físicas ou culturais –, e a topografia extremamente acidentada da região, terminando por gerar um subproduto totalmente inesperado que foge a qualquer tipo de lógica que preze pela racionalidade e eficiência do uso do solo da cidade a partir do ponto de vista urbanístico. Tais subprodutos são referidos como “palafitas”, estruturas em concreto armado sem função alguma que não seja a de nivelar o solo a partir do acesso térreo das edificações, ignorando espaços gerados nos níveis inferiores. Em algumas situações, a altura das palafitas chega a superar a altura das edificações, quando observadas a partir de cotas mais baixas.

Dentre a gama de palafitas da região que foram disponibilizadas pela organização do concurso, decidimos intervir na que foi denominada palafita-gigante I, sob o edifício localizado na rua Maria Heilbuth Surette, n. 1193, em função da acessibilidade facilitada a pedestres e à consequente potencialidade de experiências que a retícula permite em seu interior. A dimensão monumental do conjunto e a variabilidade de contrastes possíveis na criação de estares e percursos penetráveis foi motivo da elaboração estéticoarquitetônica aqui presente. A articulação entre a ortogonalidade das fundações estruturais perenes em concreto armado e a organicidade do terreno de agudo aclive se dá no gesto da adição de estruturas auxiliares efêmeras de manutenção e construção. Deslocados, aqui, de seu lugar cotidiano, o sistema de andaimes presta-se enquanto termo significante da linguagem da construção-obra para a fruição da projeção enquanto projeto, ao provocar a expansão de seu significado na vivência do momento presente como potencialidade para um devir futuro em uma sensibilização do ser cidadão - observadorparticipante - co-construtor.

90
91 arquiteturas
efêmeras

maintenance art mierle laderman ukeles

provoca o espectador-participante a reconsiderar a importância cultural da manutenção/construção e a ver diferentemente os agentes envolvidos na execução dessas tarefas: a força de trabalho, sua significância social, cultural e as relações presentes na interdiscursividade da produção do espaço.

o uso de ready-mades industriais relacionados com o cotidiano da construção e manutenção das estruturas urbanas é deslocado de seu lugar da não-arte para a experiência estética

o andaime indica um futuro porvir a obra instiga a se ver construir o percurso promove subjetividade e territorialidade imbricados

92
93 arquiteturas
efêmeras
94
95 arquiteturas efêmeras

monumento

• selecionado pela comissão organizadora do 21 congresso brasileiro de arquitetos para ser executado no evento

porto alegre, rio grande do sul 2019 com lívia koeche

projeções e produção do conteúdo lívia koeche

correalização margem: laboratório de narrativas urbanas estal andaimes fotos alcindo dedavid

O presente trabalho toma partido da temática Espaço e Democracia, escolhida pelo CAU/RS em conjunto com o IAB/RS para a XXI edição do Congresso Brasileiro de Arquitetura, realizada na Praça da Alfândega no Centro Histórico de Porto Alegre de 9 a 12 de setembro de 2019. A Praça, espaço tão estreitamente ligado à evolução urbana da cidade, figura em seu centro cívico a escultura do cavaleiro Gen. Osório.

Na literatura especializada e no folclore popular é consenso que a identidade territorial e a memória coletiva de um lugar acolhem uma multiplicidade de narrativas excêntricas relativas ao pertencimento e aos protagonismos associados à efetiva presença histórica local. No entanto, a presença pétrea de arte pública no território em questão consiste em uma narrativa visual vinculada à tradição militarista e positivista, realizada em escultura de bronze sobre podium.

No contexto específico latino-americano, historicamente sabido território conquistado por colonizações violentas e espoliação de recursos naturais, em que a imagem da civilização constituiuse assentada sobre o apagamento das narrativas originárias e/ou excêntricas às oficiais, não raro eram permitidas práticas e discursos artísticos exclusivamente lisonjeiros à classe dominante. Na região sul do Brasil, nutrida por longa (im)permanência fronteiriça de embates relativos à conquista e manutenção de territórios em conflito, a figura do soldado conquistador sobressai-se nas narrativas tradicionalmente associadas com a manutenção do poder político e - quase que invariavelmentemilitar.

96

Para propor uma experiência democrática do espaço-sede do evento, intentou-se aqui gerar uma situação na qual múltiplas possibilidades para a reedição da história do lugar sejam possíveis. Através da adição de um monolito branco semitransparente ao redor da estátua sem a tocar, deslocamos seu status permanente e incontestável pelo caráter expositivo da materialidade em construção. A utilização da estrutura de andaimes na intervenção corrobora a tradução da linguagem arquitetônica da construção de sentido na visualidade. Sua presença concreta, semidespida e reveladora da estátua pré-existente, agrega significado. O uso de ready-mades industriais relacionados com o cotidiano da construção e manutenção das estruturas urbanas desloca-se de seu lugar da não-arte para a experiência estética, de modo a convidar o espectador-participante a reconsiderar o trabalho dos agentes envolvidos, a força de trabalho e as relações presentes na interdiscursividade da produção do espaço.

O cubo branco - figura de linguagem para a sala de exposições - confere sua qualidade neutra, passiva e receptora de sentidos, deslocado e inserido aqui no foco cívico da Praça, convidativo e permissivo à imaginação e à projeção de imagens subjetivas sobre o prisma platônico flutuante, elevado em Praça pública.

97
arquiteturas efêmeras

fotomontagens da intervenção

98

diagramas sequenciais ilustrando as camadas de intervenção adicionadas

preexistência: estrutura, fechamento

projeção.

praça da matriz catedral metropolitana theatro são pedro assembléia legislativa palácio piratini palácio da justiça praça da alfândega margs memorial do rs av. sepúlveda cais do porto rio guaíba

99
à
e
01 02 03 04 arquiteturas efêmeras
arquiteturas
efêmeras
102
103 arquiteturas efêmeras

muito obrigado

Turn static files into dynamic content formats.

Create a flipbook
Issuu converts static files into: digital portfolios, online yearbooks, online catalogs, digital photo albums and more. Sign up and create your flipbook.