

Formação: Engenharia Civil – Universidade Tecnológica Federal do Paraná.
Objetivo:
Me tornar um engenheiro de referência, agindo sempre da forma correta e buscando ser a mudança que quero no mundo.
Diferença:
Facilidade em aprender, vontade de mostrar meu trabalho horando sempre com meus compromissos e responsabilidades.
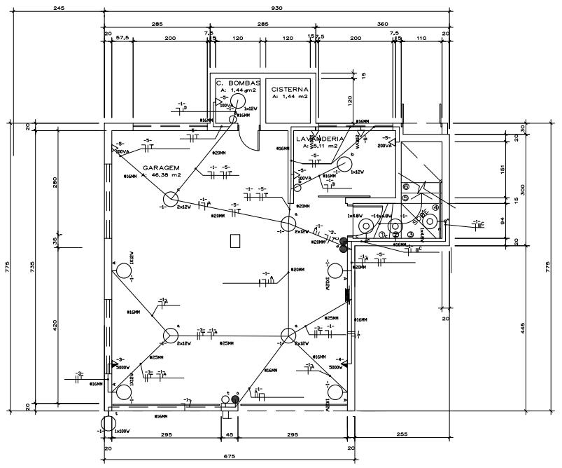
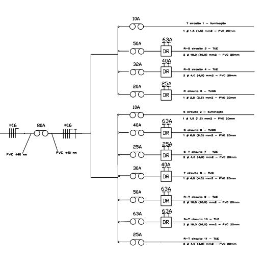
Projeto elétrico, residência unifamiliar de dois pavimentos com 170,00m²
Planilha de cálculo, feita com auxilio do software EPA.NET
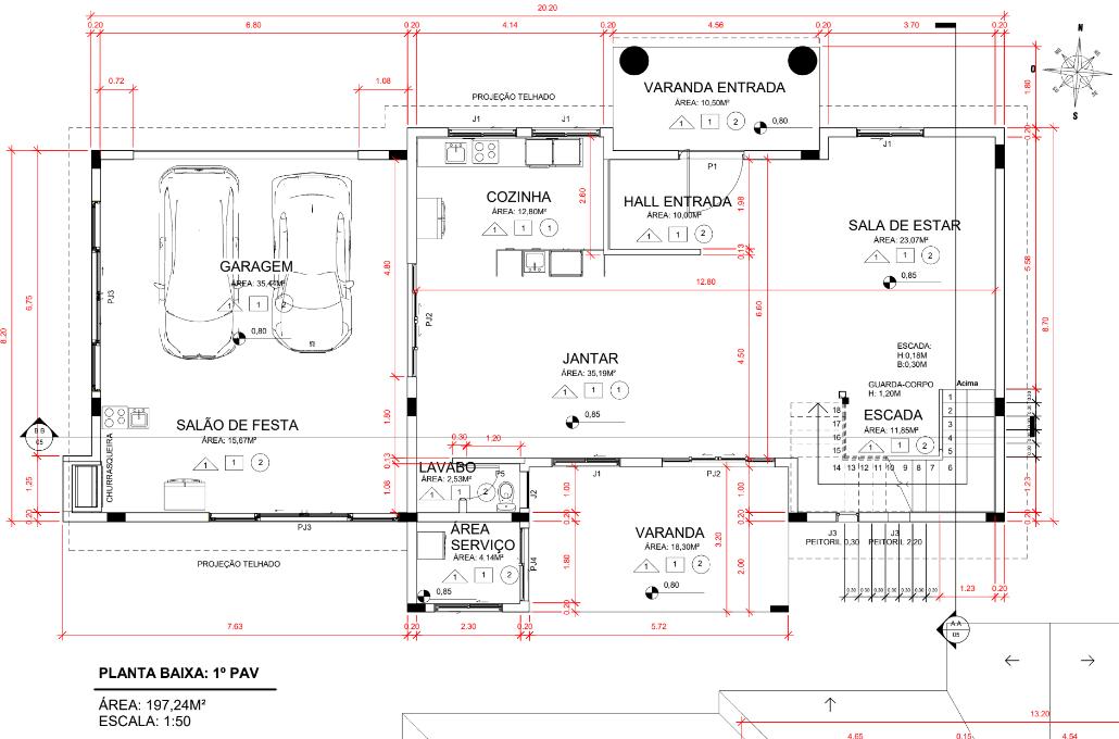
Projeto arquitetônico de residência unifamiliar com 305m².
Feita inteiramente no Autodesk Revit
Isométrico geral de projeto hidrossanitário para edificação comercial em Honório Serpa, Paraná
Ênfase para pias de açougue com grande volume de gordura
Planta do projeto
Recebida em .DWG, com modelagem própria para o desenvolvimento do projeto hidráulico
Planta Baixa do projeto hidrossanitário de uma loja de insumos agrícolas
Detalhamento isométrico de um dos banheiros da edificação
Planta Baixa dos pavimentos tipos de um edifício em Pato Branco
Detalhamento isométrico de dois banheiros do edifício
Detalhamento dos hidrômetros
Detalhamento de outro banheiro
Planta baixa de banheiro e unidade de tratamento primário de esgoto de um centro de distribuição de insumos em Pato Branco