Pedro Paes Morais | Portfólio de arquitetura

Page 1


Currículo + Trabalhos selecionados

Arquiteto e urbanista PEDRO

PAES MORAIS

PEDRO PAES MORAIS

Arquiteto e urbanista

Sou um arquiteto de origem paulistana e trajetória internacional. Após estudar e trabalhar ao lado de arquitetos na América Latina e Europa, busco oportunidades de integrar à prática arquitetônica o repertório técnico e sensível acumulado. Com três anos de estágios em escritórios e colaborações profissionais, somo experiência de trabalho em equipe, proatividade e esmero ao coletivo, cultivando sempre o espírito otimista essencial à boa arquitetura.

Informações de contato:

Email: pedropmorais17@gmail.com

Instagram: @pedro_paesmorais

FORMAÇÃO ACADÊMICA

2024

2019 2023 2022

UPM | Universidade Presbiteriana Mackenzie

Faculdade de Arquitetura e Urbanismo

Graduação em arquitetura e urbanismo com média 9.10/10, workshops, e trabalhado junto a universidades internacionais

TU Graz | Universidade Técnica de Graz

Faculdade de Arquitetura

Intercâmbio realizado durante o semestre de inverno, cursando Artística, Design Curatorial, Fabricação Digital, Projetos de Projeto com foco em Tecnologia Arquitetônica.

PRÊMIOS E CERTIFICADOS

2020 The Architectural Imagination | HarvardX

Certificado de conclusão oferecido pela Universidade plataforma EdX

2021

2021

2023

2023

2025

Em curso

Diseño Biofílico y Arquitectura del Paisaje: Proyectar

Participação no workshop desenvolvido pela Universidade parceria com a Universidad Científica del Sur - Peru. 2o Concurso de Projetos Executivos: Coberturas

Menção honrosa no concurso promovido pela escola BASALTO.

Paraisópolis: Vida Cotidiana e Design

Participação no workshop desenvolvido pela UPM junto Paris Val de Seine e a Universidade de Tokyo.

AIxBiomimicry | NEA

Certificado de participação no curso AIxBiomimicry organizado Architecture em parceria com a Fondación Antonio Gaudí.

Architecture for Landscape | Yacademy

Certificado de conclusão do curso, tutorado por Patrick ateliê projetual.

Masterviz | OF3D Academy

Treinamento em vizualização arquitetônica utilizando os Renderer.

HABILIDADES

Idiomas

9.10/10, tendo participado em diversos internacionais durante a formação.

EXPERIÊNCIA PROFISSIONAL

Castanheira

Arquitetura

Assistente de projeto

Assistente para a arquiteta Andrea Castanheira, trabalhando em desenhos 2D, modelos 3D e visualização arquitetônica.

cursando disciplinas de Pratica de Mídia Interdisciplinares e Atelier

de Harvard por meio da

Proyectar con la Naturaleza

Universidade Presbiteriana Mackenzie em

Coberturas

BASALTO.

junto à École Superieure d’Architecture

organizado por Never Enough Gaudí.

Patrick Lüth, diretor do Snøhetta, durante o

Estágio 2024

FAA | Figueroa Arquitetos Associados

Experiência de estágio em desenhos 2D, modelagem 3D, gestão de projetos executivos. detalhamento, desenvolvimento e apresentação de projetos para clientes e concursos.

Concursos de arquitetura:

Novo Centro Administrativo | Governo de São Paulo

Concurso para desenvolvimento da nova sede do Governo do Estado de São Paulo, SP.

Memorial Covid-19 | FIOCRUZ

Concurso para desenvolvimento de um memorial no Rio de Janeiro, RJ.

Requalificação do Lago Joaquina

Concurso para requalificação do Lago Joaquina Rita Bier em Gramado, RS.

Escola Técnica e Criativa | SENAC

Concurso para desenvolvimento de uma unidade do SENAC em Salvador, BA.

Ecoparque Itaipú

2o Prêmio

Concurso para desenvolvimento de um parque em Foz do Iguaçu, PR.

Concurso Iconicidades: Cachoeirinha

Concurso para restauro e expansão de casarão histórico no RS.

Concurso Iconicidades: Ecoparque Turístico Molhes da Barra 2o Prêmio

Concurso para desenvolvimento de um parque em Rio Grande, RS.

Estagio 2021

M+M Arquitetura e Urbanismo

Experiência de estágio desenvolvendo projetos em BIM e colaborando para apresentações a clientes.

CIDADE À PORTA

TEATRO DO SAL

páginas 5 - 10 11 - 16 17 - 22

23 - 28 29 - 34 35 - 40

01. CIDADE À PORTA

A DIMENSÃO COMPARTILHADA DA ARQUITETURA

2024 | Trabalho Final de Graduação

Intervindo em um bairro marcado por metamorfoses como Higienópolis, onde a interface urbana das edificações permeia a identidade do bairro desde seus primeiros casarões com amplos jardins no sec. XIX e icônicos prédios modernistas de térreos francos do séc. XX, a proposta se dedica enfaticamente aos espaços coletivos que permeiam o projeto e materializam o debate acerca do modelo de cidade que São Paulo tem adotado em diversas instâncias, que segregam estes espaços da vida na cidade.

Combinando dois lotes atualmente ocupados por um estacionamento que atravessa uma quadra, foi projetado um edifício misto que, ao passo em que oferece unidades habitacionais coerentes ao momento de crescimento da área,

não abdica de propor uma condição urbana coerente à escala térrea da cidade. Propondo usos que agenciem os atores culturais presentes na área, são oferecidos espaços para atividades coletivas que catalisem a integração destes atores à identidade urbana da área.

O espaço de convivência elevado leva o projeto à cristalização da resposta ao desafio ao qual se propôs. Atuando como um mirante para o repertório histórico do bairro, este espaço concatena memória, identidade, coletividade e reforça a pedra angular deste trabalho de graduação, que é propor, mediante a fase atual de crescimento da cidade, a valorização do que nos é comum enquanto seres humanos por meio desta dimensão compartilhada da arquitetura.

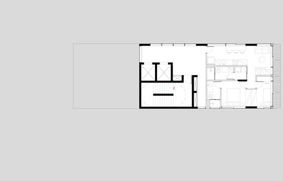
PLANTA DE COBERTURA
AVENIDA HIGIENÓPOLIS
RUA MARANHÃO

PLANTA PAVIMENTO COM 1 UNIDADE

PAVIMENTO INTERMEDIÁRIO

PAVIMENTO COM 3 UNIDADES

PLANTA
CAFETERIA

02. TEATRO DO SAL

2025 | Yacademy

Tutor: Patrick Lüth

- Architecture for Landscape

Colaboração com Catherine Scalzi, Stefano Campagna e Zexi Li

As minas de sal de Petralia Soprana, em Sicília, Itália, expõem o resultado da intervenção humana na paisagem através de seu padrões singulares e sofisticados, resultado de anos de extração por meio de escavadeiras. Quando projetando para um cenário de esgotamento da atividade extrativista neste local, essa atmosfera única torna-se a pedra angular sobre a qual o Teatro do Sal foi criado.

Tal ambiência foi explorada a partir de seu potencial performático e expositivo, conectando espaços internos através de uma navegação fluida que os integra ao parque externo. Deste modo, o programa proposto dirige seus visitantes para dentro e fora das minas por meio de um museu paisagístico, acessando o principal espaço de apresentações, localizado em uma

galeria de pé-direito duplo no coração da montanha, ao passo em que oferece equipamentos responsáveis por assegurar uma visita segura e agradável.

As diretrizes projetuais zelam pela paisagem existente, promovendo um impacto mínimo. Os pavilhões de entrada e saída se inserem como precisas incisões na topografia, oferecendo conforto e orientação para seus visitantes. O parque é desenhado para maximizar a integração com as trilhas existentes no local, conectando o teatro aos centros urbanos próximos, assim promovendo um espaço memorável que contempla praticantes locais rotineiros de atividades esportivas enquanto instiga audiências globais a visitar e participar das performances singulares oferecidas no Teatro do Sal.

Participação: Desenvolvimento e representação conceitual, desenhos e modelagem 2D/3D, pós-produção e apresentação. Todo o conteúdo aqui apresentado é de produção final do autor deste portfólio.

Artista da peça “Enquanto você voava, eu criava raízes” por Cia Dos à Deux

1 Praça de recepção

2 Pavilhão de entrada

3 Trilhas propostas

4 Áreas de descanso sombreadas

5 Pavilhão de saída

6 Acesso de serviços

7 Área de apresentações externa

8 Rota de serviços

9 Trilhas existentes

10 Fiume Salso

VISTA

CIRCULAÇÃO VERTICAL

A Pavilhão de entrada

B Museu paisagístico interno

C Teatro do Sal

D Pavilhão de saída

1 Praça de recepção

Bilheteria/Ponto de informação

Banheiros

Mina de sal

Pavilhão de saída

Trilhas propostas

Rota de serviços

03. RECINTO

2021 | Ateliê de Projeto V

A existência do ser humano o leva à busca por abrigo, a necessidade de proteção gera a criação de distintas técnicas construtivas, sendo uma das mais tradicionais delas, o tijolo. Por meio da compreensão deste material como matéria singular, capaz de exprimir a história das habitações humanas, foi possível desenvolver um recinto que almeja exaltar a conexão criada entre o homem e a natureza por meio do tijolo, concebendo-o como elemento crítico na viabilização do habitar do homem na Terra.

O recinto busca conduzir o seu interlocutor em um trajeto sensível de percepção da materialidade e estruturação deste material. Por meio de formas, ritmo e contraste o meio exprime o caráter intermediário do tijolo, como elemento fronteiriço entre o dentro e o fora. Este sistema construtivo permite diversas relações com suas condições

climáticas, filtrando parcialmente a luz para que ao decorrer do dia as sombras passeiem pelo recinto, conformando distintos compassos para a experiência no local.

O recinto é sujeito ao tempo, sua atmosfera, semelhantemente, oscila sob o ciclo das horas. Não diferentemente, o homem é vítima desta sucessão de dias e noites, restando apenas sua história, abrigada por este material longevo, símbolo da habitação humana na natureza, o tijolo.

“O modo como tu és e eu sou, a maneira pela qual nós, os seres humanos somos na terra é buan (construir), o habitar”

VISTA ISOMÉTRICA
VISTA INTERNA
VISTA INTERNA

Parede de um bloco

dupla

Parede

geométrico

Viga de cerâmica armada
Parede de um bloco e meio
Parede de um bloco e meio com reforço

04. PORTAL FRANCISCO MORATO

2023 | Concurso de Arquitetura e Urbanismo

Professor orientador: Cesar Shundi Iwamizu

Colaboração com Renata Nascimento

Enfrentando neste concurso o desafio de reimaginar a forma pela qual uma cidade se comunica com seus visitantes e moradores, as condições espaciais através das quais ideais de inovação e sustentabilidade são expressos e o legado cultural de Francisco Morato tornamse condicionantes projetuais chave. O projeto, portanto, não se apresenta como o final de um processo, mas como um estopim de conscientização ambiental que parte do munício moratense, registra-se no portal, e expande-se por meio de quem interage com ele.

Assim, o portal é o primeiro passo em um projeto urbano que inclui uma fase futura de desenvolvimento de um parque na área entre a Rua Dom Pedro I e a Via de

Acesso Manoel Silvério Pinto, enfatizando a conexão entre o portal e a consciência ecológica da cidade, combinando identidade, lazer e conservação através de um projeto icônico.

O sistema construtivo estrutura-se pela modularidade e consequente replicabilidade do projeto, abrindo portas para a inclusão da comunidade no processo de construção e formação desta representação de identidade. O portal visa fortalecer laços comunitários, oferecendo um grid de bambu no qual espaços são disponibilizados com a finalidade de serem vegetados pela população, agregando engajamento comum, transformação ambiental e presença municipal ao portal da cidade.

Participação: Desenvolvimento e representação conceitual, desenhos 2D, pós-produção e apresentação.

Todo o conteúdo aqui apresentado é de produção final do autor deste portfólio.

IMPLANTAÇÃO

VISTA FRONTAL
PLANTA DO PARQUE
VISTA DA TRAVESSIA

05. CIDADE FLEXÍVEL

2023 | Ateliê de Projeto IAT-TU Graz

Professor orientador: Martin Boles Colaboração com Emily Klosterman

Ao projetar para a reurbanização de um porto desativado em Sevilha, Espanha, o desenvolvimento conceitual do projeto aborda o edifício misto como a unificação diferentes ciclos e rotinas, coordenadas para acentuar as possibilidades de vida urbana por meio da conexão do edifício com a cidade. Esta abordagem dinâmica ao uso misto reflete-se em um projeto flexível e versátil, navegando elementos perenes e intermitentes para oferecer uma estrutura capaz de adaptar-se, crescer e abraçar a constante renovação do meio urbano.

O setor residencial constitui a porção perene do edifício, providenciando uma base pare moradores do reimaginado porto de Tablada. Elevado a 10 metros do térreo, o bloco disponibiliza espaços

flexíveis na cota inferior, onde espaços de lazer e trabalho exploram a conexão entre residentes e o chão da cidade. Através de usos diversos, essas áreas promovem fachadas ativas e estimulam a conexão com o canal ali presente.

Ocupando o espaço abaixo do bloco principal feito em concreto, essas estruturas são capazes de adaptação graças à estrutura metálica que permite modularidade e configurações espaciais flexíveis. Deste modo, este edifício híbrido proporciona oportunidades para a integração de funções promotoras da integração dos usuários do local aos espaços públicos, gerando vida e diversidade urbana no porto de Tablada.

Participação: Desenvolvimento e representação conceitual, desenhos e modelagem 2D/3D, renderização, pós-produção e apresentação.

DIAGRAMAS DE COMPOSIÇÃO

LAZER PÚBLICO

PLANTA DE COBERTURA
VISTA DA FRENTE DO CANAL

CORTE LONGITUDINAL

1 Restaurante

2 Cafeteria

3 Acesso funcionários e residentes

4 Quadras poliesportivas

5 Unidade de saúde

6 Unidades residenciais

7 Espaços de trabalho

8 Foyer do teatro 34

06. PRODUÇÃO PROFISSIONAL E ARCHVIZ

CONCURSO ICONICIDADES | ECOPARQUE TURÍSTICO MOLHES DA BARRA | 2o PRÊMIO ECCOPARQUE ITAIPÚ | 2o PRÊMIO

2022 - Concurso de Arquitetura e Urbanismo

Participação:

Desenhos 2D - Elaboração de diagramas - Pós-produção

2023 - Concurso de Arquitetura e Urbanismo

Participação:

Desenhos 2D - Modelagem 3D - Elaboração de diagramas

ESCOLA

TÉCNICA E CRIATIVA | SENAC

2023 - Concurso de Arquitetura

Participação:

Desenhos 2D - Modelagem 3D - Elaboração de diagramas - Análise de conforto ambiental

Desenhos 2D - Modelagem 3D - Pós-produção

2023 - Concurso de Arquitetura

Participação:

diagramas - Pós-produção

PRAÇA CARDEAL ARCOVERDE

Projeto: 2022 - Construído: 2023

Local: São Caetano - São Paulo - Brasil

Participação: Pós-produção - Detalhamento executivo - Visitas ao local

Desenhos 2D - Detalhamento e especificação paisagística - Elaboração de diagramas

NOVO CENTRO ADMINISTRATIVO | GOVERNO DE SÃO PAULO

2024 - Concurso de Arquitetura e Urbanismo

Participação

Desenhos 2D - Modelagem 3D - Elaboração de diagramas - Análise de conforto ambiental - Detalhamento de fachada - Pós-produção

Foto por: Manuel Sá

MEMORIAL COVID-19 | FIOCRUZ

utilizados: 3Ds Max, Corona e Photoshop

Softwares

“To rediscover the spirit of a work, an object, a park, an architecture... it must represent a joy, a challenge, something that involves the fortuitous. [...] This would be the form of an object that has returned to being a city, where it would once again be possible to move and not just commute, where walking and resting would once again be a fantasy. Dreaming is always possible.”

Turn static files into dynamic content formats.

Create a flipbook
Issuu converts static files into: digital portfolios, online yearbooks, online catalogs, digital photo albums and more. Sign up and create your flipbook.