PORTFOLIO-PEDRO

Page 1

Pedro Gras Ojeda

Este Proyecto está ubicado en el barrio de Flores, en la Ciudad de Buenos Aires, en un lote en esquina con las dimensiones 12.90m x 11.21m, con la particularidad de encontrarse en una ochava, la misma fue desarrollada en un área de 168m2.

La toma de partido es la de retirarse de la línea municipal ,para construir contra la medianera, y generar un patio entre esta y la vivienda, con el fin de tener mas privacidad y aprovechar al máximo la luz natural y ventilación.

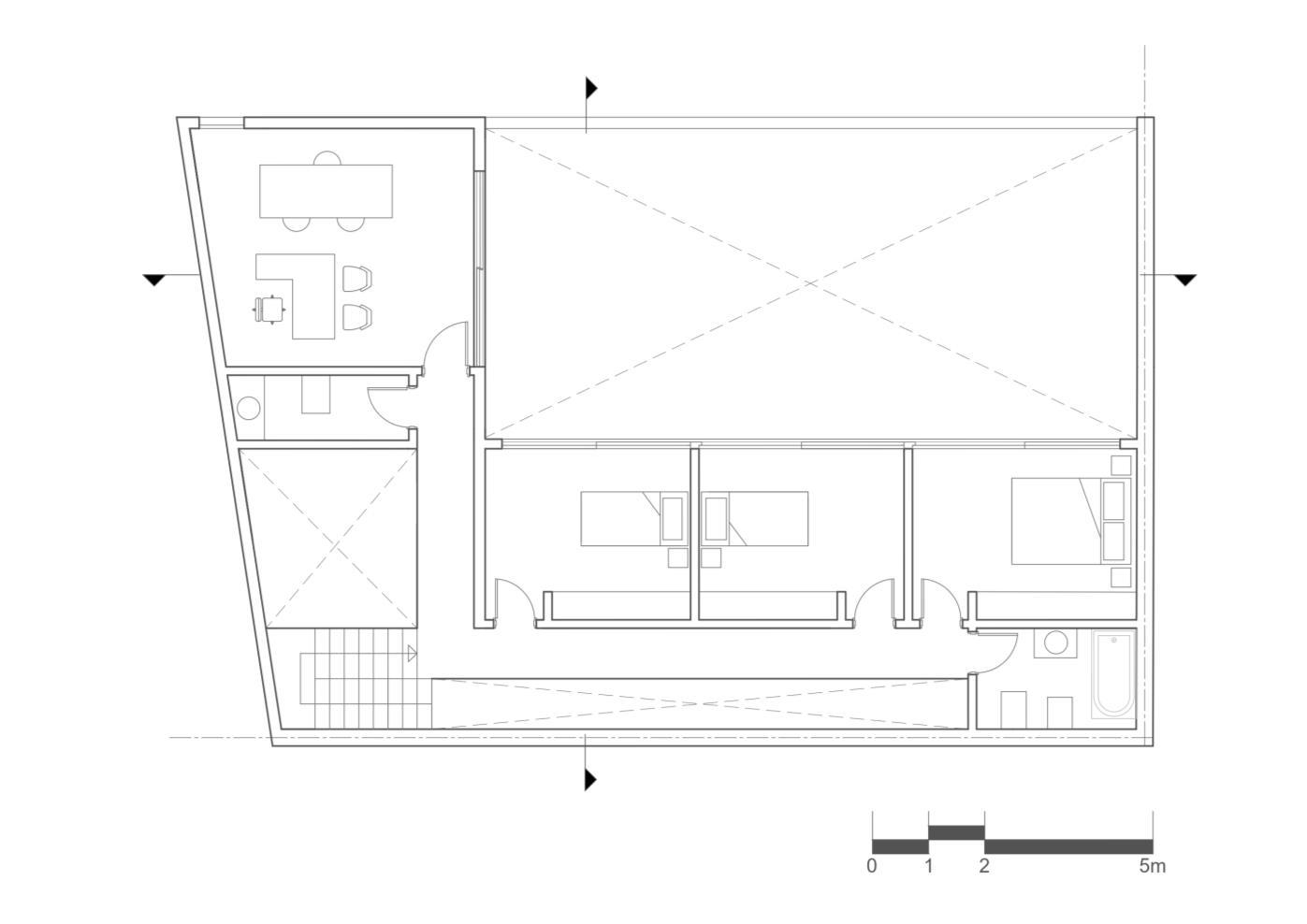
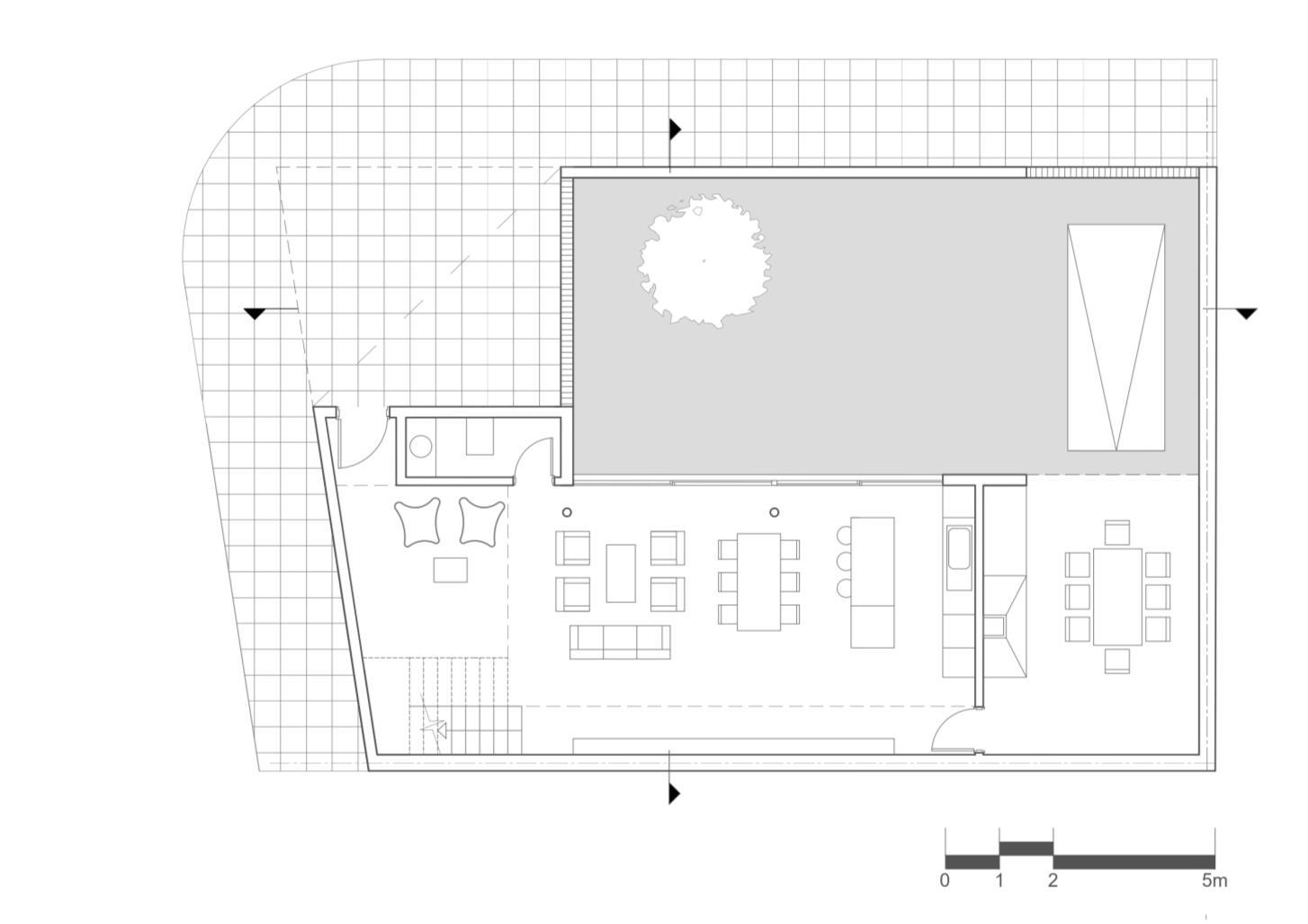
La propuesta arquitectónica para este proyecto es la de generar dos volúmenes, el inferior destinado al uso social y el superior al uso privado ambos con vista total hacia el patio frontal.

En cuanto al programa arquitectónico:

Al primer nivel lo conforma: hall de entrada, toilette, living, comedor, concina, patio y un semicubierto comprendido como un espacio recreativo que cuenta con parrilla y puede utilizarse como cochera,

El segundo nivel esta conformado: por 3 habitaciones con baño completo y un estudio privado con toilette propio.

IMPLANTACION

Vivienda unifamiliar Flores, CABA

PLANTA DE TECHOS

AU. 25 MAYO
FLORES
A A B B
PLANTA BAJA
A A B B
PLANTA ALTA VISTA NOROESTE VISTA NORESTE PRIVADO PUBLICO
ACCESOS
CORTE A-A CORTE B-B Pedro Gras Ojeda

Este Proyecto está ubicado en el barrio de Núñez, en la Ciudad de Buenos Aires, a orillas del Rio del Plata, Terreno perteneciente a la Universidad de Buenos Aires. en un lote con las dimensiones de 7200m2 , el edificio fue desarrollado en un área de 1278m2.

La toma de partido es la de construir la mayor totalidad del edificio sobre el agua con el fin de tener el mayor contacto con esta; y en la tierra desarrollar el acceso conformado por una plancha de madera sujeta al suelo y un semicubierto.

La propuesta arquitectónica para este proyecto es la de generar dos circulaciones, la principal destinado a los usos principales de la escuela, con vista abierta hacia el rio abierto y la otra los servicios con vista hacia el Rio y la ciudad. El edificio se remata con un restaurante en lo cual se termina uniendo ambas circulaciones.

En cuanto al programa arquitectónico:

Sector de acceso: Semicubierto conformado por hall de entrada y espacio destinado a realizar muestras.

Sector de Usos lo conforma: Área administrativa, esta misma cuenta con toilette, 2 Aulas ambas con espacios de guardado, pileta de aprendizaje, y restaurante.

Sector de servicios conformado por: 2 Vestuarios, cuarto de maquinas y cocina del restaurante.

IMPLANTACION

PLANTADETECHOS

Escuela Náutica de la UBA C. Universitaria, CABA

TERRENOSRECUP. POR LA UBA RIO DE LAPLATA RESERVA FADU

PLANTA

CORTEA-A VISTASUR VISTANORTE CORTEB-B

VISTAESTE

VISTAOESTE

Arquitectura 1

Escuela Náutica UBA, C. Universitaria, Caba Pedro Gras Ojeda

El Proyecto esta ubicado en el barrio de Villa Devoto, Capital Federal en un lote con las dimensiones 73m x 36,62 m. Este comprende doce (12 ) viviendas adosadas. Con el fin de crear espacios verdes y ventilación cruzada dentro de las mimas se plantearon dos patios por viviendas (uno de servicio y otro de mayor dimensión de uso recreativo). En cuanto a la propuesta

Arquitectónica el conjunto esta proyectado con la idea de masa (siendo blanco el color en su totalidad para remarcar esta idea) con celosías para permitir el ingreso de aire y luz en determinados espacios.

En cuanto al ProgramaArquitectónico:

Cada vivienda posee en el nivel inferior: Estudio/taller a la calle, Recibidor, toilette, cocina, Living Comedor, Patio de Servicio y dentro de este un semicubierto comprendido como lavadero, Patio principal y Cochera.

En cuanto a la planta alta la comprenden: Habitación principal en suit con Baño completo y vestidor propio, Terraza, dos habitaciones y Baño.

Viviendas agrupadas Devoto, CABA

Implantación IMPLANTACION
PLANTABAJA CALLE CERVANTES CALLE INDIO
CALLE LAURELES ARGENTINOS
A A B B
CALLE MELINCUE
PLANTAALTA B B A A
TECHOS

VISTA CALLES MELINCUE Y LAURELES ARGENTINOS

VISTA CALLES INDIO Y CERVANTES
CORTEA- A CORTE B - B

VIVIENDA TIPO

VIVIENDA ESQUINA

PLANTA BAJA PLANTA ALTA PLANTA BAJA PLANTA ALTA

Turn static files into dynamic content formats.

Create a flipbook
Issuu converts static files into: digital portfolios, online yearbooks, online catalogs, digital photo albums and more. Sign up and create your flipbook.
PORTFOLIO-PEDRO by Pedro Gras Ojeda - Issuu