BACHELOR OF SCIENCE
INTERIOR DESIGN
UNIVERSITY OF CINCINNATI
![]()
UNIVERSITY OF CINCINNATI
Bachelor of Science in Interior Design
Graduation: Spring 2023
BOGG MINISTRIES
SOUTHBROOK CHRISTIAN CHURCH
2015 - Present Miamisburg, OH
- assisting unloading of food trucks
- setting up tables
- organizing food at various locations throughout the Dayton area for mobile food pantry
- handing out & bagging items for families in need
- organizing/stocking warehouse with donated food items
DEAN’S
University of Cincinnati
School of Design, Architecture, Art and Planning
- Photoshop
- Illustrator
- InDesign
- Rhino
- SketchUp
- AutoCAD
- Podium
- Enscape
- Premiere Pro
- Design Manager
- Revit
- V-Ray
- Microsoft Programs
- Outlook
- Model Building
- Hand Drafting
- Woodworking
August 2024 - Present Chicago, IL
- preparing cocktails for bar guests & drink tickets
- taking & memorizing orders
- using register/handling money
- opening & closing responsibilities
- working as a team
September 2022 - July 2024 Cincinnati, OH
- welcoming and seating customers
- preparing cocktails for bar guests & drink tickets
- taking & memorizing orders
- using register/handling money
- running food/bussing tables
- closing responsibilities (bar & server floor)
- working as a team
January - August 2022 Chicago, IL
- organizing design library
- coordinating with product representatives
- assisting in all phases of the design process from inspiration, sampling, creating palettes, pulling together presentations, preparing & updating budgets/schedules, etc
- sourcing materials/FF&E
- assisting with installs & photoshoots
- site documentation
- drawing and editing floorplans & elevations in AutoCAD
January - March 2020
Chagrin Falls, OH
- preparing catalog sheets for clients
- contacting vendors for receiving
- keeping record in design manager
- setting up for client meetings
- creating schedules for lighting, bedding, etc
- updating budget
- ordering samples
- training new hires
April 2015 - Present Dayton, OH
- doing makeup for clients
- marketing my services via social media & word of mouth
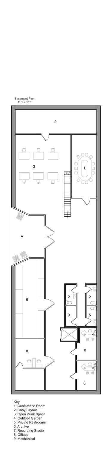
a series of immersive avant-garde installations inserted into utilitarian spaces that serve to sensorially engage and captivate users within the workplace. through the intersection of fine arts and interior design, the built environment can be transformed using light, movement and sound concepts stemming from the WELL building standard. as the world has shifted so digital, it is essential to attract energy back into transient and evocative physical environments designed to stimulate psychological wellness.
rhino, sketchup, enscape, autocad, illustrator, indesign, photoshop, canva



















SPRING 2021 [PARTNER PROJECT]
redesign the cincinnati children's hospital's cafeteria space focused around a specific concept. our goal is to create an experiential cafe within cincinnati childrens hospital that not only accommodates hospital staff in terms of providing a quick, but fulfilling meal between surgeries, but also provides a safe, happy place for patients and their loved ones (and furry friends) to spend some quality time and lift their spirits during their stay.
rhino, sketchup, podium, photoshop, illustrator
















design a public poetry foundation mainly consisting of a lobby, library, gallery and performance space within a previously surveyed plot of land in over-the-rhine, cincinnati. my design focuses on the idea of compression in poetry, and how a poem is a compressed version of a narrative. through the use of natural light & surveyed sun paths at the site, the angles of the sun bring the concept to fruition.
rhino, vray, photoshop, illustrator















focusing on the idea of third place intervention, spatially redesigning the max kade cultural center, located inside of the old chem building on university of cincinnati's campus. creating a collaborative, flexible and comfortable space that expands vertically through layering techniques to provide a multifunctional space with varying levels of privacy to accomodate all users..
sketchup, podium, illustrator, photoshop








photograph hand-sculpted forms using light and collage to create rendering-like images that emphasize three-dimensionality and spacial sequence of the created forms.
pantyhose and wire; photoshop



in 2015 I found a passion for the art of makeup. being able to use anyone's face as a blank canvas has always excited me. as I began to advertise my account, I was able to start my own small business locally doing makeup for girls all around my area and making them feel extra beautiful, no matter the occasion. INSTAGRAM @paywilmakeup











