URBAN DESIGN PORTFOLIO

Page 1

PAYAL JAIN Urban Design | Architecture Portfolio Selected works 2022-2024 2017-2022

EDUCATION:

Master of Architecture (Urban Design)

University School of Architecture, GGSIPU 2022-2024

Bachelor of Architecture

Vastu Kala Academy, GGSIPU 2017-2022

SOFT SKILLS:

• Time Management

• Organizing Skill

• Ability to work in teams

• Adaptability

• Negotiating Skills

• Problem-Solving Skills

• Critical thinking

EXTRA CURRICULAR:

• Attended meetings in NMA regarding the projects.

• Participated in 5 Days Hands on mud workshop by Maati Karyashala.

• Participated in 5 days Hands on wood workshop.

• Participated in 10 days hands on Pottery workshop in Zorba

• Attended GRIHA and LEED workshops in TERI.

SKILLS:

EXPERIENCE:

Live Project with National Monument Authority of India (NMA) 2023

Revitalizing the surroundings of Uggar Sain ki Baoli

Helix Healthcare and Helix Design

2021-2022- 9 Months Internship

• Worked On GFC Drawings of City Care- Mathura.

• Working sections and elevations of the core area of CC Mathura.

• 3D visualization of the entire CC Mathura with interior design team.

• Reflected Ceiling Plans - Madurai.

• Rendered all floor plans of Madurai International hospital.

• Working sections and elevations of the core area of Madurai.

• 3D visualization of the entire Madurai International Hospital with interior design team.

• RCP- AUKD Assam with flooring layout

• Rendered all floor plans of AUKD hospital.

• Market Study and attended various client meetings.

• Site Visits.

Freelance Projects

2022-2023

• Renovated ground floor of a residential site in Shakarpur.

• Layout of Office with residence, Sector-68, IMT, Faridabad.

REFERENCE:

Helix Healthcare and Helix Design

Ar. Rang Emei Gonmei (Principal Architect)

Contact: 9717175588

USAP, GGSIPU

Dr. Neerja Lugani Sethi (Dean)

Thesis Guide

Contact: 8130822966

Vastu Kala Academy

Dr. Amit Hajela (Dean)

Thesis guide

Contact: 9810170496

OTHER HOBBIES:

I'm an architect and urban designer that is passionate about building settings that is built FOR THE PEOPLE, BY THE PEOPLE

I believe that the built environment has a significant impact on our lives, & I seek to create spaces that promote social interaction, environmental sustainability, and individual well-being and being useful and visually beautiful

I possess a strong foundation in design principles, allowing me to tackle problems creatively

I can consider aesthetics, functionality, and user needs to find innovative solutions

Shakarpur, East Delhi 110092 Payal Jain
payaljain0919@gmail.com U-244/C
9555377611

LANDSCAPE STUDIO I

Rejuvenating the Sahibi river course, Dwarka sec 16- Delhi

UD STUDIO II

Developing Heritage City -Jaipur

UD STUDIO III

Incorporating First TOD in East Delhi

Karkardooma TOD- Delhi

CONSERVATION STUDIO (NMA)

Reimagining the public spaces around

Agrasen Ki Baoli -Delhi

INCLUSIVE CITY STUDIO

Pedestrianizing the Kamla Nagar market - Delhi

DIGITAL TECH. STUDIO

Basics Of GIS Space Syntax

EXPERIENCE

UNDERGRAD. WORKS

Thesis- Naturopathy wellness center

UD –Vasant Vihar Community Centre

Working Drawings

O N T E N T S 01 02 03 04 05 06 07 08
C

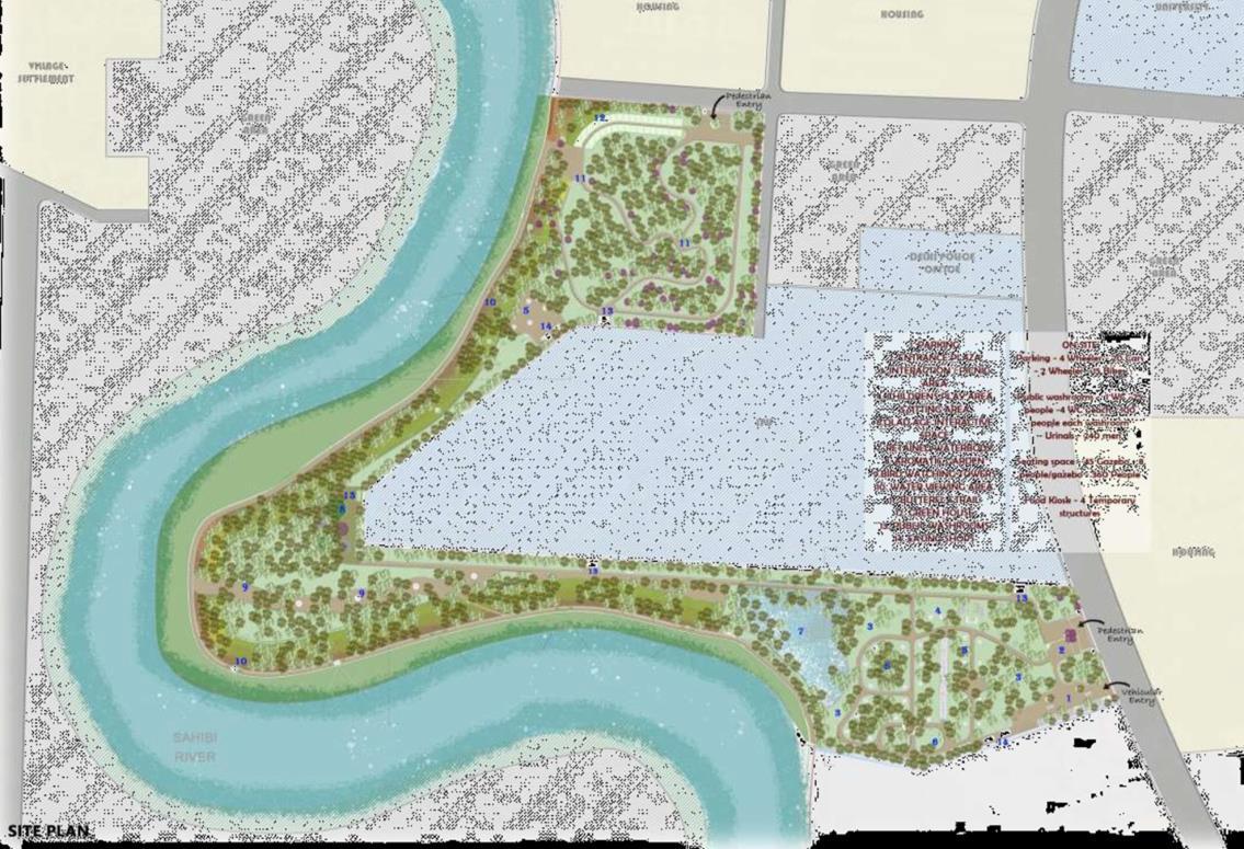
LANDSCAPE STUDIO I

Rejuvenating the Sahibi river course, Dwarka sec 16- Delhi

INTERVENTION AREA: 84.5 acres

STUDY AREA: 6Km long stretch of wetland With the DDA Park next to IPU, DWARKA

The connection between various greens is critical for creating a continuous green area that encourages pedestrianization. A park or other green space encourages regeneration or rejuvenation in the surrounding neighborhood or community. It is critical to the survival of a neighborhood and the lives of its inhabitants.

01

ABOUT THE SITE:

✓ The Najafgarh drain is in fact part of "Sahibi", a rain-fed river originating in Rajasthan.

✓ This river makes its way through the state of Haryana and then finally enters Delhi near a village called Dhansa, where it spills its overflow.

✓ This spillover led to the formation of a lake, called the Najafgarh lake

✓ The rejuvenation of the Sahibi River is a significant undertaking with the potential to transform Dwarka and contribute to the environmental health of Delhi.

SITE CONTEXT Fauna Map Activity Mapping Slope Map using GIS

PROPOSAL

VISION: To enhance riverside ecosystem and enhance the city green. AIM: To design a regional level landscape and to establish connection between human and nature.

SITE PLAN A

UD STUDIO II

Developing Heritage City -Jaipur

INTERVENTION AREA: 84.5 acres

STUDY AREA: 6Km long stretch of wetland With the DDA Park next to IPU, DWARKA

The connection between various greens is critical for creating a continuous green area that encourages pedestrianization. A park or other green space encourages regeneration or rejuvenation in the surrounding neighborhood or community. It is critical to the survival of a neighborhood and the lives of its inhabitants.

02
CONCEPT
PROPOSAL
PART PROPOSAL

03

UD STUDIO III

Incorporating First TOD in East Delhi

Karkardooma TOD- Delhi

Research Study +Design Studio INTERVENTION AREA: 70.13 acres

To generate a public realm that focuses on well being and quality of life that were achieved by enhancing cultural identity, social inclusion, the aim was to develop a mixed use realms that are linked through functions and open spaces.

CONCEPT
PROPOSAL SITE PLAN PART PLANS

CONSERVATION STUDIO (NMA)

Reimagining the public spaces around Agrasen Ki Baoli -Delhi

Research Study +Design Studio

INTERVENTION AREA: 100m Radius of the Baoli

To Transform places around Uggar Sain ki Baoli into a vibrant cultural and heritage site that showcases Delhi’s rich history, fosters community engagement and promotes awareness and appreciation of architectural heritage.

04
DOCUMENTATION
PROPOSAL
ACTUAL SITE CONCEPTUALIZATIONS PROPOSED SECTIONS

INCLUSIVE CITY STUDIO

Pedestrianizing the Kamla Nagar market - Delhi

Research Study +Design Studio INTERVENTION AREA: 3 acres

The aim of the design is to make the streets stretch a pedestrian priority streets. The strategy was to enhance the shopping experience by providing the pedestrian with ample walking spaces and allocating the vendor respective zones.

05

ABOUT THE SITE:

• Kamla Nagar Market thrives due to its unique character and affordability

• The focus prioritizes shops over pedestrian comfort Narrow walkways and haphazard parking make navigating the market challenging for pedestrians, especially during peak hours

• Prioritizing pedestrian movement with wider walkways, designated pedestrian zones, and improved signage can enhance the shopping experience.

DOCUMENTATION

ABOUT THE SITE:

• Unified aesthetic design for shopfronts and signage can enhance the visual appeal of the market and create a stronger brand identity

• Creating small plazas, parks, or green areas within the market can provide respite from the crowded environment and improve air quality

• Implementing a one-way traffic system, designated parking zones, and improved public transportation connectivity can ease congestion.

PROPOSAL
PROPOSAL

DIGITAL TECH. STUDIO

Basics of GIS

06
07 EXPERIENCE
INTERNSHIP
delivery facilities These drawing solely belong to Helix Healthcare Architecture and Helix Design, All rights reserved, copyright to Helix Design
PRINCIPAL ARCHITECT OF THE FIRM - AR. RANG EMEI GONMEI The firm provides comprehensive healthcare architectural design services for various healthcare facility types ranging from small-scale daycare/primary healthcare centers to large-scale multi-specialty, tertiary & quaternary-level healthcare
RENOVATION – GROUND FLOOR (RESIDENCE)
FREELANCE
SECTOR 68 FARIDABAD

UNDERGRAD. WORKS

Thesis- Naturopathy wellness center

UD –Vasant Vihar Community Centre

08

THESIS- NATUROPATHY WELLNESS CENTRE

✓ The site is in the K2 Zone in Delhi's master plan(west Delhi), in sector 19 of Dwarka It is well connected to IGI airport nearby, and Blue and Airport express line It has Najafgarh drain in the vicinity

✓ Site dimensions- 190M X 150M

✓ Site area- 28,500 M² (7 acres/ 2.84ha.)

✓ AIM: The concept wellness for all is to build a space where the purpose of sustainable environment can be promoted through architectural language with respect to wellness the purpose does not only concern with human well being but also creating biodiversity system to increase the wellness process

ELEVATION SECTION

✓ Location - Basant Lok, Vasant Vihar, Ward no 165, Zone F13, South Delhi

✓ Site dimensions- 190M X 150M

✓ Site area- 20 acres/ 8ha

✓ AIM: To reimagine the existing community center at Basant Lok by considering it as a TOD Project by taking charges of fringe area around the site as well. The goal achieved by providing ample interaction spaces with community gathering activities

UD –
VASANT VIHAR COMMUNITY CENTRE
ELEVATION
PHOTOGRAPHY
ARTWORKS
THANK YOU Contact me at: payaljain0919@gmail.com 9555377611

Turn static files into dynamic content formats.

Create a flipbook
Issuu converts static files into: digital portfolios, online yearbooks, online catalogs, digital photo albums and more. Sign up and create your flipbook.