Portfolio - 2024

Page 1


PORTFOLIO

PAWEL ANDRUSZKIEWICZ

ARCHITECTURE

2018-2024

TABLE OF CONTENT

01. MODULE + AFFORDABLE STUDENT HOUSING

Academic, Master Project (MSc) Project (BSc), p. 5-19

02. DIALOGUE

STUDENT’S DORMITORY

Academic, Bachelor Project (BSc) Project (BSc), p. 20-25

03. TECTOSCAPE

VOLCANO COFFE SHOP

Competition Project, p. 26-29

04. HARMONY

J. S. BACH PAVILLION

Academic, II Semester Project (BSc), p. 30-31

05. EARTH NEST

HOUSE OF THE FUTURE

Competition Project, p. 32-36

06. LIVING OUTSIDE THE BOX

MULTI-FAMILY COMPLEX

Academic, II Semester Project (MSc), p. 37-42

07. PINECONE

FARMHOUSE & COMMUNITY CENTER

Academic, Semester Project (MSc), p. 43-47

08. VISUALIZATIONS

Selected Works, p. 48-51

01. MODULE+ AFFORDABLE STUDENT HOUSING

Academic, Master Project (MSc)

Authors: Paweł Andruszkiewicz

Supervisor: Anne Snijders

Pieter Stoutjesdijk

Paddy Tomesen

Location: Netherlands, Delft

Date: 07.2023

ABOUT THE PROJECT

This Master Thesis is an attempt to address the lack of a sufficient number of affordable and qualitative student housing by creating an experimental, universal design strategy called MODULE+, combining computational design and modular architecture. The strategy consists of three main elements - individually designed flexible timber modules, an algorithm that generates the functional layout of the building based on them and optimizes it in relation to selected objectives, as well as carefully selected further design directions that allow the transformation of the generated solutions into a qualitative living environment. The developed strategy became the basis for the pilot project of a complex of residential buildings for students within the TU Delft Campus.

MODULE

Carefully designed timber modules, which can be combined togeter, creating flexible options of arrangements.

ALGORITHM

Idivdually programmed generative algorithm, which based on designed modules, generates thousends of functional layouts which are optimized in terms of number of living units, material use and sun exposure.

DESIGN DIRECTIONS

Set of designing directions, which shows how to transform generated and selected layout into qualitative living environment.

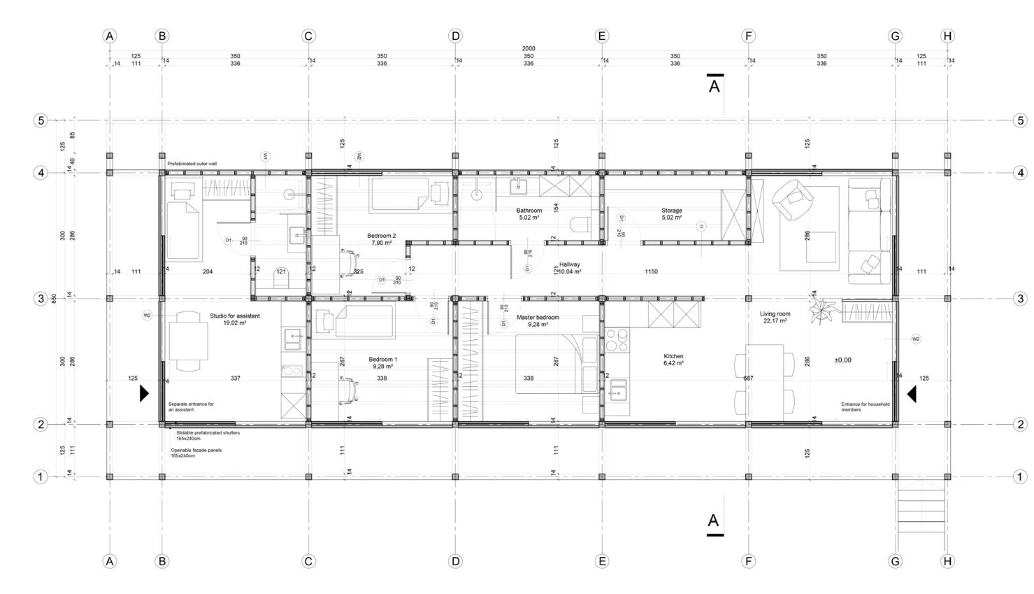
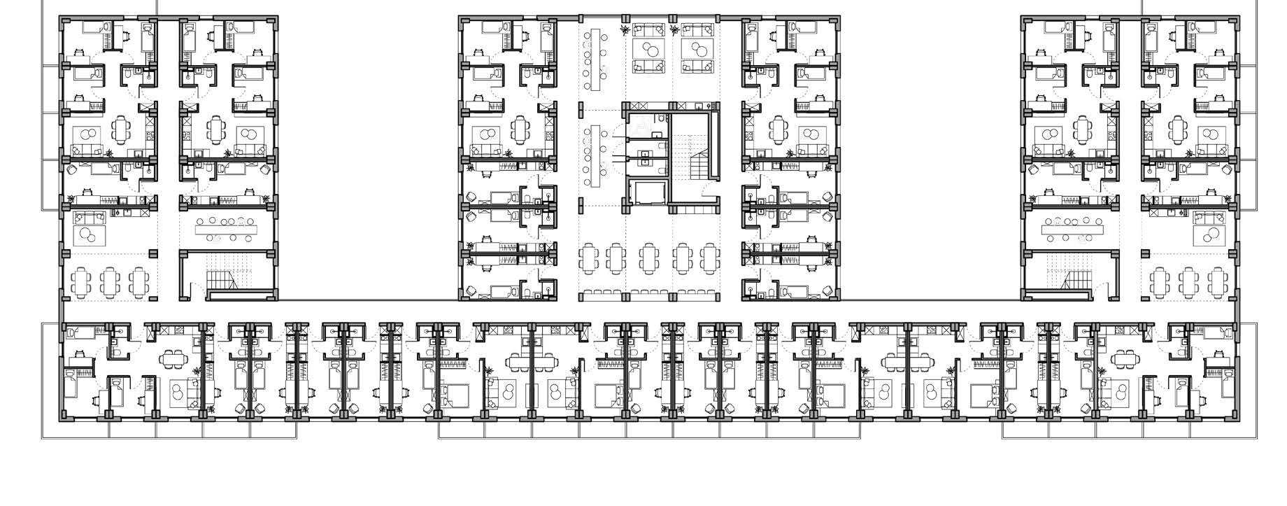
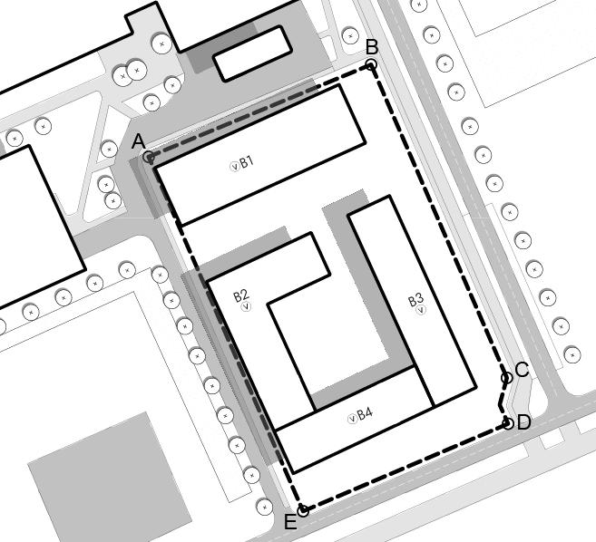
The plot selected for the pilot project of MODULE+ strategy is located within the TU Delft Campusin the future development area defined in the university masterplan. Before implementig the strategy, the plot was analysed and an initial plan of the building volumes was prepared. THE PLOT

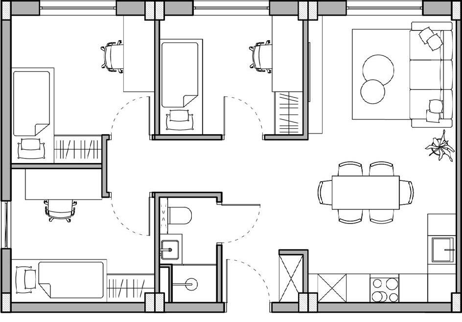
Timber modules with glulam columns and CLT floor and ceiling as a main structure. Each module can be indepentendly configured with the addition of separation walls, external elements, balcony or corridor segment. The module has got a universal layout with the range of dimensions, with the possibility to combine several modules into one bigger space. Because of open structure and removable segments, functional options and combinations are limitless.

SINGLE UNIT

Perfect for students, doctorants or university visitors. Affordable and functional space.

APARTMENT

Bigger apartment designed for a couple, which consists of two combined modules.

CO-HOUSING

Three modules combined in the co-housing flat with 3 bedrooms and common living area.

ALGORITHM

An important aspect of MODULE+ strategy is the prototype of a generative algorithm. The designer selects parameters, such as module area, dimensions, as well as objectives, which the algorithm would take in to account in the optimization process. Then, the script generates thousends of functional layouts based on prepared input, select optimal ones and ranks them based on selected objectives As a result, the designer has an overview of possible arrangements with a set of information regarding number of units, material use and total sun exposure. It does not only saves a lot of time in the entire designing process by replacing architect in the repetative task, which does not involve creativity or specialized architectural knowledge, but also provides the reliable starting point for the further design.

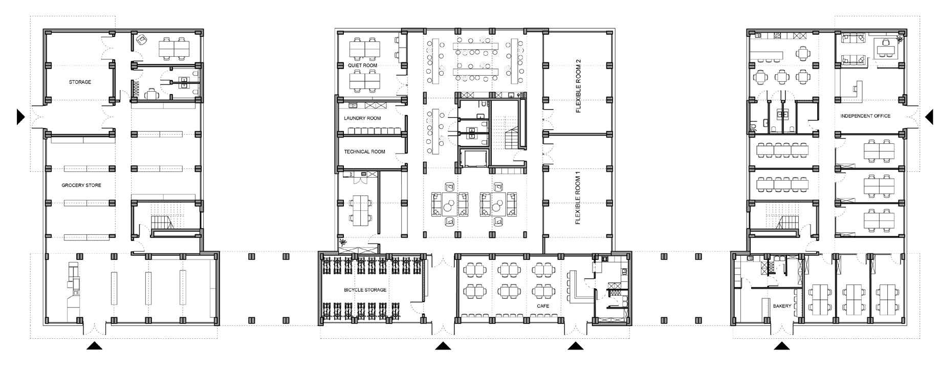
BUILDING NO. 1

BUILDING NO. 3

BUILDING NO. 2

BUILDING NO. 4

DESIGN DIRECTIONS

In order to create affordable and qualitative student housing, layouts of modules generated by the algorithm should be adjusted and developed in the individual designing process. In order to ensure the quality of the living environment, a set of designing directions - in the scale of the building, as well as the entire complex - has been created.

URBAN COMPOSITION

POINTS OF SOCIAL INTERACTIONS

PRIVATE / PUBLIC BALANCE

CIRCULATION

GREEN CONNECTIONS - URBAN

MATERIALS

FUNCTIONALITY

CIRCULAR SYSTEMS - VENTILATION

CIRCULAR SYSTEM - HEATING & WATER SKIN

GREEN CONNECTIONS

IMPLEMENTING INTO THE CONTEXT

All of the process presented before was tested and implemented in the context of the selected plot within the TU Delft Campus. First, the algorithm created a set of functional layouts based on designed timber modules. Then one of optimal solutions was selected and developed into independent design.

URBAN COMPOSITION

POINTS OF SOCIAL INTERACTIONS

CIRCULATION

FUNCTIONALITY

PUBLIC/PRIVATE

MATERIALS

SKIN SKIN & SYSTEMS GREEN CONNECTIONS
DETAIL A
DETAIL B
DETAIL C

02. DIALOGUE

STUDENT’S DORMITORY

Academic, Bachelor Graduation Project (BSc)

Author:

Paweł Andruszkiewicz

Supervisor: Stanisław Dopierała

Location:

Poland, Gdańsk-Wrzeszcz

Date: 12.2020

Transforming „DIALOGUE” concept to spatial form. Creating an inner courtyard

ABOUT THE PROJECT

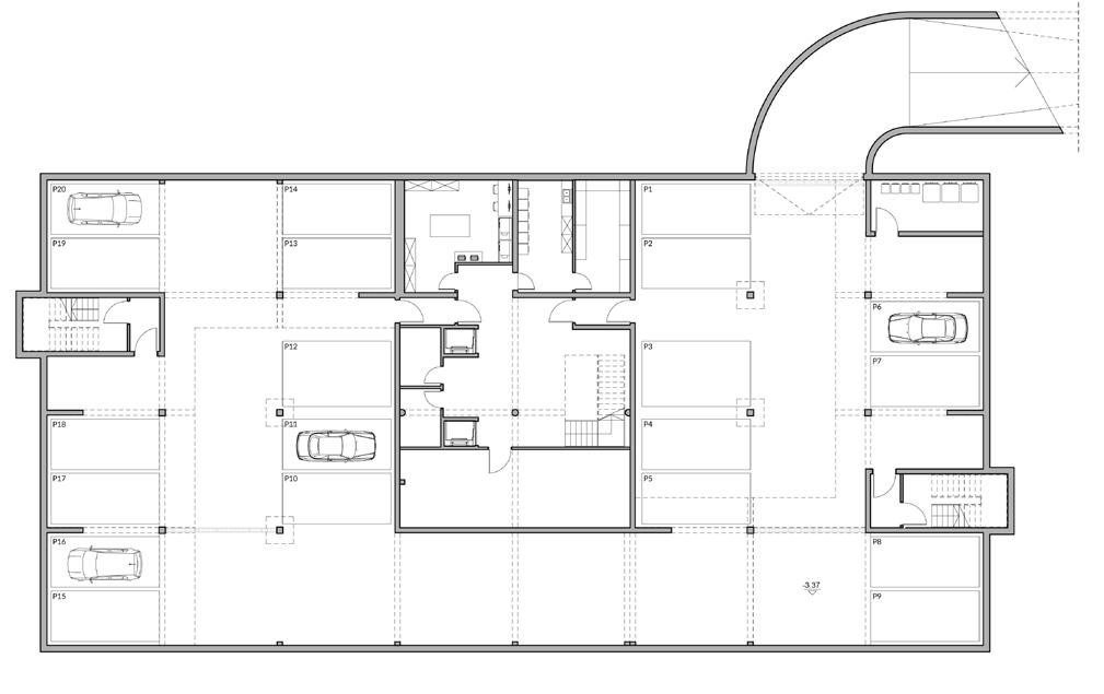
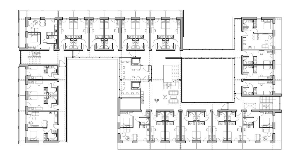
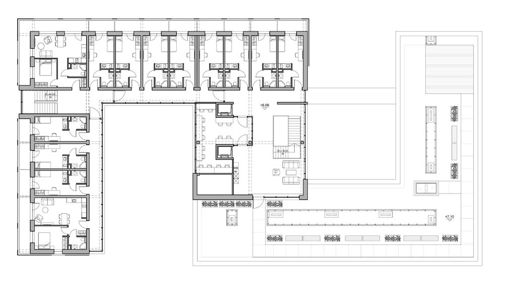
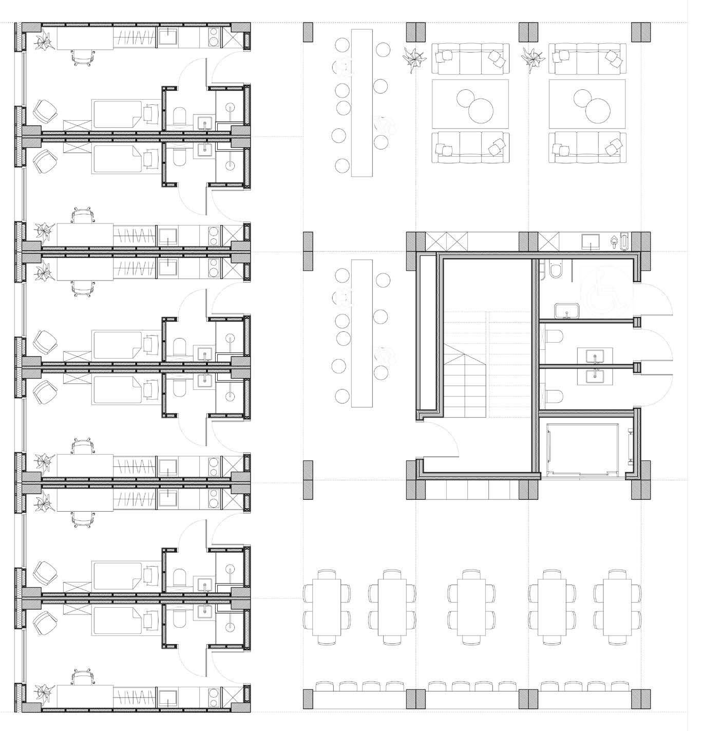
The subject presented in the following thesis is a project of a student’s dormitory located in Gdańsk Wrzeszcz on Bracka street (plot 529, 530/1). The designed building has been situated in the northern part of the plot, perpendicular to Siedlicka street – interacting with the neighbouring area of Gdańsk University of Technology and surroundings. In addition to the residential function the building also provides a wide range of services, such as a gym, study rooms, a common room, a workshop or a laundry.

CONCEPT

The guiding idea of the entire establishment is to create an unique and inspiring space that would provide students a lively place for meetings and integration, conducive to all creative activities. All these features are included in the slogan „DIALOUGE”.

The designed building consists of two L-shaped wings, which are connected in the central part, creating two internal courtyards. In order to properly fit into the surroundings the main access to the dormitory was introduced on the extension of the axis of Siedlicka street.

Carefully thought-out cladding of the façade in the form of raw concrete, subdued fiber-cement panels and steel elements give the building a minimalist, slightly industrial aesthetic, while the contrasting orange refers to the brick buildings of the Gdańsk University of Technology and the surrounding. Thanks to large glazing and a system of sliding blinds, the building gains a bit of modernity and dynamics. Direct contact with greenery makes the whole space alive.

Extruding forms into 3D. Creation of two L-shaped wings. Introduction of an intimate aura inside

Adding another level to the northern wing to better illuminate the entire building.

introducing the main connector in the middle part and a smaller, intermediate connector. Introduction of a green roof and greenery inside the courtyards.

ANALYSIS

Height Structure

SITE PLAN

SECTION A-A

03. TECTOSCAPE

VOLCANO COFFEE SHOP

Academic, Competition Project

Author:

Paweł Andruszkiewicz

Dominika Kłopotek

Location:

Iceland, Mývatn

Date: 05.2022

ABOUT THE PROJECT

Vast grey surfaces with a rocky structure, interspersed with green mosses and lichens, which in the distance gradually transform into rough, irregular hills. Hverfjall, a high volcano in the form of a tephra cone, stands out among them. This is what the landscape of the Mývatn – region in northern Iceland – looks like. Its features were the inspiration and basis for the concept of TECTOSCAPE, a visitor centre with a coffee shop located at the foot of Hverfjall. The shape of the building imitating parting tectonic plates is buried in the ground at the intersection of the access road and the path leading to the top of the volcano. The oblique, sharp form of the building and the use of natural and commonly occurring materials in Iceland, such as turf or rammed earth, make TECTOSCAPE fit perfectly into the landscape at the same time referring to Icelandic vernacular architecture. The designed building includes an external exhibition space, landscape stairs, a building with an exhibition, a workshop space, and a coffee shop with a great skylight overlooking the volcano. This makes TECTOSCAPE the perfect place for travellers visiting Hverfjall who want to learn more about the volcano’s history or enjoy a cup of coffee while admiring the impressive volcano and the beautiful landscape of North Iceland.

CONSTRUCTABILITY&FUNCTIONALITY

CONCEPT

FORM DEVELOPMENT

Specific

Vernacular Architecture
Green Roof
Site

ROOF PLAN

FLOOR PLAN

04. HARMONY

J. S. BACH PAVILION

Academic, II Semester Project (BSc)

Author: Paweł Andruszkiewicz

Supervisor: Piotr Czyż

Mateusz Gerigk

Location: Undefined

Date: 16.2018

ABOUT THE PROJECT

Conceptual design of the J. S, Bach pavilion. The main assumption is to translate the characteristics of the composer’s music into the language of architecture. The pavilion has the form of a square rotated by 45 degrees, which as a result of precise cuts has been divided into dynamic parts, forming a coherent whole. A perforation has also been added, which gives the body lightness and creates a characteristic play of lights inside.

CONCEPT

FLOOR PLAN

SECTION A-A

ELEVATIONS

05. EARTH NEST

HOUSE OF THE FUTURE

Competition Project

Author:

Paweł Andruszkiewicz

Dominika Kłopotek

Camila Mina

Łukasz Zabolski

Location:

Dubai

Date: 10.2023

ABOUT THE PROJECT

Breaking Status Quo

Catalog housing lacks personalization for potential buyers. Each family is uniqe, therefore each house must address to variety of needs, one house is just not enough. Thus, EarthNest is designed as a simple set of square modules that can be easily adjusted, changed and expanded.

Biomimicry

EarthNest main inspiration was nature and history. With the use of traditional architecture and biomimicry, the house provides natural, simple, cost-effective solutions to improve thermal comfort, air circulation, and overall aesthetic. At the same time, minimizing the impact on our planet.

EarthNest

Simple, yet powerful module inspired by local landscape and its history. The EarthNest merges with both urban and landscape context as the future must create a harmony between architecture and nature.

06. LIVING OUTSIDE THE BOX

MULTI-FAMILY COMPLEX

Academic, II Semester Project (MSc)

Author: Paweł Andruszkiewicz

Supervisor: Birgit Jurgenhake

Leo Oorschot

Location: Netherlands, Den Haag -Moerwijk

Date: 06.2022

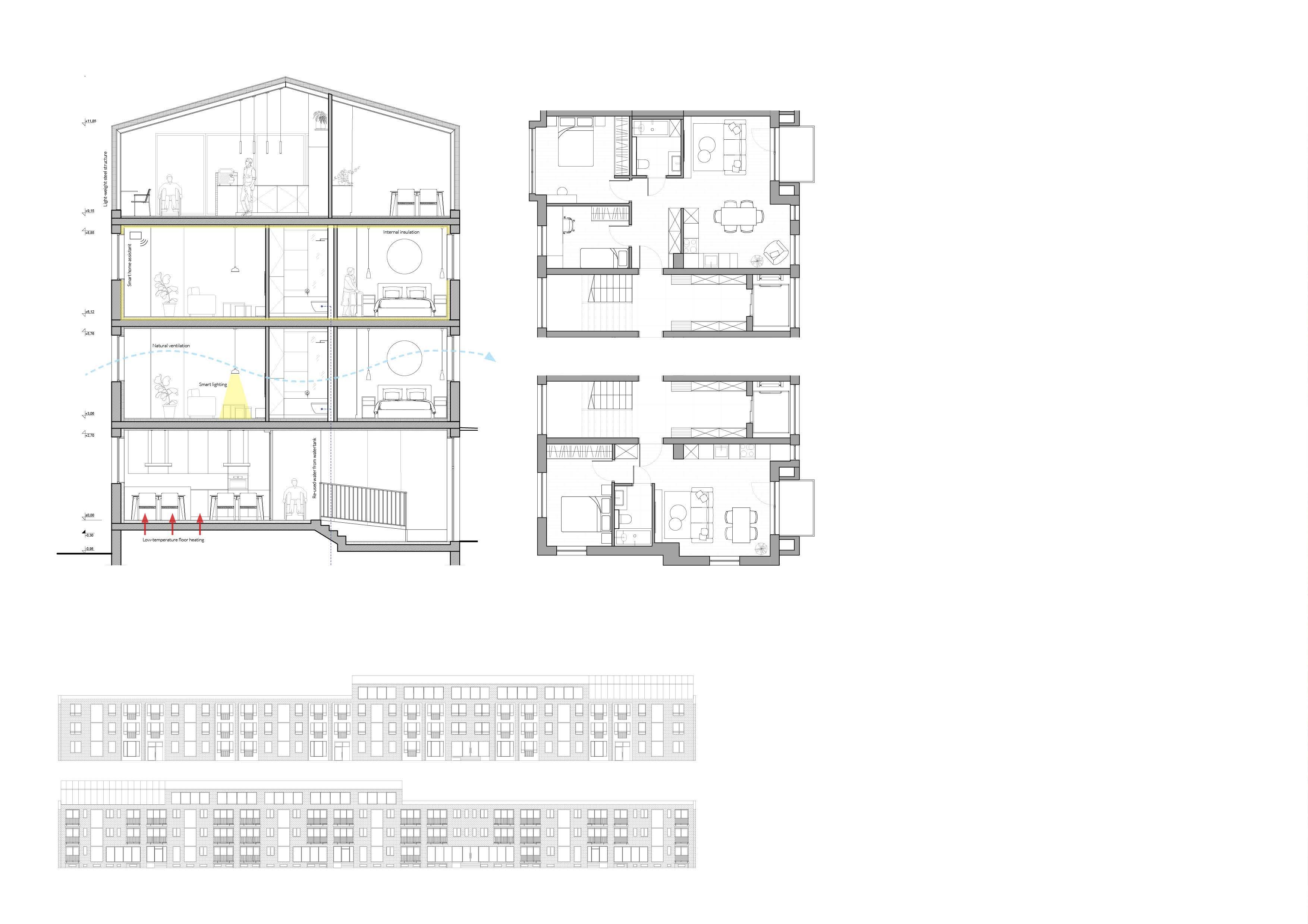
LIVING OUTSIDE THE BOX

ABOUT THE PROJECT

Many people living in Moerwijk perceive their neighborhood merely within the confines of their own home. According to them, there are no interesting meeting places in the immediate surrounding, while the district itself is perceived as not safe and unfriendly. As a result, people leave home less often, which is associated with deterioration of health and loneliness. On the other hand, as Jane Jacobs claims: „[...] controls on acceptable public behavior, if not on crime, seem to operate with greater or lesser success through a web of reputation, gossip, approval, disapproval and sanctions, all of which are powerful if people know each other and word travels ”. In other words, to improve the quality of the neighborhood, a strong community in which there is a constant exchange of interactions is needed.

The LIVING OUTSIDE THE BOX project involves a 3-step architectural intervention aimed at encouraging people to expand the boundaries of their living space and go beyond their apartment. For this purpose, all barriers in the building complex would be removed, social interaction points would be implemented, while green connections would be introduced as well. This will allow to build an appropriate background for the functioning of a community and consequently, to eliminate loneliness, increase safety and improve the overal comfort and living conditions.

”Instead then, of thinking of places as areas with boundaries around, they can be imagined as articulated moments in networks of social relations and understandings [...]”

”[...] controls on acceptable public behavior, if not on crime, seem to operate with greater or lesser success through a web of reputation, gossip, approval, disapproval and sanctions, all of which are powerful if people know each other and word travels”

Doreen Massey, (1991). A Global Sense Of Place. In Marxism Today (p. 27). Jane Jacobs. (1992). The Death and Life of Great American Cities (p. 35).

CHALLENGES

This is PETER. Peter is 72 years old and has been living for 45 years in Moerwijk on the top floor of a building located on Sandenburgstraat. He is very fond of art, watching documentary series and he really likes alpacas. He is also interested in gardening, but due to lack of space, he cannot grow his own plants.

Peter has knee problems so he rarely leaves the house due to the lack of an elevator. In addition, as he claims, there are no interesting places in the area, and the neighbourhood itself is not considered safe. As a result, Peter spends most of the day in his apartment, which makes him feel lonely.

PETER’S LIFE NOW

According to the statistics of the city of The Hague, as many as 64.3% of people living in Moerwijk feel lonely.

https://denhaag.incijfers.nl/dashboard/wijkprofielen

PHYSICAL BARRIERS SAFETY

Fences between the buildings and no-entry signs create physical barriers and do not encourage poeple to move within this area.

According to the people of Moerwijk, the district is perceived as dangerous and not friendly.

According to the statistics of the city of The Hague, as many as 51% of people aged 65+ do not perceive their health as good and 57% of them have long-term illnesses.

https://denhaag.incijfers.nl/dashboard/wijkprofielen

According to the people living in Moerwijk, the majority of them do not feel as a part of community.

HEALTH ISSUES LACK OF C OMMUNITY ACCESSIBILITY

The lack of elevators, sidewalks between the buildings, make the building complex perceived as a not fully accessible.

APARTMENT GREEN AREAS COMMON SPACE COMMUNITY CENTER

The view of the refreshed green space, as well as the improved thermal comfort and microclimate in the apartment, provide Peter with favorable and comfortable living conditions.

Lots of greenery, new sidewalks as well as a lot of benches and places to sit make Peter spend time outside and meet people from the neighborhood.

Common spaces on the ground floor mean that Peter often meets his neighbors and spends time with them.

The new community center with a shared greenhouse gives Peter the opportunity to grow his own plants and develop his passions by participating in activities organized at the center.

3-STEP ARCHITECTURAL INTERVENTION

1. REMOVING BARRIERS
2. PROVIDING POINTS OF SOCIAL INTERACTIONS
3. INTRODUCING GREEN CONNECTIONS

FLOOR PLANS

ELEVATIONS

APARTMENTS

T1 Apartment

T2 Apartment

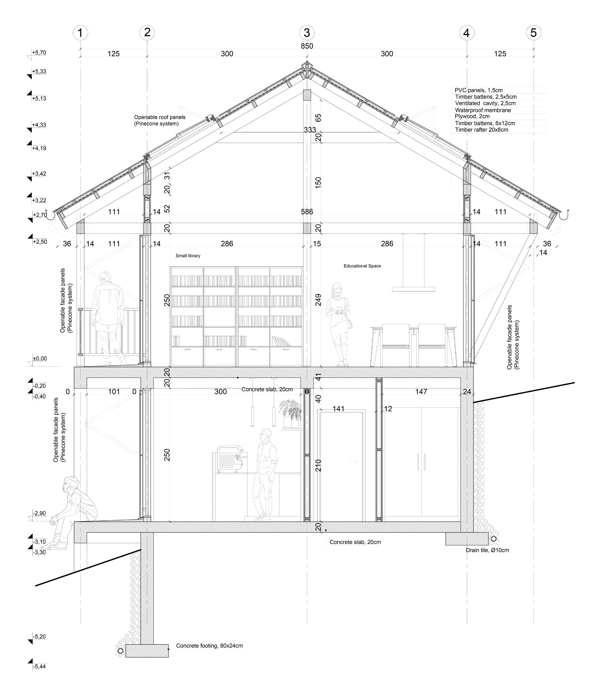
07. PINECONE

FARMHOUSE & COMMUNITY CENTER

Academic, I Semester Project (MSc)

Author:

Paweł Andruszkiewicz

Supervisor: Joost Woertman

Jos Lafebre

Location:

Sint Maarten, Strawberry Rd

Date: 01.2022

ABOUT THE PROJECT

Sint Maarten is a beautiful, unique island, however, highly vulnerable to extreme climatic events such as hurricanes and floods. In addition to problems related to the geographical location, Sint Maarten is also plagued by economic problems. The most crucial of them is the import based economy, caused by the low popularity of the agricultural sector and lack of commercial food production.

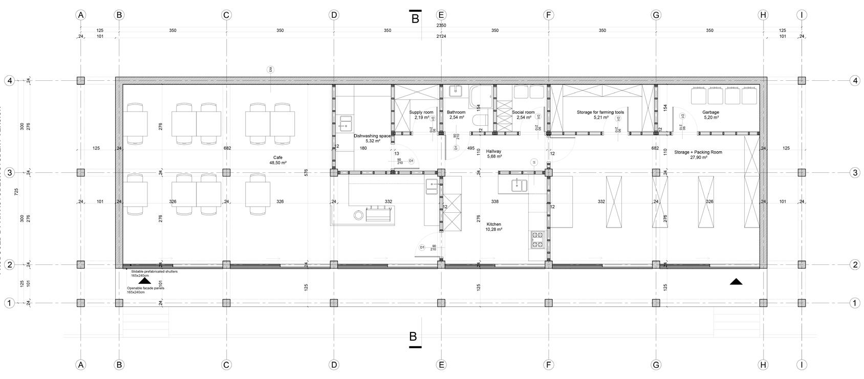
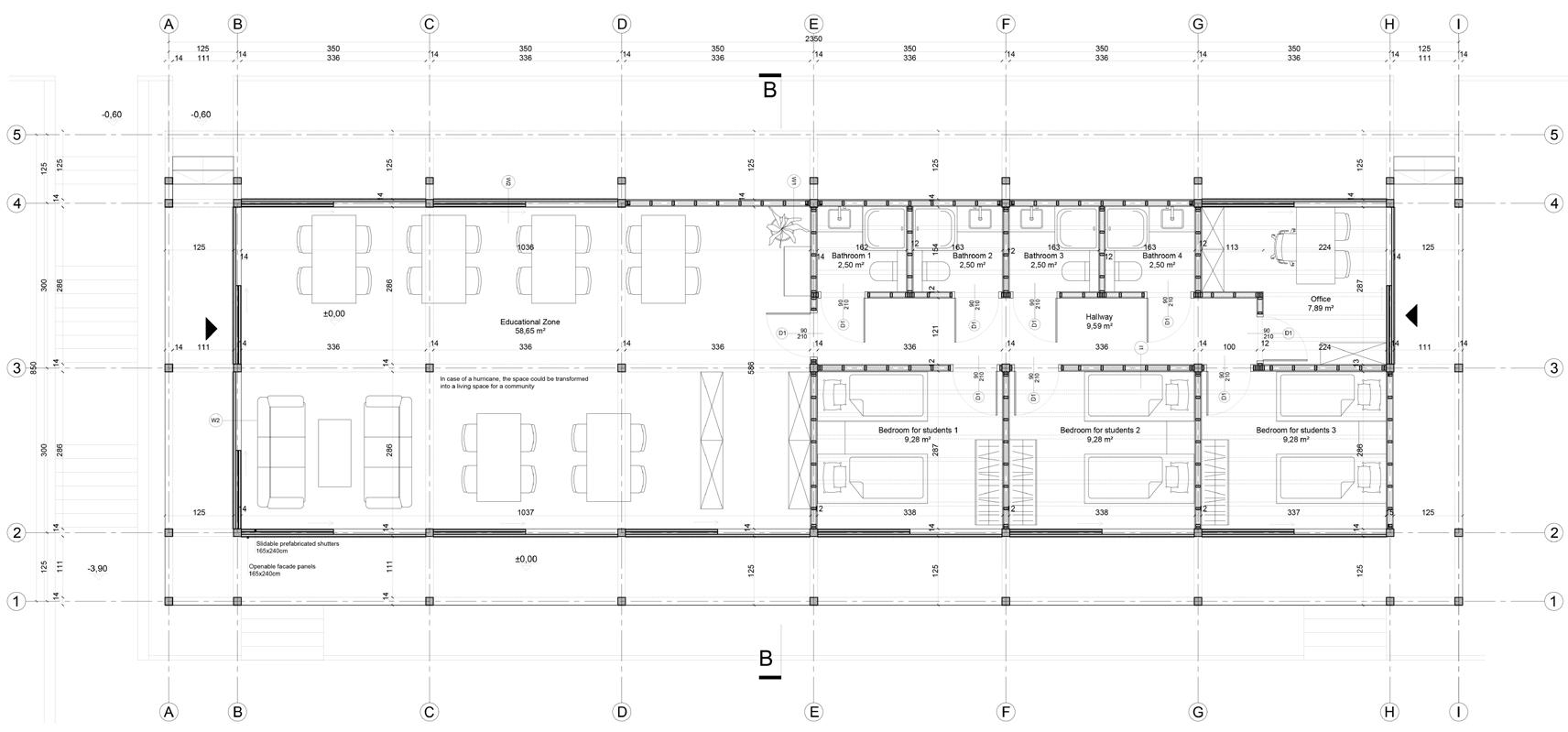
PINECONE farmhouse is a place that creates the possibility of increasing the popularity of agriculture by encouraging the community to self-cultivate and providing education about agriculture on the island, as well as provide safe shelter during hurricanes for local people. Thanks to the individual and innovative ”pinecone” system, the buildings are able to transform in a few minutes from open, widely accessible community meeting place into a closed, sheltered space, providing appropriate physical and mental conditions for survival during extreme conditions.

CONCEPT

CLOSED

CONCEPT DEVELOPMENT

ELEVATIONS

PINECONE SYSTEM

CONCSTRUCTION SYSTEM

1. Concrete raised foundation and conrete slab on it.
3. Timber rafters and other beams for the roof construction.
5. Prefabricated ”pinecone” solid and foldable elevation panels
2. Timber columns, beams and bracing.
4. Additional layers of the roof structure, prefabricated ”pinecone” slidable shutters.
5. Roof finish with openable roof panels.

CONNECTIONS

VISUALIZATIONS

LIVING ROOM: Own work
Software: 3ds max + corona + photoshop
BEDROOM: Own work Software: 3ds max + corona + photoshop

VISUALIZATIONS

LIVING ROOM: Own work Software: 3ds max + corona + photoshop
HOUSE IN THE FOREST: Own work Software: 3ds max + corona + photoshop
BLACK CABIN: Own work
Software: 3ds max + corona + photoshop
OFFICER GDYNIA: Project: Studio Kwadrat, Studio Cudzik Software: 3ds max + corona + photoshop
SUMMER HOUSE: Project: Primal-Architecture, Studio Cudzik Software: 3ds max + corona + photoshop

VISUALIZATIONS

HOUSE ON THE HILL: Own work Software: 3ds max + corona + photoshop
MODERN HOUSE: Own work Software: 3ds max + corona + photoshop

Turn static files into dynamic content formats.

Create a flipbook
Issuu converts static files into: digital portfolios, online yearbooks, online catalogs, digital photo albums and more. Sign up and create your flipbook.
Portfolio - 2024 by Paweł Andruszkiewicz - Issuu