


EDUCATION
Master of Interior Architecture
University of Oregon, School of Architecture & Environment
Eugene, Oregon
2022-2024
Bachelor of Architecture
Manipal Academy of Higher Education, Faculty of Architecture
Manipal, India
2015 - 2020

EXPERIENCE
Designer, Interiors
Rowell Brokaw Architects
Eugene, Oregon
October 2024 - August 2025
-Assisted in various phases of project design.
-Prepared Permit set drawings.
-Attendedsite visits and client meetings.
Design Firm Intern
Campfire Collaborative
Springfield, Oregon
April 2024 - May 2024
-Assisted in the schematic phase of design and created 3D massing models.
-Engaged in site visits and client meetings.
Graduate Teaching Fellow
University of Oregon, School of Architecture & Environment
Eugene, Oregon
September 2023 - December 2023
-Assess and support undergraduate students in their projects and assignments.
Advisory Council Student member
University of Oregon, School of Architecture & Environment
Eugene, Oregon 2022-2023
-Liaise with faculty and professionals in interior architecture and allied fields to facilitate feedback on curriculum and to be well-informed of emerging industry trends.
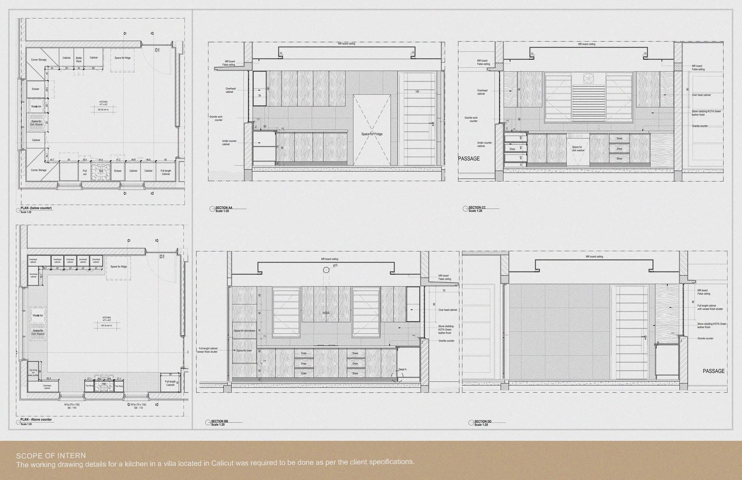
Design Firm Intern
STAPATI
Kozhikode, India
2019-2020
-Engaged in creating detail oriented technical drawings using AutoCAD and SketchUp.
-Collaborated with individuals from diverse backgrounds, gaining insights into new techniques through their expertise.
COURSES AND CERTIFICATION
Coursera
Online non-credit courses authorized by Columbia University
-Construction Schedulingcourse 2021
-Construction Project Management course 2021
Udemy Adobe Photoshop CC
Essential Training course 2020
Autodesk REVIT
Autodesk Authorized Training Centre - Khimji Training Institute
Muscat, Sultanate of Oman 2018
AWARDS
Metropolis Future100
Class of2024
The Arthur and Flora Erfeldt Endowed Scholarship 2023




































