Travaux en agences - 1 3 - 10
Cazenove-architectures - 1.1
Alternatives-architecture - 1.2
LG Architectures - 1.3
L’Esplanade des Religions | PFE - 2
Travail du bois - 3 11 - 16 17 - 18
Lina Bo Bardi - 3.1
La lampe | Ëva - 3.2
Esquisse APD



![]()
Travaux en agences - 1 3 - 10
Cazenove-architectures - 1.1
Alternatives-architecture - 1.2
LG Architectures - 1.3
L’Esplanade des Religions | PFE - 2
Travail du bois - 3 11 - 16 17 - 18
Lina Bo Bardi - 3.1
La lampe | Ëva - 3.2
Esquisse APD



En 2021, j’ai rejoint l’agence Cazenove-Architectes et Associés, un cabinet composé d’une quinzaine d’architectes.
L’organisation interne de l’agence favorise une collaboration étroite entre un chef de projet confirmé et un architecte junior, permettant ainsi un suivi complet des projets à chaque étape.
De la prise de contact initiale avec les clients jusqu’à la livraison du chantier, en passant par les phases d’esquisses, de dépôts d’autorisations, de consultations et de suivi des bureaux d’études, chaque binôme est responsable de la réussite des projets qui lui sont confiés.
L’activité de l’agence se concentre principalement sur la réhabilitation et la réhabilitation lourde d’Établissements Recevant du Public (ERP), avec une spécialisation dans les établissements scolaires privés de l’Île-de-France.

Réhabilitation d’un gymnase scolaire
Ce projet a consisté en la réhabilitation d’un gymnase au sein d’un établissement scolaire parisien, avec pour objectif l’optimisation d’un espace restreint en vue de ses multiples fonctions.
Le gymnase a été conçu comme une «boîte à outils», un espace précieux dédié à la pratique sportive, répondant aux besoins des élèves du primaire au lycée.
L’approche adoptée a permis de créer un lieu modulable et polyvalent, offrant une grande diversité d’usages, notamment pour la pratique de différents sports et l’organisation d’événements.
Ce projet a impliqué la coordination et l’intervention de l’ensemble des corps de métiers du bâtiment. Nous avons assuré le suivi intégral du projet, de la phase de conception jusqu’à la réalisation finale.






Surélévation / extension et réhabilitation d’immeubles de bureaux et logement
Ce projet en cours concerne la transformation com plète d’un ensemble immobilier parisien, compre nant un immeuble de logements et un immeuble de bureaux. Il se décompose en trois phases distinctes :
P1 : Ravalement de la façade de l’immeuble de logements avec l’installation d’une isola tion thermique extérieure (ITE), le remplace ment des menuiseries, et la réfection des des centes d’eau pluviale et d’évacuation en façade.
P2 : Réhabilitation et restructuration des caves pour les transformer en salles de réunion, ré fectoire polyvalent et zones de stockage, ac cessibles depuis la cour et l’immeuble de bureaux. Cette phase inclut également la créa tion d’un patio, l’aménagement d’une zone de pleine terre et la végétalisation de la cour.

P3 : Surélévation de l’immeuble de bureaux, création d’une extension, mise aux normes incendie, accessibilité des bureaux avec l’installation d’un ascenseur PMR, réhabilitation complète des espaces intérieurs, et ravalement de la façade avec remplacement des menuiseries.
Ce projet complexe, toujours en cours, illustre les défis contemporains de la ville de Paris, tels que la refonte du PLU, les enjeux liés à Paris 2024, et les procédures administratives notamment les risques de sursis à statuer. Il nécessite une coordination étroite entre tous les acteurs impliqués (maîtrise d’œuvre, maîtrise d’ouvrage, bureaux d’études, bureaux de contrôle) et un travail rigoureux de l’équipe de maîtrise d’œuvre.
Insertion projet P2 et P3


Plan masse


Projet réalisé
Présentation de l’agence
Entre mon mémoire et mon PFE, j’ai saisi l’opportunité de travailler en agence pour affiner mes ambitions professionnelles. Durant un semestre, j’ai intégré l’équipe d’Alternatives Architectures en tant que dessinateur-projeteur.
Sous la direction de Nicolas Geus et Phillip Génot, Alternatives Architectures s’est spécialisée dans la création d’établissements pour la petite enfance et d’établissements scolaires provisoires en Île-deFrance.
Cette agence, composée de quatre architectes, valorise rapidement la prise de responsabilités.
Au sein de cette structure, j’ai eu l’opportunité de prendre en charge un projet de réhabilitation d’une maison individuelle pour un particulier, sous la supervision d’un chef de projet.
Création d’un lycée provisoire
Le projet ci-contre portait sur la réalisation de locaux provisoires pour le lycée Rabelais à Paris.
Malgré la simplicité apparente des modules employés (trame prédéfinie, escaliers de secours en acier, typologie des ouvertures...) une attention particulière a été portée sur les matériaux et leur vertuosité et tout particulièrement sur les bardages en façade issus de la filière de réemploi.

Vue axonométrique
Insertion projet


Plan masse - coupe transversale


Projet réalisé


Structure
Présentation de l’agence
À la fin de mon stage de licence chez LGArchitectures, l’opportunité m’a été offerte de continuer à travailler de manière régulière au sein de l’agence, tant durant les semaines que pendant les vacances scolaires. Cette expérience a été particulièrement enrichissante pour un étudiant en deuxième année de licence, me permettant de collaborer avec l’agence pendant près d’un an et demi.
Laurent Gasiglia est un architecte indépendant qui travaille principalement dans deux domaines: - la création, surélévation et réhabillitation de logement pour particuliers, - la réhabillitation et le ravalement de façades d’ensembles appartenant à des bailleurs sociaux.
En tant que dessinateur-projeteur au sein de cette petite structure, j’ai occupé un rôle transversal, me permettant de toucher à toutes les facettes du métier d’architecte : - Le phasage d’un projet d’architecture, - la constitution de dossier de PC ou de DP, - le travail de relevés, et de dessinateur, - le relationnel client, la vie d’agence, - le suivi de chantier, ...
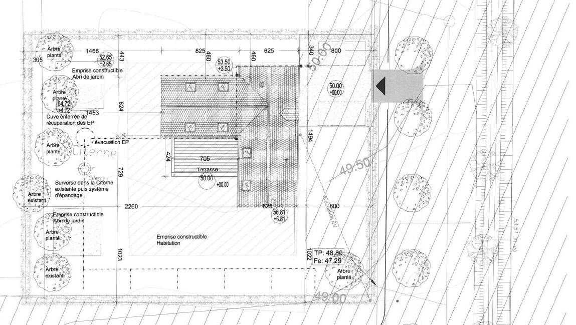
Création d’une maison individuelle
Le projet présenté concerne la conception d’une maison individuelle pour un particulier à Vattetot-sur-Mer, en Normandie. Pour ce projet, nous avons opté pour l’utilisation de modules préfabriqués en bois, réalisés en atelier. Cette approche a permis de réduire les coûts tout en optimisant la forme architecturale.
La maison se distingue par la qualité des matériaux, la générosité des espaces intérieurs, et de larges ouvertures qui créent une connexion harmonieuse avec la nature normande environnante, offrant un cadre de vie chaleureux et immersif.
Préfabrication bois




Usages existants | manger - se rassembler - se déplacer

Usages réintégrés | manger - se rassembler - se déplacer





Plan masse

La religion comme fait culturel
Ce sujet de PFE porte sur la religions comme fait culturel et pose la question suivante : Quel est le rôle de la ville laïque et de l’espace public dans le dialogue des religions ?
Ce projet se place dans la situation fictive où la ville de Paris lancerait un concours pour la création d’un Musée des religions. L’Esplanade des Religions est une réponse à ce concours.
Coupe structure
Rapport intérieur / extérieur

Le projet s’impante et requalifie la place Joachim du Bellay aussi connue sous le nom de place des Innocents dans le quartier des Halles. C’est un lieu cosmopolite dense, et une place fondamentalement laïque.

Pourquoi une esplanade des religions ? Une esplanade est par définition un lieu public qui met en perspective un sujet, en l’occurence : les religions.
L’idée majeure du projet est de créer une continuité entre la ville laïque et le musée. L’exposition permanente du musée est donc entièrement visible depuis l’espace public grâce à l’amphithéâtre urbain.

Cette immersion permet à ceux souhaitant se rassembler, à quiconque voulant se poser ou manger de voir le musée et ses visiteurs. L’amphithéâtre de l’Esplanade des Religions est donc un lieu vivant liant la ville laïque au musée.

Ce projet cherche à parler de toutes les religions et en aucun cas à les traiter séparement afin d’éviter toutes stigmatisations. L’espace d’exposition permanente s’organise autour de 4 thématiques communes aux différentes religions. Elles sont exposées de 4 manières diffèrentes.


Les thèmes sont les suivants : Les familles et communautés, les prières et méditations, les paroles et écritures et les architectures. Il ne s’agissait pas, là, de concevoir un musée traditionnel à la française avec un parcours parfaitement linéaire où le visiteur est mis à distance de l’objet. Dans sa dimension d’espace vivant, il se développe comme un musée à l’anglaise où le déplacement du corps est plus libre et le rapport à l’objet interactif.
L’accès au musée se fait dans la continuité de l’amphithéâtre. Le glissement depuis l’espace public se fait naturellement. On arrive alors dans un espace unitaire d’expostion, comme une sorte de hall de gare, un lieu bruyant, en mouvement, vivant et éclairé naturellement.


Quand le visiteur arrive dans le musée, son regard est immédiatement projeté vers l’extérieur et la ville. Le lien entre le musée et cette dernière est donc réciproque.
Pour répondre à la problèmatique de ce PFE, je pense que la ville laïque doit instaurer une pédagogie vis à vis des religions. Elle se doit d’apaiser les tensions et éviter l’ignorance et la stigmatisation des religions qui depuis des millénaires font partie intégrante de notre société. Aujourd’hui, une telle pédagogie est d’autant plus importante dans une ville multiculturelle comme Paris où la question de la religion est un débat quotidien.
L’Esplanade des Religions répond à cette volonté de créer un projet profondement humain qui ne place plus la religion comme un fait cultuel, mais la place comme un fait culturel où toute personne croyante ou noncroyante peut aller à la rencontre des religions.


Implantation - sols - toits
Axonométrie de la place
Les familles et communautés

Les prières et méditations

Les architectures


Les paroles et écritures


Projet de fin d’étude
Hommage et re-transposition
Travail du bois - Structure et espace
Projet de pavillon extérieur pour le FRAC Centre
Solitude, thème choisi pour la Biennale d’architecture d’Orléans, n’est pas le premier mot qui viendrait à l’esprit pour qualifier l’œuvre de l’architecte, designer et scénographe italo-brésilienne, Lina Bo Bardi (1914-1992), tant ses bâtiments offrent une expérience d’un “vivre ensemble”.
Cinq projets ont été d’abord élaborés par des groupes concurrents sur le parvis de la médiathèque d’Orléans et évalués par le jury composé par l’équipe du FRAC et des enseignants de l’ENSA-PB.
Libre interprétation du restaurant Coatí de la rue Ladeira da Misericórdia à Salvador da Bahia (1990), le projet lauréat, - un pavillon circulaire en bois – a ensuite été développé et construit pour être monté sur un nouveau site, face à la Médiathèque Maurice Genevoix

Résultat final
Production - assemblage


Travail du bois - Design objet
Inspirée par le travail de design d’Aalto pour ‘la maison carrée’, cette lampe utilise un système de claire-voies composé d’éléments répétés créant différentes possibilités d’éclairage. Deux panneaux mobiles et un statique permettent à l’usager de moduler la lumière et de créer différentes atmosphères.
Les panneaux sont composés d’une multitude d’ailettes qui peuvent diriger le faisceau lumineux vers le bas, vers le haut ou se superposer afin d’éviter une forte exposition. Les panneaux peuvent également être complétement rangés dans la partie gauche de la lampe afin d’illuminer l’intégralité de la pièce. Quand les ailettes regardent vers le bas, nous imaginons facilement que ces dernières éclairent un objet ou un bureau situé en dessous. Quand elles regardent vers le haut, éclairant ainsi le plafond, elles créent une lumière diffuse d’am biance.



Production - assemblage



