
ARCHITECTURAL PORTFOLIO
TABLE OF CONTENTS
ACADEMIC PROJECTS
PROFESSIONAL PROJECTS
![]()

ACADEMIC PROJECTS
PROFESSIONAL PROJECTS
CONCEPTDIAGRAM
Thegoaloftheprojectwastocreateabuildingfilledwithnaturallightandgreenspace.Theprimaryintention istocreatevisualaswellasphysicalconnectivitybetweenindoorandoutdoorareas.
MainFocus:
•Naturallight
•RespondingtoUrbanEdge
•Indoorandoutdoorconnection
•Flexibleplan
•Activatingbothaccessroad



Graduate Studio
Indiana University,Columbus,IN Fall, 2021














Thisdesignaimstomakeabuildingthatisbothfunctionalandaccessible andrespondedtolocalarchitecture,culture,andclimate.Thedesign’s primaryfocusistocreateaconnectionbetweentraditionalbarnstructures andthesurroundinglandscape.
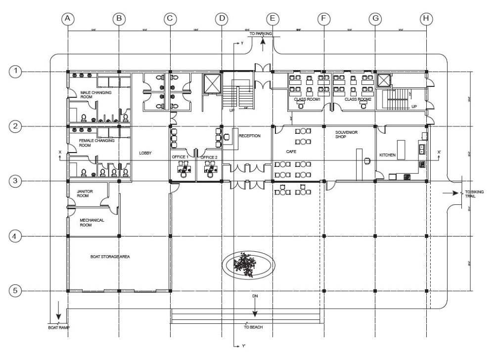
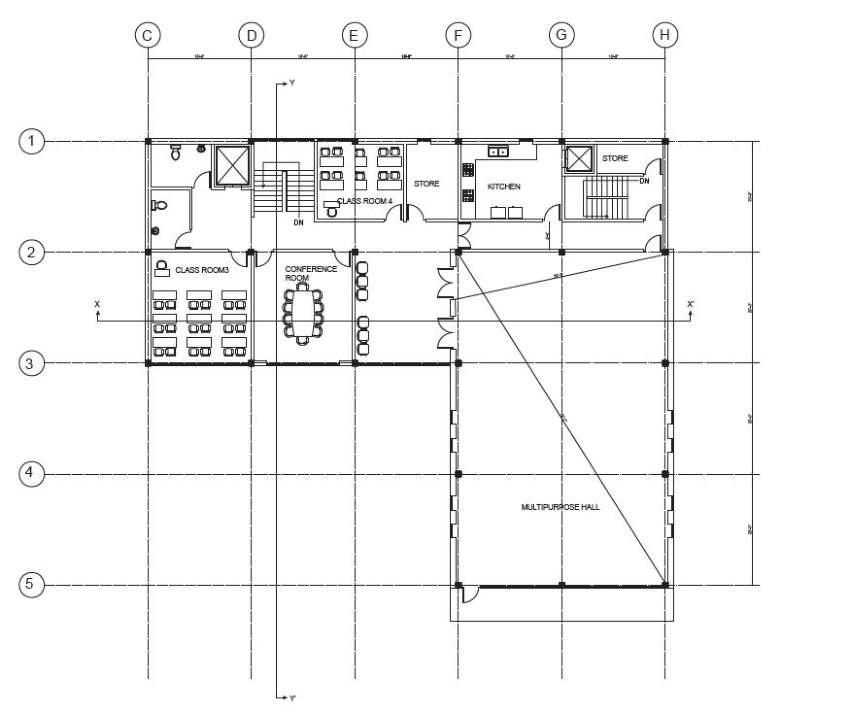
Theboathouseprincipallyconsistsofthreetypesofspace:Aboatstorage blockwithchangingfacilities,acommunitycenter,andaMultipurposeHall. ThebuildingismadebyutilizingtimbertofitnaturallyintothelakeSalinda landscape.Andtheopeningsareplacedbyaimingtocreatenatural ventilationaswellasnicelakeviews.





2021





DESIGNOBJECTIVESANDSTRATEGIES
Objective1:
Designahomethatwillfitintotheestablishedneighborhoodwhilestillseemingfreshandmodern.
Strategies -Usetraditionalhouseshapewithmodernvariations
-Createatraditionalfacadeusingmodernmaterials
Objective2:
Designforenergyefficiencyorzeroenergyready.
Strategies -Smallsurfacearea,centralizeutilities,lightorreflectivesurfaces,insulation -Employpassivedesignstrategieslikedaylighting,crossventilation
Objective3:
Designacomfortablespacefortheowners.
Strategies -Separatepublicandprivatespaces -Createeasyaccesstooutdoors/outdoorlivingspace







TheHutisaneco-friendlyandsustainable,andresilientdesignrespondingtoCambodianclimate andvernaculararchitecture.ItincorporatesCambodia’seconomical,environmental,andsocial aspectsandbalancesthebuiltandthenaturalenvironment.Thedesignisbasedonlocal architectureasaformalprecedentanduseslocallyavailablemateriallikewoodandbambooto respondtolocalculture,theclimate,andthepreceptsofsustainability.
Thedesign’sprimaryfocusistocreateaconnectionbetweenCambodianarchitectureandyoga practice.Hutcabinprincipallyconsistsoftwotypesofspace:Solidandtransparent.Thecabin’s solidwallestablishesaprivateroomfortheclient,andthetransparentwalloffersanopportunity toexplorethesurroundinglandscape.TheNortheastterraceprovidesanopportunitytodoyoga, whichallowsthelandscape,light,andfreshairtoinfusethespace.
ThisHut,byemulatinglocalCambodianarchitecturalforms,servesasarefugeforpeople travelingfromallovertheworldtoCambodiatoreestablishaconnectionbetweenmindandbody througharenewedcommitmenttothepracticeofyoga







FormandConceptDevelopment


TopRoofLVL+3500mm
Net(ForMosqutio)
BottomRoofLVL +2500
Shower
FoodStorageAreaandSink
Toilet
FloorLVL+1500mm





ThisElementaryschooldesignbyusingtheBiophilicdesignConcept.Biophilicdesignisaconceptusedwithin thebuildingindustrytoincreaseoccupantconnectivitytothenaturalenvironmentthroughtheuseofdirect nature,indirectnature,andspaceandplaceconditions.
Thegoaloftheproject wastocreateafun,engaginglearningenvironmentthatstudentswouldwanttocome toeveryday.Themainintentionofthedesignistogenerateaplayfulnaturallearningenvironmentforchildren bycreatingnaturewithinthebuiltenvironment.
Thiselementaryschoolintegratesnatureintotheday-to-dayexperiencesofstudents.Thebuildingwasdesign bycombiningorganicandinorganicshapestogethertogenerateavarietyofspacewithinthebuilding.Buildinghasaseriesofirregulargreenspacewhichprovideoutdoorlearningspaces.Theorganiccentercourtyard anddistinctivegreenbalconyalsohelptogenerateavarietyofspaceandahighlynaturallearningenvironmentwithoutlosingthesenseofintimacyandfun.

Graduate Studio Indiana University,Columbus,IN Spring ,2020









ThisdesignforanewadditionbuildinginCleoRogersMemorialLibrarybyreplacingthe additiondesignedbyJamesParis.Theintentionofthisprojecttocreateanewspaceforthe consultationofarchitecturalarchivematerialaswellasasmallexhibitiongalleryandapublic readingroomforbooksaboutartandarchitecture.
The conceptistheinvestigationofmaterialcontinuitythroughtheexistingwallaroundthe northterracebyintroducinganaxialconnectionfromnorthtosouthwhichkeepsthevisual connectfromtheI.MPeilibrarytotheFirstChristianChurch.Continuityofboundarywall helpstouniteanewadditionbuildingwiththeoriginallibrary.
Graduate Studio Indiana University,Columbus,IN Fall 2019


Concepet/SiteSurrounding









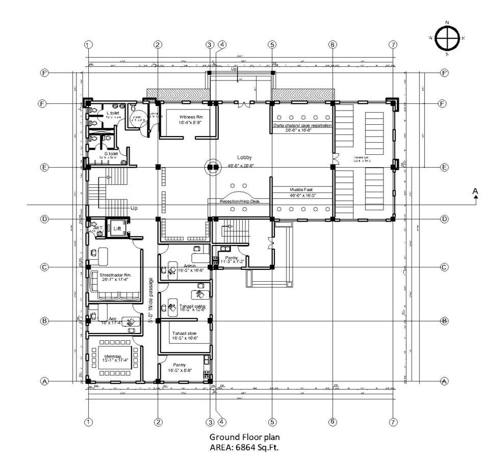
LOCATION:Bajhang,Nepal
TheDistrictCourtisthecourtoffirstinstance.Thereare 75DistrictCourtthroughoutthecountryNepal.Bahnang DistrictcourtislocatedattheheadquarteroftheBajhangdistrict.Thiscourthearscivilandcriminalcases withinitsterritorialjurisdiction.
PLAN:
TheplanoftheCourtisL-shape.
Sitelocation:BajhangDistrict
TotalArea:28867sq.ft.
MainEntrance:Towardsthe south.
The buildingcoversabout6864sq.ft.Thebuildingisof3 storiedwith3bench.
Themoderndesignwasproposeasperconcernofthe client.
Assistedinoverallplanningandconceptualizationprocess,3DVisualization,presentationdrawingandResearches.




