Proyecto Integral de Arquitectura

Page 1

Universidad Uk

Universidad Uk

Proyecto Integral de Arquitectura

Proyecto Integral de Arquitectura

Arq. Dolores Pardo

Arq. Dolores Pardo

Patricia E. García Carrillo

Patricia E. García Carrillo

Ejercitación Practica S1

Ejercitación Practica S1

06 Abril 2024

06 Abril 2024

Preliminares del Proyecto Arquitectónico

Normativa Aplicable*

Ventilación cruzada

■ Superficie mínima de aula y/o baño: Aula superficie mínima de 90m2 por alumno Wc público, espacio de escusado con un ancho de 0 75m y fondo de 1 10m y para discapacitados con un ancho de 1 70m por 1 50 de fondo

■ Número mínimo de baños y lavabos: Deberán estar separados para hombres y mujeres y conservar su privacidad a través de divisiones o puertas, el de los hombres deberá contar con un retrete y un mingitorio por cada 30 alumnos y el de las mujeres deberá contar con un retrete por cada 20 alumnas Un lavabo por cada 40 alumnos

■ Alturas mínimas en el aula: La altura de las aulas será siempre de 2.70 m2.

■ Número permitido para cajones de estacionamiento: 1 Estacionamiento por cada 60m2 construidos

■ Luxes requeridos para el aula: Será natural, por lo menos en la quinta parte de la superficie del aula. Los niveles mínimos de iluminación en los salones de clase serán de 150 luxes

■ Circulaciones mínimas: Los corredores comunes a 2 o más aulas deberán tener un ancho de 1 20 m y 2 30 m de altura, con anchura adicional no menos de 0.60 m por cada 100 usuarios

■ Porcentajes máximos de rampas: La pendiente máxima para la circulación horizontal es de 8% siempre y cuando sea menor de 6m la distancia a cubrir, mayor a esta distancia será de 6% y un ancho mínimo de 1 20m, ideal de 1 50m**

■ Diseño de escaleras, descansos, alturas de peraltes, dimensiones de huellas: La huella antiderrapante será de 25 cm mínimo y el peralte de 18 cm máximo y la altura mínima de los barandales será de 0 90 m

Arquitectura Pasiva

Ventilación natural / Vientos cruzados Protección solar en pasillos exteriores

■ Instalaciones de emergencia: Las salidas de emergencia y las de acceso de la vía pública será de: 1.20 m como mínimo c) La altura de las puertas será de 2 10 m como mínimo

■ Accesibilidad universal: Las obras o trabajos que se realicen en guarniciones y banquetas no deben obstaculizar la libre circulación de las personas. Rutas accesibles que garanticen el desplazamiento continúo sin barreras para la movilización horizontal o vertical a las personas con discapacidad con sus respectivos descanso de 1 50m que le permita dar el giro en 360°.

*Normas Técnicas Complementarias de la CdMx

**Manual Normas Técnicas de Accesibilidad de la Cd de México

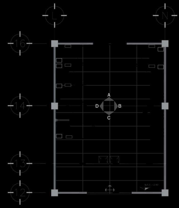
Proyecto Integral de Arquitectura Arq. Dolores Pardo Licenciatura de Arquitectura 8vo Cuatrimestre Bachillerato Técnico Malinalco Plano de Conjunto y Detalle de Plano Arquitectónico Patricia Elizabeth García Carrillo Metros 06 Abril 24 189 m2 Sin Escala EJE-001 1-0604-2024 Detalle Planta Arquitectónica / Zona de Estudio A B C D E
/
/ Wc Alumnas / Aula / Pasillo Descanso / Rampa. B C D E F F
A Comedor
Cocina
Aislamiento térmico / Material de la región Iluminación natural

Techo Sustentable

Normativa

▪ 2.6 Encharcamiento en techos de madera

Cada porción del techo deberá diseñarse para sostener el peso del agua de lluvia que pudiera acumularse sobre ella si el sistema de drenaje si estuviera bloqueado.

▪ 5 1 Madera maciza

Las deflexiones inmediatas de vigas se calcularán utilizando las fórmulas usuales de mecánica de sólidos basadas en la hipótesis de un comportamiento elástico.

▪ 6.2.3 Dimensionamiento de uniones clavadas con madera maciza

La resistencia lateral de diseño de clavos hincados perpendicularmente a la fibra deberá calcularse de acuerdo con la sección 6.2.3.1.

▪ 6 2 3 1 Resistencia lateral

La resistencia lateral de diseño de una unión clavada, deberá ser mayor que o igual a la carga actuante de diseño

▪ 6.3.1.1 Contacto entre las piezas unidas

Las uniones con pernos y pijas deberán realizarse de manera que exista contacto efectivo entre las piezas unidas. Si el contenido de humedad es superior a 18 por ciento, al efectuarse el montaje de la estructura en cuestión deberán hacerse inspecciones a intervalos no superiores a seis meses hasta verificar que los movimientos por contracciones han dejado de ser significativos En cada inspección deberán apretarse los elementos de unión hasta lograr un contacto efectivo entre las caras de las piezas unidas.

▪ 7 5 Pendiente mínima de los techos

La superficie de los techos deberá tener una pendiente mínima de 3 por ciento hacia las salidas del drenaje para evitar la acumulación de agua de lluvia Deberán revisarse periódicamente estas salidas para mantenerlas libres de obstrucciones ▪ 8.2.2 Ejecución de uniones

Cuando se diseñe una estructura con juntas que transfieran momentos o fuerzas concentradas importantes de un elemento a otro, se deberá tener especial cuidado en el comportamiento de dichas juntas, ya que como efecto de elevadas temperaturas, pueden presentarse asentamientos o plastificación parcial o total de los elementos de unión que causen redistribución de cargas

B C D

Captación de agua pluvial (Cisterna fuera del área de estudio)

Captación de energía solar

Estructura de madera con recubrimiento con teja de barro

Tragaluz al centro del proyecto con policarbonato ahumado

Ventilación en ambas laterales de la estructura superior para efecto chimenea

Arquitectura Pasiva
Proyecto
Arq.
Licenciatura
8vo
Bachillerato
Planta
Azoteas Patricia Elizabeth
Metros 06 Abril 24 189 m2 Sin Escala EJE-AZ2 AZ-0604-2024
Integral de Arquitectura Dolores Pardo de Arquitectura
Cuatrimestre
Técnico Malinalco
de
García Carrillo
A Rejilla Pluvial para Captación de Lluvia / Paneles Solares / Estructura de Madera con Recubrimiento con Tejas de Barro (Pendiente 12%) / Techo Plano Policarbonato Ahumado (Pendiente 2%) *Normas Técnicas Complementarias para Diseño y Construcción de Estructuras de Madera
Aplicable* A B C D

Preliminares del Proyecto Arquitectónico

Alzado Oeste Alzado Sur

Arquitectura Pasiva

Uso de la vegetación como barrera climática Ventanas anti ruido con persiana integrada Acabados aparentes con materiales de la región

Normativa Aplicable

Accesos y circulaciones aptos para todos

Corte Longitudinal

Proyecto Integral de Arquitectura

Arq. Dolores Pardo

Licenciatura de Arquitectura

8vo Cuatrimestre

Bachillerato Técnico Malinalco

Plano de Alzados y Cortes

Normativa Aplicable

Patricia Elizabeth García Carrillo Metros

06 Abril 24
m2
Escala EJE-002
189
Sin
2-0604-2024
para
ahorro del agua
Sistemas
el
natural efecto chimenea
Ventilación
Alturas respetadas según las NTC de la CDMX Rampas cómodas Señalización y seguridad Luminarias LED

Universidad Uk

Universidad Uk

Proyecto Integral de Arquitectura

Proyecto Integral de Arquitectura

Arq. Dolores Pardo

Arq. Dolores Pardo

Patricia E. García Carrillo

Patricia E. García Carrillo

Ejercitación Practica S2

Ejercitación Practica S2

13 Abril 2024

13 Abril 2024

Criterio estructural y detalle de cimentación

Planta Estructural

Columna Secc 20x20cm

Armada con 6Varillas#3, Estribos #2@20cm

Trabe de Liga Secc 15x20cm

Armada con 4Varillas#3, Estribos#2@15cm (Primeros 2m, Resto @20cm.

Dado Secc 30x30cm

Ref

Estribos #2@15cm

Malinalco, Estado de México

Proyecto Integral de Arquitectura

Arq. Dolores Pardo

Licenciatura de Arquitectura

8vo Cuatrimestre

Suelo Calizo

El material que se encuentra en este tipo de terreno, puede ser de arena muy compacta, tepetate, pedregoso o de roca sólida.

La cimentación recomendable para este tipo de suelo son las zapatas en general, ya sean aisladas o corridas, con poca profundidad.

Albañilería Confinada

En caso de sismo la estructura monolítica se desplaza de manera uniforme, cimentación, columnas, vigas o trabes trabajan como uno solo para que el muro no se vea afectado

Bachillerato Técnico Malinalco

Planimetría Estructural

Patricia Elizabeth García Carrillo

Metros 13 Abril 24 189 m2 Sin Escala EST-AR01 EST-1304-2024
Z-2 Z-2 Z-2 Z-2 Z-2 Z-2 Z-2 Z2
6Varillas #3
Concreto F´c=250Kg/cm2 Firme de 20 Tierra de la Emparrillado #3@ Plantilla F c= Terreno Detalle de Cimentación / Estructura Zapata Corrida 1.00m 0.30 m 0.30 m 0.20 m A B C D F E A B C D E F G G H H I I B C D F E G H I J Teja de Barro Cocido Costanera de Madera 4”x2” Cordón Superior Baldosas Rejillas Solera de Corona de Madera Cordón Inferior Muro de Madera Abrazadera de Acero J K L M N O P Q R K L M N O P Q R Z-1 Z-2
Z-1 Z-1 Z-1 Z-1 Z-1 Z-1 Z-1 Z-1 Z-1 Z-1 Z-1 Z-1 Z-1 Z-1 Z-1 Z-1 Z-1 Z-1 Z-1 Z-1 Z-1 Z-1 Z-1 Z-1 Z-1 Z-1 Z-1 Z-1 Z-1 Z-1 Z-1 Z-1 Z-1 Z-1 Z-1 Z-1

Instalación Eléctrica

Plano Instalación Eléctrica

Cálculo Eléctrico de Cargas

Malinalco, Estado de México

Proyecto Integral de Arquitectura

Arq. Dolores Pardo

Licenciatura de Arquitectura

8vo Cuatrimestre

Diseño de Instalaciones

Un buen diseño de instalaciones eléctricas es crucial para garantizar la seguridad, eficiencia energética, funcionalidad y cumplimiento normativo de un espacio Esto implica proteger contra riesgos eléctricos, optimizar el uso de energía, adaptarse a las necesidades específicas, cumplir con regulaciones legales y facilitar el mantenimiento adecuado, contribuyendo así a la seguridad de los usuarios, la sostenibilidad ambiental y la durabilidad de los equipos

Bachillerato Técnico Malinalco

Planimetría Estructural

Patricia Elizabeth García Carrillo

189 m2

ELE-1304-2024

Metros

Sin Escala IEL-AR02

13 Abril 24

Diseño de Iluminación

Detalle de Luminarias

Comedor

Pasillo Exterior

Cocina Wc Alumnas Aula

Pasillo Interior

Diseño de iluminación

El diseño de iluminación en una escuela preparatoria se adapta a las necesidades específicas de cada espacio para garantizar un ambiente adecuado para su función En el aula, donde se requiere atención y concentración, se utilizan luces blancas de alta intensidad para asegurar una iluminación completa y uniforme. En el pasillo principal, se instalan spots con tonalidades neutrales para una visualización clara al transitar La cafetería cuenta con luces LED que iluminan todas las mesas para una correcta percepción de los alimentos. En la cocina, se emplean diferentes intensidades de luz fría, tanto empotradas como colgantes, dirigidas hacia las áreas de trabajo principales

Para los baños de las alumnas, se utiliza luz cálida distribuida en todo el espacio y luz focalizada cerca de los espejos para facilitar el arreglo personal En el exterior, cada columna que da al jardín cuenta con un spot de piso empotrado para crear una atmósfera armoniosa y acogedora durante la noche, invitando a participar en cada uno de estos espacios de manera confortable.

Malinalco, Estado de México

Proyecto Integral de Arquitectura

Arq. Dolores Pardo

Licenciatura de Arquitectura

8vo Cuatrimestre Bachillerato Técnico Malinalco

Planimetría Estructural

Patricia Elizabeth García Carrillo

189 m2

Sin Escala

Metros

13 Abril 24

ILU-1304-2024

ILU-AR03

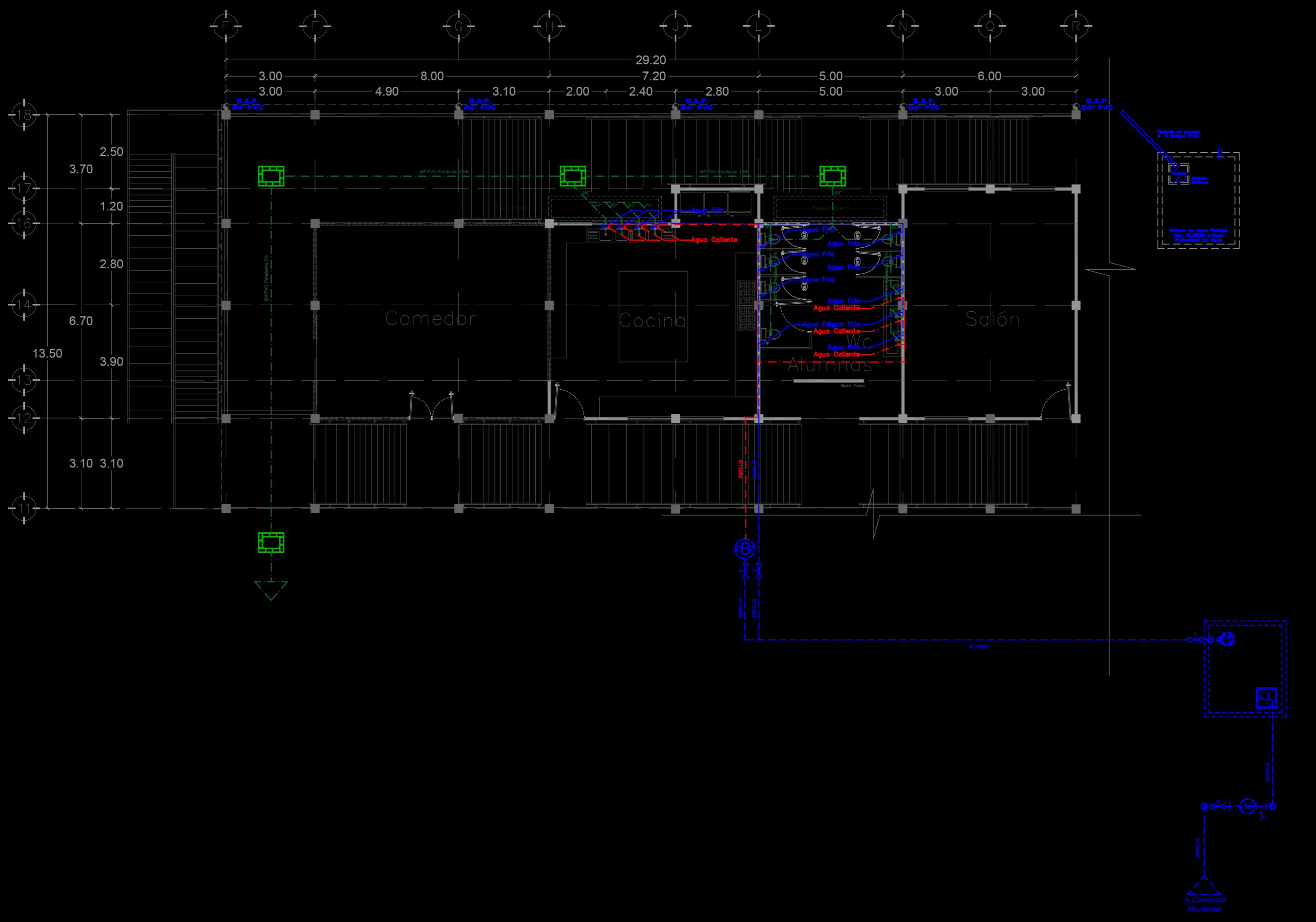
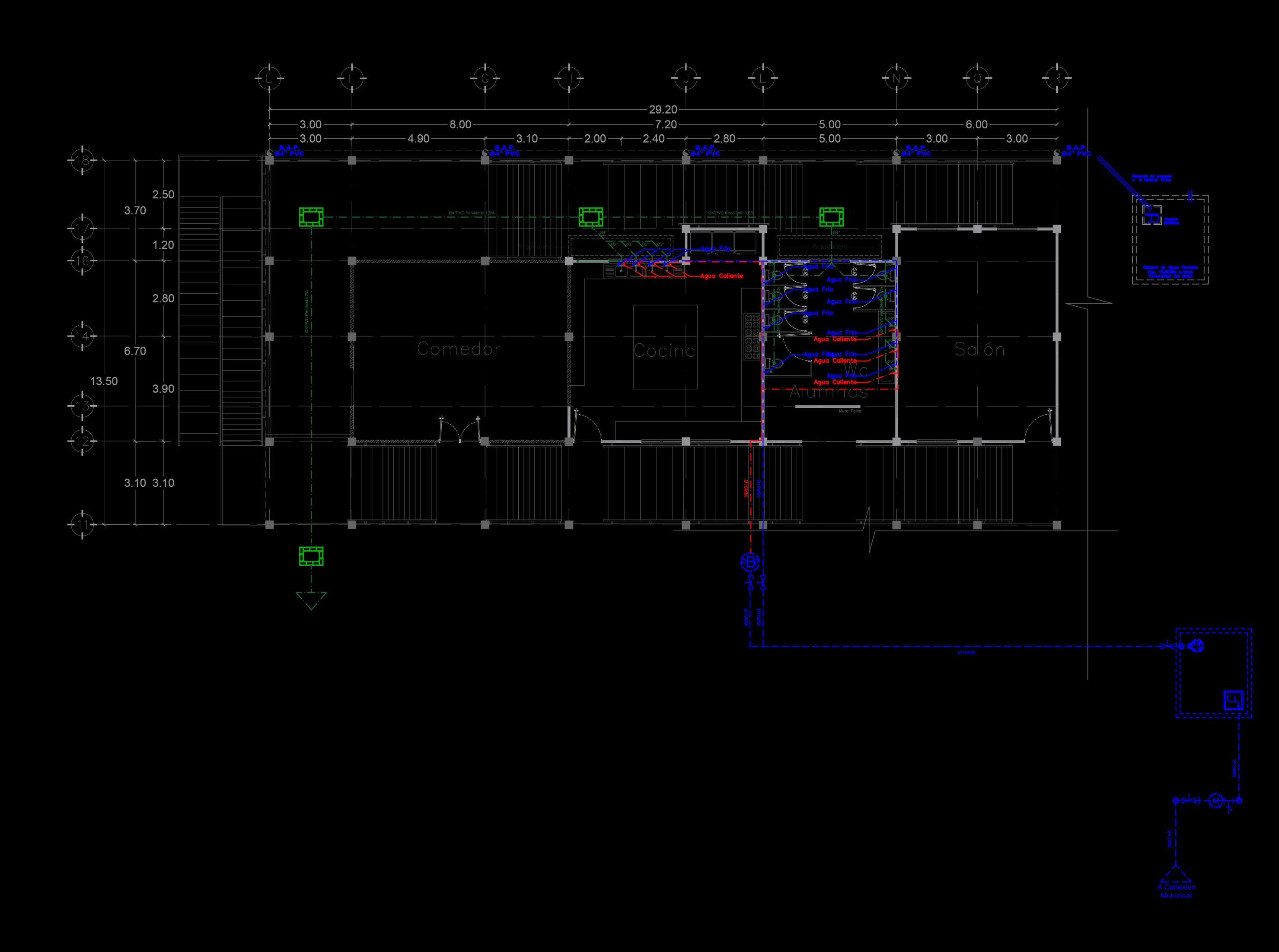
Instalación Hidrosanitaria

Plano Instalación Hidrosanitaria

Malinalco, Estado de México

Proyecto Integral de Arquitectura

Arq. Dolores Pardo

Licenciatura de Arquitectura

Detalle de Cisterna de Agua Potable y Agua Pluvial

8vo Cuatrimestre

Bachillerato Técnico Malinalco

Diseño de Instalaciones Corte

Planimetría Estructural

Patricia Elizabeth García Carrillo

189 m2

IHS-1304-2024

Metros

Sin Escala IHS-AR04

13 Abril 24

Transversal

Universidad Uk

Universidad Uk

Proyecto Integral de Arquitectura

Proyecto Integral de Arquitectura

Arq. Dolores Pardo

Arq. Dolores Pardo

Patricia E. García Carrillo

Patricia E. García Carrillo

Ejercitación Practica S3

Ejercitación Practica S3

20 Abril 2024

20 Abril 2024

Acabados Verticales

Nom Descripción

A Muro de tabique rojo recocido expuesto, con junta de mortero de 1 cm Acabado con barniz incoloro a prueba de agua

Muro de tabique rojo recocido 30X15X6 expuesto, con junta de mortero de 2 cm Adhesivo para piso porcelanato

B

Piso porcelanato Auren Ivory Formato 60x120 Caja con 141m2 Modelo: SKU 124-FAUREFD1LBE Incluye despiece de pared y pisos (proveedor: gilsa com)

C Pared falsa de Tablaroca con recubrimiento de pasta texturizada acabado fino entintado con pintura Comex Vinimex 3-1 color Espátula 312-02

D Columna de concreto armado expuesta, Acabado con barniz incoloro a prueba de agua

E ACRILOCK 80

Mampara Acabado Acrilock, compuesto de lámina de fibra de vidrio reforzada con poliéster y texturizado en su cara externa, su espesor es de 3 6mm Alta resistencia a golpes y manchas (Proveedor sanilock.com)

Piezas Articulo

2,727 piezas

38 cajas

4 litros

4 litros

Revisión con Proveedor

Accesorios

Nom Descripción Piezas Articulo

K Despachadores de Papel Higiénico Humo Kleenbo Mini PR41310 Color Transparente Proveedor www gustamar com mx

L Toallero, Dispensador o Despachador de Toalla en Rollo Toallero Z 600 TI31010 Kleenbo Humo Color: Transparente Para cada cubículo de wc Proveedor www gustamar com mx

M Cesto de basura con tapa vaivén Ideal para oficinas, áreas públicas y hogares. Para cada cubículo de wc

N Bote de Basura de Acero con Tapa Tipo Domo - 15 Galones H-1476 Duraderos, resistentes y a prueba de incendios. Acero resistente a la corrosión

Cubierta exterior de una pieza con tapa de resorte de apertura a presión Revestimiento removible de acero galvanizado Proveedor es uline mx

Mobiliario

F Sanitario Avalon MB-2021-0 de una pieza Interceramic Fabricado en cerámica vitrificada color blanco. Doble descarga de 3 y 4.8 lts.

6 piezas

2 pieza

6 pieza

2 piezas

F

G Lavabo anclado de 3 plazas porcelanato blanco cortado en sitio H Mueble hecho a medida bajo lavabo empotrado, y fijado en pared Madera de pino estufada con acabado entintado y sellador mate modelo SKU: 19A0662101

I Espejo con marco de madera de pino entintado y sellado mismo color del mueble de lavabo medidas 70 x 90

J Lampara sobreponer pared 16HLED10 53V30G proveedor Tecnolite com Nom Descripción

Accesorios

Nom Descripción Piezas Articulo

O Llave de muro para lavabo línea Weismar en cromo pulido Marca Essen, modelo ESS-V445009-CP Proveedor interseramic com

P Plafón acústico mars con clima plus fineline biselada 61 x 61 m Caja con 12 piezas Proveedor homedepot com mx

3 piezas

8 cajas

P Kit de instalación sistema de rieles y soportes para plafón Proveedor homedepot com mx 91m

Q Ventana Eurovent de Cuprum serie 70 doble acristalamiento color champagne con fijo + 4 hojas proyectantes en la parte superior

Patricia E. García Carrillo / Id 551667 Ejercitación Practica Semana 3 21 Abril 2024 Universidad Uk Proyecto Integral de Arquitectura Arq. Dolores Pardo
Wc Alumnas 0.08 0.45 0.08 0.50 0.35 0.20 0.85 0.40 0.55 0.08 0.80 0.80 0.55 0.80 1.15 0.20 0.10 2.20 0.85 2.70 6.60 0.45 0.08 0.45 0.40 0.20 0.85 0.40 0.45 0.08 1.60 0.08 0.95 1.15 0.20 0.10 2.50 0.85 1.60 0.40 0.85 0.20 2.00 0.20 1.15 1.30 2.40 1.75 0.60 2.50 0.40 4.85 1.50 1.50 1.50 0.15 0.15 Wc Alumnas 0.10 1.85 3.00 0.60 0.15 0.40 1.30 0.70 1.2 2.80 0.20 1.15 0.10 0.95 0.08 1.60 0.08 0.85 0.08 0.85 0.08 0.85 0.20 6.60 0.10 0.90 1.20 0.40 0.15 0.70 0.80 1.20 2.00 0.20 0.85 0.08 0.85 0.08 2.70 0.80 0.10 1.15 0.20 1.30 3.00 2.80 6.60 4.85 1.50 0.90 1.50 0.15 0.15 0.60 0.80 1.2 2.80 .00 0.10 1.85 0.40 0.15 0. 0 Planta Arquitectónica Vista A Vista B Vista D 0.80 1.85 0.10 1.30 0.40 0.15 0.70 1.75 0.60 2.50 0.10 4.8 Vista C A B G O P A A A B B C C C D D E E E
Planimetría de Acabados
F F F F
F F
G G H H H
Piezas
3
I I I J J J K
Articulo 6 piezas 1 pieza 1 litro
piezas 3 piezas
P P
P

Flamboyán

Es un árbol que alcanza los 8 metros de altura, su follaje es denso y muy extendido Florece de forma espectacular entre los meses de mayo y agosto. Sus características flores rojas se pierden al terminar la primavera Para desarrollarse y florecer necesita pleno sol y habitar en climas tropicales o subtropicales

Tiene un sistema radicular agresivo, por lo que debe tener suficiente espacio para expandir sus raíces

Jacarandas

Son árboles con flores violetas utilizados en la jardinería para embellecer los espacios urbanos, además las flores tienen un aroma agradable que atrae a muchos insectos y aves.

Es un árbol caducifolio, es decir pierde sus hojas en invierno, son árboles que alcanzan una altura de 20 a 25 metros

Tecoma stans

Árbol pequeño o arbusto bajo, perennifolio o caducifolio, de 1 a 10 m (hasta 20 m) de altura, con un diámetro a la altura del pecho de hasta 25 cm

Copa / Hojas Hojas compuestas, opuestas e imparipinnadas, 5 a 13 folioladas; los folíolos aserrados y lanceolados, el folíolo terminal de 2 4 a 15 cm de largo

Roble de Castañas

El castaño es un árbol de gran longevidad, porte majestuoso, fuste derecho, con copa recogida y frondosa, cuando va encaminado a la producción de madera, y de tronco corto y copa amplia y frondosa cuando se aprovecha como frutal

Níspero

Suele desarrollar 5-8 m de altura, pero puede alcanzar los 10 m El tronco es corto y no muy grueso y soporta una copa redondeada de 4-7 m de diámetro que proyecta una buena sombra Con dulces frutos de color dorado

Ciruelo

Árbol de tamaño mediano que alcanza una altura máxima de 5-6 m Produce ramas alternas, pequeñas, delgadas, unas veces lisas, glabras y otras pubescentes y vellosas

Fruto: drupa redonda u oval, recubierta por una cera blanquecina

Citronella

Es una planta herbácea, perenne, aromática y robusta que se propaga por esquejes y pertenece a la familia de las Gramíneas Las flores se reúnen en espiguillas de 30-60 cm de longitud formando racimos Las hojas son muy aromáticas y alargadas como listones, ásperas, de color verde claro que brotan desde el suelo formando matas densas

Vista en planta Vista en alzado Descripción
Alzado Oeste Patricia E. García Carrillo / Id 551667 Ejercitación Practica Semana 3 21 Abril 2024 Universidad Uk Proyecto Integral de Arquitectura Arq. Dolores Pardo
Planta de Conjunto
Propuesta Paleta Vegetal

Mobiliario Urbano

El basurero metálico de péndulo con una estructura resistente y duradera, construida de acero inoxidable, diseñado con una tapa oscilante que facilita el depósito de basura y se cierra automáticamente para contener los residuos Con una capacidad típica de 50 a 100 litros y anclado con dos puntos fijos al suelo para estabilidad, este basurero incorpora un mecanismo que permite un fácil vaciado para el personal de limpieza Además de su funcionalidad, destaca por su diseño estético y características de seguridad, como bordes redondeados y cerraduras, integrándose armoniosamente en entornos públicos como escuelas mientras cumple con los estándares de gestión eficiente de residuos.

La mesa de picnic diseñada para exteriores, unida a dos bancas fijas de acero inoxidable, se destaca por su robustez y resistencia a la intemperie gracias a su construcción con materiales de alta calidad Con una amplia superficie rectangular y bancas integradas a los lados, esta estructura ofrece comodidad para varias personas al tiempo que garantiza estabilidad y seguridad mediante su fijación al suelo Su acabado estético puede variar, desde un brillo pulido hasta un mate elegante, adaptándose a diferentes entornos al aire libre, y puede incluir características adicionales como agujeros para sombrillas o posavasos, proporcionando así un espacio funcional y atractivo para disfrutar de actividades al aire libre como picnics y reuniones sociales.

La luminaria LED solar está montada en un poste metálico resistente para uso en exteriores, con paneles solares integrados que recargan su batería interna durante el día Su diseño enfocado proporciona iluminación directa en un área circular de aproximadamente 4 metros alrededor de la luminaria, utilizando tecnología LED de alta eficiencia energética Esta solución combina funcionalidad, durabilidad y sostenibilidad al aprovechar la energía solar para ofrecer una iluminación intensa y focalizada en entornos exteriores como parques o calles, con posibles características de control inteligente para una gestión eficiente de la iluminación

Vista en planta Vista en alzado Perspectiva Planta de Conjunto
Alzado Oeste
Patricia E. García Carrillo / Id 551667 Ejercitación Practica Semana 3 21 Abril 2024 Universidad Uk Proyecto Integral de Arquitectura Arq. Dolores Pardo
Gracias por Arq. Dolores Pardo Issu:

Turn static files into dynamic content formats.

Create a flipbook
Issuu converts static files into: digital portfolios, online yearbooks, online catalogs, digital photo albums and more. Sign up and create your flipbook.