Architectural Portfolio | Patrik Tahotny

Page 1

DORIC CULTURE CENTRE

ACADEMIC | INDIVIDUAL | MAY 2022

Located in the heart of Aberdeen, Scotland , Doric Culture Centre is part of a new intervention of a distinctive urban environment of the city centre. The project aims to engage with the local culture and dialect of Doric , a particular form of Scots spoken in the Northeast of Scotland.

The programme of the building was intended to cover all the main aspects of the culture ; the recording of the spoken word, the study of the literature, and the performing of music and song.

SKETCHUP | ENSCAPE | AUTOCAD | ILLUSTRATOR | PHOTOSHOP

01
DCC | BRIDGE ENTRANCE 02
ACCESS SUNPATH DCC | SITE PLAN 03
CULTURAL CONNECTION SPACE ORDER CONNECTION DIVISION | CONCEPT DCC | CONCEPT & ANALYSIS 04

Tough and long winters has shaped the North-eastern to be able withstand any conditions.

The choice of rough and natural materials seemed like obvious choice

05
DCC | GALLERY SPACE 06
DCC | LONG SECTION AA’ 07
DCC | CONSTRUCTION DETAIL 08
DCC | CROSS SECTIONS BB’ & CC’ 09
DCC | CIVIC SQUARE 10

VIRTUAL ARTS CENTRE ABERDEEN

ACADEMIC | INDIVIDUAL | APRIL 2021

The new building of Virtual Arts Centre in Aberdeen is part of the revitalisation of the Bon-Accord area, by the strategy of adaptive reuse of an abandoned building and car park. The buildings function is that of an innovative culture centre , with a ‘21st Century’ exhibition area, where people can experience virtual reality in various forms. By creating an atmospheric environment showcasing visual arts, allows people to interact, understand and analyse all forms of visual arts f rom all over the world .

SKETCHUP | ENSCAPE | AUTOCAD | ILLUSTRATOR | PHOTOSHOP

11
VACA | COURTYARD VIEW 12
3-WAY ACCESS SPACE ORGANISATION VACA | SITE PLAN & DIAGRAMS 13
VACA | INTERACTIVE PANELS 14
‘‘One of the most important areas we can develop as professionals is competence in accessing and sharing knowledge’’
VACA | FLOOR PLANS 15
VACA | FLOOR PLANS 16
17
18 VACA | PERSPECTIVE LONG SECTION

SHIP ROW

ACADEMIC | INDIVIDUAL | JANUARY 2022

Set on one of the oldest streets in Aberdeen , rich in history and stories waiting to be told. Ship Row aims to start a new chapter of this local hotspot, and breathe new life into the area. Ship Row Bar/Music venue, creates more opportunities for independent pop-ups, a strong network, and a space where people can enjoy their spare time with friends and family.

Its architecture respects its close connection to the harbour and its industrial surroundings while bringing attention to the new face of the city area .

19
SKETCHUP | ENSCAPE | AUTOCAD | ILLUSTRATOR | PHOTOSHOP
SHIP ROW | BRIDGE ENTRANCE 20

Site is located in a close proximity to the Aberdeen harbour , in a industrial part of the city.

The choice of materials was designed to enhance its historical locations, while bringing attention to the new face of Shiprow area.

SHIP ROW | SITE PLAN & SHAPE DEVELOPMENT 21
SHIP ROW | STREET VIEW 22
SHIP ROW | FLOOR PLANS 23
SHIP ROW | PERSPECTIVE SECTION BB’ 24
SHIP ROW | SOUTH ELEVATION & LONG SECTION AA’ 25
SHIP ROW | INTERIOR VIEWS 26

RESIDENTIAL HOUSE

PROFESSIONAL | TEAM WORK | JULY 2021

During my summer practice at Pro-Style I was part of the team working on a renovation of an old residential house in Bratislava, Slovakia . I have taken part in site visits, where I had to take all measurements of the old structure, and afterwards produce 2D drawings, as well as producing a 3D model.

My main task was to assist the architects with developing of the design, producing visuals, which were later presented to the client, as well as preparing construction drawings in order to obtain a building permit.

27
SKETCHUP | ENSCAPE | AUTOCAD | ILLUSTRATOR | PHOTOSHOP
RESIDENTIAL HOUSE | GARDEN VIEW 28
RESIDENTIAL HOUSE | GROUND FLOOR PLAN 29
RESIDENTIAL HOUSE | FIRST FLOOR PLAN 30
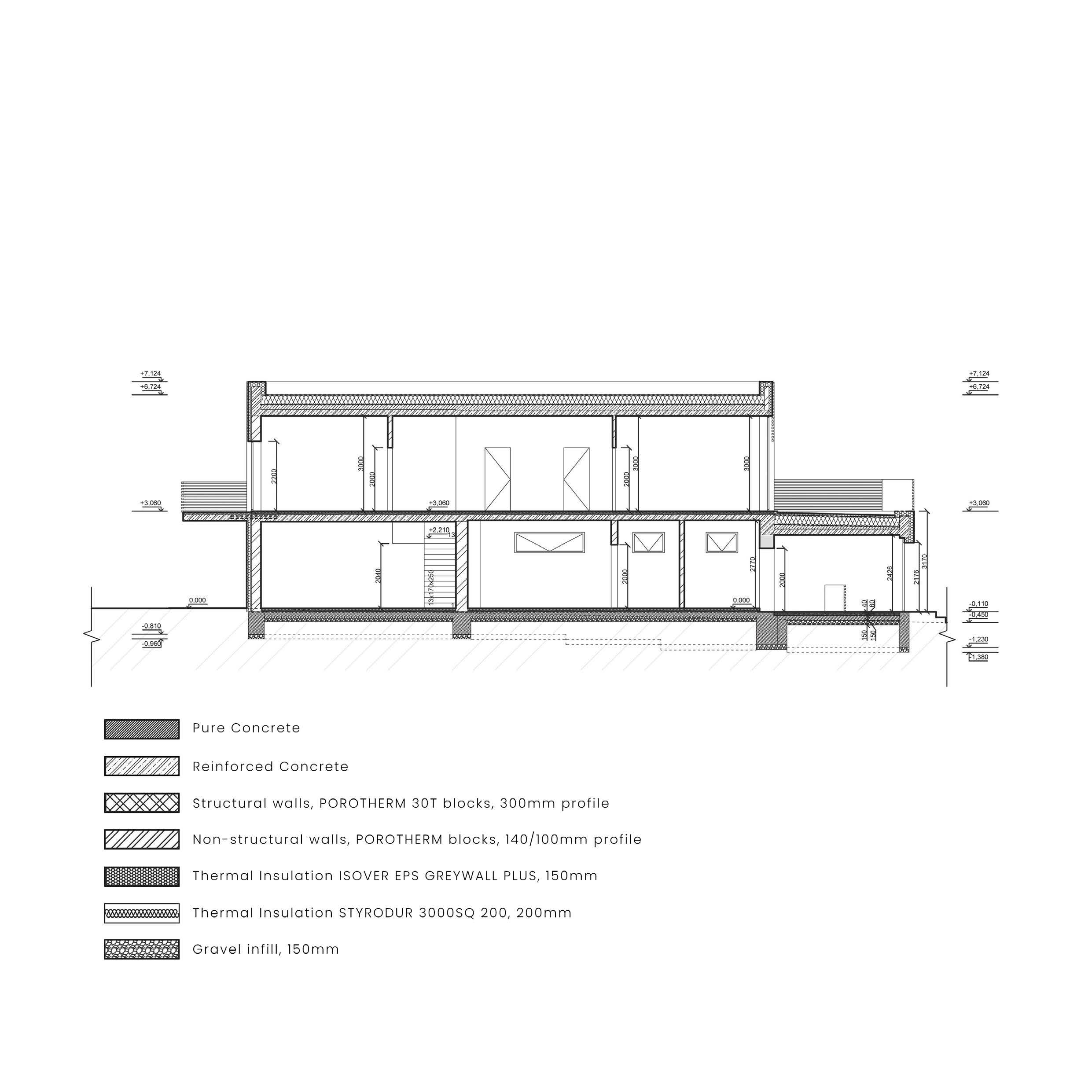
RESIDENTIAL HOUSE | LONG SECTION AA’ 31
RESIDENTIAL HOUSE | LONG SECTION BB’ 32

Turn static files into dynamic content formats.

Create a flipbook
Issuu converts static files into: digital portfolios, online yearbooks, online catalogs, digital photo albums and more. Sign up and create your flipbook.