PATRICK FAN

![]()

an archive of my school work and internship
THIRD YEAR FALL

NAME
AGE LOCATION
CONTACT SCHOOL
SCHEMATIC RESPONSE
RENDERING
MODEL MAKING
THIRD YEAR DOUBLE QUARTER
SCHEMATIC DESIGN
WALL SECTION
RENDERING
AXON DRAWING
INTERN 2023 AT SPARCHS
WINDOW/DOOR SCHEDULE
RENDERING
MODEL MAKING
LA METRO - WINTER SPRING 2024
FORM STUDIES
DISSIMULATION
patrickfann1202@gmail.com Cal Poly, San Luis Obispo
Graduated June 2025
YEAR Patrick Fan 24 California
RENDERING
MODEL MAKING
3D PRINTING
2024-2025
SOCIAL STUDIES
FORMAL STUDIES DESIGN FOR HUMAN MODEL MAKING



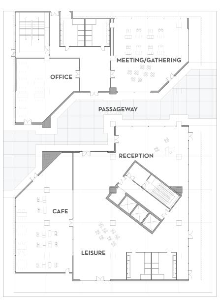
This project was intended to be designed as a school of Art, Graphic Design & Architecture. With response to climate, programmatic needs, and material selection.
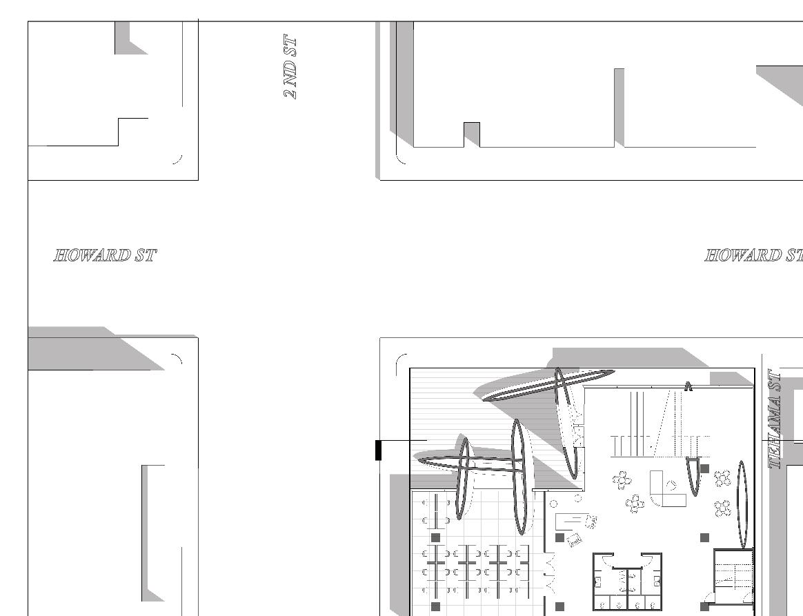
Located in San Francisco, the site is on the in- tersection of Howard and 2nd St. within the SOMA district of DTSF. Based on the climate study, this location is one of those places that does not get very warm even during hot days.
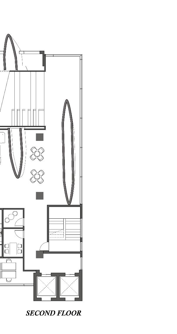
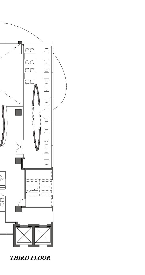
With the rapid development of technology, it is encouraged that students to think “outside the box,” therefore the Chip School revolves around the idea of interactive “chips” to present to students with interesting space division and circulation. Within an interesting environment rises innovative ideas.
It has come to my attention that the “chips” in my school should be brought inwards to help circulate students’ movement within the building.































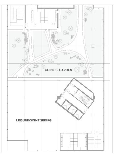
This project was intended to be designed as a world’s fair complex(including the ferry terminal and the bridge in between). With response to climate, programmatic needs, and material selection and the intention to promote Chinese traditional values of nature.
Located at san francisco’s marina green bay, the world’s fair complex is intended to be one of the monuments that can spark passion of chinese traditional art for the visitors.
The ferry terminal and the main building are symbols of sky and earth, nature and human, the idea that “sky is round and the earth is squared” deeply influences the design language of the complex.
The ferry terminal is a sign of the sky/ nature, and embodies a circular shape, whereas the main building represent earth/human. People who come from the nature(by water transportation) will end up in the building meant for humans through the designed bridge.
The main building embodies the arc shape of chinese entry gate on its roof, and its rectangular body represents that the building is meant for humans to use. The building facade is composed of blue terrca cotta panels. The roof is accessible to visitors to enjoy the amazing sky and feel the ocean breeze to spark the harmony between human and nature.































This project was intended to be a residential house located in Sonoma, CA.









note: renderings were produced with team of coworkers








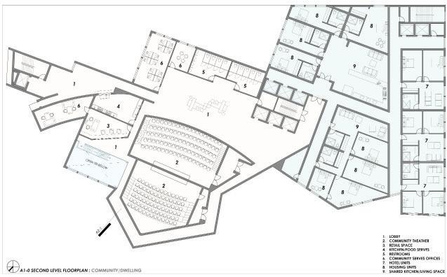
This project was intended to be designed as a high-rise mixed use building located in downtown Los Angeles. The process includes formal studies
Located in Downtown Los Angeles, this project focuses on creating a mixed-use community that serves both the wealthy and the ones in need.
The project started with the study of forms with respect to void and solid and multiple iterations.
The programs of this project include hotel, transitional family housing, commercial department stores, office space, public services, and affordable housing.










































This project was intended to debate the modern Chinese urban way of living - the highrise phenomenon - by introducing a low to mid-rise urban community that focuses more on human interaction rather than efficiency. Located in Wuhan, China, by the Yangtze River
Thesis Book available for deep dive upon request
The vast difference between traditional and modern urban living has sparked some problems - the lack of social communication, communal interaction, and the distance between human and nature- has developed into a less spiritual experience.
Modern people are more focused on efficiency rather than the sentiment of living. This is not to say, that the people are the ones to blame, nor that this form of architecture isn’t beneficial for the modern cities - but it is something that is worth reconsidering and studying.
Architecture as a subject of humanities and art should address these issues and try to bring the Chinese people the nostalgia of the traditional way of living which existed for thousands of years.













































