Portfolio May 2024

Page 1

PATRICK QUINN

DESIGN PORTFOLIO

A graduate from the accredited architecture program at the New Jersey Institute of Technology. Experienced in Hospitality and many other types of projects from working with ENV in Englewood Cliffs, NJ and with Taylor Architecture and Design in North Plainfield, NJ. Experience in a variety of parts of the architectural process including project managements, client coordination, consultant coordination, code review, and many more.

Patrick M. Quinn 235 Bradley Ave. Bergenfield, NJ (908)635-9075 pmquinn97@gmail.com

Software/Skills:

Revit

Photoshop

Drawing

Rhinoceros

Photography

Client coordination

Team leadership

Zoning Review

AutoCAD

Illustrator

Photography

Bluebeam

Sketch Up

Consultant Coordination

Code Review

Project Type Experience:

Mixed-Use Residential

Medical Offices

Restaurants

Higher Education

Commercial Fit Outs

Residential

Feasibility Analysis

Corporate Offices

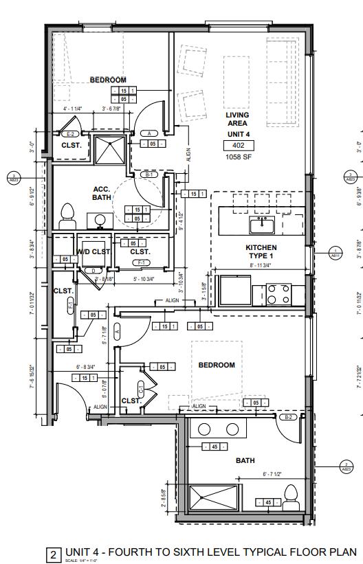
ARTS DISTRICT APARTMENTS

Taylor Architecture & Design

Project Type:

Location:

Phases:

Multi-Family

East Orange, New Jersey

Feasibility Study

Preliminary Design

Schematic Design

Planning Board

A new apartment building in East Orange which I took the lead design role on. Worked with the developer to determine how to maximize the site and work towards a profitable project. Coordinated with civil on the parking for the first level.

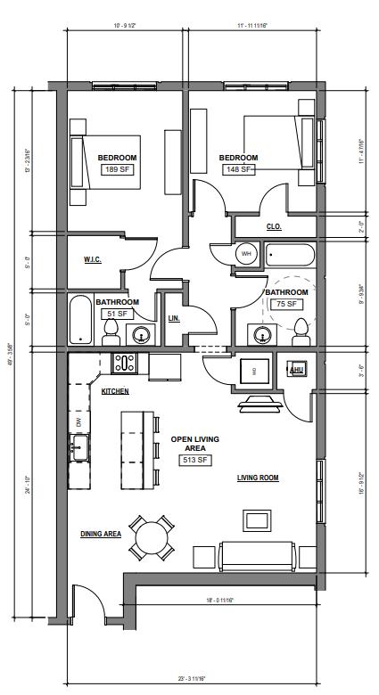
THE BOULEVARD

Taylor Architecture & Design

Project Type:

Mixed-Use Residential

Location: Newark, New Jersey

Phases:

Design Development

Construction Documents

A mixed use residential building in the High Street District in Newark, New Jersey. I worked in a project manager role for the construction documents for this building and was in charge of coordinating our architectural team and the consultants for the project.

VICTORIAN RESTORATION

Taylor Architecture & Design

Project Type: Residential

Location: Plainfield, New Jersey

Phases:

Preliminary Design

Schematic Design

Construction Permits

=Construction Administration

An old Victorian home was given new life through the design of a new 2 family floor plan along with an addition. The project expands the original home and provides new living spaces for all three levels and the basement. The addition compliments the existing facade and is an improvement to the area and compliments other homes in the area

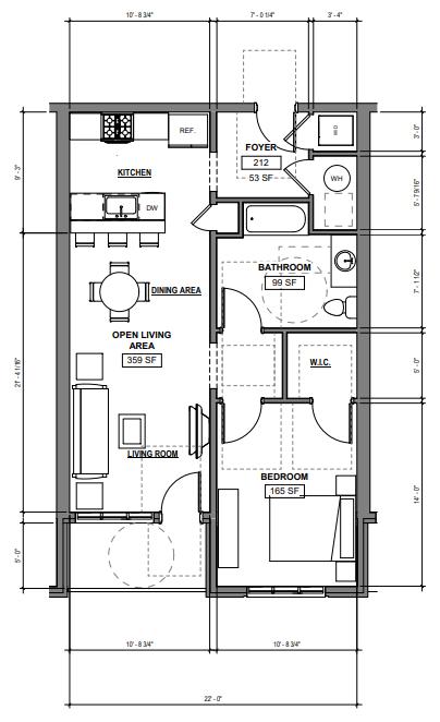
THE BELLA

Taylor Architecture & Design

Project Type:

Mixed-Use Residential / Redevelopment

Location: Plainfield, New Jersey

Phases:

Schematic Design

BIM Modeling

Planning Board Approval

Construction documents

This project consisted of a four building transit oriented redevelopment. My role on the project was designing and BIM modeling each of the four buildings and preparing drawings for planning board. The BIM model was then used for the construction documents.

JFK Eastward

ENV

Project Type:

Location:

Phases:

Hospitality

JFK Terminal 4, Queens, NY

Design Development

BIM Modeling

Construction Documents

Construction Administration

A bar and restaurant in JFK Terminal 4. For this project, I led the design team in the creation of the BIM and the coordinated internal construction documents team and the external consultant teams. I was then the prime point of contact for the construction administration phases and was responsible for all RFI, Submittals, and On-Site observations during construction.

JFK BOULTON & WATT

ENV

Project Type: Hospitality

Location:

Phases:

JFK Terminal 4, Queens, NY

Design Development

BIM Modeling

Construction Documents

Construction Administration

A bar and restaurant in JFK Terminal 4. For this project, I led the design team in the creation of the BIM and the coordinated internal construction documents team and the external consultant teams. I was then the prime point of contact for the construction administration phases and was responsible for all RFI, Submittals, and On-Site observations during construction.

FREEHOLD HOMETOWN REDEVELOPMENT

ENV

Project Type:

Mixed-Use Residential

Location: Freehold, NJ

Phases: Preliminary Design

A design competition submission for a new redevelopment in Freehold, NJ. As part of the design team, I was a member of the design team and was responsible for developing the 3D model and setting up elements for the renderings.

Turn static files into dynamic content formats.

Create a flipbook
Issuu converts static files into: digital portfolios, online yearbooks, online catalogs, digital photo albums and more. Sign up and create your flipbook.
Portfolio May 2024 by Patrick M Quinn - Issuu