
P O R T A F O L I

Soy estudiante de 9no ciclo de Arquitectura en la Facultad de Arquitectura y Diseño de la Universidad Privada del Norte. Actualmente tengo 25 años y estoy entusiasmada por encontrar oportunidades que me permitan expandir mis habilidades y conocimientos en las diversas áreas de la Arquitectura.
Desde una edad temprana, la Arquitectura se convirtió en mi medio para transformar ideas en espacios tangibles. Me motiva la búsqueda de soluciones innovadoras que no solo embellezcan nuestro entorno sino que también aborden desafíos sociales y medio ambientales.
Cada proyecto que emprendo es una oportunidad para explorar nuevas ideas y enfoques. Desde la concepción hasta la implementación, mi proceso de diseño se basa en la colaboración y en la investigación.
Los invito a sumergirse en mis proyectos y ver como cada uno de ellos cuenta una historia única.
2019-Actualidad
2011-2015
Universidad Privada del Norte
Facultad de Arquitectura y Diseño
I.E2032 Manuel Scorza Torres
Educación Secundaria
Español
Febrero 2022
Lengua Nativa
Instituto Cultural Peruano Norteamericano
Ingles-Intermedio 1
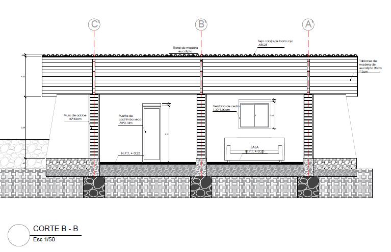
En un mundo donde la tierra puede temblar con una fuerza implacable, la ciudad de Yungay ha levantado un símbolo de resistencia y esperanza: las viviendas de emergencia del proyecto "Reconstrucción Tupay".
En medio de un paisaje marcado por la belleza de los Andes, estas modestas moradas construidas con adobe se alzan como una respuesta audaz ante la posibilidad de un terremoto devastador.
Construidas en un solo nivel, estas viviendas representan mucho más que refugios físicos. Son el fruto de la colaboración y el esfuerzo colectivo, una manifestación tangible del compromiso de una comunidad unida para enfrentar los desafíos que la naturaleza pueda presentar.
En este viaje a través de las viviendas de Reconstrucción Tupay, exploraremos su diseño ingenioso, su conexión con la tierra que las sustenta y el papel crucial que desempeñan en la protección y preservación de vidas en caso de una emergencia sísmica.
Detalle -Cubierta
En el corazón del bullicioso distrito de San Martín de Porres se erige un monumento de modernidad y funcionalidad: el mercado modelo Gimdawasi. Con su diseño innovador y sus tres niveles, incluido un sótano, este mercado no solo satisface las necesidades comerciales de la comunidad, sino que también representa un hito arquitectónico en la zona.
Al adentrarnos en este espacio, nos reciben líneas limpias y una estructura bien definida que armoniza con el entorno urbano circundante. El sótano, que sirve como área de almacenamiento y logística, brinda una base sólida para el funcionamiento eficiente del mercado. Los dos niveles superiores, con su distribución inteligente de pasillos y espacios comerciales, ofrecen una experiencia de compra fluida y agradable para los visitantes.
“Espacio sin Límites” (Quechua)
CUBIERTA
ESTRUCTURA
MAMPARAS Y MUROS CORTINA
SEGUNDO NIVEL
ZONA HUMEDA
ZONA SEMI HUMEDA
FRUTAS VERDURAS
ZONA SECA
ABARROTES
ESPECIAS
GRANOS Y SEMILLAS
Cortes A-A
Cortes B-B
Cortes C-C
Cortes D-D
Bienvenidos al Centro Comunitario "Piggy Park" en el distrito de Ventanilla, específicamente ubicado en la Asentamiento Humano Parque Porcino. En este vibrante espacio, convergen la creatividad, la cultura y el emprendimiento, dando vida a una experiencia única en nuestra comunidad.
"Piggy Park" no solo es un centro cultural, sino también un motor de desarrollo para la zona, donde se fusionan la producción y comercialización de chanchitos con la promoción del arte y la cultura local. Este innovador enfoque no solo fomenta la creatividad y el talento de nuestra comunidad, sino que también impulsa el crecimiento económico y social de Ventanilla.
Un lugar conformado por un terreno eriazo , carente de pistas, veredas y con viviendas conformadas por materiales nobles y reciclados , así es el Parque Porcino, una comunidad que se encuentra localizada en la ribera del Rio Chillón en el Distrito de Ventanilla .
PRIMER CENTRO COMUNITARIO DEL PARQUE PORCINO
ÁREA ARQUEOLÓGICA PROTEGIDA
COMUNIDAD ALEJADA DE LA POBLACIÓN
CREACIÓN DE UN PUENTE
ZONA DE CULTIVOS
INSTITUCIÓN EDUCATIVA ESTATATAL MÁS CERCANA
Elevaciones ELEVACION
Detalle estructural de los muros
COBERTURA DE CONCRETO
HILERAS DE LADRILLOS ECOLÓGICOS
DETALLE -UNIONES DE BAMBÚ
ESCALA 1:5
DETALLE -CIMENTACIÓN
ESCALA 1:5
Diseño Interior para una vivienda unifamiliar -2023 Bienvenidos al mágico mundo de los sueños, donde la fantasía se entrelaza con la realidad para crear un espacio encantador dedicado a una niña especial. En este viaje de diseño interior, nos sumergimos en un dormitorio que respira el encanto de las hadas y la dulzura de los tonos verde y rosado bebé. Aquí, cada detalle está meticulosamente seleccionado para capturar la esencia de la magia y la imaginación, transformando este espacio en un refugio de ensueño para nuestra pequeña protagonista.
En este espacio nos vamos a adentrar en el reino de mariposas, brillos y destellos donde los sueños cobran vida. Desde el suave resplandor de las luces hasta la suave caricia de las telas, cada elemento ha sido cuidadosamente elegido para transportar a nuestra niña a un mundo de fantasía.
RollerdetelaScreen
ShadeStyle2500
REPISA DE JUGUETES Tablero
MDF unicolor blanco marca Vesto
(2 44 m x 1 52 mx 6mm)
ESCRITORIO: Tablero MDF Teka Artico marca Vesto (2 44 m x 1 52 mx 6mm)
BARANDA : aluminio cromado
(235 0 cm x 0 6 cm x 230.0 cm)
MAMPARA: Vidrio templado con marco de aluminio cromado
(235 0 cm x 0 6 cm x 230 0 cm)
MESA DE NOCHE: Tablero
MDF unicolor blanco marca Vesto
(2 44 m x 1 52 mx 6mm)
CENTRO DE ENTRETENIMIENTO: Tablero
MDF unicolor blanco marca Vesto
(2 44 m x 1 52 mx 6mm)
PISO: Piso Estructurado roble niebla marca Bosovich (127 mm x 1200 mm x 1 mm)
CLOSET : Tablero MDF Teka Artico marca Vesto
(2 44 m x 1 52 mx 6mm)
MUEBLE DE TV : Tablero
MDF Teka Artico marca Vesto
(2 44 m x 1 52 mx 6mm)
ALFOMBRA: Alfombra peluche color verde de 2 5m de radio
PAPEL TAPIZ :Papel tapiz Hojas Verdes marca Deco Tapiz (0 53 m x10 m)
LUMINARIA :Lampara de techo
Atenea gold led marca I-Lumina (27 luces led )
MAMPARA: Vidrio templado con marco de aluminio cromado (235.0 cm x 0.6 cm x 230.0 cm)
ESCRITORIO: Tablero MDF Teka Artico marca Vesto (2 44 m x 1 52 mx 6mm)
BARANDA : aluminio cromado (235.0 cm x 0.6 cm x 230.0 cm)
LUMINARIA :Lampara de techo
Atenea gold led marca I-Lumina (27 luces led )
ADORNO:Mariposas doradas Decor mueble (cantidad 30)
LUMINARIA :Lampara colgante Luz gold led (1 luces led )
WALL PANEL :Melamina unicolor Verde Jade marca Vesto Listones :(1 50mx20 mm)
MESA DE NOCHE: Tablero MDF unicolor blanco marca Vesto (2 44 m x 1 52 mx 6mm)
WALL PANEL :Melamina unicolor Verde Jade marca Vesto Listones :(1 50mx20 mm)
LUMINARIA :Lampara colgante Luz gold led (1 luces led )
CLOSET : Tablero MDF Teka Artico marca Vesto (2 44 m x 1 52 mx 6mm)
INTERRUPTOR : Interruptos living now blanco marca BTicino (2 44 m x 1 52 mx 6mm)
MESA DE NOCHE: Tablero MDF unicolor blanco marca Vesto (2 44 m x 1 52 mx 6mm)
CENTRO DE ENTRETENIMIENTO: Tablero MDF unicolor blanco marca Vesto (2 44 m x 1 52 mx 6mm)
PINTURA : Pintura mate American colors cod:8900
Rack :Rack fijo de Tv Color negro
CAJONES DE CLOSET: Tablero MDF unicolor Verde Jade marca Vesto (2 44 m x 1 52 mx 6mm)
CAJONES DE CLOSET: Tablero MDF unicolor Blanco marca Vesto (2 44 m x 1 52 mx 6mm)
CAJONES DE CLOSET: Tablero MDF unicolor Rosa marca Tableros Hispanos (2 44 m x 1 52 mx 6mm)
CLOSET : Tablero MDF Teka Artico marca Vesto (2 44 m x 1 52 mx 6mm)
CAJONES DE CLOSET: Tablero MDF unicolor Verde Jade marca Vesto (2 44 m x 1 52 mx 6mm)
CAJONES DE CLOSET: Tablero MDF unicolor Blanco marca Vesto (2 44 m x 1 52 mx 6mm)
CAJONES DE CLOSET: Tablero MDF unicolor Rosa marca Tableros Hispanos (2 44 m x 1 52 mx 6mm)
LUMINARIA :Lampara de techo Atenea gold led marca I-Lumina (27 luces led )
CENTRO DE ENTRETENIMIENTO:
Tablero MDF unicolor blanco marca Vesto (2 44 m x 1 52 mx 6mm)
Rack :Rack fijo de Tv Color negro
MUEBLE DE TV : Tablero MDF Teka Artico marca Vesto (2 44 m x 1 52 mx 6mm)
MAMPARA: Vidrio templado con marco de aluminio cromado (235.0 cm x 0.6 cm x 230.0 cm)
CENTRO DE ENTRETENIMIENTO:
Tablero MDF unicolor blanco marca Vesto (2 44 m x 1 52 mx 6mm)
WALL PANEL :Melamina unicolor Verde Jade marca Vesto Listones :(1 30mx20 mm)
MUEBLE DE TV : Tablero MDF Teka Artico marca Vesto (2.44 m x 1.52 mx 6mm)
BARANDA : aluminio cromado (235 0 cm x 0 6 cm x 230 0 cm)
CAJONES DE MUEBLE DE TV : Tablero MDF unicolor Verde Jade marca Vesto (2 44 m x 1 52 mx 6mm)
VENTANA: Marco de aluminio y vidrio empavonado (67.0 cm x 4.5 cm x 148.0cm)
REPISA DE JUGUETES Tablero MDF unicolor rosa marca Tableros Hispanos (2 44 m x 1 52 mx 6mm)
LUMINARIA :Lampara colgante Luz gold led (1 luces led )
ESCRITORIO: Tablero MDF Teka Artico marca Vesto (2 44 m x 1 52 mx 6mm)
MESA DE NOCHE: Tablero MDF unicolor blanco marca Vesto (2.44 m x 1.52 mx 6mm)