PORTFOLIO

Page 1


PORTFOLIO MOHAMADREZA ZOHOURPARVAZ

BIM MODELLER

As an experienced BIM modeller with three years of experience, I have developed expert-level skills in creating highly-detailed 3D models using Revit and AutoCAD both independently and in a team.

My proficiency in coordinating models and detecting clashes has enabled me to deliver high-quality construction documentation and visualizations while maintaining project timelines.

I am well-skilled in interpreting Architectural and Structural drawings to produce accurate and efficient models. I specialized in constructing concrete, steel, and timber structures along with foundations in Revit. Additionally, I possess excellent communicationand leadership skills, problem-solving, and the ability to work either independently or collaboratively with cross-functional teams.

Page 4

NUOVO OSPEDALE DI CESENA- CESENA HOSPITAL Italy

Page 10 REAL PROJECTS

LAMPEDUSA SOCIAL HOUSING Residential renovation project Mlan, Italy

Page 16

ARCHITECTURAL family modeling

Page 18

STRUCTURAL family modeling

ACADEMIC PROJECTS

Page 22

NEW STEPS-Low carbon energy Renovation retrofit design Roma, Italy

Page 28

GREENFALL Social housing China

Page 32

ARCHITECTURAL DRAWINGS

REAL PROJECTS ARCHITECTURAL

DESIGN

CESENA HOSPITAL

The CESENE Hospitall project in Italy, meticulously modeled in Revit embodies a collaborative effort with renowned Milanese studios. In this particular view, our attention is directed towards the intricate technicalities of curtain walls, emphasizing both functionality and aesthetic appeal. Through a comprehensive exploration of materiality and structural design, we aimed to redefine the boundaries of contemporary healthcare architecture. By leveraging the latest advancements in digital modeling and visualization techniques, we have crafted a space that seamlessly integrates innovative solutions with the demands of practicality and efficiency. This project serves as a testament to our commitment to pushing the envelope in architectural innovation while addressing the unique needs of healthcare facilities.

CESENA, ITALY

BIM modeling played a pivotal role in revolutionizing our approach to design and construction, resulting in substantial cost reductions and time savings. Through the utilization of BIM, we were able to conduct clash detection early in the design phase, identifying and resolving potential conflicts among various building systems before construction commenced. This proactive approach significantly minimized the need for costly on-site modifications and rework, saving both time and resources. Additionally, the parametric modeling capabilities of BIM software allowed for rapid iteration and optimization of design solutions, enabling us to explore multiple design alternatives efficiently. Furthermore, the generation of accurate quantity takeoffs directly from the BIM model facilitated precise cost estimation, helping to maintain budgetary control throughout the project lifecycle. By harnessing the power of BIM technology, we not only improved project efficiency but also enhanced collaboration among project stakeholders, resulting in a smoother and more streamlined construction process.

Curtain wall on the main facade of the Cesena Hospital in Italy plays a pivotal role in both aesthetic appeal and structural integrity. Its sleek design not only enhances the building’s visual appeal but also allows ample natural light to permeate the interior spaces, promoting a healing environment. Moreover, the curtain wall serves as a protective barrier against the elements, ensuring the longevity of the building’s facade. Structurally, it is intricately connected to the building’s framework, distributing loads evenly and reinforcing the overall stability of the structure. This integration seamlessly blends functionality with architectural elegance, exemplifying the importance of thoughtful design in healthcare infrastructure.

BIM’s parametric capabilities enabled us to explore various facade design options seamlessly, refining aesthetics, materiality, and performance parameters iteratively. By integrating sustainability principles into our facade design, such as passive solar strategies and natural ventilation systems, we aimed to enhance energy efficiency and occupant comfort while reducing long-term operational costs. The visualization of the facade in a 3D BIM environment facilitated stakeholder engagement and informed decision-making, resulting in a design that seamlessly integrates architectural excellence with practicality and sustainability. Through the synergy of BIM modeling, architectural innovation, and sustainable design, the CESENE Hospital project exemplifies our commitment to creating spaces that prioritize human well-being and environmental stewardship.

REAL PROJECTS

RESIDENTIAL construction

LAMPEDUSA, MILAN, ITALY

RENOVATION PROJECT

STRUCTURAL AND ARCHITECTURAL DESIGN

The social housing renovation project in Lampedusa, Milan, Italy, led by BMS Progetto Srl in collaboration with architecture groups, MEP design groups, engineers, and other stakeholders, utilizes Building Information Modeling (BIM) technology for efficient planning and execution. The scope includes renovating four 10-floor flats with a focus on concrete construction and incorporating a spacious main yard for communal use. The design process emphasizes enhancing livability, fostering community engagement, promoting sustainability, and optimizing efficiency. By integrating BIM and collaborating closely with all involved parties, our aim is to deliver a revitalized housing complex that exceeds the expectations of residents and stakeholders alike.

ARCHITECTURAL FAMILY MODELING

STRUCTURAL FAMILY MODELING

Steel structure design and Building Information Modeling (BIM) with Revit have revolutionized the construction industry, offering numerous benefits across various project aspects.Design Precision and Flexibility: BIM modeling with Revit enables precise visualization and modeling of steel structures, allowing designers to explore intricate details and variations with ease.Parametric modeling capabilities in Revit empower designers to quickly iterate through design options and efficiently optimize structural configurations to meet project requirements.Flexibility in design allows for the exploration of innovative solutions, leading to more efficient use of materials and enhanced structural performance. Enhanced Collaboration and Coordination:BIM facilitates seamless collaboration among multidisciplinary teams, including architects, engineers, steel fabricators, and contractors, by centralizing project data in a shared digital environment.Revit’s cloud-based collaboration tools enable real-time communication and coordination, reducing errors and conflicts during the design and construction phases. Improved Cost and Time Management: BIM modeling with Revit allows for accurate quantity takeoffs and cost estimation at various stages of the project, enabling better budgeting and cost control.Early clash detection and resolution capabilities in Revit minimize rework and change orders, reducing project delays and associated costs. Structural Analysis and Performance Optimization: Integration with structural analysis software allows engineers to perform advanced analysis and simulation of steel structures within the BIM environment, ensuring structural integrity and compliance with design codes.Sustainability and Lifecycle Management:BIM facilitates sustainability analysis and energy performance simulations, allowing designers to evaluate the environmental impact of steel structures and explore energy-efficient design strategies.Lifecycle assessment tools integrated into Revit enable stakeholders to assess the environmental footprint of steel structures over their entire lifecycle, from construction to operation and eventual demolition or renovation.BIM data can be leveraged for facility management and maintenance, enabling owners to optimize building performance, reduce operational costs, and prolong the lifespan of steel structures.Advanced scheduling and phasing tools in Revit help optimize construction sequencing, leading to improved project timelines and faster delivery.Interoperability with other software platforms ensures smooth exchange of information between different stakeholders, enhancing project efficiency and reducing delays.

BASEPLATE

Design Precision and Flexibility: BIM modeling with Revit enables precise visualization and modeling of steel structures, allowing designers to explore intricate details and variations with ease.Parametric modeling capabilities in Revit empower designers to quickly iterate through design options and efficiently optimize structural configurations to meet project requirements.Flexibility in design allows for the exploration of innovative solutions, leading to more efficient use of materials and enhanced structural performance.

BIM modeling with Revit enables precise visualization and modeling of BASE plates, allowing designers to meticulously detail connections and anchorages within steel structures.Parametric modeling capabilities in Revit facilitate the customization of BASE plate dimensions, thicknesses, and configurations to meet specific design requirements, ensuring accuracy and compliance with industry standards.

BIM fosters seamless collaboration among multidisciplinary teams involved in steel structure design, including architects, structural engineers, steel fabricators, and contractorsRevit’s cloud-based collaboration tools enable real-time communication and coordination, facilitating the exchange of critical information related to BASE plate design, fabrication, and installation.

BEAM TYPES U-BOOT SLAB SYSTEM

ACADEMIC PROJECTS

ARCHITECTURAL DESIGN

NEW STEPS

LOW CARBON ENERGY RENOVATION RETROFIT DESIGN

The renovation encompasses not just the act of repairing or replacing a broken or obsolete structure, but also the process of reviving anything.

Retrofitting, on the other hand, is the modification of a product after it has been created. After its initial construction and occupation, a building can be retrofitted by modifying its components, systems, or structure. This action will increase resident amenities while also improving the building’s performance.

The thesis intends to restore a two-story school building into social housing and upgrade the building’s energy efficiency according to NZEB guidelines

The social housing in Via Vertunni ,Roma

UNITS

The thesis is based on renovating a former school facility loated on the eastern outskirts of the city, about 100 meters inide the highway ring, in a marginal area of the residential districtThe starting point was to analyze the situation of the existing building in terms of architectural point of view, urban context, and energy conumption. The important aspect was to avoid fundamental changes due to financial and structural reasons. Furthermore, there were arangements to enhance the energy performance of the building; such s increasing the thickness of the insulation layer and addition of the shadings around the building envelope. The architectural aspect was considered in each stage of the project. In addition, it was required to add three residential floors above the building to turn it into high-performance social housing based on the context and the city. Moreover, it was decided to create a restaurant, cafeteria, market, and gathering areas in the ground floor space

Two bedroom unit
One bedroom unit

Next to the existing voids. Enhancing the aesthetic values of the building was also an important design goal. Another essential issue was to use the component that was developed by ENI, PV panels, and solar heating elements. PV panels represent an active element in the energy performance of a building, providing a multifunctional contribution in terms of renewable energy production. At the end of the report, different daylight control systems were introduced. In the conclusion, the positive effects of the changes in both aesthetic and energy consumption terms of the building were obtained. The last step was to calculate the energy saving achieved by energy retrofitting during the operation phase of the building. Also, the global warming potential of pre and post-retrofit situations were calculated over the projected building life span, and the environmental advantages of the energy retrofitting are demonstrated. It was realized that the retrofitting of the building is highly effective to reduce the energy consumption and the global warming potential of the building to reach low carbon design targets

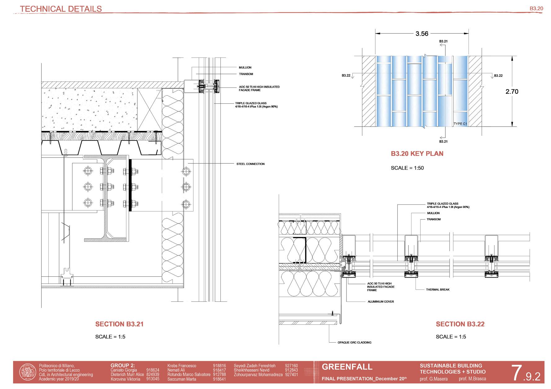
GREENFALL

Social housing

Location: China

AAfter a complete analysis of the Double Units Residential floor for Building 3, the best two options presented themselves as either OPTION 2 (Double Glaze) or OPTION 3 (Triple Glaze) on each facade.These were selected since the improvement experienced between these two options was not so significant. Therefore, the main factor that needs to be considered is the economic cost between the two options.It is generally considered that Triple Glazed glass costs about 1/3 less than Double Glazed. Based on these numbers, and considering the Annual Costs associated with both, a cost comparison for 50 years was performedaliberibus estist, optius consedi conseri simolo iuntotat. Therefore, in conclusion, Double Glazed (Option 2) Glass will be used on ihhall transparent areas with reference to Building 3 Common Plans.

ARCHITECTURAL HAND DRAWINGS

THANK YOU

Turn static files into dynamic content formats.

Create a flipbook
Issuu converts static files into: digital portfolios, online yearbooks, online catalogs, digital photo albums and more. Sign up and create your flipbook.
PORTFOLIO by parvaz366 - Issuu