Parth - BIM Portfolio

Page 1

PORTFOLIO

SELECTED WORK - PARTH CHAMPANERI

1

DESIGN TOMORROW

The design aims to facilitate the ease of arrangement of workspace. The surrounding and interior spaces are kept as flexible as possible mainly to adapt to varying needs of various sites.

The concept is mainly to keep the ground floor space as accessible as possible to give building extroverted feeling. The first floor is focusing on views and vistas of the surrounding area where the main idea is to work with desired views. Some spaces of the working areas are kept introvert intentionally.

01
(DESIGN COMPETITION)
PARIS, FRANCE
Overall view of the office space
5 Exploded View Ceiling detail Flooring detail Horizontal louvers Collapsible door South Section
North Section
Various posibilities

02

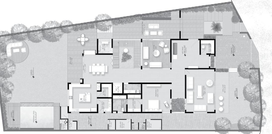
Tavish House

Ahmedabad, India (Project management)

In this project i have learnt the skills of management. Through daily observations and coordination with various agencies on site.

Located in a rather quiet suburban area of Ahmedabad, Housing a family of five, the client’s brief stated that the residential space should be as serene as the community itself.

Well connected with nature, they insisted upon having open, yet private, spaces throughout the house and wanted to ensure a completely relaxing atmosphere for everyone who takes a step inside it. Lastly, building a structure that could withstand the dry and arid heat of Ahmedabad was also taken into consideration.

Exterior of the house
10 11 Ground Floor plan North Elevation East Elevation Dining area Interior spaces extending to nature
13
View of the courtyard Interior view from the courtyard View of North facade Front facade

Private Residence

Ahmedabad, India (Architectural Project)

The client wanted an abode that connects with nature at the same time they wanted to use modern materials. The house overall has large openings which allows natural ventilation and adequate lights. This project gave me understanding on all stages of construction from conceptual stage to design coordination.

03
Exterior of the house
16 17 4TH FL. 31' - 11 5/8" MIDROOF 63' - 1 13/16" ALUMINUM CANOPY FASCIA 2"X3" ALUM DOWNSPOUT EACH SIDE COLLECT UNDERGROUND DRAINPIPE ALONG W/ ROOF GUTTER DOWNSPOUTS - SEE CIVIL DWGS. 1ST FL. 0' - 0" 2ND FL. 10' - 7 7/8" 4TH FL. 31' - 11 5/8" 3RD FL. 21' - 3 3/4" 5TH FL. 42' - 7 1/2" T.O. PLATE 51' - 8 5/8" EXT. WINDOW CEMENT FIBER LAP SIDING PRECAST SILL BRICK VENEER STOREFRONT GLAZING SYSTEM EXT. WINDOW EXT. WINDOW EXT. WINDOW 9'1 1/8" 1'6 3/4" 9' 1 1/8" 1'6 3/4" 9'1 1/8" 1'6 3/4" 9'1 1/8" 1'6 3/4" 9'1 1/8" 9'1 1/8" 10'7 7/8" 10'7 7/8" 10'7 7/8" 10'7 7/8" 51' 8 5/8" A6.2 2 A6.0 3 A6.1 6 1'1 1/8" 6'0" 2'0" 8" 7'4" 1'1 1/8" 1'1 1/8" 6'0" 2'0" 1'1 1/8" 7'4" 8" A6.0 3 1 HOUR RATED FLOOR/CEILING ASSEMBLY 1 HOUR CEILING ASSEMBLY 1 HOUR RATED FLOOR/CEILING ASSEMBLY 1 HOUR RATED FLOOR/CEILING ASSEMBLY 1 HOUR RATED FLOOR/CEILING ASSEMBLY APT. APT. APT. APT. VESTIBULE FDC BEYOND CAST STONE BAND FLUSH W/BRICK 1 A6.5 A5.4 THE MELFORD MANSIONS SCALE:1/4" = 1'-0" 1 PARTIAL SOUTH ELEVATION SCALE:1/4" = 1'-0" 2 SECTION -THRU ENTRY DOOR ELEVATION Building Section Kitchen interior view Living room view

PRIMARY SCHOOL DESIGN

MOZAMBIQUE, EAST AFRICA

Primary School in Mozambique allowed me to gain an understanding of how context-driven practice is important. The use of local materials and construction methods were the main focus of the project.

The main idea of the school is the following:

The gradual unfolding of spaces due to shifting of the Axis. The spaces have an ample amount of natural light and ventilation. The materials obtained from the local area reduce the carbon footprint of the overall built-up. Anthropometrics are kept based on children’s activities.

04
(DESIGN COMPETITION)
the courtyard
View from

A Place for the teachers and the admin staff to sit and relax in a more informal way. The space is nicely situated between the admin office and the auditorium. The overhead keeps the space cool and shaded. The intervention of steps provide a space for them to sit and have food.

The auditorium which can also be converted into an assembly at times, is raised well above the ground to give the kids a nice view of the courtyard while they are in the auditorium. The truss roofing gives ample amount of day light to the inner space.

Overview Section BB’
Project

This project demonstrates 3D modeling in Revit. The project includes all the details from creating the Revit families to creating the M.E.P. in the model.

22 23 05
Center Island, Toronto
CONDOMINIUM BUILDING
DW REF. DW REF. REF.DW DW REF. DWREF. DW REF. DW REF. DW REF. REF.DW DW REF. DW REF. DW REF. DW REF. DW REF. DW REF. DN UP ELEVATOR 1370.7 ft² 208 2BR 1352.7 ft² 209 2BR 1453.4 ft² 210 2BR 1055.3 ft² 207 2BR 1267.6 ft² 215 2BR STAIR A 848.4 ft² 205 1BR 540.7 ft² 204 STDT 1085.1 ft² 203 1BR 1237.9 ft² 202 2BR 922.6 ft² 211 STDT 717.9 ft² 212 STDT 717.9 ft² 213 STDT 1143.4 ft² 214 1BR 1213.2 ft² 201 2BR CORRIDOR 1 2 3 4 5 6 7 8 9 10 11 12 B C D E F G H I 1346.7 ft² 216 2BR 825.1 ft² 206 1BR GARB MUA LOCKER LOCKER ELECT CL STAIR B 9587 49802 1 A400 A400 531 00 6000 6150 6150 6150 4647 4647 6150 6150 6150 1566 5973 6000 6150 3977 3507 6150 2977 6000 531 00 STRUCT COLUMN, DWGS 724 712 2892 0531 9929 24858 24858 9929 49996 9929 4147 4135 4276 4129 0617 5101090 848 GL 2298 SP 1400 GL 1400 SP 3309 GL 1400 GL 2800 SP 2800 GL 1400 SP 2800 GL 4404 3817 864 GL 3787 1484 GL 30491484 GL 3566950 GL 4598 1512 GL 15381484 GL 15111511 GL 15111511 GL 3350950 GL 15292 4146 4145 1015 375 375 1015 2430 1930 1930 2430 4165 4115 20992016 1015 375 375 1015 733 740 00531 1900 1900 19892140 1015 375 375 1015 848 GL 2305 SP 1399 GL 2901 SP 3209 GL 3648 SP 1918 GL 2627 SP 2233 GL 3747 3817 0617 LG5119 SP4825 LG9944 SP0015 864 0590110 375 1015 1015 375 GL 4590 SP 1480 GL 7659 SP 1491 GL 2983 SP 1491 GL 4275 SP 950 GL 3723 SP 1491 GL 2983 SP 1491 GL 1491 SP 1491 GL 1491 SP 1491 GL 3007 SP 950 GL 4461 14851 200 9284 200 9095 200 10117 200 9357 200 6138 200 2500 200 5540 200 3897 200 5863 5559 4486 200 4689 200 2500 200 6974 10358 SP0015 LG9944 SP4825 LG5119 13179 152 2560 152 3236 152 3060 152 11795 12235 5624 200 5898 152 1748 200 7629 200 927 152 6719 200 4059 200 13387 4486 152 4678 200 4689 200 1289 152 8033 200 10358 2500 280 965 959 9653566 9653465 3672965 965420 965 1570 2073965 965826 3731965 9653530 9653502 300 965 965 3300 1509965 965 330 2254152 900 5065 200 9202 200 9095 200 9982 200 15517 965 269 160 2475 34171577 200 3200 200 15300 D50 D50 D30 D50 D50 D50 D50 D50 D50 D50 D50 D50 D50 D50 D50 D50 D50 D10 D20 D20 100 100 500 100 701 100 701 500 100 100 701 701 100 701 500 500 500 100 701 100 701 500 100 701 100 100 100 100 701 701 701 701 500 100 100 500 100 500 500 500 100 100 2072152 2617 2698 1948 1795 STRUCT COLUMN, COORDINATE ELEVATOR SHAFT SIZE ELEVATOR SHOP DRAWINGS 330 965 D20 500 500 212 1800 500 3060 152 3236 152 2560 965 965 25 965 152 1289 D10 D60 D60 D60 D60 D60 D60 D60 D60 152 4678 1 A500 CW01 CW01 CW01 CW01 CW01 CW01 CW01 CW01 CW01 CW01 CW01 CW01 SCALE (@ A1) TITLE CLIENT PROJECT DRAWING NUMBER DRAWN BY STATUS PURPOSE CODE SUITABILITY 1 100 TYP FLOOR 2ND TORONTO A202 Author 1 : 100 TYP. FLOOR PLAN 2ND -5TH 1 REVDESCRIPTIONDATE 1ISSUED FOR Typical Floor plan details 3D views of the building
24 25 LEVEL 1 150 LEVEL 2 3150 LEVEL 3 6150 LEVEL 4 9150 LEVEL 5 12150 LEVEL 6 15150 LEVEL 7 18150 LEVEL 8 21150 ROOF 24150 PARAPET 25830 GRADE 0 UG P1 -3550 I J T/O FOOTING -4770 U/S ROOF 23900 1680 3000 3000 3000 3000 3000 3000 3000 3000 150 3550 1220 UNDERGROUND PARKING ADMIN OFFICE SUITE SUITE SUITE SUITE SUITE SUITE SUITE ROOF CONC BEAM, REF TO STRUCT DWGS STRUCT COLUMN, REF TO STRUCT DWGS FOUNDATION WALL, REF TO STRUCT DWGS DRAINAGE TILE, REF MECH. DWGS AND GEOTECH REPORT GRAVEL, GEOTECH REPORT FOOTING, REF TO STRUCT DWGS UNDISTURBED BEARING SOIL SIDEWALK ASPHALT ROOF SLAB @ UG PARKING POUR CONC SLAB, REF TO STRUCT DWGS CAST IN PLACE CONC SLAB, REF TO STRUCT DWGS (TYP) SLAB ON GRADE, REF TO STRUCT DWGS C01 C01 C01 C01 C01 C01 C01 C01 F02 F02 F02 F02 F02 F02 F02 F02 R01 2 A500 3 A500 4 A500 5 A500 6 A500 GL 2400 SP 600 GL 2400 SP 600 GL 2400 SP 600 GL 2400 SP 600 GL 2400 SP 600 GL 2400 SP 600 GL 2400 SP 600 GL 2400 SP 2280 J T/O FOOTING -4770 DRAINAGE TILE, REF MECH. DWGS AND GEOTECH REPORT GRAVEL, REF GEOTECH REPORT FOOTING, REF TO STRUCT DWGS UNDISTURBED BEARING SOIL 13mm PROTECTION BOARD 13mm DRAINAGE BOARD WATER PROOF MEMBRANE LEVEL 1 150 GRADE 0 J GRAVEL, REF TO ARCHITECTURAL SPECS 13mm PROTECTION BOARD 13mm DRAINAGE BOARD CONT. WATER PROOF MEMBRANE HEAVY DUTY ASPHALT, REF TO ARCHITECTURAL SPECS FOUNDATION WALL, REF TO STRUCT DWGS CONC. SLAB, REF TO STRUCT DWGS UNDERGROUND PARKING LEVEL 1 150 GRADE 0 I SEALANT DRAINAGE LAYER EXTERIOR PROTECTION BOARD 50mm SM RIGID INSULATION PEA GRAVEL HOT APPLIED RUBBERIZED ASPHALT WATERPROOFING MEMBRANCE TERMINATION BAR BELOW GRADE WATERPROOFING FROM SILL TO TERMINATION BAR PRE-FIN METAL FLASHING PROVIDE SEALANT TYP CURTAIN WALL SYSTEM INTERIOR CONCRETE SIDEWALK CONC. BEAM, REF TO STRUCT BEAM CW01 F02 LEVEL 5 12150 I EXTERIOR SUITE SPANDREL WALL INSULATED, SEE CURTAIN WALL SYSTEM SHOP DWG'S 75 BYPASS SPANDREL PANEL SEE MECHANICAL FOR DUCT WORK THERMALLY BROKEN CURTAIN WALL WINDOW SYSTEM SELF ADHESIVE WPM MEMBRANE UP SEALED TO WINDOW FRAME SELF ADHESIVE AIR MOISTURE BARRIER MEMBRANE SEALED TO WINDOW SYSTEM METAL FLASHING CONT. SEALANT AND BACKER ROD CONT. SEALANT FILL VOID W/ LOW EXPANSION SPRAY FOAM FASTENING SYSTEM BY WINDOW SUPPLIER THERMALLY BROKEN CURTAIN WALL WINDOW SYSTEM SELF ADHESIVE WPM UP SEALED TO WINDOW FRAME SUITE FILL WITH SPRAY FOAM INSULATION FIRE STOP INSULATION ATTACHED TO BACK PANEL 25 F02 C01 CW01 CW01 ROOF 24150 PARAPET 25830 I U/S ROOF 23900 13mm PROTECTION BOARD DRAINAGE LAYER FILTER FABRIC CONC. SLAB, REF. TO STRUCT. DWGS. PREFINISH METAL FLAHING C/W FLASHING CLEAT CONT. REGLET W/ LEAD WEDGES CONC. CURB, REF. TO STRUCT DWGS. WINDOW WALL FASTING SYSTEM, REF TO SHOP DWGS AND STRUCT DWGS SPANDREL SYSTEM, REF TO SHOP DWGS INTERIOR EXTERIOR MIN. 100 13mm EXPANSION FIBER PRECAST PAVER, REF TO SPECS 38mm RIGID INSULATION TAPERED PRESSURE TREATED WOOD BLOCKING 2X2 SELF ADHESIVE AIR/MOISTURE BARRIER MEMBRANE MIN. 600mm CONT. SEALANT PAINTED FINISH S OPE 1 % M N PRE-FINISHED METAL CAP FLASHING C/W FLASHING CLEAT TAPERED PRESSURE TREATED WOOD BLOCKING 2X3 TAPERED PRESSURE TREATED WOOD BLOCKING 2X2 EXT. TREATED PLYWOOD SLOPED SELF ADHESIVE WPM OVER PARAPET FRAMING SELF ADHESIVE WPM OVER PRECAST WALL MIN. 50 GLAZING SYSTEM, REF TO SHOP DWGS 13mm PROTECTION BOARD FURRING WALL BEYOND C01 SCALE (@ A1) CHECKED BY TITLE PROJECT CLIENT PROJECT DRAWING NUMBER DRAWN BY STATUS PURPOSE OF ISSUE CODE SUITABILITY DESCRIPTION As indicated WALL SECTION DETAILS 1011 TORONTO CONDO GBC Checker A500 Author REVISIONS REVDESCRIPTIONDATE 1 : 75 WALL SECTION 1 1 : 10 SECTION DETAIL 01 2 1 : 10 SECTION DETAIL 02 3 1 : 10 SECTION DETAIL 03 4 1 : 10 SECTION DETAIL 04 5 1 : 10 SECTION DETAIL 05 6 LEVEL 1 150 LEVEL 2 3150 LEVEL 3 6150 LEVEL 4 9150 LEVEL 5 12150 LEVEL 6 15150 LEVEL 7 18150 LEVEL 8 21150 ROOF 24150 PARAPET 25830 GRADE 0 UG P1 -3550 I J T/O FOOTING -4770 U/S ROOF 23900 1680 3000 3000 3000 3000 3000 3000 3000 3000 150 3550 1220 UNDERGROUND PARKING ADMIN OFFICE SUITE SUITE SUITE SUITE SUITE SUITE SUITE ROOF CONC BEAM, REF TO STRUCT DWGS STRUCT COLUMN, REF TO STRUCT DWGS FOUNDATION WALL, REF TO STRUCT DWGS DRAINAGE TILE, REF MECH. DWGS AND GEOTECH REPORT GRAVEL, GEOTECH REPORT FOOTING, REF TO STRUCT DWGS UNDISTURBED BEARING SOIL SIDEWALK ASPHALT ROOF SLAB @ UG PARKING POUR CONC SLAB, REF TO STRUCT DWGS CAST IN PLACE CONC SLAB, REF TO STRUCT DWGS (TYP) SLAB ON GRADE, REF TO STRUCT DWGS C01 C01 C01 C01 C01 C01 C01 C01 F02 F02 F02 F02 F02 F02 F02 F02 R01 2 A500 3 A500 4 A500 5 A500 6 A500 GL 2400 SP 600 GL 2400 SP 600 GL 2400 SP 600 GL 2400 SP 600 GL 2400 SP 600 GL 2400 SP 600 GL 2400 SP 600 GL 2400 SP 2280 J T/O FOOTING -4770 DRAINAGE TILE, REF MECH. DWGS AND GEOTECH REPORT GRAVEL, REF GEOTECH REPORT FOOTING, REF TO STRUCT DWGS UNDISTURBED BEARING SOIL 13mm PROTECTION BOARD 13mm DRAINAGE BOARD WATER PROOF MEMBRANE LEVEL 1 150 GRADE 0 J GRAVEL, REF TO ARCHITECTURAL SPECS 13mm PROTECTION BOARD 13mm DRAINAGE BOARD CONT. WATER PROOF MEMBRANE HEAVY DUTY ASPHALT, REF TO ARCHITECTURAL SPECS FOUNDATION WALL, REF TO STRUCT DWGS CONC. SLAB, REF TO STRUCT DWGS UNDERGROUND PARKING LEVEL 1 150 GRADE 0 I SEALANT DRAINAGE LAYER EXTERIOR PROTECTION BOARD 50mm SM RIGID INSULATION PEA GRAVEL HOT APPLIED RUBBERIZED ASPHALT WATERPROOFING MEMBRANCE TERMINATION BAR BELOW GRADE WATERPROOFING FROM SILL TO TERMINATION BAR PRE-FIN METAL FLASHING PROVIDE SEALANT TYP CURTAIN WALL SYSTEM INTERIOR CONCRETE SIDEWALK CONC. BEAM, REF TO STRUCT BEAM CW01 F02 LEVEL 5 12150 I EXTERIOR SUITE SPANDREL WALL INSULATED, SEE CURTAIN WALL SYSTEM SHOP DWG'S 75 BYPASS SPANDREL PANEL SEE MECHANICAL FOR DUCT WORK THERMALLY BROKEN CURTAIN WALL WINDOW SYSTEM SELF ADHESIVE WPM MEMBRANE UP SEALED TO WINDOW FRAME SELF ADHESIVE AIR MOISTURE BARRIER MEMBRANE SEALED TO WINDOW SYSTEM METAL FLASHING CONT. SEALANT AND BACKER ROD CONT. SEALANT FILL VOID W/ LOW EXPANSION SPRAY FOAM FASTENING SYSTEM BY WINDOW SUPPLIER THERMALLY BROKEN CURTAIN WALL WINDOW SYSTEM SELF ADHESIVE WPM UP SEALED TO WINDOW FRAME SUITE FILL WITH SPRAY FOAM INSULATION FIRE STOP INSULATION ATTACHED TO BACK PANEL 25 F02 C01 CW01 CW01 ROOF 24150 PARAPET 25830 I U/S ROOF 23900 13mm PROTECTION BOARD DRAINAGE LAYER FILTER FABRIC CONC. SLAB, REF. TO STRUCT. DWGS. PREFINISH METAL FLAHING C/W FLASHING CLEAT CONT. REGLET W/ LEAD WEDGES CONC. CURB, REF. TO STRUCT DWGS. WINDOW WALL FASTING SYSTEM, REF TO SHOP DWGS AND STRUCT DWGS SPANDREL SYSTEM, REF TO SHOP DWGS INTERIOR EXTERIOR MIN. 100 13mm EXPANSION FIBER PRECAST PAVER, REF TO SPECS 38mm RIGID INSULATION TAPERED PRESSURE TREATED WOOD BLOCKING 2X2 SELF ADHESIVE AIR/MOISTURE BARRIER MEMBRANE MIN. 600mm CONT. SEALANT PAINTED FINISH SLOPE 0% M N PRE-FINISHED METAL CAP FLASHING C/W FLASHING CLEAT TAPERED PRESSURE TREATED WOOD BLOCKING 2X3 TAPERED PRESSURE TREATED WOOD BLOCKING 2X2 EXT. TREATED PLYWOOD SLOPED SELF ADHESIVE WPM OVER PARAPET FRAMING SELF ADHESIVE WPM OVER PRECAST WALL MIN. 50 GLAZING SYSTEM, REF TO SHOP DWGS 13mm PROTECTION BOARD FURRING WALL BEYOND C01 SCALE (@ A1) TITLE CLIENT PROJECT DRAWING NUMBER DRAWN BY STATUS PURPOSE CODE SUITABILITY As indicated WALL TORONTO A500 Author REVDESCRIPTIONDATE 1 : 75 WALL SECTION 1 1 10 SECTION DETAIL 01 2 1 10 SECTION DETAIL 02 3 1 10 SECTION DETAIL 03 4 1 : 10 SECTION DETAIL 04 5 1 : 10 SECTION DETAIL 05 6
3D MEP 1 M.E.P modeling details

HIGHRISE CONSTRUCTION

This project demonstrates high-rise construction modeling using Revit, used various features to create detailed family creation and quantification. Additionally, I have also explored Dynamo workflows to enhance the form creation as well as to increase efficiency through streamlining repetitive tasks. Navisworks is used for clash-detection for coordination between various agencies.

06
Eglinton Ave E, Toronto, Ontario,
31 SCALE (@ A1) CHECKED DRAWING NUMBER STATUS PURPOSE OF ISSUE SUITABILITY DESCRIPTION Cover 3 massey GBC Amal A100 3 massey sq 1 3 TO 1 Eglinton Ave E, Toronto, Ontario, M4P 3A1 Residential (Condo), Commercial (Office, Retail) 3D VIEW of building 2 RevDescriptionDate SCALE (@ A1) TITLE CLIENT PROJECT DRAWING NUMBER REV DRAWN BY STATUS CODE Project Number A100 Parth 3 massey sq 1 PROJECT NAME: 3 MASSEY SQUARE TORONTO Add ess 1 Eglinton Ave E, Toronto, Ontario, M4P 3A1 Ca egory Residential (Condo), Commercial (Office, Retail) Status Pre-Construction Number of Bu ld ngs 1 He ght 693 ft / 211.25 m S o eys 31 Number o Un ts 200 3D VIEW of building 2 RevDescriptionDate Exterior view of building Exterior view of building Exploration in Dynamo Dynamo script Clash detection Custom family creation
Sectional View 2 Level 0 0 Level 1 4000 Level 2 8000 Level 3 12000 Level 4 16000 Level 5 20000 Level 6 24000 Level 7 28000 Level 8 32000 Level 9 36000 Level 10 40000 Level 11 44000 Level 12 48000 Level 13 52000 Level 14 56000 Level 15 60000 Level 16 64000 Level 17 68000 Level 18 72000 Level 19 76000 Level 20 80000 Level 21 84000 Level 22 88000 Level 23 92000 Level 24 96000 Level 25 100000 Level 26 104000 Level 27 108000 Level 28 112000 Level 29 116000 Level 30 120000 ROOF LEVEL 124000 4899 3101 4000 4000 4000 4000 4000 4000 4000 4000 4000 4000 4000 4000 4000 4000 4000 4000 4000 4000 4000 4000 4000 4000 4000 4000 4000 4000 4000 116000 1 200 Section 2 1 Sectional View 2 Cross section view Building section
East Elevation 1 200 West Elevation 2 Address Address Phone -mail Consultant Address Phone Fax -mail Address Address Phone Fax3D view 3 massey S GBC No.DescriptionDate Scale Checked by Drawn Date Project number Consultant Address Address Phone FaxConsultant Address Address Phone FaxConsultant Address Phone Fax -mail 3D view 2 Project Number 3 massey S GBC Issue Date Author Checker A108 No.DescriptionDate 3D VIEW 2 1 East elevation Exterior view Exterior view

519 731 8526

parth.arch7@gmail.com

36
PARTH CHAMPANERI

Turn static files into dynamic content formats.

Create a flipbook
Issuu converts static files into: digital portfolios, online yearbooks, online catalogs, digital photo albums and more. Sign up and create your flipbook.